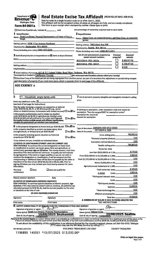
Property
Account |
| Property ID: | 20024 | Abbreviated Legal Description: | S25 T28 R2W TAX 16(ENLG BY TAX 24) W/WATER RIGHTS SUBJ/EASE |
| Parcel # / Geo ID: | 802252016 | Agent Code: | |
| Type: | Real | | |
| Tax Area: | 0324 - 1-48F2E2H2C2L1Z3 | Land Use Code | 11 |
| Open Space: | N | DFL | N |
| Historic Property: | N | Remodel Property: | N |
| Multi-Family Redevelopment: | N | | |
| Township: | 28N | Section: | 25 |
| Range: | 2W |
Location |
| Address: | 451 LELAND VALLEY RD W QUILCENE, WA 98376 | Mapsco: | 171/031 |
| Neighborhood: | S23, 24, 25 & 26 T28N R2W & GARRISON & TAYLOR-JOHNSON SP | Map ID: | |
| Neighborhood CD: | 2630 |
Owner |
| Name: | MAREN COSTA | Owner ID: | 113474 |
| Mailing Address: | MAIA COSTA 3905 42ND AVE SW SEATTLE, WA 98116-3820 | % Ownership: | 100.0000000000% |
| | | Exemptions: | |
Pay Tax Due
There is currently No Amount Due on this property.
Taxes and Assessment Details
Property Tax Information as of
03/10/2026
Click on "Statement Details" to expand or collapse a tax statement.
* Please enter a valid date ** Please enter a valid date *
Statement Details |
| | TOTAL: | $0.00 | $0.00 | $0.00 | $0.00 | $0.00 | $0.00 |
|
| | $0.00 | $0.00 | $0.00 | $0.00 | $0.00 | $0.00 |
Values
| (+) Improvement Homesite Value: | + | $0 | |
| (+) Improvement Non-Homesite Value: | + | $294,007 | |
| (+) Land Homesite Value: | + | $0 | |
| (+) Land Non-Homesite Value: | + | $207,426 | |
| (+) Curr Use (HS): | + | $0 | $0 |
| (+) Curr Use (NHS): | + | $0 | $0 |
| | | -------------------------- | |
| (=) Market Value: | = | $501,433 | |
| (–) Productivity Loss: | – | $0 | |
| | | -------------------------- | |
| (=) Subtotal: | = | $501,433 | |
| (+) Senior Appraised Value: | + | $0 | |
| (+) Non-Senior Appraised Value: | + | $501,433 | |
| | | -------------------------- | |
| (=) Total Appraised Value: | = | $501,433 | |
| (–) Senior Exemption Loss: | – | $0 | |
| (–) Exemption Loss: | – | $0 | |
| | | -------------------------- | |
| (=) Taxable Value: | = | $501,433 | |
Taxing Jurisdiction
| Owner: | MAREN COSTA | | |
| % Ownership: | 100.0000000000% | | |
| Total Value: | N/A | | |
| Tax Area: | 0324 - 1-48F2E2H2C2L1Z3 |
| CE | COUNTY CURRENT EXPENSE | N/A | N/A | N/A | N/A | | |
| CNTYDD | DEVELOPMENTAL DISABILITIES | N/A | N/A | N/A | N/A | | |
| CNTYVET | VETERANS RELIEF | N/A | N/A | N/A | N/A | | |
| MENTAL | MENTAL HEALTH | N/A | N/A | N/A | N/A | | |
| ROADS | COUNTY ROADS | N/A | N/A | N/A | N/A | | |
| HOSP2CASH | HOSP DIST #2 GENERAL | N/A | N/A | N/A | N/A | | |
| SCH48MO | SCHOOL DIST #48 EP & O | N/A | N/A | N/A | N/A | | |
| CEM2 | CEMETERY DIST #2 GENERAL | N/A | N/A | N/A | N/A | | |
| CONSERVE | CONSERVATION FUTURES | N/A | N/A | N/A | N/A | | |
| FD2 | FIRE DIST #2 GENERAL | N/A | N/A | N/A | N/A | | |
| LIB1 | LIBRARY DIST #1 GENERAL | N/A | N/A | N/A | N/A | | |
| PORTPT | PORT OF PT GENERAL | N/A | N/A | N/A | N/A | | |
| PORTPTIDD | PORT OF PT IDD 2019 | N/A | N/A | N/A | N/A | | |
| PUD1 | PUD #1 GENERAL | N/A | N/A | N/A | N/A | | |
| STATE | STATE SCHOOL PART 1 | N/A | N/A | N/A | N/A | | |
| STATE2 | STATE SCHOOL PART 2 | N/A | N/A | N/A | N/A | | |
| EMS2 | FIRE DIST #2 EMS | N/A | N/A | N/A | N/A | | |
| | Total Tax Rate: | N/A | | | | | |
| | | | | Taxes w/Current Exemptions: | N/A | | |
| | | | | Taxes w/o Exemptions: | N/A | | |
Improvement / Building
| Improvement #1: | Residential Bldg | State Code: | 11 | 896.0 sqft | Value: | $294,007 |
| Bathrooms (#): | 2 (FULL) | Bedrooms (#): | 1 | | Exterior Wall: | SI/ST | Floor Construction: | FRAME | | Foundation: | CONPR | Heating/Cooling: | ELBB | | Roof Cover: | COMP |   |   |
|
| | Type | Description | Class CD | Sub Class CD | Year Built | Area |
| | MA | Main Area | 3+ | 1S | 2000 | 896.0 |
| | HDECK | House Deck | 3 | * | 2000 | 550.0 |
| | GBSMT | Basement Garage | 3 | 1S | 2000 | 896.0 |
| | HLOFT | House Loft | 3 | * | 2000 | 120.0 |
| | HWPOR | House Wood Porch | 3 | * | 2000 | 256.0 |
| | PATIO | House Patio | 3 | * | 2018 | 147.0 |
| | SHED | Shed (Table Not Dep) | 4 | * | 2018 | 390.0 |
| | OTHER | Other | 2 | * | 2018 | 225.0 |
Sketch
Property Image
Land
| 1 | 2630-1345S | Good Lake Leland View Sites 1+ Acre | 1.0000 | 43560.00 | 0.00 | 0.00 | 1.00 | $137,138 | $0 |
| 2 | 2630-7375S | Excel View Rec Sites near Lake Leland | 0.6300 | 27442.80 | 0.00 | 0.00 | 1.00 | $27,600 | $0 |
| 3 | 1573A | Terr/Mtn/No View <6 Acres | 3.9700 | 172933.20 | 0.00 | 0.00 | 0.00 | $42,688 | $0 |
Roll Value History
| 2026 | N/A | N/A | N/A | N/A | N/A |
| 2025 | $238,537 | $182,243 | $0 | $420,780 | $420,780 |
| 2024 | $228,598 | $174,319 | $0 | $402,917 | $402,917 |
| 2023 | $218,659 | $151,784 | $0 | $370,443 | $370,443 |
| 2022 | $198,781 | $145,097 | $0 | $343,878 | $343,878 |
Deed and Sales History
| 1 | 10/06/2025 | BSD | Bargain and Sale Deed | RON A BURGH | MAREN COSTA | | | $785,000.00 | 145051 | |
|   | |
Payout Agreement
| No payout information available.. |