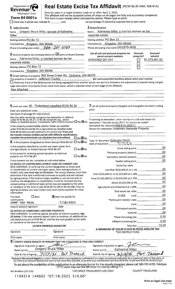
Property
Account |
| Property ID: | 20053 | Abbreviated Legal Description: | S26 T28 R2W TAX 19 BND TGTH THRU BLA#115005 |
| Parcel # / Geo ID: | 802261001 | Agent Code: | |
| Type: | Real | | |
| Tax Area: | 0324 - 1-48F2E2H2C2L1Z3 | Land Use Code | 11 |
| Open Space: | N | DFL | N |
| Historic Property: | N | Remodel Property: | N |
| Multi-Family Redevelopment: | N | | |
| Township: | 28N | Section: | 26 |
| Range: | 2W |
Location |
| Address: | 893 SNOW CREEK RD QUILCENE, WA 98376 | Mapsco: | 171/086 |
| Neighborhood: | S23, 24, 25 & 26 T28N R2W & GARRISON & TAYLOR-JOHNSON SP | Map ID: | |
| Neighborhood CD: | 2630 |
Owner |
| Name: | KATHERINE MILLER | Owner ID: | 112935 |
| Mailing Address: | 893 SNOW CREEK RD QUILCENE, WA 98376-7504 | % Ownership: | 100.0000000000% |
| | | Exemptions: | |
Pay Tax Due
There is currently No Amount Due on this property.
Taxes and Assessment Details
Property Tax Information as of
03/11/2026
Click on "Statement Details" to expand or collapse a tax statement.
* Please enter a valid date ** Please enter a valid date *
Statement Details |
| 2026 | 9561 | STATE - STATE LEVY (SCHOOL) | $1214.03 | $1214.01 | $0.00 | $0.00 | $2428.04 | $0.00 |
| 2026 | 9561 | COUNTY - COUNTY LEVIES (CE, DD, VET, MH) | $485.36 | $485.35 | $0.00 | $0.00 | $970.71 | $0.00 |
| 2026 | 9561 | CONSERVE - CONSERVATION FUTURES | $14.56 | $14.55 | $0.00 | $0.00 | $29.11 | $0.00 |
| 2026 | 9561 | COROADS - COUNTY ROADS (ROADS, DIV TO CE) | $391.55 | $391.55 | $0.00 | $0.00 | $783.10 | $0.00 |
| 2026 | 9561 | PORTPT - PORT DISTRICT | $196.03 | $196.02 | $0.00 | $0.00 | $392.05 | $0.00 |
| 2026 | 9561 | PUD1 - PUD #1 | $31.57 | $31.57 | $0.00 | $0.00 | $63.14 | $0.00 |
| 2026 | 9561 | LIB1 - LIBRARY DIST #1 | $151.49 | $151.48 | $0.00 | $0.00 | $302.97 | $0.00 |
| 2026 | 9561 | HD2 - HOSP DIST #2 | $28.31 | $28.30 | $0.00 | $0.00 | $56.61 | $0.00 |
| 2026 | 9561 | SD48 - SCHOOL DIST #48 | $745.63 | $745.62 | $0.00 | $0.00 | $1491.25 | $0.00 |
| 2026 | 9561 | FD2 - FIRE DISTRICT #2 | $398.68 | $398.67 | $0.00 | $0.00 | $797.35 | $0.00 |
| 2026 | 9561 | EMS2 - FIRE DIST #2 EMS | $224.51 | $224.51 | $0.00 | $0.00 | $449.02 | $0.00 |
| 2026 | 9561 | CEM2 - CEMETERY DIST #2 | $12.74 | $12.74 | $0.00 | $0.00 | $25.48 | $0.00 |
| 2026 | 9561 | FP - DNR Forest Fire Protection Assmt | $8.50 | $8.50 | $0.00 | $0.00 | $17.00 | $0.00 |
| 2026 | 9561 | FPLCA - DNR Landowner Contingency Assmt | $3.00 | $3.00 | $0.00 | $0.00 | $6.00 | $0.00 |
| 2026 | 9561 | JCCD - JC Conservation District | $2.95 | $2.95 | $0.00 | $0.00 | $5.90 | $0.00 |
| 2026 | 9561 | NWA - Noxious Weed Assessment | $0.48 | $0.48 | $0.00 | $0.00 | $0.96 | $0.00 |
| 2026 | 9561 | OSS - On Site Septic | $23.10 | $23.10 | $0.00 | $0.00 | $46.20 | $0.00 |
| 2026 | 9561 | WAT - Clean Water District | $13.00 | $13.00 | $0.00 | $0.00 | $26.00 | $0.00 |
| 2026 | 9561 | FP ADMIN - FP ADMIN | $0.50 | $0.00 | $0.00 | $0.00 | $0.50 | $0.00 |
| 2026 | 9561 | TOTAL: | $3945.99 | $3945.40 | $0.00 | $0.00 | $7891.39 | $0.00 |
|
| 2026 | 9561 | $3945.99 | $3945.40 | $0.00 | $0.00 | $7891.39 | $0.00 |
Statement Details |
| 2025 | 9584 | STATE - STATE LEVY (SCHOOL) | $1250.25 | $923.32 | $0.00 | $0.00 | $2173.57 | $0.00 |
| 2025 | 9584 | COUNTY - COUNTY LEVIES (CE, DD, VET, MH) | $491.69 | $363.05 | $0.00 | $0.00 | $854.74 | $0.00 |
| 2025 | 9584 | CONSERVE - CONSERVATION FUTURES | $14.75 | $10.88 | $0.00 | $0.00 | $25.63 | $0.00 |
| 2025 | 9584 | COROADS - COUNTY ROADS (ROADS, DIV TO CE) | $393.91 | $290.86 | $0.00 | $0.00 | $684.77 | $0.00 |
| 2025 | 9584 | PORTPT - PORT DISTRICT | $200.63 | $148.15 | $0.00 | $0.00 | $348.78 | $0.00 |
| 2025 | 9584 | PUD1 - PUD #1 | $32.17 | $23.76 | $0.00 | $0.00 | $55.93 | $0.00 |
| 2025 | 9584 | LIB1 - LIBRARY DIST #1 | $152.39 | $112.54 | $0.00 | $0.00 | $264.93 | $0.00 |
| 2025 | 9584 | HD2 - HOSP DIST #2 | $28.68 | $21.18 | $0.00 | $0.00 | $49.86 | $0.00 |
| 2025 | 9584 | SD48 - SCHOOL DIST #48 | $736.22 | $543.71 | $0.00 | $0.00 | $1279.93 | $0.00 |
| 2025 | 9584 | FD2 - FIRE DISTRICT #2 | $406.50 | $300.18 | $0.00 | $0.00 | $706.68 | $0.00 |
| 2025 | 9584 | EMS2 - FIRE DIST #2 EMS | $228.89 | $169.02 | $0.00 | $0.00 | $397.91 | $0.00 |
| 2025 | 9584 | CEM2 - CEMETERY DIST #2 | $12.97 | $9.57 | $0.00 | $0.00 | $22.54 | $0.00 |
| 2025 | 9584 | FP - DNR Forest Fire Protection Assmt | $10.77 | $6.23 | $0.00 | $0.00 | $17.00 | $0.00 |
| 2025 | 9584 | FPLCA - DNR Landowner Contingency Assmt | $3.80 | $2.20 | $0.00 | $0.00 | $6.00 | $0.00 |
| 2025 | 9584 | JCCD - JC Conservation District | $1.95 | $1.13 | $0.00 | $0.00 | $3.08 | $0.00 |
| 2025 | 9584 | NWA - Noxious Weed Assessment | $0.43 | $0.24 | $0.00 | $0.00 | $0.67 | $0.00 |
| 2025 | 9584 | OSS - On Site Septic | $27.24 | $15.76 | $0.00 | $0.00 | $43.00 | $0.00 |
| 2025 | 9584 | WAT - Clean Water District | $16.47 | $9.53 | $0.00 | $0.00 | $26.00 | $0.00 |
| 2025 | 9584 | FP ADMIN - FP ADMIN | $0.25 | $0.25 | $0.00 | $0.00 | $0.50 | $0.00 |
| 2025 | 9584 | TOTAL: | $4009.96 | $2951.56 | $0.00 | $0.00 | $6961.52 | $0.00 |
|
| 2025 | 9584 | $4009.96 | $2951.56 | $0.00 | $0.00 | $6961.52 | $0.00 |
Statement Details |
| 2025 | 34647 | STATE - STATE LEVY (SCHOOL) | $415.04 | $0.00 | $0.00 | $0.00 | $415.04 | $0.00 |
| 2025 | 34647 | COUNTY - COUNTY LEVIES (CE, DD, VET, MH) | $163.20 | $0.00 | $0.00 | $0.00 | $163.20 | $0.00 |
| 2025 | 34647 | CONSERVE - CONSERVATION FUTURES | $4.89 | $0.00 | $0.00 | $0.00 | $4.89 | $0.00 |
| 2025 | 34647 | COROADS - COUNTY ROADS (ROADS, DIV TO CE) | $130.76 | $0.00 | $0.00 | $0.00 | $130.76 | $0.00 |
| 2025 | 34647 | PORTPT - PORT DISTRICT | $66.60 | $0.00 | $0.00 | $0.00 | $66.60 | $0.00 |
| 2025 | 34647 | PUD1 - PUD #1 | $10.68 | $0.00 | $0.00 | $0.00 | $10.68 | $0.00 |
| 2025 | 34647 | LIB1 - LIBRARY DIST #1 | $50.59 | $0.00 | $0.00 | $0.00 | $50.59 | $0.00 |
| 2025 | 34647 | HD2 - HOSP DIST #2 | $9.52 | $0.00 | $0.00 | $0.00 | $9.52 | $0.00 |
| 2025 | 34647 | SD48 - SCHOOL DIST #48 | $244.40 | $0.00 | $0.00 | $0.00 | $244.40 | $0.00 |
| 2025 | 34647 | FD2 - FIRE DISTRICT #2 | $134.94 | $0.00 | $0.00 | $0.00 | $134.94 | $0.00 |
| 2025 | 34647 | EMS2 - FIRE DIST #2 EMS | $75.98 | $0.00 | $0.00 | $0.00 | $75.98 | $0.00 |
| 2025 | 34647 | CEM2 - CEMETERY DIST #2 | $4.31 | $0.00 | $0.00 | $0.00 | $4.31 | $0.00 |
| 2025 | 34647 | RbkTaxInt - ROLLBACK TAX INTEREST | $39.33 | $0.00 | $0.00 | $0.00 | $39.33 | $0.00 |
| 2025 | 34647 | TOTAL: | $1350.24 | $0.00 | $0.00 | $0.00 | $1350.24 | $0.00 |
|
| 2025 | 34647 | $1350.24 | $0.00 | $0.00 | $0.00 | $1350.24 | $0.00 |
Statement Details |
| 2024 | 9609 | STATE - STATE LEVY (SCHOOL) | $1655.72 | $0.00 | $0.00 | $0.00 | $1655.72 | $0.00 |
| 2024 | 9609 | COUNTY - COUNTY LEVIES (CE, DD, VET, MH) | $708.50 | $0.00 | $0.00 | $0.00 | $708.50 | $0.00 |
| 2024 | 9609 | CONSERVE - CONSERVATION FUTURES | $21.25 | $0.00 | $0.00 | $0.00 | $21.25 | $0.00 |
| 2024 | 9609 | COROADS - COUNTY ROADS (ROADS, DIV TO CE) | $570.11 | $0.00 | $0.00 | $0.00 | $570.11 | $0.00 |
| 2024 | 9609 | PORTPT - PORT DISTRICT | $292.64 | $0.00 | $0.00 | $0.00 | $292.64 | $0.00 |
| 2024 | 9609 | PUD1 - PUD #1 | $46.54 | $0.00 | $0.00 | $0.00 | $46.54 | $0.00 |
| 2024 | 9609 | LIB1 - LIBRARY DIST #1 | $220.57 | $0.00 | $0.00 | $0.00 | $220.57 | $0.00 |
| 2024 | 9609 | HD2 - HOSP DIST #2 | $41.34 | $0.00 | $0.00 | $0.00 | $41.34 | $0.00 |
| 2024 | 9609 | SD48 - SCHOOL DIST #48 | $741.56 | $0.00 | $0.00 | $0.00 | $741.56 | $0.00 |
| 2024 | 9609 | FD2 - FIRE DISTRICT #2 | $589.01 | $0.00 | $0.00 | $0.00 | $589.01 | $0.00 |
| 2024 | 9609 | EMS2 - FIRE DIST #2 EMS | $331.57 | $0.00 | $0.00 | $0.00 | $331.57 | $0.00 |
| 2024 | 9609 | CEM2 - CEMETERY DIST #2 | $18.85 | $0.00 | $0.00 | $0.00 | $18.85 | $0.00 |
| 2024 | 9609 | FP - DNR Forest Fire Protection Assmt | $17.00 | $0.00 | $0.00 | $0.00 | $17.00 | $0.00 |
| 2024 | 9609 | FPLCA - DNR Landowner Contingency Assmt | $6.00 | $0.00 | $0.00 | $0.00 | $6.00 | $0.00 |
| 2024 | 9609 | JCCD - JC Conservation District | $3.08 | $0.00 | $0.00 | $0.00 | $3.08 | $0.00 |
| 2024 | 9609 | NWA - Noxious Weed Assessment | $0.67 | $0.00 | $0.00 | $0.00 | $0.67 | $0.00 |
| 2024 | 9609 | OSS - On Site Septic | $42.00 | $0.00 | $0.00 | $0.00 | $42.00 | $0.00 |
| 2024 | 9609 | WAT - Clean Water District | $25.00 | $0.00 | $0.00 | $0.00 | $25.00 | $0.00 |
| 2024 | 9609 | FP ADMIN - FP ADMIN | $0.50 | $0.00 | $0.00 | $0.00 | $0.50 | $0.00 |
| 2024 | 9609 | TOTAL: | $5331.91 | $0.00 | $0.00 | $0.00 | $5331.91 | $0.00 |
|
| 2024 | 9609 | $5331.91 | $0.00 | $0.00 | $0.00 | $5331.91 | $0.00 |
Statement Details |
| 2024 | 34676 | STATE - STATE LEVY (SCHOOL) | $667.57 | $0.00 | $0.00 | $0.00 | $667.57 | $0.00 |
| 2024 | 34676 | COUNTY - COUNTY LEVIES (CE, DD, VET, MH) | $285.64 | $0.00 | $0.00 | $0.00 | $285.64 | $0.00 |
| 2024 | 34676 | CONSERVE - CONSERVATION FUTURES | $8.57 | $0.00 | $0.00 | $0.00 | $8.57 | $0.00 |
| 2024 | 34676 | COROADS - COUNTY ROADS (ROADS, DIV TO CE) | $229.85 | $0.00 | $0.00 | $0.00 | $229.85 | $0.00 |
| 2024 | 34676 | PORTPT - PORT DISTRICT | $117.98 | $0.00 | $0.00 | $0.00 | $117.98 | $0.00 |
| 2024 | 34676 | PUD1 - PUD #1 | $18.76 | $0.00 | $0.00 | $0.00 | $18.76 | $0.00 |
| 2024 | 34676 | LIB1 - LIBRARY DIST #1 | $88.93 | $0.00 | $0.00 | $0.00 | $88.93 | $0.00 |
| 2024 | 34676 | HD2 - HOSP DIST #2 | $16.67 | $0.00 | $0.00 | $0.00 | $16.67 | $0.00 |
| 2024 | 34676 | SD48 - SCHOOL DIST #48 | $298.98 | $0.00 | $0.00 | $0.00 | $298.98 | $0.00 |
| 2024 | 34676 | FD2 - FIRE DISTRICT #2 | $237.47 | $0.00 | $0.00 | $0.00 | $237.47 | $0.00 |
| 2024 | 34676 | EMS2 - FIRE DIST #2 EMS | $133.68 | $0.00 | $0.00 | $0.00 | $133.68 | $0.00 |
| 2024 | 34676 | CEM2 - CEMETERY DIST #2 | $7.60 | $0.00 | $0.00 | $0.00 | $7.60 | $0.00 |
| 2024 | 34676 | RbkTaxInt - ROLLBACK TAX INTEREST | $316.76 | $0.00 | $0.00 | $0.00 | $316.76 | $0.00 |
| 2024 | 34676 | TOTAL: | $2428.46 | $0.00 | $0.00 | $0.00 | $2428.46 | $0.00 |
|
| 2024 | 34676 | $2428.46 | $0.00 | $0.00 | $0.00 | $2428.46 | $0.00 |
Statement Details |
| 2023 | 9627 | STATE - STATE LEVY (SCHOOL) | $1551.06 | $0.00 | $0.00 | $0.00 | $1551.06 | $0.00 |
| 2023 | 9627 | COUNTY - COUNTY LEVIES (CE, DD, VET, MH) | $676.83 | $0.00 | $0.00 | $0.00 | $676.83 | $0.00 |
| 2023 | 9627 | CONSERVE - CONSERVATION FUTURES | $20.30 | $0.00 | $0.00 | $0.00 | $20.30 | $0.00 |
| 2023 | 9627 | COROADS - COUNTY ROADS (ROADS, DIV TO CE) | $547.61 | $0.00 | $0.00 | $0.00 | $547.61 | $0.00 |
| 2023 | 9627 | PORTPT - PORT DISTRICT | $285.12 | $0.00 | $0.00 | $0.00 | $285.12 | $0.00 |
| 2023 | 9627 | PUD1 - PUD #1 | $44.87 | $0.00 | $0.00 | $0.00 | $44.87 | $0.00 |
| 2023 | 9627 | LIB1 - LIBRARY DIST #1 | $211.87 | $0.00 | $0.00 | $0.00 | $211.87 | $0.00 |
| 2023 | 9627 | HD2 - HOSP DIST #2 | $39.49 | $0.00 | $0.00 | $0.00 | $39.49 | $0.00 |
| 2023 | 9627 | SD48 - SCHOOL DIST #48 | $749.02 | $0.00 | $0.00 | $0.00 | $749.02 | $0.00 |
| 2023 | 9627 | FD2 - FIRE DISTRICT #2 | $587.51 | $0.00 | $0.00 | $0.00 | $587.51 | $0.00 |
| 2023 | 9627 | EMS2 - FIRE DIST #2 EMS | $329.43 | $0.00 | $0.00 | $0.00 | $329.43 | $0.00 |
| 2023 | 9627 | CEM2 - CEMETERY DIST #2 | $18.70 | $0.00 | $0.00 | $0.00 | $18.70 | $0.00 |
| 2023 | 9627 | FP - DNR Forest Fire Protection Assmt | $17.00 | $0.00 | $0.00 | $0.00 | $17.00 | $0.00 |
| 2023 | 9627 | FPLCA - DNR Landowner Contingency Assmt | $6.00 | $0.00 | $0.00 | $0.00 | $6.00 | $0.00 |
| 2023 | 9627 | JCCD - JC Conservation District | $3.08 | $0.00 | $0.00 | $0.00 | $3.08 | $0.00 |
| 2023 | 9627 | NWA - Noxious Weed Assessment | $0.67 | $0.00 | $0.00 | $0.00 | $0.67 | $0.00 |
| 2023 | 9627 | OSS - On Site Septic | $41.00 | $0.00 | $0.00 | $0.00 | $41.00 | $0.00 |
| 2023 | 9627 | WAT - Clean Water District | $24.00 | $0.00 | $0.00 | $0.00 | $24.00 | $0.00 |
| 2023 | 9627 | FP ADMIN - FP ADMIN | $0.50 | $0.00 | $0.00 | $0.00 | $0.50 | $0.00 |
| 2023 | 9627 | TOTAL: | $5154.06 | $0.00 | $0.00 | $0.00 | $5154.06 | $0.00 |
|
| 2023 | 9627 | $5154.06 | $0.00 | $0.00 | $0.00 | $5154.06 | $0.00 |
Statement Details |
| 2023 | 34639 | STATE - STATE LEVY (SCHOOL) | $679.31 | $0.00 | $0.00 | $0.00 | $679.31 | $0.00 |
| 2023 | 34639 | COUNTY - COUNTY LEVIES (CE, DD, VET, MH) | $296.41 | $0.00 | $0.00 | $0.00 | $296.41 | $0.00 |
| 2023 | 34639 | CONSERVE - CONSERVATION FUTURES | $8.89 | $0.00 | $0.00 | $0.00 | $8.89 | $0.00 |
| 2023 | 34639 | COROADS - COUNTY ROADS (ROADS, DIV TO CE) | $239.83 | $0.00 | $0.00 | $0.00 | $239.83 | $0.00 |
| 2023 | 34639 | PORTPT - PORT DISTRICT | $124.87 | $0.00 | $0.00 | $0.00 | $124.87 | $0.00 |
| 2023 | 34639 | PUD1 - PUD #1 | $19.65 | $0.00 | $0.00 | $0.00 | $19.65 | $0.00 |
| 2023 | 34639 | LIB1 - LIBRARY DIST #1 | $92.79 | $0.00 | $0.00 | $0.00 | $92.79 | $0.00 |
| 2023 | 34639 | HD2 - HOSP DIST #2 | $17.29 | $0.00 | $0.00 | $0.00 | $17.29 | $0.00 |
| 2023 | 34639 | SD48 - SCHOOL DIST #48 | $328.04 | $0.00 | $0.00 | $0.00 | $328.04 | $0.00 |
| 2023 | 34639 | FD2 - FIRE DISTRICT #2 | $257.30 | $0.00 | $0.00 | $0.00 | $257.30 | $0.00 |
| 2023 | 34639 | EMS2 - FIRE DIST #2 EMS | $144.28 | $0.00 | $0.00 | $0.00 | $144.28 | $0.00 |
| 2023 | 34639 | CEM2 - CEMETERY DIST #2 | $8.19 | $0.00 | $0.00 | $0.00 | $8.19 | $0.00 |
| 2023 | 34639 | RbkTaxInt - ROLLBACK TAX INTEREST | $598.55 | $0.00 | $0.00 | $0.00 | $598.55 | $0.00 |
| 2023 | 34639 | TOTAL: | $2815.40 | $0.00 | $0.00 | $0.00 | $2815.40 | $0.00 |
|
| 2023 | 34639 | $2815.40 | $0.00 | $0.00 | $0.00 | $2815.40 | $0.00 |
Values
| (+) Improvement Homesite Value: | + | $0 | |
| (+) Improvement Non-Homesite Value: | + | $649,452 | |
| (+) Land Homesite Value: | + | $0 | |
| (+) Land Non-Homesite Value: | + | $406,640 | |
| (+) Curr Use (HS): | + | $0 | $0 |
| (+) Curr Use (NHS): | + | $0 | $0 |
| | | -------------------------- | |
| (=) Market Value: | = | $1,056,092 | |
| (–) Productivity Loss: | – | $0 | |
| | | -------------------------- | |
| (=) Subtotal: | = | $1,056,092 | |
| (+) Senior Appraised Value: | + | $0 | |
| (+) Non-Senior Appraised Value: | + | $1,056,092 | |
| | | -------------------------- | |
| (=) Total Appraised Value: | = | $1,056,092 | |
| (–) Senior Exemption Loss: | – | $0 | |
| (–) Exemption Loss: | – | $0 | |
| | | -------------------------- | |
| (=) Taxable Value: | = | $1,056,092 | |
Taxing Jurisdiction
| Owner: | KATHERINE MILLER | | |
| % Ownership: | 100.0000000000% | | |
| Total Value: | $1,056,092 | | |
| Tax Area: | 0324 - 1-48F2E2H2C2L1Z3 |
| CE | COUNTY CURRENT EXPENSE | 0.9034619479 | $1,056,092 | $1,056,092 | $954.14 | | |
| CNTYDD | DEVELOPMENTAL DISABILITIES | 0.0052121823 | $1,056,092 | $1,056,092 | $5.50 | | |
| CNTYVET | VETERANS RELIEF | 0.0052777810 | $1,056,092 | $1,056,092 | $5.57 | | |
| MENTAL | MENTAL HEALTH | 0.0052121823 | $1,056,092 | $1,056,092 | $5.50 | | |
| ROADS | COUNTY ROADS | 0.7415066410 | $1,056,092 | $1,056,092 | $783.10 | | |
| ROADSCU | COUNTY ROADS TO CUR EXP | 0.0000000000 | $1,056,092 | $1,056,092 | $0.00 | | |
| HOSP2CASH | HOSP DIST #2 GENERAL | 0.0536075306 | $1,056,092 | $1,056,092 | $56.61 | | |
| SCH48MO | SCHOOL DIST #48 EP & O | 1.4120478917 | $1,056,092 | $1,056,092 | $1,491.25 | | |
| CEM2 | CEMETERY DIST #2 GENERAL | 0.0241266154 | $1,056,092 | $1,056,092 | $25.48 | | |
| CONSERVE | CONSERVATION FUTURES | 0.0275621078 | $1,056,092 | $1,056,092 | $29.11 | | |
| FD2 | FIRE DIST #2 GENERAL | 0.7549976873 | $1,056,092 | $1,056,092 | $797.35 | | |
| LIB1 | LIBRARY DIST #1 GENERAL | 0.2868827388 | $1,056,092 | $1,056,092 | $302.97 | | |
| PORTPT | PORT OF PT GENERAL | 0.1134941229 | $1,056,092 | $1,056,092 | $119.86 | | |
| PORTPTIDD | PORT OF PT IDD 2019 | 0.2577346692 | $1,056,092 | $1,056,092 | $272.19 | | |
| PUD1 | PUD #1 GENERAL | 0.0597888892 | $1,056,092 | $1,056,092 | $63.14 | | |
| STATE | STATE SCHOOL PART 1 | 1.4940692947 | $1,056,092 | $1,056,092 | $1,577.87 | | |
| STATE2 | STATE SCHOOL PART 2 | 0.8050170049 | $1,056,092 | $1,056,092 | $850.17 | | |
| EMS2 | FIRE DIST #2 EMS | 0.4251727858 | $1,056,092 | $1,056,092 | $449.02 | | |
| | Total Tax Rate: | 7.3751720728 | | | | | |
| | | | | Taxes w/Current Exemptions: | $7,788.83 | | |
| | | | | Taxes w/o Exemptions: | $7,788.83 | | |
Improvement / Building
| Improvement #1: | Residential Bldg | State Code: | 11 | 3036.0 sqft | Value: | $649,452 |
| Bathrooms (#): | 1 (FULL) | Bathrooms (#): | 1 (HALF) | | Bedrooms (#): | 2 | Exterior Wall: | SI/ST | | Fireplace: | PROPS-GOOD | Floor Construction: | CONCR | | Foundation: | CONPR | Heating/Cooling: | HPUMP | | Roof Cover: | METAL |   |   |
|
| | Type | Description | Class CD | Sub Class CD | Year Built | Area |
| | MA | Main Area | 4+ | 15SF | 2008 | 1728.0 |
| | MA2 | Second Floor Main Area | 4+ | 15SF | 2008 | 1068.0 |
| | HCPOR | House Concrete Porch | 4 | * | 2008 | 30.0 |
| | HDECK | House Deck | 4 | * | 2008 | 382.0 |
| | GDET | Detached Garage | 4 | 15SF | 2008 | 784.3 |
| | OTHER | Other | 4 | * | 2008 | 0.0 |
| | MA | Main Area | 5 | C1S | 2008 | 240.0 |
| | SHED | Shed (Table Not Dep) | 5 | * | 2008 | 192.0 |
| | CONCD | Concrete Drive | 4 | * | 2008 | 179.0 |
| | CDECK | Cabin Deck | 5 | * | 2008 | 156.0 |
| | CWPOR | Cabin Wood Porch | 5 | * | 2008 | 72.0 |
Sketch
Property Image
Land
| 1 | 2630-1415F | | 0.0000 | 0.00 | 50.00 | 0.00 | 1.00 | $126,500 | $0 |
| 2 | 2630-1415F | | 0.0000 | 0.00 | 304.50 | 0.00 | 0.00 | $280,140 | $0 |
Roll Value History
| 2026 | N/A | N/A | N/A | N/A | N/A |
| 2025 | $649,452 | $406,640 | $0 | $1,056,092 | $1,056,092 |
| 2024 | $592,412 | $487,049 | $754 | $762,016 | $762,016 |
| 2023 | $566,655 | $437,522 | $740 | $715,645 | $715,645 |
| 2022 | $515,141 | $432,272 | $720 | $658,861 | $658,861 |
Deed and Sales History
| 1 | 07/17/2025 | SWD | Statutory Warranty Deed | THE STILL WATER TRUST | KATHERINE MILLER | | | $1,125,000.00 | 144601 | |
| 2 | 07/17/2025 | QCD | Quit Claim Deed | GREGORY BRUCE MILLER | KATHERINE MILLER | | | | 144602 | |
| 3 | 10/15/2015 | QCD | Quit Claim Deed | TRUDELL H VAN BURKLEO | THE STILL WATER TRUST | | | | 124222 | |
| 4 | 06/14/2013 | SWD | Statutory Warranty Deed | RONALD W REINHART | TRUDELL H VAN BURKLEO | | | $587,500.00 | 119417 | |
| 5 | 09/27/2010 | BLA | Boundary Line Adjustment | REINHART, RONALD W | REINHART, RONALD W | 0 | 0 | $0.00 | 115005 | 0 |
| 6 | 06/24/2009 | QCD | Quit Claim Deed | REINHART, RONALD W/JANE | RIDDERBUSCH, ROY/LEONA/RUSSELL | | | $0.00 | 113181 | 0 |
| 7 | 06/16/2009 | BLA | Boundary Line Adjustment | RIDDERBUSCH, ROBT/LEONA/R | REINHART, RONALD W/JANE | | | $0.00 | 113077 | 0 |
| 8 | 04/26/2002 | SWD | Statutory Warranty Deed | KATHERINE A GOODHUE | RONALD W/JANE REINHART | 0 | 0 | $0.00 | 95004 | 0 |
| 9 | 04/26/2002 | SWD | Statutory Warranty Deed | KATHERINE A GOODHUE | RONALD W & JANE REINHART | 0 | 0 | $175,000.00 | 94577 | 0 |
Payout Agreement
| No payout information available.. |