Property
Account |
| Property ID: | 20081 | Abbreviated Legal Description: | S26 T28 R2W LOT 5 (N1/2) W OF COUNTY ROAD |
| Parcel # / Geo ID: | 802264005 | Agent Code: | |
| Type: | Real | | |
| Tax Area: | 0324 - 1-48F2E2H2C2L1Z3 | Land Use Code | 76 |
| Open Space: | N | DFL | N |
| Historic Property: | N | Remodel Property: | N |
| Multi-Family Redevelopment: | N | | |
| Township: | 28N | Section: | 26 |
| Range: | 2W |
Location |
| Address: | | Mapsco: | 171/061 |
| Neighborhood: | S23, 24, 25 & 26 T28N R2W & GARRISON & TAYLOR-JOHNSON SP | Map ID: | |
| Neighborhood CD: | 2630 |
Owner |
| Name: | STEWART WILSON | Owner ID: | 100488 |
| Mailing Address: | 100 NW OLIVIA RD POULSBO, WA 98370-7059 | % Ownership: | 100.0000000000% |
| | | Exemptions: | |
Pay Tax Due
There is currently No Amount Due on this property.
Taxes and Assessment Details
Property Tax Information as of
03/12/2026
Click on "Statement Details" to expand or collapse a tax statement.
* Please enter a valid date ** Please enter a valid date *
Statement Details |
| | TOTAL: | $0.00 | $0.00 | $0.00 | $0.00 | $0.00 | $0.00 |
|
| | $0.00 | $0.00 | $0.00 | $0.00 | $0.00 | $0.00 |
Values
| (+) Improvement Homesite Value: | + | $0 | |
| (+) Improvement Non-Homesite Value: | + | $0 | |
| (+) Land Homesite Value: | + | $0 | |
| (+) Land Non-Homesite Value: | + | $96,600 | |
| (+) Curr Use (HS): | + | $0 | $0 |
| (+) Curr Use (NHS): | + | $0 | $0 |
| | | -------------------------- | |
| (=) Market Value: | = | $96,600 | |
| (–) Productivity Loss: | – | $0 | |
| | | -------------------------- | |
| (=) Subtotal: | = | $96,600 | |
| (+) Senior Appraised Value: | + | $0 | |
| (+) Non-Senior Appraised Value: | + | $96,600 | |
| | | -------------------------- | |
| (=) Total Appraised Value: | = | $96,600 | |
| (–) Senior Exemption Loss: | – | $0 | |
| (–) Exemption Loss: | – | $0 | |
| | | -------------------------- | |
| (=) Taxable Value: | = | $96,600 | |
Taxing Jurisdiction
| Owner: | STEWART WILSON | | |
| % Ownership: | 100.0000000000% | | |
| Total Value: | $96,600 | | |
| Tax Area: | 0324 - 1-48F2E2H2C2L1Z3 |
| CE | COUNTY CURRENT EXPENSE | 0.9034619479 | $96,600 | $96,600 | $87.27 | | |
| CNTYDD | DEVELOPMENTAL DISABILITIES | 0.0052121823 | $96,600 | $96,600 | $0.50 | | |
| CNTYVET | VETERANS RELIEF | 0.0052777810 | $96,600 | $96,600 | $0.51 | | |
| MENTAL | MENTAL HEALTH | 0.0052121823 | $96,600 | $96,600 | $0.50 | | |
| ROADS | COUNTY ROADS | 0.7415066410 | $96,600 | $96,600 | $71.63 | | |
| ROADSCU | COUNTY ROADS TO CUR EXP | 0.0000000000 | $96,600 | $96,600 | $0.00 | | |
| HOSP2CASH | HOSP DIST #2 GENERAL | 0.0536075306 | $96,600 | $96,600 | $5.18 | | |
| SCH48MO | SCHOOL DIST #48 EP & O | 1.4120478917 | $96,600 | $96,600 | $136.40 | | |
| CEM2 | CEMETERY DIST #2 GENERAL | 0.0241266154 | $96,600 | $96,600 | $2.33 | | |
| CONSERVE | CONSERVATION FUTURES | 0.0275621078 | $96,600 | $96,600 | $2.66 | | |
| FD2 | FIRE DIST #2 GENERAL | 0.7549976873 | $96,600 | $96,600 | $72.93 | | |
| LIB1 | LIBRARY DIST #1 GENERAL | 0.2868827388 | $96,600 | $96,600 | $27.71 | | |
| PORTPT | PORT OF PT GENERAL | 0.1134941229 | $96,600 | $96,600 | $10.96 | | |
| PORTPTIDD | PORT OF PT IDD 2019 | 0.2577346692 | $96,600 | $96,600 | $24.90 | | |
| PUD1 | PUD #1 GENERAL | 0.0597888892 | $96,600 | $96,600 | $5.78 | | |
| STATE | STATE SCHOOL PART 1 | 1.4940692947 | $96,600 | $96,600 | $144.33 | | |
| STATE2 | STATE SCHOOL PART 2 | 0.8050170049 | $96,600 | $96,600 | $77.76 | | |
| EMS2 | FIRE DIST #2 EMS | 0.4251727858 | $96,600 | $96,600 | $41.07 | | |
| | Total Tax Rate: | 7.3751720728 | | | | | |
| | | | | Taxes w/Current Exemptions: | $712.42 | | |
| | | | | Taxes w/o Exemptions: | $712.42 | | |
Improvement / Building
Sketch
| No sketches available for this property. |
Property Image
Land
| 1 | 2630-1345S | Good Lake Leland View Sites 1+ Acre | 1.0000 | 43560.00 | 0.00 | 0.00 | 1.00 | $96,600 | $0 |
Roll Value History
| 2026 | N/A | N/A | N/A | N/A | N/A |
| 2025 | $0 | $96,600 | $0 | $96,600 | $96,600 |
| 2024 | $0 | $92,400 | $0 | $92,400 | $92,400 |
| 2023 | $0 | $84,000 | $0 | $84,000 | $84,000 |
| 2022 | $0 | $84,000 | $0 | $84,000 | $84,000 |
Deed and Sales History
| 1 | 01/18/2019 | SWD | Statutory Warranty Deed | JOSEPH R MUNN | STEWART WILSON | | | $65,000.00 | 131738 | |
| 2 | 09/01/2018 | QCD | Quit Claim Deed | | | | | | 130939 | |
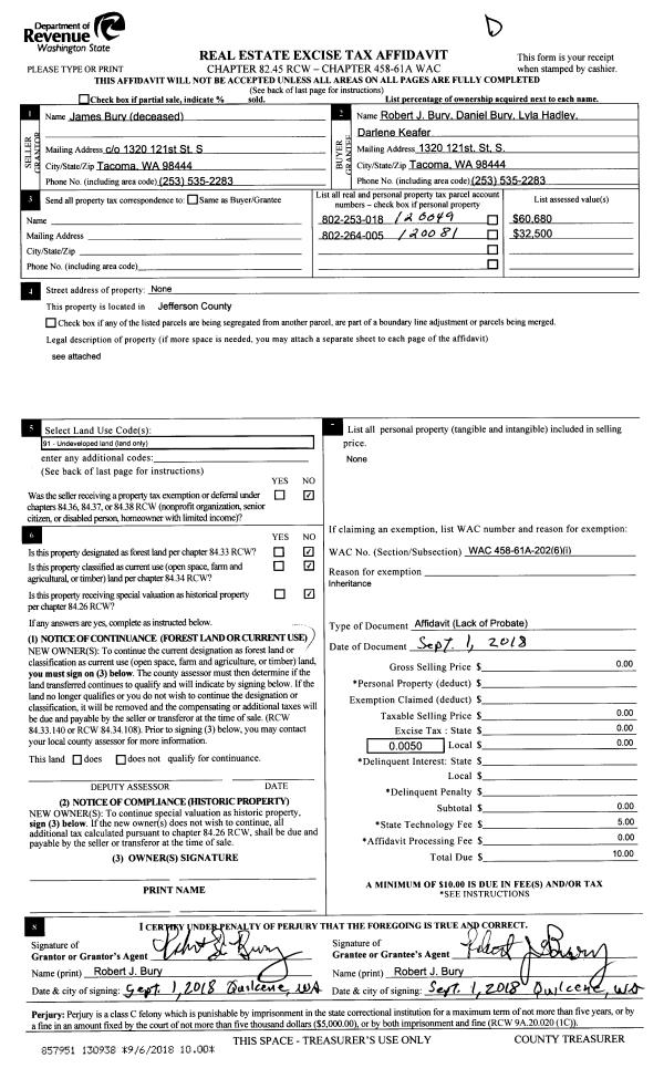
| 3 | 09/01/2018 | LOP | Lack of Probate | | ROBERT J BURY | | | | 130938 | |
| 4 | 07/13/1987 | QCD | Quit Claim Deed | | | | | | 130349 | |
Payout Agreement
| No payout information available.. |