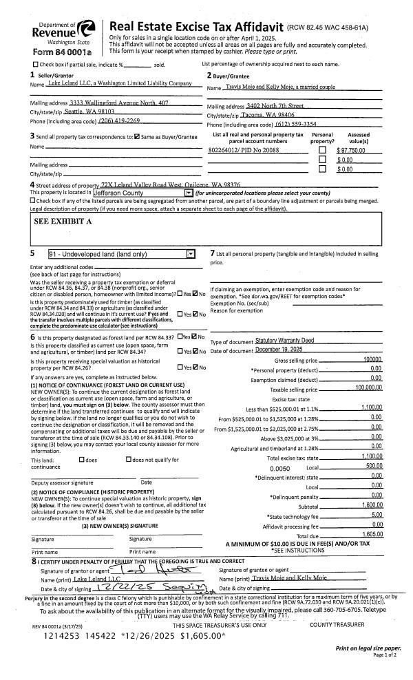
Property
Account |
| Property ID: | 20088 | Abbreviated Legal Description: | S26 T28 R2W TAX 9(ENLG BY TX 23 OF SEC 25) |
| Parcel # / Geo ID: | 802264012 | Agent Code: | |
| Type: | Real | | |
| Tax Area: | 0324 - 1-48F2E2H2C2L1Z3 | Land Use Code | 91 |
| Open Space: | N | DFL | N |
| Historic Property: | N | Remodel Property: | N |
| Multi-Family Redevelopment: | N | | |
| Township: | 28N | Section: | 26 |
| Range: | 2W |
Location |
| Address: | | Mapsco: | 171/082 |
| Neighborhood: | S23, 24, 25 & 26 T28N R2W & GARRISON & TAYLOR-JOHNSON SP | Map ID: | |
| Neighborhood CD: | 2630 |
Owner |
| Name: | TRAVIS & KELLY MOJE | Owner ID: | 113821 |
| Mailing Address: | 3402 N 7TH ST TACOMA, WA 98406 | % Ownership: | 100.0000000000% |
| | | Exemptions: | |
Pay Tax Due
Select the appropriate checkbox next to the year to be paid. Multiple years may be selected.
*Convenience Fee not included
Taxes and Assessment Details
Property Tax Information as of
03/09/2026
Click on "Statement Details" to expand or collapse a tax statement.
* Please enter a valid date ** Please enter a valid date *
Statement Details |
| 2026 | 9596 | STATE - STATE LEVY (SCHOOL) | $112.38 | $112.36 | $0.00 | $0.00 | $0.00 | $224.74 |
| 2026 | 9596 | COUNTY - COUNTY LEVIES (CE, DD, VET, MH) | $44.94 | $44.91 | $0.00 | $0.00 | $0.00 | $89.85 |
| 2026 | 9596 | CONSERVE - CONSERVATION FUTURES | $1.35 | $1.34 | $0.00 | $0.00 | $0.00 | $2.69 |
| 2026 | 9596 | COROADS - COUNTY ROADS (ROADS, DIV TO CE) | $36.24 | $36.24 | $0.00 | $0.00 | $0.00 | $72.48 |
| 2026 | 9596 | PORTPT - PORT DISTRICT | $18.15 | $18.13 | $0.00 | $0.00 | $0.00 | $36.28 |
| 2026 | 9596 | PUD1 - PUD #1 | $2.92 | $2.92 | $0.00 | $0.00 | $0.00 | $5.84 |
| 2026 | 9596 | LIB1 - LIBRARY DIST #1 | $14.02 | $14.02 | $0.00 | $0.00 | $0.00 | $28.04 |
| 2026 | 9596 | HD2 - HOSP DIST #2 | $2.62 | $2.62 | $0.00 | $0.00 | $0.00 | $5.24 |
| 2026 | 9596 | SD48 - SCHOOL DIST #48 | $69.02 | $69.01 | $0.00 | $0.00 | $0.00 | $138.03 |
| 2026 | 9596 | FD2 - FIRE DISTRICT #2 | $36.90 | $36.90 | $0.00 | $0.00 | $0.00 | $73.80 |
| 2026 | 9596 | EMS2 - FIRE DIST #2 EMS | $20.78 | $20.78 | $0.00 | $0.00 | $0.00 | $41.56 |
| 2026 | 9596 | CEM2 - CEMETERY DIST #2 | $1.18 | $1.18 | $0.00 | $0.00 | $0.00 | $2.36 |
| 2026 | 9596 | FPLCA - DNR Landowner Contingency Assmt | $3.00 | $3.00 | $0.00 | $0.00 | $0.00 | $6.00 |
| 2026 | 9596 | JCCD - JC Conservation District | $2.57 | $2.57 | $0.00 | $0.00 | $0.00 | $5.14 |
| 2026 | 9596 | NWA - Noxious Weed Assessment | $3.20 | $3.20 | $0.00 | $0.00 | $0.00 | $6.40 |
| 2026 | 9596 | WAT - Clean Water District | $13.00 | $13.00 | $0.00 | $0.00 | $0.00 | $26.00 |
| 2026 | 9596 | TOTAL: | $382.27 | $382.18 | $0.00 | $0.00 | $0.00 | $764.45 |
|
| 2026 | 9596 | $382.27 | $382.18 | $0.00 | $0.00 | $0.00 | $764.45 |
Statement Details |
| 2025 | 9619 | STATE - STATE LEVY (SCHOOL) | $112.11 | $112.10 | $0.00 | $0.00 | $224.21 | $0.00 |
| 2025 | 9619 | COUNTY - COUNTY LEVIES (CE, DD, VET, MH) | $44.10 | $44.08 | $0.00 | $0.00 | $88.18 | $0.00 |
| 2025 | 9619 | CONSERVE - CONSERVATION FUTURES | $1.32 | $1.32 | $0.00 | $0.00 | $2.64 | $0.00 |
| 2025 | 9619 | COROADS - COUNTY ROADS (ROADS, DIV TO CE) | $35.32 | $35.32 | $0.00 | $0.00 | $70.64 | $0.00 |
| 2025 | 9619 | PORTPT - PORT DISTRICT | $18.00 | $17.98 | $0.00 | $0.00 | $35.98 | $0.00 |
| 2025 | 9619 | PUD1 - PUD #1 | $2.89 | $2.88 | $0.00 | $0.00 | $5.77 | $0.00 |
| 2025 | 9619 | LIB1 - LIBRARY DIST #1 | $13.67 | $13.66 | $0.00 | $0.00 | $27.33 | $0.00 |
| 2025 | 9619 | HD2 - HOSP DIST #2 | $2.57 | $2.57 | $0.00 | $0.00 | $5.14 | $0.00 |
| 2025 | 9619 | SD48 - SCHOOL DIST #48 | $66.02 | $66.01 | $0.00 | $0.00 | $132.03 | $0.00 |
| 2025 | 9619 | FD2 - FIRE DISTRICT #2 | $36.45 | $36.45 | $0.00 | $0.00 | $72.90 | $0.00 |
| 2025 | 9619 | EMS2 - FIRE DIST #2 EMS | $20.53 | $20.52 | $0.00 | $0.00 | $41.05 | $0.00 |
| 2025 | 9619 | CEM2 - CEMETERY DIST #2 | $1.17 | $1.16 | $0.00 | $0.00 | $2.33 | $0.00 |
| 2025 | 9619 | FPLCA - DNR Landowner Contingency Assmt | $3.00 | $3.00 | $0.00 | $0.00 | $6.00 | $0.00 |
| 2025 | 9619 | JCCD - JC Conservation District | $2.57 | $2.57 | $0.00 | $0.00 | $5.14 | $0.00 |
| 2025 | 9619 | NWA - Noxious Weed Assessment | $2.30 | $2.30 | $0.00 | $0.00 | $4.60 | $0.00 |
| 2025 | 9619 | WAT - Clean Water District | $13.00 | $13.00 | $0.00 | $0.00 | $26.00 | $0.00 |
| 2025 | 9619 | TOTAL: | $375.02 | $374.92 | $0.00 | $0.00 | $749.94 | $0.00 |
|
| 2025 | 9619 | $375.02 | $374.92 | $0.00 | $0.00 | $749.94 | $0.00 |
Statement Details |
| 2024 | 9644 | STATE - STATE LEVY (SCHOOL) | $98.33 | $98.33 | $0.00 | $0.00 | $196.66 | $0.00 |
| 2024 | 9644 | COUNTY - COUNTY LEVIES (CE, DD, VET, MH) | $42.08 | $42.08 | $0.00 | $0.00 | $84.16 | $0.00 |
| 2024 | 9644 | CONSERVE - CONSERVATION FUTURES | $1.26 | $1.26 | $0.00 | $0.00 | $2.52 | $0.00 |
| 2024 | 9644 | COROADS - COUNTY ROADS (ROADS, DIV TO CE) | $33.86 | $33.86 | $0.00 | $0.00 | $67.72 | $0.00 |
| 2024 | 9644 | PORTPT - PORT DISTRICT | $17.39 | $17.37 | $0.00 | $0.00 | $34.76 | $0.00 |
| 2024 | 9644 | PUD1 - PUD #1 | $2.77 | $2.76 | $0.00 | $0.00 | $5.53 | $0.00 |
| 2024 | 9644 | LIB1 - LIBRARY DIST #1 | $13.10 | $13.10 | $0.00 | $0.00 | $26.20 | $0.00 |
| 2024 | 9644 | HD2 - HOSP DIST #2 | $2.46 | $2.45 | $0.00 | $0.00 | $4.91 | $0.00 |
| 2024 | 9644 | SD48 - SCHOOL DIST #48 | $44.04 | $44.04 | $0.00 | $0.00 | $88.08 | $0.00 |
| 2024 | 9644 | FD2 - FIRE DISTRICT #2 | $34.98 | $34.98 | $0.00 | $0.00 | $69.96 | $0.00 |
| 2024 | 9644 | EMS2 - FIRE DIST #2 EMS | $19.69 | $19.69 | $0.00 | $0.00 | $39.38 | $0.00 |
| 2024 | 9644 | CEM2 - CEMETERY DIST #2 | $1.12 | $1.12 | $0.00 | $0.00 | $2.24 | $0.00 |
| 2024 | 9644 | FPLCA - DNR Landowner Contingency Assmt | $3.00 | $3.00 | $0.00 | $0.00 | $6.00 | $0.00 |
| 2024 | 9644 | JCCD - JC Conservation District | $2.57 | $2.57 | $0.00 | $0.00 | $5.14 | $0.00 |
| 2024 | 9644 | NWA - Noxious Weed Assessment | $2.30 | $2.30 | $0.00 | $0.00 | $4.60 | $0.00 |
| 2024 | 9644 | WAT - Clean Water District | $12.50 | $12.50 | $0.00 | $0.00 | $25.00 | $0.00 |
| 2024 | 9644 | TOTAL: | $331.45 | $331.41 | $0.00 | $0.00 | $662.86 | $0.00 |
|
| 2024 | 9644 | $331.45 | $331.41 | $0.00 | $0.00 | $662.86 | $0.00 |
Statement Details |
| 2023 | 9662 | STATE - STATE LEVY (SCHOOL) | $100.06 | $100.04 | $0.00 | $0.00 | $200.10 | $0.00 |
| 2023 | 9662 | COUNTY - COUNTY LEVIES (CE, DD, VET, MH) | $43.67 | $43.66 | $0.00 | $0.00 | $87.33 | $0.00 |
| 2023 | 9662 | CONSERVE - CONSERVATION FUTURES | $1.31 | $1.31 | $0.00 | $0.00 | $2.62 | $0.00 |
| 2023 | 9662 | COROADS - COUNTY ROADS (ROADS, DIV TO CE) | $35.33 | $35.32 | $0.00 | $0.00 | $70.65 | $0.00 |
| 2023 | 9662 | PORTPT - PORT DISTRICT | $18.39 | $18.39 | $0.00 | $0.00 | $36.78 | $0.00 |
| 2023 | 9662 | PUD1 - PUD #1 | $2.90 | $2.89 | $0.00 | $0.00 | $5.79 | $0.00 |
| 2023 | 9662 | LIB1 - LIBRARY DIST #1 | $13.67 | $13.66 | $0.00 | $0.00 | $27.33 | $0.00 |
| 2023 | 9662 | HD2 - HOSP DIST #2 | $2.55 | $2.54 | $0.00 | $0.00 | $5.09 | $0.00 |
| 2023 | 9662 | SD48 - SCHOOL DIST #48 | $48.32 | $48.31 | $0.00 | $0.00 | $96.63 | $0.00 |
| 2023 | 9662 | FD2 - FIRE DISTRICT #2 | $37.90 | $37.89 | $0.00 | $0.00 | $75.79 | $0.00 |
| 2023 | 9662 | EMS2 - FIRE DIST #2 EMS | $21.25 | $21.25 | $0.00 | $0.00 | $42.50 | $0.00 |
| 2023 | 9662 | CEM2 - CEMETERY DIST #2 | $1.21 | $1.20 | $0.00 | $0.00 | $2.41 | $0.00 |
| 2023 | 9662 | FPLCA - DNR Landowner Contingency Assmt | $3.00 | $3.00 | $0.00 | $0.00 | $6.00 | $0.00 |
| 2023 | 9662 | JCCD - JC Conservation District | $2.57 | $2.57 | $0.00 | $0.00 | $5.14 | $0.00 |
| 2023 | 9662 | NWA - Noxious Weed Assessment | $2.30 | $2.30 | $0.00 | $0.00 | $4.60 | $0.00 |
| 2023 | 9662 | WAT - Clean Water District | $12.00 | $12.00 | $0.00 | $0.00 | $24.00 | $0.00 |
| 2023 | 9662 | TOTAL: | $346.43 | $346.33 | $0.00 | $0.00 | $692.76 | $0.00 |
|
| 2023 | 9662 | $346.43 | $346.33 | $0.00 | $0.00 | $692.76 | $0.00 |
Values
| (+) Improvement Homesite Value: | + | $0 | |
| (+) Improvement Non-Homesite Value: | + | $0 | |
| (+) Land Homesite Value: | + | $0 | |
| (+) Land Non-Homesite Value: | + | $97,750 | |
| (+) Curr Use (HS): | + | $0 | $0 |
| (+) Curr Use (NHS): | + | $0 | $0 |
| | | -------------------------- | |
| (=) Market Value: | = | $97,750 | |
| (–) Productivity Loss: | – | $0 | |
| | | -------------------------- | |
| (=) Subtotal: | = | $97,750 | |
| (+) Senior Appraised Value: | + | $0 | |
| (+) Non-Senior Appraised Value: | + | $97,750 | |
| | | -------------------------- | |
| (=) Total Appraised Value: | = | $97,750 | |
| (–) Senior Exemption Loss: | – | $0 | |
| (–) Exemption Loss: | – | $0 | |
| | | -------------------------- | |
| (=) Taxable Value: | = | $97,750 | |
Taxing Jurisdiction
| Owner: | TRAVIS & KELLY MOJE | | |
| % Ownership: | 100.0000000000% | | |
| Total Value: | $97,750 | | |
| Tax Area: | 0324 - 1-48F2E2H2C2L1Z3 |
| CE | COUNTY CURRENT EXPENSE | 0.9034619479 | $97,750 | $97,750 | $88.31 | | |
| CNTYDD | DEVELOPMENTAL DISABILITIES | 0.0052121823 | $97,750 | $97,750 | $0.51 | | |
| CNTYVET | VETERANS RELIEF | 0.0052777810 | $97,750 | $97,750 | $0.52 | | |
| MENTAL | MENTAL HEALTH | 0.0052121823 | $97,750 | $97,750 | $0.51 | | |
| ROADS | COUNTY ROADS | 0.7415066410 | $97,750 | $97,750 | $72.48 | | |
| ROADSCU | COUNTY ROADS TO CUR EXP | 0.0000000000 | $97,750 | $97,750 | $0.00 | | |
| HOSP2CASH | HOSP DIST #2 GENERAL | 0.0536075306 | $97,750 | $97,750 | $5.24 | | |
| SCH48MO | SCHOOL DIST #48 EP & O | 1.4120478917 | $97,750 | $97,750 | $138.03 | | |
| CEM2 | CEMETERY DIST #2 GENERAL | 0.0241266154 | $97,750 | $97,750 | $2.36 | | |
| CONSERVE | CONSERVATION FUTURES | 0.0275621078 | $97,750 | $97,750 | $2.69 | | |
| FD2 | FIRE DIST #2 GENERAL | 0.7549976873 | $97,750 | $97,750 | $73.80 | | |
| LIB1 | LIBRARY DIST #1 GENERAL | 0.2868827388 | $97,750 | $97,750 | $28.04 | | |
| PORTPT | PORT OF PT GENERAL | 0.1134941229 | $97,750 | $97,750 | $11.09 | | |
| PORTPTIDD | PORT OF PT IDD 2019 | 0.2577346692 | $97,750 | $97,750 | $25.19 | | |
| PUD1 | PUD #1 GENERAL | 0.0597888892 | $97,750 | $97,750 | $5.84 | | |
| STATE | STATE SCHOOL PART 1 | 1.4940692947 | $97,750 | $97,750 | $146.05 | | |
| STATE2 | STATE SCHOOL PART 2 | 0.8050170049 | $97,750 | $97,750 | $78.69 | | |
| EMS2 | FIRE DIST #2 EMS | 0.4251727858 | $97,750 | $97,750 | $41.56 | | |
| | Total Tax Rate: | 7.3751720728 | | | | | |
| | | | | Taxes w/Current Exemptions: | $720.91 | | |
| | | | | Taxes w/o Exemptions: | $720.91 | | |
Improvement / Building
Sketch
| No sketches available for this property. |
Property Image
Land
| 1 | 2630-1372S | | 1.0000 | 43560.00 | 0.00 | 0.00 | 1.00 | $97,750 | $0 |
Roll Value History
| 2026 | N/A | N/A | N/A | N/A | N/A |
| 2025 | $0 | $97,750 | $0 | $97,750 | $97,750 |
| 2024 | $0 | $93,500 | $0 | $93,500 | $93,500 |
| 2023 | $0 | $85,000 | $0 | $85,000 | $85,000 |
| 2022 | $0 | $85,000 | $0 | $85,000 | $85,000 |
Deed and Sales History
| 1 | 12/19/2025 | SWD | Statutory Warranty Deed | LAKE LELAND LLC | TRAVIS & KELLY MOJE | | | $100,000.00 | 145422 | |
| 2 | 10/02/2015 | QCD | Quit Claim Deed | | | | | | 125555 | |
| 3 | 10/02/2015 | QCD | Quit Claim Deed | | | | | | 125308 | |
| 4 | 06/15/2011 | QCD | Quit Claim Deed | HUNTER, THEODORE P/RAMONA | LAKE LELAND LLC | | | $0.00 | 116197 | 0 |
| 5 | 04/27/2011 | SWD | Statutory Warranty Deed | THOMAS, DONALD/MARTHA | HUNTER, THEODORE/HOLMES,RAMONA | | | $45,000.00 | 115941 | 0 |
Payout Agreement
| No payout information available.. |