Property
Account |
| Property ID: | 20191 | Abbreviated Legal Description: | S36 T28 R2W TAX 14 REVISED WITH-SUBJ/EASE |
| Parcel # / Geo ID: | 802363018 | Agent Code: | |
| Type: | Real | | |
| Tax Area: | 0324 - 1-48F2E2H2C2L1Z3 | Land Use Code | 91 |
| Open Space: | N | DFL | N |
| Historic Property: | N | Remodel Property: | N |
| Multi-Family Redevelopment: | N | | |
| Township: | 28N | Section: | 36 |
| Range: | 2W |
Location |
| Address: | 201 LARCH RD QUILCENE, WA 98376 | Mapsco: | 173/054 |
| Neighborhood: | S36 T28N R2W | Map ID: | |
| Neighborhood CD: | 2635 |
Owner |
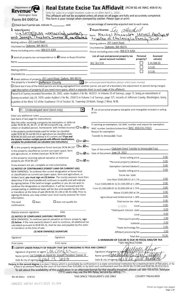
| Name: | CONIGLIO FAMILY IRREVOCABLE TRUST | Owner ID: | 108653 |
| Mailing Address: | RACHEL A L AGATEP 201 LARCH RD QUILCENE, WA 98376-9759 | % Ownership: | 100.0000000000% |
| | | Exemptions: | |
Pay Tax Due
There is currently No Amount Due on this property.
Taxes and Assessment Details
Property Tax Information as of
03/11/2026
Click on "Statement Details" to expand or collapse a tax statement.
* Please enter a valid date ** Please enter a valid date *
Statement Details |
| | TOTAL: | $0.00 | $0.00 | $0.00 | $0.00 | $0.00 | $0.00 |
|
| | $0.00 | $0.00 | $0.00 | $0.00 | $0.00 | $0.00 |
Values
| (+) Improvement Homesite Value: | + | $0 | |
| (+) Improvement Non-Homesite Value: | + | $0 | |
| (+) Land Homesite Value: | + | $0 | |
| (+) Land Non-Homesite Value: | + | $92,590 | |
| (+) Curr Use (HS): | + | $0 | $0 |
| (+) Curr Use (NHS): | + | $0 | $0 |
| | | -------------------------- | |
| (=) Market Value: | = | $92,590 | |
| (–) Productivity Loss: | – | $0 | |
| | | -------------------------- | |
| (=) Subtotal: | = | $92,590 | |
| (+) Senior Appraised Value: | + | $0 | |
| (+) Non-Senior Appraised Value: | + | $92,590 | |
| | | -------------------------- | |
| (=) Total Appraised Value: | = | $92,590 | |
| (–) Senior Exemption Loss: | – | $0 | |
| (–) Exemption Loss: | – | $0 | |
| | | -------------------------- | |
| (=) Taxable Value: | = | $92,590 | |
Taxing Jurisdiction
| Owner: | CONIGLIO FAMILY IRREVOCABLE TRUST | | |
| % Ownership: | 100.0000000000% | | |
| Total Value: | $92,590 | | |
| Tax Area: | 0324 - 1-48F2E2H2C2L1Z3 |
| CE | COUNTY CURRENT EXPENSE | 0.9034619479 | $92,590 | $92,590 | $83.65 | | |
| CNTYDD | DEVELOPMENTAL DISABILITIES | 0.0052121823 | $92,590 | $92,590 | $0.48 | | |
| CNTYVET | VETERANS RELIEF | 0.0052777810 | $92,590 | $92,590 | $0.49 | | |
| MENTAL | MENTAL HEALTH | 0.0052121823 | $92,590 | $92,590 | $0.48 | | |
| ROADS | COUNTY ROADS | 0.7415066410 | $92,590 | $92,590 | $68.66 | | |
| ROADSCU | COUNTY ROADS TO CUR EXP | 0.0000000000 | $92,590 | $92,590 | $0.00 | | |
| HOSP2CASH | HOSP DIST #2 GENERAL | 0.0536075306 | $92,590 | $92,590 | $4.96 | | |
| SCH48MO | SCHOOL DIST #48 EP & O | 1.4120478917 | $92,590 | $92,590 | $130.74 | | |
| CEM2 | CEMETERY DIST #2 GENERAL | 0.0241266154 | $92,590 | $92,590 | $2.23 | | |
| CONSERVE | CONSERVATION FUTURES | 0.0275621078 | $92,590 | $92,590 | $2.55 | | |
| FD2 | FIRE DIST #2 GENERAL | 0.7549976873 | $92,590 | $92,590 | $69.91 | | |
| LIB1 | LIBRARY DIST #1 GENERAL | 0.2868827388 | $92,590 | $92,590 | $26.56 | | |
| PORTPT | PORT OF PT GENERAL | 0.1134941229 | $92,590 | $92,590 | $10.51 | | |
| PORTPTIDD | PORT OF PT IDD 2019 | 0.2577346692 | $92,590 | $92,590 | $23.86 | | |
| PUD1 | PUD #1 GENERAL | 0.0597888892 | $92,590 | $92,590 | $5.54 | | |
| STATE | STATE SCHOOL PART 1 | 1.4940692947 | $92,590 | $92,590 | $138.34 | | |
| STATE2 | STATE SCHOOL PART 2 | 0.8050170049 | $92,590 | $92,590 | $74.54 | | |
| EMS2 | FIRE DIST #2 EMS | 0.4251727858 | $92,590 | $92,590 | $39.37 | | |
| | Total Tax Rate: | 7.3751720728 | | | | | |
| | | | | Taxes w/Current Exemptions: | $682.87 | | |
| | | | | Taxes w/o Exemptions: | $682.87 | | |
Improvement / Building
Sketch
| No sketches available for this property. |
Property Image
Land
| 1 | 1572A | Terr/Mtn/No View <6 Acres | 3.3100 | 144183.60 | 0.00 | 0.00 | 0.00 | $52,340 | $0 |
| 2 | 2635-1375S | Terr/Mtn/No View Sites 1+/- Acre | 1.0000 | 43560.00 | 0.00 | 0.00 | 1.00 | $40,250 | $0 |
Roll Value History
| 2026 | N/A | N/A | N/A | N/A | N/A |
| 2025 | $0 | $92,590 | $0 | $92,590 | $92,590 |
| 2024 | $0 | $88,564 | $0 | $88,564 | $88,564 |
| 2023 | $0 | $78,030 | $0 | $78,030 | $78,030 |
| 2022 | $0 | $68,100 | $0 | $68,100 | $68,100 |
Deed and Sales History
| 1 | 06/24/2022 | QCD | Quit Claim Deed | LIA CONIGLIO | CONIGLIO FAMILY IRREVOCABLE TRUST | | | | 140769 | |
| 2 | 07/01/2022 | QCD | Quit Claim Deed | LIA CONIGLIO | CONIGLIO FAMILY IRREVOCABLE TRUST | | | | 140768 | |
| 3 | 09/15/2021 | SWD | Statutory Warranty Deed | DAVID KIRK | LIA CONIGLIO | | | $69,000.00 | 137672 | |
| 4 | 11/01/2006 | SWD | Statutory Warranty Deed | BOWER, GENE & CHARLOTTE | KIRK, DAVID & MARY | 0 | 0 | $49,900.00 | 108069 | 0 |
| 5 | 05/04/2006 | SWD | Statutory Warranty Deed | CLARK, KENNETH/BRENDA | BOWER, GENE/CHARLOTTE A | | | $35,000.00 | 106565 | 0 |
| 6 | 09/10/2004 | SWD | Statutory Warranty Deed | PAPRITZ, GORDON R | CLARK, KENNETH/BRENDA/SCOT | 0 | 0 | $36,000.00 | 101415 | 0 |
|   | |
Payout Agreement
| No payout information available.. |