Property
Account |
| Property ID: | 20233 | Abbreviated Legal Description: | S4 & 5 T28 R1E TAX 69 & PTN TL TAX N FRTG W/S TO EASE |
| Parcel # / Geo ID: | 821042081 | Agent Code: | |
| Type: | Real | | |
| Tax Area: | 0213 - 1-49F1E1H2L1 | Land Use Code | 91 |
| Open Space: | N | DFL | N |
| Historic Property: | N | Remodel Property: | N |
| Multi-Family Redevelopment: | N | | |
| Township: | 28N | Section: | 4 |
| Range: | 1E |
Location |
| Address: | | Mapsco: | 149/069 |
| Neighborhood: | S4&5 T28N R1E INC MATS VIEW TERRACE, OLYMPUS BCH & HOLTH SP | Map ID: | |
| Neighborhood CD: | 3312 |
Owner |
| Name: | MCKINSTRY BUTLER REVOCABLE LIVING TRUST | Owner ID: | 106124 |
| Mailing Address: | JOSEPH MCKINSTRY TRUSTEE PAUL BUTLER TRUSTEE PO BOX 143 CHIMACUM, WA 98325-0143 | % Ownership: | 100.0000000000% |
| | | Exemptions: | |
Pay Tax Due
Select the appropriate checkbox next to the year to be paid. Multiple years may be selected.
*Convenience Fee not included
Taxes and Assessment Details
Property Tax Information as of
03/10/2026
Click on "Statement Details" to expand or collapse a tax statement.
* Please enter a valid date ** Please enter a valid date *
Statement Details |
| 2026 | 9739 | STATE - STATE LEVY (SCHOOL) | $177.46 | $177.44 | $0.00 | $0.00 | $0.00 | $354.90 |
| 2026 | 9739 | COUNTY - COUNTY LEVIES (CE, DD, VET, MH) | $70.94 | $70.93 | $0.00 | $0.00 | $0.00 | $141.87 |
| 2026 | 9739 | CONSERVE - CONSERVATION FUTURES | $2.13 | $2.12 | $0.00 | $0.00 | $0.00 | $4.25 |
| 2026 | 9739 | COROADS - COUNTY ROADS (ROADS, DIV TO CE) | $57.23 | $57.23 | $0.00 | $0.00 | $0.00 | $114.46 |
| 2026 | 9739 | PORTPT - PORT DISTRICT | $28.66 | $28.65 | $0.00 | $0.00 | $0.00 | $57.31 |
| 2026 | 9739 | PUD1 - PUD #1 | $4.62 | $4.61 | $0.00 | $0.00 | $0.00 | $9.23 |
| 2026 | 9739 | LIB1 - LIBRARY DIST #1 | $22.14 | $22.14 | $0.00 | $0.00 | $0.00 | $44.28 |
| 2026 | 9739 | HD2 - HOSP DIST #2 | $4.14 | $4.14 | $0.00 | $0.00 | $0.00 | $8.28 |
| 2026 | 9739 | SD49 - SCHOOL DIST #49 | $97.69 | $97.67 | $0.00 | $0.00 | $0.00 | $195.36 |
| 2026 | 9739 | FD1 - FIRE DISTRICT #1 | $93.95 | $93.94 | $0.00 | $0.00 | $0.00 | $187.89 |
| 2026 | 9739 | EMS1 - FIRE DIST #1 EMS | $36.12 | $36.12 | $0.00 | $0.00 | $0.00 | $72.24 |
| 2026 | 9739 | JCCD - JC Conservation District | $2.53 | $2.53 | $0.00 | $0.00 | $0.00 | $5.06 |
| 2026 | 9739 | NWA - Noxious Weed Assessment | $2.98 | $2.97 | $0.00 | $0.00 | $0.00 | $5.95 |
| 2026 | 9739 | WAT - Clean Water District | $13.00 | $13.00 | $0.00 | $0.00 | $0.00 | $26.00 |
| 2026 | 9739 | TOTAL: | $613.59 | $613.49 | $0.00 | $0.00 | $0.00 | $1227.08 |
|
| 2026 | 9739 | $613.59 | $613.49 | $0.00 | $0.00 | $0.00 | $1227.08 |
Statement Details |
| 2025 | 9762 | STATE - STATE LEVY (SCHOOL) | $177.04 | $177.03 | $0.00 | $0.00 | $354.07 | $0.00 |
| 2025 | 9762 | COUNTY - COUNTY LEVIES (CE, DD, VET, MH) | $69.63 | $69.61 | $0.00 | $0.00 | $139.24 | $0.00 |
| 2025 | 9762 | CONSERVE - CONSERVATION FUTURES | $2.09 | $2.09 | $0.00 | $0.00 | $4.18 | $0.00 |
| 2025 | 9762 | COROADS - COUNTY ROADS (ROADS, DIV TO CE) | $55.78 | $55.77 | $0.00 | $0.00 | $111.55 | $0.00 |
| 2025 | 9762 | PORTPT - PORT DISTRICT | $28.41 | $28.40 | $0.00 | $0.00 | $56.81 | $0.00 |
| 2025 | 9762 | PUD1 - PUD #1 | $4.56 | $4.55 | $0.00 | $0.00 | $9.11 | $0.00 |
| 2025 | 9762 | LIB1 - LIBRARY DIST #1 | $21.58 | $21.58 | $0.00 | $0.00 | $43.16 | $0.00 |
| 2025 | 9762 | HD2 - HOSP DIST #2 | $4.06 | $4.06 | $0.00 | $0.00 | $8.12 | $0.00 |
| 2025 | 9762 | SD49 - SCHOOL DIST #49 | $94.89 | $94.87 | $0.00 | $0.00 | $189.76 | $0.00 |
| 2025 | 9762 | FD1 - FIRE DISTRICT #1 | $91.87 | $91.87 | $0.00 | $0.00 | $183.74 | $0.00 |
| 2025 | 9762 | EMS1 - FIRE DIST #1 EMS | $35.34 | $35.33 | $0.00 | $0.00 | $70.67 | $0.00 |
| 2025 | 9762 | JCCD - JC Conservation District | $2.53 | $2.53 | $0.00 | $0.00 | $5.06 | $0.00 |
| 2025 | 9762 | NWA - Noxious Weed Assessment | $2.15 | $2.15 | $0.00 | $0.00 | $4.30 | $0.00 |
| 2025 | 9762 | WAT - Clean Water District | $13.00 | $13.00 | $0.00 | $0.00 | $26.00 | $0.00 |
| 2025 | 9762 | TOTAL: | $602.93 | $602.84 | $0.00 | $0.00 | $1205.77 | $0.00 |
|
| 2025 | 9762 | $602.93 | $602.84 | $0.00 | $0.00 | $1205.77 | $0.00 |
Statement Details |
| 2024 | 9787 | STATE - STATE LEVY (SCHOOL) | $155.29 | $155.27 | $0.00 | $0.00 | $310.56 | $0.00 |
| 2024 | 9787 | COUNTY - COUNTY LEVIES (CE, DD, VET, MH) | $66.46 | $66.43 | $0.00 | $0.00 | $132.89 | $0.00 |
| 2024 | 9787 | CONSERVE - CONSERVATION FUTURES | $1.99 | $1.99 | $0.00 | $0.00 | $3.98 | $0.00 |
| 2024 | 9787 | COROADS - COUNTY ROADS (ROADS, DIV TO CE) | $53.47 | $53.46 | $0.00 | $0.00 | $106.93 | $0.00 |
| 2024 | 9787 | PORTPT - PORT DISTRICT | $27.45 | $27.44 | $0.00 | $0.00 | $54.89 | $0.00 |
| 2024 | 9787 | PUD1 - PUD #1 | $4.37 | $4.36 | $0.00 | $0.00 | $8.73 | $0.00 |
| 2024 | 9787 | LIB1 - LIBRARY DIST #1 | $20.69 | $20.68 | $0.00 | $0.00 | $41.37 | $0.00 |
| 2024 | 9787 | HD2 - HOSP DIST #2 | $3.88 | $3.87 | $0.00 | $0.00 | $7.75 | $0.00 |
| 2024 | 9787 | SD49 - SCHOOL DIST #49 | $69.34 | $69.34 | $0.00 | $0.00 | $138.68 | $0.00 |
| 2024 | 9787 | FD1 - FIRE DISTRICT #1 | $87.86 | $87.85 | $0.00 | $0.00 | $175.71 | $0.00 |
| 2024 | 9787 | EMS1 - FIRE DIST #1 EMS | $33.56 | $33.56 | $0.00 | $0.00 | $67.12 | $0.00 |
| 2024 | 9787 | JCCD - JC Conservation District | $2.53 | $2.53 | $0.00 | $0.00 | $5.06 | $0.00 |
| 2024 | 9787 | NWA - Noxious Weed Assessment | $2.15 | $2.15 | $0.00 | $0.00 | $4.30 | $0.00 |
| 2024 | 9787 | WAT - Clean Water District | $12.50 | $12.50 | $0.00 | $0.00 | $25.00 | $0.00 |
| 2024 | 9787 | TOTAL: | $541.54 | $541.43 | $0.00 | $0.00 | $1082.97 | $0.00 |
|
| 2024 | 9787 | $541.54 | $541.43 | $0.00 | $0.00 | $1082.97 | $0.00 |
Statement Details |
| 2023 | 9806 | STATE - STATE LEVY (SCHOOL) | $158.00 | $158.00 | $0.00 | $0.00 | $316.00 | $0.00 |
| 2023 | 9806 | COUNTY - COUNTY LEVIES (CE, DD, VET, MH) | $68.95 | $68.93 | $0.00 | $0.00 | $137.88 | $0.00 |
| 2023 | 9806 | CONSERVE - CONSERVATION FUTURES | $2.07 | $2.06 | $0.00 | $0.00 | $4.13 | $0.00 |
| 2023 | 9806 | COROADS - COUNTY ROADS (ROADS, DIV TO CE) | $55.79 | $55.78 | $0.00 | $0.00 | $111.57 | $0.00 |
| 2023 | 9806 | PORTPT - PORT DISTRICT | $29.05 | $29.04 | $0.00 | $0.00 | $58.09 | $0.00 |
| 2023 | 9806 | PUD1 - PUD #1 | $4.57 | $4.57 | $0.00 | $0.00 | $9.14 | $0.00 |
| 2023 | 9806 | LIB1 - LIBRARY DIST #1 | $21.58 | $21.58 | $0.00 | $0.00 | $43.16 | $0.00 |
| 2023 | 9806 | HD2 - HOSP DIST #2 | $4.03 | $4.02 | $0.00 | $0.00 | $8.05 | $0.00 |
| 2023 | 9806 | SD49 - SCHOOL DIST #49 | $73.86 | $73.85 | $0.00 | $0.00 | $147.71 | $0.00 |
| 2023 | 9806 | FD3 - FIRE DISTRICT #3 | $68.59 | $68.59 | $0.00 | $0.00 | $137.18 | $0.00 |
| 2023 | 9806 | EMS3 - FIRE DIST #3 EMS | $24.52 | $24.52 | $0.00 | $0.00 | $49.04 | $0.00 |
| 2023 | 9806 | JCCD - JC Conservation District | $2.53 | $2.53 | $0.00 | $0.00 | $5.06 | $0.00 |
| 2023 | 9806 | NWA - Noxious Weed Assessment | $2.15 | $2.15 | $0.00 | $0.00 | $4.30 | $0.00 |
| 2023 | 9806 | WAT - Clean Water District | $12.00 | $12.00 | $0.00 | $0.00 | $24.00 | $0.00 |
| 2023 | 9806 | TOTAL: | $527.69 | $527.62 | $0.00 | $0.00 | $1055.31 | $0.00 |
|
| 2023 | 9806 | $527.69 | $527.62 | $0.00 | $0.00 | $1055.31 | $0.00 |
Values
| (+) Improvement Homesite Value: | + | $0 | |
| (+) Improvement Non-Homesite Value: | + | $0 | |
| (+) Land Homesite Value: | + | $0 | |
| (+) Land Non-Homesite Value: | + | $154,365 | |
| (+) Curr Use (HS): | + | $0 | $0 |
| (+) Curr Use (NHS): | + | $0 | $0 |
| | | -------------------------- | |
| (=) Market Value: | = | $154,365 | |
| (–) Productivity Loss: | – | $0 | |
| | | -------------------------- | |
| (=) Subtotal: | = | $154,365 | |
| (+) Senior Appraised Value: | + | $0 | |
| (+) Non-Senior Appraised Value: | + | $154,365 | |
| | | -------------------------- | |
| (=) Total Appraised Value: | = | $154,365 | |
| (–) Senior Exemption Loss: | – | $0 | |
| (–) Exemption Loss: | – | $0 | |
| | | -------------------------- | |
| (=) Taxable Value: | = | $154,365 | |
Taxing Jurisdiction
| Owner: | MCKINSTRY BUTLER REVOCABLE LIVING TRUST | | |
| % Ownership: | 100.0000000000% | | |
| Total Value: | $154,365 | | |
| Tax Area: | 0213 - 1-49F1E1H2L1 |
| CE | COUNTY CURRENT EXPENSE | 0.9034619479 | $154,365 | $154,365 | $139.46 | | |
| CNTYDD | DEVELOPMENTAL DISABILITIES | 0.0052121823 | $154,365 | $154,365 | $0.80 | | |
| CNTYVET | VETERANS RELIEF | 0.0052777810 | $154,365 | $154,365 | $0.81 | | |
| MENTAL | MENTAL HEALTH | 0.0052121823 | $154,365 | $154,365 | $0.80 | | |
| ROADS | COUNTY ROADS | 0.7415066410 | $154,365 | $154,365 | $114.46 | | |
| ROADSCU | COUNTY ROADS TO CUR EXP | 0.0000000000 | $154,365 | $154,365 | $0.00 | | |
| HOSP2CASH | HOSP DIST #2 GENERAL | 0.0536075306 | $154,365 | $154,365 | $8.28 | | |
| SCH49CP | SCHOOL DIST #49 CAP PROJ | 0.6279093905 | $154,365 | $154,365 | $96.93 | | |
| SCH49MO | SCHOOL DIST #49 EP & O | 0.6376483602 | $154,365 | $154,365 | $98.43 | | |
| CONSERVE | CONSERVATION FUTURES | 0.0275621078 | $154,365 | $154,365 | $4.25 | | |
| EMS1 | FIRE DIST #1 EMS | 0.4679948282 | $154,365 | $154,365 | $72.24 | | |
| FD1 | FIRE DIST #1 GENERAL | 1.2171942929 | $154,365 | $154,365 | $187.89 | | |
| LIB1 | LIBRARY DIST #1 GENERAL | 0.2868827388 | $154,365 | $154,365 | $44.28 | | |
| PORTPT | PORT OF PT GENERAL | 0.1134941229 | $154,365 | $154,365 | $17.52 | | |
| PORTPTIDD | PORT OF PT IDD 2019 | 0.2577346692 | $154,365 | $154,365 | $39.79 | | |
| PUD1 | PUD #1 GENERAL | 0.0597888892 | $154,365 | $154,365 | $9.23 | | |
| STATE | STATE SCHOOL PART 1 | 1.4940692947 | $154,365 | $154,365 | $230.63 | | |
| STATE2 | STATE SCHOOL PART 2 | 0.8050170049 | $154,365 | $154,365 | $124.27 | | |
| | Total Tax Rate: | 7.7095739644 | | | | | |
| | | | | Taxes w/Current Exemptions: | $1,190.07 | | |
| | | | | Taxes w/o Exemptions: | $1,190.07 | | |
Improvement / Building
Sketch
| No sketches available for this property. |
Property Image
Land
| 1 | 9301F | | 0.0000 | 0.00 | 0.00 | 0.00 | 0.00 | $2,013 | $0 |
| 2 | 3312-1125F | | 0.0000 | 0.00 | 0.00 | 0.00 | 0.00 | $152,352 | $0 |
Roll Value History
| 2026 | N/A | N/A | N/A | N/A | N/A |
| 2025 | $0 | $154,365 | $0 | $154,365 | $154,365 |
| 2024 | $0 | $147,653 | $0 | $147,653 | $147,653 |
| 2023 | $0 | $134,230 | $0 | $134,230 | $134,230 |
| 2022 | $0 | $134,230 | $0 | $134,230 | $134,230 |
Deed and Sales History
| 1 | 12/07/2021 | QCD | Quit Claim Deed | JOSEPH MCKINSTRY & PAUL BUTLER | MCKINSTRY BUTLER REVOCABLE LIVING TRUST | | | | 138191 | |
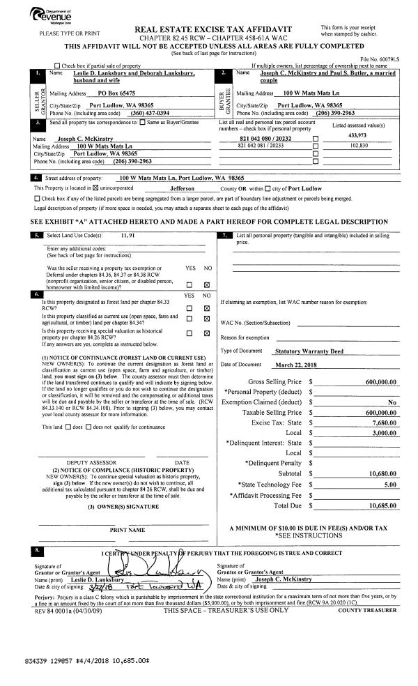
| 2 | 03/22/2018 | SWD | Statutory Warranty Deed | LESLIE D LANKSBURY | JOSEPH MCKINSTRY & PAUL BUTLER | | | $600,000.00 | 129857 | |
|   | |
| 3 | 01/20/1999 | SWD | Statutory Warranty Deed | BROWER FAMILY TRUST | LANKSBURY, LESLIE D/DEBORAH | 0 | 0 | $299,000.00 | 86239 | 0 |
|   | |
| 4 | 01/20/1999 | SWD | Statutory Warranty Deed | BROWER FAMILY TRUST | LANKSBURY, LESLIE D/DEBORAH | 0 | 0 | $0.00 | 86688 | 0 |
Payout Agreement
| No payout information available.. |