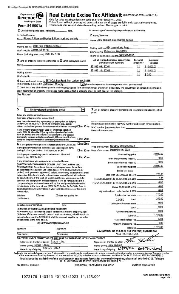
Property
Account |
| Property ID: | 20261 | Abbreviated Legal Description: | S4 & 5 T28 R1E TAX 106 & 107 |
| Parcel # / Geo ID: | 821042109 | Agent Code: | |
| Type: | Real | | |
| Tax Area: | 0213 - 1-49F1E1H2L1 | Land Use Code | 91 |
| Open Space: | N | DFL | N |
| Historic Property: | N | Remodel Property: | N |
| Multi-Family Redevelopment: | N | | |
| Township: | 28N | Section: | 4 |
| Range: | 1E |
Location |
| Address: | 6971 OAK BAY RD PORT LUDLOW, WA 98365 | Mapsco: | 149/106 |
| Neighborhood: | S4&5 T28N R1E INC MATS VIEW TERRACE, OLYMPUS BCH & HOLTH SP | Map ID: | |
| Neighborhood CD: | 3312 |
Owner |
| Name: | DREW YACKULIC | Owner ID: | 108157 |
| Mailing Address: | 664 LARSON LAKE RD CHIMACUM, WA 98325-7746 | % Ownership: | 100.0000000000% |
| | | Exemptions: | |
Pay Tax Due
There is currently No Amount Due on this property.
Taxes and Assessment Details
Property Tax Information as of
03/11/2026
Click on "Statement Details" to expand or collapse a tax statement.
* Please enter a valid date ** Please enter a valid date *
Statement Details |
| | TOTAL: | $0.00 | $0.00 | $0.00 | $0.00 | $0.00 | $0.00 |
|
| | $0.00 | $0.00 | $0.00 | $0.00 | $0.00 | $0.00 |
Values
| (+) Improvement Homesite Value: | + | $0 | |
| (+) Improvement Non-Homesite Value: | + | $0 | |
| (+) Land Homesite Value: | + | $0 | |
| (+) Land Non-Homesite Value: | + | $23,000 | |
| (+) Curr Use (HS): | + | $0 | $0 |
| (+) Curr Use (NHS): | + | $0 | $0 |
| | | -------------------------- | |
| (=) Market Value: | = | $23,000 | |
| (–) Productivity Loss: | – | $0 | |
| | | -------------------------- | |
| (=) Subtotal: | = | $23,000 | |
| (+) Senior Appraised Value: | + | $0 | |
| (+) Non-Senior Appraised Value: | + | $23,000 | |
| | | -------------------------- | |
| (=) Total Appraised Value: | = | $23,000 | |
| (–) Senior Exemption Loss: | – | $0 | |
| (–) Exemption Loss: | – | $0 | |
| | | -------------------------- | |
| (=) Taxable Value: | = | $23,000 | |
Taxing Jurisdiction
| Owner: | DREW YACKULIC | | |
| % Ownership: | 100.0000000000% | | |
| Total Value: | $23,000 | | |
| Tax Area: | 0213 - 1-49F1E1H2L1 |
| CE | COUNTY CURRENT EXPENSE | 0.9034619479 | $23,000 | $23,000 | $20.78 | | |
| CNTYDD | DEVELOPMENTAL DISABILITIES | 0.0052121823 | $23,000 | $23,000 | $0.12 | | |
| CNTYVET | VETERANS RELIEF | 0.0052777810 | $23,000 | $23,000 | $0.12 | | |
| MENTAL | MENTAL HEALTH | 0.0052121823 | $23,000 | $23,000 | $0.12 | | |
| ROADS | COUNTY ROADS | 0.7415066410 | $23,000 | $23,000 | $17.05 | | |
| ROADSCU | COUNTY ROADS TO CUR EXP | 0.0000000000 | $23,000 | $23,000 | $0.00 | | |
| HOSP2CASH | HOSP DIST #2 GENERAL | 0.0536075306 | $23,000 | $23,000 | $1.23 | | |
| SCH49CP | SCHOOL DIST #49 CAP PROJ | 0.6279093905 | $23,000 | $23,000 | $14.44 | | |
| SCH49MO | SCHOOL DIST #49 EP & O | 0.6376483602 | $23,000 | $23,000 | $14.67 | | |
| CONSERVE | CONSERVATION FUTURES | 0.0275621078 | $23,000 | $23,000 | $0.63 | | |
| EMS1 | FIRE DIST #1 EMS | 0.4679948282 | $23,000 | $23,000 | $10.76 | | |
| FD1 | FIRE DIST #1 GENERAL | 1.2171942929 | $23,000 | $23,000 | $28.00 | | |
| LIB1 | LIBRARY DIST #1 GENERAL | 0.2868827388 | $23,000 | $23,000 | $6.60 | | |
| PORTPT | PORT OF PT GENERAL | 0.1134941229 | $23,000 | $23,000 | $2.61 | | |
| PORTPTIDD | PORT OF PT IDD 2019 | 0.2577346692 | $23,000 | $23,000 | $5.93 | | |
| PUD1 | PUD #1 GENERAL | 0.0597888892 | $23,000 | $23,000 | $1.38 | | |
| STATE | STATE SCHOOL PART 1 | 1.4940692947 | $23,000 | $23,000 | $34.36 | | |
| STATE2 | STATE SCHOOL PART 2 | 0.8050170049 | $23,000 | $23,000 | $18.52 | | |
| | Total Tax Rate: | 7.7095739644 | | | | | |
| | | | | Taxes w/Current Exemptions: | $177.32 | | |
| | | | | Taxes w/o Exemptions: | $177.32 | | |
Improvement / Building
Sketch
| No sketches available for this property. |
Property Image
Land
| 1 | 3312-1187L | No View Lots Olympus Beach Trcts Poor Topo | 2.0000 | 87120.00 | 0.00 | 0.00 | 2.00 | $23,000 | $0 |
Roll Value History
| 2026 | N/A | N/A | N/A | N/A | N/A |
| 2025 | $0 | $23,000 | $0 | $23,000 | $23,000 |
| 2024 | $0 | $22,000 | $0 | $22,000 | $22,000 |
| 2023 | $0 | $20,000 | $0 | $20,000 | $20,000 |
| 2022 | $0 | $10,000 | $0 | $10,000 | $10,000 |
Deed and Sales History
| 1 | 12/16/2022 | SWD | Statutory Warranty Deed | RICHARD F DUCE | DREW YACKULIC | | | | 140371 | |
| 2 | 12/16/2022 | SWD | Statutory Warranty Deed | RICHARD F DUCE | DREW YACKULIC | | | $70,000.00 | 140346 | |
|   | |
Payout Agreement
| No payout information available.. |