Property
Account |
| Property ID: | 20294 | Abbreviated Legal Description: | S5 T28 R1E TAX 136 |
| Parcel # / Geo ID: | 821053007 | Agent Code: | |
| Type: | Real | | |
| Tax Area: | 0213 - 1-49F1E1H2L1 | Land Use Code | 11 |
| Open Space: | N | DFL | N |
| Historic Property: | N | Remodel Property: | N |
| Multi-Family Redevelopment: | N | | |
| Township: | 28N | Section: | 5 |
| Range: | 1E |
Location |
| Address: | 240 REUBEN JOHNSON RD PORT LUDLOW, WA 98365 | Mapsco: | 150/110 |
| Neighborhood: | S4&5 T28N R1E INC MATS VIEW TERRACE, OLYMPUS BCH & HOLTH SP | Map ID: | |
| Neighborhood CD: | 3312 |
Owner |
| Name: | JOHN MIGNONE & MEENA SELVAKUMAR | Owner ID: | 103850 |
| Mailing Address: | 1223 SPRING ST APT 401 SEATTLE, WA 98104-3571 | % Ownership: | 100.0000000000% |
| | | Exemptions: | |
Pay Tax Due
Select the appropriate checkbox next to the year to be paid. Multiple years may be selected.
*Convenience Fee not included
Taxes and Assessment Details
Property Tax Information as of
03/12/2026
Click on "Statement Details" to expand or collapse a tax statement.
* Please enter a valid date ** Please enter a valid date *
Statement Details |
| 2026 | 9799 | STATE - STATE LEVY (SCHOOL) | $1019.06 | $1019.05 | $0.00 | $0.00 | $0.00 | $2038.11 |
| 2026 | 9799 | COUNTY - COUNTY LEVIES (CE, DD, VET, MH) | $407.42 | $407.41 | $0.00 | $0.00 | $0.00 | $814.83 |
| 2026 | 9799 | CONSERVE - CONSERVATION FUTURES | $12.22 | $12.21 | $0.00 | $0.00 | $0.00 | $24.43 |
| 2026 | 9799 | COROADS - COUNTY ROADS (ROADS, DIV TO CE) | $328.67 | $328.67 | $0.00 | $0.00 | $0.00 | $657.34 |
| 2026 | 9799 | PORTPT - PORT DISTRICT | $164.55 | $164.54 | $0.00 | $0.00 | $0.00 | $329.09 |
| 2026 | 9799 | PUD1 - PUD #1 | $26.50 | $26.50 | $0.00 | $0.00 | $0.00 | $53.00 |
| 2026 | 9799 | LIB1 - LIBRARY DIST #1 | $127.16 | $127.16 | $0.00 | $0.00 | $0.00 | $254.32 |
| 2026 | 9799 | HD2 - HOSP DIST #2 | $23.76 | $23.76 | $0.00 | $0.00 | $0.00 | $47.52 |
| 2026 | 9799 | SD49 - SCHOOL DIST #49 | $560.96 | $560.94 | $0.00 | $0.00 | $0.00 | $1121.90 |
| 2026 | 9799 | FD1 - FIRE DISTRICT #1 | $539.52 | $539.51 | $0.00 | $0.00 | $0.00 | $1079.03 |
| 2026 | 9799 | EMS1 - FIRE DIST #1 EMS | $207.44 | $207.43 | $0.00 | $0.00 | $0.00 | $414.87 |
| 2026 | 9799 | FP - DNR Forest Fire Protection Assmt | $8.50 | $8.50 | $0.00 | $0.00 | $0.00 | $17.00 |
| 2026 | 9799 | FPLCA - DNR Landowner Contingency Assmt | $3.00 | $3.00 | $0.00 | $0.00 | $0.00 | $6.00 |
| 2026 | 9799 | JCCD - JC Conservation District | $2.75 | $2.75 | $0.00 | $0.00 | $0.00 | $5.50 |
| 2026 | 9799 | NWA - Noxious Weed Assessment | $3.88 | $3.87 | $0.00 | $0.00 | $0.00 | $7.75 |
| 2026 | 9799 | OSS - On Site Septic | $46.20 | $46.20 | $0.00 | $0.00 | $0.00 | $92.40 |
| 2026 | 9799 | WAT - Clean Water District | $13.00 | $13.00 | $0.00 | $0.00 | $0.00 | $26.00 |
| 2026 | 9799 | FP ADMIN - FP ADMIN | $0.50 | $0.00 | $0.00 | $0.00 | $0.00 | $0.50 |
| 2026 | 9799 | TOTAL: | $3495.09 | $3494.50 | $0.00 | $0.00 | $0.00 | $6989.59 |
|
| 2026 | 9799 | $3495.09 | $3494.50 | $0.00 | $0.00 | $0.00 | $6989.59 |
Statement Details |
| 2025 | 9822 | STATE - STATE LEVY (SCHOOL) | $1018.21 | $1018.19 | $0.00 | $0.00 | $2036.40 | $0.00 |
| 2025 | 9822 | COUNTY - COUNTY LEVIES (CE, DD, VET, MH) | $400.42 | $400.38 | $0.00 | $0.00 | $800.80 | $0.00 |
| 2025 | 9822 | CONSERVE - CONSERVATION FUTURES | $12.01 | $12.00 | $0.00 | $0.00 | $24.01 | $0.00 |
| 2025 | 9822 | COROADS - COUNTY ROADS (ROADS, DIV TO CE) | $320.79 | $320.78 | $0.00 | $0.00 | $641.57 | $0.00 |
| 2025 | 9822 | PORTPT - PORT DISTRICT | $163.39 | $163.38 | $0.00 | $0.00 | $326.77 | $0.00 |
| 2025 | 9822 | PUD1 - PUD #1 | $26.20 | $26.20 | $0.00 | $0.00 | $52.40 | $0.00 |
| 2025 | 9822 | LIB1 - LIBRARY DIST #1 | $124.11 | $124.11 | $0.00 | $0.00 | $248.22 | $0.00 |
| 2025 | 9822 | HD2 - HOSP DIST #2 | $23.36 | $23.36 | $0.00 | $0.00 | $46.72 | $0.00 |
| 2025 | 9822 | SD49 - SCHOOL DIST #49 | $545.70 | $545.69 | $0.00 | $0.00 | $1091.39 | $0.00 |
| 2025 | 9822 | FD1 - FIRE DISTRICT #1 | $528.38 | $528.37 | $0.00 | $0.00 | $1056.75 | $0.00 |
| 2025 | 9822 | EMS1 - FIRE DIST #1 EMS | $203.23 | $203.22 | $0.00 | $0.00 | $406.45 | $0.00 |
| 2025 | 9822 | FP - DNR Forest Fire Protection Assmt | $8.50 | $8.50 | $0.00 | $0.00 | $17.00 | $0.00 |
| 2025 | 9822 | FPLCA - DNR Landowner Contingency Assmt | $3.00 | $3.00 | $0.00 | $0.00 | $6.00 | $0.00 |
| 2025 | 9822 | JCCD - JC Conservation District | $2.75 | $2.75 | $0.00 | $0.00 | $5.50 | $0.00 |
| 2025 | 9822 | NWA - Noxious Weed Assessment | $2.75 | $2.75 | $0.00 | $0.00 | $5.50 | $0.00 |
| 2025 | 9822 | OSS - On Site Septic | $43.00 | $43.00 | $0.00 | $0.00 | $86.00 | $0.00 |
| 2025 | 9822 | WAT - Clean Water District | $13.00 | $13.00 | $0.00 | $0.00 | $26.00 | $0.00 |
| 2025 | 9822 | FP ADMIN - FP ADMIN | $0.50 | $0.00 | $0.00 | $0.00 | $0.50 | $0.00 |
| 2025 | 9822 | TOTAL: | $3439.30 | $3438.68 | $0.00 | $0.00 | $6877.98 | $0.00 |
|
| 2025 | 9822 | $3439.30 | $3438.68 | $0.00 | $0.00 | $6877.98 | $0.00 |
Statement Details |
| 2024 | 9847 | STATE - STATE LEVY (SCHOOL) | $917.20 | $917.19 | $0.00 | $0.00 | $1834.39 | $0.00 |
| 2024 | 9847 | COUNTY - COUNTY LEVIES (CE, DD, VET, MH) | $392.49 | $392.46 | $0.00 | $0.00 | $784.95 | $0.00 |
| 2024 | 9847 | CONSERVE - CONSERVATION FUTURES | $11.77 | $11.77 | $0.00 | $0.00 | $23.54 | $0.00 |
| 2024 | 9847 | COROADS - COUNTY ROADS (ROADS, DIV TO CE) | $315.82 | $315.81 | $0.00 | $0.00 | $631.63 | $0.00 |
| 2024 | 9847 | PORTPT - PORT DISTRICT | $162.11 | $162.11 | $0.00 | $0.00 | $324.22 | $0.00 |
| 2024 | 9847 | PUD1 - PUD #1 | $25.78 | $25.78 | $0.00 | $0.00 | $51.56 | $0.00 |
| 2024 | 9847 | LIB1 - LIBRARY DIST #1 | $122.19 | $122.18 | $0.00 | $0.00 | $244.37 | $0.00 |
| 2024 | 9847 | HD2 - HOSP DIST #2 | $22.90 | $22.90 | $0.00 | $0.00 | $45.80 | $0.00 |
| 2024 | 9847 | SD49 - SCHOOL DIST #49 | $409.57 | $409.57 | $0.00 | $0.00 | $819.14 | $0.00 |
| 2024 | 9847 | FD1 - FIRE DISTRICT #1 | $518.95 | $518.94 | $0.00 | $0.00 | $1037.89 | $0.00 |
| 2024 | 9847 | EMS1 - FIRE DIST #1 EMS | $198.22 | $198.22 | $0.00 | $0.00 | $396.44 | $0.00 |
| 2024 | 9847 | FP - DNR Forest Fire Protection Assmt | $8.50 | $8.50 | $0.00 | $0.00 | $17.00 | $0.00 |
| 2024 | 9847 | FPLCA - DNR Landowner Contingency Assmt | $3.00 | $3.00 | $0.00 | $0.00 | $6.00 | $0.00 |
| 2024 | 9847 | JCCD - JC Conservation District | $2.75 | $2.75 | $0.00 | $0.00 | $5.50 | $0.00 |
| 2024 | 9847 | NWA - Noxious Weed Assessment | $2.75 | $2.75 | $0.00 | $0.00 | $5.50 | $0.00 |
| 2024 | 9847 | OSS - On Site Septic | $42.00 | $42.00 | $0.00 | $0.00 | $84.00 | $0.00 |
| 2024 | 9847 | WAT - Clean Water District | $12.50 | $12.50 | $0.00 | $0.00 | $25.00 | $0.00 |
| 2024 | 9847 | FP ADMIN - FP ADMIN | $0.50 | $0.00 | $0.00 | $0.00 | $0.50 | $0.00 |
| 2024 | 9847 | TOTAL: | $3169.00 | $3168.43 | $0.00 | $0.00 | $6337.43 | $0.00 |
|
| 2024 | 9847 | $3169.00 | $3168.43 | $0.00 | $0.00 | $6337.43 | $0.00 |
Statement Details |
| 2023 | 9866 | STATE - STATE LEVY (SCHOOL) | $885.95 | $885.93 | $0.00 | $0.00 | $1771.88 | $0.00 |
| 2023 | 9866 | COUNTY - COUNTY LEVIES (CE, DD, VET, MH) | $386.61 | $386.58 | $0.00 | $0.00 | $773.19 | $0.00 |
| 2023 | 9866 | CONSERVE - CONSERVATION FUTURES | $11.60 | $11.59 | $0.00 | $0.00 | $23.19 | $0.00 |
| 2023 | 9866 | COROADS - COUNTY ROADS (ROADS, DIV TO CE) | $312.79 | $312.78 | $0.00 | $0.00 | $625.57 | $0.00 |
| 2023 | 9866 | PORTPT - PORT DISTRICT | $162.86 | $162.85 | $0.00 | $0.00 | $325.71 | $0.00 |
| 2023 | 9866 | PUD1 - PUD #1 | $25.63 | $25.62 | $0.00 | $0.00 | $51.25 | $0.00 |
| 2023 | 9866 | LIB1 - LIBRARY DIST #1 | $121.02 | $121.01 | $0.00 | $0.00 | $242.03 | $0.00 |
| 2023 | 9866 | HD2 - HOSP DIST #2 | $22.57 | $22.55 | $0.00 | $0.00 | $45.12 | $0.00 |
| 2023 | 9866 | SD49 - SCHOOL DIST #49 | $414.13 | $414.13 | $0.00 | $0.00 | $828.26 | $0.00 |
| 2023 | 9866 | FD3 - FIRE DISTRICT #3 | $384.61 | $384.61 | $0.00 | $0.00 | $769.22 | $0.00 |
| 2023 | 9866 | EMS3 - FIRE DIST #3 EMS | $137.50 | $137.50 | $0.00 | $0.00 | $275.00 | $0.00 |
| 2023 | 9866 | FP - DNR Forest Fire Protection Assmt | $8.50 | $8.50 | $0.00 | $0.00 | $17.00 | $0.00 |
| 2023 | 9866 | FPLCA - DNR Landowner Contingency Assmt | $3.00 | $3.00 | $0.00 | $0.00 | $6.00 | $0.00 |
| 2023 | 9866 | JCCD - JC Conservation District | $2.75 | $2.75 | $0.00 | $0.00 | $5.50 | $0.00 |
| 2023 | 9866 | NWA - Noxious Weed Assessment | $2.75 | $2.75 | $0.00 | $0.00 | $5.50 | $0.00 |
| 2023 | 9866 | OSS - On Site Septic | $41.00 | $41.00 | $0.00 | $0.00 | $82.00 | $0.00 |
| 2023 | 9866 | WAT - Clean Water District | $12.00 | $12.00 | $0.00 | $0.00 | $24.00 | $0.00 |
| 2023 | 9866 | FP ADMIN - FP ADMIN | $0.50 | $0.00 | $0.00 | $0.00 | $0.50 | $0.00 |
| 2023 | 9866 | TOTAL: | $2935.77 | $2935.15 | $0.00 | $0.00 | $5870.92 | $0.00 |
|
| 2023 | 9866 | $2935.77 | $2935.15 | $0.00 | $0.00 | $5870.92 | $0.00 |
Values
| (+) Improvement Homesite Value: | + | $0 | |
| (+) Improvement Non-Homesite Value: | + | $693,648 | |
| (+) Land Homesite Value: | + | $0 | |
| (+) Land Non-Homesite Value: | + | $192,838 | |
| (+) Curr Use (HS): | + | $0 | $0 |
| (+) Curr Use (NHS): | + | $0 | $0 |
| | | -------------------------- | |
| (=) Market Value: | = | $886,486 | |
| (–) Productivity Loss: | – | $0 | |
| | | -------------------------- | |
| (=) Subtotal: | = | $886,486 | |
| (+) Senior Appraised Value: | + | $0 | |
| (+) Non-Senior Appraised Value: | + | $886,486 | |
| | | -------------------------- | |
| (=) Total Appraised Value: | = | $886,486 | |
| (–) Senior Exemption Loss: | – | $0 | |
| (–) Exemption Loss: | – | $0 | |
| | | -------------------------- | |
| (=) Taxable Value: | = | $886,486 | |
Taxing Jurisdiction
| Owner: | JOHN MIGNONE & MEENA SELVAKUMAR | | |
| % Ownership: | 100.0000000000% | | |
| Total Value: | $886,486 | | |
| Tax Area: | 0213 - 1-49F1E1H2L1 |
| CE | COUNTY CURRENT EXPENSE | 0.9034619479 | $886,486 | $886,486 | $800.91 | | |
| CNTYDD | DEVELOPMENTAL DISABILITIES | 0.0052121823 | $886,486 | $886,486 | $4.62 | | |
| CNTYVET | VETERANS RELIEF | 0.0052777810 | $886,486 | $886,486 | $4.68 | | |
| MENTAL | MENTAL HEALTH | 0.0052121823 | $886,486 | $886,486 | $4.62 | | |
| ROADS | COUNTY ROADS | 0.7415066410 | $886,486 | $886,486 | $657.34 | | |
| ROADSCU | COUNTY ROADS TO CUR EXP | 0.0000000000 | $886,486 | $886,486 | $0.00 | | |
| HOSP2CASH | HOSP DIST #2 GENERAL | 0.0536075306 | $886,486 | $886,486 | $47.52 | | |
| SCH49CP | SCHOOL DIST #49 CAP PROJ | 0.6279093905 | $886,486 | $886,486 | $556.63 | | |
| SCH49MO | SCHOOL DIST #49 EP & O | 0.6376483602 | $886,486 | $886,486 | $565.27 | | |
| CONSERVE | CONSERVATION FUTURES | 0.0275621078 | $886,486 | $886,486 | $24.43 | | |
| EMS1 | FIRE DIST #1 EMS | 0.4679948282 | $886,486 | $886,486 | $414.87 | | |
| FD1 | FIRE DIST #1 GENERAL | 1.2171942929 | $886,486 | $886,486 | $1,079.03 | | |
| LIB1 | LIBRARY DIST #1 GENERAL | 0.2868827388 | $886,486 | $886,486 | $254.32 | | |
| PORTPT | PORT OF PT GENERAL | 0.1134941229 | $886,486 | $886,486 | $100.61 | | |
| PORTPTIDD | PORT OF PT IDD 2019 | 0.2577346692 | $886,486 | $886,486 | $228.48 | | |
| PUD1 | PUD #1 GENERAL | 0.0597888892 | $886,486 | $886,486 | $53.00 | | |
| STATE | STATE SCHOOL PART 1 | 1.4940692947 | $886,486 | $886,486 | $1,324.47 | | |
| STATE2 | STATE SCHOOL PART 2 | 0.8050170049 | $886,486 | $886,486 | $713.64 | | |
| | Total Tax Rate: | 7.7095739644 | | | | | |
| | | | | Taxes w/Current Exemptions: | $6,834.44 | | |
| | | | | Taxes w/o Exemptions: | $6,834.44 | | |
Improvement / Building
| Improvement #1: | Residential Bldg | State Code: | 11 | 750.0 sqft | Value: | $238,100 |
| Bathrooms (#): | 1 (FULL) | Bedrooms (#): | 1 | | Exterior Wall: | SI/ST | Floor Construction: | FRAME | | Foundation: | CONPR | Heating/Cooling: | F/A | | Inside Verify: | YES-FIX | Roof Cover: | COMP |
|
| | Type | Description | Class CD | Sub Class CD | Year Built | Area |
| | MA | Main Area | 4 | 1S | 1930 | 550.0 |
| | MA2 | Second Floor Main Area | 4 | 1S | 1930 | 200.0 |
| | HWPOR | House Wood Porch | 4 | * | 1930 | 36.0 |
| | CARPT | Carport (Table Not Dep) | 1 | * | 1930 | 336.0 |
| | GARAG | Garage (Table Not Dep) | 5 | * | 1930 | 1568.0 |
| Improvement #2: | Residential Bldg | State Code: | 11 | 1376.0 sqft | Value: | $455,548 |
| Bathrooms (#): | 1 (FULL) | Bedrooms (#): | 1 | | Exterior Wall: | MASON | Fireplace: | DBL 2-GOOD | | Fireplace: | WD ST-AVG | Floor Construction: | FRAME | | Foundation: | CONPR | Heating/Cooling: | F/A | | Inside Verify: | YES-FIX | Roof Cover: | COMP |
|
| | Type | Description | Class CD | Sub Class CD | Year Built | Area |
| | MA | Main Area | 5 | 1S | 1978 | 1056.0 |
| | MA2 | Second Floor Main Area | 5- | 1S | 1978 | 320.0 |
| | PATIO | House Patio | 5 | * | 1978 | 350.0 |
| | HDECK | House Deck | 5 | * | 1978 | 323.0 |
| | BSMTF | House basement finished | 4 | * | 1978 | 98.0 |
| | BSMTU | House basement unfinished | 4 | * | 1978 | 98.0 |
Sketch
Property Image
Land
| 1 | 3312-1365S | | 1.0000 | 43560.00 | 0.00 | 0.00 | 1.00 | $172,500 | $0 |
| 2 | 1971A | | 2.6200 | 114127.20 | 0.00 | 0.00 | 0.00 | $20,338 | $0 |
Roll Value History
| 2026 | N/A | N/A | N/A | N/A | N/A |
| 2025 | $693,648 | $192,838 | $0 | $886,486 | $886,486 |
| 2024 | $664,746 | $184,454 | $0 | $849,200 | $849,200 |
| 2023 | $635,844 | $157,030 | $0 | $792,874 | $792,874 |
| 2022 | $606,942 | $145,720 | $0 | $752,662 | $752,662 |
Deed and Sales History
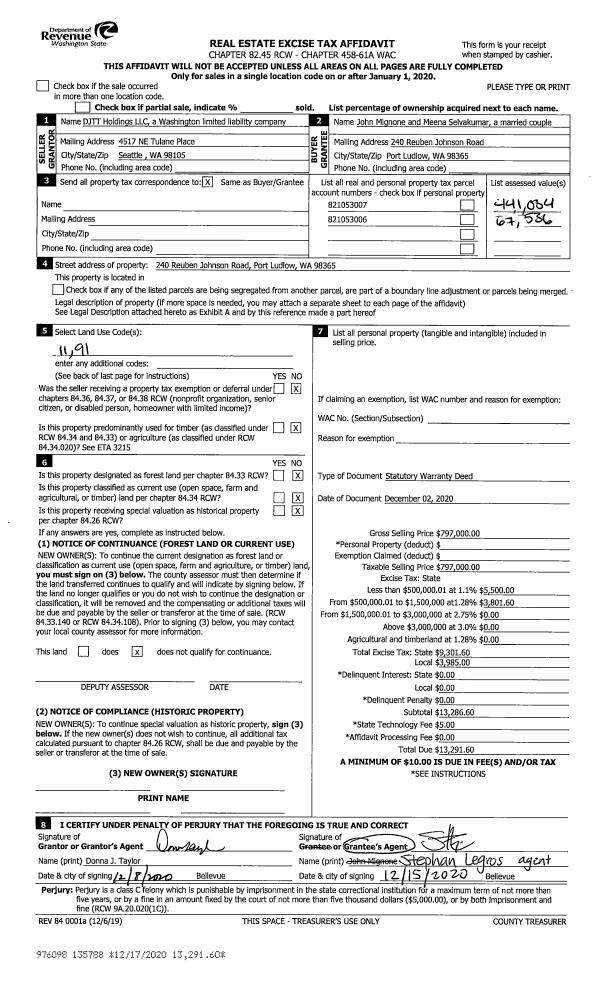
| 1 | 12/02/2020 | SWD | Statutory Warranty Deed | DJTT HOLDINGS LLC | JOHN MIGNONE & MEENA SELVAKUMAR | | | $797,000.00 | 135788 | |
|   | |
| 2 | 02/07/2006 | SWD | Statutory Warranty Deed | KAWAKY, JOSEPH & BARBAR J | DJTT HOLDINGS LLC | 0 | 0 | $0.00 | 105997 | 0 |
Payout Agreement
| No payout information available.. |