| 1 | 07/06/2022 | QCD | Quit Claim Deed | WESTON J EPP | ANGELA K YELACA | | | | 139402 | |
| 2 | 11/09/2021 | SWD | Statutory Warranty Deed | SHAUNE L SALTER | WESTON J EPP | | | $250,000.00 | 138062 | |
| 3 | 08/12/2019 | SWD | Statutory Warranty Deed | JONATHAN S DEAN | SHAUNE L SALTER | | | $151,000.00 | 133024 | |
| 4 | 11/01/2017 | SPWD | Special Warranty Deed | SECRETARY OF HOUSING & URBAN DEVELOPMENT | JONATHAN S DEAN | | | $134,358.00 | 128984 | |
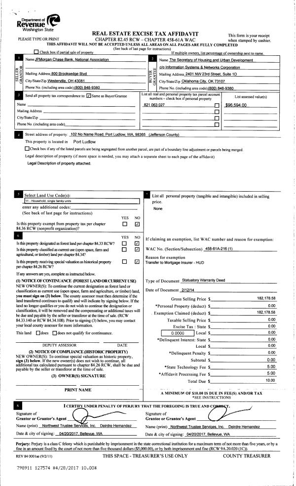
| 5 | 02/12/2014 | SWD | Statutory Warranty Deed | JPMORGAN CHASE BANK NATL ASSOC | SECRETARY OF HOUSING & URBAN DEVELOPMENT | | | | 127574 | |
| 6 | 06/07/2013 | TRED | Trustee Deed | NORTHWEST TRUSTEE SERVICES INC | JPMORGAN CHASE BANK NATL ASSOC | | | | 119390 | |
| 7 | 07/13/2006 | QCD | Quit Claim Deed | NOBLES, NAOMI M | MCCHESNEY, DAVID & NAOMI M | | | $0.00 | 107124 | 0 |
| 8 | 01/12/2001 | WD | Warranty Deed | NOBLES, NAOMI M PR ESTATE | NOBLES, NAOMI M | 0 | 0 | $0.00 | 91569 | 0 |
| 9 | 05/30/1995 | QCD | Quit Claim Deed | MCCHESNEY | NOBLES, NAOMI M | 0 | 0 | $0.00 | 77073 | 0 |
| 10 | 05/30/1995 | QCD | Quit Claim Deed | NOBLES, NAOMI M | NOBLES, NAOMI M/RUTH B | 0 | 0 | $0.00 | 77074 | 0 |
| 11 | 02/10/1994 | SWD | Statutory Warranty Deed | VENARD, NEIL A/CHARLENE E | MCCHESNEY, DAVID H/NAOMI M | 0 | 0 | $32,500.00 | 73505 | 0 |