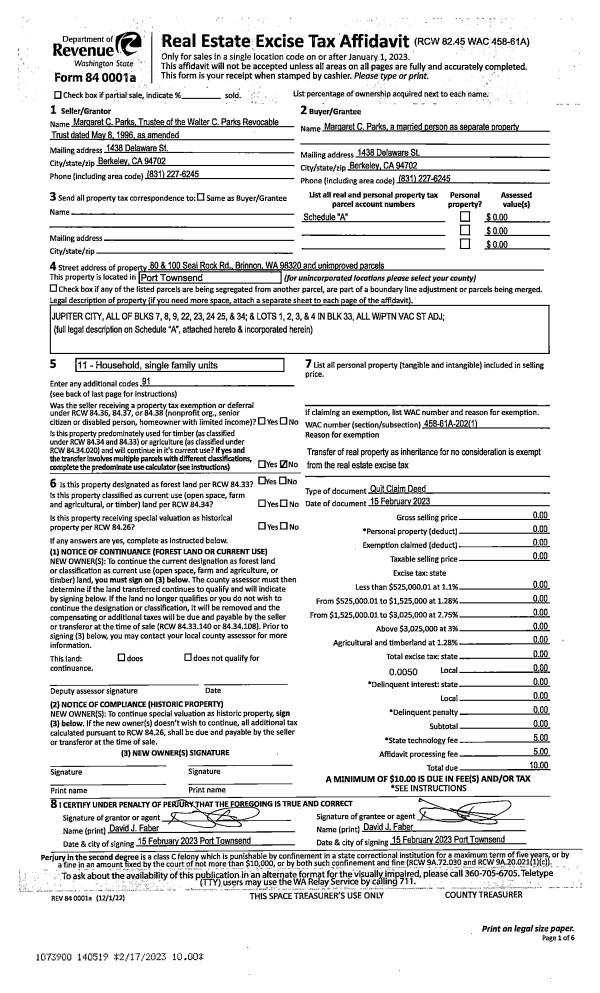
Property
Account |
| Property ID: | 20412 | Abbreviated Legal Description: | S8 T28 R1E TAX 59 |
| Parcel # / Geo ID: | 821081038 | Agent Code: | |
| Type: | Real | | |
| Tax Area: | 0213 - 1-49F1E1H2L1 | Land Use Code | 18 |
| Open Space: | N | DFL | N |
| Historic Property: | N | Remodel Property: | N |
| Multi-Family Redevelopment: | N | | |
| Township: | 28N | Section: | 8 |
| Range: | 1E |
Location |
| Address: | | Mapsco: | 153/050 |
| Neighborhood: | S8 T28N R1E OUT SIDE MPR (SWANSONVILLE AREA LESS PL PLATS) | Map ID: | |
| Neighborhood CD: | 3325 |
Owner |
| Name: | SPENCER SWANSON | Owner ID: | 108260 |
| Mailing Address: | 515 S 323RD PL APT 16F FEDERAL WAY, WA 98003-5869 | % Ownership: | 100.0000000000% |
| | | Exemptions: | |
Pay Tax Due
Select the appropriate checkbox next to the year to be paid. Multiple years may be selected.
*Convenience Fee not included
Taxes and Assessment Details
Property Tax Information as of
03/11/2026
Click on "Statement Details" to expand or collapse a tax statement.
* Please enter a valid date ** Please enter a valid date *
Statement Details |
| 2026 | 9917 | STATE - STATE LEVY (SCHOOL) | $166.59 | $166.58 | $0.00 | $0.00 | $0.00 | $333.17 |
| 2026 | 9917 | COUNTY - COUNTY LEVIES (CE, DD, VET, MH) | $66.60 | $66.60 | $0.00 | $0.00 | $0.00 | $133.20 |
| 2026 | 9917 | CONSERVE - CONSERVATION FUTURES | $2.00 | $1.99 | $0.00 | $0.00 | $0.00 | $3.99 |
| 2026 | 9917 | COROADS - COUNTY ROADS (ROADS, DIV TO CE) | $53.73 | $53.72 | $0.00 | $0.00 | $0.00 | $107.45 |
| 2026 | 9917 | PORTPT - PORT DISTRICT | $26.91 | $26.89 | $0.00 | $0.00 | $0.00 | $53.80 |
| 2026 | 9917 | PUD1 - PUD #1 | $4.33 | $4.33 | $0.00 | $0.00 | $0.00 | $8.66 |
| 2026 | 9917 | LIB1 - LIBRARY DIST #1 | $20.79 | $20.78 | $0.00 | $0.00 | $0.00 | $41.57 |
| 2026 | 9917 | HD2 - HOSP DIST #2 | $3.89 | $3.88 | $0.00 | $0.00 | $0.00 | $7.77 |
| 2026 | 9917 | SD49 - SCHOOL DIST #49 | $91.70 | $91.69 | $0.00 | $0.00 | $0.00 | $183.39 |
| 2026 | 9917 | FD1 - FIRE DISTRICT #1 | $88.19 | $88.19 | $0.00 | $0.00 | $0.00 | $176.38 |
| 2026 | 9917 | EMS1 - FIRE DIST #1 EMS | $33.91 | $33.91 | $0.00 | $0.00 | $0.00 | $67.82 |
| 2026 | 9917 | FP - DNR Forest Fire Protection Assmt | $8.50 | $8.50 | $0.00 | $0.00 | $0.00 | $17.00 |
| 2026 | 9917 | FPLCA - DNR Landowner Contingency Assmt | $3.00 | $3.00 | $0.00 | $0.00 | $0.00 | $6.00 |
| 2026 | 9917 | JCCD - JC Conservation District | $2.77 | $2.77 | $0.00 | $0.00 | $0.00 | $5.54 |
| 2026 | 9917 | NWA - Noxious Weed Assessment | $4.33 | $4.32 | $0.00 | $0.00 | $0.00 | $8.65 |
| 2026 | 9917 | WAT - Clean Water District | $13.00 | $13.00 | $0.00 | $0.00 | $0.00 | $26.00 |
| 2026 | 9917 | FP ADMIN - FP ADMIN | $0.50 | $0.00 | $0.00 | $0.00 | $0.00 | $0.50 |
| 2026 | 9917 | TOTAL: | $590.74 | $590.15 | $0.00 | $0.00 | $0.00 | $1180.89 |
|
| 2026 | 9917 | $590.74 | $590.15 | $0.00 | $0.00 | $0.00 | $1180.89 |
Statement Details |
| 2025 | 9940 | STATE - STATE LEVY (SCHOOL) | $173.76 | $173.74 | $0.00 | $0.00 | $347.50 | $0.00 |
| 2025 | 9940 | COUNTY - COUNTY LEVIES (CE, DD, VET, MH) | $68.33 | $68.31 | $0.00 | $0.00 | $136.64 | $0.00 |
| 2025 | 9940 | CONSERVE - CONSERVATION FUTURES | $2.05 | $2.05 | $0.00 | $0.00 | $4.10 | $0.00 |
| 2025 | 9940 | COROADS - COUNTY ROADS (ROADS, DIV TO CE) | $54.74 | $54.74 | $0.00 | $0.00 | $109.48 | $0.00 |
| 2025 | 9940 | PORTPT - PORT DISTRICT | $27.89 | $27.87 | $0.00 | $0.00 | $55.76 | $0.00 |
| 2025 | 9940 | PUD1 - PUD #1 | $4.47 | $4.47 | $0.00 | $0.00 | $8.94 | $0.00 |
| 2025 | 9940 | LIB1 - LIBRARY DIST #1 | $21.18 | $21.18 | $0.00 | $0.00 | $42.36 | $0.00 |
| 2025 | 9940 | HD2 - HOSP DIST #2 | $3.99 | $3.98 | $0.00 | $0.00 | $7.97 | $0.00 |
| 2025 | 9940 | SD49 - SCHOOL DIST #49 | $93.13 | $93.11 | $0.00 | $0.00 | $186.24 | $0.00 |
| 2025 | 9940 | FD1 - FIRE DISTRICT #1 | $90.17 | $90.16 | $0.00 | $0.00 | $180.33 | $0.00 |
| 2025 | 9940 | EMS1 - FIRE DIST #1 EMS | $34.68 | $34.68 | $0.00 | $0.00 | $69.36 | $0.00 |
| 2025 | 9940 | FP - DNR Forest Fire Protection Assmt | $8.50 | $8.50 | $0.00 | $0.00 | $17.00 | $0.00 |
| 2025 | 9940 | FPLCA - DNR Landowner Contingency Assmt | $3.00 | $3.00 | $0.00 | $0.00 | $6.00 | $0.00 |
| 2025 | 9940 | JCCD - JC Conservation District | $2.85 | $2.85 | $0.00 | $0.00 | $5.70 | $0.00 |
| 2025 | 9940 | NWA - Noxious Weed Assessment | $3.05 | $3.05 | $0.00 | $0.00 | $6.10 | $0.00 |
| 2025 | 9940 | WAT - Clean Water District | $13.00 | $13.00 | $0.00 | $0.00 | $26.00 | $0.00 |
| 2025 | 9940 | FP ADMIN - FP ADMIN | $0.50 | $0.00 | $0.00 | $0.00 | $0.50 | $0.00 |
| 2025 | 9940 | TOTAL: | $605.29 | $604.69 | $0.00 | $0.00 | $1209.98 | $0.00 |
|
| 2025 | 9940 | $605.29 | $604.69 | $0.00 | $0.00 | $1209.98 | $0.00 |
Statement Details |
| 2024 | 9965 | STATE - STATE LEVY (SCHOOL) | $151.02 | $151.00 | $0.00 | $0.00 | $302.02 | $0.00 |
| 2024 | 9965 | COUNTY - COUNTY LEVIES (CE, DD, VET, MH) | $64.63 | $64.61 | $0.00 | $0.00 | $129.24 | $0.00 |
| 2024 | 9965 | CONSERVE - CONSERVATION FUTURES | $1.94 | $1.94 | $0.00 | $0.00 | $3.88 | $0.00 |
| 2024 | 9965 | COROADS - COUNTY ROADS (ROADS, DIV TO CE) | $52.00 | $51.99 | $0.00 | $0.00 | $103.99 | $0.00 |
| 2024 | 9965 | PORTPT - PORT DISTRICT | $26.69 | $26.69 | $0.00 | $0.00 | $53.38 | $0.00 |
| 2024 | 9965 | PUD1 - PUD #1 | $4.25 | $4.24 | $0.00 | $0.00 | $8.49 | $0.00 |
| 2024 | 9965 | LIB1 - LIBRARY DIST #1 | $20.12 | $20.11 | $0.00 | $0.00 | $40.23 | $0.00 |
| 2024 | 9965 | HD2 - HOSP DIST #2 | $3.77 | $3.77 | $0.00 | $0.00 | $7.54 | $0.00 |
| 2024 | 9965 | SD49 - SCHOOL DIST #49 | $67.44 | $67.42 | $0.00 | $0.00 | $134.86 | $0.00 |
| 2024 | 9965 | FD1 - FIRE DISTRICT #1 | $85.44 | $85.44 | $0.00 | $0.00 | $170.88 | $0.00 |
| 2024 | 9965 | EMS1 - FIRE DIST #1 EMS | $32.64 | $32.63 | $0.00 | $0.00 | $65.27 | $0.00 |
| 2024 | 9965 | FP - DNR Forest Fire Protection Assmt | $8.50 | $8.50 | $0.00 | $0.00 | $17.00 | $0.00 |
| 2024 | 9965 | FPLCA - DNR Landowner Contingency Assmt | $3.00 | $3.00 | $0.00 | $0.00 | $6.00 | $0.00 |
| 2024 | 9965 | JCCD - JC Conservation District | $2.85 | $2.85 | $0.00 | $0.00 | $5.70 | $0.00 |
| 2024 | 9965 | NWA - Noxious Weed Assessment | $3.05 | $3.05 | $0.00 | $0.00 | $6.10 | $0.00 |
| 2024 | 9965 | WAT - Clean Water District | $12.50 | $12.50 | $0.00 | $0.00 | $25.00 | $0.00 |
| 2024 | 9965 | FP ADMIN - FP ADMIN | $0.50 | $0.00 | $0.00 | $0.00 | $0.50 | $0.00 |
| 2024 | 9965 | TOTAL: | $540.34 | $539.74 | $0.00 | $0.00 | $1080.08 | $0.00 |
|
| 2024 | 9965 | $540.34 | $539.74 | $0.00 | $0.00 | $1080.08 | $0.00 |
Statement Details |
| 2023 | 9984 | STATE - STATE LEVY (SCHOOL) | $148.05 | $148.04 | $0.00 | $0.00 | $296.09 | $0.00 |
| 2023 | 9984 | COUNTY - COUNTY LEVIES (CE, DD, VET, MH) | $64.61 | $64.59 | $0.00 | $0.00 | $129.20 | $0.00 |
| 2023 | 9984 | CONSERVE - CONSERVATION FUTURES | $1.94 | $1.93 | $0.00 | $0.00 | $3.87 | $0.00 |
| 2023 | 9984 | COROADS - COUNTY ROADS (ROADS, DIV TO CE) | $52.27 | $52.26 | $0.00 | $0.00 | $104.53 | $0.00 |
| 2023 | 9984 | PORTPT - PORT DISTRICT | $27.22 | $27.21 | $0.00 | $0.00 | $54.43 | $0.00 |
| 2023 | 9984 | PUD1 - PUD #1 | $4.28 | $4.28 | $0.00 | $0.00 | $8.56 | $0.00 |
| 2023 | 9984 | LIB1 - LIBRARY DIST #1 | $20.22 | $20.22 | $0.00 | $0.00 | $40.44 | $0.00 |
| 2023 | 9984 | HD2 - HOSP DIST #2 | $3.77 | $3.77 | $0.00 | $0.00 | $7.54 | $0.00 |
| 2023 | 9984 | SD49 - SCHOOL DIST #49 | $69.21 | $69.20 | $0.00 | $0.00 | $138.41 | $0.00 |
| 2023 | 9984 | FD3 - FIRE DISTRICT #3 | $64.27 | $64.27 | $0.00 | $0.00 | $128.54 | $0.00 |
| 2023 | 9984 | EMS3 - FIRE DIST #3 EMS | $22.98 | $22.97 | $0.00 | $0.00 | $45.95 | $0.00 |
| 2023 | 9984 | FP - DNR Forest Fire Protection Assmt | $8.50 | $8.50 | $0.00 | $0.00 | $17.00 | $0.00 |
| 2023 | 9984 | FPLCA - DNR Landowner Contingency Assmt | $3.00 | $3.00 | $0.00 | $0.00 | $6.00 | $0.00 |
| 2023 | 9984 | JCCD - JC Conservation District | $2.85 | $2.85 | $0.00 | $0.00 | $5.70 | $0.00 |
| 2023 | 9984 | NWA - Noxious Weed Assessment | $3.05 | $3.05 | $0.00 | $0.00 | $6.10 | $0.00 |
| 2023 | 9984 | WAT - Clean Water District | $12.00 | $12.00 | $0.00 | $0.00 | $24.00 | $0.00 |
| 2023 | 9984 | FP ADMIN - FP ADMIN | $0.50 | $0.00 | $0.00 | $0.00 | $0.50 | $0.00 |
| 2023 | 9984 | TOTAL: | $508.72 | $508.14 | $0.00 | $0.00 | $1016.86 | $0.00 |
|
| 2023 | 9984 | $508.72 | $508.14 | $0.00 | $0.00 | $1016.86 | $0.00 |
Values
| (+) Improvement Homesite Value: | + | $0 | |
| (+) Improvement Non-Homesite Value: | + | $17,113 | |
| (+) Land Homesite Value: | + | $0 | |
| (+) Land Non-Homesite Value: | + | $127,798 | |
| (+) Curr Use (HS): | + | $0 | $0 |
| (+) Curr Use (NHS): | + | $0 | $0 |
| | | -------------------------- | |
| (=) Market Value: | = | $144,911 | |
| (–) Productivity Loss: | – | $0 | |
| | | -------------------------- | |
| (=) Subtotal: | = | $144,911 | |
| (+) Senior Appraised Value: | + | $0 | |
| (+) Non-Senior Appraised Value: | + | $144,911 | |
| | | -------------------------- | |
| (=) Total Appraised Value: | = | $144,911 | |
| (–) Senior Exemption Loss: | – | $0 | |
| (–) Exemption Loss: | – | $0 | |
| | | -------------------------- | |
| (=) Taxable Value: | = | $144,911 | |
Taxing Jurisdiction
| Owner: | SPENCER SWANSON | | |
| % Ownership: | 100.0000000000% | | |
| Total Value: | $144,911 | | |
| Tax Area: | 0213 - 1-49F1E1H2L1 |
| CE | COUNTY CURRENT EXPENSE | 0.9034619479 | $144,911 | $144,911 | $130.92 | | |
| CNTYDD | DEVELOPMENTAL DISABILITIES | 0.0052121823 | $144,911 | $144,911 | $0.76 | | |
| CNTYVET | VETERANS RELIEF | 0.0052777810 | $144,911 | $144,911 | $0.76 | | |
| MENTAL | MENTAL HEALTH | 0.0052121823 | $144,911 | $144,911 | $0.76 | | |
| ROADS | COUNTY ROADS | 0.7415066410 | $144,911 | $144,911 | $107.45 | | |
| ROADSCU | COUNTY ROADS TO CUR EXP | 0.0000000000 | $144,911 | $144,911 | $0.00 | | |
| HOSP2CASH | HOSP DIST #2 GENERAL | 0.0536075306 | $144,911 | $144,911 | $7.77 | | |
| SCH49CP | SCHOOL DIST #49 CAP PROJ | 0.6279093905 | $144,911 | $144,911 | $90.99 | | |
| SCH49MO | SCHOOL DIST #49 EP & O | 0.6376483602 | $144,911 | $144,911 | $92.40 | | |
| CONSERVE | CONSERVATION FUTURES | 0.0275621078 | $144,911 | $144,911 | $3.99 | | |
| EMS1 | FIRE DIST #1 EMS | 0.4679948282 | $144,911 | $144,911 | $67.82 | | |
| FD1 | FIRE DIST #1 GENERAL | 1.2171942929 | $144,911 | $144,911 | $176.38 | | |
| LIB1 | LIBRARY DIST #1 GENERAL | 0.2868827388 | $144,911 | $144,911 | $41.57 | | |
| PORTPT | PORT OF PT GENERAL | 0.1134941229 | $144,911 | $144,911 | $16.45 | | |
| PORTPTIDD | PORT OF PT IDD 2019 | 0.2577346692 | $144,911 | $144,911 | $37.35 | | |
| PUD1 | PUD #1 GENERAL | 0.0597888892 | $144,911 | $144,911 | $8.66 | | |
| STATE | STATE SCHOOL PART 1 | 1.4940692947 | $144,911 | $144,911 | $216.51 | | |
| STATE2 | STATE SCHOOL PART 2 | 0.8050170049 | $144,911 | $144,911 | $116.66 | | |
| | Total Tax Rate: | 7.7095739644 | | | | | |
| | | | | Taxes w/Current Exemptions: | $1,117.20 | | |
| | | | | Taxes w/o Exemptions: | $1,117.20 | | |
Improvement / Building
| Improvement #1: | Residential Bldg | State Code: | 19 | 0.0 sqft | Value: | $17,113 |
Sketch
| No sketches available for this property. |
Property Image
Land
| 1 | 3325-1374S | | 1.0000 | 43560.00 | 0.00 | 0.00 | 1.00 | $88,000 | $0 |
| 2 | 1575A | | 4.0200 | 175111.20 | 0.00 | 0.00 | 0.00 | $39,798 | $0 |
Roll Value History
| 2026 | N/A | N/A | N/A | N/A | N/A |
| 2025 | $17,113 | $127,798 | $0 | $144,911 | $144,911 |
| 2024 | $17,113 | $127,798 | $0 | $144,911 | $144,911 |
| 2023 | $16,369 | $114,170 | $0 | $130,539 | $130,539 |
| 2022 | $15,625 | $110,150 | $0 | $125,775 | $125,775 |
Deed and Sales History
| 1 | 05/06/2022 | QCD | Quit Claim Deed | HARRY E SWANSON | SPENCER SWANSON | | | | 140447 | |
Payout Agreement
| No payout information available.. |