Property
Account |
| Property ID: | 20426 | Abbreviated Legal Description: | S8 T28 R1E TAX NO. 1 |
| Parcel # / Geo ID: | 821082013 | Agent Code: | |
| Type: | Real | | |
| Tax Area: | 0213 - 1-49F1E1H2L1 | Land Use Code | 11 |
| Open Space: | N | DFL | N |
| Historic Property: | N | Remodel Property: | N |
| Multi-Family Redevelopment: | N | | |
| Township: | 28N | Section: | 8 |
| Range: | 1E |
Location |
| Address: | 51 REUBEN JOHNSON RD PORT LUDLOW, WA 98365 | Mapsco: | 153/001 |
| Neighborhood: | S8 T28N R1E OUT SIDE MPR (SWANSONVILLE AREA LESS PL PLATS) | Map ID: | |
| Neighborhood CD: | 3325 |
Owner |
| Name: | ELYSIA HAYS | Owner ID: | 103231 |
| Mailing Address: | 51 REUBEN JOHNSON RD PORT LUDLOW, WA 98365-8713 | % Ownership: | 100.0000000000% |
| | | Exemptions: | |
Pay Tax Due
Select the appropriate checkbox next to the year to be paid. Multiple years may be selected.
*Convenience Fee not included
Taxes and Assessment Details
Property Tax Information as of
03/10/2026
Click on "Statement Details" to expand or collapse a tax statement.
* Please enter a valid date ** Please enter a valid date *
Statement Details |
| 2026 | 9930 | STATE - STATE LEVY (SCHOOL) | $616.70 | $616.69 | $0.00 | $0.00 | $0.00 | $1233.39 |
| 2026 | 9930 | COUNTY - COUNTY LEVIES (CE, DD, VET, MH) | $246.56 | $246.55 | $0.00 | $0.00 | $0.00 | $493.11 |
| 2026 | 9930 | CONSERVE - CONSERVATION FUTURES | $7.40 | $7.39 | $0.00 | $0.00 | $0.00 | $14.79 |
| 2026 | 9930 | COROADS - COUNTY ROADS (ROADS, DIV TO CE) | $198.90 | $198.89 | $0.00 | $0.00 | $0.00 | $397.79 |
| 2026 | 9930 | PORTPT - PORT DISTRICT | $99.59 | $99.57 | $0.00 | $0.00 | $0.00 | $199.16 |
| 2026 | 9930 | PUD1 - PUD #1 | $16.04 | $16.03 | $0.00 | $0.00 | $0.00 | $32.07 |
| 2026 | 9930 | LIB1 - LIBRARY DIST #1 | $76.95 | $76.95 | $0.00 | $0.00 | $0.00 | $153.90 |
| 2026 | 9930 | HD2 - HOSP DIST #2 | $14.38 | $14.38 | $0.00 | $0.00 | $0.00 | $28.76 |
| 2026 | 9930 | SD49 - SCHOOL DIST #49 | $339.47 | $339.46 | $0.00 | $0.00 | $0.00 | $678.93 |
| 2026 | 9930 | FD1 - FIRE DISTRICT #1 | $326.49 | $326.49 | $0.00 | $0.00 | $0.00 | $652.98 |
| 2026 | 9930 | EMS1 - FIRE DIST #1 EMS | $125.53 | $125.53 | $0.00 | $0.00 | $0.00 | $251.06 |
| 2026 | 9930 | FP - DNR Forest Fire Protection Assmt | $8.50 | $8.50 | $0.00 | $0.00 | $0.00 | $17.00 |
| 2026 | 9930 | FPLCA - DNR Landowner Contingency Assmt | $3.00 | $3.00 | $0.00 | $0.00 | $0.00 | $6.00 |
| 2026 | 9930 | JCCD - JC Conservation District | $2.55 | $2.55 | $0.00 | $0.00 | $0.00 | $5.10 |
| 2026 | 9930 | NWA - Noxious Weed Assessment | $2.98 | $2.97 | $0.00 | $0.00 | $0.00 | $5.95 |
| 2026 | 9930 | OSS - On Site Septic | $23.10 | $23.10 | $0.00 | $0.00 | $0.00 | $46.20 |
| 2026 | 9930 | WAT - Clean Water District | $13.00 | $13.00 | $0.00 | $0.00 | $0.00 | $26.00 |
| 2026 | 9930 | FP ADMIN - FP ADMIN | $0.50 | $0.00 | $0.00 | $0.00 | $0.00 | $0.50 |
| 2026 | 9930 | TOTAL: | $2121.64 | $2121.05 | $0.00 | $0.00 | $0.00 | $4242.69 |
|
| 2026 | 9930 | $2121.64 | $2121.05 | $0.00 | $0.00 | $0.00 | $4242.69 |
Statement Details |
| 2025 | 9953 | STATE - STATE LEVY (SCHOOL) | $643.23 | $643.23 | $0.00 | $106.14 | $0.00 | $1392.60 |
| 2025 | 9953 | COUNTY - COUNTY LEVIES (CE, DD, VET, MH) | $252.95 | $252.94 | $0.00 | $41.74 | $0.00 | $547.63 |
| 2025 | 9953 | CONSERVE - CONSERVATION FUTURES | $7.59 | $7.58 | $0.00 | $1.25 | $0.00 | $16.42 |
| 2025 | 9953 | COROADS - COUNTY ROADS (ROADS, DIV TO CE) | $202.66 | $202.64 | $0.00 | $33.44 | $0.00 | $438.74 |
| 2025 | 9953 | PORTPT - PORT DISTRICT | $103.23 | $103.21 | $0.00 | $17.03 | $0.00 | $223.47 |
| 2025 | 9953 | PUD1 - PUD #1 | $16.55 | $16.55 | $0.00 | $2.73 | $0.00 | $35.83 |
| 2025 | 9953 | LIB1 - LIBRARY DIST #1 | $78.41 | $78.40 | $0.00 | $12.94 | $0.00 | $169.75 |
| 2025 | 9953 | HD2 - HOSP DIST #2 | $14.76 | $14.76 | $0.00 | $2.44 | $0.00 | $31.96 |
| 2025 | 9953 | SD49 - SCHOOL DIST #49 | $344.74 | $344.72 | $0.00 | $56.88 | $0.00 | $746.34 |
| 2025 | 9953 | FD1 - FIRE DISTRICT #1 | $333.79 | $333.79 | $0.00 | $55.08 | $0.00 | $722.66 |
| 2025 | 9953 | EMS1 - FIRE DIST #1 EMS | $128.39 | $128.38 | $0.00 | $21.18 | $0.00 | $277.95 |
| 2025 | 9953 | FP - DNR Forest Fire Protection Assmt | $8.50 | $8.50 | $0.00 | $1.40 | $0.00 | $18.40 |
| 2025 | 9953 | FPLCA - DNR Landowner Contingency Assmt | $3.00 | $3.00 | $0.00 | $0.50 | $0.00 | $6.50 |
| 2025 | 9953 | JCCD - JC Conservation District | $2.55 | $2.55 | $0.00 | $0.42 | $0.00 | $5.52 |
| 2025 | 9953 | NWA - Noxious Weed Assessment | $2.15 | $2.15 | $0.00 | $0.35 | $0.00 | $4.65 |
| 2025 | 9953 | OSS - On Site Septic | $21.50 | $21.50 | $0.00 | $3.55 | $0.00 | $46.55 |
| 2025 | 9953 | WAT - Clean Water District | $13.00 | $13.00 | $0.00 | $2.14 | $0.00 | $28.14 |
| 2025 | 9953 | FP ADMIN - FP ADMIN | $0.50 | $0.00 | $0.00 | $0.00 | $0.00 | $0.50 |
| 2025 | 9953 | TOTAL: | $2177.50 | $2176.90 | $0.00 | $359.21 | $0.00 | $4713.61 |
|
| 2025 | 9953 | $2177.50 | $2176.90 | $0.00 | $359.21 | $0.00 | $4713.61 |
Statement Details |
| 2024 | 9978 | STATE - STATE LEVY (SCHOOL) | $581.19 | $581.17 | $0.00 | $200.51 | $0.00 | $1362.87 |
| 2024 | 9978 | COUNTY - COUNTY LEVIES (CE, DD, VET, MH) | $248.71 | $248.68 | $0.00 | $85.79 | $0.00 | $583.18 |
| 2024 | 9978 | CONSERVE - CONSERVATION FUTURES | $7.46 | $7.45 | $0.00 | $2.57 | $0.00 | $17.48 |
| 2024 | 9978 | COROADS - COUNTY ROADS (ROADS, DIV TO CE) | $200.12 | $200.11 | $0.00 | $69.04 | $0.00 | $469.27 |
| 2024 | 9978 | PORTPT - PORT DISTRICT | $102.73 | $102.71 | $0.00 | $35.44 | $0.00 | $240.88 |
| 2024 | 9978 | PUD1 - PUD #1 | $16.34 | $16.33 | $0.00 | $5.64 | $0.00 | $38.31 |
| 2024 | 9978 | LIB1 - LIBRARY DIST #1 | $77.43 | $77.42 | $0.00 | $26.71 | $0.00 | $181.56 |
| 2024 | 9978 | HD2 - HOSP DIST #2 | $14.51 | $14.51 | $0.00 | $5.01 | $0.00 | $34.03 |
| 2024 | 9978 | SD49 - SCHOOL DIST #49 | $259.53 | $259.52 | $0.00 | $89.53 | $0.00 | $608.58 |
| 2024 | 9978 | FD1 - FIRE DISTRICT #1 | $328.83 | $328.83 | $0.00 | $113.45 | $0.00 | $771.11 |
| 2024 | 9978 | EMS1 - FIRE DIST #1 EMS | $125.60 | $125.60 | $0.00 | $43.33 | $0.00 | $294.53 |
| 2024 | 9978 | JCCD - JC Conservation District | $2.55 | $2.55 | $0.00 | $0.88 | $0.00 | $5.98 |
| 2024 | 9978 | NWA - Noxious Weed Assessment | $2.15 | $2.15 | $0.00 | $0.74 | $0.00 | $5.04 |
| 2024 | 9978 | OSS - On Site Septic | $21.00 | $21.00 | $0.00 | $7.24 | $0.00 | $49.24 |
| 2024 | 9978 | WAT - Clean Water District | $12.50 | $12.50 | $0.00 | $4.31 | $0.00 | $29.31 |
| 2024 | 9978 | TOTAL: | $2000.65 | $2000.53 | $0.00 | $690.19 | $0.00 | $4691.37 |
|
| 2024 | 9978 | $2000.65 | $2000.53 | $0.00 | $690.19 | $0.00 | $4691.37 |
Statement Details |
| 2023 | 9997 | STATE - STATE LEVY (SCHOOL) | $564.22 | $564.22 | $0.00 | $296.22 | $0.00 | $1424.66 |
| 2023 | 9997 | COUNTY - COUNTY LEVIES (CE, DD, VET, MH) | $246.22 | $246.21 | $0.00 | $129.27 | $0.00 | $621.70 |
| 2023 | 9997 | CONSERVE - CONSERVATION FUTURES | $7.39 | $7.38 | $0.00 | $3.88 | $0.00 | $18.65 |
| 2023 | 9997 | COROADS - COUNTY ROADS (ROADS, DIV TO CE) | $199.21 | $199.20 | $0.00 | $104.58 | $0.00 | $502.99 |
| 2023 | 9997 | PORTPT - PORT DISTRICT | $103.72 | $103.71 | $0.00 | $54.45 | $0.00 | $261.88 |
| 2023 | 9997 | PUD1 - PUD #1 | $16.32 | $16.32 | $0.00 | $8.57 | $0.00 | $41.21 |
| 2023 | 9997 | LIB1 - LIBRARY DIST #1 | $77.07 | $77.07 | $0.00 | $40.46 | $0.00 | $194.60 |
| 2023 | 9997 | HD2 - HOSP DIST #2 | $14.37 | $14.37 | $0.00 | $7.54 | $0.00 | $36.28 |
| 2023 | 9997 | SD49 - SCHOOL DIST #49 | $263.75 | $263.74 | $0.00 | $138.46 | $0.00 | $665.95 |
| 2023 | 9997 | FD3 - FIRE DISTRICT #3 | $244.95 | $244.94 | $0.00 | $128.60 | $0.00 | $618.49 |
| 2023 | 9997 | EMS3 - FIRE DIST #3 EMS | $87.57 | $87.57 | $0.00 | $45.97 | $0.00 | $221.11 |
| 2023 | 9997 | JCCD - JC Conservation District | $2.55 | $2.55 | $0.00 | $1.34 | $0.00 | $6.44 |
| 2023 | 9997 | NWA - Noxious Weed Assessment | $2.15 | $2.15 | $0.00 | $1.13 | $0.00 | $5.43 |
| 2023 | 9997 | OSS - On Site Septic | $20.50 | $20.50 | $0.00 | $10.76 | $0.00 | $51.76 |
| 2023 | 9997 | WAT - Clean Water District | $12.00 | $12.00 | $0.00 | $6.30 | $0.00 | $30.30 |
| 2023 | 9997 | TOTAL: | $1861.99 | $1861.93 | $0.00 | $977.53 | $0.00 | $4701.45 |
|
| 2023 | 9997 | $1861.99 | $1861.93 | $0.00 | $977.53 | $0.00 | $4701.45 |
Statement Details |
| 2022 | 10035 | STATE - STATE LEVY (SCHOOL) | $549.65 | $549.65 | $0.00 | $31.60 | $1022.24 | $108.66 |
| 2022 | 10035 | COUNTY - COUNTY LEVIES (CE, DD, VET, MH) | $244.91 | $244.89 | $0.00 | $14.08 | $455.45 | $48.43 |
| 2022 | 10035 | CONSERVE - CONSERVATION FUTURES | $7.35 | $7.34 | $0.00 | $0.42 | $13.66 | $1.45 |
| 2022 | 10035 | COROADS - COUNTY ROADS (ROADS, DIV TO CE) | $199.05 | $199.04 | $0.00 | $11.45 | $370.18 | $39.36 |
| 2022 | 10035 | PORTPT - PORT DISTRICT | $104.84 | $104.84 | $0.00 | $6.03 | $194.98 | $20.73 |
| 2022 | 10035 | PUD1 - PUD #1 | $16.38 | $16.37 | $0.00 | $0.94 | $30.46 | $3.23 |
| 2022 | 10035 | LIB1 - LIBRARY DIST #1 | $77.01 | $77.01 | $0.00 | $4.42 | $143.23 | $15.21 |
| 2022 | 10035 | HD2 - HOSP DIST #2 | $14.30 | $14.29 | $0.00 | $0.82 | $26.60 | $2.81 |
| 2022 | 10035 | SD49 - SCHOOL DIST #49 | $265.99 | $265.98 | $0.00 | $15.28 | $494.68 | $52.57 |
| 2022 | 10035 | FD3 - FIRE DISTRICT #3 | $249.64 | $249.64 | $0.00 | $14.35 | $464.28 | $49.35 |
| 2022 | 10035 | EMS3 - FIRE DIST #3 EMS | $89.22 | $89.21 | $0.00 | $5.13 | $165.92 | $17.64 |
| 2022 | 10035 | JCCD - JC Conservation District | $2.55 | $2.55 | $0.00 | $0.15 | $4.74 | $0.51 |
| 2022 | 10035 | NWA - Noxious Weed Assessment | $2.15 | $2.15 | $0.00 | $0.12 | $4.00 | $0.42 |
| 2022 | 10035 | OSS - On Site Septic | $19.50 | $19.50 | $0.00 | $1.12 | $36.27 | $3.85 |
| 2022 | 10035 | WAT - Clean Water District | $11.50 | $11.50 | $0.00 | $0.66 | $21.39 | $2.27 |
| 2022 | 10035 | FORE1 - FORECLOSURE PHASE 1 | $100.00 | $0.00 | $0.00 | $0.00 | $86.50 | $13.50 |
| 2022 | 10035 | TOTAL: | $1954.04 | $1853.96 | $0.00 | $106.57 | $3534.58 | $379.99 |
|
| 2022 | 10035 | $1954.04 | $1853.96 | $0.00 | $106.57 | $3534.58 | $379.99 |
Values
| (+) Improvement Homesite Value: | + | $0 | |
| (+) Improvement Non-Homesite Value: | + | $415,467 | |
| (+) Land Homesite Value: | + | $0 | |
| (+) Land Non-Homesite Value: | + | $121,000 | |
| (+) Curr Use (HS): | + | $0 | $0 |
| (+) Curr Use (NHS): | + | $0 | $0 |
| | | -------------------------- | |
| (=) Market Value: | = | $536,467 | |
| (–) Productivity Loss: | – | $0 | |
| | | -------------------------- | |
| (=) Subtotal: | = | $536,467 | |
| (+) Senior Appraised Value: | + | $0 | |
| (+) Non-Senior Appraised Value: | + | $536,467 | |
| | | -------------------------- | |
| (=) Total Appraised Value: | = | $536,467 | |
| (–) Senior Exemption Loss: | – | $0 | |
| (–) Exemption Loss: | – | $0 | |
| | | -------------------------- | |
| (=) Taxable Value: | = | $536,467 | |
Taxing Jurisdiction
| Owner: | ELYSIA HAYS | | |
| % Ownership: | 100.0000000000% | | |
| Total Value: | $536,467 | | |
| Tax Area: | 0213 - 1-49F1E1H2L1 |
| CE | COUNTY CURRENT EXPENSE | 0.9034619479 | $536,467 | $536,467 | $484.68 | | |
| CNTYDD | DEVELOPMENTAL DISABILITIES | 0.0052121823 | $536,467 | $536,467 | $2.80 | | |
| CNTYVET | VETERANS RELIEF | 0.0052777810 | $536,467 | $536,467 | $2.83 | | |
| MENTAL | MENTAL HEALTH | 0.0052121823 | $536,467 | $536,467 | $2.80 | | |
| ROADS | COUNTY ROADS | 0.7415066410 | $536,467 | $536,467 | $397.79 | | |
| ROADSCU | COUNTY ROADS TO CUR EXP | 0.0000000000 | $536,467 | $536,467 | $0.00 | | |
| HOSP2CASH | HOSP DIST #2 GENERAL | 0.0536075306 | $536,467 | $536,467 | $28.76 | | |
| SCH49CP | SCHOOL DIST #49 CAP PROJ | 0.6279093905 | $536,467 | $536,467 | $336.85 | | |
| SCH49MO | SCHOOL DIST #49 EP & O | 0.6376483602 | $536,467 | $536,467 | $342.08 | | |
| CONSERVE | CONSERVATION FUTURES | 0.0275621078 | $536,467 | $536,467 | $14.79 | | |
| EMS1 | FIRE DIST #1 EMS | 0.4679948282 | $536,467 | $536,467 | $251.06 | | |
| FD1 | FIRE DIST #1 GENERAL | 1.2171942929 | $536,467 | $536,467 | $652.98 | | |
| LIB1 | LIBRARY DIST #1 GENERAL | 0.2868827388 | $536,467 | $536,467 | $153.90 | | |
| PORTPT | PORT OF PT GENERAL | 0.1134941229 | $536,467 | $536,467 | $60.89 | | |
| PORTPTIDD | PORT OF PT IDD 2019 | 0.2577346692 | $536,467 | $536,467 | $138.27 | | |
| PUD1 | PUD #1 GENERAL | 0.0597888892 | $536,467 | $536,467 | $32.07 | | |
| STATE | STATE SCHOOL PART 1 | 1.4940692947 | $536,467 | $536,467 | $801.52 | | |
| STATE2 | STATE SCHOOL PART 2 | 0.8050170049 | $536,467 | $536,467 | $431.87 | | |
| | Total Tax Rate: | 7.7095739644 | | | | | |
| | | | | Taxes w/Current Exemptions: | $4,135.94 | | |
| | | | | Taxes w/o Exemptions: | $4,135.94 | | |
Improvement / Building
| Improvement #1: | Residential Bldg | State Code: | 11 | 2163.0 sqft | Value: | $415,467 |
| Exterior Wall: | SI/ST | Fireplace: | WD ST-GOOD | | Floor Construction: | FRAME | Foundation: | PO&BL | | Heating/Cooling: | ELBB | Roof Cover: | METAL |
|
| | Type | Description | Class CD | Sub Class CD | Year Built | Area |
| | MA | Main Area | 4+ | 15SF | 1920 | 1379.0 |
| | MA2 | Second Floor Main Area | 4+ | 15SF | 1920 | 784.0 |
| | HWPOR | House Wood Porch | 4 | * | 1920 | 204.0 |
| | HDECK | House Deck | 4 | * | 1920 | 336.0 |
| | GBSMT | Basement Garage | 4 | 15SF | 1920 | 672.0 |
| | CARPT | Carport (Table Not Dep) | 1 | * | 1920 | 210.0 |
| | GARAG | Garage (Table Not Dep) | 3 | * | 1920 | 1080.0 |
| | ASPHD | Asphalt Drive | 4 | * | 1920 | 500.0 |
Sketch
Property Image
Land
| 1 | 3325-1374S | | 0.0000 | 0.00 | 0.00 | 0.00 | 1.00 | $121,000 | $0 |
Roll Value History
| 2026 | N/A | N/A | N/A | N/A | N/A |
| 2025 | $415,467 | $121,000 | $0 | $536,467 | $536,467 |
| 2024 | $415,467 | $121,000 | $0 | $536,467 | $536,467 |
| 2023 | $397,404 | $105,000 | $0 | $502,404 | $502,404 |
| 2022 | $379,340 | $100,000 | $0 | $479,340 | $479,340 |
Deed and Sales History
| 1 | 03/07/2019 | SWD | Statutory Warranty Deed | HAYS FAMILY TRUST | ELYSIA HAYS | | | | 135014 | |
| 2 | 02/27/2019 | SWD | Statutory Warranty Deed | KEITH & CONSTANCE HAYS | HAYS FAMILY TRUST | | | | 131852 | |
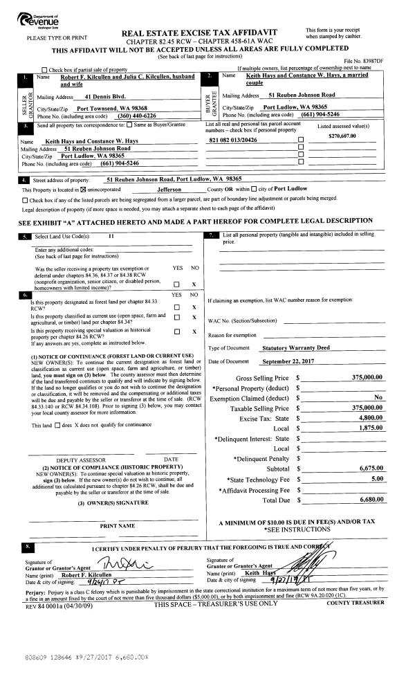
| 3 | 09/22/2017 | SWD | Statutory Warranty Deed | JULIA & ROBERT KILCULLEN | KEITH & CONSTANCE HAYS | | | $375,000.00 | 128646 | |
| 4 | 12/03/2015 | SPWD | Special Warranty Deed | PENNYMAC CORP | JULIA & ROBERT KILCULLEN | | | $272,000.00 | 124639 | |
| 5 | 02/13/2014 | QCD | Quit Claim Deed | CITIBANK N.A. TRSTE FOR CMLTI ASSET TRUST | PENNYMAC CORP | | | | 120793 | |
| 6 | 11/19/2013 | TRED | Trustee Deed | BISHOP, MARSHALL & WEIBEL | CITIBANK N.A. TRSTE FOR CMLTI ASSET TRUST | | | | 120327 | |
| 7 | 07/24/2007 | SWD | Statutory Warranty Deed | FISCHER, GERALDINE M/TODD | ALLEN, BRETT D/APRIL T | | | $270,000.00 | 109745 | 0 |
| 8 | 02/15/2006 | QCD | Quit Claim Deed | FISCHER, GERALDINE M | FISCHER, GERALDINE/TODD | 0 | 0 | $0.00 | 106060 | 0 |
| 9 | 12/09/2004 | SWD | Statutory Warranty Deed | ANDERSON, DAVID W/SANDRA | FISCHER, GERALDINE M | 0 | 0 | $182,500.00 | 102243 | 0 |
| 10 | 12/09/2004 | QCD | Quit Claim Deed | FISCHER, TODD D | FISCHER, GERALDINE M | 0 | 0 | $0.00 | 102244 | 0 |
Payout Agreement
| No payout information available.. |