Property
Account |
| Property ID: | 20482 | Abbreviated Legal Description: | S9 T28 R1E TAX 13 & TL TAX D-1 (SEWAGE TREATMENT PLANT) |
| Parcel # / Geo ID: | 821093003 | Agent Code: | |
| Type: | Real | | |
| Tax Area: | 0213 - 1-49F1E1H2L1 | Land Use Code | 48 |
| Open Space: | N | DFL | N |
| Historic Property: | N | Remodel Property: | N |
| Multi-Family Redevelopment: | N | | |
| Township: | 28N | Section: | 9 |
| Range: | 1E |
Location |
| Address: | 8481 OAK BAY RD PORT LUDLOW, WA 98365 | Mapsco: | 154/003 |
| Neighborhood: | PORT LUDLOW COMMERCIAL AREA EAST | Map ID: | |
| Neighborhood CD: | 3338C |
Owner |
| Name: | OLYMPIC WATER & SEWER INC | Owner ID: | 24027 |
| Mailing Address: | 70 BREAKER LN PORT LUDLOW, WA 98365-9766 | % Ownership: | 100.0000000000% |
| | | Exemptions: | |
Pay Tax Due
Select the appropriate checkbox next to the year to be paid. Multiple years may be selected.
*Convenience Fee not included
Taxes and Assessment Details
Property Tax Information as of
03/11/2026
Click on "Statement Details" to expand or collapse a tax statement.
* Please enter a valid date ** Please enter a valid date *
Statement Details |
| 2026 | 9983 | STATE - STATE LEVY (SCHOOL) | $1216.75 | $1216.75 | $0.00 | $0.00 | $0.00 | $2433.50 |
| 2026 | 9983 | COUNTY - COUNTY LEVIES (CE, DD, VET, MH) | $486.46 | $486.45 | $0.00 | $0.00 | $0.00 | $972.91 |
| 2026 | 9983 | CONSERVE - CONSERVATION FUTURES | $14.59 | $14.58 | $0.00 | $0.00 | $0.00 | $29.17 |
| 2026 | 9983 | COROADS - COUNTY ROADS (ROADS, DIV TO CE) | $392.43 | $392.43 | $0.00 | $0.00 | $0.00 | $784.86 |
| 2026 | 9983 | PORTPT - PORT DISTRICT | $196.47 | $196.46 | $0.00 | $0.00 | $0.00 | $392.93 |
| 2026 | 9983 | PUD1 - PUD #1 | $31.64 | $31.64 | $0.00 | $0.00 | $0.00 | $63.28 |
| 2026 | 9983 | LIB1 - LIBRARY DIST #1 | $151.83 | $151.82 | $0.00 | $0.00 | $0.00 | $303.65 |
| 2026 | 9983 | HD2 - HOSP DIST #2 | $28.37 | $28.37 | $0.00 | $0.00 | $0.00 | $56.74 |
| 2026 | 9983 | SD49 - SCHOOL DIST #49 | $669.78 | $669.77 | $0.00 | $0.00 | $0.00 | $1339.55 |
| 2026 | 9983 | FD1 - FIRE DISTRICT #1 | $644.18 | $644.18 | $0.00 | $0.00 | $0.00 | $1288.36 |
| 2026 | 9983 | EMS1 - FIRE DIST #1 EMS | $247.68 | $247.68 | $0.00 | $0.00 | $0.00 | $495.36 |
| 2026 | 9983 | FP - DNR Forest Fire Protection Assmt | $8.50 | $8.50 | $0.00 | $0.00 | $0.00 | $17.00 |
| 2026 | 9983 | FPLCA - DNR Landowner Contingency Assmt | $3.00 | $3.00 | $0.00 | $0.00 | $0.00 | $6.00 |
| 2026 | 9983 | JCCD - JC Conservation District | $2.57 | $2.57 | $0.00 | $0.00 | $0.00 | $5.14 |
| 2026 | 9983 | LUD - PT Ludlow Drainage District | $470.39 | $470.38 | $0.00 | $0.00 | $0.00 | $940.77 |
| 2026 | 9983 | NWA - Noxious Weed Assessment | $3.20 | $3.20 | $0.00 | $0.00 | $0.00 | $6.40 |
| 2026 | 9983 | Drain - DRAINAGE DISTRICT FEE | $9.41 | $0.00 | $0.00 | $0.00 | $0.00 | $9.41 |
| 2026 | 9983 | FP ADMIN - FP ADMIN | $0.50 | $0.00 | $0.00 | $0.00 | $0.00 | $0.50 |
| 2026 | 9983 | TOTAL: | $4577.75 | $4567.78 | $0.00 | $0.00 | $0.00 | $9145.53 |
|
| 2026 | 9983 | $4577.75 | $4567.78 | $0.00 | $0.00 | $0.00 | $9145.53 |
Statement Details |
| 2025 | 10006 | STATE - STATE LEVY (SCHOOL) | $1269.11 | $1269.11 | $0.00 | $0.00 | $2538.22 | $0.00 |
| 2025 | 10006 | COUNTY - COUNTY LEVIES (CE, DD, VET, MH) | $499.09 | $499.06 | $0.00 | $0.00 | $998.15 | $0.00 |
| 2025 | 10006 | CONSERVE - CONSERVATION FUTURES | $14.97 | $14.96 | $0.00 | $0.00 | $29.93 | $0.00 |
| 2025 | 10006 | COROADS - COUNTY ROADS (ROADS, DIV TO CE) | $399.84 | $399.83 | $0.00 | $0.00 | $799.67 | $0.00 |
| 2025 | 10006 | PORTPT - PORT DISTRICT | $203.66 | $203.64 | $0.00 | $0.00 | $407.30 | $0.00 |
| 2025 | 10006 | PUD1 - PUD #1 | $32.66 | $32.65 | $0.00 | $0.00 | $65.31 | $0.00 |
| 2025 | 10006 | LIB1 - LIBRARY DIST #1 | $154.69 | $154.69 | $0.00 | $0.00 | $309.38 | $0.00 |
| 2025 | 10006 | HD2 - HOSP DIST #2 | $29.12 | $29.11 | $0.00 | $0.00 | $58.23 | $0.00 |
| 2025 | 10006 | SD49 - SCHOOL DIST #49 | $680.17 | $680.16 | $0.00 | $0.00 | $1360.33 | $0.00 |
| 2025 | 10006 | FD1 - FIRE DISTRICT #1 | $658.58 | $658.57 | $0.00 | $0.00 | $1317.15 | $0.00 |
| 2025 | 10006 | EMS1 - FIRE DIST #1 EMS | $253.31 | $253.30 | $0.00 | $0.00 | $506.61 | $0.00 |
| 2025 | 10006 | FP - DNR Forest Fire Protection Assmt | $8.50 | $8.50 | $0.00 | $0.00 | $17.00 | $0.00 |
| 2025 | 10006 | FPLCA - DNR Landowner Contingency Assmt | $3.00 | $3.00 | $0.00 | $0.00 | $6.00 | $0.00 |
| 2025 | 10006 | JCCD - JC Conservation District | $2.57 | $2.57 | $0.00 | $0.00 | $5.14 | $0.00 |
| 2025 | 10006 | LUD - PT Ludlow Drainage District | $377.33 | $377.32 | $0.00 | $0.00 | $754.65 | $0.00 |
| 2025 | 10006 | NWA - Noxious Weed Assessment | $2.30 | $2.30 | $0.00 | $0.00 | $4.60 | $0.00 |
| 2025 | 10006 | Drain - DRAINAGE DISTRICT FEE | $7.55 | $0.00 | $0.00 | $0.00 | $7.55 | $0.00 |
| 2025 | 10006 | FP ADMIN - FP ADMIN | $0.50 | $0.00 | $0.00 | $0.00 | $0.50 | $0.00 |
| 2025 | 10006 | TOTAL: | $4596.95 | $4588.77 | $0.00 | $0.00 | $9185.72 | $0.00 |
|
| 2025 | 10006 | $4596.95 | $4588.77 | $0.00 | $0.00 | $9185.72 | $0.00 |
Statement Details |
| 2024 | 10031 | STATE - STATE LEVY (SCHOOL) | $1224.43 | $1224.43 | $0.00 | $0.00 | $2448.86 | $0.00 |
| 2024 | 10031 | COUNTY - COUNTY LEVIES (CE, DD, VET, MH) | $523.96 | $523.94 | $0.00 | $0.00 | $1047.90 | $0.00 |
| 2024 | 10031 | CONSERVE - CONSERVATION FUTURES | $15.71 | $15.71 | $0.00 | $0.00 | $31.42 | $0.00 |
| 2024 | 10031 | COROADS - COUNTY ROADS (ROADS, DIV TO CE) | $421.60 | $421.60 | $0.00 | $0.00 | $843.20 | $0.00 |
| 2024 | 10031 | PORTPT - PORT DISTRICT | $216.42 | $216.40 | $0.00 | $0.00 | $432.82 | $0.00 |
| 2024 | 10031 | PUD1 - PUD #1 | $34.42 | $34.41 | $0.00 | $0.00 | $68.83 | $0.00 |
| 2024 | 10031 | LIB1 - LIBRARY DIST #1 | $163.12 | $163.11 | $0.00 | $0.00 | $326.23 | $0.00 |
| 2024 | 10031 | HD2 - HOSP DIST #2 | $30.57 | $30.57 | $0.00 | $0.00 | $61.14 | $0.00 |
| 2024 | 10031 | SD49 - SCHOOL DIST #49 | $546.77 | $546.76 | $0.00 | $0.00 | $1093.53 | $0.00 |
| 2024 | 10031 | FD1 - FIRE DISTRICT #1 | $692.78 | $692.78 | $0.00 | $0.00 | $1385.56 | $0.00 |
| 2024 | 10031 | EMS1 - FIRE DIST #1 EMS | $264.62 | $264.61 | $0.00 | $0.00 | $529.23 | $0.00 |
| 2024 | 10031 | JCCD - JC Conservation District | $2.57 | $2.57 | $0.00 | $0.00 | $5.14 | $0.00 |
| 2024 | 10031 | LUD - PT Ludlow Drainage District | $331.51 | $331.50 | $0.00 | $0.00 | $663.01 | $0.00 |
| 2024 | 10031 | NWA - Noxious Weed Assessment | $2.30 | $2.30 | $0.00 | $0.00 | $4.60 | $0.00 |
| 2024 | 10031 | Drain - DRAINAGE DISTRICT FEE | $6.63 | $0.00 | $0.00 | $0.00 | $6.63 | $0.00 |
| 2024 | 10031 | TOTAL: | $4477.41 | $4470.69 | $0.00 | $0.00 | $8948.10 | $0.00 |
|
| 2024 | 10031 | $4477.41 | $4470.69 | $0.00 | $0.00 | $8948.10 | $0.00 |
Statement Details |
| 2023 | 10050 | STATE - STATE LEVY (SCHOOL) | $1245.90 | $1245.89 | $0.00 | $0.00 | $2491.79 | $0.00 |
| 2023 | 10050 | COUNTY - COUNTY LEVIES (CE, DD, VET, MH) | $543.68 | $543.65 | $0.00 | $0.00 | $1087.33 | $0.00 |
| 2023 | 10050 | CONSERVE - CONSERVATION FUTURES | $16.30 | $16.30 | $0.00 | $0.00 | $32.60 | $0.00 |
| 2023 | 10050 | COROADS - COUNTY ROADS (ROADS, DIV TO CE) | $439.87 | $439.87 | $0.00 | $0.00 | $879.74 | $0.00 |
| 2023 | 10050 | PORTPT - PORT DISTRICT | $229.03 | $229.02 | $0.00 | $0.00 | $458.05 | $0.00 |
| 2023 | 10050 | PUD1 - PUD #1 | $36.04 | $36.04 | $0.00 | $0.00 | $72.08 | $0.00 |
| 2023 | 10050 | LIB1 - LIBRARY DIST #1 | $170.18 | $170.18 | $0.00 | $0.00 | $340.36 | $0.00 |
| 2023 | 10050 | HD2 - HOSP DIST #2 | $31.73 | $31.72 | $0.00 | $0.00 | $63.45 | $0.00 |
| 2023 | 10050 | SD49 - SCHOOL DIST #49 | $582.39 | $582.38 | $0.00 | $0.00 | $1164.77 | $0.00 |
| 2023 | 10050 | FD3 - FIRE DISTRICT #3 | $540.88 | $540.87 | $0.00 | $0.00 | $1081.75 | $0.00 |
| 2023 | 10050 | EMS3 - FIRE DIST #3 EMS | $193.37 | $193.36 | $0.00 | $0.00 | $386.73 | $0.00 |
| 2023 | 10050 | JCCD - JC Conservation District | $2.57 | $2.57 | $0.00 | $0.00 | $5.14 | $0.00 |
| 2023 | 10050 | LUD - PT Ludlow Drainage District | $333.99 | $333.98 | $0.00 | $0.00 | $667.97 | $0.00 |
| 2023 | 10050 | NWA - Noxious Weed Assessment | $2.30 | $2.30 | $0.00 | $0.00 | $4.60 | $0.00 |
| 2023 | 10050 | Drain - DRAINAGE DISTRICT FEE | $6.68 | $0.00 | $0.00 | $0.00 | $6.68 | $0.00 |
| 2023 | 10050 | TOTAL: | $4374.91 | $4368.13 | $0.00 | $0.00 | $8743.04 | $0.00 |
|
| 2023 | 10050 | $4374.91 | $4368.13 | $0.00 | $0.00 | $8743.04 | $0.00 |
Values
| (+) Improvement Homesite Value: | + | $0 | |
| (+) Improvement Non-Homesite Value: | + | $0 | |
| (+) Land Homesite Value: | + | $0 | |
| (+) Land Non-Homesite Value: | + | $1,058,463 | |
| (+) Curr Use (HS): | + | $0 | $0 |
| (+) Curr Use (NHS): | + | $0 | $0 |
| | | -------------------------- | |
| (=) Market Value: | = | $1,058,463 | |
| (–) Productivity Loss: | – | $0 | |
| | | -------------------------- | |
| (=) Subtotal: | = | $1,058,463 | |
| (+) Senior Appraised Value: | + | $0 | |
| (+) Non-Senior Appraised Value: | + | $1,058,463 | |
| | | -------------------------- | |
| (=) Total Appraised Value: | = | $1,058,463 | |
| (–) Senior Exemption Loss: | – | $0 | |
| (–) Exemption Loss: | – | $0 | |
| | | -------------------------- | |
| (=) Taxable Value: | = | $1,058,463 | |
Taxing Jurisdiction
| Owner: | OLYMPIC WATER & SEWER INC | | |
| % Ownership: | 100.0000000000% | | |
| Total Value: | $1,058,463 | | |
| Tax Area: | 0213 - 1-49F1E1H2L1 |
| CE | COUNTY CURRENT EXPENSE | 0.9034619479 | $1,058,463 | $1,058,463 | $956.28 | | |
| CNTYDD | DEVELOPMENTAL DISABILITIES | 0.0052121823 | $1,058,463 | $1,058,463 | $5.52 | | |
| CNTYVET | VETERANS RELIEF | 0.0052777810 | $1,058,463 | $1,058,463 | $5.59 | | |
| MENTAL | MENTAL HEALTH | 0.0052121823 | $1,058,463 | $1,058,463 | $5.52 | | |
| ROADS | COUNTY ROADS | 0.7415066410 | $1,058,463 | $1,058,463 | $784.86 | | |
| ROADSCU | COUNTY ROADS TO CUR EXP | 0.0000000000 | $1,058,463 | $1,058,463 | $0.00 | | |
| HOSP2CASH | HOSP DIST #2 GENERAL | 0.0536075306 | $1,058,463 | $1,058,463 | $56.74 | | |
| SCH49CP | SCHOOL DIST #49 CAP PROJ | 0.6279093905 | $1,058,463 | $1,058,463 | $664.62 | | |
| SCH49MO | SCHOOL DIST #49 EP & O | 0.6376483602 | $1,058,463 | $1,058,463 | $674.93 | | |
| CONSERVE | CONSERVATION FUTURES | 0.0275621078 | $1,058,463 | $1,058,463 | $29.17 | | |
| EMS1 | FIRE DIST #1 EMS | 0.4679948282 | $1,058,463 | $1,058,463 | $495.36 | | |
| FD1 | FIRE DIST #1 GENERAL | 1.2171942929 | $1,058,463 | $1,058,463 | $1,288.36 | | |
| LIB1 | LIBRARY DIST #1 GENERAL | 0.2868827388 | $1,058,463 | $1,058,463 | $303.65 | | |
| PORTPT | PORT OF PT GENERAL | 0.1134941229 | $1,058,463 | $1,058,463 | $120.13 | | |
| PORTPTIDD | PORT OF PT IDD 2019 | 0.2577346692 | $1,058,463 | $1,058,463 | $272.80 | | |
| PUD1 | PUD #1 GENERAL | 0.0597888892 | $1,058,463 | $1,058,463 | $63.28 | | |
| STATE | STATE SCHOOL PART 1 | 1.4940692947 | $1,058,463 | $1,058,463 | $1,581.42 | | |
| STATE2 | STATE SCHOOL PART 2 | 0.8050170049 | $1,058,463 | $1,058,463 | $852.08 | | |
| | Total Tax Rate: | 7.7095739644 | | | | | |
| | | | | Taxes w/Current Exemptions: | $8,160.31 | | |
| | | | | Taxes w/o Exemptions: | $8,160.31 | | |
Improvement / Building
| Improvement #1: | Commercial/Industrial/Government Bldg | State Code: | 48 | 960.0 sqft | Value: | $0 |
| Improvement #2: | Commercial/Industrial/Government Bldg | State Code: | 48 | 936.0 sqft | Value: | $0 |
| Improvement #3: | Commercial/Industrial/Government Bldg | State Code: | 48 | 336.0 sqft | Value: | $0 |
| | Type | Description | Class CD | Sub Class CD | Year Built | Area |
| | MA | Main Area | 3 | RB60 | 1988 | 336.0 |
| | CARPT | Carport (Table Not Dep) | 4 | 1S | 1988 | 336.0 |
| Improvement #4: | Commercial/Industrial/Government Bldg | State Code: | 48 | 0.0 sqft | Value: | $0 |
| Improvement #5: | Commercial/Industrial/Government Bldg | State Code: | 48 | 0.0 sqft | Value: | $0 |
| Improvement #6: | Commercial/Industrial/Government Bldg | State Code: | 48 | 0.0 sqft | Value: | $0 |
| Improvement #7: | Commercial/Industrial/Government Bldg | State Code: | 48 | 0.0 sqft | Value: | $0 |
Sketch
| No sketches available for this property. |
Property Image
Land
| 1 | 3338-6325F | | 0.0000 | 0.00 | 0.00 | 0.00 | 0.00 | $1,052,500 | $0 |
| 2 | 9301F | | 0.0000 | 0.00 | 0.00 | 0.00 | 0.00 | $5,963 | $0 |
Roll Value History
| 2026 | N/A | N/A | N/A | N/A | N/A |
| 2025 | $0 | $1,058,463 | $0 | $1,058,463 | $1,058,463 |
| 2024 | $0 | $1,058,463 | $0 | $1,058,463 | $1,058,463 |
| 2023 | $0 | $1,058,463 | $0 | $1,058,463 | $1,058,463 |
| 2022 | $0 | $1,058,463 | $0 | $1,058,463 | $1,058,463 |
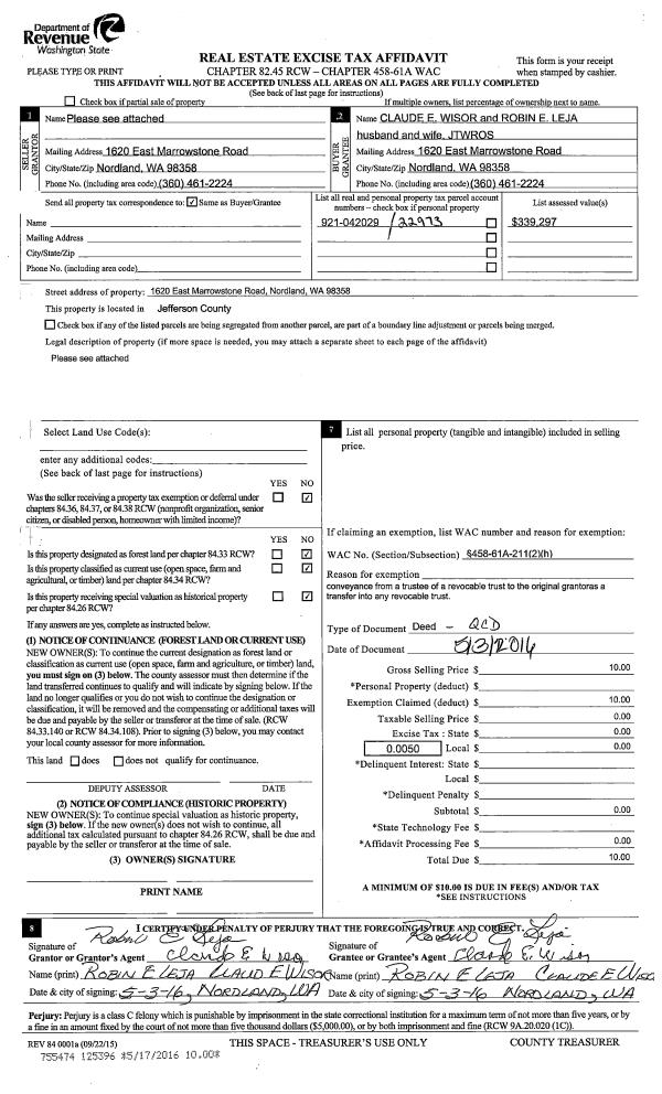
Deed and Sales History
| 1 | 01/17/2000 | QCD | Quit Claim Deed | OLYMPIC RESORTS LLC | OLYMPIC WATER & SEWER INC | 0 | 0 | $0.00 | 88851 | 0 |
| 2 | 10/05/1999 | BLA | Boundary Line Adjustment | POPE RESOURCES | POPE RESOURCES | 0 | 0 | $0.00 | 88745 | 0 |
| 3 | 05/01/1998 | QCD | Quit Claim Deed | POPE RESOURCES | OLYMPIC WATER & SEWER INC | 0 | 0 | $0.00 | 85298 | 0 |
| 4 | 11/22/1995 | BLA | Boundary Line Adjustment | POPE RESOURCES | POPE RESOURCES | 0 | 0 | $0.00 | 78399 | 0 |
Payout Agreement
| No payout information available.. |