Property
Account |
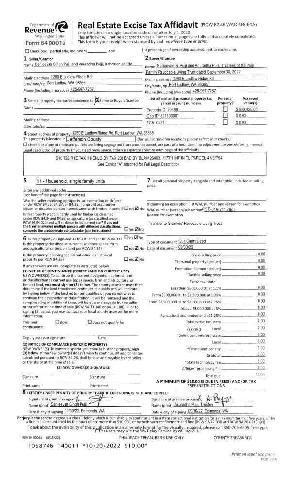
| Property ID: | 20486 | Abbreviated Legal Description: | S10 T28 R1E TAX 11(ENLG BY TAX 23) BND BY BLA#126403, 1/17TH INT IN TL PARCEL 4 V6/P54 |
| Parcel # / Geo ID: | 821103007 | Agent Code: | |
| Type: | Real | | |
| Tax Area: | 0213 - 1-49F1E1H2L1 | Land Use Code | 11 |
| Open Space: | N | DFL | N |
| Historic Property: | N | Remodel Property: | N |
| Multi-Family Redevelopment: | N | | |
| Township: | 28N | Section: | 10 |
| Range: | 1E |
Location |
| Address: | 1260 E LUDLOW RIDGE RD PORT LUDLOW, WA 98365 | Mapsco: | 154/027 |
| Neighborhood: | S10 & S15 T28N R1E | Map ID: | |
| Neighborhood CD: | 3360 |
Owner |
| Name: | PUJJI FAMILY REVOCABLE LIVING TRUST | Owner ID: | 107816 |
| Mailing Address: | SANJEEVAN S PUJJI TRUSTEE ANURADHA PUJJI TRUSTEE 1260 E LUDLOW RIDGE RD PORT LUDLOW, WA 98365-9534 | % Ownership: | 100.0000000000% |
| | | Exemptions: | |
Pay Tax Due
There is currently No Amount Due on this property.
Taxes and Assessment Details
Property Tax Information as of
03/11/2026
Click on "Statement Details" to expand or collapse a tax statement.
* Please enter a valid date ** Please enter a valid date *
Statement Details |
| | TOTAL: | $0.00 | $0.00 | $0.00 | $0.00 | $0.00 | $0.00 |
|
| | $0.00 | $0.00 | $0.00 | $0.00 | $0.00 | $0.00 |
Values
| (+) Improvement Homesite Value: | + | $0 | |
| (+) Improvement Non-Homesite Value: | + | $749,962 | |
| (+) Land Homesite Value: | + | $0 | |
| (+) Land Non-Homesite Value: | + | $451,500 | |
| (+) Curr Use (HS): | + | $0 | $0 |
| (+) Curr Use (NHS): | + | $0 | $0 |
| | | -------------------------- | |
| (=) Market Value: | = | $1,201,462 | |
| (–) Productivity Loss: | – | $0 | |
| | | -------------------------- | |
| (=) Subtotal: | = | $1,201,462 | |
| (+) Senior Appraised Value: | + | $0 | |
| (+) Non-Senior Appraised Value: | + | $1,201,462 | |
| | | -------------------------- | |
| (=) Total Appraised Value: | = | $1,201,462 | |
| (–) Senior Exemption Loss: | – | $0 | |
| (–) Exemption Loss: | – | $0 | |
| | | -------------------------- | |
| (=) Taxable Value: | = | $1,201,462 | |
Taxing Jurisdiction
| Owner: | PUJJI FAMILY REVOCABLE LIVING TRUST | | |
| % Ownership: | 100.0000000000% | | |
| Total Value: | $1,201,462 | | |
| Tax Area: | 0213 - 1-49F1E1H2L1 |
| CE | COUNTY CURRENT EXPENSE | 0.9034619479 | $1,201,462 | $1,201,462 | $1,085.48 | | |
| CNTYDD | DEVELOPMENTAL DISABILITIES | 0.0052121823 | $1,201,462 | $1,201,462 | $6.26 | | |
| CNTYVET | VETERANS RELIEF | 0.0052777810 | $1,201,462 | $1,201,462 | $6.34 | | |
| MENTAL | MENTAL HEALTH | 0.0052121823 | $1,201,462 | $1,201,462 | $6.26 | | |
| ROADS | COUNTY ROADS | 0.7415066410 | $1,201,462 | $1,201,462 | $890.89 | | |
| ROADSCU | COUNTY ROADS TO CUR EXP | 0.0000000000 | $1,201,462 | $1,201,462 | $0.00 | | |
| HOSP2CASH | HOSP DIST #2 GENERAL | 0.0536075306 | $1,201,462 | $1,201,462 | $64.41 | | |
| SCH49CP | SCHOOL DIST #49 CAP PROJ | 0.6279093905 | $1,201,462 | $1,201,462 | $754.41 | | |
| SCH49MO | SCHOOL DIST #49 EP & O | 0.6376483602 | $1,201,462 | $1,201,462 | $766.11 | | |
| CONSERVE | CONSERVATION FUTURES | 0.0275621078 | $1,201,462 | $1,201,462 | $33.11 | | |
| EMS1 | FIRE DIST #1 EMS | 0.4679948282 | $1,201,462 | $1,201,462 | $562.28 | | |
| FD1 | FIRE DIST #1 GENERAL | 1.2171942929 | $1,201,462 | $1,201,462 | $1,462.41 | | |
| LIB1 | LIBRARY DIST #1 GENERAL | 0.2868827388 | $1,201,462 | $1,201,462 | $344.68 | | |
| PORTPT | PORT OF PT GENERAL | 0.1134941229 | $1,201,462 | $1,201,462 | $136.36 | | |
| PORTPTIDD | PORT OF PT IDD 2019 | 0.2577346692 | $1,201,462 | $1,201,462 | $309.66 | | |
| PUD1 | PUD #1 GENERAL | 0.0597888892 | $1,201,462 | $1,201,462 | $71.83 | | |
| STATE | STATE SCHOOL PART 1 | 1.4940692947 | $1,201,462 | $1,201,462 | $1,795.07 | | |
| STATE2 | STATE SCHOOL PART 2 | 0.8050170049 | $1,201,462 | $1,201,462 | $967.20 | | |
| | Total Tax Rate: | 7.7095739644 | | | | | |
| | | | | Taxes w/Current Exemptions: | $9,262.76 | | |
| | | | | Taxes w/o Exemptions: | $9,262.76 | | |
Improvement / Building
| Improvement #1: | Residential Bldg | State Code: | 11 | 2672.0 sqft | Value: | $749,962 |
| Bathrooms (#): | 2 (FULL) | Bathrooms (#): | 1 (HALF) | | Bedrooms (#): | 3 | Exterior Wall: | SI/ST | | Fireplace: | PROPS-GOOD | Fireplace: | SIN 1-AVG | | Floor Construction: | FRAME | Foundation: | CONPR | | Heating/Cooling: | HPUMP | Inside Verify: | YES-FIX | | Roof Cover: | COMP |   |   |
|
| | Type | Description | Class CD | Sub Class CD | Year Built | Area |
| | MA | Main Area | 4+ | 15SF | 1990 | 1825.0 |
| | MA2 | Second Floor Main Area | 4+ | 15SF | 1990 | 847.0 |
| | HWPOR | House Wood Porch | 4 | 15SF | 1990 | 56.0 |
| | HDECK | House Deck | 4 | 15SF | 1990 | 640.0 |
| | GATT | House Attached Garage | 4 | 15SF | 1990 | 726.0 |
| | HLOFT | House Loft | 5 | 15SF | 1990 | 224.0 |
| | BSMTF | House basement finished | 3 | 15SF | 1990 | 126.0 |
| | ASPHD | Asphalt Drive | 3 | 15SF | 1990 | 5000.0 |
| | CONCD | Concrete Drive | 3 | 15SF | 1990 | 400.0 |
| | BSMTU | House basement unfinished | 3 | 15SF | 1990 | 126.0 |
| | GDET | Detached Garage | 3 | 15SF | 1990 | 1860.0 |
| | ADDN-D | Addition (Table Depreciated) | 3 | 15SF | 1990 | 700.0 |
Sketch
Property Image
Land
| 1 | 3360-1435S | High Bank Wtrfrt End of Tala Point | 1.0000 | 43560.00 | 0.00 | 0.00 | 1.00 | $451,500 | $0 |
Roll Value History
| 2026 | N/A | N/A | N/A | N/A | N/A |
| 2025 | $749,962 | $451,500 | $0 | $1,201,462 | $1,201,462 |
| 2024 | $749,962 | $451,500 | $0 | $1,201,462 | $1,201,462 |
| 2023 | $715,873 | $425,000 | $0 | $1,140,873 | $1,140,873 |
| 2022 | $715,873 | $420,000 | $0 | $1,135,873 | $1,135,873 |
Deed and Sales History
| 1 | 09/30/2022 | QCD | Quit Claim Deed | SANJEEVAN S & ANURADHA PUJJI | PUJJI FAMILY REVOCABLE LIVING TRUST | | | | 140011 | |
| 2 | 06/15/2020 | SWD | Statutory Warranty Deed | KENNETH D LYKKEN | SANJEEVAN S & ANURADHA PUJJI | | | $1,070,000.00 | 134501 | |
Payout Agreement
| No payout information available.. |