Property
Account |
| Property ID: | 20492 | Abbreviated Legal Description: | S10 T28 R1E TAX 16 PARCEL 12 V6/P54 1/17TH INT TL |
| Parcel # / Geo ID: | 821103013 | Agent Code: | |
| Type: | Real | | |
| Tax Area: | 0213 - 1-49F1E1H2L1 | Land Use Code | 11 |
| Open Space: | N | DFL | N |
| Historic Property: | N | Remodel Property: | N |
| Multi-Family Redevelopment: | N | | |
| Township: | 28N | Section: | 10 |
| Range: | 1E |
Location |
| Address: | 1291 E LUDLOW RIDGE RD PORT LUDLOW, WA 98365 | Mapsco: | 154/032 |
| Neighborhood: | S10 & S15 T28N R1E | Map ID: | |
| Neighborhood CD: | 3360 |
Owner |
| Name: | YOUNG LIVING TRUST | Owner ID: | 112436 |
| Mailing Address: | DAVID R YOUNG TRUSTEE 1291 E LUDLOW RIDGE RD PORT LUDLOW, WA 98365-9534 | % Ownership: | 100.0000000000% |
| | | Exemptions: | |
Pay Tax Due
Select the appropriate checkbox next to the year to be paid. Multiple years may be selected.
*Convenience Fee not included
Taxes and Assessment Details
Property Tax Information as of
03/11/2026
Click on "Statement Details" to expand or collapse a tax statement.
* Please enter a valid date ** Please enter a valid date *
Statement Details |
| 2026 | 9993 | STATE - STATE LEVY (SCHOOL) | $1790.57 | $1790.57 | $0.00 | $0.00 | $0.00 | $3581.14 |
| 2026 | 9993 | COUNTY - COUNTY LEVIES (CE, DD, VET, MH) | $715.86 | $715.86 | $0.00 | $0.00 | $0.00 | $1431.72 |
| 2026 | 9993 | CONSERVE - CONSERVATION FUTURES | $21.47 | $21.46 | $0.00 | $0.00 | $0.00 | $42.93 |
| 2026 | 9993 | COROADS - COUNTY ROADS (ROADS, DIV TO CE) | $577.50 | $577.50 | $0.00 | $0.00 | $0.00 | $1155.00 |
| 2026 | 9993 | PORTPT - PORT DISTRICT | $289.12 | $289.12 | $0.00 | $0.00 | $0.00 | $578.24 |
| 2026 | 9993 | PUD1 - PUD #1 | $46.57 | $46.56 | $0.00 | $0.00 | $0.00 | $93.13 |
| 2026 | 9993 | LIB1 - LIBRARY DIST #1 | $223.43 | $223.43 | $0.00 | $0.00 | $0.00 | $446.86 |
| 2026 | 9993 | HD2 - HOSP DIST #2 | $41.75 | $41.75 | $0.00 | $0.00 | $0.00 | $83.50 |
| 2026 | 9993 | SD49 - SCHOOL DIST #49 | $985.64 | $985.63 | $0.00 | $0.00 | $0.00 | $1971.27 |
| 2026 | 9993 | FD1 - FIRE DISTRICT #1 | $947.98 | $947.97 | $0.00 | $0.00 | $0.00 | $1895.95 |
| 2026 | 9993 | EMS1 - FIRE DIST #1 EMS | $364.49 | $364.48 | $0.00 | $0.00 | $0.00 | $728.97 |
| 2026 | 9993 | FP - DNR Forest Fire Protection Assmt | $8.50 | $8.50 | $0.00 | $0.00 | $0.00 | $17.00 |
| 2026 | 9993 | FPLCA - DNR Landowner Contingency Assmt | $3.00 | $3.00 | $0.00 | $0.00 | $0.00 | $6.00 |
| 2026 | 9993 | JCCD - JC Conservation District | $2.65 | $2.65 | $0.00 | $0.00 | $0.00 | $5.30 |
| 2026 | 9993 | NWA - Noxious Weed Assessment | $3.43 | $3.42 | $0.00 | $0.00 | $0.00 | $6.85 |
| 2026 | 9993 | OSS - On Site Septic | $23.10 | $23.10 | $0.00 | $0.00 | $0.00 | $46.20 |
| 2026 | 9993 | WAT - Clean Water District | $13.00 | $13.00 | $0.00 | $0.00 | $0.00 | $26.00 |
| 2026 | 9993 | FP ADMIN - FP ADMIN | $0.50 | $0.00 | $0.00 | $0.00 | $0.00 | $0.50 |
| 2026 | 9993 | TOTAL: | $6058.56 | $6058.00 | $0.00 | $0.00 | $0.00 | $12116.56 |
|
| 2026 | 9993 | $6058.56 | $6058.00 | $0.00 | $0.00 | $0.00 | $12116.56 |
Statement Details |
| 2025 | 10016 | STATE - STATE LEVY (SCHOOL) | $1867.63 | $1867.62 | $0.00 | $0.00 | $3735.25 | $0.00 |
| 2025 | 10016 | COUNTY - COUNTY LEVIES (CE, DD, VET, MH) | $734.45 | $734.41 | $0.00 | $0.00 | $1468.86 | $0.00 |
| 2025 | 10016 | CONSERVE - CONSERVATION FUTURES | $22.03 | $22.02 | $0.00 | $0.00 | $44.05 | $0.00 |
| 2025 | 10016 | COROADS - COUNTY ROADS (ROADS, DIV TO CE) | $588.40 | $588.39 | $0.00 | $0.00 | $1176.79 | $0.00 |
| 2025 | 10016 | PORTPT - PORT DISTRICT | $299.70 | $299.68 | $0.00 | $0.00 | $599.38 | $0.00 |
| 2025 | 10016 | PUD1 - PUD #1 | $48.06 | $48.05 | $0.00 | $0.00 | $96.11 | $0.00 |
| 2025 | 10016 | LIB1 - LIBRARY DIST #1 | $227.65 | $227.64 | $0.00 | $0.00 | $455.29 | $0.00 |
| 2025 | 10016 | HD2 - HOSP DIST #2 | $42.85 | $42.85 | $0.00 | $0.00 | $85.70 | $0.00 |
| 2025 | 10016 | SD49 - SCHOOL DIST #49 | $1000.94 | $1000.92 | $0.00 | $0.00 | $2001.86 | $0.00 |
| 2025 | 10016 | FD1 - FIRE DISTRICT #1 | $969.17 | $969.16 | $0.00 | $0.00 | $1938.33 | $0.00 |
| 2025 | 10016 | EMS1 - FIRE DIST #1 EMS | $372.77 | $372.76 | $0.00 | $0.00 | $745.53 | $0.00 |
| 2025 | 10016 | FP - DNR Forest Fire Protection Assmt | $8.50 | $8.50 | $0.00 | $0.00 | $17.00 | $0.00 |
| 2025 | 10016 | FPLCA - DNR Landowner Contingency Assmt | $3.00 | $3.00 | $0.00 | $0.00 | $6.00 | $0.00 |
| 2025 | 10016 | JCCD - JC Conservation District | $2.65 | $2.65 | $0.00 | $0.00 | $5.30 | $0.00 |
| 2025 | 10016 | NWA - Noxious Weed Assessment | $2.45 | $2.45 | $0.00 | $0.00 | $4.90 | $0.00 |
| 2025 | 10016 | OSS - On Site Septic | $21.50 | $21.50 | $0.00 | $0.00 | $43.00 | $0.00 |
| 2025 | 10016 | WAT - Clean Water District | $13.00 | $13.00 | $0.00 | $0.00 | $26.00 | $0.00 |
| 2025 | 10016 | FP ADMIN - FP ADMIN | $0.50 | $0.00 | $0.00 | $0.00 | $0.50 | $0.00 |
| 2025 | 10016 | TOTAL: | $6225.25 | $6224.60 | $0.00 | $0.00 | $12449.85 | $0.00 |
|
| 2025 | 10016 | $6225.25 | $6224.60 | $0.00 | $0.00 | $12449.85 | $0.00 |
Statement Details |
| 2024 | 10041 | STATE - STATE LEVY (SCHOOL) | $1713.17 | $1713.15 | $0.00 | $0.00 | $3426.32 | $0.00 |
| 2024 | 10041 | COUNTY - COUNTY LEVIES (CE, DD, VET, MH) | $733.08 | $733.08 | $0.00 | $0.00 | $1466.16 | $0.00 |
| 2024 | 10041 | CONSERVE - CONSERVATION FUTURES | $21.98 | $21.98 | $0.00 | $0.00 | $43.96 | $0.00 |
| 2024 | 10041 | COROADS - COUNTY ROADS (ROADS, DIV TO CE) | $589.89 | $589.88 | $0.00 | $0.00 | $1179.77 | $0.00 |
| 2024 | 10041 | PORTPT - PORT DISTRICT | $302.80 | $302.78 | $0.00 | $0.00 | $605.58 | $0.00 |
| 2024 | 10041 | PUD1 - PUD #1 | $48.15 | $48.15 | $0.00 | $0.00 | $96.30 | $0.00 |
| 2024 | 10041 | LIB1 - LIBRARY DIST #1 | $228.22 | $228.22 | $0.00 | $0.00 | $456.44 | $0.00 |
| 2024 | 10041 | HD2 - HOSP DIST #2 | $42.78 | $42.77 | $0.00 | $0.00 | $85.55 | $0.00 |
| 2024 | 10041 | SD49 - SCHOOL DIST #49 | $765.02 | $765.00 | $0.00 | $0.00 | $1530.02 | $0.00 |
| 2024 | 10041 | FD1 - FIRE DISTRICT #1 | $969.30 | $969.30 | $0.00 | $0.00 | $1938.60 | $0.00 |
| 2024 | 10041 | EMS1 - FIRE DIST #1 EMS | $370.24 | $370.23 | $0.00 | $0.00 | $740.47 | $0.00 |
| 2024 | 10041 | FP - DNR Forest Fire Protection Assmt | $8.50 | $8.50 | $0.00 | $0.00 | $17.00 | $0.00 |
| 2024 | 10041 | FPLCA - DNR Landowner Contingency Assmt | $3.00 | $3.00 | $0.00 | $0.00 | $6.00 | $0.00 |
| 2024 | 10041 | JCCD - JC Conservation District | $2.65 | $2.65 | $0.00 | $0.00 | $5.30 | $0.00 |
| 2024 | 10041 | NWA - Noxious Weed Assessment | $2.45 | $2.45 | $0.00 | $0.00 | $4.90 | $0.00 |
| 2024 | 10041 | OSS - On Site Septic | $21.00 | $21.00 | $0.00 | $0.00 | $42.00 | $0.00 |
| 2024 | 10041 | WAT - Clean Water District | $12.50 | $12.50 | $0.00 | $0.00 | $25.00 | $0.00 |
| 2024 | 10041 | FP ADMIN - FP ADMIN | $0.50 | $0.00 | $0.00 | $0.00 | $0.50 | $0.00 |
| 2024 | 10041 | TOTAL: | $5835.23 | $5834.64 | $0.00 | $0.00 | $11669.87 | $0.00 |
|
| 2024 | 10041 | $5835.23 | $5834.64 | $0.00 | $0.00 | $11669.87 | $0.00 |
Statement Details |
| 2023 | 10060 | STATE - STATE LEVY (SCHOOL) | $1737.32 | $1737.30 | $0.00 | $0.00 | $3474.62 | $0.00 |
| 2023 | 10060 | COUNTY - COUNTY LEVIES (CE, DD, VET, MH) | $758.12 | $758.10 | $0.00 | $0.00 | $1516.22 | $0.00 |
| 2023 | 10060 | CONSERVE - CONSERVATION FUTURES | $22.74 | $22.73 | $0.00 | $0.00 | $45.47 | $0.00 |
| 2023 | 10060 | COROADS - COUNTY ROADS (ROADS, DIV TO CE) | $613.37 | $613.36 | $0.00 | $0.00 | $1226.73 | $0.00 |
| 2023 | 10060 | PORTPT - PORT DISTRICT | $319.36 | $319.35 | $0.00 | $0.00 | $638.71 | $0.00 |
| 2023 | 10060 | PUD1 - PUD #1 | $50.25 | $50.25 | $0.00 | $0.00 | $100.50 | $0.00 |
| 2023 | 10060 | LIB1 - LIBRARY DIST #1 | $237.31 | $237.30 | $0.00 | $0.00 | $474.61 | $0.00 |
| 2023 | 10060 | HD2 - HOSP DIST #2 | $44.25 | $44.23 | $0.00 | $0.00 | $88.48 | $0.00 |
| 2023 | 10060 | SD49 - SCHOOL DIST #49 | $812.10 | $812.09 | $0.00 | $0.00 | $1624.19 | $0.00 |
| 2023 | 10060 | FD3 - FIRE DISTRICT #3 | $754.21 | $754.21 | $0.00 | $0.00 | $1508.42 | $0.00 |
| 2023 | 10060 | EMS3 - FIRE DIST #3 EMS | $269.63 | $269.63 | $0.00 | $0.00 | $539.26 | $0.00 |
| 2023 | 10060 | FP - DNR Forest Fire Protection Assmt | $8.50 | $8.50 | $0.00 | $0.00 | $17.00 | $0.00 |
| 2023 | 10060 | FPLCA - DNR Landowner Contingency Assmt | $3.00 | $3.00 | $0.00 | $0.00 | $6.00 | $0.00 |
| 2023 | 10060 | JCCD - JC Conservation District | $2.65 | $2.65 | $0.00 | $0.00 | $5.30 | $0.00 |
| 2023 | 10060 | NWA - Noxious Weed Assessment | $2.45 | $2.45 | $0.00 | $0.00 | $4.90 | $0.00 |
| 2023 | 10060 | OSS - On Site Septic | $20.50 | $20.50 | $0.00 | $0.00 | $41.00 | $0.00 |
| 2023 | 10060 | WAT - Clean Water District | $12.00 | $12.00 | $0.00 | $0.00 | $24.00 | $0.00 |
| 2023 | 10060 | FP ADMIN - FP ADMIN | $0.50 | $0.00 | $0.00 | $0.00 | $0.50 | $0.00 |
| 2023 | 10060 | TOTAL: | $5668.26 | $5667.65 | $0.00 | $0.00 | $11335.91 | $0.00 |
|
| 2023 | 10060 | $5668.26 | $5667.65 | $0.00 | $0.00 | $11335.91 | $0.00 |
Values
| (+) Improvement Homesite Value: | + | $0 | |
| (+) Improvement Non-Homesite Value: | + | $1,148,136 | |
| (+) Land Homesite Value: | + | $0 | |
| (+) Land Non-Homesite Value: | + | $409,500 | |
| (+) Curr Use (HS): | + | $0 | $0 |
| (+) Curr Use (NHS): | + | $0 | $0 |
| | | -------------------------- | |
| (=) Market Value: | = | $1,557,636 | |
| (–) Productivity Loss: | – | $0 | |
| | | -------------------------- | |
| (=) Subtotal: | = | $1,557,636 | |
| (+) Senior Appraised Value: | + | $0 | |
| (+) Non-Senior Appraised Value: | + | $1,557,636 | |
| | | -------------------------- | |
| (=) Total Appraised Value: | = | $1,557,636 | |
| (–) Senior Exemption Loss: | – | $0 | |
| (–) Exemption Loss: | – | $0 | |
| | | -------------------------- | |
| (=) Taxable Value: | = | $1,557,636 | |
Taxing Jurisdiction
| Owner: | YOUNG LIVING TRUST | | |
| % Ownership: | 100.0000000000% | | |
| Total Value: | $1,557,636 | | |
| Tax Area: | 0213 - 1-49F1E1H2L1 |
| CE | COUNTY CURRENT EXPENSE | 0.9034619479 | $1,557,636 | $1,557,636 | $1,407.26 | | |
| CNTYDD | DEVELOPMENTAL DISABILITIES | 0.0052121823 | $1,557,636 | $1,557,636 | $8.12 | | |
| CNTYVET | VETERANS RELIEF | 0.0052777810 | $1,557,636 | $1,557,636 | $8.22 | | |
| MENTAL | MENTAL HEALTH | 0.0052121823 | $1,557,636 | $1,557,636 | $8.12 | | |
| ROADS | COUNTY ROADS | 0.7415066410 | $1,557,636 | $1,557,636 | $1,155.00 | | |
| ROADSCU | COUNTY ROADS TO CUR EXP | 0.0000000000 | $1,557,636 | $1,557,636 | $0.00 | | |
| HOSP2CASH | HOSP DIST #2 GENERAL | 0.0536075306 | $1,557,636 | $1,557,636 | $83.50 | | |
| SCH49CP | SCHOOL DIST #49 CAP PROJ | 0.6279093905 | $1,557,636 | $1,557,636 | $978.05 | | |
| SCH49MO | SCHOOL DIST #49 EP & O | 0.6376483602 | $1,557,636 | $1,557,636 | $993.22 | | |
| CONSERVE | CONSERVATION FUTURES | 0.0275621078 | $1,557,636 | $1,557,636 | $42.93 | | |
| EMS1 | FIRE DIST #1 EMS | 0.4679948282 | $1,557,636 | $1,557,636 | $728.97 | | |
| FD1 | FIRE DIST #1 GENERAL | 1.2171942929 | $1,557,636 | $1,557,636 | $1,895.95 | | |
| LIB1 | LIBRARY DIST #1 GENERAL | 0.2868827388 | $1,557,636 | $1,557,636 | $446.86 | | |
| PORTPT | PORT OF PT GENERAL | 0.1134941229 | $1,557,636 | $1,557,636 | $176.78 | | |
| PORTPTIDD | PORT OF PT IDD 2019 | 0.2577346692 | $1,557,636 | $1,557,636 | $401.46 | | |
| PUD1 | PUD #1 GENERAL | 0.0597888892 | $1,557,636 | $1,557,636 | $93.13 | | |
| STATE | STATE SCHOOL PART 1 | 1.4940692947 | $1,557,636 | $1,557,636 | $2,327.22 | | |
| STATE2 | STATE SCHOOL PART 2 | 0.8050170049 | $1,557,636 | $1,557,636 | $1,253.92 | | |
| | Total Tax Rate: | 7.7095739644 | | | | | |
| | | | | Taxes w/Current Exemptions: | $12,008.71 | | |
| | | | | Taxes w/o Exemptions: | $12,008.71 | | |
Improvement / Building
| Improvement #1: | Residential Bldg | State Code: | 11 | 4466.0 sqft | Value: | $1,148,136 |
| Bathrooms (#): | 3 (FULL) | Bedrooms (#): | 3 | | Exterior Wall: | SI/ST | Fireplace: | PROPS-GOOD | | Floor Construction: | FRAME | Foundation: | CONPR | | Heating/Cooling: | HPUMP | Roof Cover: | COMP |
|
| | Type | Description | Class CD | Sub Class CD | Year Built | Area |
| | MA | Main Area | 5+ | 15SF | 2012 | 2971.0 |
| | MA2 | Second Floor Main Area | 5+ | 15SF | 2012 | 1495.0 |
| | HCPOR | House Concrete Porch | 5 | 15SF | 2012 | 77.0 |
| | HDECK | House Deck | 5 | 15SF | 2012 | 854.0 |
| | GATT | House Attached Garage | 5 | 15SF | 2012 | 672.0 |
| | OTHER | Other | 5 | 15SF | 2012 | 0.0 |
Sketch
| No sketches available for this property. |
Property Image
Land
| 1 | 3360-1435S | | 1.0000 | 43560.00 | 0.00 | 0.00 | 1.00 | $409,500 | $0 |
Roll Value History
| 2026 | N/A | N/A | N/A | N/A | N/A |
| 2025 | $1,148,136 | $409,500 | $0 | $1,557,636 | $1,557,636 |
| 2024 | $1,148,136 | $409,500 | $0 | $1,557,636 | $1,557,636 |
| 2023 | $1,095,948 | $385,000 | $0 | $1,480,948 | $1,480,948 |
| 2022 | $1,095,948 | $380,000 | $0 | $1,475,948 | $1,475,948 |
Deed and Sales History
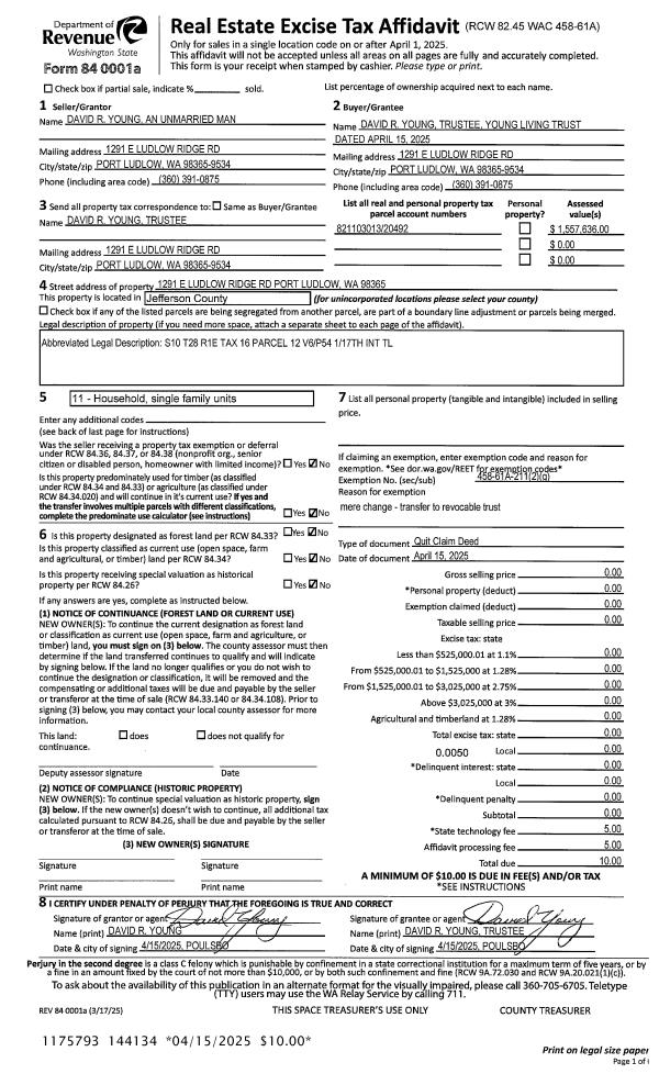
| 1 | 04/15/2025 | QCD | Quit Claim Deed | DAVID R YOUNG | YOUNG LIVING TRUST | | | | 144134 | |
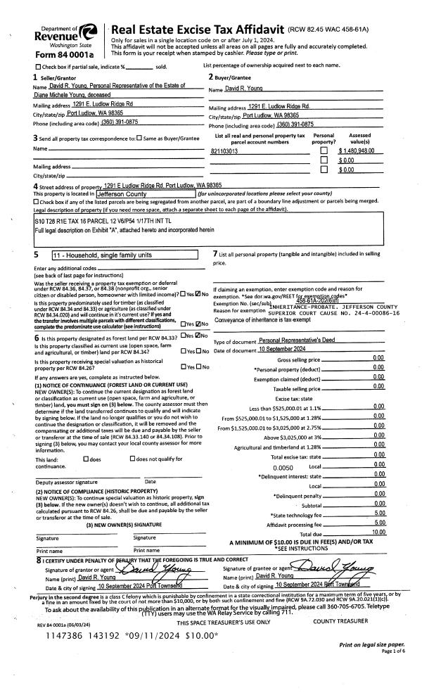
| 2 | 09/10/2024 | PRD | Personal Representatives Deed | DAVID R YOUNG PERSONAL REPRESENTATIVE | DAVID R YOUNG | | | | 143192 | |
| 3 | 04/25/2024 | DTH CERT | Death Certificate | DIANE M YOUNG | | | | | 0 | 666169 |
| 4 | 11/03/2016 | QCD | Quit Claim Deed | | | | | | 126573 | |
| 5 | 06/01/2010 | SWD | Statutory Warranty Deed | SAMUELS, CAROLE/BARRY | YOUNG, DAVID/PARKER, DIANE | | | $362,500.00 | 114478 | 0 |
| 6 | 10/13/1997 | SWD | Statutory Warranty Deed | JONES, JOHN W | SAMUELS, CAROLE PAULETTE/BARRY | 0 | 0 | $250,000.00 | 83081 | 0 |
Payout Agreement
| No payout information available.. |