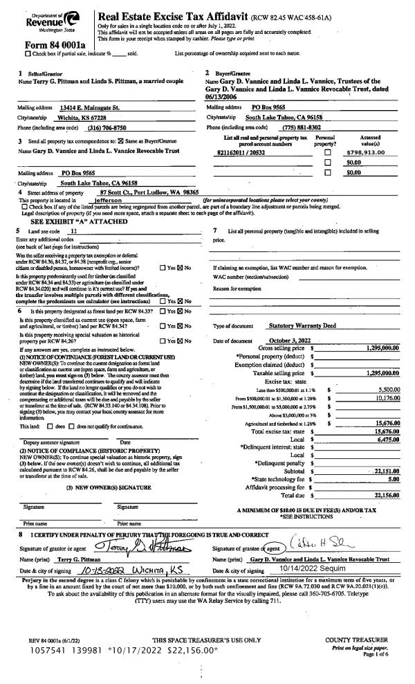
Property
Account |
| Property ID: | 20532 | Abbreviated Legal Description: | OAK BAY SHORT PLAT LT 1 TGTH WITH 1/3 INT IN TL TX G |
| Parcel # / Geo ID: | 821162011 | Agent Code: | |
| Type: | Real | | |
| Tax Area: | 0213 - 1-49F1E1H2L1 | Land Use Code | 11 |
| Open Space: | N | DFL | N |
| Historic Property: | N | Remodel Property: | N |
| Multi-Family Redevelopment: | N | | |
| Township: | 28N | Section: | 16 |
| Range: | 1E |
Location |
| Address: | 87 SCOTT CT PORT LUDLOW, WA 98365 | Mapsco: | 239/020 |
| Neighborhood: | S9& N1/2 16,T28R1E,LUDLOW BAY VILL,+SP | Map ID: | |
| Neighborhood CD: | 3338 |
Owner |
| Name: | GARY & LINDA VANNICE REVOCABLE TRUST | Owner ID: | 107831 |
| Mailing Address: | GARY D VANNICE TRUSTEE LINDA VANNICE TRUSTEE 2745 1ST ST APT 2402 FORT MYERS, FL 33916-1877 | % Ownership: | 100.0000000000% |
| | | Exemptions: | |
Pay Tax Due
Select the appropriate checkbox next to the year to be paid. Multiple years may be selected.
*Convenience Fee not included
Taxes and Assessment Details
Property Tax Information as of
03/10/2026
Click on "Statement Details" to expand or collapse a tax statement.
* Please enter a valid date ** Please enter a valid date *
Statement Details |
| 2026 | 10033 | STATE - STATE LEVY (SCHOOL) | $1356.72 | $1356.70 | $0.00 | $0.00 | $0.00 | $2713.42 |
| 2026 | 10033 | COUNTY - COUNTY LEVIES (CE, DD, VET, MH) | $542.42 | $542.39 | $0.00 | $0.00 | $0.00 | $1084.81 |
| 2026 | 10033 | CONSERVE - CONSERVATION FUTURES | $16.27 | $16.26 | $0.00 | $0.00 | $0.00 | $32.53 |
| 2026 | 10033 | COROADS - COUNTY ROADS (ROADS, DIV TO CE) | $437.57 | $437.57 | $0.00 | $0.00 | $0.00 | $875.14 |
| 2026 | 10033 | PORTPT - PORT DISTRICT | $219.07 | $219.06 | $0.00 | $0.00 | $0.00 | $438.13 |
| 2026 | 10033 | PUD1 - PUD #1 | $35.28 | $35.28 | $0.00 | $0.00 | $0.00 | $70.56 |
| 2026 | 10033 | LIB1 - LIBRARY DIST #1 | $169.29 | $169.29 | $0.00 | $0.00 | $0.00 | $338.58 |
| 2026 | 10033 | HD2 - HOSP DIST #2 | $31.64 | $31.63 | $0.00 | $0.00 | $0.00 | $63.27 |
| 2026 | 10033 | SD49 - SCHOOL DIST #49 | $746.82 | $746.81 | $0.00 | $0.00 | $0.00 | $1493.63 |
| 2026 | 10033 | FD1 - FIRE DISTRICT #1 | $718.28 | $718.27 | $0.00 | $0.00 | $0.00 | $1436.55 |
| 2026 | 10033 | EMS1 - FIRE DIST #1 EMS | $276.17 | $276.17 | $0.00 | $0.00 | $0.00 | $552.34 |
| 2026 | 10033 | JCCD - JC Conservation District | $2.55 | $2.55 | $0.00 | $0.00 | $0.00 | $5.10 |
| 2026 | 10033 | LUD - PT Ludlow Drainage District | $45.51 | $45.50 | $0.00 | $0.00 | $0.00 | $91.01 |
| 2026 | 10033 | NWA - Noxious Weed Assessment | $2.98 | $2.97 | $0.00 | $0.00 | $0.00 | $5.95 |
| 2026 | 10033 | Drain - DRAINAGE DISTRICT FEE | $0.91 | $0.00 | $0.00 | $0.00 | $0.00 | $0.91 |
| 2026 | 10033 | TOTAL: | $4601.48 | $4600.45 | $0.00 | $0.00 | $0.00 | $9201.93 |
|
| 2026 | 10033 | $4601.48 | $4600.45 | $0.00 | $0.00 | $0.00 | $9201.93 |
Statement Details |
| 2025 | 10056 | STATE - STATE LEVY (SCHOOL) | $1336.01 | $1336.01 | $0.00 | $0.00 | $2672.02 | $0.00 |
| 2025 | 10056 | COUNTY - COUNTY LEVIES (CE, DD, VET, MH) | $525.38 | $525.37 | $0.00 | $0.00 | $1050.75 | $0.00 |
| 2025 | 10056 | CONSERVE - CONSERVATION FUTURES | $15.76 | $15.75 | $0.00 | $0.00 | $31.51 | $0.00 |
| 2025 | 10056 | COROADS - COUNTY ROADS (ROADS, DIV TO CE) | $420.92 | $420.90 | $0.00 | $0.00 | $841.82 | $0.00 |
| 2025 | 10056 | PORTPT - PORT DISTRICT | $214.39 | $214.38 | $0.00 | $0.00 | $428.77 | $0.00 |
| 2025 | 10056 | PUD1 - PUD #1 | $34.38 | $34.38 | $0.00 | $0.00 | $68.76 | $0.00 |
| 2025 | 10056 | LIB1 - LIBRARY DIST #1 | $162.85 | $162.84 | $0.00 | $0.00 | $325.69 | $0.00 |
| 2025 | 10056 | HD2 - HOSP DIST #2 | $30.65 | $30.65 | $0.00 | $0.00 | $61.30 | $0.00 |
| 2025 | 10056 | SD49 - SCHOOL DIST #49 | $716.03 | $716.01 | $0.00 | $0.00 | $1432.04 | $0.00 |
| 2025 | 10056 | FD1 - FIRE DISTRICT #1 | $693.30 | $693.29 | $0.00 | $0.00 | $1386.59 | $0.00 |
| 2025 | 10056 | EMS1 - FIRE DIST #1 EMS | $266.66 | $266.66 | $0.00 | $0.00 | $533.32 | $0.00 |
| 2025 | 10056 | JCCD - JC Conservation District | $2.55 | $2.55 | $0.00 | $0.00 | $5.10 | $0.00 |
| 2025 | 10056 | LUD - PT Ludlow Drainage District | $36.48 | $36.47 | $0.00 | $0.00 | $72.95 | $0.00 |
| 2025 | 10056 | NWA - Noxious Weed Assessment | $2.15 | $2.15 | $0.00 | $0.00 | $4.30 | $0.00 |
| 2025 | 10056 | Drain - DRAINAGE DISTRICT FEE | $0.73 | $0.00 | $0.00 | $0.00 | $0.73 | $0.00 |
| 2025 | 10056 | TOTAL: | $4458.24 | $4457.41 | $0.00 | $0.00 | $8915.65 | $0.00 |
|
| 2025 | 10056 | $4458.24 | $4457.41 | $0.00 | $0.00 | $8915.65 | $0.00 |
Statement Details |
| 2024 | 10081 | STATE - STATE LEVY (SCHOOL) | $1283.20 | $1283.18 | $0.00 | $0.00 | $2566.38 | $0.00 |
| 2024 | 10081 | COUNTY - COUNTY LEVIES (CE, DD, VET, MH) | $549.09 | $549.09 | $0.00 | $0.00 | $1098.18 | $0.00 |
| 2024 | 10081 | CONSERVE - CONSERVATION FUTURES | $16.47 | $16.46 | $0.00 | $0.00 | $32.93 | $0.00 |
| 2024 | 10081 | COROADS - COUNTY ROADS (ROADS, DIV TO CE) | $441.84 | $441.82 | $0.00 | $0.00 | $883.66 | $0.00 |
| 2024 | 10081 | PORTPT - PORT DISTRICT | $226.80 | $226.80 | $0.00 | $0.00 | $453.60 | $0.00 |
| 2024 | 10081 | PUD1 - PUD #1 | $36.07 | $36.06 | $0.00 | $0.00 | $72.13 | $0.00 |
| 2024 | 10081 | LIB1 - LIBRARY DIST #1 | $170.94 | $170.94 | $0.00 | $0.00 | $341.88 | $0.00 |
| 2024 | 10081 | HD2 - HOSP DIST #2 | $32.04 | $32.04 | $0.00 | $0.00 | $64.08 | $0.00 |
| 2024 | 10081 | SD49 - SCHOOL DIST #49 | $573.01 | $573.00 | $0.00 | $0.00 | $1146.01 | $0.00 |
| 2024 | 10081 | FD1 - FIRE DISTRICT #1 | $726.03 | $726.02 | $0.00 | $0.00 | $1452.05 | $0.00 |
| 2024 | 10081 | EMS1 - FIRE DIST #1 EMS | $277.32 | $277.31 | $0.00 | $0.00 | $554.63 | $0.00 |
| 2024 | 10081 | JCCD - JC Conservation District | $2.55 | $2.55 | $0.00 | $0.00 | $5.10 | $0.00 |
| 2024 | 10081 | LUD - PT Ludlow Drainage District | $32.01 | $32.01 | $0.00 | $0.00 | $64.02 | $0.00 |
| 2024 | 10081 | NWA - Noxious Weed Assessment | $2.15 | $2.15 | $0.00 | $0.00 | $4.30 | $0.00 |
| 2024 | 10081 | Drain - DRAINAGE DISTRICT FEE | $0.64 | $0.00 | $0.00 | $0.00 | $0.64 | $0.00 |
| 2024 | 10081 | TOTAL: | $4370.16 | $4369.43 | $0.00 | $0.00 | $8739.59 | $0.00 |
|
| 2024 | 10081 | $4370.16 | $4369.43 | $0.00 | $0.00 | $8739.59 | $0.00 |
Statement Details |
| 2023 | 10100 | STATE - STATE LEVY (SCHOOL) | $1258.64 | $1258.63 | $0.00 | $0.00 | $2517.27 | $0.00 |
| 2023 | 10100 | COUNTY - COUNTY LEVIES (CE, DD, VET, MH) | $549.24 | $549.22 | $0.00 | $0.00 | $1098.46 | $0.00 |
| 2023 | 10100 | CONSERVE - CONSERVATION FUTURES | $16.47 | $16.47 | $0.00 | $0.00 | $32.94 | $0.00 |
| 2023 | 10100 | COROADS - COUNTY ROADS (ROADS, DIV TO CE) | $444.37 | $444.36 | $0.00 | $0.00 | $888.73 | $0.00 |
| 2023 | 10100 | PORTPT - PORT DISTRICT | $231.37 | $231.36 | $0.00 | $0.00 | $462.73 | $0.00 |
| 2023 | 10100 | PUD1 - PUD #1 | $36.41 | $36.40 | $0.00 | $0.00 | $72.81 | $0.00 |
| 2023 | 10100 | LIB1 - LIBRARY DIST #1 | $171.92 | $171.92 | $0.00 | $0.00 | $343.84 | $0.00 |
| 2023 | 10100 | HD2 - HOSP DIST #2 | $32.06 | $32.04 | $0.00 | $0.00 | $64.10 | $0.00 |
| 2023 | 10100 | SD49 - SCHOOL DIST #49 | $588.35 | $588.34 | $0.00 | $0.00 | $1176.69 | $0.00 |
| 2023 | 10100 | FD3 - FIRE DISTRICT #3 | $546.41 | $546.40 | $0.00 | $0.00 | $1092.81 | $0.00 |
| 2023 | 10100 | EMS3 - FIRE DIST #3 EMS | $195.34 | $195.34 | $0.00 | $0.00 | $390.68 | $0.00 |
| 2023 | 10100 | JCCD - JC Conservation District | $2.55 | $2.55 | $0.00 | $0.00 | $5.10 | $0.00 |
| 2023 | 10100 | LUD - PT Ludlow Drainage District | $32.18 | $32.18 | $0.00 | $0.00 | $64.36 | $0.00 |
| 2023 | 10100 | NWA - Noxious Weed Assessment | $2.15 | $2.15 | $0.00 | $0.00 | $4.30 | $0.00 |
| 2023 | 10100 | Drain - DRAINAGE DISTRICT FEE | $0.64 | $0.00 | $0.00 | $0.00 | $0.64 | $0.00 |
| 2023 | 10100 | TOTAL: | $4108.10 | $4107.36 | $0.00 | $0.00 | $8215.46 | $0.00 |
|
| 2023 | 10100 | $4108.10 | $4107.36 | $0.00 | $0.00 | $8215.46 | $0.00 |
Values
| (+) Improvement Homesite Value: | + | $839,420 | |
| (+) Improvement Non-Homesite Value: | + | $0 | |
| (+) Land Homesite Value: | + | $340,797 | |
| (+) Land Non-Homesite Value: | + | $0 | |
| (+) Curr Use (HS): | + | $0 | $0 |
| (+) Curr Use (NHS): | + | $0 | $0 |
| | | -------------------------- | |
| (=) Market Value: | = | $1,180,217 | |
| (–) Productivity Loss: | – | $0 | |
| | | -------------------------- | |
| (=) Subtotal: | = | $1,180,217 | |
| (+) Senior Appraised Value: | + | $0 | |
| (+) Non-Senior Appraised Value: | + | $1,180,217 | |
| | | -------------------------- | |
| (=) Total Appraised Value: | = | $1,180,217 | |
| (–) Senior Exemption Loss: | – | $0 | |
| (–) Exemption Loss: | – | $0 | |
| | | -------------------------- | |
| (=) Taxable Value: | = | $1,180,217 | |
Taxing Jurisdiction
| Owner: | GARY & LINDA VANNICE REVOCABLE TRUST | | |
| % Ownership: | 100.0000000000% | | |
| Total Value: | $1,180,217 | | |
| Tax Area: | 0213 - 1-49F1E1H2L1 |
| CE | COUNTY CURRENT EXPENSE | 0.9034619479 | $1,180,217 | $1,180,217 | $1,066.28 | | |
| CNTYDD | DEVELOPMENTAL DISABILITIES | 0.0052121823 | $1,180,217 | $1,180,217 | $6.15 | | |
| CNTYVET | VETERANS RELIEF | 0.0052777810 | $1,180,217 | $1,180,217 | $6.23 | | |
| MENTAL | MENTAL HEALTH | 0.0052121823 | $1,180,217 | $1,180,217 | $6.15 | | |
| ROADS | COUNTY ROADS | 0.7415066410 | $1,180,217 | $1,180,217 | $875.14 | | |
| ROADSCU | COUNTY ROADS TO CUR EXP | 0.0000000000 | $1,180,217 | $1,180,217 | $0.00 | | |
| HOSP2CASH | HOSP DIST #2 GENERAL | 0.0536075306 | $1,180,217 | $1,180,217 | $63.27 | | |
| SCH49CP | SCHOOL DIST #49 CAP PROJ | 0.6279093905 | $1,180,217 | $1,180,217 | $741.07 | | |
| SCH49MO | SCHOOL DIST #49 EP & O | 0.6376483602 | $1,180,217 | $1,180,217 | $752.56 | | |
| CONSERVE | CONSERVATION FUTURES | 0.0275621078 | $1,180,217 | $1,180,217 | $32.53 | | |
| EMS1 | FIRE DIST #1 EMS | 0.4679948282 | $1,180,217 | $1,180,217 | $552.34 | | |
| FD1 | FIRE DIST #1 GENERAL | 1.2171942929 | $1,180,217 | $1,180,217 | $1,436.55 | | |
| LIB1 | LIBRARY DIST #1 GENERAL | 0.2868827388 | $1,180,217 | $1,180,217 | $338.58 | | |
| PORTPT | PORT OF PT GENERAL | 0.1134941229 | $1,180,217 | $1,180,217 | $133.95 | | |
| PORTPTIDD | PORT OF PT IDD 2019 | 0.2577346692 | $1,180,217 | $1,180,217 | $304.18 | | |
| PUD1 | PUD #1 GENERAL | 0.0597888892 | $1,180,217 | $1,180,217 | $70.56 | | |
| STATE | STATE SCHOOL PART 1 | 1.4940692947 | $1,180,217 | $1,180,217 | $1,763.33 | | |
| STATE2 | STATE SCHOOL PART 2 | 0.8050170049 | $1,180,217 | $1,180,217 | $950.09 | | |
| | Total Tax Rate: | 7.7095739644 | | | | | |
| | | | | Taxes w/Current Exemptions: | $9,098.96 | | |
| | | | | Taxes w/o Exemptions: | $9,098.96 | | |
Improvement / Building
| Improvement #1: | Residential Bldg | State Code: | 11 | 1774.0 sqft | Value: | $839,420 |
| Bathrooms (#): | 3 (FULL) | Bathrooms (#): | 1 (HALF) | | Bedrooms (#): | 3 | Exterior Wall: | SI/ST | | Fireplace: | SIN 1-GOOD | Floor Construction: | FRAME | | Foundation: | CONPR | Heating/Cooling: | F/A | | Inside Verify: | YES | Roof Cover: | COMP |
|
| | Type | Description | Class CD | Sub Class CD | Year Built | Area |
| | MA | Main Area | 5 | 1S | 2000 | 1774.0 |
| | HBAL | House Balcony | 5 | 1S | 2000 | 442.0 |
| | HCPOR | House Concrete Porch | 5 | 1S | 2000 | 60.0 |
| | HDECK | House Deck | 5 | 1S | 2000 | 220.0 |
| | GATT | House Attached Garage | 5 | 1S | 2000 | 958.0 |
| | BSMTF | House basement finished | 5 | 1S | 2000 | 1691.0 |
| | CONCD | Concrete Drive | 5 | 1S | 2000 | 500.0 |
Sketch
Property Image
Land
| 1 | 3338-1235L | | 0.0000 | 0.00 | 0.00 | 0.00 | 1.00 | $338,800 | $0 |
| 2 | 9301F | | 0.0000 | 0.00 | 0.00 | 0.00 | 0.00 | $1,997 | $0 |
Roll Value History
| 2026 | N/A | N/A | N/A | N/A | N/A |
| 2025 | $839,420 | $340,797 | $0 | $1,180,217 | $1,180,217 |
| 2024 | $804,445 | $309,815 | $0 | $1,114,260 | $1,114,260 |
| 2023 | $804,445 | $304,815 | $0 | $1,109,260 | $1,109,260 |
| 2022 | $769,469 | $299,815 | $0 | $1,069,284 | $1,069,284 |
Deed and Sales History
| 1 | 10/03/2022 | SWD | Statutory Warranty Deed | TERRY G PITTMAN | GARY & LINDA VANNICE REVOCABLE TRUST | | | $1,295,000.00 | 139981 | |
| 2 | 06/19/2018 | SWD | Statutory Warranty Deed | WILLIAM D WEIR | TERRY G PITTMAN | | | $838,000.00 | 130484 | |
| 3 | 01/12/2004 | SWD | Statutory Warranty Deed | ROUTT, DA & SANDY | WEIR, WILLIAM D | 0 | 0 | $640,000.00 | 99342 | 0 |
| 4 | 08/21/1998 | SWD | Statutory Warranty Deed | POPE RESOURCES | ROUTT, D A/SANDY | 0 | 0 | $120,000.00 | 85154 | 0 |
| 5 | 08/21/1998 | SWD | Statutory Warranty Deed | POPE RESOURCES | ROUTT, D A | 0 | 0 | $0.00 | 88908 | 0 |
Payout Agreement
| No payout information available.. |