Property
Account |
| Property ID: | 20613 | Abbreviated Legal Description: | S18 T28 R1E TAX 17 |
| Parcel # / Geo ID: | 821183005 | Agent Code: | |
| Type: | Real | | |
| Tax Area: | 0213 - 1-49F1E1H2L1 | Land Use Code | 91 |
| Open Space: | N | DFL | N |
| Historic Property: | N | Remodel Property: | N |
| Multi-Family Redevelopment: | N | | |
| Township: | 28N | Section: | 18 |
| Range: | 1E |
Location |
| Address: | | Mapsco: | 157/041 |
| Neighborhood: | S18 & S19 T28N R1E (LESS MPR) | Map ID: | |
| Neighborhood CD: | 3320 |
Owner |
| Name: | TONY J & CANDICE N DUMFORD | Owner ID: | 103539 |
| Mailing Address: | 1812 BEAVER VALLEY RD PORT LUDLOW, WA 98365-9211 | % Ownership: | 100.0000000000% |
| | | Exemptions: | |
Pay Tax Due
Select the appropriate checkbox next to the year to be paid. Multiple years may be selected.
*Convenience Fee not included
Taxes and Assessment Details
Property Tax Information as of
03/11/2026
Click on "Statement Details" to expand or collapse a tax statement.
* Please enter a valid date ** Please enter a valid date *
Statement Details |
| 2026 | 10111 | STATE - STATE LEVY (SCHOOL) | $64.78 | $64.77 | $0.00 | $0.00 | $0.00 | $129.55 |
| 2026 | 10111 | COUNTY - COUNTY LEVIES (CE, DD, VET, MH) | $25.91 | $25.88 | $0.00 | $0.00 | $0.00 | $51.79 |
| 2026 | 10111 | CONSERVE - CONSERVATION FUTURES | $0.78 | $0.77 | $0.00 | $0.00 | $0.00 | $1.55 |
| 2026 | 10111 | COROADS - COUNTY ROADS (ROADS, DIV TO CE) | $20.89 | $20.89 | $0.00 | $0.00 | $0.00 | $41.78 |
| 2026 | 10111 | PORTPT - PORT DISTRICT | $10.46 | $10.46 | $0.00 | $0.00 | $0.00 | $20.92 |
| 2026 | 10111 | PUD1 - PUD #1 | $1.69 | $1.68 | $0.00 | $0.00 | $0.00 | $3.37 |
| 2026 | 10111 | LIB1 - LIBRARY DIST #1 | $8.09 | $8.08 | $0.00 | $0.00 | $0.00 | $16.17 |
| 2026 | 10111 | HD2 - HOSP DIST #2 | $1.51 | $1.51 | $0.00 | $0.00 | $0.00 | $3.02 |
| 2026 | 10111 | SD49 - SCHOOL DIST #49 | $35.66 | $35.65 | $0.00 | $0.00 | $0.00 | $71.31 |
| 2026 | 10111 | FD1 - FIRE DISTRICT #1 | $34.30 | $34.29 | $0.00 | $0.00 | $0.00 | $68.59 |
| 2026 | 10111 | EMS1 - FIRE DIST #1 EMS | $13.19 | $13.18 | $0.00 | $0.00 | $0.00 | $26.37 |
| 2026 | 10111 | FP - DNR Forest Fire Protection Assmt | $8.50 | $8.50 | $0.00 | $0.00 | $0.00 | $17.00 |
| 2026 | 10111 | FPLCA - DNR Landowner Contingency Assmt | $3.00 | $3.00 | $0.00 | $0.00 | $0.00 | $6.00 |
| 2026 | 10111 | JCCD - JC Conservation District | $2.53 | $2.53 | $0.00 | $0.00 | $0.00 | $5.06 |
| 2026 | 10111 | NWA - Noxious Weed Assessment | $2.98 | $2.97 | $0.00 | $0.00 | $0.00 | $5.95 |
| 2026 | 10111 | WAT - Clean Water District | $13.00 | $13.00 | $0.00 | $0.00 | $0.00 | $26.00 |
| 2026 | 10111 | FP ADMIN - FP ADMIN | $0.50 | $0.00 | $0.00 | $0.00 | $0.00 | $0.50 |
| 2026 | 10111 | TOTAL: | $247.77 | $247.16 | $0.00 | $0.00 | $0.00 | $494.93 |
|
| 2026 | 10111 | $247.77 | $247.16 | $0.00 | $0.00 | $0.00 | $494.93 |
Statement Details |
| 2025 | 10134 | STATE - STATE LEVY (SCHOOL) | $34.63 | $34.61 | $0.00 | $0.00 | $69.24 | $0.00 |
| 2025 | 10134 | COUNTY - COUNTY LEVIES (CE, DD, VET, MH) | $13.63 | $13.60 | $0.00 | $0.00 | $27.23 | $0.00 |
| 2025 | 10134 | CONSERVE - CONSERVATION FUTURES | $0.41 | $0.41 | $0.00 | $0.00 | $0.82 | $0.00 |
| 2025 | 10134 | COROADS - COUNTY ROADS (ROADS, DIV TO CE) | $10.91 | $10.91 | $0.00 | $0.00 | $21.82 | $0.00 |
| 2025 | 10134 | PORTPT - PORT DISTRICT | $5.56 | $5.55 | $0.00 | $0.00 | $11.11 | $0.00 |
| 2025 | 10134 | PUD1 - PUD #1 | $0.89 | $0.89 | $0.00 | $0.00 | $1.78 | $0.00 |
| 2025 | 10134 | LIB1 - LIBRARY DIST #1 | $4.22 | $4.22 | $0.00 | $0.00 | $8.44 | $0.00 |
| 2025 | 10134 | HD2 - HOSP DIST #2 | $0.80 | $0.79 | $0.00 | $0.00 | $1.59 | $0.00 |
| 2025 | 10134 | SD49 - SCHOOL DIST #49 | $18.56 | $18.55 | $0.00 | $0.00 | $37.11 | $0.00 |
| 2025 | 10134 | FD1 - FIRE DISTRICT #1 | $17.97 | $17.96 | $0.00 | $0.00 | $35.93 | $0.00 |
| 2025 | 10134 | EMS1 - FIRE DIST #1 EMS | $6.91 | $6.91 | $0.00 | $0.00 | $13.82 | $0.00 |
| 2025 | 10134 | FPLCA - DNR Landowner Contingency Assmt | $3.00 | $3.00 | $0.00 | $0.00 | $6.00 | $0.00 |
| 2025 | 10134 | JCCD - JC Conservation District | $2.53 | $2.53 | $0.00 | $0.00 | $5.06 | $0.00 |
| 2025 | 10134 | NWA - Noxious Weed Assessment | $2.15 | $2.15 | $0.00 | $0.00 | $4.30 | $0.00 |
| 2025 | 10134 | WAT - Clean Water District | $13.00 | $13.00 | $0.00 | $0.00 | $26.00 | $0.00 |
| 2025 | 10134 | TOTAL: | $135.17 | $135.08 | $0.00 | $0.00 | $270.25 | $0.00 |
|
| 2025 | 10134 | $135.17 | $135.08 | $0.00 | $0.00 | $270.25 | $0.00 |
Statement Details |
| 2024 | 10159 | STATE - STATE LEVY (SCHOOL) | $30.37 | $30.36 | $0.00 | $0.00 | $60.73 | $0.00 |
| 2024 | 10159 | COUNTY - COUNTY LEVIES (CE, DD, VET, MH) | $13.02 | $12.98 | $0.00 | $0.00 | $26.00 | $0.00 |
| 2024 | 10159 | CONSERVE - CONSERVATION FUTURES | $0.39 | $0.39 | $0.00 | $0.00 | $0.78 | $0.00 |
| 2024 | 10159 | COROADS - COUNTY ROADS (ROADS, DIV TO CE) | $10.46 | $10.45 | $0.00 | $0.00 | $20.91 | $0.00 |
| 2024 | 10159 | PORTPT - PORT DISTRICT | $5.38 | $5.36 | $0.00 | $0.00 | $10.74 | $0.00 |
| 2024 | 10159 | PUD1 - PUD #1 | $0.86 | $0.85 | $0.00 | $0.00 | $1.71 | $0.00 |
| 2024 | 10159 | LIB1 - LIBRARY DIST #1 | $4.05 | $4.04 | $0.00 | $0.00 | $8.09 | $0.00 |
| 2024 | 10159 | HD2 - HOSP DIST #2 | $0.76 | $0.76 | $0.00 | $0.00 | $1.52 | $0.00 |
| 2024 | 10159 | SD49 - SCHOOL DIST #49 | $13.56 | $13.56 | $0.00 | $0.00 | $27.12 | $0.00 |
| 2024 | 10159 | FD1 - FIRE DISTRICT #1 | $17.18 | $17.18 | $0.00 | $0.00 | $34.36 | $0.00 |
| 2024 | 10159 | EMS1 - FIRE DIST #1 EMS | $6.57 | $6.56 | $0.00 | $0.00 | $13.13 | $0.00 |
| 2024 | 10159 | FPLCA - DNR Landowner Contingency Assmt | $3.00 | $3.00 | $0.00 | $0.00 | $6.00 | $0.00 |
| 2024 | 10159 | JCCD - JC Conservation District | $2.53 | $2.53 | $0.00 | $0.00 | $5.06 | $0.00 |
| 2024 | 10159 | NWA - Noxious Weed Assessment | $2.15 | $2.15 | $0.00 | $0.00 | $4.30 | $0.00 |
| 2024 | 10159 | WAT - Clean Water District | $12.50 | $12.50 | $0.00 | $0.00 | $25.00 | $0.00 |
| 2024 | 10159 | TOTAL: | $122.78 | $122.67 | $0.00 | $0.00 | $245.45 | $0.00 |
|
| 2024 | 10159 | $122.78 | $122.67 | $0.00 | $0.00 | $245.45 | $0.00 |
Statement Details |
| 2023 | 10179 | STATE - STATE LEVY (SCHOOL) | $30.90 | $30.90 | $0.00 | $0.00 | $61.80 | $0.00 |
| 2023 | 10179 | COUNTY - COUNTY LEVIES (CE, DD, VET, MH) | $13.49 | $13.47 | $0.00 | $0.00 | $26.96 | $0.00 |
| 2023 | 10179 | CONSERVE - CONSERVATION FUTURES | $0.41 | $0.40 | $0.00 | $0.00 | $0.81 | $0.00 |
| 2023 | 10179 | COROADS - COUNTY ROADS (ROADS, DIV TO CE) | $10.91 | $10.90 | $0.00 | $0.00 | $21.81 | $0.00 |
| 2023 | 10179 | PORTPT - PORT DISTRICT | $5.69 | $5.67 | $0.00 | $0.00 | $11.36 | $0.00 |
| 2023 | 10179 | PUD1 - PUD #1 | $0.90 | $0.89 | $0.00 | $0.00 | $1.79 | $0.00 |
| 2023 | 10179 | LIB1 - LIBRARY DIST #1 | $4.22 | $4.22 | $0.00 | $0.00 | $8.44 | $0.00 |
| 2023 | 10179 | HD2 - HOSP DIST #2 | $0.79 | $0.78 | $0.00 | $0.00 | $1.57 | $0.00 |
| 2023 | 10179 | SD49 - SCHOOL DIST #49 | $14.45 | $14.43 | $0.00 | $0.00 | $28.88 | $0.00 |
| 2023 | 10179 | FD3 - FIRE DISTRICT #3 | $13.42 | $13.41 | $0.00 | $0.00 | $26.83 | $0.00 |
| 2023 | 10179 | EMS3 - FIRE DIST #3 EMS | $4.80 | $4.79 | $0.00 | $0.00 | $9.59 | $0.00 |
| 2023 | 10179 | FPLCA - DNR Landowner Contingency Assmt | $3.00 | $3.00 | $0.00 | $0.00 | $6.00 | $0.00 |
| 2023 | 10179 | JCCD - JC Conservation District | $2.53 | $2.53 | $0.00 | $0.00 | $5.06 | $0.00 |
| 2023 | 10179 | NWA - Noxious Weed Assessment | $2.15 | $2.15 | $0.00 | $0.00 | $4.30 | $0.00 |
| 2023 | 10179 | WAT - Clean Water District | $12.00 | $12.00 | $0.00 | $0.00 | $24.00 | $0.00 |
| 2023 | 10179 | TOTAL: | $119.66 | $119.54 | $0.00 | $0.00 | $239.20 | $0.00 |
|
| 2023 | 10179 | $119.66 | $119.54 | $0.00 | $0.00 | $239.20 | $0.00 |
Values
| (+) Improvement Homesite Value: | + | $0 | |
| (+) Improvement Non-Homesite Value: | + | $0 | |
| (+) Land Homesite Value: | + | $0 | |
| (+) Land Non-Homesite Value: | + | $56,350 | |
| (+) Curr Use (HS): | + | $0 | $0 |
| (+) Curr Use (NHS): | + | $0 | $0 |
| | | -------------------------- | |
| (=) Market Value: | = | $56,350 | |
| (–) Productivity Loss: | – | $0 | |
| | | -------------------------- | |
| (=) Subtotal: | = | $56,350 | |
| (+) Senior Appraised Value: | + | $0 | |
| (+) Non-Senior Appraised Value: | + | $56,350 | |
| | | -------------------------- | |
| (=) Total Appraised Value: | = | $56,350 | |
| (–) Senior Exemption Loss: | – | $0 | |
| (–) Exemption Loss: | – | $0 | |
| | | -------------------------- | |
| (=) Taxable Value: | = | $56,350 | |
Taxing Jurisdiction
| Owner: | TONY J & CANDICE N DUMFORD | | |
| % Ownership: | 100.0000000000% | | |
| Total Value: | $56,350 | | |
| Tax Area: | 0213 - 1-49F1E1H2L1 |
| CE | COUNTY CURRENT EXPENSE | 0.9034619479 | $56,350 | $56,350 | $50.91 | | |
| CNTYDD | DEVELOPMENTAL DISABILITIES | 0.0052121823 | $56,350 | $56,350 | $0.29 | | |
| CNTYVET | VETERANS RELIEF | 0.0052777810 | $56,350 | $56,350 | $0.30 | | |
| MENTAL | MENTAL HEALTH | 0.0052121823 | $56,350 | $56,350 | $0.29 | | |
| ROADS | COUNTY ROADS | 0.7415066410 | $56,350 | $56,350 | $41.78 | | |
| ROADSCU | COUNTY ROADS TO CUR EXP | 0.0000000000 | $56,350 | $56,350 | $0.00 | | |
| HOSP2CASH | HOSP DIST #2 GENERAL | 0.0536075306 | $56,350 | $56,350 | $3.02 | | |
| SCH49CP | SCHOOL DIST #49 CAP PROJ | 0.6279093905 | $56,350 | $56,350 | $35.38 | | |
| SCH49MO | SCHOOL DIST #49 EP & O | 0.6376483602 | $56,350 | $56,350 | $35.93 | | |
| CONSERVE | CONSERVATION FUTURES | 0.0275621078 | $56,350 | $56,350 | $1.55 | | |
| EMS1 | FIRE DIST #1 EMS | 0.4679948282 | $56,350 | $56,350 | $26.37 | | |
| FD1 | FIRE DIST #1 GENERAL | 1.2171942929 | $56,350 | $56,350 | $68.59 | | |
| LIB1 | LIBRARY DIST #1 GENERAL | 0.2868827388 | $56,350 | $56,350 | $16.17 | | |
| PORTPT | PORT OF PT GENERAL | 0.1134941229 | $56,350 | $56,350 | $6.40 | | |
| PORTPTIDD | PORT OF PT IDD 2019 | 0.2577346692 | $56,350 | $56,350 | $14.52 | | |
| PUD1 | PUD #1 GENERAL | 0.0597888892 | $56,350 | $56,350 | $3.37 | | |
| STATE | STATE SCHOOL PART 1 | 1.4940692947 | $56,350 | $56,350 | $84.19 | | |
| STATE2 | STATE SCHOOL PART 2 | 0.8050170049 | $56,350 | $56,350 | $45.36 | | |
| | Total Tax Rate: | 7.7095739644 | | | | | |
| | | | | Taxes w/Current Exemptions: | $434.42 | | |
| | | | | Taxes w/o Exemptions: | $434.42 | | |
Improvement / Building
Sketch
| No sketches available for this property. |
Property Image
Land
| 1 | 3320-1375S | | 0.0000 | 0.00 | 0.00 | 0.00 | 1.00 | $56,350 | $0 |
Roll Value History
| 2026 | N/A | N/A | N/A | N/A | N/A |
| 2025 | $0 | $56,350 | $0 | $56,350 | $56,350 |
| 2024 | $0 | $28,875 | $0 | $28,875 | $28,875 |
| 2023 | $0 | $26,250 | $0 | $26,250 | $26,250 |
| 2022 | $0 | $26,250 | $0 | $26,250 | $26,250 |
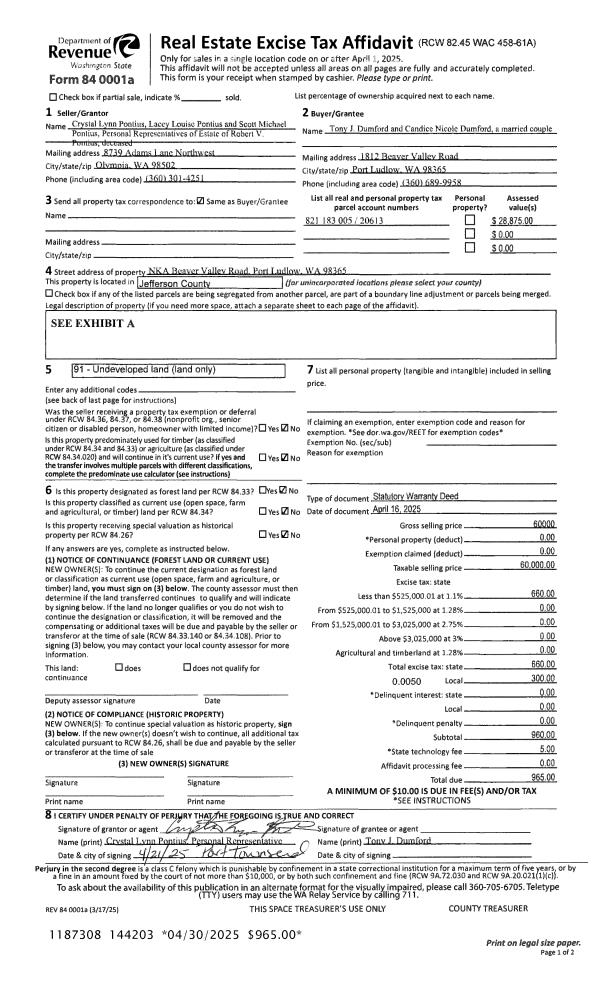
Deed and Sales History
| 1 | 04/16/2025 | SWD | Statutory Warranty Deed | CRYSTAL/SCOTT/LACEY PONTIUS CO-PERSONAL REPS | TONY J & CANDICE N DUMFORD | | | $60,000.00 | 144203 | |
| 2 | 06/05/2006 | PRD | Personal Representatives Deed | PONTIUS, ROBERT V | PONTIUS, ROBERT V | | | $0.00 | 106792 | 0 |
| 3 | 04/19/2006 | PRD | Personal Representatives Deed | PONTIUS ESTATE, RUBY C | PONTIUS, ROBERT V | | | $0.00 | 106452 | 0 |
| 4 | 03/21/2002 | SWD | Statutory Warranty Deed | KINGSTON LUMBER SUPPLY CO | PONTIUS, ROBERT V/RUBY | 0 | 0 | $24,000.00 | 94288 | 0 |
| 5 | 02/25/1994 | SWD | Statutory Warranty Deed | CRAIG, RON N/MARSHA | KINGSTON LUMBER SUPPLY COMPANY | 0 | 0 | $8,000.00 | 73472 | 0 |
Payout Agreement
| No payout information available.. |