Property
Account |
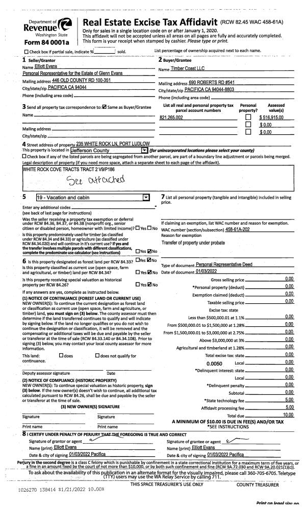
| Property ID: | 20669 | Abbreviated Legal Description: | WHITE ROCK COVE TRACTS TRACT 2 V9/P186 |
| Parcel # / Geo ID: | 821265002 | Agent Code: | |
| Type: | Real | | |
| Tax Area: | 0213 - 1-49F1E1H2L1 | Land Use Code | 11 |
| Open Space: | N | DFL | N |
| Historic Property: | N | Remodel Property: | N |
| Multi-Family Redevelopment: | N | | |
| Township: | 28N | Section: | 26 |
| Range: | 1E |
Location |
| Address: | 235 WHITE ROCK LN PORT LUDLOW, WA 98365 | Mapsco: | 255/012 |
| Neighborhood: | WHITE ROCK COVE TRCTS DIV I, II, III, & IV; S26,25 T28N R1E | Map ID: | |
| Neighborhood CD: | 3370 |
Owner |
| Name: | TIMBER COAST LLC | Owner ID: | 106339 |
| Mailing Address: | 690 ROBERTS RD # 541 PACIFICA, CA 94044-8803 | % Ownership: | 100.0000000000% |
| | | Exemptions: | |
Pay Tax Due
Select the appropriate checkbox next to the year to be paid. Multiple years may be selected.
*Convenience Fee not included
Taxes and Assessment Details
Property Tax Information as of
03/10/2026
Click on "Statement Details" to expand or collapse a tax statement.
* Please enter a valid date ** Please enter a valid date *
Statement Details |
| 2026 | 10165 | STATE - STATE LEVY (SCHOOL) | $783.10 | $783.08 | $0.00 | $0.00 | $0.00 | $1566.18 |
| 2026 | 10165 | COUNTY - COUNTY LEVIES (CE, DD, VET, MH) | $313.09 | $313.07 | $0.00 | $0.00 | $0.00 | $626.16 |
| 2026 | 10165 | CONSERVE - CONSERVATION FUTURES | $9.39 | $9.39 | $0.00 | $0.00 | $0.00 | $18.78 |
| 2026 | 10165 | COROADS - COUNTY ROADS (ROADS, DIV TO CE) | $252.57 | $252.56 | $0.00 | $0.00 | $0.00 | $505.13 |
| 2026 | 10165 | PORTPT - PORT DISTRICT | $126.45 | $126.43 | $0.00 | $0.00 | $0.00 | $252.88 |
| 2026 | 10165 | PUD1 - PUD #1 | $20.37 | $20.36 | $0.00 | $0.00 | $0.00 | $40.73 |
| 2026 | 10165 | LIB1 - LIBRARY DIST #1 | $97.72 | $97.71 | $0.00 | $0.00 | $0.00 | $195.43 |
| 2026 | 10165 | HD2 - HOSP DIST #2 | $18.26 | $18.26 | $0.00 | $0.00 | $0.00 | $36.52 |
| 2026 | 10165 | SD49 - SCHOOL DIST #49 | $431.06 | $431.06 | $0.00 | $0.00 | $0.00 | $862.12 |
| 2026 | 10165 | FD1 - FIRE DISTRICT #1 | $414.59 | $414.59 | $0.00 | $0.00 | $0.00 | $829.18 |
| 2026 | 10165 | EMS1 - FIRE DIST #1 EMS | $159.41 | $159.40 | $0.00 | $0.00 | $0.00 | $318.81 |
| 2026 | 10165 | FPLCA - DNR Landowner Contingency Assmt | $3.00 | $3.00 | $0.00 | $0.00 | $0.00 | $6.00 |
| 2026 | 10165 | JCCD - JC Conservation District | $2.80 | $2.80 | $0.00 | $0.00 | $0.00 | $5.60 |
| 2026 | 10165 | NWA - Noxious Weed Assessment | $4.10 | $4.10 | $0.00 | $0.00 | $0.00 | $8.20 |
| 2026 | 10165 | OSS - On Site Septic | $23.10 | $23.10 | $0.00 | $0.00 | $0.00 | $46.20 |
| 2026 | 10165 | WAT - Clean Water District | $13.00 | $13.00 | $0.00 | $0.00 | $0.00 | $26.00 |
| 2026 | 10165 | TOTAL: | $2672.01 | $2671.91 | $0.00 | $0.00 | $0.00 | $5343.92 |
|
| 2026 | 10165 | $2672.01 | $2671.91 | $0.00 | $0.00 | $0.00 | $5343.92 |
Statement Details |
| 2025 | 10188 | STATE - STATE LEVY (SCHOOL) | $779.97 | $779.96 | $0.00 | $0.00 | $1559.93 | $0.00 |
| 2025 | 10188 | COUNTY - COUNTY LEVIES (CE, DD, VET, MH) | $306.73 | $306.70 | $0.00 | $0.00 | $613.43 | $0.00 |
| 2025 | 10188 | CONSERVE - CONSERVATION FUTURES | $9.20 | $9.19 | $0.00 | $0.00 | $18.39 | $0.00 |
| 2025 | 10188 | COROADS - COUNTY ROADS (ROADS, DIV TO CE) | $245.73 | $245.73 | $0.00 | $0.00 | $491.46 | $0.00 |
| 2025 | 10188 | PORTPT - PORT DISTRICT | $125.16 | $125.15 | $0.00 | $0.00 | $250.31 | $0.00 |
| 2025 | 10188 | PUD1 - PUD #1 | $20.07 | $20.07 | $0.00 | $0.00 | $40.14 | $0.00 |
| 2025 | 10188 | LIB1 - LIBRARY DIST #1 | $95.07 | $95.07 | $0.00 | $0.00 | $190.14 | $0.00 |
| 2025 | 10188 | HD2 - HOSP DIST #2 | $17.90 | $17.89 | $0.00 | $0.00 | $35.79 | $0.00 |
| 2025 | 10188 | SD49 - SCHOOL DIST #49 | $418.02 | $418.01 | $0.00 | $0.00 | $836.03 | $0.00 |
| 2025 | 10188 | FD1 - FIRE DISTRICT #1 | $404.75 | $404.74 | $0.00 | $0.00 | $809.49 | $0.00 |
| 2025 | 10188 | EMS1 - FIRE DIST #1 EMS | $155.68 | $155.67 | $0.00 | $0.00 | $311.35 | $0.00 |
| 2025 | 10188 | FPLCA - DNR Landowner Contingency Assmt | $3.00 | $3.00 | $0.00 | $0.00 | $6.00 | $0.00 |
| 2025 | 10188 | JCCD - JC Conservation District | $2.80 | $2.80 | $0.00 | $0.00 | $5.60 | $0.00 |
| 2025 | 10188 | NWA - Noxious Weed Assessment | $2.90 | $2.90 | $0.00 | $0.00 | $5.80 | $0.00 |
| 2025 | 10188 | OSS - On Site Septic | $21.50 | $21.50 | $0.00 | $0.00 | $43.00 | $0.00 |
| 2025 | 10188 | WAT - Clean Water District | $13.00 | $13.00 | $0.00 | $0.00 | $26.00 | $0.00 |
| 2025 | 10188 | TOTAL: | $2621.48 | $2621.38 | $0.00 | $0.00 | $5242.86 | $0.00 |
|
| 2025 | 10188 | $2621.48 | $2621.38 | $0.00 | $0.00 | $5242.86 | $0.00 |
Statement Details |
| 2024 | 10213 | STATE - STATE LEVY (SCHOOL) | $746.44 | $746.43 | $0.00 | $0.00 | $1492.87 | $0.00 |
| 2024 | 10213 | COUNTY - COUNTY LEVIES (CE, DD, VET, MH) | $319.43 | $319.39 | $0.00 | $0.00 | $638.82 | $0.00 |
| 2024 | 10213 | CONSERVE - CONSERVATION FUTURES | $9.58 | $9.58 | $0.00 | $0.00 | $19.16 | $0.00 |
| 2024 | 10213 | COROADS - COUNTY ROADS (ROADS, DIV TO CE) | $257.02 | $257.01 | $0.00 | $0.00 | $514.03 | $0.00 |
| 2024 | 10213 | PORTPT - PORT DISTRICT | $131.93 | $131.93 | $0.00 | $0.00 | $263.86 | $0.00 |
| 2024 | 10213 | PUD1 - PUD #1 | $20.98 | $20.98 | $0.00 | $0.00 | $41.96 | $0.00 |
| 2024 | 10213 | LIB1 - LIBRARY DIST #1 | $99.44 | $99.43 | $0.00 | $0.00 | $198.87 | $0.00 |
| 2024 | 10213 | HD2 - HOSP DIST #2 | $18.64 | $18.63 | $0.00 | $0.00 | $37.27 | $0.00 |
| 2024 | 10213 | SD49 - SCHOOL DIST #49 | $333.33 | $333.31 | $0.00 | $0.00 | $666.64 | $0.00 |
| 2024 | 10213 | FD1 - FIRE DISTRICT #1 | $422.33 | $422.33 | $0.00 | $0.00 | $844.66 | $0.00 |
| 2024 | 10213 | EMS1 - FIRE DIST #1 EMS | $161.32 | $161.31 | $0.00 | $0.00 | $322.63 | $0.00 |
| 2024 | 10213 | FPLCA - DNR Landowner Contingency Assmt | $3.00 | $3.00 | $0.00 | $0.00 | $6.00 | $0.00 |
| 2024 | 10213 | JCCD - JC Conservation District | $2.80 | $2.80 | $0.00 | $0.00 | $5.60 | $0.00 |
| 2024 | 10213 | NWA - Noxious Weed Assessment | $2.90 | $2.90 | $0.00 | $0.00 | $5.80 | $0.00 |
| 2024 | 10213 | OSS - On Site Septic | $21.00 | $21.00 | $0.00 | $0.00 | $42.00 | $0.00 |
| 2024 | 10213 | WAT - Clean Water District | $12.50 | $12.50 | $0.00 | $0.00 | $25.00 | $0.00 |
| 2024 | 10213 | TOTAL: | $2562.64 | $2562.53 | $0.00 | $0.00 | $5125.17 | $0.00 |
|
| 2024 | 10213 | $2562.64 | $2562.53 | $0.00 | $0.00 | $5125.17 | $0.00 |
Statement Details |
| 2023 | 10233 | STATE - STATE LEVY (SCHOOL) | $737.37 | $737.36 | $0.00 | $0.00 | $1474.73 | $0.00 |
| 2023 | 10233 | COUNTY - COUNTY LEVIES (CE, DD, VET, MH) | $321.77 | $321.75 | $0.00 | $0.00 | $643.52 | $0.00 |
| 2023 | 10233 | CONSERVE - CONSERVATION FUTURES | $9.65 | $9.65 | $0.00 | $0.00 | $19.30 | $0.00 |
| 2023 | 10233 | COROADS - COUNTY ROADS (ROADS, DIV TO CE) | $260.33 | $260.33 | $0.00 | $0.00 | $520.66 | $0.00 |
| 2023 | 10233 | PORTPT - PORT DISTRICT | $135.55 | $135.54 | $0.00 | $0.00 | $271.09 | $0.00 |
| 2023 | 10233 | PUD1 - PUD #1 | $21.33 | $21.33 | $0.00 | $0.00 | $42.66 | $0.00 |
| 2023 | 10233 | LIB1 - LIBRARY DIST #1 | $100.72 | $100.72 | $0.00 | $0.00 | $201.44 | $0.00 |
| 2023 | 10233 | HD2 - HOSP DIST #2 | $18.78 | $18.77 | $0.00 | $0.00 | $37.55 | $0.00 |
| 2023 | 10233 | SD49 - SCHOOL DIST #49 | $344.68 | $344.67 | $0.00 | $0.00 | $689.35 | $0.00 |
| 2023 | 10233 | FD3 - FIRE DISTRICT #3 | $320.11 | $320.11 | $0.00 | $0.00 | $640.22 | $0.00 |
| 2023 | 10233 | EMS3 - FIRE DIST #3 EMS | $114.44 | $114.44 | $0.00 | $0.00 | $228.88 | $0.00 |
| 2023 | 10233 | FPLCA - DNR Landowner Contingency Assmt | $3.00 | $3.00 | $0.00 | $0.00 | $6.00 | $0.00 |
| 2023 | 10233 | JCCD - JC Conservation District | $2.80 | $2.80 | $0.00 | $0.00 | $5.60 | $0.00 |
| 2023 | 10233 | NWA - Noxious Weed Assessment | $2.90 | $2.90 | $0.00 | $0.00 | $5.80 | $0.00 |
| 2023 | 10233 | OSS - On Site Septic | $20.50 | $20.50 | $0.00 | $0.00 | $41.00 | $0.00 |
| 2023 | 10233 | WAT - Clean Water District | $12.00 | $12.00 | $0.00 | $0.00 | $24.00 | $0.00 |
| 2023 | 10233 | TOTAL: | $2425.93 | $2425.87 | $0.00 | $0.00 | $4851.80 | $0.00 |
|
| 2023 | 10233 | $2425.93 | $2425.87 | $0.00 | $0.00 | $4851.80 | $0.00 |
Values
| (+) Improvement Homesite Value: | + | $0 | |
| (+) Improvement Non-Homesite Value: | + | $127,559 | |
| (+) Land Homesite Value: | + | $0 | |
| (+) Land Non-Homesite Value: | + | $553,661 | |
| (+) Curr Use (HS): | + | $0 | $0 |
| (+) Curr Use (NHS): | + | $0 | $0 |
| | | -------------------------- | |
| (=) Market Value: | = | $681,220 | |
| (–) Productivity Loss: | – | $0 | |
| | | -------------------------- | |
| (=) Subtotal: | = | $681,220 | |
| (+) Senior Appraised Value: | + | $0 | |
| (+) Non-Senior Appraised Value: | + | $681,220 | |
| | | -------------------------- | |
| (=) Total Appraised Value: | = | $681,220 | |
| (–) Senior Exemption Loss: | – | $0 | |
| (–) Exemption Loss: | – | $0 | |
| | | -------------------------- | |
| (=) Taxable Value: | = | $681,220 | |
Taxing Jurisdiction
| Owner: | TIMBER COAST LLC | | |
| % Ownership: | 100.0000000000% | | |
| Total Value: | $681,220 | | |
| Tax Area: | 0213 - 1-49F1E1H2L1 |
| CE | COUNTY CURRENT EXPENSE | 0.9034619479 | $681,220 | $681,220 | $615.46 | | |
| CNTYDD | DEVELOPMENTAL DISABILITIES | 0.0052121823 | $681,220 | $681,220 | $3.55 | | |
| CNTYVET | VETERANS RELIEF | 0.0052777810 | $681,220 | $681,220 | $3.60 | | |
| MENTAL | MENTAL HEALTH | 0.0052121823 | $681,220 | $681,220 | $3.55 | | |
| ROADS | COUNTY ROADS | 0.7415066410 | $681,220 | $681,220 | $505.13 | | |
| ROADSCU | COUNTY ROADS TO CUR EXP | 0.0000000000 | $681,220 | $681,220 | $0.00 | | |
| HOSP2CASH | HOSP DIST #2 GENERAL | 0.0536075306 | $681,220 | $681,220 | $36.52 | | |
| SCH49CP | SCHOOL DIST #49 CAP PROJ | 0.6279093905 | $681,220 | $681,220 | $427.74 | | |
| SCH49MO | SCHOOL DIST #49 EP & O | 0.6376483602 | $681,220 | $681,220 | $434.38 | | |
| CONSERVE | CONSERVATION FUTURES | 0.0275621078 | $681,220 | $681,220 | $18.78 | | |
| EMS1 | FIRE DIST #1 EMS | 0.4679948282 | $681,220 | $681,220 | $318.81 | | |
| FD1 | FIRE DIST #1 GENERAL | 1.2171942929 | $681,220 | $681,220 | $829.18 | | |
| LIB1 | LIBRARY DIST #1 GENERAL | 0.2868827388 | $681,220 | $681,220 | $195.43 | | |
| PORTPT | PORT OF PT GENERAL | 0.1134941229 | $681,220 | $681,220 | $77.31 | | |
| PORTPTIDD | PORT OF PT IDD 2019 | 0.2577346692 | $681,220 | $681,220 | $175.57 | | |
| PUD1 | PUD #1 GENERAL | 0.0597888892 | $681,220 | $681,220 | $40.73 | | |
| STATE | STATE SCHOOL PART 1 | 1.4940692947 | $681,220 | $681,220 | $1,017.79 | | |
| STATE2 | STATE SCHOOL PART 2 | 0.8050170049 | $681,220 | $681,220 | $548.39 | | |
| | Total Tax Rate: | 7.7095739644 | | | | | |
| | | | | Taxes w/Current Exemptions: | $5,251.92 | | |
| | | | | Taxes w/o Exemptions: | $5,251.92 | | |
Improvement / Building
| Improvement #1: | Residential Bldg | State Code: | 11 | 1075.0 sqft | Value: | $127,559 |
| Bathrooms (#): | 1 (FULL) | Bedrooms (#): | 1 | | Exterior Wall: | PL/T1 | Floor Construction: | FRAME | | Foundation: | CONPR | Heating/Cooling: | ELBB | | Inside Verify: | NO | Roof Cover: | COMP |
|
| | Type | Description | Class CD | Sub Class CD | Year Built | Area |
| | MA | Main Area | 3- | 15SF | 1994 | 552.0 |
| | MA2 | Second Floor Main Area | 3- | 15SF | 1994 | 523.0 |
| | HCPOR | House Concrete Porch | 3 | * | 1994 | 42.0 |
| | HDECK | House Deck | 3 | * | 1994 | 78.0 |
| | HENCL | House Enclosure | 3 | * | 1994 | 126.0 |
Sketch
Property Image
Land
| 1 | 3370-1525F | | 0.0000 | 0.00 | 0.00 | 0.00 | 0.00 | $349,800 | $0 |
| 2 | 3370-1525F | | 0.0000 | 0.00 | 0.00 | 0.00 | 0.00 | $203,861 | $0 |
Roll Value History
| 2026 | N/A | N/A | N/A | N/A | N/A |
| 2025 | $127,559 | $553,661 | $0 | $681,220 | $681,220 |
| 2024 | $122,013 | $528,494 | $0 | $650,507 | $650,507 |
| 2023 | $122,013 | $523,244 | $0 | $645,257 | $645,257 |
| 2022 | $133,105 | $493,328 | $0 | $626,433 | $626,433 |
Deed and Sales History
| 1 | 01/03/2022 | PRD | Personal Representatives Deed | GLENN A EVANS | TIMBER COAST LLC | | | | 138414 | |
| 2 | 10/08/2018 | QCD | Quit Claim Deed | GLENN EVANS | GLENN A EVANS | | | | 131881 | |
Payout Agreement
| No payout information available.. |