Property
Account |
| Property ID: | 20672 | Abbreviated Legal Description: | WHITE ROCK COVE TRACTS TRACT 5 V9/P186 |
| Parcel # / Geo ID: | 821265005 | Agent Code: | |
| Type: | Real | | |
| Tax Area: | 0213 - 1-49F1E1H2L1 | Land Use Code | 11 |
| Open Space: | N | DFL | N |
| Historic Property: | N | Remodel Property: | N |
| Multi-Family Redevelopment: | N | | |
| Township: | 28N | Section: | 26 |
| Range: | 1E |
Location |
| Address: | 83 WHITE ROCK LN PORT LUDLOW, WA 98365 | Mapsco: | 255/015 |
| Neighborhood: | WHITE ROCK COVE TRCTS DIV I, II, III, & IV; S26,25 T28N R1E | Map ID: | |
| Neighborhood CD: | 3370 |
Owner |
| Name: | MARK & CHERYL VRIELING | Owner ID: | 106709 |
| Mailing Address: | 83 WHITE ROCK LN PORT LUDLOW, WA 98365 | % Ownership: | 100.0000000000% |
| | | Exemptions: | |
Pay Tax Due
There is currently No Amount Due on this property.
Taxes and Assessment Details
Property Tax Information as of
03/11/2026
Click on "Statement Details" to expand or collapse a tax statement.
* Please enter a valid date ** Please enter a valid date *
Statement Details |
| | TOTAL: | $0.00 | $0.00 | $0.00 | $0.00 | $0.00 | $0.00 |
|
| | $0.00 | $0.00 | $0.00 | $0.00 | $0.00 | $0.00 |
Values
| (+) Improvement Homesite Value: | + | $0 | |
| (+) Improvement Non-Homesite Value: | + | $967,134 | |
| (+) Land Homesite Value: | + | $468,600 | |
| (+) Land Non-Homesite Value: | + | $418,959 | |
| (+) Curr Use (HS): | + | $0 | $0 |
| (+) Curr Use (NHS): | + | $0 | $0 |
| | | -------------------------- | |
| (=) Market Value: | = | $1,854,693 | |
| (–) Productivity Loss: | – | $0 | |
| | | -------------------------- | |
| (=) Subtotal: | = | $1,854,693 | |
| (+) Senior Appraised Value: | + | $0 | |
| (+) Non-Senior Appraised Value: | + | $1,854,693 | |
| | | -------------------------- | |
| (=) Total Appraised Value: | = | $1,854,693 | |
| (–) Senior Exemption Loss: | – | $0 | |
| (–) Exemption Loss: | – | $0 | |
| | | -------------------------- | |
| (=) Taxable Value: | = | $1,854,693 | |
Taxing Jurisdiction
| Owner: | MARK & CHERYL VRIELING | | |
| % Ownership: | 100.0000000000% | | |
| Total Value: | $1,854,693 | | |
| Tax Area: | 0213 - 1-49F1E1H2L1 |
| CE | COUNTY CURRENT EXPENSE | 0.9034619479 | $1,854,693 | $1,854,693 | $1,675.64 | | |
| CNTYDD | DEVELOPMENTAL DISABILITIES | 0.0052121823 | $1,854,693 | $1,854,693 | $9.67 | | |
| CNTYVET | VETERANS RELIEF | 0.0052777810 | $1,854,693 | $1,854,693 | $9.79 | | |
| MENTAL | MENTAL HEALTH | 0.0052121823 | $1,854,693 | $1,854,693 | $9.67 | | |
| ROADS | COUNTY ROADS | 0.7415066410 | $1,854,693 | $1,854,693 | $1,375.27 | | |
| ROADSCU | COUNTY ROADS TO CUR EXP | 0.0000000000 | $1,854,693 | $1,854,693 | $0.00 | | |
| HOSP2CASH | HOSP DIST #2 GENERAL | 0.0536075306 | $1,854,693 | $1,854,693 | $99.43 | | |
| SCH49CP | SCHOOL DIST #49 CAP PROJ | 0.6279093905 | $1,854,693 | $1,854,693 | $1,164.58 | | |
| SCH49MO | SCHOOL DIST #49 EP & O | 0.6376483602 | $1,854,693 | $1,854,693 | $1,182.64 | | |
| CONSERVE | CONSERVATION FUTURES | 0.0275621078 | $1,854,693 | $1,854,693 | $51.12 | | |
| EMS1 | FIRE DIST #1 EMS | 0.4679948282 | $1,854,693 | $1,854,693 | $867.99 | | |
| FD1 | FIRE DIST #1 GENERAL | 1.2171942929 | $1,854,693 | $1,854,693 | $2,257.52 | | |
| LIB1 | LIBRARY DIST #1 GENERAL | 0.2868827388 | $1,854,693 | $1,854,693 | $532.08 | | |
| PORTPT | PORT OF PT GENERAL | 0.1134941229 | $1,854,693 | $1,854,693 | $210.50 | | |
| PORTPTIDD | PORT OF PT IDD 2019 | 0.2577346692 | $1,854,693 | $1,854,693 | $478.02 | | |
| PUD1 | PUD #1 GENERAL | 0.0597888892 | $1,854,693 | $1,854,693 | $110.89 | | |
| STATE | STATE SCHOOL PART 1 | 1.4940692947 | $1,854,693 | $1,854,693 | $2,771.04 | | |
| STATE2 | STATE SCHOOL PART 2 | 0.8050170049 | $1,854,693 | $1,854,693 | $1,493.06 | | |
| | Total Tax Rate: | 7.7095739644 | | | | | |
| | | | | Taxes w/Current Exemptions: | $14,298.91 | | |
| | | | | Taxes w/o Exemptions: | $14,298.91 | | |
Improvement / Building
| Improvement #1: | Residential Bldg | State Code: | 11 | 2441.0 sqft | Value: | $863,097 |
| Bathrooms (#): | 3 (FULL) | Bedrooms (#): | 2 | | Exterior Wall: | SI/ST | Floor Construction: | FRAME | | Foundation: | CONPR | Heating/Cooling: | HTWTR | | Inside Verify: | YES | Roof Cover: | TILE |
|
| | Type | Description | Class CD | Sub Class CD | Year Built | Area |
| | MA | Main Area | 6 | 1S | 2002 | 2441.0 |
| | PATIO | House Patio | 5 | * | 2002 | 750.0 |
| | HCPOR | House Concrete Porch | 5 | * | 2002 | 90.0 |
| | GATT | House Attached Garage | 5 | * | 2002 | 965.0 |
| | ASPHD | Asphalt Drive | 5 | * | 2002 | 2000.0 |
| | CONCD | Concrete Drive | 5 | * | 2002 | 520.0 |
| Improvement #2: | Residential Bldg | State Code: | 18 | 0.0 sqft | Value: | $104,037 |
| | Type | Description | Class CD | Sub Class CD | Year Built | Area |
| | GDET | Detached Garage | 5 | * | 2017 | 1724.0 |
| | OTHER | Other | 5 | RB50 | 2017 | 475.0 |
Sketch
Property Image
Land
| 1 | 3370-1375S | Some/No Terr Views 1+/- Acre | 0.0000 | 0.00 | 0.00 | 0.00 | 1.00 | $60,500 | $0 |
| 2 | 3370-1525F | Medium to High Bank Wtrfrt along Hood Canal | 0.0000 | 0.00 | 0.00 | 0.00 | 0.00 | $468,600 | $0 |
| 3 | 3370-1525F | Medium to High Bank Wtrfrt along Hood Canal | 0.0000 | 0.00 | 0.00 | 0.00 | 0.00 | $358,459 | $0 |
Roll Value History
| 2026 | N/A | N/A | N/A | N/A | N/A |
| 2025 | $967,134 | $887,559 | $0 | $1,854,693 | $1,854,693 |
| 2024 | $925,085 | $847,216 | $0 | $1,772,301 | $1,772,301 |
| 2023 | $925,085 | $841,966 | $0 | $1,767,051 | $1,767,051 |
| 2022 | $1,009,183 | $796,872 | $0 | $1,806,055 | $1,806,055 |
Deed and Sales History
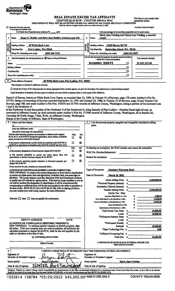
| 1 | 03/16/2022 | SWD | Statutory Warranty Deed | ROGER & BETTY JANE REDIFER | MARK & CHERYL VRIELING | | | $2,100,000.00 | 138784 | |
| 2 | 05/05/2015 | SWD | Statutory Warranty Deed | PATRICK J MONTANINO | ROGER & BETTY JANE REDIFER | | | $927,000.00 | 123155 | |
| 3 | 02/10/2012 | QCD | Quit Claim Deed | MONTANINO, PATRICK ET AL | MONTANINO, PATRICK ET AL | 0 | 0 | $0.00 | 117159 | 0 |
| 4 | 04/15/2008 | TRED | Trustee Deed | MONTANINO, PATRICK/MONIQU | MONTANINO,PATRICK & MONIQUE/TR | | | $0.00 | 111132 | 0 |
| 5 | 10/23/2001 | SWD | Statutory Warranty Deed | BUCKNER, RONALD A | MONTANINO, PATRICK J/MONIQUE | 0 | 0 | $175,000.00 | 93405 | 0 |
| 6 | 08/14/1998 | SWD | Statutory Warranty Deed | MOORE, SO YOUNG | BUCKNER, RONALD A | 0 | 0 | $100,000.00 | 85094 | 0 |
| 7 | 02/28/1996 | QCD | Quit Claim Deed | WOO, TAE HONG/JUNG AE | MOORE, SO YOUNG | 0 | 0 | $0.00 | 79421 | 0 |
Payout Agreement
| No payout information available.. |