Property
Account |
| Property ID: | 20674 | Abbreviated Legal Description: | WHITE ROCK COVE TRACTS TRACT 7 V9/P186 |
| Parcel # / Geo ID: | 821265007 | Agent Code: | |
| Type: | Real | | |
| Tax Area: | 0213 - 1-49F1E1H2L1 | Land Use Code | 11 |
| Open Space: | N | DFL | N |
| Historic Property: | N | Remodel Property: | N |
| Multi-Family Redevelopment: | N | | |
| Township: | 28N | Section: | 26 |
| Range: | 1E |
Location |
| Address: | 15 WHITE ROCK LN PORT LUDLOW, WA 98365 | Mapsco: | 255/017 |
| Neighborhood: | WHITE ROCK COVE TRCTS DIV I, II, III, & IV; S26,25 T28N R1E | Map ID: | |
| Neighborhood CD: | 3370 |
Owner |
| Name: | PETER W & CAROL A SORENSON | Owner ID: | 107047 |
| Mailing Address: | 10426 PRINCE WILLIAM CIR ANCHORAGE, AK 99515-2236 | % Ownership: | 100.0000000000% |
| | | Exemptions: | |
Pay Tax Due
Select the appropriate checkbox next to the year to be paid. Multiple years may be selected.
*Convenience Fee not included
Taxes and Assessment Details
Property Tax Information as of
03/12/2026
Click on "Statement Details" to expand or collapse a tax statement.
* Please enter a valid date ** Please enter a valid date *
Statement Details |
| 2026 | 10170 | STATE - STATE LEVY (SCHOOL) | $2123.00 | $2122.99 | $0.00 | $0.00 | $0.00 | $4245.99 |
| 2026 | 10170 | COUNTY - COUNTY LEVIES (CE, DD, VET, MH) | $848.79 | $848.75 | $0.00 | $0.00 | $0.00 | $1697.54 |
| 2026 | 10170 | CONSERVE - CONSERVATION FUTURES | $25.45 | $25.45 | $0.00 | $0.00 | $0.00 | $50.90 |
| 2026 | 10170 | COROADS - COUNTY ROADS (ROADS, DIV TO CE) | $684.72 | $684.71 | $0.00 | $0.00 | $0.00 | $1369.43 |
| 2026 | 10170 | PORTPT - PORT DISTRICT | $342.80 | $342.79 | $0.00 | $0.00 | $0.00 | $685.59 |
| 2026 | 10170 | PUD1 - PUD #1 | $55.21 | $55.21 | $0.00 | $0.00 | $0.00 | $110.42 |
| 2026 | 10170 | LIB1 - LIBRARY DIST #1 | $264.91 | $264.91 | $0.00 | $0.00 | $0.00 | $529.82 |
| 2026 | 10170 | HD2 - HOSP DIST #2 | $49.50 | $49.50 | $0.00 | $0.00 | $0.00 | $99.00 |
| 2026 | 10170 | SD49 - SCHOOL DIST #49 | $1168.63 | $1168.62 | $0.00 | $0.00 | $0.00 | $2337.25 |
| 2026 | 10170 | FD1 - FIRE DISTRICT #1 | $1123.97 | $1123.96 | $0.00 | $0.00 | $0.00 | $2247.93 |
| 2026 | 10170 | EMS1 - FIRE DIST #1 EMS | $432.15 | $432.15 | $0.00 | $0.00 | $0.00 | $864.30 |
| 2026 | 10170 | FP - DNR Forest Fire Protection Assmt | $8.50 | $8.50 | $0.00 | $0.00 | $0.00 | $17.00 |
| 2026 | 10170 | FPLCA - DNR Landowner Contingency Assmt | $3.00 | $3.00 | $0.00 | $0.00 | $0.00 | $6.00 |
| 2026 | 10170 | JCCD - JC Conservation District | $2.75 | $2.75 | $0.00 | $0.00 | $0.00 | $5.50 |
| 2026 | 10170 | NWA - Noxious Weed Assessment | $3.88 | $3.87 | $0.00 | $0.00 | $0.00 | $7.75 |
| 2026 | 10170 | OSS - On Site Septic | $23.10 | $23.10 | $0.00 | $0.00 | $0.00 | $46.20 |
| 2026 | 10170 | WAT - Clean Water District | $13.00 | $13.00 | $0.00 | $0.00 | $0.00 | $26.00 |
| 2026 | 10170 | FP ADMIN - FP ADMIN | $0.50 | $0.00 | $0.00 | $0.00 | $0.00 | $0.50 |
| 2026 | 10170 | TOTAL: | $7173.86 | $7173.26 | $0.00 | $0.00 | $0.00 | $14347.12 |
|
| 2026 | 10170 | $7173.86 | $7173.26 | $0.00 | $0.00 | $0.00 | $14347.12 |
Statement Details |
| 2025 | 10193 | STATE - STATE LEVY (SCHOOL) | $2116.21 | $2116.20 | $0.00 | $0.00 | $4232.41 | $0.00 |
| 2025 | 10193 | COUNTY - COUNTY LEVIES (CE, DD, VET, MH) | $832.19 | $832.18 | $0.00 | $0.00 | $1664.37 | $0.00 |
| 2025 | 10193 | CONSERVE - CONSERVATION FUTURES | $24.96 | $24.95 | $0.00 | $0.00 | $49.91 | $0.00 |
| 2025 | 10193 | COROADS - COUNTY ROADS (ROADS, DIV TO CE) | $666.72 | $666.71 | $0.00 | $0.00 | $1333.43 | $0.00 |
| 2025 | 10193 | PORTPT - PORT DISTRICT | $339.59 | $339.57 | $0.00 | $0.00 | $679.16 | $0.00 |
| 2025 | 10193 | PUD1 - PUD #1 | $54.46 | $54.45 | $0.00 | $0.00 | $108.91 | $0.00 |
| 2025 | 10193 | LIB1 - LIBRARY DIST #1 | $257.95 | $257.94 | $0.00 | $0.00 | $515.89 | $0.00 |
| 2025 | 10193 | HD2 - HOSP DIST #2 | $48.55 | $48.55 | $0.00 | $0.00 | $97.10 | $0.00 |
| 2025 | 10193 | SD49 - SCHOOL DIST #49 | $1134.16 | $1134.15 | $0.00 | $0.00 | $2268.31 | $0.00 |
| 2025 | 10193 | FD1 - FIRE DISTRICT #1 | $1098.16 | $1098.16 | $0.00 | $0.00 | $2196.32 | $0.00 |
| 2025 | 10193 | EMS1 - FIRE DIST #1 EMS | $422.38 | $422.38 | $0.00 | $0.00 | $844.76 | $0.00 |
| 2025 | 10193 | FP - DNR Forest Fire Protection Assmt | $8.50 | $8.50 | $0.00 | $0.00 | $17.00 | $0.00 |
| 2025 | 10193 | FPLCA - DNR Landowner Contingency Assmt | $3.00 | $3.00 | $0.00 | $0.00 | $6.00 | $0.00 |
| 2025 | 10193 | JCCD - JC Conservation District | $2.75 | $2.75 | $0.00 | $0.00 | $5.50 | $0.00 |
| 2025 | 10193 | NWA - Noxious Weed Assessment | $2.75 | $2.75 | $0.00 | $0.00 | $5.50 | $0.00 |
| 2025 | 10193 | OSS - On Site Septic | $21.50 | $21.50 | $0.00 | $0.00 | $43.00 | $0.00 |
| 2025 | 10193 | WAT - Clean Water District | $13.00 | $13.00 | $0.00 | $0.00 | $26.00 | $0.00 |
| 2025 | 10193 | FP ADMIN - FP ADMIN | $0.50 | $0.00 | $0.00 | $0.00 | $0.50 | $0.00 |
| 2025 | 10193 | TOTAL: | $7047.33 | $7046.74 | $0.00 | $0.00 | $14094.07 | $0.00 |
|
| 2025 | 10193 | $7047.33 | $7046.74 | $0.00 | $0.00 | $14094.07 | $0.00 |
Statement Details |
| 2024 | 10218 | STATE - STATE LEVY (SCHOOL) | $2035.63 | $2035.62 | $0.00 | $0.00 | $4071.25 | $0.00 |
| 2024 | 10218 | COUNTY - COUNTY LEVIES (CE, DD, VET, MH) | $871.07 | $871.07 | $0.00 | $0.00 | $1742.14 | $0.00 |
| 2024 | 10218 | CONSERVE - CONSERVATION FUTURES | $26.12 | $26.12 | $0.00 | $0.00 | $52.24 | $0.00 |
| 2024 | 10218 | COROADS - COUNTY ROADS (ROADS, DIV TO CE) | $700.92 | $700.91 | $0.00 | $0.00 | $1401.83 | $0.00 |
| 2024 | 10218 | PORTPT - PORT DISTRICT | $359.79 | $359.78 | $0.00 | $0.00 | $719.57 | $0.00 |
| 2024 | 10218 | PUD1 - PUD #1 | $57.22 | $57.21 | $0.00 | $0.00 | $114.43 | $0.00 |
| 2024 | 10218 | LIB1 - LIBRARY DIST #1 | $271.18 | $271.18 | $0.00 | $0.00 | $542.36 | $0.00 |
| 2024 | 10218 | HD2 - HOSP DIST #2 | $50.83 | $50.82 | $0.00 | $0.00 | $101.65 | $0.00 |
| 2024 | 10218 | SD49 - SCHOOL DIST #49 | $909.01 | $909.00 | $0.00 | $0.00 | $1818.01 | $0.00 |
| 2024 | 10218 | FD1 - FIRE DISTRICT #1 | $1151.76 | $1151.75 | $0.00 | $0.00 | $2303.51 | $0.00 |
| 2024 | 10218 | EMS1 - FIRE DIST #1 EMS | $439.93 | $439.92 | $0.00 | $0.00 | $879.85 | $0.00 |
| 2024 | 10218 | FP - DNR Forest Fire Protection Assmt | $8.50 | $8.50 | $0.00 | $0.00 | $17.00 | $0.00 |
| 2024 | 10218 | FPLCA - DNR Landowner Contingency Assmt | $3.00 | $3.00 | $0.00 | $0.00 | $6.00 | $0.00 |
| 2024 | 10218 | JCCD - JC Conservation District | $2.75 | $2.75 | $0.00 | $0.00 | $5.50 | $0.00 |
| 2024 | 10218 | NWA - Noxious Weed Assessment | $2.75 | $2.75 | $0.00 | $0.00 | $5.50 | $0.00 |
| 2024 | 10218 | OSS - On Site Septic | $21.00 | $21.00 | $0.00 | $0.00 | $42.00 | $0.00 |
| 2024 | 10218 | WAT - Clean Water District | $12.50 | $12.50 | $0.00 | $0.00 | $25.00 | $0.00 |
| 2024 | 10218 | FP ADMIN - FP ADMIN | $0.50 | $0.00 | $0.00 | $0.00 | $0.50 | $0.00 |
| 2024 | 10218 | TOTAL: | $6924.46 | $6923.88 | $0.00 | $0.00 | $13848.34 | $0.00 |
|
| 2024 | 10218 | $6924.46 | $6923.88 | $0.00 | $0.00 | $13848.34 | $0.00 |
Statement Details |
| 2023 | 10238 | STATE - STATE LEVY (SCHOOL) | $2131.55 | $2131.54 | $0.00 | $0.00 | $4263.09 | $0.00 |
| 2023 | 10238 | COUNTY - COUNTY LEVIES (CE, DD, VET, MH) | $930.14 | $930.13 | $0.00 | $0.00 | $1860.27 | $0.00 |
| 2023 | 10238 | CONSERVE - CONSERVATION FUTURES | $27.89 | $27.89 | $0.00 | $0.00 | $55.78 | $0.00 |
| 2023 | 10238 | COROADS - COUNTY ROADS (ROADS, DIV TO CE) | $752.55 | $752.55 | $0.00 | $0.00 | $1505.10 | $0.00 |
| 2023 | 10238 | PORTPT - PORT DISTRICT | $391.83 | $391.82 | $0.00 | $0.00 | $783.65 | $0.00 |
| 2023 | 10238 | PUD1 - PUD #1 | $61.66 | $61.65 | $0.00 | $0.00 | $123.31 | $0.00 |
| 2023 | 10238 | LIB1 - LIBRARY DIST #1 | $291.16 | $291.15 | $0.00 | $0.00 | $582.31 | $0.00 |
| 2023 | 10238 | HD2 - HOSP DIST #2 | $54.28 | $54.28 | $0.00 | $0.00 | $108.56 | $0.00 |
| 2023 | 10238 | SD49 - SCHOOL DIST #49 | $996.38 | $996.38 | $0.00 | $0.00 | $1992.76 | $0.00 |
| 2023 | 10238 | FD3 - FIRE DISTRICT #3 | $925.36 | $925.36 | $0.00 | $0.00 | $1850.72 | $0.00 |
| 2023 | 10238 | EMS3 - FIRE DIST #3 EMS | $330.82 | $330.81 | $0.00 | $0.00 | $661.63 | $0.00 |
| 2023 | 10238 | FP - DNR Forest Fire Protection Assmt | $8.50 | $8.50 | $0.00 | $0.00 | $17.00 | $0.00 |
| 2023 | 10238 | FPLCA - DNR Landowner Contingency Assmt | $3.00 | $3.00 | $0.00 | $0.00 | $6.00 | $0.00 |
| 2023 | 10238 | JCCD - JC Conservation District | $2.75 | $2.75 | $0.00 | $0.00 | $5.50 | $0.00 |
| 2023 | 10238 | NWA - Noxious Weed Assessment | $2.75 | $2.75 | $0.00 | $0.00 | $5.50 | $0.00 |
| 2023 | 10238 | OSS - On Site Septic | $20.50 | $20.50 | $0.00 | $0.00 | $41.00 | $0.00 |
| 2023 | 10238 | WAT - Clean Water District | $12.00 | $12.00 | $0.00 | $0.00 | $24.00 | $0.00 |
| 2023 | 10238 | FP ADMIN - FP ADMIN | $0.50 | $0.00 | $0.00 | $0.00 | $0.50 | $0.00 |
| 2023 | 10238 | TOTAL: | $6943.62 | $6943.06 | $0.00 | $0.00 | $13886.68 | $0.00 |
|
| 2023 | 10238 | $6943.62 | $6943.06 | $0.00 | $0.00 | $13886.68 | $0.00 |
Values
| (+) Improvement Homesite Value: | + | $0 | |
| (+) Improvement Non-Homesite Value: | + | $1,056,268 | |
| (+) Land Homesite Value: | + | $0 | |
| (+) Land Non-Homesite Value: | + | $790,548 | |
| (+) Curr Use (HS): | + | $0 | $0 |
| (+) Curr Use (NHS): | + | $0 | $0 |
| | | -------------------------- | |
| (=) Market Value: | = | $1,846,816 | |
| (–) Productivity Loss: | – | $0 | |
| | | -------------------------- | |
| (=) Subtotal: | = | $1,846,816 | |
| (+) Senior Appraised Value: | + | $0 | |
| (+) Non-Senior Appraised Value: | + | $1,846,816 | |
| | | -------------------------- | |
| (=) Total Appraised Value: | = | $1,846,816 | |
| (–) Senior Exemption Loss: | – | $0 | |
| (–) Exemption Loss: | – | $0 | |
| | | -------------------------- | |
| (=) Taxable Value: | = | $1,846,816 | |
Taxing Jurisdiction
| Owner: | PETER W & CAROL A SORENSON | | |
| % Ownership: | 100.0000000000% | | |
| Total Value: | $1,846,816 | | |
| Tax Area: | 0213 - 1-49F1E1H2L1 |
| CE | COUNTY CURRENT EXPENSE | 0.9034619479 | $1,846,816 | $1,846,816 | $1,668.53 | | |
| CNTYDD | DEVELOPMENTAL DISABILITIES | 0.0052121823 | $1,846,816 | $1,846,816 | $9.63 | | |
| CNTYVET | VETERANS RELIEF | 0.0052777810 | $1,846,816 | $1,846,816 | $9.75 | | |
| MENTAL | MENTAL HEALTH | 0.0052121823 | $1,846,816 | $1,846,816 | $9.63 | | |
| ROADS | COUNTY ROADS | 0.7415066410 | $1,846,816 | $1,846,816 | $1,369.43 | | |
| ROADSCU | COUNTY ROADS TO CUR EXP | 0.0000000000 | $1,846,816 | $1,846,816 | $0.00 | | |
| HOSP2CASH | HOSP DIST #2 GENERAL | 0.0536075306 | $1,846,816 | $1,846,816 | $99.00 | | |
| SCH49CP | SCHOOL DIST #49 CAP PROJ | 0.6279093905 | $1,846,816 | $1,846,816 | $1,159.63 | | |
| SCH49MO | SCHOOL DIST #49 EP & O | 0.6376483602 | $1,846,816 | $1,846,816 | $1,177.62 | | |
| CONSERVE | CONSERVATION FUTURES | 0.0275621078 | $1,846,816 | $1,846,816 | $50.90 | | |
| EMS1 | FIRE DIST #1 EMS | 0.4679948282 | $1,846,816 | $1,846,816 | $864.30 | | |
| FD1 | FIRE DIST #1 GENERAL | 1.2171942929 | $1,846,816 | $1,846,816 | $2,247.93 | | |
| LIB1 | LIBRARY DIST #1 GENERAL | 0.2868827388 | $1,846,816 | $1,846,816 | $529.82 | | |
| PORTPT | PORT OF PT GENERAL | 0.1134941229 | $1,846,816 | $1,846,816 | $209.60 | | |
| PORTPTIDD | PORT OF PT IDD 2019 | 0.2577346692 | $1,846,816 | $1,846,816 | $475.99 | | |
| PUD1 | PUD #1 GENERAL | 0.0597888892 | $1,846,816 | $1,846,816 | $110.42 | | |
| STATE | STATE SCHOOL PART 1 | 1.4940692947 | $1,846,816 | $1,846,816 | $2,759.27 | | |
| STATE2 | STATE SCHOOL PART 2 | 0.8050170049 | $1,846,816 | $1,846,816 | $1,486.72 | | |
| | Total Tax Rate: | 7.7095739644 | | | | | |
| | | | | Taxes w/Current Exemptions: | $14,238.17 | | |
| | | | | Taxes w/o Exemptions: | $14,238.17 | | |
Improvement / Building
| Improvement #1: | Residential Bldg | State Code: | 11 | 3422.0 sqft | Value: | $1,056,268 |
| Bathrooms (#): | 3 (FULL) | Bathrooms (#): | 1 (HALF) | | Bedrooms (#): | 2 | Exterior Wall: | SI/ST | | Floor Construction: | FRAME | Foundation: | CONPR | | Heating/Cooling: | HPUMP | Inside Verify: | YES | | Roof Cover: | COMP |   |   |
|
| | Type | Description | Class CD | Sub Class CD | Year Built | Area |
| | MA | Main Area | 6 | 15SF | 2008 | 2426.0 |
| | MA2 | Second Floor Main Area | 5 | 15SF | 2008 | 996.0 |
| | HBAL | House Balcony | 5 | * | 2008 | 98.0 |
| | HCPOR | House Concrete Porch | 5 | * | 2008 | 174.0 |
| | HCPOR | House Concrete Porch | 5 | * | 2008 | 656.0 |
| | GATT | House Attached Garage | 5 | * | 2008 | 1001.0 |
| | SHED | Shed (Table Not Dep) | 5 | * | 2008 | 96.0 |
Sketch
Property Image
Land
| 1 | 3370-1525F | | 0.0000 | 0.00 | 0.00 | 0.00 | 0.00 | $528,000 | $0 |
| 2 | 3370-1525F | | 0.0000 | 0.00 | 0.00 | 0.00 | 0.00 | $262,548 | $0 |
Roll Value History
| 2026 | N/A | N/A | N/A | N/A | N/A |
| 2025 | $1,056,268 | $790,548 | $0 | $1,846,816 | $1,846,816 |
| 2024 | $1,010,343 | $754,614 | $0 | $1,764,957 | $1,764,957 |
| 2023 | $1,010,343 | $749,364 | $0 | $1,759,707 | $1,759,707 |
| 2022 | $1,102,193 | $708,680 | $0 | $1,810,873 | $1,810,873 |
Deed and Sales History
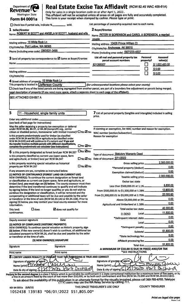
| 1 | 05/11/2022 | SWD | Statutory Warranty Deed | ROBERT M SCOTT | PETER W & CAROL A SORENSON | | | $2,300,000.00 | 139183 | |
| 2 | 01/21/2005 | SWD | Statutory Warranty Deed | COTA-ROBLES, PETER H | SCOTT, ROBERT M & ANGELA | 0 | 0 | $240,000.00 | 102609 | 0 |
Payout Agreement
| No payout information available.. |