Property
Account |
| Property ID: | 20767 | Abbreviated Legal Description: | S33 T28 R1E TAX 88 BRDY LINE ADJ #67328-9 |
| Parcel # / Geo ID: | 821333001 | Agent Code: | |
| Type: | Real | | |
| Tax Area: | 0213 - 1-49F1E1H2L1 | Land Use Code | 63 |
| Open Space: | N | DFL | N |
| Historic Property: | N | Remodel Property: | N |
| Multi-Family Redevelopment: | N | | |
| Township: | 28N | Section: | 33 |
| Range: | 1E |
Location |
| Address: | 21 SHINE RD PORT LUDLOW, WA 98365 | Mapsco: | 162/014 |
| Neighborhood: | S33 T28 R1E;SHINE PLTS;WATNEY'S S;TEAL/SANTY/SHAW/JAKUM/CARL | Map ID: | |
| Neighborhood CD: | 3385 |
Owner |
| Name: | WILSON COMMERCIAL ENTERPRISES LLC | Owner ID: | 111324 |
| Mailing Address: | 21 SHINE RD PORT LUDLOW, WA 98365-9509 | % Ownership: | 100.0000000000% |
| | | Exemptions: | |
Pay Tax Due
Select the appropriate checkbox next to the year to be paid. Multiple years may be selected.
*Convenience Fee not included
Taxes and Assessment Details
Property Tax Information as of
03/10/2026
Click on "Statement Details" to expand or collapse a tax statement.
* Please enter a valid date ** Please enter a valid date *
Statement Details |
| 2026 | 10261 | STATE - STATE LEVY (SCHOOL) | $387.40 | $387.39 | $0.00 | $0.00 | $0.00 | $774.79 |
| 2026 | 10261 | COUNTY - COUNTY LEVIES (CE, DD, VET, MH) | $154.89 | $154.88 | $0.00 | $0.00 | $0.00 | $309.77 |
| 2026 | 10261 | CONSERVE - CONSERVATION FUTURES | $4.65 | $4.64 | $0.00 | $0.00 | $0.00 | $9.29 |
| 2026 | 10261 | COROADS - COUNTY ROADS (ROADS, DIV TO CE) | $124.95 | $124.94 | $0.00 | $0.00 | $0.00 | $249.89 |
| 2026 | 10261 | PORTPT - PORT DISTRICT | $62.56 | $62.55 | $0.00 | $0.00 | $0.00 | $125.11 |
| 2026 | 10261 | PUD1 - PUD #1 | $10.08 | $10.07 | $0.00 | $0.00 | $0.00 | $20.15 |
| 2026 | 10261 | LIB1 - LIBRARY DIST #1 | $48.34 | $48.34 | $0.00 | $0.00 | $0.00 | $96.68 |
| 2026 | 10261 | HD2 - HOSP DIST #2 | $9.04 | $9.03 | $0.00 | $0.00 | $0.00 | $18.07 |
| 2026 | 10261 | SD49 - SCHOOL DIST #49 | $213.26 | $213.24 | $0.00 | $0.00 | $0.00 | $426.50 |
| 2026 | 10261 | FD1 - FIRE DISTRICT #1 | $205.10 | $205.10 | $0.00 | $0.00 | $0.00 | $410.20 |
| 2026 | 10261 | EMS1 - FIRE DIST #1 EMS | $78.86 | $78.85 | $0.00 | $0.00 | $0.00 | $157.71 |
| 2026 | 10261 | FP - DNR Forest Fire Protection Assmt | $8.50 | $8.50 | $0.00 | $0.00 | $0.00 | $17.00 |
| 2026 | 10261 | FPLCA - DNR Landowner Contingency Assmt | $3.00 | $3.00 | $0.00 | $0.00 | $0.00 | $6.00 |
| 2026 | 10261 | JCCD - JC Conservation District | $2.53 | $2.53 | $0.00 | $0.00 | $0.00 | $5.06 |
| 2026 | 10261 | NWA - Noxious Weed Assessment | $2.98 | $2.97 | $0.00 | $0.00 | $0.00 | $5.95 |
| 2026 | 10261 | OSS - On Site Septic | $23.10 | $23.10 | $0.00 | $0.00 | $0.00 | $46.20 |
| 2026 | 10261 | WAT - Clean Water District | $13.00 | $13.00 | $0.00 | $0.00 | $0.00 | $26.00 |
| 2026 | 10261 | FP ADMIN - FP ADMIN | $0.50 | $0.00 | $0.00 | $0.00 | $0.00 | $0.50 |
| 2026 | 10261 | TOTAL: | $1352.74 | $1352.13 | $0.00 | $0.00 | $0.00 | $2704.87 |
|
| 2026 | 10261 | $1352.74 | $1352.13 | $0.00 | $0.00 | $0.00 | $2704.87 |
Statement Details |
| 2025 | 10284 | STATE - STATE LEVY (SCHOOL) | $386.53 | $386.51 | $0.00 | $0.00 | $773.04 | $0.00 |
| 2025 | 10284 | COUNTY - COUNTY LEVIES (CE, DD, VET, MH) | $152.00 | $151.99 | $0.00 | $0.00 | $303.99 | $0.00 |
| 2025 | 10284 | CONSERVE - CONSERVATION FUTURES | $4.56 | $4.56 | $0.00 | $0.00 | $9.12 | $0.00 |
| 2025 | 10284 | COROADS - COUNTY ROADS (ROADS, DIV TO CE) | $121.78 | $121.77 | $0.00 | $0.00 | $243.55 | $0.00 |
| 2025 | 10284 | PORTPT - PORT DISTRICT | $62.03 | $62.02 | $0.00 | $0.00 | $124.05 | $0.00 |
| 2025 | 10284 | PUD1 - PUD #1 | $9.95 | $9.94 | $0.00 | $0.00 | $19.89 | $0.00 |
| 2025 | 10284 | LIB1 - LIBRARY DIST #1 | $47.12 | $47.11 | $0.00 | $0.00 | $94.23 | $0.00 |
| 2025 | 10284 | HD2 - HOSP DIST #2 | $8.87 | $8.87 | $0.00 | $0.00 | $17.74 | $0.00 |
| 2025 | 10284 | SD49 - SCHOOL DIST #49 | $207.16 | $207.14 | $0.00 | $0.00 | $414.30 | $0.00 |
| 2025 | 10284 | FD1 - FIRE DISTRICT #1 | $200.58 | $200.57 | $0.00 | $0.00 | $401.15 | $0.00 |
| 2025 | 10284 | EMS1 - FIRE DIST #1 EMS | $77.15 | $77.14 | $0.00 | $0.00 | $154.29 | $0.00 |
| 2025 | 10284 | FP - DNR Forest Fire Protection Assmt | $8.50 | $8.50 | $0.00 | $0.00 | $17.00 | $0.00 |
| 2025 | 10284 | FPLCA - DNR Landowner Contingency Assmt | $3.00 | $3.00 | $0.00 | $0.00 | $6.00 | $0.00 |
| 2025 | 10284 | JCCD - JC Conservation District | $2.53 | $2.53 | $0.00 | $0.00 | $5.06 | $0.00 |
| 2025 | 10284 | NWA - Noxious Weed Assessment | $2.15 | $2.15 | $0.00 | $0.00 | $4.30 | $0.00 |
| 2025 | 10284 | OSS - On Site Septic | $21.50 | $21.50 | $0.00 | $0.00 | $43.00 | $0.00 |
| 2025 | 10284 | WAT - Clean Water District | $13.00 | $13.00 | $0.00 | $0.00 | $26.00 | $0.00 |
| 2025 | 10284 | FP ADMIN - FP ADMIN | $0.50 | $0.00 | $0.00 | $0.00 | $0.50 | $0.00 |
| 2025 | 10284 | TOTAL: | $1328.91 | $1328.30 | $0.00 | $0.00 | $2657.21 | $0.00 |
|
| 2025 | 10284 | $1328.91 | $1328.30 | $0.00 | $0.00 | $2657.21 | $0.00 |
Statement Details |
| 2024 | 10309 | STATE - STATE LEVY (SCHOOL) | $350.20 | $350.20 | $0.00 | $0.00 | $700.40 | $0.00 |
| 2024 | 10309 | COUNTY - COUNTY LEVIES (CE, DD, VET, MH) | $149.87 | $149.83 | $0.00 | $0.00 | $299.70 | $0.00 |
| 2024 | 10309 | CONSERVE - CONSERVATION FUTURES | $4.50 | $4.49 | $0.00 | $0.00 | $8.99 | $0.00 |
| 2024 | 10309 | COROADS - COUNTY ROADS (ROADS, DIV TO CE) | $120.59 | $120.58 | $0.00 | $0.00 | $241.17 | $0.00 |
| 2024 | 10309 | PORTPT - PORT DISTRICT | $61.90 | $61.89 | $0.00 | $0.00 | $123.79 | $0.00 |
| 2024 | 10309 | PUD1 - PUD #1 | $9.85 | $9.84 | $0.00 | $0.00 | $19.69 | $0.00 |
| 2024 | 10309 | LIB1 - LIBRARY DIST #1 | $46.65 | $46.65 | $0.00 | $0.00 | $93.30 | $0.00 |
| 2024 | 10309 | HD2 - HOSP DIST #2 | $8.75 | $8.74 | $0.00 | $0.00 | $17.49 | $0.00 |
| 2024 | 10309 | SD49 - SCHOOL DIST #49 | $156.39 | $156.37 | $0.00 | $0.00 | $312.76 | $0.00 |
| 2024 | 10309 | FD1 - FIRE DISTRICT #1 | $198.14 | $198.14 | $0.00 | $0.00 | $396.28 | $0.00 |
| 2024 | 10309 | EMS1 - FIRE DIST #1 EMS | $75.69 | $75.68 | $0.00 | $0.00 | $151.37 | $0.00 |
| 2024 | 10309 | JCCD - JC Conservation District | $2.53 | $2.53 | $0.00 | $0.00 | $5.06 | $0.00 |
| 2024 | 10309 | NWA - Noxious Weed Assessment | $2.15 | $2.15 | $0.00 | $0.00 | $4.30 | $0.00 |
| 2024 | 10309 | OSS - On Site Septic | $21.00 | $21.00 | $0.00 | $0.00 | $42.00 | $0.00 |
| 2024 | 10309 | WAT - Clean Water District | $12.50 | $12.50 | $0.00 | $0.00 | $25.00 | $0.00 |
| 2024 | 10309 | TOTAL: | $1220.71 | $1220.59 | $0.00 | $0.00 | $2441.30 | $0.00 |
|
| 2024 | 10309 | $1220.71 | $1220.59 | $0.00 | $0.00 | $2441.30 | $0.00 |
Statement Details |
| 2023 | 10329 | STATE - STATE LEVY (SCHOOL) | $350.46 | $350.44 | $0.00 | $0.00 | $700.90 | $0.00 |
| 2023 | 10329 | COUNTY - COUNTY LEVIES (CE, DD, VET, MH) | $152.93 | $152.93 | $0.00 | $0.00 | $305.86 | $0.00 |
| 2023 | 10329 | CONSERVE - CONSERVATION FUTURES | $4.59 | $4.58 | $0.00 | $0.00 | $9.17 | $0.00 |
| 2023 | 10329 | COROADS - COUNTY ROADS (ROADS, DIV TO CE) | $123.73 | $123.73 | $0.00 | $0.00 | $247.46 | $0.00 |
| 2023 | 10329 | PORTPT - PORT DISTRICT | $64.43 | $64.42 | $0.00 | $0.00 | $128.85 | $0.00 |
| 2023 | 10329 | PUD1 - PUD #1 | $10.14 | $10.13 | $0.00 | $0.00 | $20.27 | $0.00 |
| 2023 | 10329 | LIB1 - LIBRARY DIST #1 | $47.87 | $47.87 | $0.00 | $0.00 | $95.74 | $0.00 |
| 2023 | 10329 | HD2 - HOSP DIST #2 | $8.93 | $8.92 | $0.00 | $0.00 | $17.85 | $0.00 |
| 2023 | 10329 | SD49 - SCHOOL DIST #49 | $163.82 | $163.81 | $0.00 | $0.00 | $327.63 | $0.00 |
| 2023 | 10329 | FD3 - FIRE DISTRICT #3 | $152.14 | $152.14 | $0.00 | $0.00 | $304.28 | $0.00 |
| 2023 | 10329 | EMS3 - FIRE DIST #3 EMS | $54.39 | $54.39 | $0.00 | $0.00 | $108.78 | $0.00 |
| 2023 | 10329 | JCCD - JC Conservation District | $2.53 | $2.53 | $0.00 | $0.00 | $5.06 | $0.00 |
| 2023 | 10329 | NWA - Noxious Weed Assessment | $2.15 | $2.15 | $0.00 | $0.00 | $4.30 | $0.00 |
| 2023 | 10329 | OSS - On Site Septic | $20.50 | $20.50 | $0.00 | $0.00 | $41.00 | $0.00 |
| 2023 | 10329 | WAT - Clean Water District | $12.00 | $12.00 | $0.00 | $0.00 | $24.00 | $0.00 |
| 2023 | 10329 | TOTAL: | $1170.61 | $1170.54 | $0.00 | $0.00 | $2341.15 | $0.00 |
|
| 2023 | 10329 | $1170.61 | $1170.54 | $0.00 | $0.00 | $2341.15 | $0.00 |
Values
| (+) Improvement Homesite Value: | + | $0 | |
| (+) Improvement Non-Homesite Value: | + | $180,251 | |
| (+) Land Homesite Value: | + | $0 | |
| (+) Land Non-Homesite Value: | + | $156,750 | |
| (+) Curr Use (HS): | + | $0 | $0 |
| (+) Curr Use (NHS): | + | $0 | $0 |
| | | -------------------------- | |
| (=) Market Value: | = | $337,001 | |
| (–) Productivity Loss: | – | $0 | |
| | | -------------------------- | |
| (=) Subtotal: | = | $337,001 | |
| (+) Senior Appraised Value: | + | $0 | |
| (+) Non-Senior Appraised Value: | + | $337,001 | |
| | | -------------------------- | |
| (=) Total Appraised Value: | = | $337,001 | |
| (–) Senior Exemption Loss: | – | $0 | |
| (–) Exemption Loss: | – | $0 | |
| | | -------------------------- | |
| (=) Taxable Value: | = | $337,001 | |
Taxing Jurisdiction
| Owner: | WILSON COMMERCIAL ENTERPRISES LLC | | |
| % Ownership: | 100.0000000000% | | |
| Total Value: | $337,001 | | |
| Tax Area: | 0213 - 1-49F1E1H2L1 |
| CE | COUNTY CURRENT EXPENSE | 0.9034619479 | $337,001 | $337,001 | $304.47 | | |
| CNTYDD | DEVELOPMENTAL DISABILITIES | 0.0052121823 | $337,001 | $337,001 | $1.76 | | |
| CNTYVET | VETERANS RELIEF | 0.0052777810 | $337,001 | $337,001 | $1.78 | | |
| MENTAL | MENTAL HEALTH | 0.0052121823 | $337,001 | $337,001 | $1.76 | | |
| ROADS | COUNTY ROADS | 0.7415066410 | $337,001 | $337,001 | $249.89 | | |
| ROADSCU | COUNTY ROADS TO CUR EXP | 0.0000000000 | $337,001 | $337,001 | $0.00 | | |
| HOSP2CASH | HOSP DIST #2 GENERAL | 0.0536075306 | $337,001 | $337,001 | $18.07 | | |
| SCH49CP | SCHOOL DIST #49 CAP PROJ | 0.6279093905 | $337,001 | $337,001 | $211.61 | | |
| SCH49MO | SCHOOL DIST #49 EP & O | 0.6376483602 | $337,001 | $337,001 | $214.89 | | |
| CONSERVE | CONSERVATION FUTURES | 0.0275621078 | $337,001 | $337,001 | $9.29 | | |
| EMS1 | FIRE DIST #1 EMS | 0.4679948282 | $337,001 | $337,001 | $157.71 | | |
| FD1 | FIRE DIST #1 GENERAL | 1.2171942929 | $337,001 | $337,001 | $410.20 | | |
| LIB1 | LIBRARY DIST #1 GENERAL | 0.2868827388 | $337,001 | $337,001 | $96.68 | | |
| PORTPT | PORT OF PT GENERAL | 0.1134941229 | $337,001 | $337,001 | $38.25 | | |
| PORTPTIDD | PORT OF PT IDD 2019 | 0.2577346692 | $337,001 | $337,001 | $86.86 | | |
| PUD1 | PUD #1 GENERAL | 0.0597888892 | $337,001 | $337,001 | $20.15 | | |
| STATE | STATE SCHOOL PART 1 | 1.4940692947 | $337,001 | $337,001 | $503.50 | | |
| STATE2 | STATE SCHOOL PART 2 | 0.8050170049 | $337,001 | $337,001 | $271.29 | | |
| | Total Tax Rate: | 7.7095739644 | | | | | |
| | | | | Taxes w/Current Exemptions: | $2,598.16 | | |
| | | | | Taxes w/o Exemptions: | $2,598.16 | | |
Improvement / Building
| Improvement #1: | Commercial/Industrial/Government Bldg | State Code: | 63 | 1200.0 sqft | Value: | $180,251 |
| | Type | Description | Class CD | Sub Class CD | Year Built | Area |
| | MA | Main Area | 3 | * | 1996 | 1200.0 |
| | SHED | Shed (Table Not Dep) | 4 | * | 2018 | 168.0 |
Sketch
Property Image
Land
| 1 | 3385-1245S | | 0.0000 | 0.00 | 0.00 | 0.00 | 1.00 | $156,750 | $0 |
Roll Value History
| 2026 | N/A | N/A | N/A | N/A | N/A |
| 2025 | $180,251 | $156,750 | $0 | $337,001 | $337,001 |
| 2024 | $172,740 | $149,625 | $0 | $322,365 | $322,365 |
| 2023 | $165,230 | $137,500 | $0 | $302,730 | $302,730 |
| 2022 | $165,230 | $132,500 | $0 | $297,730 | $297,730 |
Deed and Sales History
| 1 | 08/21/2024 | QCD | Quit Claim Deed | NORTHWEST ESTATE PLANNING & PROBATE | WILSON COMMERCIAL ENTERPRISES LLC | | | | 143095 | |
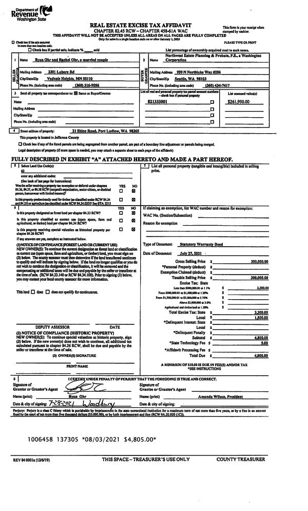
| 2 | 07/27/2021 | SWD | Statutory Warranty Deed | RYAN & RACHEL OHR | NORTHWEST ESTATE PLANNING & PROBATE | | | $300,000.00 | 137305 | |
| 3 | 05/20/2021 | SWD | Statutory Warranty Deed | BLUE MOON INVESTMENTS INC | RYAN & RACHEL OHR | | | $255,000.00 | 136812 | |
| 4 | 05/10/2002 | SWD | Statutory Warranty Deed | OLYMPIC RESORTS LLC | BLUE MOON INVESTMENTS INC | 0 | 0 | $228,000.00 | 94638 | 0 |
| 5 | 10/26/2000 | SWD | Statutory Warranty Deed | TARBOO TRADERS LLC | OLYMPIC RESORTS LLC | 0 | 0 | $181,878.00 | 90887 | 0 |
| 6 | 09/30/1996 | SWD | Statutory Warranty Deed | SQUAMISH TRUST | TARBOO TRADERS LLC | 0 | 0 | $149,000.00 | 80540 | 0 |
| 7 | 09/24/1996 | QCD | Quit Claim Deed | NEW OLYMPIC ENTERPRISES I | TARBOO TRADERS LLC | 0 | 0 | $0.00 | 80541 | 0 |
| 8 | 05/16/1996 | SWD | Statutory Warranty Deed | SQUAMISH HARBOUR TRUST | SQUAMISH TRUST | 0 | 0 | $0.00 | 80235 | 0 |
Payout Agreement
| No payout information available.. |