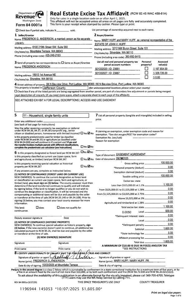
Property
Account |
| Property ID: | 20792 | Abbreviated Legal Description: | S33 T28 R1E TAX 94 |
| Parcel # / Geo ID: | 821333029 | Agent Code: | |
| Type: | Real | | |
| Tax Area: | 0213 - 1-49F1E1H2L1 | Land Use Code | 11 |
| Open Space: | N | DFL | N |
| Historic Property: | N | Remodel Property: | N |
| Multi-Family Redevelopment: | N | | |
| Township: | 28N | Section: | 33 |
| Range: | 1E |
Location |
| Address: | 320 JOAN ST PORT LUDLOW, WA 98365 | Mapsco: | 162/017 |
| Neighborhood: | S33 T28 R1E;SHINE PLTS;WATNEY'S S;TEAL/SANTY/SHAW/JAKUM/CARL | Map ID: | |
| Neighborhood CD: | 3385 |
Owner |
| Name: | PREBLE LIVING TRUST | Owner ID: | 113539 |
| Mailing Address: | RICHARD C PREBLE TRUSTEE 17791 FJORD DR NE STE 220 POULSBO, WA 98370-8482 | % Ownership: | 100.0000000000% |
| | | Exemptions: | |
Pay Tax Due
Select the appropriate checkbox next to the year to be paid. Multiple years may be selected.
*Convenience Fee not included
Taxes and Assessment Details
Property Tax Information as of
03/10/2026
Click on "Statement Details" to expand or collapse a tax statement.
* Please enter a valid date ** Please enter a valid date *
Statement Details |
| 2026 | 10286 | STATE - STATE LEVY (SCHOOL) | $586.02 | $586.01 | $0.00 | $0.00 | $0.00 | $1172.03 |
| 2026 | 10286 | COUNTY - COUNTY LEVIES (CE, DD, VET, MH) | $234.30 | $234.28 | $0.00 | $0.00 | $0.00 | $468.58 |
| 2026 | 10286 | CONSERVE - CONSERVATION FUTURES | $7.03 | $7.02 | $0.00 | $0.00 | $0.00 | $14.05 |
| 2026 | 10286 | COROADS - COUNTY ROADS (ROADS, DIV TO CE) | $189.00 | $189.00 | $0.00 | $0.00 | $0.00 | $378.00 |
| 2026 | 10286 | PORTPT - PORT DISTRICT | $94.63 | $94.62 | $0.00 | $0.00 | $0.00 | $189.25 |
| 2026 | 10286 | PUD1 - PUD #1 | $15.24 | $15.24 | $0.00 | $0.00 | $0.00 | $30.48 |
| 2026 | 10286 | LIB1 - LIBRARY DIST #1 | $73.13 | $73.12 | $0.00 | $0.00 | $0.00 | $146.25 |
| 2026 | 10286 | HD2 - HOSP DIST #2 | $13.67 | $13.66 | $0.00 | $0.00 | $0.00 | $27.33 |
| 2026 | 10286 | SD49 - SCHOOL DIST #49 | $322.58 | $322.58 | $0.00 | $0.00 | $0.00 | $645.16 |
| 2026 | 10286 | FD1 - FIRE DISTRICT #1 | $310.25 | $310.25 | $0.00 | $0.00 | $0.00 | $620.50 |
| 2026 | 10286 | EMS1 - FIRE DIST #1 EMS | $119.29 | $119.28 | $0.00 | $0.00 | $0.00 | $238.57 |
| 2026 | 10286 | FP - DNR Forest Fire Protection Assmt | $8.50 | $8.50 | $0.00 | $0.00 | $0.00 | $17.00 |
| 2026 | 10286 | FPLCA - DNR Landowner Contingency Assmt | $3.00 | $3.00 | $0.00 | $0.00 | $0.00 | $6.00 |
| 2026 | 10286 | JCCD - JC Conservation District | $2.80 | $2.80 | $0.00 | $0.00 | $0.00 | $5.60 |
| 2026 | 10286 | NWA - Noxious Weed Assessment | $4.10 | $4.10 | $0.00 | $0.00 | $0.00 | $8.20 |
| 2026 | 10286 | OSS - On Site Septic | $23.10 | $23.10 | $0.00 | $0.00 | $0.00 | $46.20 |
| 2026 | 10286 | WAT - Clean Water District | $13.00 | $13.00 | $0.00 | $0.00 | $0.00 | $26.00 |
| 2026 | 10286 | FP ADMIN - FP ADMIN | $0.50 | $0.00 | $0.00 | $0.00 | $0.00 | $0.50 |
| 2026 | 10286 | TOTAL: | $2020.14 | $2019.56 | $0.00 | $0.00 | $0.00 | $4039.70 |
|
| 2026 | 10286 | $2020.14 | $2019.56 | $0.00 | $0.00 | $0.00 | $4039.70 |
Statement Details |
| 2025 | 10309 | STATE - STATE LEVY (SCHOOL) | $584.84 | $584.84 | $0.00 | $0.00 | $1169.68 | $0.00 |
| 2025 | 10309 | COUNTY - COUNTY LEVIES (CE, DD, VET, MH) | $229.99 | $229.98 | $0.00 | $0.00 | $459.97 | $0.00 |
| 2025 | 10309 | CONSERVE - CONSERVATION FUTURES | $6.90 | $6.89 | $0.00 | $0.00 | $13.79 | $0.00 |
| 2025 | 10309 | COROADS - COUNTY ROADS (ROADS, DIV TO CE) | $184.26 | $184.25 | $0.00 | $0.00 | $368.51 | $0.00 |
| 2025 | 10309 | PORTPT - PORT DISTRICT | $93.85 | $93.84 | $0.00 | $0.00 | $187.69 | $0.00 |
| 2025 | 10309 | PUD1 - PUD #1 | $15.05 | $15.05 | $0.00 | $0.00 | $30.10 | $0.00 |
| 2025 | 10309 | LIB1 - LIBRARY DIST #1 | $71.29 | $71.28 | $0.00 | $0.00 | $142.57 | $0.00 |
| 2025 | 10309 | HD2 - HOSP DIST #2 | $13.42 | $13.42 | $0.00 | $0.00 | $26.84 | $0.00 |
| 2025 | 10309 | SD49 - SCHOOL DIST #49 | $313.44 | $313.44 | $0.00 | $0.00 | $626.88 | $0.00 |
| 2025 | 10309 | FD1 - FIRE DISTRICT #1 | $303.49 | $303.49 | $0.00 | $0.00 | $606.98 | $0.00 |
| 2025 | 10309 | EMS1 - FIRE DIST #1 EMS | $116.73 | $116.73 | $0.00 | $0.00 | $233.46 | $0.00 |
| 2025 | 10309 | FP - DNR Forest Fire Protection Assmt | $8.50 | $8.50 | $0.00 | $0.00 | $17.00 | $0.00 |
| 2025 | 10309 | FPLCA - DNR Landowner Contingency Assmt | $3.00 | $3.00 | $0.00 | $0.00 | $6.00 | $0.00 |
| 2025 | 10309 | JCCD - JC Conservation District | $2.80 | $2.80 | $0.00 | $0.00 | $5.60 | $0.00 |
| 2025 | 10309 | NWA - Noxious Weed Assessment | $2.90 | $2.90 | $0.00 | $0.00 | $5.80 | $0.00 |
| 2025 | 10309 | OSS - On Site Septic | $21.50 | $21.50 | $0.00 | $0.00 | $43.00 | $0.00 |
| 2025 | 10309 | WAT - Clean Water District | $13.00 | $13.00 | $0.00 | $0.00 | $26.00 | $0.00 |
| 2025 | 10309 | FP ADMIN - FP ADMIN | $0.50 | $0.00 | $0.00 | $0.00 | $0.50 | $0.00 |
| 2025 | 10309 | TOTAL: | $1985.46 | $1984.91 | $0.00 | $0.00 | $3970.37 | $0.00 |
|
| 2025 | 10309 | $1985.46 | $1984.91 | $0.00 | $0.00 | $3970.37 | $0.00 |
Statement Details |
| 2024 | 10334 | STATE - STATE LEVY (SCHOOL) | $562.50 | $562.50 | $0.00 | $0.00 | $1125.00 | $0.00 |
| 2024 | 10334 | COUNTY - COUNTY LEVIES (CE, DD, VET, MH) | $240.71 | $240.69 | $0.00 | $0.00 | $481.40 | $0.00 |
| 2024 | 10334 | CONSERVE - CONSERVATION FUTURES | $7.22 | $7.22 | $0.00 | $0.00 | $14.44 | $0.00 |
| 2024 | 10334 | COROADS - COUNTY ROADS (ROADS, DIV TO CE) | $193.69 | $193.68 | $0.00 | $0.00 | $387.37 | $0.00 |
| 2024 | 10334 | PORTPT - PORT DISTRICT | $99.42 | $99.42 | $0.00 | $0.00 | $198.84 | $0.00 |
| 2024 | 10334 | PUD1 - PUD #1 | $15.81 | $15.81 | $0.00 | $0.00 | $31.62 | $0.00 |
| 2024 | 10334 | LIB1 - LIBRARY DIST #1 | $74.94 | $74.93 | $0.00 | $0.00 | $149.87 | $0.00 |
| 2024 | 10334 | HD2 - HOSP DIST #2 | $14.05 | $14.04 | $0.00 | $0.00 | $28.09 | $0.00 |
| 2024 | 10334 | SD49 - SCHOOL DIST #49 | $251.18 | $251.18 | $0.00 | $0.00 | $502.36 | $0.00 |
| 2024 | 10334 | FD1 - FIRE DISTRICT #1 | $318.26 | $318.26 | $0.00 | $0.00 | $636.52 | $0.00 |
| 2024 | 10334 | EMS1 - FIRE DIST #1 EMS | $121.57 | $121.56 | $0.00 | $0.00 | $243.13 | $0.00 |
| 2024 | 10334 | FP - DNR Forest Fire Protection Assmt | $8.50 | $8.50 | $0.00 | $0.00 | $17.00 | $0.00 |
| 2024 | 10334 | FPLCA - DNR Landowner Contingency Assmt | $3.00 | $3.00 | $0.00 | $0.00 | $6.00 | $0.00 |
| 2024 | 10334 | JCCD - JC Conservation District | $2.80 | $2.80 | $0.00 | $0.00 | $5.60 | $0.00 |
| 2024 | 10334 | NWA - Noxious Weed Assessment | $2.90 | $2.90 | $0.00 | $0.00 | $5.80 | $0.00 |
| 2024 | 10334 | OSS - On Site Septic | $21.00 | $21.00 | $0.00 | $0.00 | $42.00 | $0.00 |
| 2024 | 10334 | WAT - Clean Water District | $12.50 | $12.50 | $0.00 | $0.00 | $25.00 | $0.00 |
| 2024 | 10334 | FP ADMIN - FP ADMIN | $0.50 | $0.00 | $0.00 | $0.00 | $0.50 | $0.00 |
| 2024 | 10334 | TOTAL: | $1950.55 | $1949.99 | $0.00 | $0.00 | $3900.54 | $0.00 |
|
| 2024 | 10334 | $1950.55 | $1949.99 | $0.00 | $0.00 | $3900.54 | $0.00 |
Statement Details |
| 2023 | 10354 | STATE - STATE LEVY (SCHOOL) | $342.29 | $342.28 | $0.00 | $0.00 | $684.57 | $0.00 |
| 2023 | 10354 | COUNTY - COUNTY LEVIES (CE, DD, VET, MH) | $149.37 | $149.37 | $0.00 | $0.00 | $298.74 | $0.00 |
| 2023 | 10354 | CONSERVE - CONSERVATION FUTURES | $4.48 | $4.48 | $0.00 | $0.00 | $8.96 | $0.00 |
| 2023 | 10354 | COROADS - COUNTY ROADS (ROADS, DIV TO CE) | $120.85 | $120.84 | $0.00 | $0.00 | $241.69 | $0.00 |
| 2023 | 10354 | PORTPT - PORT DISTRICT | $62.93 | $62.91 | $0.00 | $0.00 | $125.84 | $0.00 |
| 2023 | 10354 | PUD1 - PUD #1 | $9.90 | $9.90 | $0.00 | $0.00 | $19.80 | $0.00 |
| 2023 | 10354 | LIB1 - LIBRARY DIST #1 | $46.76 | $46.75 | $0.00 | $0.00 | $93.51 | $0.00 |
| 2023 | 10354 | HD2 - HOSP DIST #2 | $8.72 | $8.71 | $0.00 | $0.00 | $17.43 | $0.00 |
| 2023 | 10354 | SD49 - SCHOOL DIST #49 | $160.00 | $159.99 | $0.00 | $0.00 | $319.99 | $0.00 |
| 2023 | 10354 | FD3 - FIRE DISTRICT #3 | $148.60 | $148.59 | $0.00 | $0.00 | $297.19 | $0.00 |
| 2023 | 10354 | EMS3 - FIRE DIST #3 EMS | $53.13 | $53.12 | $0.00 | $0.00 | $106.25 | $0.00 |
| 2023 | 10354 | FP - DNR Forest Fire Protection Assmt | $8.50 | $8.50 | $0.00 | $0.00 | $17.00 | $0.00 |
| 2023 | 10354 | FPLCA - DNR Landowner Contingency Assmt | $3.00 | $3.00 | $0.00 | $0.00 | $6.00 | $0.00 |
| 2023 | 10354 | JCCD - JC Conservation District | $2.80 | $2.80 | $0.00 | $0.00 | $5.60 | $0.00 |
| 2023 | 10354 | NWA - Noxious Weed Assessment | $2.90 | $2.90 | $0.00 | $0.00 | $5.80 | $0.00 |
| 2023 | 10354 | OSS - On Site Septic | $20.50 | $20.50 | $0.00 | $0.00 | $41.00 | $0.00 |
| 2023 | 10354 | WAT - Clean Water District | $12.00 | $12.00 | $0.00 | $0.00 | $24.00 | $0.00 |
| 2023 | 10354 | FP ADMIN - FP ADMIN | $0.50 | $0.00 | $0.00 | $0.00 | $0.50 | $0.00 |
| 2023 | 10354 | TOTAL: | $1157.23 | $1156.64 | $0.00 | $0.00 | $2313.87 | $0.00 |
|
| 2023 | 10354 | $1157.23 | $1156.64 | $0.00 | $0.00 | $2313.87 | $0.00 |
Values
| (+) Improvement Homesite Value: | + | $306,224 | |
| (+) Improvement Non-Homesite Value: | + | $0 | |
| (+) Land Homesite Value: | + | $197,175 | |
| (+) Land Non-Homesite Value: | + | $6,380 | |
| (+) Curr Use (HS): | + | $0 | $0 |
| (+) Curr Use (NHS): | + | $0 | $0 |
| | | -------------------------- | |
| (=) Market Value: | = | $509,779 | |
| (–) Productivity Loss: | – | $0 | |
| | | -------------------------- | |
| (=) Subtotal: | = | $509,779 | |
| (+) Senior Appraised Value: | + | $0 | |
| (+) Non-Senior Appraised Value: | + | $509,779 | |
| | | -------------------------- | |
| (=) Total Appraised Value: | = | $509,779 | |
| (–) Senior Exemption Loss: | – | $0 | |
| (–) Exemption Loss: | – | $0 | |
| | | -------------------------- | |
| (=) Taxable Value: | = | $509,779 | |
Taxing Jurisdiction
| Owner: | PREBLE LIVING TRUST | | |
| % Ownership: | 100.0000000000% | | |
| Total Value: | $509,779 | | |
| Tax Area: | 0213 - 1-49F1E1H2L1 |
| CE | COUNTY CURRENT EXPENSE | 0.9034619479 | $509,779 | $509,779 | $460.57 | | |
| CNTYDD | DEVELOPMENTAL DISABILITIES | 0.0052121823 | $509,779 | $509,779 | $2.66 | | |
| CNTYVET | VETERANS RELIEF | 0.0052777810 | $509,779 | $509,779 | $2.69 | | |
| MENTAL | MENTAL HEALTH | 0.0052121823 | $509,779 | $509,779 | $2.66 | | |
| ROADS | COUNTY ROADS | 0.7415066410 | $509,779 | $509,779 | $378.00 | | |
| ROADSCU | COUNTY ROADS TO CUR EXP | 0.0000000000 | $509,779 | $509,779 | $0.00 | | |
| HOSP2CASH | HOSP DIST #2 GENERAL | 0.0536075306 | $509,779 | $509,779 | $27.33 | | |
| SCH49CP | SCHOOL DIST #49 CAP PROJ | 0.6279093905 | $509,779 | $509,779 | $320.10 | | |
| SCH49MO | SCHOOL DIST #49 EP & O | 0.6376483602 | $509,779 | $509,779 | $325.06 | | |
| CONSERVE | CONSERVATION FUTURES | 0.0275621078 | $509,779 | $509,779 | $14.05 | | |
| EMS1 | FIRE DIST #1 EMS | 0.4679948282 | $509,779 | $509,779 | $238.57 | | |
| FD1 | FIRE DIST #1 GENERAL | 1.2171942929 | $509,779 | $509,779 | $620.50 | | |
| LIB1 | LIBRARY DIST #1 GENERAL | 0.2868827388 | $509,779 | $509,779 | $146.25 | | |
| PORTPT | PORT OF PT GENERAL | 0.1134941229 | $509,779 | $509,779 | $57.86 | | |
| PORTPTIDD | PORT OF PT IDD 2019 | 0.2577346692 | $509,779 | $509,779 | $131.39 | | |
| PUD1 | PUD #1 GENERAL | 0.0597888892 | $509,779 | $509,779 | $30.48 | | |
| STATE | STATE SCHOOL PART 1 | 1.4940692947 | $509,779 | $509,779 | $761.65 | | |
| STATE2 | STATE SCHOOL PART 2 | 0.8050170049 | $509,779 | $509,779 | $410.38 | | |
| | Total Tax Rate: | 7.7095739644 | | | | | |
| | | | | Taxes w/Current Exemptions: | $3,930.20 | | |
| | | | | Taxes w/o Exemptions: | $3,930.20 | | |
Improvement / Building
| Improvement #1: | Residential Bldg | State Code: | 11M | 1619.0 sqft | Value: | $306,224 |
| Bathrooms (#): | 2 (FULL) | Bedrooms (#): | 2 | | Exterior Wall: | PL/T1 | Fireplace: | WD ST-GOOD | | Floor Construction: | FRAME | Foundation: | CONPR | | Heating/Cooling: | F/A | Inside Verify: | YES | | Roof Cover: | COMP |   |   |
|
| | Type | Description | Class CD | Sub Class CD | Year Built | Area |
| | MA | Main Area | 3+ | MFH | 1981 | 1619.0 |
| | HDECK | House Deck | 3 | * | 1981 | 490.0 |
| | CARPTF | Carport W/Floor | 3 | * | 1981 | 396.0 |
| | BSMTF | House basement finished | 3 | * | 1981 | 1619.0 |
Sketch
Property Image
Land
| 1 | 3385-1345S | | 1.0000 | 43560.00 | 0.00 | 0.00 | 1.00 | $176,000 | $0 |
| 2 | 1577A | | 2.6900 | 117176.40 | 0.00 | 0.00 | 0.00 | $10,727 | $0 |
| 3 | 1577A | | 1.3100 | 57063.60 | 0.00 | 0.00 | 0.00 | $10,448 | $0 |
| 4 | 1577A | | 0.8000 | 34848.00 | 0.00 | 0.00 | 0.00 | $6,380 | $0 |
Roll Value History
| 2026 | N/A | N/A | N/A | N/A | N/A |
| 2025 | $306,224 | $203,555 | $0 | $509,779 | $509,779 |
| 2024 | $293,465 | $194,303 | $0 | $487,768 | $487,768 |
| 2023 | $307,071 | $179,185 | $0 | $486,256 | $486,256 |
| 2022 | $163,333 | $127,458 | $0 | $290,791 | $290,791 |
Deed and Sales History
| 1 | 10/15/2025 | SWD | Statutory Warranty Deed | RICHARD C PREBLE | PREBLE LIVING TRUST | | | | 145088 | |
| 2 | 06/05/2023 | SWD | Statutory Warranty Deed | BOB L REED REVOCABLE LIVING TRUST | RICHARD C PREBLE | | | $500,000.00 | 141102 | |
| 3 | 03/26/2021 | DTH CERT | Death Certificate | JOAN MERRIDITH REED | | | | | 0 | 653384 |
| 4 | 06/17/2021 | QCD | Quit Claim Deed | BOB L REED | BOB L REED REVOCABLE LIVING TRUST | | | | 136958 | |
| 5 | 09/04/1998 | BLA | Boundary Line Adjustment | REED, BOB L/JOAN M | REED, BOB L/JOAN M | 0 | 0 | $0.00 | 85725 | 0 |
Payout Agreement
| No payout information available.. |