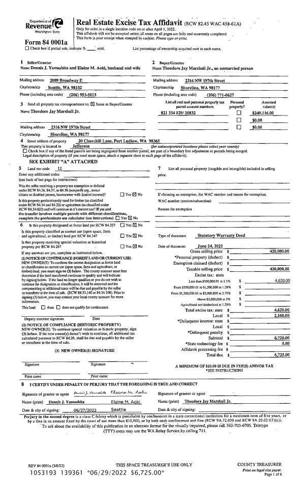
| 1 | 06/24/2022 | SWD | Statutory Warranty Deed | DENNIS J YAMASHITA | THEODORE MARSHALL JR | | | $420,000.00 | 139361 | |
| 2 | 05/31/2022 | QCD | Quit Claim Deed | PAUL AOKI | DENNIS J YAMASHITA | | | | 139311 | |
| 3 | 07/06/2009 | QCD | Quit Claim Deed | AOKI, TAKAO, AOKI, RUTH M | YAMASHITA, DENNIS J, AOKI, ELA | | | $0.00 | 113096 | 0 |
| 4 | 03/03/2000 | QCD | Quit Claim Deed | SHINE YACHT CLUB/ET AL | YAMASHITA, DENNIS J/ET AL | 0 | 0 | $0.00 | 90544 | 0 |
| 5 | 05/16/1996 | SWD | Statutory Warranty Deed | SSI PROPERTIES INC | YAMASHITA, DENNIS J/ET AL | 0 | 0 | $0.00 | 79525 | 0 |
| 6 | 05/26/1995 | SWD | Statutory Warranty Deed | GUNDERSON, JAMES O/JUDITH | SSI PROPERTIES INC | 0 | 0 | $132,300.00 | 77039 | 0 |