Property
Account |
| Property ID: | 20878 | Abbreviated Legal Description: | CARLSON SHORT PLAT TRACT 1 & PTN TL TX D FRTG |
| Parcel # / Geo ID: | 821334081 | Agent Code: | |
| Type: | Real | | |
| Tax Area: | 0213 - 1-49F1E1H2L1 | Land Use Code | 11 |
| Open Space: | N | DFL | N |
| Historic Property: | N | Remodel Property: | N |
| Multi-Family Redevelopment: | N | | |
| Township: | 28N | Section: | 33 |
| Range: | 1E |
Location |
| Address: | 341 SHINE RD PORT LUDLOW, WA 98365 | Mapsco: | 227/014 |
| Neighborhood: | S33 T28 R1E;SHINE PLTS;WATNEY'S S;TEAL/SANTY/SHAW/JAKUM/CARL | Map ID: | |
| Neighborhood CD: | 3385 |
Owner |
| Name: | ANDREW DE SOSA LLC | Owner ID: | 100495 |
| Mailing Address: | 20555 DEVONSHIRE ST CHATSWORTH, CA 91311-3208 | % Ownership: | 100.0000000000% |
| | | Exemptions: | |
Pay Tax Due
Select the appropriate checkbox next to the year to be paid. Multiple years may be selected.
*Convenience Fee not included
Taxes and Assessment Details
Property Tax Information as of
03/10/2026
Click on "Statement Details" to expand or collapse a tax statement.
* Please enter a valid date ** Please enter a valid date *
Statement Details |
| 2026 | 10370 | STATE - STATE LEVY (SCHOOL) | $1056.90 | $1056.88 | $0.00 | $0.00 | $0.00 | $2113.78 |
| 2026 | 10370 | COUNTY - COUNTY LEVIES (CE, DD, VET, MH) | $422.55 | $422.52 | $0.00 | $0.00 | $0.00 | $845.07 |
| 2026 | 10370 | CONSERVE - CONSERVATION FUTURES | $12.67 | $12.67 | $0.00 | $0.00 | $0.00 | $25.34 |
| 2026 | 10370 | COROADS - COUNTY ROADS (ROADS, DIV TO CE) | $340.87 | $340.87 | $0.00 | $0.00 | $0.00 | $681.74 |
| 2026 | 10370 | PORTPT - PORT DISTRICT | $170.66 | $170.65 | $0.00 | $0.00 | $0.00 | $341.31 |
| 2026 | 10370 | PUD1 - PUD #1 | $27.49 | $27.48 | $0.00 | $0.00 | $0.00 | $54.97 |
| 2026 | 10370 | LIB1 - LIBRARY DIST #1 | $131.88 | $131.88 | $0.00 | $0.00 | $0.00 | $263.76 |
| 2026 | 10370 | HD2 - HOSP DIST #2 | $24.65 | $24.64 | $0.00 | $0.00 | $0.00 | $49.29 |
| 2026 | 10370 | SD49 - SCHOOL DIST #49 | $581.78 | $581.77 | $0.00 | $0.00 | $0.00 | $1163.55 |
| 2026 | 10370 | FD1 - FIRE DISTRICT #1 | $559.55 | $559.54 | $0.00 | $0.00 | $0.00 | $1119.09 |
| 2026 | 10370 | EMS1 - FIRE DIST #1 EMS | $215.14 | $215.13 | $0.00 | $0.00 | $0.00 | $430.27 |
| 2026 | 10370 | FP - DNR Forest Fire Protection Assmt | $8.50 | $8.50 | $0.00 | $0.00 | $0.00 | $17.00 |
| 2026 | 10370 | FPLCA - DNR Landowner Contingency Assmt | $3.00 | $3.00 | $0.00 | $0.00 | $0.00 | $6.00 |
| 2026 | 10370 | JCCD - JC Conservation District | $2.60 | $2.60 | $0.00 | $0.00 | $0.00 | $5.20 |
| 2026 | 10370 | NWA - Noxious Weed Assessment | $3.20 | $3.20 | $0.00 | $0.00 | $0.00 | $6.40 |
| 2026 | 10370 | OSS - On Site Septic | $23.10 | $23.10 | $0.00 | $0.00 | $0.00 | $46.20 |
| 2026 | 10370 | WAT - Clean Water District | $13.00 | $13.00 | $0.00 | $0.00 | $0.00 | $26.00 |
| 2026 | 10370 | FP ADMIN - FP ADMIN | $0.50 | $0.00 | $0.00 | $0.00 | $0.00 | $0.50 |
| 2026 | 10370 | TOTAL: | $3598.04 | $3597.43 | $0.00 | $0.00 | $0.00 | $7195.47 |
|
| 2026 | 10370 | $3598.04 | $3597.43 | $0.00 | $0.00 | $0.00 | $7195.47 |
Statement Details |
| 2025 | 10393 | STATE - STATE LEVY (SCHOOL) | $1054.70 | $1054.69 | $0.00 | $0.00 | $2109.39 | $0.00 |
| 2025 | 10393 | COUNTY - COUNTY LEVIES (CE, DD, VET, MH) | $414.76 | $414.73 | $0.00 | $0.00 | $829.49 | $0.00 |
| 2025 | 10393 | CONSERVE - CONSERVATION FUTURES | $12.44 | $12.43 | $0.00 | $0.00 | $24.87 | $0.00 |
| 2025 | 10393 | COROADS - COUNTY ROADS (ROADS, DIV TO CE) | $332.29 | $332.28 | $0.00 | $0.00 | $664.57 | $0.00 |
| 2025 | 10393 | PORTPT - PORT DISTRICT | $169.24 | $169.24 | $0.00 | $0.00 | $338.48 | $0.00 |
| 2025 | 10393 | PUD1 - PUD #1 | $27.14 | $27.14 | $0.00 | $0.00 | $54.28 | $0.00 |
| 2025 | 10393 | LIB1 - LIBRARY DIST #1 | $128.56 | $128.55 | $0.00 | $0.00 | $257.11 | $0.00 |
| 2025 | 10393 | HD2 - HOSP DIST #2 | $24.20 | $24.20 | $0.00 | $0.00 | $48.40 | $0.00 |
| 2025 | 10393 | SD49 - SCHOOL DIST #49 | $565.26 | $565.24 | $0.00 | $0.00 | $1130.50 | $0.00 |
| 2025 | 10393 | FD1 - FIRE DISTRICT #1 | $547.31 | $547.31 | $0.00 | $0.00 | $1094.62 | $0.00 |
| 2025 | 10393 | EMS1 - FIRE DIST #1 EMS | $210.51 | $210.51 | $0.00 | $0.00 | $421.02 | $0.00 |
| 2025 | 10393 | FP - DNR Forest Fire Protection Assmt | $8.50 | $8.50 | $0.00 | $0.00 | $17.00 | $0.00 |
| 2025 | 10393 | FPLCA - DNR Landowner Contingency Assmt | $3.00 | $3.00 | $0.00 | $0.00 | $6.00 | $0.00 |
| 2025 | 10393 | JCCD - JC Conservation District | $2.60 | $2.60 | $0.00 | $0.00 | $5.20 | $0.00 |
| 2025 | 10393 | NWA - Noxious Weed Assessment | $2.30 | $2.30 | $0.00 | $0.00 | $4.60 | $0.00 |
| 2025 | 10393 | OSS - On Site Septic | $21.50 | $21.50 | $0.00 | $0.00 | $43.00 | $0.00 |
| 2025 | 10393 | WAT - Clean Water District | $13.00 | $13.00 | $0.00 | $0.00 | $26.00 | $0.00 |
| 2025 | 10393 | FP ADMIN - FP ADMIN | $0.50 | $0.00 | $0.00 | $0.00 | $0.50 | $0.00 |
| 2025 | 10393 | TOTAL: | $3537.81 | $3537.22 | $0.00 | $0.00 | $7075.03 | $0.00 |
|
| 2025 | 10393 | $3537.81 | $3537.22 | $0.00 | $0.00 | $7075.03 | $0.00 |
Statement Details |
| 2024 | 10418 | STATE - STATE LEVY (SCHOOL) | $965.78 | $965.77 | $0.00 | $0.00 | $1931.55 | $0.00 |
| 2024 | 10418 | COUNTY - COUNTY LEVIES (CE, DD, VET, MH) | $413.29 | $413.25 | $0.00 | $0.00 | $826.54 | $0.00 |
| 2024 | 10418 | CONSERVE - CONSERVATION FUTURES | $12.39 | $12.39 | $0.00 | $0.00 | $24.78 | $0.00 |
| 2024 | 10418 | COROADS - COUNTY ROADS (ROADS, DIV TO CE) | $332.54 | $332.54 | $0.00 | $0.00 | $665.08 | $0.00 |
| 2024 | 10418 | PORTPT - PORT DISTRICT | $170.70 | $170.70 | $0.00 | $0.00 | $341.40 | $0.00 |
| 2024 | 10418 | PUD1 - PUD #1 | $27.15 | $27.14 | $0.00 | $0.00 | $54.29 | $0.00 |
| 2024 | 10418 | LIB1 - LIBRARY DIST #1 | $128.66 | $128.65 | $0.00 | $0.00 | $257.31 | $0.00 |
| 2024 | 10418 | HD2 - HOSP DIST #2 | $24.12 | $24.11 | $0.00 | $0.00 | $48.23 | $0.00 |
| 2024 | 10418 | SD49 - SCHOOL DIST #49 | $431.27 | $431.26 | $0.00 | $0.00 | $862.53 | $0.00 |
| 2024 | 10418 | FD1 - FIRE DISTRICT #1 | $546.44 | $546.43 | $0.00 | $0.00 | $1092.87 | $0.00 |
| 2024 | 10418 | EMS1 - FIRE DIST #1 EMS | $208.72 | $208.71 | $0.00 | $0.00 | $417.43 | $0.00 |
| 2024 | 10418 | FP - DNR Forest Fire Protection Assmt | $8.50 | $8.50 | $0.00 | $0.00 | $17.00 | $0.00 |
| 2024 | 10418 | FPLCA - DNR Landowner Contingency Assmt | $3.00 | $3.00 | $0.00 | $0.00 | $6.00 | $0.00 |
| 2024 | 10418 | JCCD - JC Conservation District | $2.60 | $2.60 | $0.00 | $0.00 | $5.20 | $0.00 |
| 2024 | 10418 | NWA - Noxious Weed Assessment | $2.30 | $2.30 | $0.00 | $0.00 | $4.60 | $0.00 |
| 2024 | 10418 | OSS - On Site Septic | $21.00 | $21.00 | $0.00 | $0.00 | $42.00 | $0.00 |
| 2024 | 10418 | WAT - Clean Water District | $12.50 | $12.50 | $0.00 | $0.00 | $25.00 | $0.00 |
| 2024 | 10418 | FP ADMIN - FP ADMIN | $0.50 | $0.00 | $0.00 | $0.00 | $0.50 | $0.00 |
| 2024 | 10418 | TOTAL: | $3311.46 | $3310.85 | $0.00 | $0.00 | $6622.31 | $0.00 |
|
| 2024 | 10418 | $3311.46 | $3310.85 | $0.00 | $0.00 | $6622.31 | $0.00 |
Statement Details |
| 2023 | 10438 | STATE - STATE LEVY (SCHOOL) | $1952.80 | $0.00 | $0.00 | $0.00 | $1952.80 | $0.00 |
| 2023 | 10438 | COUNTY - COUNTY LEVIES (CE, DD, VET, MH) | $852.15 | $0.00 | $0.00 | $0.00 | $852.15 | $0.00 |
| 2023 | 10438 | CONSERVE - CONSERVATION FUTURES | $25.55 | $0.00 | $0.00 | $0.00 | $25.55 | $0.00 |
| 2023 | 10438 | COROADS - COUNTY ROADS (ROADS, DIV TO CE) | $689.44 | $0.00 | $0.00 | $0.00 | $689.44 | $0.00 |
| 2023 | 10438 | PORTPT - PORT DISTRICT | $358.97 | $0.00 | $0.00 | $0.00 | $358.97 | $0.00 |
| 2023 | 10438 | PUD1 - PUD #1 | $56.49 | $0.00 | $0.00 | $0.00 | $56.49 | $0.00 |
| 2023 | 10438 | LIB1 - LIBRARY DIST #1 | $266.74 | $0.00 | $0.00 | $0.00 | $266.74 | $0.00 |
| 2023 | 10438 | HD2 - HOSP DIST #2 | $49.72 | $0.00 | $0.00 | $0.00 | $49.72 | $0.00 |
| 2023 | 10438 | SD49 - SCHOOL DIST #49 | $912.83 | $0.00 | $0.00 | $0.00 | $912.83 | $0.00 |
| 2023 | 10438 | FD3 - FIRE DISTRICT #3 | $847.76 | $0.00 | $0.00 | $0.00 | $847.76 | $0.00 |
| 2023 | 10438 | EMS3 - FIRE DIST #3 EMS | $303.08 | $0.00 | $0.00 | $0.00 | $303.08 | $0.00 |
| 2023 | 10438 | FP - DNR Forest Fire Protection Assmt | $17.00 | $0.00 | $0.00 | $0.00 | $17.00 | $0.00 |
| 2023 | 10438 | FPLCA - DNR Landowner Contingency Assmt | $6.00 | $0.00 | $0.00 | $0.00 | $6.00 | $0.00 |
| 2023 | 10438 | JCCD - JC Conservation District | $5.20 | $0.00 | $0.00 | $0.00 | $5.20 | $0.00 |
| 2023 | 10438 | NWA - Noxious Weed Assessment | $4.60 | $0.00 | $0.00 | $0.00 | $4.60 | $0.00 |
| 2023 | 10438 | OSS - On Site Septic | $41.00 | $0.00 | $0.00 | $0.00 | $41.00 | $0.00 |
| 2023 | 10438 | WAT - Clean Water District | $24.00 | $0.00 | $0.00 | $0.00 | $24.00 | $0.00 |
| 2023 | 10438 | FP ADMIN - FP ADMIN | $0.50 | $0.00 | $0.00 | $0.00 | $0.50 | $0.00 |
| 2023 | 10438 | TOTAL: | $6413.83 | $0.00 | $0.00 | $0.00 | $6413.83 | $0.00 |
|
| 2023 | 10438 | $6413.83 | $0.00 | $0.00 | $0.00 | $6413.83 | $0.00 |
Values
| (+) Improvement Homesite Value: | + | $0 | |
| (+) Improvement Non-Homesite Value: | + | $534,713 | |
| (+) Land Homesite Value: | + | $0 | |
| (+) Land Non-Homesite Value: | + | $384,688 | |
| (+) Curr Use (HS): | + | $0 | $0 |
| (+) Curr Use (NHS): | + | $0 | $0 |
| | | -------------------------- | |
| (=) Market Value: | = | $919,401 | |
| (–) Productivity Loss: | – | $0 | |
| | | -------------------------- | |
| (=) Subtotal: | = | $919,401 | |
| (+) Senior Appraised Value: | + | $0 | |
| (+) Non-Senior Appraised Value: | + | $919,401 | |
| | | -------------------------- | |
| (=) Total Appraised Value: | = | $919,401 | |
| (–) Senior Exemption Loss: | – | $0 | |
| (–) Exemption Loss: | – | $0 | |
| | | -------------------------- | |
| (=) Taxable Value: | = | $919,401 | |
Taxing Jurisdiction
| Owner: | ANDREW DE SOSA LLC | | |
| % Ownership: | 100.0000000000% | | |
| Total Value: | $919,401 | | |
| Tax Area: | 0213 - 1-49F1E1H2L1 |
| CE | COUNTY CURRENT EXPENSE | 0.9034619479 | $919,401 | $919,401 | $830.64 | | |
| CNTYDD | DEVELOPMENTAL DISABILITIES | 0.0052121823 | $919,401 | $919,401 | $4.79 | | |
| CNTYVET | VETERANS RELIEF | 0.0052777810 | $919,401 | $919,401 | $4.85 | | |
| MENTAL | MENTAL HEALTH | 0.0052121823 | $919,401 | $919,401 | $4.79 | | |
| ROADS | COUNTY ROADS | 0.7415066410 | $919,401 | $919,401 | $681.74 | | |
| ROADSCU | COUNTY ROADS TO CUR EXP | 0.0000000000 | $919,401 | $919,401 | $0.00 | | |
| HOSP2CASH | HOSP DIST #2 GENERAL | 0.0536075306 | $919,401 | $919,401 | $49.29 | | |
| SCH49CP | SCHOOL DIST #49 CAP PROJ | 0.6279093905 | $919,401 | $919,401 | $577.30 | | |
| SCH49MO | SCHOOL DIST #49 EP & O | 0.6376483602 | $919,401 | $919,401 | $586.25 | | |
| CONSERVE | CONSERVATION FUTURES | 0.0275621078 | $919,401 | $919,401 | $25.34 | | |
| EMS1 | FIRE DIST #1 EMS | 0.4679948282 | $919,401 | $919,401 | $430.27 | | |
| FD1 | FIRE DIST #1 GENERAL | 1.2171942929 | $919,401 | $919,401 | $1,119.09 | | |
| LIB1 | LIBRARY DIST #1 GENERAL | 0.2868827388 | $919,401 | $919,401 | $263.76 | | |
| PORTPT | PORT OF PT GENERAL | 0.1134941229 | $919,401 | $919,401 | $104.35 | | |
| PORTPTIDD | PORT OF PT IDD 2019 | 0.2577346692 | $919,401 | $919,401 | $236.96 | | |
| PUD1 | PUD #1 GENERAL | 0.0597888892 | $919,401 | $919,401 | $54.97 | | |
| STATE | STATE SCHOOL PART 1 | 1.4940692947 | $919,401 | $919,401 | $1,373.65 | | |
| STATE2 | STATE SCHOOL PART 2 | 0.8050170049 | $919,401 | $919,401 | $740.13 | | |
| | Total Tax Rate: | 7.7095739644 | | | | | |
| | | | | Taxes w/Current Exemptions: | $7,088.17 | | |
| | | | | Taxes w/o Exemptions: | $7,088.17 | | |
Improvement / Building
| Improvement #1: | Residential Bldg | State Code: | 11 | 1502.0 sqft | Value: | $534,713 |
| Bathrooms (#): | 3 (FULL) | Bedrooms (#): | 4 | | Exterior Wall: | PL/T1 | Fireplace: | SIN 2-GOOD | | Fireplace: | SIN 2-GOOD | Foundation: | CONPR | | Heating/Cooling: | F/A | Inside Verify: | YES | | Roof Cover: | TILE |   |   |
|
| | Type | Description | Class CD | Sub Class CD | Year Built | Area |
| | MA | Main Area | 5 | 15SF | 1990 | 928.0 |
| | MA2 | Second Floor Main Area | 5 | 15SF | 1990 | 574.0 |
| | HCPOR | House Concrete Porch | 5 | * | 1990 | 56.0 |
| | HDECK | House Deck | 5 | * | 1990 | 156.0 |
| | GBLTIN | Builtin Garage | 4 | * | 1990 | 500.0 |
| | OTHER | Other | 4 | * | 1990 | 0.0 |
| | GDET | Detached Garage | 3 | * | 1990 | 768.0 |
Sketch
Property Image
Land
| 1 | 3385-1555A | | 0.1800 | 7840.80 | 0.00 | 0.00 | 0.00 | $3,366 | $0 |
| 2 | 3385-1341S | | 1.0000 | 43560.00 | 0.00 | 0.00 | 1.00 | $376,200 | $0 |
| 3 | 9301F | | 0.0000 | 0.00 | 0.00 | 0.00 | 0.00 | $5,122 | $0 |
Roll Value History
| 2026 | N/A | N/A | N/A | N/A | N/A |
| 2025 | $534,713 | $384,688 | $0 | $919,401 | $919,401 |
| 2024 | $512,433 | $367,202 | $0 | $879,635 | $879,635 |
| 2023 | $490,153 | $344,716 | $0 | $834,869 | $834,869 |
| 2022 | $490,153 | $339,356 | $0 | $829,509 | $829,509 |
Deed and Sales History
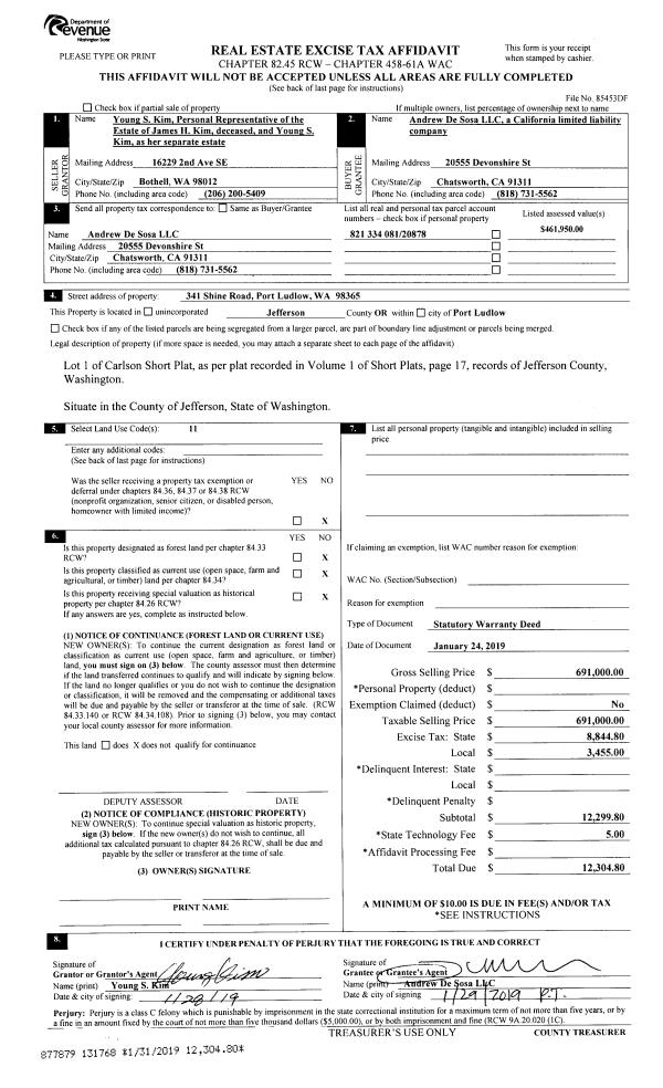
| 1 | 01/24/2019 | SWD | Statutory Warranty Deed | JAMES H KIM | ANDREW DE SOSA LLC | | | $691,000.00 | 131768 | |
| 2 | 10/27/2009 | QCD | Quit Claim Deed | KIM, JAMES H | KIM, JAMES H/YOUNG S | 0 | 0 | $0.00 | 113610 | 0 |
| 3 | 05/22/2007 | GRTD | Grant Deed | KIM, YOUNG S | KIM, JAMES H | | | $0.00 | 109312 | 0 |
| 4 | 05/27/2004 | SWD | Statutory Warranty Deed | HARRIS, MICHAEL & DAWN | KIM, JAMES H | 0 | 0 | $432,000.00 | 100393 | 0 |
| 5 | 05/27/2004 | QCD | Quit Claim Deed | KIM, YOUNG S | JAMES, KIM | 0 | 0 | $0.00 | 100394 | 0 |
Payout Agreement
| No payout information available.. |