Property
Account |
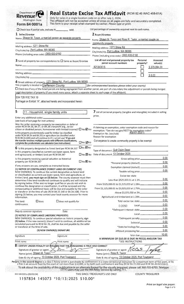
| Property ID: | 20916 | Abbreviated Legal Description: | S34 T28 R1E TAX 19 |
| Parcel # / Geo ID: | 821343015 | Agent Code: | |
| Type: | Real | | |
| Tax Area: | 0213 - 1-49F1E1H2L1 | Land Use Code | 11 |
| Open Space: | N | DFL | N |
| Historic Property: | N | Remodel Property: | N |
| Multi-Family Redevelopment: | N | | |
| Township: | 28N | Section: | 34 |
| Range: | 1E |
Location |
| Address: | 1271 SHINE RD PORT LUDLOW, WA 98365 | Mapsco: | 163/066 |
| Neighborhood: | S34 T28N R1E/SHORT PLATS/MADRONA VISTA | Map ID: | |
| Neighborhood CD: | 3380 |
Owner |
| Name: | SHAWN M TYSON & | Owner ID: | 113486 |
| Mailing Address: | ROSS R TAYLOR 1271 SHINE RD PORT LUDLOW, WA 98365-9511 | % Ownership: | 100.0000000000% |
| | | Exemptions: | |
Pay Tax Due
Select the appropriate checkbox next to the year to be paid. Multiple years may be selected.
*Convenience Fee not included
Taxes and Assessment Details
Property Tax Information as of
03/11/2026
Click on "Statement Details" to expand or collapse a tax statement.
* Please enter a valid date ** Please enter a valid date *
Statement Details |
| 2026 | 10408 | STATE - STATE LEVY (SCHOOL) | $455.06 | $455.05 | $0.00 | $0.00 | $0.00 | $910.11 |
| 2026 | 10408 | COUNTY - COUNTY LEVIES (CE, DD, VET, MH) | $181.93 | $181.92 | $0.00 | $0.00 | $0.00 | $363.85 |
| 2026 | 10408 | CONSERVE - CONSERVATION FUTURES | $5.46 | $5.45 | $0.00 | $0.00 | $0.00 | $10.91 |
| 2026 | 10408 | COROADS - COUNTY ROADS (ROADS, DIV TO CE) | $146.77 | $146.76 | $0.00 | $0.00 | $0.00 | $293.53 |
| 2026 | 10408 | PORTPT - PORT DISTRICT | $73.49 | $73.47 | $0.00 | $0.00 | $0.00 | $146.96 |
| 2026 | 10408 | PUD1 - PUD #1 | $11.84 | $11.83 | $0.00 | $0.00 | $0.00 | $23.67 |
| 2026 | 10408 | LIB1 - LIBRARY DIST #1 | $56.79 | $56.78 | $0.00 | $0.00 | $0.00 | $113.57 |
| 2026 | 10408 | HD2 - HOSP DIST #2 | $10.61 | $10.61 | $0.00 | $0.00 | $0.00 | $21.22 |
| 2026 | 10408 | SD49 - SCHOOL DIST #49 | $250.49 | $250.49 | $0.00 | $0.00 | $0.00 | $500.98 |
| 2026 | 10408 | FD1 - FIRE DISTRICT #1 | $240.92 | $240.92 | $0.00 | $0.00 | $0.00 | $481.84 |
| 2026 | 10408 | EMS1 - FIRE DIST #1 EMS | $92.63 | $92.63 | $0.00 | $0.00 | $0.00 | $185.26 |
| 2026 | 10408 | JCCD - JC Conservation District | $2.55 | $2.55 | $0.00 | $0.00 | $0.00 | $5.10 |
| 2026 | 10408 | NWA - Noxious Weed Assessment | $2.98 | $2.97 | $0.00 | $0.00 | $0.00 | $5.95 |
| 2026 | 10408 | OSS - On Site Septic | $23.10 | $23.10 | $0.00 | $0.00 | $0.00 | $46.20 |
| 2026 | 10408 | WAT - Clean Water District | $13.00 | $13.00 | $0.00 | $0.00 | $0.00 | $26.00 |
| 2026 | 10408 | TOTAL: | $1567.62 | $1567.53 | $0.00 | $0.00 | $0.00 | $3135.15 |
|
| 2026 | 10408 | $1567.62 | $1567.53 | $0.00 | $0.00 | $0.00 | $3135.15 |
Statement Details |
| 2025 | 10431 | STATE - STATE LEVY (SCHOOL) | $454.54 | $454.53 | $0.00 | $0.00 | $909.07 | $0.00 |
| 2025 | 10431 | COUNTY - COUNTY LEVIES (CE, DD, VET, MH) | $178.75 | $178.74 | $0.00 | $0.00 | $357.49 | $0.00 |
| 2025 | 10431 | CONSERVE - CONSERVATION FUTURES | $5.36 | $5.36 | $0.00 | $0.00 | $10.72 | $0.00 |
| 2025 | 10431 | COROADS - COUNTY ROADS (ROADS, DIV TO CE) | $143.20 | $143.20 | $0.00 | $0.00 | $286.40 | $0.00 |
| 2025 | 10431 | PORTPT - PORT DISTRICT | $72.94 | $72.94 | $0.00 | $0.00 | $145.88 | $0.00 |
| 2025 | 10431 | PUD1 - PUD #1 | $11.70 | $11.69 | $0.00 | $0.00 | $23.39 | $0.00 |
| 2025 | 10431 | LIB1 - LIBRARY DIST #1 | $55.41 | $55.40 | $0.00 | $0.00 | $110.81 | $0.00 |
| 2025 | 10431 | HD2 - HOSP DIST #2 | $10.43 | $10.43 | $0.00 | $0.00 | $20.86 | $0.00 |
| 2025 | 10431 | SD49 - SCHOOL DIST #49 | $243.61 | $243.60 | $0.00 | $0.00 | $487.21 | $0.00 |
| 2025 | 10431 | FD1 - FIRE DISTRICT #1 | $235.88 | $235.87 | $0.00 | $0.00 | $471.75 | $0.00 |
| 2025 | 10431 | EMS1 - FIRE DIST #1 EMS | $90.73 | $90.72 | $0.00 | $0.00 | $181.45 | $0.00 |
| 2025 | 10431 | JCCD - JC Conservation District | $2.55 | $2.55 | $0.00 | $0.00 | $5.10 | $0.00 |
| 2025 | 10431 | NWA - Noxious Weed Assessment | $2.15 | $2.15 | $0.00 | $0.00 | $4.30 | $0.00 |
| 2025 | 10431 | OSS - On Site Septic | $21.50 | $21.50 | $0.00 | $0.00 | $43.00 | $0.00 |
| 2025 | 10431 | WAT - Clean Water District | $13.00 | $13.00 | $0.00 | $0.00 | $26.00 | $0.00 |
| 2025 | 10431 | TOTAL: | $1541.75 | $1541.68 | $0.00 | $0.00 | $3083.43 | $0.00 |
|
| 2025 | 10431 | $1541.75 | $1541.68 | $0.00 | $0.00 | $3083.43 | $0.00 |
Statement Details |
| 2024 | 10456 | STATE - STATE LEVY (SCHOOL) | $417.74 | $417.74 | $0.00 | $0.00 | $835.48 | $0.00 |
| 2024 | 10456 | COUNTY - COUNTY LEVIES (CE, DD, VET, MH) | $178.76 | $178.75 | $0.00 | $0.00 | $357.51 | $0.00 |
| 2024 | 10456 | CONSERVE - CONSERVATION FUTURES | $5.36 | $5.36 | $0.00 | $0.00 | $10.72 | $0.00 |
| 2024 | 10456 | COROADS - COUNTY ROADS (ROADS, DIV TO CE) | $143.84 | $143.84 | $0.00 | $0.00 | $287.68 | $0.00 |
| 2024 | 10456 | PORTPT - PORT DISTRICT | $73.83 | $73.83 | $0.00 | $0.00 | $147.66 | $0.00 |
| 2024 | 10456 | PUD1 - PUD #1 | $11.74 | $11.74 | $0.00 | $0.00 | $23.48 | $0.00 |
| 2024 | 10456 | LIB1 - LIBRARY DIST #1 | $55.65 | $55.65 | $0.00 | $0.00 | $111.30 | $0.00 |
| 2024 | 10456 | HD2 - HOSP DIST #2 | $10.43 | $10.43 | $0.00 | $0.00 | $20.86 | $0.00 |
| 2024 | 10456 | SD49 - SCHOOL DIST #49 | $186.54 | $186.54 | $0.00 | $0.00 | $373.08 | $0.00 |
| 2024 | 10456 | FD1 - FIRE DISTRICT #1 | $236.36 | $236.35 | $0.00 | $0.00 | $472.71 | $0.00 |
| 2024 | 10456 | EMS1 - FIRE DIST #1 EMS | $90.28 | $90.28 | $0.00 | $0.00 | $180.56 | $0.00 |
| 2024 | 10456 | JCCD - JC Conservation District | $2.55 | $2.55 | $0.00 | $0.00 | $5.10 | $0.00 |
| 2024 | 10456 | NWA - Noxious Weed Assessment | $2.15 | $2.15 | $0.00 | $0.00 | $4.30 | $0.00 |
| 2024 | 10456 | OSS - On Site Septic | $21.00 | $21.00 | $0.00 | $0.00 | $42.00 | $0.00 |
| 2024 | 10456 | WAT - Clean Water District | $12.50 | $12.50 | $0.00 | $0.00 | $25.00 | $0.00 |
| 2024 | 10456 | TOTAL: | $1448.73 | $1448.71 | $0.00 | $0.00 | $2897.44 | $0.00 |
|
| 2024 | 10456 | $1448.73 | $1448.71 | $0.00 | $0.00 | $2897.44 | $0.00 |
Statement Details |
| 2023 | 10476 | STATE - STATE LEVY (SCHOOL) | $407.08 | $407.08 | $0.00 | $0.00 | $814.16 | $0.00 |
| 2023 | 10476 | COUNTY - COUNTY LEVIES (CE, DD, VET, MH) | $177.64 | $177.64 | $0.00 | $0.00 | $355.28 | $0.00 |
| 2023 | 10476 | CONSERVE - CONSERVATION FUTURES | $5.33 | $5.32 | $0.00 | $0.00 | $10.65 | $0.00 |
| 2023 | 10476 | COROADS - COUNTY ROADS (ROADS, DIV TO CE) | $143.73 | $143.72 | $0.00 | $0.00 | $287.45 | $0.00 |
| 2023 | 10476 | PORTPT - PORT DISTRICT | $74.84 | $74.82 | $0.00 | $0.00 | $149.66 | $0.00 |
| 2023 | 10476 | PUD1 - PUD #1 | $11.78 | $11.77 | $0.00 | $0.00 | $23.55 | $0.00 |
| 2023 | 10476 | LIB1 - LIBRARY DIST #1 | $55.61 | $55.60 | $0.00 | $0.00 | $111.21 | $0.00 |
| 2023 | 10476 | HD2 - HOSP DIST #2 | $10.37 | $10.36 | $0.00 | $0.00 | $20.73 | $0.00 |
| 2023 | 10476 | SD49 - SCHOOL DIST #49 | $190.30 | $190.28 | $0.00 | $0.00 | $380.58 | $0.00 |
| 2023 | 10476 | FD3 - FIRE DISTRICT #3 | $176.73 | $176.72 | $0.00 | $0.00 | $353.45 | $0.00 |
| 2023 | 10476 | EMS3 - FIRE DIST #3 EMS | $63.18 | $63.18 | $0.00 | $0.00 | $126.36 | $0.00 |
| 2023 | 10476 | JCCD - JC Conservation District | $2.55 | $2.55 | $0.00 | $0.00 | $5.10 | $0.00 |
| 2023 | 10476 | NWA - Noxious Weed Assessment | $2.15 | $2.15 | $0.00 | $0.00 | $4.30 | $0.00 |
| 2023 | 10476 | OSS - On Site Septic | $20.50 | $20.50 | $0.00 | $0.00 | $41.00 | $0.00 |
| 2023 | 10476 | WAT - Clean Water District | $12.00 | $12.00 | $0.00 | $0.00 | $24.00 | $0.00 |
| 2023 | 10476 | TOTAL: | $1353.79 | $1353.69 | $0.00 | $0.00 | $2707.48 | $0.00 |
|
| 2023 | 10476 | $1353.79 | $1353.69 | $0.00 | $0.00 | $2707.48 | $0.00 |
Values
| (+) Improvement Homesite Value: | + | $0 | |
| (+) Improvement Non-Homesite Value: | + | $246,646 | |
| (+) Land Homesite Value: | + | $0 | |
| (+) Land Non-Homesite Value: | + | $149,213 | |
| (+) Curr Use (HS): | + | $0 | $0 |
| (+) Curr Use (NHS): | + | $0 | $0 |
| | | -------------------------- | |
| (=) Market Value: | = | $395,859 | |
| (–) Productivity Loss: | – | $0 | |
| | | -------------------------- | |
| (=) Subtotal: | = | $395,859 | |
| (+) Senior Appraised Value: | + | $0 | |
| (+) Non-Senior Appraised Value: | + | $395,859 | |
| | | -------------------------- | |
| (=) Total Appraised Value: | = | $395,859 | |
| (–) Senior Exemption Loss: | – | $0 | |
| (–) Exemption Loss: | – | $0 | |
| | | -------------------------- | |
| (=) Taxable Value: | = | $395,859 | |
Taxing Jurisdiction
| Owner: | SHAWN M TYSON & | | |
| % Ownership: | 100.0000000000% | | |
| Total Value: | $395,859 | | |
| Tax Area: | 0213 - 1-49F1E1H2L1 |
| CE | COUNTY CURRENT EXPENSE | 0.9034619479 | $395,859 | $395,859 | $357.64 | | |
| CNTYDD | DEVELOPMENTAL DISABILITIES | 0.0052121823 | $395,859 | $395,859 | $2.06 | | |
| CNTYVET | VETERANS RELIEF | 0.0052777810 | $395,859 | $395,859 | $2.09 | | |
| MENTAL | MENTAL HEALTH | 0.0052121823 | $395,859 | $395,859 | $2.06 | | |
| ROADS | COUNTY ROADS | 0.7415066410 | $395,859 | $395,859 | $293.53 | | |
| ROADSCU | COUNTY ROADS TO CUR EXP | 0.0000000000 | $395,859 | $395,859 | $0.00 | | |
| HOSP2CASH | HOSP DIST #2 GENERAL | 0.0536075306 | $395,859 | $395,859 | $21.22 | | |
| SCH49CP | SCHOOL DIST #49 CAP PROJ | 0.6279093905 | $395,859 | $395,859 | $248.56 | | |
| SCH49MO | SCHOOL DIST #49 EP & O | 0.6376483602 | $395,859 | $395,859 | $252.42 | | |
| CONSERVE | CONSERVATION FUTURES | 0.0275621078 | $395,859 | $395,859 | $10.91 | | |
| EMS1 | FIRE DIST #1 EMS | 0.4679948282 | $395,859 | $395,859 | $185.26 | | |
| FD1 | FIRE DIST #1 GENERAL | 1.2171942929 | $395,859 | $395,859 | $481.84 | | |
| LIB1 | LIBRARY DIST #1 GENERAL | 0.2868827388 | $395,859 | $395,859 | $113.57 | | |
| PORTPT | PORT OF PT GENERAL | 0.1134941229 | $395,859 | $395,859 | $44.93 | | |
| PORTPTIDD | PORT OF PT IDD 2019 | 0.2577346692 | $395,859 | $395,859 | $102.03 | | |
| PUD1 | PUD #1 GENERAL | 0.0597888892 | $395,859 | $395,859 | $23.67 | | |
| STATE | STATE SCHOOL PART 1 | 1.4940692947 | $395,859 | $395,859 | $591.44 | | |
| STATE2 | STATE SCHOOL PART 2 | 0.8050170049 | $395,859 | $395,859 | $318.67 | | |
| | Total Tax Rate: | 7.7095739644 | | | | | |
| | | | | Taxes w/Current Exemptions: | $3,051.90 | | |
| | | | | Taxes w/o Exemptions: | $3,051.90 | | |
Improvement / Building
| Improvement #1: | Residential Bldg | State Code: | 11 | 840.0 sqft | Value: | $181,649 |
| Bathrooms (#): | 1 (FULL) | Bedrooms (#): | 3 | | Exterior Wall: | SI/ST | Fireplace: | WD ST-GOOD | | Floor Construction: | FRAME | Foundation: | PO&BL | | Heating/Cooling: | OTHER | Inside Verify: | NO | | Roof Cover: | COMP |   |   |
|
| | Type | Description | Class CD | Sub Class CD | Year Built | Area |
| | MA | Main Area | 3+ | 1S | 1920 | 840.0 |
| | HDECK | House Deck | 3 | * | 1920 | 240.0 |
| | HENCL | House Enclosure | 3 | * | 1920 | 156.0 |
| | HATTIC | House Attic | 3 | * | 1920 | 360.0 |
| Improvement #2: | Residential Bldg | State Code: | 11 | 397.0 sqft | Value: | $64,997 |
| Bathrooms (#): | 1 (FULL) | Bedrooms (#): | 1 | | Exterior Wall: | SI/ST | Fireplace: | WD ST-GOOD | | Floor Construction: | FRAME | Foundation: | PO&BL | | Heating/Cooling: | ELBB | Inside Verify: | NO | | Roof Cover: | COMP |   |   |
|
| | Type | Description | Class CD | Sub Class CD | Year Built | Area |
| | MA | Main Area | 3 | 1S | 0 | 397.0 |
| | HWPOR | House Wood Porch | 3 | * | 0 | 72.0 |
| | HENCL | House Enclosure | 3 | * | 0 | 48.0 |
Sketch
Property Image
Land
| 1 | 3380-1345S | | 0.0000 | 0.00 | 0.00 | 0.00 | 1.00 | $149,213 | $0 |
Roll Value History
| 2026 | N/A | N/A | N/A | N/A | N/A |
| 2025 | $246,646 | $149,213 | $0 | $395,859 | $395,859 |
| 2024 | $236,369 | $142,725 | $0 | $379,094 | $379,094 |
| 2023 | $236,369 | $124,750 | $0 | $361,119 | $361,119 |
| 2022 | $226,091 | $119,750 | $0 | $345,841 | $345,841 |
Deed and Sales History
| 1 | 10/13/2025 | QCD | Quit Claim Deed | SHAWN TYSON | SHAWN M TYSON & | | | | 145073 | |
| 2 | 11/18/2020 | SWD | Statutory Warranty Deed | ALBERTA J CONRAD | SHAWN TYSON | | | $370,000.00 | 135650 | |
| 3 | 06/08/2000 | QCD | Quit Claim Deed | CONRAD, RICHARD A | CONRAD, ALBERTA J | 0 | 0 | $0.00 | 90905 | 0 |
| 4 | 08/16/1996 | SWD | Statutory Warranty Deed | BARTHOLOMY, FRANCES ELAIN | CONRAD, RICHARD A/ALBERTA J | 0 | 0 | $175,000.00 | 80294 | 0 |
| 5 | 08/20/1993 | SWD | Statutory Warranty Deed | RODENBERGER, ELMA K ESTAT | BARTHOLOMY, FANCES ELAINE | 0 | 0 | $85,000.00 | 71971 | 0 |
Payout Agreement
| No payout information available.. |