Property
Account |
| Property ID: | 20957 | Abbreviated Legal Description: | S34 T28N R1E TAX 75-PARCEL A BND BY BLA#133502 |
| Parcel # / Geo ID: | 821344032 | Agent Code: | |
| Type: | Real | | |
| Tax Area: | 0213 - 1-49F1E1H2L1 | Land Use Code | 11 |
| Open Space: | N | DFL | N |
| Historic Property: | N | Remodel Property: | N |
| Multi-Family Redevelopment: | N | | |
| Township: | 28N | Section: | 34 |
| Range: | 1E |
Location |
| Address: | 1291 SHINE RD PORT LUDLOW, WA 98365 | Mapsco: | 163/036 |
| Neighborhood: | S34 T28N R1E/SHORT PLATS/MADRONA VISTA | Map ID: | |
| Neighborhood CD: | 3380 |
Owner |
| Name: | DOUGLAS S & MARY E RODGERS | Owner ID: | 110003 |
| Mailing Address: | 1291 SHINE RD PORT LUDLOW, WA 98368-9511 | % Ownership: | 100.0000000000% |
| | | Exemptions: | |
Pay Tax Due
Select the appropriate checkbox next to the year to be paid. Multiple years may be selected.
*Convenience Fee not included
Taxes and Assessment Details
Property Tax Information as of
03/11/2026
Click on "Statement Details" to expand or collapse a tax statement.
* Please enter a valid date ** Please enter a valid date *
Statement Details |
| 2026 | 10448 | STATE - STATE LEVY (SCHOOL) | $408.25 | $408.24 | $0.00 | $0.00 | $0.00 | $816.49 |
| 2026 | 10448 | COUNTY - COUNTY LEVIES (CE, DD, VET, MH) | $163.23 | $163.19 | $0.00 | $0.00 | $0.00 | $326.42 |
| 2026 | 10448 | CONSERVE - CONSERVATION FUTURES | $4.90 | $4.89 | $0.00 | $0.00 | $0.00 | $9.79 |
| 2026 | 10448 | COROADS - COUNTY ROADS (ROADS, DIV TO CE) | $131.67 | $131.67 | $0.00 | $0.00 | $0.00 | $263.34 |
| 2026 | 10448 | PORTPT - PORT DISTRICT | $65.93 | $65.91 | $0.00 | $0.00 | $0.00 | $131.84 |
| 2026 | 10448 | PUD1 - PUD #1 | $10.62 | $10.61 | $0.00 | $0.00 | $0.00 | $21.23 |
| 2026 | 10448 | LIB1 - LIBRARY DIST #1 | $50.94 | $50.94 | $0.00 | $0.00 | $0.00 | $101.88 |
| 2026 | 10448 | HD2 - HOSP DIST #2 | $9.52 | $9.52 | $0.00 | $0.00 | $0.00 | $19.04 |
| 2026 | 10448 | SD49 - SCHOOL DIST #49 | $224.73 | $224.71 | $0.00 | $0.00 | $0.00 | $449.44 |
| 2026 | 10448 | FD1 - FIRE DISTRICT #1 | $216.14 | $216.13 | $0.00 | $0.00 | $0.00 | $432.27 |
| 2026 | 10448 | EMS1 - FIRE DIST #1 EMS | $83.10 | $83.10 | $0.00 | $0.00 | $0.00 | $166.20 |
| 2026 | 10448 | JCCD - JC Conservation District | $2.55 | $2.55 | $0.00 | $0.00 | $0.00 | $5.10 |
| 2026 | 10448 | NWA - Noxious Weed Assessment | $2.98 | $2.97 | $0.00 | $0.00 | $0.00 | $5.95 |
| 2026 | 10448 | OSS - On Site Septic | $23.10 | $23.10 | $0.00 | $0.00 | $0.00 | $46.20 |
| 2026 | 10448 | WAT - Clean Water District | $13.00 | $13.00 | $0.00 | $0.00 | $0.00 | $26.00 |
| 2026 | 10448 | TOTAL: | $1410.66 | $1410.53 | $0.00 | $0.00 | $0.00 | $2821.19 |
|
| 2026 | 10448 | $1410.66 | $1410.53 | $0.00 | $0.00 | $0.00 | $2821.19 |
Statement Details |
| 2025 | 10471 | STATE - STATE LEVY (SCHOOL) | $407.74 | $407.74 | $0.00 | $0.00 | $815.48 | $0.00 |
| 2025 | 10471 | COUNTY - COUNTY LEVIES (CE, DD, VET, MH) | $160.35 | $160.33 | $0.00 | $0.00 | $320.68 | $0.00 |
| 2025 | 10471 | CONSERVE - CONSERVATION FUTURES | $4.81 | $4.81 | $0.00 | $0.00 | $9.62 | $0.00 |
| 2025 | 10471 | COROADS - COUNTY ROADS (ROADS, DIV TO CE) | $128.47 | $128.45 | $0.00 | $0.00 | $256.92 | $0.00 |
| 2025 | 10471 | PORTPT - PORT DISTRICT | $65.43 | $65.43 | $0.00 | $0.00 | $130.86 | $0.00 |
| 2025 | 10471 | PUD1 - PUD #1 | $10.49 | $10.49 | $0.00 | $0.00 | $20.98 | $0.00 |
| 2025 | 10471 | LIB1 - LIBRARY DIST #1 | $49.70 | $49.70 | $0.00 | $0.00 | $99.40 | $0.00 |
| 2025 | 10471 | HD2 - HOSP DIST #2 | $9.36 | $9.35 | $0.00 | $0.00 | $18.71 | $0.00 |
| 2025 | 10471 | SD49 - SCHOOL DIST #49 | $218.53 | $218.52 | $0.00 | $0.00 | $437.05 | $0.00 |
| 2025 | 10471 | FD1 - FIRE DISTRICT #1 | $211.59 | $211.59 | $0.00 | $0.00 | $423.18 | $0.00 |
| 2025 | 10471 | EMS1 - FIRE DIST #1 EMS | $81.39 | $81.38 | $0.00 | $0.00 | $162.77 | $0.00 |
| 2025 | 10471 | JCCD - JC Conservation District | $2.55 | $2.55 | $0.00 | $0.00 | $5.10 | $0.00 |
| 2025 | 10471 | NWA - Noxious Weed Assessment | $2.15 | $2.15 | $0.00 | $0.00 | $4.30 | $0.00 |
| 2025 | 10471 | OSS - On Site Septic | $21.50 | $21.50 | $0.00 | $0.00 | $43.00 | $0.00 |
| 2025 | 10471 | WAT - Clean Water District | $13.00 | $13.00 | $0.00 | $0.00 | $26.00 | $0.00 |
| 2025 | 10471 | TOTAL: | $1387.06 | $1386.99 | $0.00 | $0.00 | $2774.05 | $0.00 |
|
| 2025 | 10471 | $1387.06 | $1386.99 | $0.00 | $0.00 | $2774.05 | $0.00 |
Statement Details |
| 2024 | 10496 | STATE - STATE LEVY (SCHOOL) | $372.31 | $372.29 | $0.00 | $0.00 | $744.60 | $0.00 |
| 2024 | 10496 | COUNTY - COUNTY LEVIES (CE, DD, VET, MH) | $159.31 | $159.31 | $0.00 | $0.00 | $318.62 | $0.00 |
| 2024 | 10496 | CONSERVE - CONSERVATION FUTURES | $4.78 | $4.77 | $0.00 | $0.00 | $9.55 | $0.00 |
| 2024 | 10496 | COROADS - COUNTY ROADS (ROADS, DIV TO CE) | $128.19 | $128.19 | $0.00 | $0.00 | $256.38 | $0.00 |
| 2024 | 10496 | PORTPT - PORT DISTRICT | $65.80 | $65.80 | $0.00 | $0.00 | $131.60 | $0.00 |
| 2024 | 10496 | PUD1 - PUD #1 | $10.47 | $10.46 | $0.00 | $0.00 | $20.93 | $0.00 |
| 2024 | 10496 | LIB1 - LIBRARY DIST #1 | $49.60 | $49.59 | $0.00 | $0.00 | $99.19 | $0.00 |
| 2024 | 10496 | HD2 - HOSP DIST #2 | $9.30 | $9.29 | $0.00 | $0.00 | $18.59 | $0.00 |
| 2024 | 10496 | SD49 - SCHOOL DIST #49 | $166.25 | $166.25 | $0.00 | $0.00 | $332.50 | $0.00 |
| 2024 | 10496 | FD1 - FIRE DISTRICT #1 | $210.65 | $210.65 | $0.00 | $0.00 | $421.30 | $0.00 |
| 2024 | 10496 | EMS1 - FIRE DIST #1 EMS | $80.46 | $80.46 | $0.00 | $0.00 | $160.92 | $0.00 |
| 2024 | 10496 | JCCD - JC Conservation District | $2.55 | $2.55 | $0.00 | $0.00 | $5.10 | $0.00 |
| 2024 | 10496 | NWA - Noxious Weed Assessment | $2.15 | $2.15 | $0.00 | $0.00 | $4.30 | $0.00 |
| 2024 | 10496 | OSS - On Site Septic | $21.00 | $21.00 | $0.00 | $0.00 | $42.00 | $0.00 |
| 2024 | 10496 | WAT - Clean Water District | $12.50 | $12.50 | $0.00 | $0.00 | $25.00 | $0.00 |
| 2024 | 10496 | TOTAL: | $1295.32 | $1295.26 | $0.00 | $0.00 | $2590.58 | $0.00 |
|
| 2024 | 10496 | $1295.32 | $1295.26 | $0.00 | $0.00 | $2590.58 | $0.00 |
Statement Details |
| 2023 | 10516 | STATE - STATE LEVY (SCHOOL) | $360.64 | $360.63 | $0.00 | $0.00 | $721.27 | $0.00 |
| 2023 | 10516 | COUNTY - COUNTY LEVIES (CE, DD, VET, MH) | $157.39 | $157.35 | $0.00 | $0.00 | $314.74 | $0.00 |
| 2023 | 10516 | CONSERVE - CONSERVATION FUTURES | $4.72 | $4.72 | $0.00 | $0.00 | $9.44 | $0.00 |
| 2023 | 10516 | COROADS - COUNTY ROADS (ROADS, DIV TO CE) | $127.33 | $127.32 | $0.00 | $0.00 | $254.65 | $0.00 |
| 2023 | 10516 | PORTPT - PORT DISTRICT | $66.29 | $66.29 | $0.00 | $0.00 | $132.58 | $0.00 |
| 2023 | 10516 | PUD1 - PUD #1 | $10.43 | $10.43 | $0.00 | $0.00 | $20.86 | $0.00 |
| 2023 | 10516 | LIB1 - LIBRARY DIST #1 | $49.26 | $49.26 | $0.00 | $0.00 | $98.52 | $0.00 |
| 2023 | 10516 | HD2 - HOSP DIST #2 | $9.19 | $9.18 | $0.00 | $0.00 | $18.37 | $0.00 |
| 2023 | 10516 | SD49 - SCHOOL DIST #49 | $168.58 | $168.57 | $0.00 | $0.00 | $337.15 | $0.00 |
| 2023 | 10516 | FD3 - FIRE DISTRICT #3 | $156.56 | $156.56 | $0.00 | $0.00 | $313.12 | $0.00 |
| 2023 | 10516 | EMS3 - FIRE DIST #3 EMS | $55.97 | $55.97 | $0.00 | $0.00 | $111.94 | $0.00 |
| 2023 | 10516 | JCCD - JC Conservation District | $2.55 | $2.55 | $0.00 | $0.00 | $5.10 | $0.00 |
| 2023 | 10516 | NWA - Noxious Weed Assessment | $2.15 | $2.15 | $0.00 | $0.00 | $4.30 | $0.00 |
| 2023 | 10516 | OSS - On Site Septic | $20.50 | $20.50 | $0.00 | $0.00 | $41.00 | $0.00 |
| 2023 | 10516 | WAT - Clean Water District | $12.00 | $12.00 | $0.00 | $0.00 | $24.00 | $0.00 |
| 2023 | 10516 | TOTAL: | $1203.56 | $1203.48 | $0.00 | $0.00 | $2407.04 | $0.00 |
|
| 2023 | 10516 | $1203.56 | $1203.48 | $0.00 | $0.00 | $2407.04 | $0.00 |
Values
| (+) Improvement Homesite Value: | + | $0 | |
| (+) Improvement Non-Homesite Value: | + | $203,050 | |
| (+) Land Homesite Value: | + | $0 | |
| (+) Land Non-Homesite Value: | + | $152,088 | |
| (+) Curr Use (HS): | + | $0 | $0 |
| (+) Curr Use (NHS): | + | $0 | $0 |
| | | -------------------------- | |
| (=) Market Value: | = | $355,138 | |
| (–) Productivity Loss: | – | $0 | |
| | | -------------------------- | |
| (=) Subtotal: | = | $355,138 | |
| (+) Senior Appraised Value: | + | $0 | |
| (+) Non-Senior Appraised Value: | + | $355,138 | |
| | | -------------------------- | |
| (=) Total Appraised Value: | = | $355,138 | |
| (–) Senior Exemption Loss: | – | $0 | |
| (–) Exemption Loss: | – | $0 | |
| | | -------------------------- | |
| (=) Taxable Value: | = | $355,138 | |
Taxing Jurisdiction
| Owner: | DOUGLAS S & MARY E RODGERS | | |
| % Ownership: | 100.0000000000% | | |
| Total Value: | $355,138 | | |
| Tax Area: | 0213 - 1-49F1E1H2L1 |
| CE | COUNTY CURRENT EXPENSE | 0.9034619479 | $355,138 | $355,138 | $320.85 | | |
| CNTYDD | DEVELOPMENTAL DISABILITIES | 0.0052121823 | $355,138 | $355,138 | $1.85 | | |
| CNTYVET | VETERANS RELIEF | 0.0052777810 | $355,138 | $355,138 | $1.87 | | |
| MENTAL | MENTAL HEALTH | 0.0052121823 | $355,138 | $355,138 | $1.85 | | |
| ROADS | COUNTY ROADS | 0.7415066410 | $355,138 | $355,138 | $263.34 | | |
| ROADSCU | COUNTY ROADS TO CUR EXP | 0.0000000000 | $355,138 | $355,138 | $0.00 | | |
| HOSP2CASH | HOSP DIST #2 GENERAL | 0.0536075306 | $355,138 | $355,138 | $19.04 | | |
| SCH49CP | SCHOOL DIST #49 CAP PROJ | 0.6279093905 | $355,138 | $355,138 | $222.99 | | |
| SCH49MO | SCHOOL DIST #49 EP & O | 0.6376483602 | $355,138 | $355,138 | $226.45 | | |
| CONSERVE | CONSERVATION FUTURES | 0.0275621078 | $355,138 | $355,138 | $9.79 | | |
| EMS1 | FIRE DIST #1 EMS | 0.4679948282 | $355,138 | $355,138 | $166.20 | | |
| FD1 | FIRE DIST #1 GENERAL | 1.2171942929 | $355,138 | $355,138 | $432.27 | | |
| LIB1 | LIBRARY DIST #1 GENERAL | 0.2868827388 | $355,138 | $355,138 | $101.88 | | |
| PORTPT | PORT OF PT GENERAL | 0.1134941229 | $355,138 | $355,138 | $40.31 | | |
| PORTPTIDD | PORT OF PT IDD 2019 | 0.2577346692 | $355,138 | $355,138 | $91.53 | | |
| PUD1 | PUD #1 GENERAL | 0.0597888892 | $355,138 | $355,138 | $21.23 | | |
| STATE | STATE SCHOOL PART 1 | 1.4940692947 | $355,138 | $355,138 | $530.60 | | |
| STATE2 | STATE SCHOOL PART 2 | 0.8050170049 | $355,138 | $355,138 | $285.89 | | |
| | Total Tax Rate: | 7.7095739644 | | | | | |
| | | | | Taxes w/Current Exemptions: | $2,737.94 | | |
| | | | | Taxes w/o Exemptions: | $2,737.94 | | |
Improvement / Building
| Improvement #1: | Residential Bldg | State Code: | 11 | 1408.0 sqft | Value: | $203,050 |
| Bathrooms (#): | 1 (FULL) | Bedrooms (#): | 2 | | Exterior Wall: | PL/T1 | Fireplace: | WD ST-GOOD | | Floor Construction: | FRAME | Foundation: | CONPR | | Heating/Cooling: | ELBB | Inside Verify: | NO | | Roof Cover: | COMP |   |   |
|
| | Type | Description | Class CD | Sub Class CD | Year Built | Area |
| | MA | Main Area | 3 | 15SF | 1970 | 1088.0 |
| | MA2 | Second Floor Main Area | 3 | 15SF | 1970 | 320.0 |
| | HBAL | House Balcony | 3 | * | 1970 | 90.0 |
| | HDECK | House Deck | 3 | * | 1970 | 120.0 |
| | HENCL | House Enclosure | 2 | * | 1970 | 256.0 |
| | OTHER | Other | 3 | * | 1970 | 0.0 |
Sketch
| No sketches available for this property. |
Property Image
Land
| 1 | 3380-1345S | | 1.0000 | 43560.00 | 0.00 | 0.00 | 1.00 | $137,138 | $0 |
| 2 | 3380-1565A | | 1.0000 | 43560.00 | 0.00 | 0.00 | 0.00 | $14,950 | $0 |
Roll Value History
| 2026 | N/A | N/A | N/A | N/A | N/A |
| 2025 | $203,050 | $152,088 | $0 | $355,138 | $355,138 |
| 2024 | $194,589 | $145,475 | $0 | $340,064 | $340,064 |
| 2023 | $194,589 | $127,250 | $0 | $321,839 | $321,839 |
| 2022 | $186,129 | $120,250 | $0 | $306,379 | $306,379 |
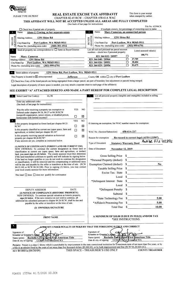
Deed and Sales History
| 1 | 11/15/2023 | QCD | Quit Claim Deed | MARY CAMERON | DOUGLAS S & MARY E RODGERS | | | | 141876 | |
| 2 | 11/12/2019 | SWD | Statutory Warranty Deed | MARY CAMERON | | | | | 133766 | |
| 3 | 11/12/2019 | SWD | Statutory Warranty Deed | ALONA J COWING | MARY CAMERON | | | | 133507 | |
| 4 | 11/19/2019 | BLA | Boundary Line Adjustment | ALONA J COWING | ALONA J COWING | | | | 133502 | |
| 5 | 11/13/2018 | LOP | Lack of Probate | BRUCE H COWING | ALONA J COWING | | | | 131373 | |
Payout Agreement
| No payout information available.. |