Property
Account |
| Property ID: | 21010 | Abbreviated Legal Description: | HOSFELDT SHORT PLAT LOT 2 W/ESMTS SUBJ/ OS ESMT |
| Parcel # / Geo ID: | 821351027 | Agent Code: | |
| Type: | Real | | |
| Tax Area: | 0213 - 1-49F1E1H2L1 | Land Use Code | 91 |
| Open Space: | N | DFL | N |
| Historic Property: | N | Remodel Property: | N |
| Multi-Family Redevelopment: | N | | |
| Township: | 28N | Section: | 35 |
| Range: | 1E |
Location |
| Address: | 4995 PARADISE BAY RD PORT LUDLOW, WA 98365 | Mapsco: | 233/039 |
| Neighborhood: | BRIDGE VIEW EST.; OLYMPIC RIDGE; S35 T28N R1E; BROOKS,PRINCE | Map ID: | |
| Neighborhood CD: | 3375 |
Owner |
| Name: | SINCLAIR-KOHASHI FAMILY REVOCABLE TRUST | Owner ID: | 109979 |
| Mailing Address: | MICKEY A SINCLAIR TRUSTEE LOIS M KOHASHI-SINCLAIR TRUSTEE PO BOX 7 PORT GAMBLE, WA 98364 | % Ownership: | 100.0000000000% |
| | | Exemptions: | |
Pay Tax Due
Select the appropriate checkbox next to the year to be paid. Multiple years may be selected.
*Convenience Fee not included
Taxes and Assessment Details
Property Tax Information as of
03/10/2026
Click on "Statement Details" to expand or collapse a tax statement.
* Please enter a valid date ** Please enter a valid date *
Statement Details |
| 2026 | 10500 | STATE - STATE LEVY (SCHOOL) | $147.42 | $147.40 | $0.00 | $0.00 | $0.00 | $294.82 |
| 2026 | 10500 | COUNTY - COUNTY LEVIES (CE, DD, VET, MH) | $58.95 | $58.93 | $0.00 | $0.00 | $0.00 | $117.88 |
| 2026 | 10500 | CONSERVE - CONSERVATION FUTURES | $1.77 | $1.76 | $0.00 | $0.00 | $0.00 | $3.53 |
| 2026 | 10500 | COROADS - COUNTY ROADS (ROADS, DIV TO CE) | $47.55 | $47.54 | $0.00 | $0.00 | $0.00 | $95.09 |
| 2026 | 10500 | PORTPT - PORT DISTRICT | $23.81 | $23.79 | $0.00 | $0.00 | $0.00 | $47.60 |
| 2026 | 10500 | PUD1 - PUD #1 | $3.84 | $3.83 | $0.00 | $0.00 | $0.00 | $7.67 |
| 2026 | 10500 | LIB1 - LIBRARY DIST #1 | $18.40 | $18.39 | $0.00 | $0.00 | $0.00 | $36.79 |
| 2026 | 10500 | HD2 - HOSP DIST #2 | $3.44 | $3.43 | $0.00 | $0.00 | $0.00 | $6.87 |
| 2026 | 10500 | SD49 - SCHOOL DIST #49 | $81.15 | $81.14 | $0.00 | $0.00 | $0.00 | $162.29 |
| 2026 | 10500 | FD1 - FIRE DISTRICT #1 | $78.05 | $78.04 | $0.00 | $0.00 | $0.00 | $156.09 |
| 2026 | 10500 | EMS1 - FIRE DIST #1 EMS | $30.01 | $30.00 | $0.00 | $0.00 | $0.00 | $60.01 |
| 2026 | 10500 | FPLCA - DNR Landowner Contingency Assmt | $3.00 | $3.00 | $0.00 | $0.00 | $0.00 | $6.00 |
| 2026 | 10500 | JCCD - JC Conservation District | $2.73 | $2.73 | $0.00 | $0.00 | $0.00 | $5.46 |
| 2026 | 10500 | NWA - Noxious Weed Assessment | $4.10 | $4.10 | $0.00 | $0.00 | $0.00 | $8.20 |
| 2026 | 10500 | WAT - Clean Water District | $13.00 | $13.00 | $0.00 | $0.00 | $0.00 | $26.00 |
| 2026 | 10500 | TOTAL: | $517.22 | $517.08 | $0.00 | $0.00 | $0.00 | $1034.30 |
|
| 2026 | 10500 | $517.22 | $517.08 | $0.00 | $0.00 | $0.00 | $1034.30 |
Statement Details |
| 2025 | 10523 | STATE - STATE LEVY (SCHOOL) | $127.09 | $127.09 | $0.00 | $0.00 | $254.18 | $0.00 |
| 2025 | 10523 | COUNTY - COUNTY LEVIES (CE, DD, VET, MH) | $50.00 | $49.96 | $0.00 | $0.00 | $99.96 | $0.00 |
| 2025 | 10523 | CONSERVE - CONSERVATION FUTURES | $1.50 | $1.50 | $0.00 | $0.00 | $3.00 | $0.00 |
| 2025 | 10523 | COROADS - COUNTY ROADS (ROADS, DIV TO CE) | $40.04 | $40.04 | $0.00 | $0.00 | $80.08 | $0.00 |
| 2025 | 10523 | PORTPT - PORT DISTRICT | $20.40 | $20.39 | $0.00 | $0.00 | $40.79 | $0.00 |
| 2025 | 10523 | PUD1 - PUD #1 | $3.27 | $3.27 | $0.00 | $0.00 | $6.54 | $0.00 |
| 2025 | 10523 | LIB1 - LIBRARY DIST #1 | $15.49 | $15.49 | $0.00 | $0.00 | $30.98 | $0.00 |
| 2025 | 10523 | HD2 - HOSP DIST #2 | $2.92 | $2.91 | $0.00 | $0.00 | $5.83 | $0.00 |
| 2025 | 10523 | SD49 - SCHOOL DIST #49 | $68.12 | $68.10 | $0.00 | $0.00 | $136.22 | $0.00 |
| 2025 | 10523 | FD1 - FIRE DISTRICT #1 | $65.95 | $65.95 | $0.00 | $0.00 | $131.90 | $0.00 |
| 2025 | 10523 | EMS1 - FIRE DIST #1 EMS | $25.37 | $25.36 | $0.00 | $0.00 | $50.73 | $0.00 |
| 2025 | 10523 | FPLCA - DNR Landowner Contingency Assmt | $3.00 | $3.00 | $0.00 | $0.00 | $6.00 | $0.00 |
| 2025 | 10523 | JCCD - JC Conservation District | $2.73 | $2.73 | $0.00 | $0.00 | $5.46 | $0.00 |
| 2025 | 10523 | NWA - Noxious Weed Assessment | $2.90 | $2.90 | $0.00 | $0.00 | $5.80 | $0.00 |
| 2025 | 10523 | WAT - Clean Water District | $13.00 | $13.00 | $0.00 | $0.00 | $26.00 | $0.00 |
| 2025 | 10523 | TOTAL: | $441.78 | $441.69 | $0.00 | $0.00 | $883.47 | $0.00 |
|
| 2025 | 10523 | $441.78 | $441.69 | $0.00 | $0.00 | $883.47 | $0.00 |
Statement Details |
| 2024 | 10548 | STATE - STATE LEVY (SCHOOL) | $114.59 | $114.59 | $0.00 | $0.00 | $229.18 | $0.00 |
| 2024 | 10548 | COUNTY - COUNTY LEVIES (CE, DD, VET, MH) | $49.04 | $49.02 | $0.00 | $0.00 | $98.06 | $0.00 |
| 2024 | 10548 | CONSERVE - CONSERVATION FUTURES | $1.47 | $1.47 | $0.00 | $0.00 | $2.94 | $0.00 |
| 2024 | 10548 | COROADS - COUNTY ROADS (ROADS, DIV TO CE) | $39.46 | $39.45 | $0.00 | $0.00 | $78.91 | $0.00 |
| 2024 | 10548 | PORTPT - PORT DISTRICT | $20.26 | $20.25 | $0.00 | $0.00 | $40.51 | $0.00 |
| 2024 | 10548 | PUD1 - PUD #1 | $3.22 | $3.22 | $0.00 | $0.00 | $6.44 | $0.00 |
| 2024 | 10548 | LIB1 - LIBRARY DIST #1 | $15.27 | $15.26 | $0.00 | $0.00 | $30.53 | $0.00 |
| 2024 | 10548 | HD2 - HOSP DIST #2 | $2.86 | $2.86 | $0.00 | $0.00 | $5.72 | $0.00 |
| 2024 | 10548 | SD49 - SCHOOL DIST #49 | $51.18 | $51.16 | $0.00 | $0.00 | $102.34 | $0.00 |
| 2024 | 10548 | FD1 - FIRE DISTRICT #1 | $64.84 | $64.83 | $0.00 | $0.00 | $129.67 | $0.00 |
| 2024 | 10548 | EMS1 - FIRE DIST #1 EMS | $24.77 | $24.76 | $0.00 | $0.00 | $49.53 | $0.00 |
| 2024 | 10548 | FP - DNR Forest Fire Protection Assmt | $8.50 | $8.50 | $0.00 | $0.00 | $17.00 | $0.00 |
| 2024 | 10548 | FPLCA - DNR Landowner Contingency Assmt | $3.00 | $3.00 | $0.00 | $0.00 | $6.00 | $0.00 |
| 2024 | 10548 | JCCD - JC Conservation District | $2.73 | $2.73 | $0.00 | $0.00 | $5.46 | $0.00 |
| 2024 | 10548 | NWA - Noxious Weed Assessment | $2.90 | $2.90 | $0.00 | $0.00 | $5.80 | $0.00 |
| 2024 | 10548 | WAT - Clean Water District | $12.50 | $12.50 | $0.00 | $0.00 | $25.00 | $0.00 |
| 2024 | 10548 | FP ADMIN - FP ADMIN | $0.50 | $0.00 | $0.00 | $0.00 | $0.50 | $0.00 |
| 2024 | 10548 | TOTAL: | $417.09 | $416.50 | $0.00 | $0.00 | $833.59 | $0.00 |
|
| 2024 | 10548 | $417.09 | $416.50 | $0.00 | $0.00 | $833.59 | $0.00 |
Statement Details |
| 2023 | 10568 | STATE - STATE LEVY (SCHOOL) | $106.29 | $106.29 | $0.00 | $0.00 | $212.58 | $0.00 |
| 2023 | 10568 | COUNTY - COUNTY LEVIES (CE, DD, VET, MH) | $46.40 | $46.37 | $0.00 | $0.00 | $92.77 | $0.00 |
| 2023 | 10568 | CONSERVE - CONSERVATION FUTURES | $1.39 | $1.39 | $0.00 | $0.00 | $2.78 | $0.00 |
| 2023 | 10568 | COROADS - COUNTY ROADS (ROADS, DIV TO CE) | $37.53 | $37.52 | $0.00 | $0.00 | $75.05 | $0.00 |
| 2023 | 10568 | PORTPT - PORT DISTRICT | $19.54 | $19.53 | $0.00 | $0.00 | $39.07 | $0.00 |
| 2023 | 10568 | PUD1 - PUD #1 | $3.08 | $3.07 | $0.00 | $0.00 | $6.15 | $0.00 |
| 2023 | 10568 | LIB1 - LIBRARY DIST #1 | $14.52 | $14.52 | $0.00 | $0.00 | $29.04 | $0.00 |
| 2023 | 10568 | HD2 - HOSP DIST #2 | $2.71 | $2.70 | $0.00 | $0.00 | $5.41 | $0.00 |
| 2023 | 10568 | SD49 - SCHOOL DIST #49 | $49.69 | $49.68 | $0.00 | $0.00 | $99.37 | $0.00 |
| 2023 | 10568 | FD3 - FIRE DISTRICT #3 | $46.15 | $46.14 | $0.00 | $0.00 | $92.29 | $0.00 |
| 2023 | 10568 | EMS3 - FIRE DIST #3 EMS | $16.50 | $16.49 | $0.00 | $0.00 | $32.99 | $0.00 |
| 2023 | 10568 | FP - DNR Forest Fire Protection Assmt | $8.50 | $8.50 | $0.00 | $0.00 | $17.00 | $0.00 |
| 2023 | 10568 | FPLCA - DNR Landowner Contingency Assmt | $3.00 | $3.00 | $0.00 | $0.00 | $6.00 | $0.00 |
| 2023 | 10568 | JCCD - JC Conservation District | $2.73 | $2.73 | $0.00 | $0.00 | $5.46 | $0.00 |
| 2023 | 10568 | NWA - Noxious Weed Assessment | $2.90 | $2.90 | $0.00 | $0.00 | $5.80 | $0.00 |
| 2023 | 10568 | WAT - Clean Water District | $12.00 | $12.00 | $0.00 | $0.00 | $24.00 | $0.00 |
| 2023 | 10568 | FP ADMIN - FP ADMIN | $0.50 | $0.00 | $0.00 | $0.00 | $0.50 | $0.00 |
| 2023 | 10568 | TOTAL: | $373.43 | $372.83 | $0.00 | $0.00 | $746.26 | $0.00 |
|
| 2023 | 10568 | $373.43 | $372.83 | $0.00 | $0.00 | $746.26 | $0.00 |
Values
| (+) Improvement Homesite Value: | + | $0 | |
| (+) Improvement Non-Homesite Value: | + | $0 | |
| (+) Land Homesite Value: | + | $0 | |
| (+) Land Non-Homesite Value: | + | $128,237 | |
| (+) Curr Use (HS): | + | $0 | $0 |
| (+) Curr Use (NHS): | + | $0 | $0 |
| | | -------------------------- | |
| (=) Market Value: | = | $128,237 | |
| (–) Productivity Loss: | – | $0 | |
| | | -------------------------- | |
| (=) Subtotal: | = | $128,237 | |
| (+) Senior Appraised Value: | + | $0 | |
| (+) Non-Senior Appraised Value: | + | $128,237 | |
| | | -------------------------- | |
| (=) Total Appraised Value: | = | $128,237 | |
| (–) Senior Exemption Loss: | – | $0 | |
| (–) Exemption Loss: | – | $0 | |
| | | -------------------------- | |
| (=) Taxable Value: | = | $128,237 | |
Taxing Jurisdiction
| Owner: | SINCLAIR-KOHASHI FAMILY REVOCABLE TRUST | | |
| % Ownership: | 100.0000000000% | | |
| Total Value: | $128,237 | | |
| Tax Area: | 0213 - 1-49F1E1H2L1 |
| CE | COUNTY CURRENT EXPENSE | 0.9034619479 | $128,237 | $128,237 | $115.86 | | |
| CNTYDD | DEVELOPMENTAL DISABILITIES | 0.0052121823 | $128,237 | $128,237 | $0.67 | | |
| CNTYVET | VETERANS RELIEF | 0.0052777810 | $128,237 | $128,237 | $0.68 | | |
| MENTAL | MENTAL HEALTH | 0.0052121823 | $128,237 | $128,237 | $0.67 | | |
| ROADS | COUNTY ROADS | 0.7415066410 | $128,237 | $128,237 | $95.09 | | |
| ROADSCU | COUNTY ROADS TO CUR EXP | 0.0000000000 | $128,237 | $128,237 | $0.00 | | |
| HOSP2CASH | HOSP DIST #2 GENERAL | 0.0536075306 | $128,237 | $128,237 | $6.87 | | |
| SCH49CP | SCHOOL DIST #49 CAP PROJ | 0.6279093905 | $128,237 | $128,237 | $80.52 | | |
| SCH49MO | SCHOOL DIST #49 EP & O | 0.6376483602 | $128,237 | $128,237 | $81.77 | | |
| CONSERVE | CONSERVATION FUTURES | 0.0275621078 | $128,237 | $128,237 | $3.53 | | |
| EMS1 | FIRE DIST #1 EMS | 0.4679948282 | $128,237 | $128,237 | $60.01 | | |
| FD1 | FIRE DIST #1 GENERAL | 1.2171942929 | $128,237 | $128,237 | $156.09 | | |
| LIB1 | LIBRARY DIST #1 GENERAL | 0.2868827388 | $128,237 | $128,237 | $36.79 | | |
| PORTPT | PORT OF PT GENERAL | 0.1134941229 | $128,237 | $128,237 | $14.55 | | |
| PORTPTIDD | PORT OF PT IDD 2019 | 0.2577346692 | $128,237 | $128,237 | $33.05 | | |
| PUD1 | PUD #1 GENERAL | 0.0597888892 | $128,237 | $128,237 | $7.67 | | |
| STATE | STATE SCHOOL PART 1 | 1.4940692947 | $128,237 | $128,237 | $191.59 | | |
| STATE2 | STATE SCHOOL PART 2 | 0.8050170049 | $128,237 | $128,237 | $103.23 | | |
| | Total Tax Rate: | 7.7095739644 | | | | | |
| | | | | Taxes w/Current Exemptions: | $988.64 | | |
| | | | | Taxes w/o Exemptions: | $988.64 | | |
Improvement / Building
Sketch
| No sketches available for this property. |
Property Image
Land
| 1 | 3375-1375S | | 1.0000 | 43560.00 | 0.00 | 0.00 | 1.00 | $69,000 | $0 |
| 2 | 1573A | | 4.0400 | 175982.40 | 0.00 | 0.00 | 0.00 | $59,237 | $0 |
Roll Value History
| 2026 | N/A | N/A | N/A | N/A | N/A |
| 2025 | $0 | $128,237 | $0 | $128,237 | $128,237 |
| 2024 | $0 | $105,996 | $0 | $105,996 | $105,996 |
| 2023 | $0 | $99,057 | $0 | $99,057 | $99,057 |
| 2022 | $0 | $90,300 | $0 | $90,300 | $90,300 |
Deed and Sales History
| 1 | 10/16/2024 | SWD | Statutory Warranty Deed | JASON & CATHERINE GARMS | SINCLAIR-KOHASHI FAMILY REVOCABLE TRUST | | | $257,500.00 | 143398 | |
|   | |
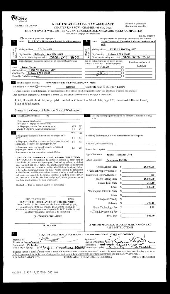
| 2 | 09/19/2014 | SPWD | Special Warranty Deed | PL 1 LLC | JASON & CATHERINE GARMS | | | $28,000.00 | 121927 | |
| 3 | 05/23/2013 | SWD | Statutory Warranty Deed | FELTON LLC | PL 1 LLC | | | | 119312 | |
| 4 | 04/18/2006 | SWD | Statutory Warranty Deed | HOSFELDT, ARTHUR | FELTON LLC | | | $125,000.00 | 106442 | 0 |
Payout Agreement
| No payout information available.. |