Property
Account |
| Property ID: | 21012 | Abbreviated Legal Description: | NO CENTS SHORT PLAT LOT 1 SUBJ TO EASE & REST OF RECORD |
| Parcel # / Geo ID: | 821351031 | Agent Code: | |
| Type: | Real | | |
| Tax Area: | 0213 - 1-49F1E1H2L1 | Land Use Code | 11 |
| Open Space: | N | DFL | N |
| Historic Property: | N | Remodel Property: | N |
| Multi-Family Redevelopment: | N | | |
| Township: | 28N | Section: | 35 |
| Range: | 1E |
Location |
| Address: | 4996 PARADISE BAY RD PORT LUDLOW, WA 98365 | Mapsco: | 238/040 |
| Neighborhood: | BRIDGE VIEW EST.; OLYMPIC RIDGE; S35 T28N R1E; BROOKS,PRINCE | Map ID: | |
| Neighborhood CD: | 3375 |
Owner |
| Name: | WILLIAM BOEHM | Owner ID: | 35833 |
| Mailing Address: | 4996 PARADISE BAY RD PORT LUDLOW, WA 98365-9216 | % Ownership: | 100.0000000000% |
| | | Exemptions: | |
Pay Tax Due
There is currently No Amount Due on this property.
Taxes and Assessment Details
Property Tax Information as of
03/10/2026
Click on "Statement Details" to expand or collapse a tax statement.
* Please enter a valid date ** Please enter a valid date *
Statement Details |
| | TOTAL: | $0.00 | $0.00 | $0.00 | $0.00 | $0.00 | $0.00 |
|
| | $0.00 | $0.00 | $0.00 | $0.00 | $0.00 | $0.00 |
Values
| (+) Improvement Homesite Value: | + | $0 | |
| (+) Improvement Non-Homesite Value: | + | $630,166 | |
| (+) Land Homesite Value: | + | $0 | |
| (+) Land Non-Homesite Value: | + | $236,900 | |
| (+) Curr Use (HS): | + | $0 | $0 |
| (+) Curr Use (NHS): | + | $0 | $0 |
| | | -------------------------- | |
| (=) Market Value: | = | $867,066 | |
| (–) Productivity Loss: | – | $0 | |
| | | -------------------------- | |
| (=) Subtotal: | = | $867,066 | |
| (+) Senior Appraised Value: | + | $0 | |
| (+) Non-Senior Appraised Value: | + | $867,066 | |
| | | -------------------------- | |
| (=) Total Appraised Value: | = | $867,066 | |
| (–) Senior Exemption Loss: | – | $0 | |
| (–) Exemption Loss: | – | $0 | |
| | | -------------------------- | |
| (=) Taxable Value: | = | $867,066 | |
Taxing Jurisdiction
| Owner: | WILLIAM BOEHM | | |
| % Ownership: | 100.0000000000% | | |
| Total Value: | $867,066 | | |
| Tax Area: | 0213 - 1-49F1E1H2L1 |
| CE | COUNTY CURRENT EXPENSE | 0.9034619479 | $867,066 | $867,066 | $783.36 | | |
| CNTYDD | DEVELOPMENTAL DISABILITIES | 0.0052121823 | $867,066 | $867,066 | $4.52 | | |
| CNTYVET | VETERANS RELIEF | 0.0052777810 | $867,066 | $867,066 | $4.58 | | |
| MENTAL | MENTAL HEALTH | 0.0052121823 | $867,066 | $867,066 | $4.52 | | |
| ROADS | COUNTY ROADS | 0.7415066410 | $867,066 | $867,066 | $642.94 | | |
| ROADSCU | COUNTY ROADS TO CUR EXP | 0.0000000000 | $867,066 | $867,066 | $0.00 | | |
| HOSP2CASH | HOSP DIST #2 GENERAL | 0.0536075306 | $867,066 | $867,066 | $46.48 | | |
| SCH49CP | SCHOOL DIST #49 CAP PROJ | 0.6279093905 | $867,066 | $867,066 | $544.44 | | |
| SCH49MO | SCHOOL DIST #49 EP & O | 0.6376483602 | $867,066 | $867,066 | $552.88 | | |
| CONSERVE | CONSERVATION FUTURES | 0.0275621078 | $867,066 | $867,066 | $23.90 | | |
| EMS1 | FIRE DIST #1 EMS | 0.4679948282 | $867,066 | $867,066 | $405.78 | | |
| FD1 | FIRE DIST #1 GENERAL | 1.2171942929 | $867,066 | $867,066 | $1,055.39 | | |
| LIB1 | LIBRARY DIST #1 GENERAL | 0.2868827388 | $867,066 | $867,066 | $248.75 | | |
| PORTPT | PORT OF PT GENERAL | 0.1134941229 | $867,066 | $867,066 | $98.41 | | |
| PORTPTIDD | PORT OF PT IDD 2019 | 0.2577346692 | $867,066 | $867,066 | $223.47 | | |
| PUD1 | PUD #1 GENERAL | 0.0597888892 | $867,066 | $867,066 | $51.84 | | |
| STATE | STATE SCHOOL PART 1 | 1.4940692947 | $867,066 | $867,066 | $1,295.46 | | |
| STATE2 | STATE SCHOOL PART 2 | 0.8050170049 | $867,066 | $867,066 | $698.00 | | |
| | Total Tax Rate: | 7.7095739644 | | | | | |
| | | | | Taxes w/Current Exemptions: | $6,684.72 | | |
| | | | | Taxes w/o Exemptions: | $6,684.72 | | |
Improvement / Building
| Improvement #1: | Residential Bldg | State Code: | 11 | 2595.0 sqft | Value: | $630,166 |
| Bathrooms (#): | 2 (FULL) | Bathrooms (#): | 1 (HALF) | | Bedrooms (#): | 3 | Exterior Wall: | SI/ST | | Fireplace: | PROPS-GOOD | Floor Construction: | FRAME | | Foundation: | CONPR | Heating/Cooling: | F/A | | Inside Verify: | YES | Roof Cover: | COMP |
|
| | Type | Description | Class CD | Sub Class CD | Year Built | Area |
| | MA | Main Area | 5 | 1S | 2007 | 2595.0 |
| | PATIO | House Patio | 5 | * | 2007 | 300.0 |
| | HCPOR | House Concrete Porch | 5 | * | 2007 | 110.0 |
| | GATT | House Attached Garage | 5 | * | 2007 | 828.0 |
| | CONCD | Concrete Drive | 4 | * | 2007 | 627.0 |
Sketch
Property Image
Land
| 1 | 3375-1345S | Good Wtr View Sites 1+/- Acre | 1.0000 | 43560.00 | 0.00 | 0.00 | 1.00 | $195,500 | $0 |
| 2 | 1575A | Terr/Mtn/No View <6 Acres | 4.0000 | 174240.00 | 0.00 | 0.00 | 0.00 | $41,400 | $0 |
Roll Value History
| 2026 | N/A | N/A | N/A | N/A | N/A |
| 2025 | $630,166 | $236,900 | $0 | $867,066 | $867,066 |
| 2024 | $603,909 | $226,600 | $0 | $830,509 | $830,509 |
| 2023 | $577,652 | $208,950 | $0 | $786,602 | $786,602 |
| 2022 | $630,166 | $190,000 | $0 | $820,166 | $820,166 |
Deed and Sales History
| 1 | 04/06/2022 | QCD | Quit Claim Deed | DJAINIATY NG | WILLIAM BOEHM | | | | 0 | |
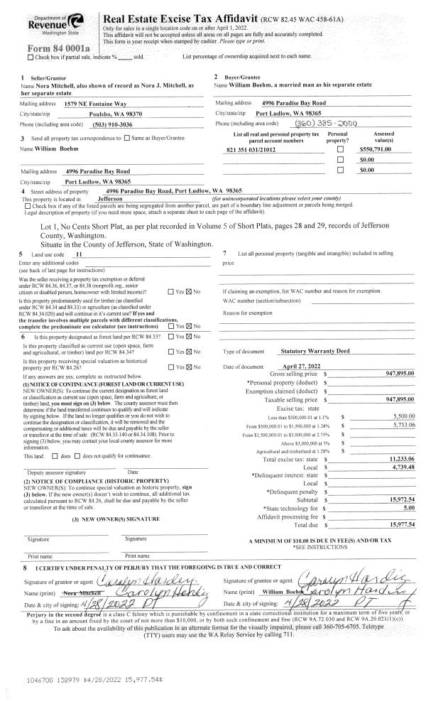
| 2 | 04/27/2022 | SWD | Statutory Warranty Deed | CONNIE ANDERSON | WILLIAM BOEHM | | | $947,895.00 | 138979 | |
| 3 | 03/11/2022 | PRD | Personal Representatives Deed | RANDY MITCHELL | CONNIE ANDERSON | | | | 138737 | |
| 4 | 08/14/2009 | SWD | Statutory Warranty Deed | FELTON LLC | MITCHELL, RANDY/NORA | 0 | 0 | $517,000.00 | 113289 | 0 |
| 5 | 12/16/2005 | SWD | Statutory Warranty Deed | FLETCHER, GABRIEL & PAULA | FELTON, LLC | 0 | 0 | $135,000.00 | 105612 | 0 |
Payout Agreement
| No payout information available.. |