Property
Account |
| Property ID: | 21053 | Abbreviated Legal Description: | BRIDGE VIEW ESTATE TR DIV III LOT 19 V10/P53 |
| Parcel # / Geo ID: | 821355031 | Agent Code: | |
| Type: | Real | | |
| Tax Area: | 0213 - 1-49F1E1H2L1 | Land Use Code | 11 |
| Open Space: | N | DFL | N |
| Historic Property: | N | Remodel Property: | N |
| Multi-Family Redevelopment: | N | | |
| Township: | 28N | Section: | 35 |
| Range: | 1E |
Location |
| Address: | 668 BYWATER WAY PORT LUDLOW, WA 98365 | Mapsco: | 249/066 |
| Neighborhood: | BRIDGE VIEW EST.; OLYMPIC RIDGE; S35 T28N R1E; BROOKS,PRINCE | Map ID: | |
| Neighborhood CD: | 3375 |
Owner |
| Name: | ADAM LAWSON & TRACEY MARVIN | Owner ID: | 103345 |
| Mailing Address: | 668 BYWATER WAY PORT LUDLOW, WA 98365-9237 | % Ownership: | 100.0000000000% |
| | | Exemptions: | |
Pay Tax Due
Select the appropriate checkbox next to the year to be paid. Multiple years may be selected.
*Convenience Fee not included
Taxes and Assessment Details
Property Tax Information as of
03/11/2026
Click on "Statement Details" to expand or collapse a tax statement.
* Please enter a valid date ** Please enter a valid date *
Statement Details |
| 2026 | 10543 | STATE - STATE LEVY (SCHOOL) | $936.95 | $936.95 | $0.00 | $0.00 | $0.00 | $1873.90 |
| 2026 | 10543 | COUNTY - COUNTY LEVIES (CE, DD, VET, MH) | $374.60 | $374.58 | $0.00 | $0.00 | $0.00 | $749.18 |
| 2026 | 10543 | CONSERVE - CONSERVATION FUTURES | $11.23 | $11.23 | $0.00 | $0.00 | $0.00 | $22.46 |
| 2026 | 10543 | COROADS - COUNTY ROADS (ROADS, DIV TO CE) | $302.19 | $302.19 | $0.00 | $0.00 | $0.00 | $604.38 |
| 2026 | 10543 | PORTPT - PORT DISTRICT | $151.29 | $151.28 | $0.00 | $0.00 | $0.00 | $302.57 |
| 2026 | 10543 | PUD1 - PUD #1 | $24.37 | $24.36 | $0.00 | $0.00 | $0.00 | $48.73 |
| 2026 | 10543 | LIB1 - LIBRARY DIST #1 | $116.92 | $116.91 | $0.00 | $0.00 | $0.00 | $233.83 |
| 2026 | 10543 | HD2 - HOSP DIST #2 | $21.85 | $21.84 | $0.00 | $0.00 | $0.00 | $43.69 |
| 2026 | 10543 | SD49 - SCHOOL DIST #49 | $515.76 | $515.75 | $0.00 | $0.00 | $0.00 | $1031.51 |
| 2026 | 10543 | FD1 - FIRE DISTRICT #1 | $496.05 | $496.04 | $0.00 | $0.00 | $0.00 | $992.09 |
| 2026 | 10543 | EMS1 - FIRE DIST #1 EMS | $190.73 | $190.72 | $0.00 | $0.00 | $0.00 | $381.45 |
| 2026 | 10543 | FP - DNR Forest Fire Protection Assmt | $8.50 | $8.50 | $0.00 | $0.00 | $0.00 | $17.00 |
| 2026 | 10543 | FPLCA - DNR Landowner Contingency Assmt | $3.00 | $3.00 | $0.00 | $0.00 | $0.00 | $6.00 |
| 2026 | 10543 | JCCD - JC Conservation District | $2.80 | $2.80 | $0.00 | $0.00 | $0.00 | $5.60 |
| 2026 | 10543 | NWA - Noxious Weed Assessment | $4.10 | $4.10 | $0.00 | $0.00 | $0.00 | $8.20 |
| 2026 | 10543 | OSS - On Site Septic | $23.10 | $23.10 | $0.00 | $0.00 | $0.00 | $46.20 |
| 2026 | 10543 | WAT - Clean Water District | $13.00 | $13.00 | $0.00 | $0.00 | $0.00 | $26.00 |
| 2026 | 10543 | FP ADMIN - FP ADMIN | $0.50 | $0.00 | $0.00 | $0.00 | $0.00 | $0.50 |
| 2026 | 10543 | TOTAL: | $3196.94 | $3196.35 | $0.00 | $0.00 | $0.00 | $6393.29 |
|
| 2026 | 10543 | $3196.94 | $3196.35 | $0.00 | $0.00 | $0.00 | $6393.29 |
Statement Details |
| 2025 | 10566 | STATE - STATE LEVY (SCHOOL) | $936.09 | $936.08 | $0.00 | $0.00 | $1872.17 | $0.00 |
| 2025 | 10566 | COUNTY - COUNTY LEVIES (CE, DD, VET, MH) | $368.13 | $368.10 | $0.00 | $0.00 | $736.23 | $0.00 |
| 2025 | 10566 | CONSERVE - CONSERVATION FUTURES | $11.04 | $11.04 | $0.00 | $0.00 | $22.08 | $0.00 |
| 2025 | 10566 | COROADS - COUNTY ROADS (ROADS, DIV TO CE) | $294.92 | $294.91 | $0.00 | $0.00 | $589.83 | $0.00 |
| 2025 | 10566 | PORTPT - PORT DISTRICT | $150.21 | $150.20 | $0.00 | $0.00 | $300.41 | $0.00 |
| 2025 | 10566 | PUD1 - PUD #1 | $24.09 | $24.08 | $0.00 | $0.00 | $48.17 | $0.00 |
| 2025 | 10566 | LIB1 - LIBRARY DIST #1 | $114.10 | $114.10 | $0.00 | $0.00 | $228.20 | $0.00 |
| 2025 | 10566 | HD2 - HOSP DIST #2 | $21.48 | $21.47 | $0.00 | $0.00 | $42.95 | $0.00 |
| 2025 | 10566 | SD49 - SCHOOL DIST #49 | $501.69 | $501.68 | $0.00 | $0.00 | $1003.37 | $0.00 |
| 2025 | 10566 | FD1 - FIRE DISTRICT #1 | $485.76 | $485.76 | $0.00 | $0.00 | $971.52 | $0.00 |
| 2025 | 10566 | EMS1 - FIRE DIST #1 EMS | $186.84 | $186.83 | $0.00 | $0.00 | $373.67 | $0.00 |
| 2025 | 10566 | FP - DNR Forest Fire Protection Assmt | $8.50 | $8.50 | $0.00 | $0.00 | $17.00 | $0.00 |
| 2025 | 10566 | FPLCA - DNR Landowner Contingency Assmt | $3.00 | $3.00 | $0.00 | $0.00 | $6.00 | $0.00 |
| 2025 | 10566 | JCCD - JC Conservation District | $2.80 | $2.80 | $0.00 | $0.00 | $5.60 | $0.00 |
| 2025 | 10566 | NWA - Noxious Weed Assessment | $2.90 | $2.90 | $0.00 | $0.00 | $5.80 | $0.00 |
| 2025 | 10566 | OSS - On Site Septic | $21.50 | $21.50 | $0.00 | $0.00 | $43.00 | $0.00 |
| 2025 | 10566 | WAT - Clean Water District | $13.00 | $13.00 | $0.00 | $0.00 | $26.00 | $0.00 |
| 2025 | 10566 | FP ADMIN - FP ADMIN | $0.50 | $0.00 | $0.00 | $0.00 | $0.50 | $0.00 |
| 2025 | 10566 | TOTAL: | $3146.55 | $3145.95 | $0.00 | $0.00 | $6292.50 | $0.00 |
|
| 2025 | 10566 | $3146.55 | $3145.95 | $0.00 | $0.00 | $6292.50 | $0.00 |
Statement Details |
| 2024 | 10591 | STATE - STATE LEVY (SCHOOL) | $854.84 | $854.82 | $0.00 | $0.00 | $1709.66 | $0.00 |
| 2024 | 10591 | COUNTY - COUNTY LEVIES (CE, DD, VET, MH) | $365.80 | $365.78 | $0.00 | $0.00 | $731.58 | $0.00 |
| 2024 | 10591 | CONSERVE - CONSERVATION FUTURES | $10.97 | $10.97 | $0.00 | $0.00 | $21.94 | $0.00 |
| 2024 | 10591 | COROADS - COUNTY ROADS (ROADS, DIV TO CE) | $294.34 | $294.34 | $0.00 | $0.00 | $588.68 | $0.00 |
| 2024 | 10591 | PORTPT - PORT DISTRICT | $151.09 | $151.08 | $0.00 | $0.00 | $302.17 | $0.00 |
| 2024 | 10591 | PUD1 - PUD #1 | $24.03 | $24.02 | $0.00 | $0.00 | $48.05 | $0.00 |
| 2024 | 10591 | LIB1 - LIBRARY DIST #1 | $113.88 | $113.88 | $0.00 | $0.00 | $227.76 | $0.00 |
| 2024 | 10591 | HD2 - HOSP DIST #2 | $21.35 | $21.34 | $0.00 | $0.00 | $42.69 | $0.00 |
| 2024 | 10591 | SD49 - SCHOOL DIST #49 | $381.73 | $381.72 | $0.00 | $0.00 | $763.45 | $0.00 |
| 2024 | 10591 | FD1 - FIRE DISTRICT #1 | $483.67 | $483.66 | $0.00 | $0.00 | $967.33 | $0.00 |
| 2024 | 10591 | EMS1 - FIRE DIST #1 EMS | $184.74 | $184.74 | $0.00 | $0.00 | $369.48 | $0.00 |
| 2024 | 10591 | FP - DNR Forest Fire Protection Assmt | $8.50 | $8.50 | $0.00 | $0.00 | $17.00 | $0.00 |
| 2024 | 10591 | FPLCA - DNR Landowner Contingency Assmt | $3.00 | $3.00 | $0.00 | $0.00 | $6.00 | $0.00 |
| 2024 | 10591 | JCCD - JC Conservation District | $2.80 | $2.80 | $0.00 | $0.00 | $5.60 | $0.00 |
| 2024 | 10591 | NWA - Noxious Weed Assessment | $2.90 | $2.90 | $0.00 | $0.00 | $5.80 | $0.00 |
| 2024 | 10591 | OSS - On Site Septic | $21.00 | $21.00 | $0.00 | $0.00 | $42.00 | $0.00 |
| 2024 | 10591 | WAT - Clean Water District | $12.50 | $12.50 | $0.00 | $0.00 | $25.00 | $0.00 |
| 2024 | 10591 | FP ADMIN - FP ADMIN | $0.50 | $0.00 | $0.00 | $0.00 | $0.50 | $0.00 |
| 2024 | 10591 | TOTAL: | $2937.64 | $2937.05 | $0.00 | $0.00 | $5874.69 | $0.00 |
|
| 2024 | 10591 | $2937.64 | $2937.05 | $0.00 | $0.00 | $5874.69 | $0.00 |
Statement Details |
| 2023 | 10611 | STATE - STATE LEVY (SCHOOL) | $907.42 | $907.42 | $0.00 | $0.00 | $1814.84 | $0.00 |
| 2023 | 10611 | COUNTY - COUNTY LEVIES (CE, DD, VET, MH) | $395.98 | $395.96 | $0.00 | $0.00 | $791.94 | $0.00 |
| 2023 | 10611 | CONSERVE - CONSERVATION FUTURES | $11.88 | $11.87 | $0.00 | $0.00 | $23.75 | $0.00 |
| 2023 | 10611 | COROADS - COUNTY ROADS (ROADS, DIV TO CE) | $320.37 | $320.36 | $0.00 | $0.00 | $640.73 | $0.00 |
| 2023 | 10611 | PORTPT - PORT DISTRICT | $166.80 | $166.80 | $0.00 | $0.00 | $333.60 | $0.00 |
| 2023 | 10611 | PUD1 - PUD #1 | $26.25 | $26.25 | $0.00 | $0.00 | $52.50 | $0.00 |
| 2023 | 10611 | LIB1 - LIBRARY DIST #1 | $123.95 | $123.95 | $0.00 | $0.00 | $247.90 | $0.00 |
| 2023 | 10611 | HD2 - HOSP DIST #2 | $23.12 | $23.10 | $0.00 | $0.00 | $46.22 | $0.00 |
| 2023 | 10611 | SD49 - SCHOOL DIST #49 | $424.17 | $424.16 | $0.00 | $0.00 | $848.33 | $0.00 |
| 2023 | 10611 | FD3 - FIRE DISTRICT #3 | $393.94 | $393.93 | $0.00 | $0.00 | $787.87 | $0.00 |
| 2023 | 10611 | EMS3 - FIRE DIST #3 EMS | $140.83 | $140.83 | $0.00 | $0.00 | $281.66 | $0.00 |
| 2023 | 10611 | FP - DNR Forest Fire Protection Assmt | $8.50 | $8.50 | $0.00 | $0.00 | $17.00 | $0.00 |
| 2023 | 10611 | FPLCA - DNR Landowner Contingency Assmt | $3.00 | $3.00 | $0.00 | $0.00 | $6.00 | $0.00 |
| 2023 | 10611 | JCCD - JC Conservation District | $2.80 | $2.80 | $0.00 | $0.00 | $5.60 | $0.00 |
| 2023 | 10611 | NWA - Noxious Weed Assessment | $2.90 | $2.90 | $0.00 | $0.00 | $5.80 | $0.00 |
| 2023 | 10611 | OSS - On Site Septic | $20.50 | $20.50 | $0.00 | $0.00 | $41.00 | $0.00 |
| 2023 | 10611 | WAT - Clean Water District | $12.00 | $12.00 | $0.00 | $0.00 | $24.00 | $0.00 |
| 2023 | 10611 | FP ADMIN - FP ADMIN | $0.50 | $0.00 | $0.00 | $0.00 | $0.50 | $0.00 |
| 2023 | 10611 | TOTAL: | $2984.91 | $2984.33 | $0.00 | $0.00 | $5969.24 | $0.00 |
|
| 2023 | 10611 | $2984.91 | $2984.33 | $0.00 | $0.00 | $5969.24 | $0.00 |
Values
| (+) Improvement Homesite Value: | + | $0 | |
| (+) Improvement Non-Homesite Value: | + | $600,232 | |
| (+) Land Homesite Value: | + | $0 | |
| (+) Land Non-Homesite Value: | + | $214,832 | |
| (+) Curr Use (HS): | + | $0 | $0 |
| (+) Curr Use (NHS): | + | $0 | $0 |
| | | -------------------------- | |
| (=) Market Value: | = | $815,064 | |
| (–) Productivity Loss: | – | $0 | |
| | | -------------------------- | |
| (=) Subtotal: | = | $815,064 | |
| (+) Senior Appraised Value: | + | $0 | |
| (+) Non-Senior Appraised Value: | + | $815,064 | |
| | | -------------------------- | |
| (=) Total Appraised Value: | = | $815,064 | |
| (–) Senior Exemption Loss: | – | $0 | |
| (–) Exemption Loss: | – | $0 | |
| | | -------------------------- | |
| (=) Taxable Value: | = | $815,064 | |
Taxing Jurisdiction
| Owner: | ADAM LAWSON & TRACEY MARVIN | | |
| % Ownership: | 100.0000000000% | | |
| Total Value: | $815,064 | | |
| Tax Area: | 0213 - 1-49F1E1H2L1 |
| CE | COUNTY CURRENT EXPENSE | 0.9034619479 | $815,064 | $815,064 | $736.38 | | |
| CNTYDD | DEVELOPMENTAL DISABILITIES | 0.0052121823 | $815,064 | $815,064 | $4.25 | | |
| CNTYVET | VETERANS RELIEF | 0.0052777810 | $815,064 | $815,064 | $4.30 | | |
| MENTAL | MENTAL HEALTH | 0.0052121823 | $815,064 | $815,064 | $4.25 | | |
| ROADS | COUNTY ROADS | 0.7415066410 | $815,064 | $815,064 | $604.38 | | |
| ROADSCU | COUNTY ROADS TO CUR EXP | 0.0000000000 | $815,064 | $815,064 | $0.00 | | |
| HOSP2CASH | HOSP DIST #2 GENERAL | 0.0536075306 | $815,064 | $815,064 | $43.69 | | |
| SCH49CP | SCHOOL DIST #49 CAP PROJ | 0.6279093905 | $815,064 | $815,064 | $511.79 | | |
| SCH49MO | SCHOOL DIST #49 EP & O | 0.6376483602 | $815,064 | $815,064 | $519.72 | | |
| CONSERVE | CONSERVATION FUTURES | 0.0275621078 | $815,064 | $815,064 | $22.46 | | |
| EMS1 | FIRE DIST #1 EMS | 0.4679948282 | $815,064 | $815,064 | $381.45 | | |
| FD1 | FIRE DIST #1 GENERAL | 1.2171942929 | $815,064 | $815,064 | $992.09 | | |
| LIB1 | LIBRARY DIST #1 GENERAL | 0.2868827388 | $815,064 | $815,064 | $233.83 | | |
| PORTPT | PORT OF PT GENERAL | 0.1134941229 | $815,064 | $815,064 | $92.50 | | |
| PORTPTIDD | PORT OF PT IDD 2019 | 0.2577346692 | $815,064 | $815,064 | $210.07 | | |
| PUD1 | PUD #1 GENERAL | 0.0597888892 | $815,064 | $815,064 | $48.73 | | |
| STATE | STATE SCHOOL PART 1 | 1.4940692947 | $815,064 | $815,064 | $1,217.76 | | |
| STATE2 | STATE SCHOOL PART 2 | 0.8050170049 | $815,064 | $815,064 | $656.14 | | |
| | Total Tax Rate: | 7.7095739644 | | | | | |
| | | | | Taxes w/Current Exemptions: | $6,283.79 | | |
| | | | | Taxes w/o Exemptions: | $6,283.79 | | |
Improvement / Building
| Improvement #1: | Residential Bldg | State Code: | 11 | 3715.0 sqft | Value: | $600,232 |
| Bathrooms (#): | 2 (FULL) | Bathrooms (#): | 1 (HALF) | | Bedrooms (#): | 3 | Exterior Wall: | SI/ST | | Fireplace: | SIN 1-GOOD | Fireplace: | SIN 2-GOOD | | Floor Construction: | FRAME | Foundation: | CONPR | | Heating/Cooling: | F/A | Inside Verify: | NO | | Roof Cover: | COMP |   |   |
|
| | Type | Description | Class CD | Sub Class CD | Year Built | Area |
| | MA | Main Area | 3+ | 15SF | 1999 | 1740.0 |
| | MA2 | Second Floor Main Area | 3+ | 15SF | 1999 | 1975.0 |
| | HWPOR | House Wood Porch | 3 | * | 1999 | 792.0 |
| | HBAL | House Balcony | 3 | * | 1999 | 88.0 |
| | HDECK | House Deck | 4 | * | 1999 | 442.0 |
| | GBLTIN | Builtin Garage | 4 | * | 1999 | 1020.0 |
| | ADDN | Addition (Table Not Dep) | 3 | * | 1999 | 600.0 |
| | SHED | Shed (Table Not Dep) | 4 | * | 1999 | 130.0 |
| | ASPHD | Asphalt Drive | 4 | * | 1999 | 5000.0 |
| | CONCD | Concrete Drive | 4 | * | 1999 | 600.0 |
| | GDET | Detached Garage | 4 | * | 1999 | 720.0 |
Sketch
Property Image
Land
| 1 | 3375-1355S | | 1.0000 | 43560.00 | 0.00 | 0.00 | 1.00 | $172,500 | $0 |
| 2 | 1575A | | 4.0900 | 178160.40 | 0.00 | 0.00 | 0.00 | $42,332 | $0 |
Roll Value History
| 2026 | N/A | N/A | N/A | N/A | N/A |
| 2025 | $600,232 | $214,832 | $0 | $815,064 | $815,064 |
| 2024 | $575,222 | $205,491 | $0 | $780,713 | $780,713 |
| 2023 | $550,212 | $188,753 | $0 | $738,965 | $738,965 |
| 2022 | $600,232 | $170,675 | $0 | $770,907 | $770,907 |
Deed and Sales History
| 1 | 09/11/2020 | QCD | Quit Claim Deed | ADAM LAWSON | ADAM LAWSON & TRACEY MARVIN | | | | 135149 | |
| 2 | 07/20/2020 | QCD | Quit Claim Deed | | | | | | 134745 | |
| 3 | 07/20/2020 | SWD | Statutory Warranty Deed | VALERIE FEERO & GRANT LAWSON | ADAM LAWSON | | | $300,000.00 | 134743 | |
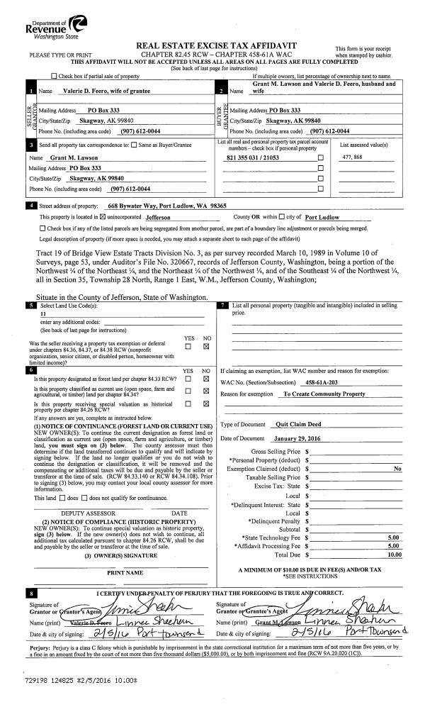
| 4 | 01/29/2016 | QCD | Quit Claim Deed | VALERIE D FEERO | VALERIE FEERO & GRANT LAWSON | | | | 124825 | |
| 5 | 04/22/2008 | QCD | Quit Claim Deed | ANDERSON, ROBERT P | FEERO, VALERIE D AKA ANDERSON, | 0 | 0 | $0.00 | 114101 | 0 |
| 6 | 11/30/2000 | SWD | Statutory Warranty Deed | PATTERSON, KENNETH/CAROL | ANDERSON, ROBERT P/VALERIE | 0 | 0 | $425,000.00 | 91155 | 0 |
| 7 | 01/25/1999 | SWD | Statutory Warranty Deed | YOUNG, ERIC R/KIRSTIE A | PATTERSON, KENNETH P/CAROL A | 0 | 0 | $75,000.00 | 86255 | 0 |
Payout Agreement
| No payout information available.. |