Property
Account |
| Property ID: | 21070 | Abbreviated Legal Description: | OLYMPIC RIDGE ESTATES PARCEL 12 (REV) V14/P157 |
| Parcel # / Geo ID: | 821355048 | Agent Code: | |
| Type: | Real | | |
| Tax Area: | 0213 - 1-49F1E1H2L1 | Land Use Code | 11 |
| Open Space: | N | DFL | N |
| Historic Property: | N | Remodel Property: | N |
| Multi-Family Redevelopment: | N | | |
| Township: | 28N | Section: | 35 |
| Range: | 1E |
Location |
| Address: | 72 FERN GULLY PORT LUDLOW, WA 98365 | Mapsco: | 252/012 |
| Neighborhood: | BRIDGE VIEW EST.; OLYMPIC RIDGE; S35 T28N R1E; BROOKS,PRINCE | Map ID: | |
| Neighborhood CD: | 3375 |
Owner |
| Name: | LESLIE E & JEFFERY E TAYLOR | Owner ID: | 111906 |
| Mailing Address: | 72 FERN GULLY PORT LUDLOW, WA 98365-9483 | % Ownership: | 100.0000000000% |
| | | Exemptions: | |
Pay Tax Due
Select the appropriate checkbox next to the year to be paid. Multiple years may be selected.
*Convenience Fee not included
Taxes and Assessment Details
Property Tax Information as of
03/10/2026
Click on "Statement Details" to expand or collapse a tax statement.
* Please enter a valid date ** Please enter a valid date *
Statement Details |
| 2026 | 10560 | STATE - STATE LEVY (SCHOOL) | $1498.58 | $1498.57 | $0.00 | $0.00 | $0.00 | $2997.15 |
| 2026 | 10560 | COUNTY - COUNTY LEVIES (CE, DD, VET, MH) | $599.13 | $599.11 | $0.00 | $0.00 | $0.00 | $1198.24 |
| 2026 | 10560 | CONSERVE - CONSERVATION FUTURES | $17.97 | $17.96 | $0.00 | $0.00 | $0.00 | $35.93 |
| 2026 | 10560 | COROADS - COUNTY ROADS (ROADS, DIV TO CE) | $483.33 | $483.32 | $0.00 | $0.00 | $0.00 | $966.65 |
| 2026 | 10560 | PORTPT - PORT DISTRICT | $241.98 | $241.96 | $0.00 | $0.00 | $0.00 | $483.94 |
| 2026 | 10560 | PUD1 - PUD #1 | $38.97 | $38.97 | $0.00 | $0.00 | $0.00 | $77.94 |
| 2026 | 10560 | LIB1 - LIBRARY DIST #1 | $187.00 | $186.99 | $0.00 | $0.00 | $0.00 | $373.99 |
| 2026 | 10560 | HD2 - HOSP DIST #2 | $34.94 | $34.94 | $0.00 | $0.00 | $0.00 | $69.88 |
| 2026 | 10560 | SD49 - SCHOOL DIST #49 | $824.91 | $824.90 | $0.00 | $0.00 | $0.00 | $1649.81 |
| 2026 | 10560 | FD1 - FIRE DISTRICT #1 | $793.38 | $793.38 | $0.00 | $0.00 | $0.00 | $1586.76 |
| 2026 | 10560 | EMS1 - FIRE DIST #1 EMS | $305.05 | $305.04 | $0.00 | $0.00 | $0.00 | $610.09 |
| 2026 | 10560 | FP - DNR Forest Fire Protection Assmt | $8.50 | $8.50 | $0.00 | $0.00 | $0.00 | $17.00 |
| 2026 | 10560 | FPLCA - DNR Landowner Contingency Assmt | $3.00 | $3.00 | $0.00 | $0.00 | $0.00 | $6.00 |
| 2026 | 10560 | JCCD - JC Conservation District | $2.70 | $2.70 | $0.00 | $0.00 | $0.00 | $5.40 |
| 2026 | 10560 | NWA - Noxious Weed Assessment | $3.65 | $3.65 | $0.00 | $0.00 | $0.00 | $7.30 |
| 2026 | 10560 | OSS - On Site Septic | $23.10 | $23.10 | $0.00 | $0.00 | $0.00 | $46.20 |
| 2026 | 10560 | WAT - Clean Water District | $13.00 | $13.00 | $0.00 | $0.00 | $0.00 | $26.00 |
| 2026 | 10560 | FP ADMIN - FP ADMIN | $0.50 | $0.00 | $0.00 | $0.00 | $0.00 | $0.50 |
| 2026 | 10560 | TOTAL: | $5079.69 | $5079.09 | $0.00 | $0.00 | $0.00 | $10158.78 |
|
| 2026 | 10560 | $5079.69 | $5079.09 | $0.00 | $0.00 | $0.00 | $10158.78 |
Statement Details |
| 2025 | 10583 | STATE - STATE LEVY (SCHOOL) | $1497.43 | $1497.43 | $0.00 | $0.00 | $2994.86 | $0.00 |
| 2025 | 10583 | COUNTY - COUNTY LEVIES (CE, DD, VET, MH) | $588.86 | $588.85 | $0.00 | $0.00 | $1177.71 | $0.00 |
| 2025 | 10583 | CONSERVE - CONSERVATION FUTURES | $17.66 | $17.65 | $0.00 | $0.00 | $35.31 | $0.00 |
| 2025 | 10583 | COROADS - COUNTY ROADS (ROADS, DIV TO CE) | $471.77 | $471.76 | $0.00 | $0.00 | $943.53 | $0.00 |
| 2025 | 10583 | PORTPT - PORT DISTRICT | $240.29 | $240.29 | $0.00 | $0.00 | $480.58 | $0.00 |
| 2025 | 10583 | PUD1 - PUD #1 | $38.53 | $38.53 | $0.00 | $0.00 | $77.06 | $0.00 |
| 2025 | 10583 | LIB1 - LIBRARY DIST #1 | $182.52 | $182.52 | $0.00 | $0.00 | $365.04 | $0.00 |
| 2025 | 10583 | HD2 - HOSP DIST #2 | $34.36 | $34.35 | $0.00 | $0.00 | $68.71 | $0.00 |
| 2025 | 10583 | SD49 - SCHOOL DIST #49 | $802.54 | $802.52 | $0.00 | $0.00 | $1605.06 | $0.00 |
| 2025 | 10583 | FD1 - FIRE DISTRICT #1 | $777.06 | $777.06 | $0.00 | $0.00 | $1554.12 | $0.00 |
| 2025 | 10583 | EMS1 - FIRE DIST #1 EMS | $298.88 | $298.88 | $0.00 | $0.00 | $597.76 | $0.00 |
| 2025 | 10583 | FP - DNR Forest Fire Protection Assmt | $8.50 | $8.50 | $0.00 | $0.00 | $17.00 | $0.00 |
| 2025 | 10583 | FPLCA - DNR Landowner Contingency Assmt | $3.00 | $3.00 | $0.00 | $0.00 | $6.00 | $0.00 |
| 2025 | 10583 | JCCD - JC Conservation District | $2.70 | $2.70 | $0.00 | $0.00 | $5.40 | $0.00 |
| 2025 | 10583 | NWA - Noxious Weed Assessment | $2.60 | $2.60 | $0.00 | $0.00 | $5.20 | $0.00 |
| 2025 | 10583 | OSS - On Site Septic | $21.50 | $21.50 | $0.00 | $0.00 | $43.00 | $0.00 |
| 2025 | 10583 | WAT - Clean Water District | $13.00 | $13.00 | $0.00 | $0.00 | $26.00 | $0.00 |
| 2025 | 10583 | FP ADMIN - FP ADMIN | $0.50 | $0.00 | $0.00 | $0.00 | $0.50 | $0.00 |
| 2025 | 10583 | TOTAL: | $5001.70 | $5001.14 | $0.00 | $0.00 | $10002.84 | $0.00 |
|
| 2025 | 10583 | $5001.70 | $5001.14 | $0.00 | $0.00 | $10002.84 | $0.00 |
Statement Details |
| 2024 | 10608 | STATE - STATE LEVY (SCHOOL) | $1375.32 | $1375.30 | $0.00 | $0.00 | $2750.62 | $0.00 |
| 2024 | 10608 | COUNTY - COUNTY LEVIES (CE, DD, VET, MH) | $588.53 | $588.50 | $0.00 | $0.00 | $1177.03 | $0.00 |
| 2024 | 10608 | CONSERVE - CONSERVATION FUTURES | $17.65 | $17.64 | $0.00 | $0.00 | $35.29 | $0.00 |
| 2024 | 10608 | COROADS - COUNTY ROADS (ROADS, DIV TO CE) | $473.56 | $473.55 | $0.00 | $0.00 | $947.11 | $0.00 |
| 2024 | 10608 | PORTPT - PORT DISTRICT | $243.09 | $243.07 | $0.00 | $0.00 | $486.16 | $0.00 |
| 2024 | 10608 | PUD1 - PUD #1 | $38.66 | $38.65 | $0.00 | $0.00 | $77.31 | $0.00 |
| 2024 | 10608 | LIB1 - LIBRARY DIST #1 | $183.22 | $183.21 | $0.00 | $0.00 | $366.43 | $0.00 |
| 2024 | 10608 | HD2 - HOSP DIST #2 | $34.34 | $34.34 | $0.00 | $0.00 | $68.68 | $0.00 |
| 2024 | 10608 | SD49 - SCHOOL DIST #49 | $614.15 | $614.14 | $0.00 | $0.00 | $1228.29 | $0.00 |
| 2024 | 10608 | FD1 - FIRE DISTRICT #1 | $778.15 | $778.15 | $0.00 | $0.00 | $1556.30 | $0.00 |
| 2024 | 10608 | EMS1 - FIRE DIST #1 EMS | $297.23 | $297.22 | $0.00 | $0.00 | $594.45 | $0.00 |
| 2024 | 10608 | FP - DNR Forest Fire Protection Assmt | $8.50 | $8.50 | $0.00 | $0.00 | $17.00 | $0.00 |
| 2024 | 10608 | FPLCA - DNR Landowner Contingency Assmt | $3.00 | $3.00 | $0.00 | $0.00 | $6.00 | $0.00 |
| 2024 | 10608 | JCCD - JC Conservation District | $2.70 | $2.70 | $0.00 | $0.00 | $5.40 | $0.00 |
| 2024 | 10608 | NWA - Noxious Weed Assessment | $2.60 | $2.60 | $0.00 | $0.00 | $5.20 | $0.00 |
| 2024 | 10608 | OSS - On Site Septic | $21.00 | $21.00 | $0.00 | $0.00 | $42.00 | $0.00 |
| 2024 | 10608 | WAT - Clean Water District | $12.50 | $12.50 | $0.00 | $0.00 | $25.00 | $0.00 |
| 2024 | 10608 | FP ADMIN - FP ADMIN | $0.50 | $0.00 | $0.00 | $0.00 | $0.50 | $0.00 |
| 2024 | 10608 | TOTAL: | $4694.70 | $4694.07 | $0.00 | $0.00 | $9388.77 | $0.00 |
|
| 2024 | 10608 | $4694.70 | $4694.07 | $0.00 | $0.00 | $9388.77 | $0.00 |
Statement Details |
| 2023 | 10628 | STATE - STATE LEVY (SCHOOL) | $1481.88 | $1481.88 | $0.00 | $0.00 | $2963.76 | $0.00 |
| 2023 | 10628 | COUNTY - COUNTY LEVIES (CE, DD, VET, MH) | $646.65 | $646.63 | $0.00 | $0.00 | $1293.28 | $0.00 |
| 2023 | 10628 | CONSERVE - CONSERVATION FUTURES | $19.39 | $19.39 | $0.00 | $0.00 | $38.78 | $0.00 |
| 2023 | 10628 | COROADS - COUNTY ROADS (ROADS, DIV TO CE) | $523.19 | $523.17 | $0.00 | $0.00 | $1046.36 | $0.00 |
| 2023 | 10628 | PORTPT - PORT DISTRICT | $272.41 | $272.40 | $0.00 | $0.00 | $544.81 | $0.00 |
| 2023 | 10628 | PUD1 - PUD #1 | $42.87 | $42.86 | $0.00 | $0.00 | $85.73 | $0.00 |
| 2023 | 10628 | LIB1 - LIBRARY DIST #1 | $202.42 | $202.41 | $0.00 | $0.00 | $404.83 | $0.00 |
| 2023 | 10628 | HD2 - HOSP DIST #2 | $37.74 | $37.73 | $0.00 | $0.00 | $75.47 | $0.00 |
| 2023 | 10628 | SD49 - SCHOOL DIST #49 | $692.70 | $692.69 | $0.00 | $0.00 | $1385.39 | $0.00 |
| 2023 | 10628 | FD3 - FIRE DISTRICT #3 | $643.33 | $643.32 | $0.00 | $0.00 | $1286.65 | $0.00 |
| 2023 | 10628 | EMS3 - FIRE DIST #3 EMS | $229.99 | $229.99 | $0.00 | $0.00 | $459.98 | $0.00 |
| 2023 | 10628 | FP - DNR Forest Fire Protection Assmt | $8.50 | $8.50 | $0.00 | $0.00 | $17.00 | $0.00 |
| 2023 | 10628 | FPLCA - DNR Landowner Contingency Assmt | $3.00 | $3.00 | $0.00 | $0.00 | $6.00 | $0.00 |
| 2023 | 10628 | JCCD - JC Conservation District | $2.70 | $2.70 | $0.00 | $0.00 | $5.40 | $0.00 |
| 2023 | 10628 | NWA - Noxious Weed Assessment | $2.60 | $2.60 | $0.00 | $0.00 | $5.20 | $0.00 |
| 2023 | 10628 | OSS - On Site Septic | $20.50 | $20.50 | $0.00 | $0.00 | $41.00 | $0.00 |
| 2023 | 10628 | WAT - Clean Water District | $12.00 | $12.00 | $0.00 | $0.00 | $24.00 | $0.00 |
| 2023 | 10628 | FP ADMIN - FP ADMIN | $0.50 | $0.00 | $0.00 | $0.00 | $0.50 | $0.00 |
| 2023 | 10628 | TOTAL: | $4842.37 | $4841.77 | $0.00 | $0.00 | $9684.14 | $0.00 |
|
| 2023 | 10628 | $4842.37 | $4841.77 | $0.00 | $0.00 | $9684.14 | $0.00 |
Values
| (+) Improvement Homesite Value: | + | $0 | |
| (+) Improvement Non-Homesite Value: | + | $1,070,865 | |
| (+) Land Homesite Value: | + | $0 | |
| (+) Land Non-Homesite Value: | + | $232,760 | |
| (+) Curr Use (HS): | + | $0 | $0 |
| (+) Curr Use (NHS): | + | $0 | $0 |
| | | -------------------------- | |
| (=) Market Value: | = | $1,303,625 | |
| (–) Productivity Loss: | – | $0 | |
| | | -------------------------- | |
| (=) Subtotal: | = | $1,303,625 | |
| (+) Senior Appraised Value: | + | $0 | |
| (+) Non-Senior Appraised Value: | + | $1,303,625 | |
| | | -------------------------- | |
| (=) Total Appraised Value: | = | $1,303,625 | |
| (–) Senior Exemption Loss: | – | $0 | |
| (–) Exemption Loss: | – | $0 | |
| | | -------------------------- | |
| (=) Taxable Value: | = | $1,303,625 | |
Taxing Jurisdiction
| Owner: | LESLIE E & JEFFERY E TAYLOR | | |
| % Ownership: | 100.0000000000% | | |
| Total Value: | $1,303,625 | | |
| Tax Area: | 0213 - 1-49F1E1H2L1 |
| CE | COUNTY CURRENT EXPENSE | 0.9034619479 | $1,303,625 | $1,303,625 | $1,177.78 | | |
| CNTYDD | DEVELOPMENTAL DISABILITIES | 0.0052121823 | $1,303,625 | $1,303,625 | $6.79 | | |
| CNTYVET | VETERANS RELIEF | 0.0052777810 | $1,303,625 | $1,303,625 | $6.88 | | |
| MENTAL | MENTAL HEALTH | 0.0052121823 | $1,303,625 | $1,303,625 | $6.79 | | |
| ROADS | COUNTY ROADS | 0.7415066410 | $1,303,625 | $1,303,625 | $966.65 | | |
| ROADSCU | COUNTY ROADS TO CUR EXP | 0.0000000000 | $1,303,625 | $1,303,625 | $0.00 | | |
| HOSP2CASH | HOSP DIST #2 GENERAL | 0.0536075306 | $1,303,625 | $1,303,625 | $69.88 | | |
| SCH49CP | SCHOOL DIST #49 CAP PROJ | 0.6279093905 | $1,303,625 | $1,303,625 | $818.56 | | |
| SCH49MO | SCHOOL DIST #49 EP & O | 0.6376483602 | $1,303,625 | $1,303,625 | $831.25 | | |
| CONSERVE | CONSERVATION FUTURES | 0.0275621078 | $1,303,625 | $1,303,625 | $35.93 | | |
| EMS1 | FIRE DIST #1 EMS | 0.4679948282 | $1,303,625 | $1,303,625 | $610.09 | | |
| FD1 | FIRE DIST #1 GENERAL | 1.2171942929 | $1,303,625 | $1,303,625 | $1,586.76 | | |
| LIB1 | LIBRARY DIST #1 GENERAL | 0.2868827388 | $1,303,625 | $1,303,625 | $373.99 | | |
| PORTPT | PORT OF PT GENERAL | 0.1134941229 | $1,303,625 | $1,303,625 | $147.95 | | |
| PORTPTIDD | PORT OF PT IDD 2019 | 0.2577346692 | $1,303,625 | $1,303,625 | $335.99 | | |
| PUD1 | PUD #1 GENERAL | 0.0597888892 | $1,303,625 | $1,303,625 | $77.94 | | |
| STATE | STATE SCHOOL PART 1 | 1.4940692947 | $1,303,625 | $1,303,625 | $1,947.71 | | |
| STATE2 | STATE SCHOOL PART 2 | 0.8050170049 | $1,303,625 | $1,303,625 | $1,049.44 | | |
| | Total Tax Rate: | 7.7095739644 | | | | | |
| | | | | Taxes w/Current Exemptions: | $10,050.38 | | |
| | | | | Taxes w/o Exemptions: | $10,050.38 | | |
Improvement / Building
| Improvement #1: | Residential Bldg | State Code: | 11 | 2518.0 sqft | Value: | $809,717 |
| Bathrooms (#): | 2 (FULL) | Bedrooms (#): | 3 | | Exterior Wall: | SI/ST | Fireplace: | PROPS-GOOD | | Floor Construction: | FRAME | Foundation: | CONPR | | Heating/Cooling: | ELBB | Inside Verify: | NO | | Roof Cover: | COMP |   |   |
|
| | Type | Description | Class CD | Sub Class CD | Year Built | Area |
| | MA | Main Area | 5 | 15SF | 2011 | 2518.0 |
| | HDECK | House Deck | 5 | * | 2011 | 104.0 |
| | HLOFT | House Loft | 5 | * | 2011 | 144.0 |
| | BSMTF | House basement finished | 5 | * | 2011 | 1708.0 |
| | HWPOR | House Wood Porch | 5 | * | 2011 | 36.0 |
| | HWPOR | House Wood Porch | 5 | * | 2011 | 168.0 |
| | HDECK | House Deck | 5 | * | 2011 | 382.0 |
| | HDECK | House Deck | 5 | * | 2011 | 120.0 |
| | HDECK | House Deck | 5 | * | 2011 | 336.0 |
| | PATIO | House Patio | 5 | * | 2011 | 500.0 |
| | GDET | Detached Garage | 5 | * | 2022 | 576.0 |
| Improvement #2: | Residential Bldg | State Code: | 11 | 1280.0 sqft | Value: | $261,148 |
| Bathrooms (#): | 1 (FULL) | Exterior Wall: | PL/T1 | | Floor Construction: | CONCR | Foundation: | CONPR | | Heating/Cooling: | ELBB | Inside Verify: | NO | | Roof Cover: | COMP |   |   |
|
| | Type | Description | Class CD | Sub Class CD | Year Built | Area |
| | MA | Main Area | 4 | 2S | 2016 | 640.0 |
| | MA2 | Second Floor Main Area | 4 | 2S | 2016 | 640.0 |
| | HWPOR | House Wood Porch | 4 | * | 2016 | 160.0 |
| | HDECK | House Deck | 4 | * | 2016 | 240.0 |
Sketch
Property Image
Land
| 1 | 3375-1555A | | 2.1600 | 94089.60 | 0.00 | 0.00 | 0.00 | $37,260 | $0 |
| 2 | 3375-1345S | | 1.0000 | 43560.00 | 0.00 | 0.00 | 1.00 | $195,500 | $0 |
Roll Value History
| 2026 | N/A | N/A | N/A | N/A | N/A |
| 2025 | $1,070,865 | $232,760 | $0 | $1,303,625 | $1,303,625 |
| 2024 | $1,026,245 | $222,640 | $0 | $1,248,885 | $1,248,885 |
| 2023 | $981,625 | $207,270 | $0 | $1,188,895 | $1,188,895 |
| 2022 | $1,070,865 | $188,080 | $0 | $1,258,945 | $1,258,945 |
Deed and Sales History
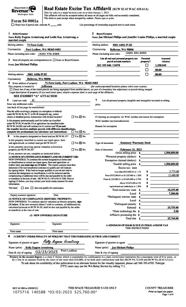
| 1 | 12/13/2024 | SWD | Statutory Warranty Deed | JAN M & JENNIFER L PHILIPS | LESLIE E & JEFFERY E TAYLOR | | | $1,535,000.00 | 143631 | |
| 2 | 02/21/2023 | SWD | Statutory Warranty Deed | KELLY E & LESLIE K ARMSTRONG | JAN M & JENNIFER L PHILIPS | | | $1,500,000.00 | 140588 | |
| 3 | 10/29/2020 | SWD | Statutory Warranty Deed | SHAWN TYSON | KELLY E & LESLIE K ARMSTRONG | | | $1,260,000.00 | 135473 | |
| 4 | 11/13/2008 | SWD | Statutory Warranty Deed | STEWARD, ALAN/MARCIA | TYSON, SHAWN M | 0 | 0 | $210,000.00 | 112234 | 0 |
| 5 | 07/21/2005 | SWD | Statutory Warranty Deed | BIMA TRUSTEE, ROBERT L | STEWARD, ALAN/MARCIA | | | $185,000.00 | 104321 | 0 |
| 6 | 10/04/2004 | SWD | Statutory Warranty Deed | BERTLIN, DEBORAH A LLOYD/ | BIMA, ROBERT LEE/JOYCE ANN | 0 | 0 | $95,000.00 | 101736 | 0 |
| 7 | 03/17/1994 | REC | Real Estate Contract | POPE RESOURCES | LLOYD, DEBORAH A | 0 | 0 | $69,500.00 | 73673 | 0 |
Payout Agreement
| No payout information available.. |