Property
Account |
| Property ID: | 21110 | Abbreviated Legal Description: | S1 T29N R1W TAX 57 BND THRU BLA#142238 SUBJ/EASE |
| Parcel # / Geo ID: | 901013014 | Agent Code: | |
| Type: | Real | | |
| Tax Area: | 0211 - 1-49F1E1H2L1 | Land Use Code | 53 |
| Open Space: | N | DFL | N |
| Historic Property: | N | Remodel Property: | N |
| Multi-Family Redevelopment: | N | | |
| Township: | 29N | Section: | 1 |
| Range: | 1W |
Location |
| Address: | | Mapsco: | 201/029A |
| Neighborhood: | HADLOCK COMMERCIAL CENTER | Map ID: | |
| Neighborhood CD: | 4210C |
Owner |
| Name: | HADLOCK DEVELOPMENT COMPANY | Owner ID: | 17209 |
| Mailing Address: | PO BOX 179 PORT HADLOCK, WA 98339-0179 | % Ownership: | 100.0000000000% |
| | | Exemptions: | |
Pay Tax Due
Select the appropriate checkbox next to the year to be paid. Multiple years may be selected.
*Convenience Fee not included
Taxes and Assessment Details
Property Tax Information as of
03/10/2026
Click on "Statement Details" to expand or collapse a tax statement.
* Please enter a valid date ** Please enter a valid date *
Statement Details |
| 2026 | 10599 | STATE - STATE LEVY (SCHOOL) | $755.04 | $755.03 | $0.00 | $0.00 | $0.00 | $1510.07 |
| 2026 | 10599 | COUNTY - COUNTY LEVIES (CE, DD, VET, MH) | $301.87 | $301.85 | $0.00 | $0.00 | $0.00 | $603.72 |
| 2026 | 10599 | CONSERVE - CONSERVATION FUTURES | $9.05 | $9.05 | $0.00 | $0.00 | $0.00 | $18.10 |
| 2026 | 10599 | COROADS - COUNTY ROADS (ROADS, DIV TO CE) | $243.52 | $243.51 | $0.00 | $0.00 | $0.00 | $487.03 |
| 2026 | 10599 | PORTPT - PORT DISTRICT | $121.91 | $121.91 | $0.00 | $0.00 | $0.00 | $243.82 |
| 2026 | 10599 | PUD1 - PUD #1 | $19.64 | $19.63 | $0.00 | $0.00 | $0.00 | $39.27 |
| 2026 | 10599 | LIB1 - LIBRARY DIST #1 | $94.22 | $94.21 | $0.00 | $0.00 | $0.00 | $188.43 |
| 2026 | 10599 | HD2 - HOSP DIST #2 | $17.61 | $17.60 | $0.00 | $0.00 | $0.00 | $35.21 |
| 2026 | 10599 | SD49 - SCHOOL DIST #49 | $415.62 | $415.62 | $0.00 | $0.00 | $0.00 | $831.24 |
| 2026 | 10599 | FD1 - FIRE DISTRICT #1 | $399.74 | $399.73 | $0.00 | $0.00 | $0.00 | $799.47 |
| 2026 | 10599 | EMS1 - FIRE DIST #1 EMS | $153.70 | $153.69 | $0.00 | $0.00 | $0.00 | $307.39 |
| 2026 | 10599 | JCCD - JC Conservation District | $2.57 | $2.57 | $0.00 | $0.00 | $0.00 | $5.14 |
| 2026 | 10599 | NWA - Noxious Weed Assessment | $3.20 | $3.20 | $0.00 | $0.00 | $0.00 | $6.40 |
| 2026 | 10599 | WAT - Clean Water District | $13.00 | $13.00 | $0.00 | $0.00 | $0.00 | $26.00 |
| 2026 | 10599 | TOTAL: | $2550.69 | $2550.60 | $0.00 | $0.00 | $0.00 | $5101.29 |
|
| 2026 | 10599 | $2550.69 | $2550.60 | $0.00 | $0.00 | $0.00 | $5101.29 |
Statement Details |
| 2025 | 10622 | STATE - STATE LEVY (SCHOOL) | $787.53 | $787.52 | $0.00 | $0.00 | $1575.05 | $0.00 |
| 2025 | 10622 | COUNTY - COUNTY LEVIES (CE, DD, VET, MH) | $309.69 | $309.68 | $0.00 | $0.00 | $619.37 | $0.00 |
| 2025 | 10622 | CONSERVE - CONSERVATION FUTURES | $9.29 | $9.28 | $0.00 | $0.00 | $18.57 | $0.00 |
| 2025 | 10622 | COROADS - COUNTY ROADS (ROADS, DIV TO CE) | $248.11 | $248.11 | $0.00 | $0.00 | $496.22 | $0.00 |
| 2025 | 10622 | PORTPT - PORT DISTRICT | $126.37 | $126.37 | $0.00 | $0.00 | $252.74 | $0.00 |
| 2025 | 10622 | PUD1 - PUD #1 | $20.27 | $20.26 | $0.00 | $0.00 | $40.53 | $0.00 |
| 2025 | 10622 | LIB1 - LIBRARY DIST #1 | $95.99 | $95.99 | $0.00 | $0.00 | $191.98 | $0.00 |
| 2025 | 10622 | HD2 - HOSP DIST #2 | $18.07 | $18.07 | $0.00 | $0.00 | $36.14 | $0.00 |
| 2025 | 10622 | SD49 - SCHOOL DIST #49 | $422.07 | $422.06 | $0.00 | $0.00 | $844.13 | $0.00 |
| 2025 | 10622 | FD1 - FIRE DISTRICT #1 | $408.67 | $408.67 | $0.00 | $0.00 | $817.34 | $0.00 |
| 2025 | 10622 | EMS1 - FIRE DIST #1 EMS | $157.19 | $157.18 | $0.00 | $0.00 | $314.37 | $0.00 |
| 2025 | 10622 | JCCD - JC Conservation District | $2.57 | $2.57 | $0.00 | $0.00 | $5.14 | $0.00 |
| 2025 | 10622 | NWA - Noxious Weed Assessment | $2.30 | $2.30 | $0.00 | $0.00 | $4.60 | $0.00 |
| 2025 | 10622 | WAT - Clean Water District | $13.00 | $13.00 | $0.00 | $0.00 | $26.00 | $0.00 |
| 2025 | 10622 | TOTAL: | $2621.12 | $2621.06 | $0.00 | $0.00 | $5242.18 | $0.00 |
|
| 2025 | 10622 | $2621.12 | $2621.06 | $0.00 | $0.00 | $5242.18 | $0.00 |
Statement Details |
| 2024 | 10647 | STATE - STATE LEVY (SCHOOL) | $706.85 | $706.83 | $0.00 | $0.00 | $1413.68 | $0.00 |
| 2024 | 10647 | COUNTY - COUNTY LEVIES (CE, DD, VET, MH) | $302.47 | $302.47 | $0.00 | $0.00 | $604.94 | $0.00 |
| 2024 | 10647 | CONSERVE - CONSERVATION FUTURES | $9.07 | $9.07 | $0.00 | $0.00 | $18.14 | $0.00 |
| 2024 | 10647 | COROADS - COUNTY ROADS (ROADS, DIV TO CE) | $243.39 | $243.38 | $0.00 | $0.00 | $486.77 | $0.00 |
| 2024 | 10647 | PORTPT - PORT DISTRICT | $124.94 | $124.92 | $0.00 | $0.00 | $249.86 | $0.00 |
| 2024 | 10647 | PUD1 - PUD #1 | $19.87 | $19.86 | $0.00 | $0.00 | $39.73 | $0.00 |
| 2024 | 10647 | LIB1 - LIBRARY DIST #1 | $94.17 | $94.16 | $0.00 | $0.00 | $188.33 | $0.00 |
| 2024 | 10647 | HD2 - HOSP DIST #2 | $17.65 | $17.65 | $0.00 | $0.00 | $35.30 | $0.00 |
| 2024 | 10647 | SD49 - SCHOOL DIST #49 | $315.65 | $315.63 | $0.00 | $0.00 | $631.28 | $0.00 |
| 2024 | 10647 | FD1 - FIRE DISTRICT #1 | $399.93 | $399.93 | $0.00 | $0.00 | $799.86 | $0.00 |
| 2024 | 10647 | EMS1 - FIRE DIST #1 EMS | $152.76 | $152.76 | $0.00 | $0.00 | $305.52 | $0.00 |
| 2024 | 10647 | JCCD - JC Conservation District | $2.57 | $2.57 | $0.00 | $0.00 | $5.14 | $0.00 |
| 2024 | 10647 | NWA - Noxious Weed Assessment | $2.30 | $2.30 | $0.00 | $0.00 | $4.60 | $0.00 |
| 2024 | 10647 | WAT - Clean Water District | $12.50 | $12.50 | $0.00 | $0.00 | $25.00 | $0.00 |
| 2024 | 10647 | TOTAL: | $2404.12 | $2404.03 | $0.00 | $0.00 | $4808.15 | $0.00 |
|
| 2024 | 10647 | $2404.12 | $2404.03 | $0.00 | $0.00 | $4808.15 | $0.00 |
Statement Details |
| 2023 | 10667 | STATE - STATE LEVY (SCHOOL) | $748.76 | $748.75 | $0.00 | $0.00 | $1497.51 | $0.00 |
| 2023 | 10667 | COUNTY - COUNTY LEVIES (CE, DD, VET, MH) | $326.75 | $326.72 | $0.00 | $0.00 | $653.47 | $0.00 |
| 2023 | 10667 | CONSERVE - CONSERVATION FUTURES | $9.80 | $9.79 | $0.00 | $0.00 | $19.59 | $0.00 |
| 2023 | 10667 | COROADS - COUNTY ROADS (ROADS, DIV TO CE) | $264.36 | $264.34 | $0.00 | $0.00 | $528.70 | $0.00 |
| 2023 | 10667 | PORTPT - PORT DISTRICT | $137.65 | $137.63 | $0.00 | $0.00 | $275.28 | $0.00 |
| 2023 | 10667 | PUD1 - PUD #1 | $21.66 | $21.66 | $0.00 | $0.00 | $43.32 | $0.00 |
| 2023 | 10667 | LIB1 - LIBRARY DIST #1 | $102.28 | $102.27 | $0.00 | $0.00 | $204.55 | $0.00 |
| 2023 | 10667 | HD2 - HOSP DIST #2 | $19.07 | $19.07 | $0.00 | $0.00 | $38.14 | $0.00 |
| 2023 | 10667 | SD49 - SCHOOL DIST #49 | $350.01 | $350.00 | $0.00 | $0.00 | $700.01 | $0.00 |
| 2023 | 10667 | FD1 - FIRE DISTRICT #1 | $269.17 | $269.16 | $0.00 | $0.00 | $538.33 | $0.00 |
| 2023 | 10667 | EMS1 - FIRE DIST #1 EMS | $114.50 | $114.49 | $0.00 | $0.00 | $228.99 | $0.00 |
| 2023 | 10667 | JCCD - JC Conservation District | $2.57 | $2.57 | $0.00 | $0.00 | $5.14 | $0.00 |
| 2023 | 10667 | NWA - Noxious Weed Assessment | $2.30 | $2.30 | $0.00 | $0.00 | $4.60 | $0.00 |
| 2023 | 10667 | WAT - Clean Water District | $12.00 | $12.00 | $0.00 | $0.00 | $24.00 | $0.00 |
| 2023 | 10667 | TOTAL: | $2380.88 | $2380.75 | $0.00 | $0.00 | $4761.63 | $0.00 |
|
| 2023 | 10667 | $2380.88 | $2380.75 | $0.00 | $0.00 | $4761.63 | $0.00 |
Values
| (+) Improvement Homesite Value: | + | $0 | |
| (+) Improvement Non-Homesite Value: | + | $379,847 | |
| (+) Land Homesite Value: | + | $0 | |
| (+) Land Non-Homesite Value: | + | $276,966 | |
| (+) Curr Use (HS): | + | $0 | $0 |
| (+) Curr Use (NHS): | + | $0 | $0 |
| | | -------------------------- | |
| (=) Market Value: | = | $656,813 | |
| (–) Productivity Loss: | – | $0 | |
| | | -------------------------- | |
| (=) Subtotal: | = | $656,813 | |
| (+) Senior Appraised Value: | + | $0 | |
| (+) Non-Senior Appraised Value: | + | $656,813 | |
| | | -------------------------- | |
| (=) Total Appraised Value: | = | $656,813 | |
| (–) Senior Exemption Loss: | – | $0 | |
| (–) Exemption Loss: | – | $0 | |
| | | -------------------------- | |
| (=) Taxable Value: | = | $656,813 | |
Taxing Jurisdiction
| Owner: | HADLOCK DEVELOPMENT COMPANY | | |
| % Ownership: | 100.0000000000% | | |
| Total Value: | $656,813 | | |
| Tax Area: | 0211 - 1-49F1E1H2L1 |
| CE | COUNTY CURRENT EXPENSE | 0.9034619479 | $656,813 | $656,813 | $593.41 | | |
| CNTYDD | DEVELOPMENTAL DISABILITIES | 0.0052121823 | $656,813 | $656,813 | $3.42 | | |
| CNTYVET | VETERANS RELIEF | 0.0052777810 | $656,813 | $656,813 | $3.47 | | |
| MENTAL | MENTAL HEALTH | 0.0052121823 | $656,813 | $656,813 | $3.42 | | |
| ROADS | COUNTY ROADS | 0.7415066410 | $656,813 | $656,813 | $487.03 | | |
| ROADSCU | COUNTY ROADS TO CUR EXP | 0.0000000000 | $656,813 | $656,813 | $0.00 | | |
| HOSP2CASH | HOSP DIST #2 GENERAL | 0.0536075306 | $656,813 | $656,813 | $35.21 | | |
| SCH49CP | SCHOOL DIST #49 CAP PROJ | 0.6279093905 | $656,813 | $656,813 | $412.42 | | |
| SCH49MO | SCHOOL DIST #49 EP & O | 0.6376483602 | $656,813 | $656,813 | $418.82 | | |
| CONSERVE | CONSERVATION FUTURES | 0.0275621078 | $656,813 | $656,813 | $18.10 | | |
| EMS1 | FIRE DIST #1 EMS | 0.4679948282 | $656,813 | $656,813 | $307.39 | | |
| FD1 | FIRE DIST #1 GENERAL | 1.2171942929 | $656,813 | $656,813 | $799.47 | | |
| LIB1 | LIBRARY DIST #1 GENERAL | 0.2868827388 | $656,813 | $656,813 | $188.43 | | |
| PORTPT | PORT OF PT GENERAL | 0.1134941229 | $656,813 | $656,813 | $74.54 | | |
| PORTPTIDD | PORT OF PT IDD 2019 | 0.2577346692 | $656,813 | $656,813 | $169.28 | | |
| PUD1 | PUD #1 GENERAL | 0.0597888892 | $656,813 | $656,813 | $39.27 | | |
| STATE | STATE SCHOOL PART 1 | 1.4940692947 | $656,813 | $656,813 | $981.32 | | |
| STATE2 | STATE SCHOOL PART 2 | 0.8050170049 | $656,813 | $656,813 | $528.75 | | |
| | Total Tax Rate: | 7.7095739644 | | | | | |
| | | | | Taxes w/Current Exemptions: | $5,063.75 | | |
| | | | | Taxes w/o Exemptions: | $5,063.75 | | |
Improvement / Building
| Improvement #1: | Commercial/Industrial/Government Bldg | State Code: | 53 | 5400.0 sqft | Value: | $379,847 |
Sketch
| No sketches available for this property. |
Property Image
Land
| 1 | 4210-6277Q | | 0.8400 | 36590.40 | 0.00 | 0.00 | 0.00 | $259,542 | $0 |
| 2 | 4210-6287Q | | 0.8000 | 34848.00 | 0.00 | 0.00 | 0.00 | $17,424 | $0 |
Roll Value History
| 2026 | N/A | N/A | N/A | N/A | N/A |
| 2025 | $379,847 | $276,966 | $0 | $656,813 | $656,813 |
| 2024 | $379,847 | $276,966 | $0 | $656,813 | $656,813 |
| 2023 | $379,847 | $231,185 | $0 | $611,032 | $611,032 |
| 2022 | $441,488 | $194,625 | $0 | $636,113 | $636,113 |
Deed and Sales History
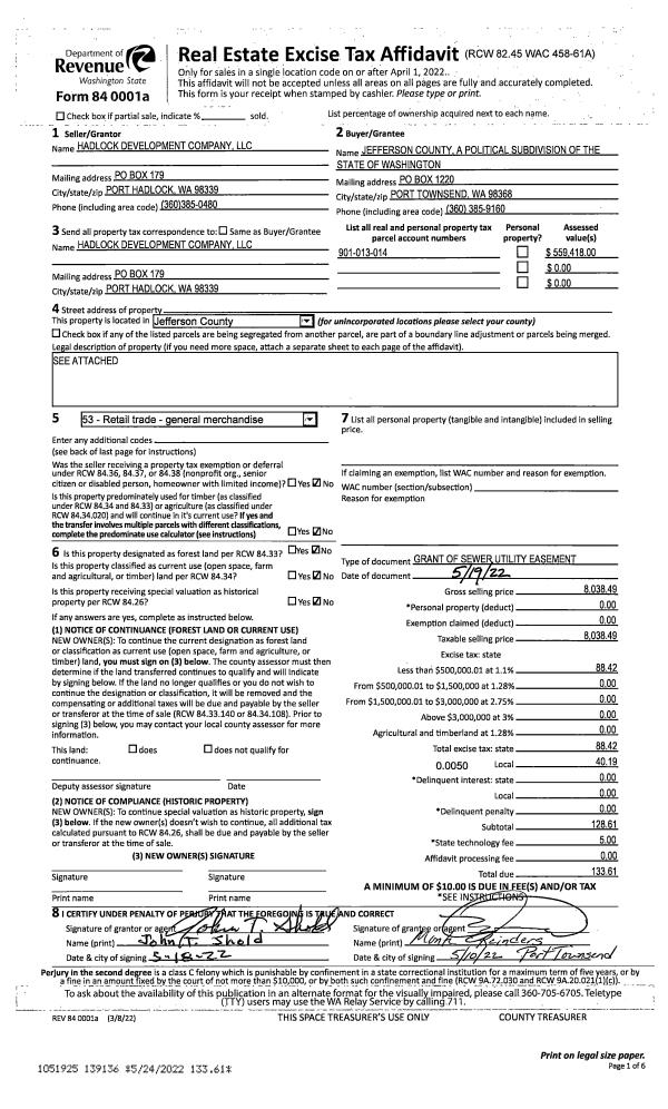
| 1 | 05/19/2022 | EASE | Assignment of Easement | HADLOCK DEVELOPMENT COMPANY | JEFFERSON COUNTY | | | $8,038.00 | 139136 | SEW/UTIL EASE |
| 2 | 01/11/2024 | BLA | Boundary Line Adjustment | HADLOCK DEVELOPMENT COMPANY | HADLOCK DEVELOPMENT COMPANY | | | | 142238 | |
| 3 | 05/07/2003 | QCD | Quit Claim Deed | HUNTINGFORD, STERLING/ET | HADLOCK DEVELOPMENT CO | 0 | 0 | $0.00 | 97232 | 0 |
| 4 | 09/06/1996 | BLA | Boundary Line Adjustment | SHOLD, JOHN/ET AL | SHOLD, JOHN/ET AL | 0 | 0 | $0.00 | 80473 | 0 |
Payout Agreement
| No payout information available.. |