Property
Account |
| Property ID: | 21158 | Abbreviated Legal Description: | S2 T29 R1W TAX 197 |
| Parcel # / Geo ID: | 901023008 | Agent Code: | |
| Type: | Real | | |
| Tax Area: | 0211 - 1-49F1E1H2L1 | Land Use Code | 11 |
| Open Space: | N | DFL | N |
| Historic Property: | N | Remodel Property: | N |
| Multi-Family Redevelopment: | N | | |
| Township: | 29N | Section: | 2 |
| Range: | 1W |
Location |
| Address: | 191 NESS' CORNER RD PORT HADLOCK, WA 98339 | Mapsco: | 204/057 |
| Neighborhood: | S2 T29N R1W; COTTON LP; BRUNEAU, WIEDMAN, CHARWELL, B&R SP'S | Map ID: | |
| Neighborhood CD: | 4210 |
Owner |
| Name: | BRIAN DAFFORN & | Owner ID: | 113732 |
| Mailing Address: | KATELYNN LINDER 1517 N 80TH ST SEATTLE, WA 98103-4422 | % Ownership: | 100.0000000000% |
| | | Exemptions: | |
Pay Tax Due
Select the appropriate checkbox next to the year to be paid. Multiple years may be selected.
*Convenience Fee not included
Taxes and Assessment Details
Property Tax Information as of
03/10/2026
Click on "Statement Details" to expand or collapse a tax statement.
* Please enter a valid date ** Please enter a valid date *
Statement Details |
| 2026 | 10645 | STATE - STATE LEVY (SCHOOL) | $711.68 | $711.67 | $0.00 | $0.00 | $0.00 | $1423.35 |
| 2026 | 10645 | COUNTY - COUNTY LEVIES (CE, DD, VET, MH) | $284.55 | $284.51 | $0.00 | $0.00 | $0.00 | $569.06 |
| 2026 | 10645 | CONSERVE - CONSERVATION FUTURES | $8.53 | $8.53 | $0.00 | $0.00 | $0.00 | $17.06 |
| 2026 | 10645 | COROADS - COUNTY ROADS (ROADS, DIV TO CE) | $229.53 | $229.53 | $0.00 | $0.00 | $0.00 | $459.06 |
| 2026 | 10645 | PORTPT - PORT DISTRICT | $114.91 | $114.91 | $0.00 | $0.00 | $0.00 | $229.82 |
| 2026 | 10645 | PUD1 - PUD #1 | $18.51 | $18.50 | $0.00 | $0.00 | $0.00 | $37.01 |
| 2026 | 10645 | LIB1 - LIBRARY DIST #1 | $88.81 | $88.80 | $0.00 | $0.00 | $0.00 | $177.61 |
| 2026 | 10645 | HD2 - HOSP DIST #2 | $16.60 | $16.59 | $0.00 | $0.00 | $0.00 | $33.19 |
| 2026 | 10645 | SD49 - SCHOOL DIST #49 | $391.75 | $391.74 | $0.00 | $0.00 | $0.00 | $783.49 |
| 2026 | 10645 | FD1 - FIRE DISTRICT #1 | $376.78 | $376.78 | $0.00 | $0.00 | $0.00 | $753.56 |
| 2026 | 10645 | EMS1 - FIRE DIST #1 EMS | $144.87 | $144.86 | $0.00 | $0.00 | $0.00 | $289.73 |
| 2026 | 10645 | FP - DNR Forest Fire Protection Assmt | $8.50 | $8.50 | $0.00 | $0.00 | $0.00 | $17.00 |
| 2026 | 10645 | FPLCA - DNR Landowner Contingency Assmt | $3.00 | $3.00 | $0.00 | $0.00 | $0.00 | $6.00 |
| 2026 | 10645 | JCCD - JC Conservation District | $3.05 | $3.05 | $0.00 | $0.00 | $0.00 | $6.10 |
| 2026 | 10645 | NWA - Noxious Weed Assessment | $5.23 | $5.22 | $0.00 | $0.00 | $0.00 | $10.45 |
| 2026 | 10645 | OSS - On Site Septic | $23.10 | $23.10 | $0.00 | $0.00 | $0.00 | $46.20 |
| 2026 | 10645 | WAT - Clean Water District | $13.00 | $13.00 | $0.00 | $0.00 | $0.00 | $26.00 |
| 2026 | 10645 | FP ADMIN - FP ADMIN | $0.50 | $0.00 | $0.00 | $0.00 | $0.00 | $0.50 |
| 2026 | 10645 | TOTAL: | $2442.90 | $2442.29 | $0.00 | $0.00 | $0.00 | $4885.19 |
|
| 2026 | 10645 | $2442.90 | $2442.29 | $0.00 | $0.00 | $0.00 | $4885.19 |
Statement Details |
| 2025 | 10668 | STATE - STATE LEVY (SCHOOL) | $709.36 | $709.36 | $0.00 | $0.00 | $1418.72 | $0.00 |
| 2025 | 10668 | COUNTY - COUNTY LEVIES (CE, DD, VET, MH) | $278.96 | $278.95 | $0.00 | $0.00 | $557.91 | $0.00 |
| 2025 | 10668 | CONSERVE - CONSERVATION FUTURES | $8.37 | $8.36 | $0.00 | $0.00 | $16.73 | $0.00 |
| 2025 | 10668 | COROADS - COUNTY ROADS (ROADS, DIV TO CE) | $223.49 | $223.47 | $0.00 | $0.00 | $446.96 | $0.00 |
| 2025 | 10668 | PORTPT - PORT DISTRICT | $113.84 | $113.82 | $0.00 | $0.00 | $227.66 | $0.00 |
| 2025 | 10668 | PUD1 - PUD #1 | $18.26 | $18.25 | $0.00 | $0.00 | $36.51 | $0.00 |
| 2025 | 10668 | LIB1 - LIBRARY DIST #1 | $86.47 | $86.46 | $0.00 | $0.00 | $172.93 | $0.00 |
| 2025 | 10668 | HD2 - HOSP DIST #2 | $16.28 | $16.27 | $0.00 | $0.00 | $32.55 | $0.00 |
| 2025 | 10668 | SD49 - SCHOOL DIST #49 | $380.18 | $380.16 | $0.00 | $0.00 | $760.34 | $0.00 |
| 2025 | 10668 | FD1 - FIRE DISTRICT #1 | $368.11 | $368.10 | $0.00 | $0.00 | $736.21 | $0.00 |
| 2025 | 10668 | EMS1 - FIRE DIST #1 EMS | $141.59 | $141.58 | $0.00 | $0.00 | $283.17 | $0.00 |
| 2025 | 10668 | FP - DNR Forest Fire Protection Assmt | $8.50 | $8.50 | $0.00 | $0.00 | $17.00 | $0.00 |
| 2025 | 10668 | FPLCA - DNR Landowner Contingency Assmt | $3.00 | $3.00 | $0.00 | $0.00 | $6.00 | $0.00 |
| 2025 | 10668 | JCCD - JC Conservation District | $3.05 | $3.05 | $0.00 | $0.00 | $6.10 | $0.00 |
| 2025 | 10668 | NWA - Noxious Weed Assessment | $3.65 | $3.65 | $0.00 | $0.00 | $7.30 | $0.00 |
| 2025 | 10668 | OSS - On Site Septic | $21.50 | $21.50 | $0.00 | $0.00 | $43.00 | $0.00 |
| 2025 | 10668 | WAT - Clean Water District | $13.00 | $13.00 | $0.00 | $0.00 | $26.00 | $0.00 |
| 2025 | 10668 | FP ADMIN - FP ADMIN | $0.50 | $0.00 | $0.00 | $0.00 | $0.50 | $0.00 |
| 2025 | 10668 | TOTAL: | $2398.11 | $2397.48 | $0.00 | $0.00 | $4795.59 | $0.00 |
|
| 2025 | 10668 | $2398.11 | $2397.48 | $0.00 | $0.00 | $4795.59 | $0.00 |
Statement Details |
| 2024 | 10693 | STATE - STATE LEVY (SCHOOL) | $638.51 | $638.51 | $0.00 | $0.00 | $1277.02 | $0.00 |
| 2024 | 10693 | COUNTY - COUNTY LEVIES (CE, DD, VET, MH) | $273.24 | $273.21 | $0.00 | $0.00 | $546.45 | $0.00 |
| 2024 | 10693 | CONSERVE - CONSERVATION FUTURES | $8.20 | $8.19 | $0.00 | $0.00 | $16.39 | $0.00 |
| 2024 | 10693 | COROADS - COUNTY ROADS (ROADS, DIV TO CE) | $219.86 | $219.85 | $0.00 | $0.00 | $439.71 | $0.00 |
| 2024 | 10693 | PORTPT - PORT DISTRICT | $112.86 | $112.84 | $0.00 | $0.00 | $225.70 | $0.00 |
| 2024 | 10693 | PUD1 - PUD #1 | $17.95 | $17.94 | $0.00 | $0.00 | $35.89 | $0.00 |
| 2024 | 10693 | LIB1 - LIBRARY DIST #1 | $85.06 | $85.06 | $0.00 | $0.00 | $170.12 | $0.00 |
| 2024 | 10693 | HD2 - HOSP DIST #2 | $15.94 | $15.94 | $0.00 | $0.00 | $31.88 | $0.00 |
| 2024 | 10693 | SD49 - SCHOOL DIST #49 | $285.13 | $285.12 | $0.00 | $0.00 | $570.25 | $0.00 |
| 2024 | 10693 | FD1 - FIRE DISTRICT #1 | $361.27 | $361.26 | $0.00 | $0.00 | $722.53 | $0.00 |
| 2024 | 10693 | EMS1 - FIRE DIST #1 EMS | $137.99 | $137.99 | $0.00 | $0.00 | $275.98 | $0.00 |
| 2024 | 10693 | JCCD - JC Conservation District | $3.05 | $3.05 | $0.00 | $0.00 | $6.10 | $0.00 |
| 2024 | 10693 | NWA - Noxious Weed Assessment | $3.65 | $3.65 | $0.00 | $0.00 | $7.30 | $0.00 |
| 2024 | 10693 | OSS - On Site Septic | $21.00 | $21.00 | $0.00 | $0.00 | $42.00 | $0.00 |
| 2024 | 10693 | WAT - Clean Water District | $12.50 | $12.50 | $0.00 | $0.00 | $25.00 | $0.00 |
| 2024 | 10693 | TOTAL: | $2196.21 | $2196.11 | $0.00 | $0.00 | $4392.32 | $0.00 |
|
| 2024 | 10693 | $2196.21 | $2196.11 | $0.00 | $0.00 | $4392.32 | $0.00 |
Statement Details |
| 2023 | 10713 | STATE - STATE LEVY (SCHOOL) | $549.09 | $549.09 | $0.00 | $0.00 | $1098.18 | $0.00 |
| 2023 | 10713 | COUNTY - COUNTY LEVIES (CE, DD, VET, MH) | $239.61 | $239.60 | $0.00 | $0.00 | $479.21 | $0.00 |
| 2023 | 10713 | CONSERVE - CONSERVATION FUTURES | $7.19 | $7.18 | $0.00 | $0.00 | $14.37 | $0.00 |
| 2023 | 10713 | COROADS - COUNTY ROADS (ROADS, DIV TO CE) | $193.87 | $193.85 | $0.00 | $0.00 | $387.72 | $0.00 |
| 2023 | 10713 | PORTPT - PORT DISTRICT | $100.94 | $100.93 | $0.00 | $0.00 | $201.87 | $0.00 |
| 2023 | 10713 | PUD1 - PUD #1 | $15.89 | $15.88 | $0.00 | $0.00 | $31.77 | $0.00 |
| 2023 | 10713 | LIB1 - LIBRARY DIST #1 | $75.00 | $75.00 | $0.00 | $0.00 | $150.00 | $0.00 |
| 2023 | 10713 | HD2 - HOSP DIST #2 | $13.98 | $13.98 | $0.00 | $0.00 | $27.96 | $0.00 |
| 2023 | 10713 | SD49 - SCHOOL DIST #49 | $256.67 | $256.67 | $0.00 | $0.00 | $513.34 | $0.00 |
| 2023 | 10713 | FD1 - FIRE DISTRICT #1 | $197.39 | $197.39 | $0.00 | $0.00 | $394.78 | $0.00 |
| 2023 | 10713 | EMS1 - FIRE DIST #1 EMS | $83.97 | $83.96 | $0.00 | $0.00 | $167.93 | $0.00 |
| 2023 | 10713 | JCCD - JC Conservation District | $3.05 | $3.05 | $0.00 | $0.00 | $6.10 | $0.00 |
| 2023 | 10713 | NWA - Noxious Weed Assessment | $3.65 | $3.65 | $0.00 | $0.00 | $7.30 | $0.00 |
| 2023 | 10713 | OSS - On Site Septic | $20.50 | $20.50 | $0.00 | $0.00 | $41.00 | $0.00 |
| 2023 | 10713 | WAT - Clean Water District | $12.00 | $12.00 | $0.00 | $0.00 | $24.00 | $0.00 |
| 2023 | 10713 | TOTAL: | $1772.80 | $1772.73 | $0.00 | $0.00 | $3545.53 | $0.00 |
|
| 2023 | 10713 | $1772.80 | $1772.73 | $0.00 | $0.00 | $3545.53 | $0.00 |
Values
| (+) Improvement Homesite Value: | + | $0 | |
| (+) Improvement Non-Homesite Value: | + | $335,756 | |
| (+) Land Homesite Value: | + | $0 | |
| (+) Land Non-Homesite Value: | + | $283,338 | |
| (+) Curr Use (HS): | + | $0 | $0 |
| (+) Curr Use (NHS): | + | $0 | $0 |
| | | -------------------------- | |
| (=) Market Value: | = | $619,094 | |
| (–) Productivity Loss: | – | $0 | |
| | | -------------------------- | |
| (=) Subtotal: | = | $619,094 | |
| (+) Senior Appraised Value: | + | $0 | |
| (+) Non-Senior Appraised Value: | + | $619,094 | |
| | | -------------------------- | |
| (=) Total Appraised Value: | = | $619,094 | |
| (–) Senior Exemption Loss: | – | $0 | |
| (–) Exemption Loss: | – | $0 | |
| | | -------------------------- | |
| (=) Taxable Value: | = | $619,094 | |
Taxing Jurisdiction
| Owner: | BRIAN DAFFORN & | | |
| % Ownership: | 100.0000000000% | | |
| Total Value: | $619,094 | | |
| Tax Area: | 0211 - 1-49F1E1H2L1 |
| CE | COUNTY CURRENT EXPENSE | 0.9034619479 | $619,094 | $619,094 | $559.33 | | |
| CNTYDD | DEVELOPMENTAL DISABILITIES | 0.0052121823 | $619,094 | $619,094 | $3.23 | | |
| CNTYVET | VETERANS RELIEF | 0.0052777810 | $619,094 | $619,094 | $3.27 | | |
| MENTAL | MENTAL HEALTH | 0.0052121823 | $619,094 | $619,094 | $3.23 | | |
| ROADS | COUNTY ROADS | 0.7415066410 | $619,094 | $619,094 | $459.06 | | |
| ROADSCU | COUNTY ROADS TO CUR EXP | 0.0000000000 | $619,094 | $619,094 | $0.00 | | |
| HOSP2CASH | HOSP DIST #2 GENERAL | 0.0536075306 | $619,094 | $619,094 | $33.19 | | |
| SCH49CP | SCHOOL DIST #49 CAP PROJ | 0.6279093905 | $619,094 | $619,094 | $388.73 | | |
| SCH49MO | SCHOOL DIST #49 EP & O | 0.6376483602 | $619,094 | $619,094 | $394.76 | | |
| CONSERVE | CONSERVATION FUTURES | 0.0275621078 | $619,094 | $619,094 | $17.06 | | |
| EMS1 | FIRE DIST #1 EMS | 0.4679948282 | $619,094 | $619,094 | $289.73 | | |
| FD1 | FIRE DIST #1 GENERAL | 1.2171942929 | $619,094 | $619,094 | $753.56 | | |
| LIB1 | LIBRARY DIST #1 GENERAL | 0.2868827388 | $619,094 | $619,094 | $177.61 | | |
| PORTPT | PORT OF PT GENERAL | 0.1134941229 | $619,094 | $619,094 | $70.26 | | |
| PORTPTIDD | PORT OF PT IDD 2019 | 0.2577346692 | $619,094 | $619,094 | $159.56 | | |
| PUD1 | PUD #1 GENERAL | 0.0597888892 | $619,094 | $619,094 | $37.01 | | |
| STATE | STATE SCHOOL PART 1 | 1.4940692947 | $619,094 | $619,094 | $924.97 | | |
| STATE2 | STATE SCHOOL PART 2 | 0.8050170049 | $619,094 | $619,094 | $498.38 | | |
| | Total Tax Rate: | 7.7095739644 | | | | | |
| | | | | Taxes w/Current Exemptions: | $4,772.94 | | |
| | | | | Taxes w/o Exemptions: | $4,772.94 | | |
Improvement / Building
| Improvement #1: | Residential Bldg | State Code: | 11 | 1468.0 sqft | Value: | $263,602 |
| Bathrooms (#): | 1 (FULL) | Bathrooms (#): | 1 (HALF) | | Bedrooms (#): | 3 | Exterior Wall: | SI/ST | | Fireplace: | DBL 2-AVG | Fireplace: | WD ST-AVG | | Floor Construction: | FRAME | Foundation: | CONPR | | Heating/Cooling: | HPUMP | Inside Verify: | YES-FIX | | Roof Cover: | SHAKE |   |   |
|
| | Type | Description | Class CD | Sub Class CD | Year Built | Area |
| | MA | Main Area | 4 | 15SF | 1928 | 824.0 |
| | MA2 | Second Floor Main Area | 4- | 15SF | 1928 | 644.0 |
| | HWPOR | House Wood Porch | 4 | * | 1928 | 48.0 |
| | HCPOR | House Concrete Porch | 4 | * | 1928 | 48.0 |
| | BSMTU | House basement unfinished | 1 | * | 1928 | 752.0 |
| Improvement #2: | Residential Bldg | State Code: | 11 | 562.0 sqft | Value: | $72,154 |
| Bathrooms (#): | 1 (FULL) | Bedrooms (#): | 1 | | Exterior Wall: | SI/ST | Fireplace: | WD ST-AVG | | Floor Construction: | CONCR | Foundation: | CONPR | | Heating/Cooling: | HPUMP | Inside Verify: | YES-FIX | | Roof Cover: | SHAKE |   |   |
|
| | Type | Description | Class CD | Sub Class CD | Year Built | Area |
| | MA | Main Area | 4 | C2S | 0 | 562.0 |
| | CWPOR | Cabin Wood Porch | 4 | * | 0 | 160.0 |
| | CDECK | Cabin Deck | 4 | * | 0 | 120.0 |
| | CBLTIN | Cabin Builtin Garage | 2 | C2S | 0 | 400.0 |
| | CBSMTF | Cabin Basement Finished | 3 | * | 0 | 400.0 |
Sketch
| No sketches available for this property. |
Property Image
Land
| 1 | 1675A | | 8.7200 | 379843.20 | 0.00 | 0.00 | 0.00 | $74,338 | $0 |
| 2 | 4210-1375S | | 1.0000 | 43560.00 | 0.00 | 0.00 | 1.00 | $143,000 | $0 |
| 3 | 4210-1275S | | 1.0000 | 43560.00 | 0.00 | 0.00 | 1.00 | $66,000 | $0 |
Roll Value History
| 2026 | N/A | N/A | N/A | N/A | N/A |
| 2025 | $335,756 | $283,338 | $0 | $619,094 | $619,094 |
| 2024 | $321,158 | $270,459 | $0 | $591,617 | $591,617 |
| 2023 | $306,560 | $245,400 | $0 | $551,960 | $551,960 |
| 2022 | $255,445 | $211,040 | $0 | $466,485 | $466,485 |
Deed and Sales History
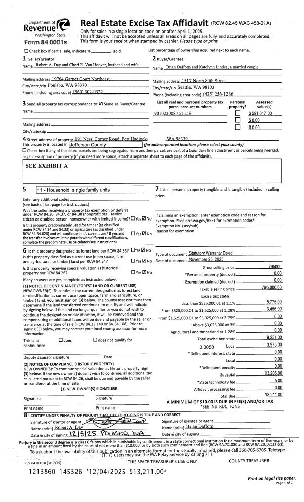
| 1 | 11/25/2025 | SWD | Statutory Warranty Deed | ROBERT A DAY | BRIAN DAFFORN & | | | $795,000.00 | 145326 | |
| 2 | 09/27/2002 | SWD | Statutory Warranty Deed | SMITH, MIRIAM | DAY, ROBERT A, VAN HOOVER, CHE | 0 | 0 | $295,000.00 | 95648 | 0 |
| 3 | 10/05/2001 | BLA | Boundary Line Adjustment | CHIMACUM SCHOOL DISTRICT | SMITH, MIRIAM | 0 | 0 | $0.00 | 93335 | 0 |
| 4 | 10/05/2001 | QCD | Quit Claim Deed | CHIMACUM SCHOOL DISTRICT | SMITH, MIRIAM | 0 | 0 | $0.00 | 93336 | 0 |
| 5 | 10/05/2001 | QCD | Quit Claim Deed | CHIMACUM SCHOOL DISTRICT | SMITH, MIRIAM | 0 | 0 | $0.00 | 93337 | 0 |
Payout Agreement
| No payout information available.. |