Property
Account |
| Property ID: | 21183 | Abbreviated Legal Description: | S2 T29 R1W TAX 42 SUBJ/ESMTS #142087-8 |
| Parcel # / Geo ID: | 901024020 | Agent Code: | |
| Type: | Real | | |
| Tax Area: | 0211 - 1-49F1E1H2L1 | Land Use Code | 58 |
| Open Space: | N | DFL | N |
| Historic Property: | N | Remodel Property: | N |
| Multi-Family Redevelopment: | N | | |
| Township: | 29N | Section: | 2 |
| Range: | 1W |
Location |
| Address: | 21 CHIMACUM RD PORT HADLOCK, WA 98339 | Mapsco: | 202/072 |
| Neighborhood: | HADLOCK COMMERCIAL CENTER | Map ID: | |
| Neighborhood CD: | 4210C |
Owner |
| Name: | LCM NORTH HOLDINGS LLC | Owner ID: | 101461 |
| Mailing Address: | PO BOX 308 PORT HADLOCK, WA 98339-0308 | % Ownership: | 100.0000000000% |
| | | Exemptions: | |
Pay Tax Due
There is currently No Amount Due on this property.
Taxes and Assessment Details
Property Tax Information as of
03/09/2026
Click on "Statement Details" to expand or collapse a tax statement.
* Please enter a valid date ** Please enter a valid date *
Statement Details |
| 2026 | 10669 | STATE - STATE LEVY (SCHOOL) | $507.58 | $507.57 | $0.00 | $0.00 | $1015.15 | $0.00 |
| 2026 | 10669 | COUNTY - COUNTY LEVIES (CE, DD, VET, MH) | $202.93 | $202.92 | $0.00 | $0.00 | $405.85 | $0.00 |
| 2026 | 10669 | CONSERVE - CONSERVATION FUTURES | $6.09 | $6.08 | $0.00 | $0.00 | $12.17 | $0.00 |
| 2026 | 10669 | COROADS - COUNTY ROADS (ROADS, DIV TO CE) | $163.71 | $163.70 | $0.00 | $0.00 | $327.41 | $0.00 |
| 2026 | 10669 | PORTPT - PORT DISTRICT | $81.96 | $81.95 | $0.00 | $0.00 | $163.91 | $0.00 |
| 2026 | 10669 | PUD1 - PUD #1 | $13.20 | $13.20 | $0.00 | $0.00 | $26.40 | $0.00 |
| 2026 | 10669 | LIB1 - LIBRARY DIST #1 | $63.34 | $63.33 | $0.00 | $0.00 | $126.67 | $0.00 |
| 2026 | 10669 | HD2 - HOSP DIST #2 | $11.84 | $11.83 | $0.00 | $0.00 | $23.67 | $0.00 |
| 2026 | 10669 | SD49 - SCHOOL DIST #49 | $279.41 | $279.39 | $0.00 | $0.00 | $558.80 | $0.00 |
| 2026 | 10669 | FD1 - FIRE DISTRICT #1 | $268.73 | $268.72 | $0.00 | $0.00 | $537.45 | $0.00 |
| 2026 | 10669 | EMS1 - FIRE DIST #1 EMS | $103.32 | $103.32 | $0.00 | $0.00 | $206.64 | $0.00 |
| 2026 | 10669 | JCCD - JC Conservation District | $2.53 | $2.53 | $0.00 | $0.00 | $5.06 | $0.00 |
| 2026 | 10669 | NWA - Noxious Weed Assessment | $2.98 | $2.97 | $0.00 | $0.00 | $5.95 | $0.00 |
| 2026 | 10669 | WAT - Clean Water District | $13.00 | $13.00 | $0.00 | $0.00 | $26.00 | $0.00 |
| 2026 | 10669 | TOTAL: | $1720.62 | $1720.51 | $0.00 | $0.00 | $3441.13 | $0.00 |
|
| 2026 | 10669 | $1720.62 | $1720.51 | $0.00 | $0.00 | $3441.13 | $0.00 |
Statement Details |
| 2025 | 10692 | STATE - STATE LEVY (SCHOOL) | $529.43 | $529.42 | $0.00 | $0.00 | $1058.85 | $0.00 |
| 2025 | 10692 | COUNTY - COUNTY LEVIES (CE, DD, VET, MH) | $208.21 | $208.19 | $0.00 | $0.00 | $416.40 | $0.00 |
| 2025 | 10692 | CONSERVE - CONSERVATION FUTURES | $6.25 | $6.24 | $0.00 | $0.00 | $12.49 | $0.00 |
| 2025 | 10692 | COROADS - COUNTY ROADS (ROADS, DIV TO CE) | $166.80 | $166.79 | $0.00 | $0.00 | $333.59 | $0.00 |
| 2025 | 10692 | PORTPT - PORT DISTRICT | $84.96 | $84.95 | $0.00 | $0.00 | $169.91 | $0.00 |
| 2025 | 10692 | PUD1 - PUD #1 | $13.63 | $13.62 | $0.00 | $0.00 | $27.25 | $0.00 |
| 2025 | 10692 | LIB1 - LIBRARY DIST #1 | $64.53 | $64.53 | $0.00 | $0.00 | $129.06 | $0.00 |
| 2025 | 10692 | HD2 - HOSP DIST #2 | $12.15 | $12.14 | $0.00 | $0.00 | $24.29 | $0.00 |
| 2025 | 10692 | SD49 - SCHOOL DIST #49 | $283.74 | $283.73 | $0.00 | $0.00 | $567.47 | $0.00 |
| 2025 | 10692 | FD1 - FIRE DISTRICT #1 | $274.73 | $274.73 | $0.00 | $0.00 | $549.46 | $0.00 |
| 2025 | 10692 | EMS1 - FIRE DIST #1 EMS | $105.67 | $105.67 | $0.00 | $0.00 | $211.34 | $0.00 |
| 2025 | 10692 | JCCD - JC Conservation District | $2.53 | $2.53 | $0.00 | $0.00 | $5.06 | $0.00 |
| 2025 | 10692 | NWA - Noxious Weed Assessment | $2.15 | $2.15 | $0.00 | $0.00 | $4.30 | $0.00 |
| 2025 | 10692 | OSS - On Site Septic | $21.50 | $21.50 | $0.00 | $0.00 | $43.00 | $0.00 |
| 2025 | 10692 | WAT - Clean Water District | $13.00 | $13.00 | $0.00 | $0.00 | $26.00 | $0.00 |
| 2025 | 10692 | TOTAL: | $1789.28 | $1789.19 | $0.00 | $0.00 | $3578.47 | $0.00 |
|
| 2025 | 10692 | $1789.28 | $1789.19 | $0.00 | $0.00 | $3578.47 | $0.00 |
Statement Details |
| 2024 | 10717 | STATE - STATE LEVY (SCHOOL) | $505.01 | $504.99 | $0.00 | $0.00 | $1010.00 | $0.00 |
| 2024 | 10717 | COUNTY - COUNTY LEVIES (CE, DD, VET, MH) | $216.10 | $216.09 | $0.00 | $0.00 | $432.19 | $0.00 |
| 2024 | 10717 | CONSERVE - CONSERVATION FUTURES | $6.48 | $6.48 | $0.00 | $0.00 | $12.96 | $0.00 |
| 2024 | 10717 | COROADS - COUNTY ROADS (ROADS, DIV TO CE) | $173.89 | $173.88 | $0.00 | $0.00 | $347.77 | $0.00 |
| 2024 | 10717 | PORTPT - PORT DISTRICT | $89.26 | $89.25 | $0.00 | $0.00 | $178.51 | $0.00 |
| 2024 | 10717 | PUD1 - PUD #1 | $14.20 | $14.19 | $0.00 | $0.00 | $28.39 | $0.00 |
| 2024 | 10717 | LIB1 - LIBRARY DIST #1 | $67.28 | $67.27 | $0.00 | $0.00 | $134.55 | $0.00 |
| 2024 | 10717 | HD2 - HOSP DIST #2 | $12.61 | $12.61 | $0.00 | $0.00 | $25.22 | $0.00 |
| 2024 | 10717 | SD49 - SCHOOL DIST #49 | $225.51 | $225.50 | $0.00 | $0.00 | $451.01 | $0.00 |
| 2024 | 10717 | FD1 - FIRE DISTRICT #1 | $285.73 | $285.72 | $0.00 | $0.00 | $571.45 | $0.00 |
| 2024 | 10717 | EMS1 - FIRE DIST #1 EMS | $109.14 | $109.13 | $0.00 | $0.00 | $218.27 | $0.00 |
| 2024 | 10717 | JCCD - JC Conservation District | $2.53 | $2.53 | $0.00 | $0.00 | $5.06 | $0.00 |
| 2024 | 10717 | NWA - Noxious Weed Assessment | $2.15 | $2.15 | $0.00 | $0.00 | $4.30 | $0.00 |
| 2024 | 10717 | OSS - On Site Septic | $21.00 | $21.00 | $0.00 | $0.00 | $42.00 | $0.00 |
| 2024 | 10717 | WAT - Clean Water District | $12.50 | $12.50 | $0.00 | $0.00 | $25.00 | $0.00 |
| 2024 | 10717 | TOTAL: | $1743.39 | $1743.29 | $0.00 | $0.00 | $3486.68 | $0.00 |
|
| 2024 | 10717 | $1743.39 | $1743.29 | $0.00 | $0.00 | $3486.68 | $0.00 |
Statement Details |
| 2023 | 10737 | STATE - STATE LEVY (SCHOOL) | $476.88 | $476.87 | $0.00 | $0.00 | $953.75 | $0.00 |
| 2023 | 10737 | COUNTY - COUNTY LEVIES (CE, DD, VET, MH) | $208.10 | $208.08 | $0.00 | $0.00 | $416.18 | $0.00 |
| 2023 | 10737 | CONSERVE - CONSERVATION FUTURES | $6.24 | $6.24 | $0.00 | $0.00 | $12.48 | $0.00 |
| 2023 | 10737 | COROADS - COUNTY ROADS (ROADS, DIV TO CE) | $168.36 | $168.36 | $0.00 | $0.00 | $336.72 | $0.00 |
| 2023 | 10737 | PORTPT - PORT DISTRICT | $87.67 | $87.65 | $0.00 | $0.00 | $175.32 | $0.00 |
| 2023 | 10737 | PUD1 - PUD #1 | $13.80 | $13.79 | $0.00 | $0.00 | $27.59 | $0.00 |
| 2023 | 10737 | LIB1 - LIBRARY DIST #1 | $65.14 | $65.14 | $0.00 | $0.00 | $130.28 | $0.00 |
| 2023 | 10737 | HD2 - HOSP DIST #2 | $12.15 | $12.13 | $0.00 | $0.00 | $24.28 | $0.00 |
| 2023 | 10737 | SD49 - SCHOOL DIST #49 | $222.91 | $222.91 | $0.00 | $0.00 | $445.82 | $0.00 |
| 2023 | 10737 | FD1 - FIRE DISTRICT #1 | $171.43 | $171.42 | $0.00 | $0.00 | $342.85 | $0.00 |
| 2023 | 10737 | EMS1 - FIRE DIST #1 EMS | $72.92 | $72.92 | $0.00 | $0.00 | $145.84 | $0.00 |
| 2023 | 10737 | JCCD - JC Conservation District | $2.53 | $2.53 | $0.00 | $0.00 | $5.06 | $0.00 |
| 2023 | 10737 | NWA - Noxious Weed Assessment | $2.15 | $2.15 | $0.00 | $0.00 | $4.30 | $0.00 |
| 2023 | 10737 | OSS - On Site Septic | $20.50 | $20.50 | $0.00 | $0.00 | $41.00 | $0.00 |
| 2023 | 10737 | WAT - Clean Water District | $12.00 | $12.00 | $0.00 | $0.00 | $24.00 | $0.00 |
| 2023 | 10737 | TOTAL: | $1542.78 | $1542.69 | $0.00 | $0.00 | $3085.47 | $0.00 |
|
| 2023 | 10737 | $1542.78 | $1542.69 | $0.00 | $0.00 | $3085.47 | $0.00 |
Values
| (+) Improvement Homesite Value: | + | $0 | |
| (+) Improvement Non-Homesite Value: | + | $276,212 | |
| (+) Land Homesite Value: | + | $0 | |
| (+) Land Non-Homesite Value: | + | $165,336 | |
| (+) Curr Use (HS): | + | $0 | $0 |
| (+) Curr Use (NHS): | + | $0 | $0 |
| | | -------------------------- | |
| (=) Market Value: | = | $441,548 | |
| (–) Productivity Loss: | – | $0 | |
| | | -------------------------- | |
| (=) Subtotal: | = | $441,548 | |
| (+) Senior Appraised Value: | + | $0 | |
| (+) Non-Senior Appraised Value: | + | $441,548 | |
| | | -------------------------- | |
| (=) Total Appraised Value: | = | $441,548 | |
| (–) Senior Exemption Loss: | – | $0 | |
| (–) Exemption Loss: | – | $0 | |
| | | -------------------------- | |
| (=) Taxable Value: | = | $441,548 | |
Taxing Jurisdiction
| Owner: | LCM NORTH HOLDINGS LLC | | |
| % Ownership: | 100.0000000000% | | |
| Total Value: | $441,548 | | |
| Tax Area: | 0211 - 1-49F1E1H2L1 |
| CE | COUNTY CURRENT EXPENSE | 0.9034619479 | $441,548 | $441,548 | $398.92 | | |
| CNTYDD | DEVELOPMENTAL DISABILITIES | 0.0052121823 | $441,548 | $441,548 | $2.30 | | |
| CNTYVET | VETERANS RELIEF | 0.0052777810 | $441,548 | $441,548 | $2.33 | | |
| MENTAL | MENTAL HEALTH | 0.0052121823 | $441,548 | $441,548 | $2.30 | | |
| ROADS | COUNTY ROADS | 0.7415066410 | $441,548 | $441,548 | $327.41 | | |
| ROADSCU | COUNTY ROADS TO CUR EXP | 0.0000000000 | $441,548 | $441,548 | $0.00 | | |
| HOSP2CASH | HOSP DIST #2 GENERAL | 0.0536075306 | $441,548 | $441,548 | $23.67 | | |
| SCH49CP | SCHOOL DIST #49 CAP PROJ | 0.6279093905 | $441,548 | $441,548 | $277.25 | | |
| SCH49MO | SCHOOL DIST #49 EP & O | 0.6376483602 | $441,548 | $441,548 | $281.55 | | |
| CONSERVE | CONSERVATION FUTURES | 0.0275621078 | $441,548 | $441,548 | $12.17 | | |
| EMS1 | FIRE DIST #1 EMS | 0.4679948282 | $441,548 | $441,548 | $206.64 | | |
| FD1 | FIRE DIST #1 GENERAL | 1.2171942929 | $441,548 | $441,548 | $537.45 | | |
| LIB1 | LIBRARY DIST #1 GENERAL | 0.2868827388 | $441,548 | $441,548 | $126.67 | | |
| PORTPT | PORT OF PT GENERAL | 0.1134941229 | $441,548 | $441,548 | $50.11 | | |
| PORTPTIDD | PORT OF PT IDD 2019 | 0.2577346692 | $441,548 | $441,548 | $113.80 | | |
| PUD1 | PUD #1 GENERAL | 0.0597888892 | $441,548 | $441,548 | $26.40 | | |
| STATE | STATE SCHOOL PART 1 | 1.4940692947 | $441,548 | $441,548 | $659.70 | | |
| STATE2 | STATE SCHOOL PART 2 | 0.8050170049 | $441,548 | $441,548 | $355.45 | | |
| | Total Tax Rate: | 7.7095739644 | | | | | |
| | | | | Taxes w/Current Exemptions: | $3,404.12 | | |
| | | | | Taxes w/o Exemptions: | $3,404.12 | | |
Improvement / Building
| Improvement #1: | Commercial/Industrial/Government Bldg | State Code: | 58 | 2056.0 sqft | Value: | $276,212 |
| Exterior Wall: | SI/ST | Floor Construction: | CONCR | | Foundation: | CONPR | Interior Finish: | FIN | | Roof Cover: | BLTUP |   |   |
|
Sketch
Property Image
Land
| 1 | 4210-6273Q | | 0.3597 | 15667.00 | 0.00 | 0.00 | 0.00 | $165,336 | $0 |
Roll Value History
| 2026 | N/A | N/A | N/A | N/A | N/A |
| 2025 | $276,212 | $165,336 | $0 | $441,548 | $441,548 |
| 2024 | $276,212 | $165,336 | $0 | $441,548 | $441,548 |
| 2023 | $276,212 | $160,336 | $0 | $436,548 | $436,548 |
| 2022 | $262,331 | $142,802 | $0 | $405,133 | $405,133 |
Deed and Sales History
| 1 | 12/15/2023 | EASE | Assignment of Easement | LCM NORTH HOLDINGS LLC | JEFFERSON COUNTY | | | $900.00 | 142087 | TEMP CONST EASE |
| 2 | 12/15/2023 | EASE | Assignment of Easement | LCM NORTH HOLDINGS LLC | JEFFERSON COUNTY | | | $4,000.00 | 142088 | SEW/UTIL EASE |
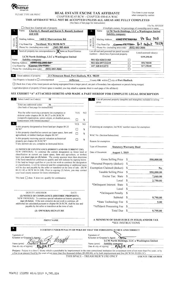
| 3 | 08/01/2019 | SWD | Statutory Warranty Deed | CHARLES E RUSSELL | LCM NORTH HOLDINGS LLC | | | $550,000.00 | 132858 | |
|   | |
Payout Agreement
| No payout information available.. |