Property
Account |
| Property ID: | 21186 | Abbreviated Legal Description: | S2 T29 R1W TAX 173 SUBJ/ESMTS #141473-4 |
| Parcel # / Geo ID: | 901024024 | Agent Code: | |
| Type: | Real | | |
| Tax Area: | 0211 - 1-49F1E1H2L1 | Land Use Code | 64 |
| Open Space: | N | DFL | N |
| Historic Property: | N | Remodel Property: | N |
| Multi-Family Redevelopment: | N | | |
| Township: | 29N | Section: | 2 |
| Range: | 1W |
Location |
| Address: | 661 NESS' CORNER RD PORT HADLOCK, WA 98339 | Mapsco: | 204/049 |
| Neighborhood: | HADLOCK COMMERCIAL CENTER | Map ID: | |
| Neighborhood CD: | 4210C |
Owner |
| Name: | RICHARD SHORT | Owner ID: | 27305 |
| Mailing Address: | 250 CENTER PARK WAY SEQUIM, WA 98382 | % Ownership: | 100.0000000000% |
| | | Exemptions: | |
Pay Tax Due
Select the appropriate checkbox next to the year to be paid. Multiple years may be selected.
*Convenience Fee not included
Taxes and Assessment Details
Property Tax Information as of
03/12/2026
Click on "Statement Details" to expand or collapse a tax statement.
* Please enter a valid date ** Please enter a valid date *
Statement Details |
| 2026 | 10672 | STATE - STATE LEVY (SCHOOL) | $260.03 | $260.01 | $0.00 | $0.00 | $0.00 | $520.04 |
| 2026 | 10672 | COUNTY - COUNTY LEVIES (CE, DD, VET, MH) | $103.96 | $103.95 | $0.00 | $0.00 | $0.00 | $207.91 |
| 2026 | 10672 | CONSERVE - CONSERVATION FUTURES | $3.12 | $3.11 | $0.00 | $0.00 | $0.00 | $6.23 |
| 2026 | 10672 | COROADS - COUNTY ROADS (ROADS, DIV TO CE) | $83.87 | $83.86 | $0.00 | $0.00 | $0.00 | $167.73 |
| 2026 | 10672 | PORTPT - PORT DISTRICT | $41.99 | $41.98 | $0.00 | $0.00 | $0.00 | $83.97 |
| 2026 | 10672 | PUD1 - PUD #1 | $6.76 | $6.76 | $0.00 | $0.00 | $0.00 | $13.52 |
| 2026 | 10672 | LIB1 - LIBRARY DIST #1 | $32.45 | $32.44 | $0.00 | $0.00 | $0.00 | $64.89 |
| 2026 | 10672 | HD2 - HOSP DIST #2 | $6.07 | $6.06 | $0.00 | $0.00 | $0.00 | $12.13 |
| 2026 | 10672 | SD49 - SCHOOL DIST #49 | $143.14 | $143.12 | $0.00 | $0.00 | $0.00 | $286.26 |
| 2026 | 10672 | FD1 - FIRE DISTRICT #1 | $137.67 | $137.66 | $0.00 | $0.00 | $0.00 | $275.33 |
| 2026 | 10672 | EMS1 - FIRE DIST #1 EMS | $52.93 | $52.93 | $0.00 | $0.00 | $0.00 | $105.86 |
| 2026 | 10672 | FP - DNR Forest Fire Protection Assmt | $8.50 | $8.50 | $0.00 | $0.00 | $0.00 | $17.00 |
| 2026 | 10672 | FPLCA - DNR Landowner Contingency Assmt | $3.00 | $3.00 | $0.00 | $0.00 | $0.00 | $6.00 |
| 2026 | 10672 | JCCD - JC Conservation District | $2.69 | $2.69 | $0.00 | $0.00 | $0.00 | $5.38 |
| 2026 | 10672 | NWA - Noxious Weed Assessment | $3.88 | $3.87 | $0.00 | $0.00 | $0.00 | $7.75 |
| 2026 | 10672 | OSS - On Site Septic | $23.10 | $23.10 | $0.00 | $0.00 | $0.00 | $46.20 |
| 2026 | 10672 | WAT - Clean Water District | $13.00 | $13.00 | $0.00 | $0.00 | $0.00 | $26.00 |
| 2026 | 10672 | FP ADMIN - FP ADMIN | $0.50 | $0.00 | $0.00 | $0.00 | $0.00 | $0.50 |
| 2026 | 10672 | TOTAL: | $926.66 | $926.04 | $0.00 | $0.00 | $0.00 | $1852.70 |
|
| 2026 | 10672 | $926.66 | $926.04 | $0.00 | $0.00 | $0.00 | $1852.70 |
Statement Details |
| 2025 | 10695 | STATE - STATE LEVY (SCHOOL) | $271.22 | $271.21 | $0.00 | $0.00 | $542.43 | $0.00 |
| 2025 | 10695 | COUNTY - COUNTY LEVIES (CE, DD, VET, MH) | $106.67 | $106.64 | $0.00 | $0.00 | $213.31 | $0.00 |
| 2025 | 10695 | CONSERVE - CONSERVATION FUTURES | $3.20 | $3.20 | $0.00 | $0.00 | $6.40 | $0.00 |
| 2025 | 10695 | COROADS - COUNTY ROADS (ROADS, DIV TO CE) | $85.45 | $85.44 | $0.00 | $0.00 | $170.89 | $0.00 |
| 2025 | 10695 | PORTPT - PORT DISTRICT | $43.52 | $43.52 | $0.00 | $0.00 | $87.04 | $0.00 |
| 2025 | 10695 | PUD1 - PUD #1 | $6.98 | $6.98 | $0.00 | $0.00 | $13.96 | $0.00 |
| 2025 | 10695 | LIB1 - LIBRARY DIST #1 | $33.06 | $33.06 | $0.00 | $0.00 | $66.12 | $0.00 |
| 2025 | 10695 | HD2 - HOSP DIST #2 | $6.22 | $6.22 | $0.00 | $0.00 | $12.44 | $0.00 |
| 2025 | 10695 | SD49 - SCHOOL DIST #49 | $145.36 | $145.35 | $0.00 | $0.00 | $290.71 | $0.00 |
| 2025 | 10695 | FD1 - FIRE DISTRICT #1 | $140.74 | $140.74 | $0.00 | $0.00 | $281.48 | $0.00 |
| 2025 | 10695 | EMS1 - FIRE DIST #1 EMS | $54.13 | $54.13 | $0.00 | $0.00 | $108.26 | $0.00 |
| 2025 | 10695 | FP - DNR Forest Fire Protection Assmt | $8.50 | $8.50 | $0.00 | $0.00 | $17.00 | $0.00 |
| 2025 | 10695 | FPLCA - DNR Landowner Contingency Assmt | $3.00 | $3.00 | $0.00 | $0.00 | $6.00 | $0.00 |
| 2025 | 10695 | JCCD - JC Conservation District | $2.69 | $2.69 | $0.00 | $0.00 | $5.38 | $0.00 |
| 2025 | 10695 | NWA - Noxious Weed Assessment | $2.75 | $2.75 | $0.00 | $0.00 | $5.50 | $0.00 |
| 2025 | 10695 | OSS - On Site Septic | $21.50 | $21.50 | $0.00 | $0.00 | $43.00 | $0.00 |
| 2025 | 10695 | WAT - Clean Water District | $13.00 | $13.00 | $0.00 | $0.00 | $26.00 | $0.00 |
| 2025 | 10695 | FP ADMIN - FP ADMIN | $0.50 | $0.00 | $0.00 | $0.00 | $0.50 | $0.00 |
| 2025 | 10695 | TOTAL: | $948.49 | $947.93 | $0.00 | $0.00 | $1896.42 | $0.00 |
|
| 2025 | 10695 | $948.49 | $947.93 | $0.00 | $0.00 | $1896.42 | $0.00 |
Statement Details |
| 2024 | 10720 | STATE - STATE LEVY (SCHOOL) | $255.88 | $255.88 | $0.00 | $0.00 | $511.76 | $0.00 |
| 2024 | 10720 | COUNTY - COUNTY LEVIES (CE, DD, VET, MH) | $109.50 | $109.49 | $0.00 | $0.00 | $218.99 | $0.00 |
| 2024 | 10720 | CONSERVE - CONSERVATION FUTURES | $3.29 | $3.28 | $0.00 | $0.00 | $6.57 | $0.00 |
| 2024 | 10720 | COROADS - COUNTY ROADS (ROADS, DIV TO CE) | $88.11 | $88.10 | $0.00 | $0.00 | $176.21 | $0.00 |
| 2024 | 10720 | PORTPT - PORT DISTRICT | $45.23 | $45.22 | $0.00 | $0.00 | $90.45 | $0.00 |
| 2024 | 10720 | PUD1 - PUD #1 | $7.19 | $7.19 | $0.00 | $0.00 | $14.38 | $0.00 |
| 2024 | 10720 | LIB1 - LIBRARY DIST #1 | $34.09 | $34.08 | $0.00 | $0.00 | $68.17 | $0.00 |
| 2024 | 10720 | HD2 - HOSP DIST #2 | $6.39 | $6.39 | $0.00 | $0.00 | $12.78 | $0.00 |
| 2024 | 10720 | SD49 - SCHOOL DIST #49 | $114.27 | $114.26 | $0.00 | $0.00 | $228.53 | $0.00 |
| 2024 | 10720 | FD1 - FIRE DISTRICT #1 | $144.78 | $144.77 | $0.00 | $0.00 | $289.55 | $0.00 |
| 2024 | 10720 | EMS1 - FIRE DIST #1 EMS | $55.30 | $55.30 | $0.00 | $0.00 | $110.60 | $0.00 |
| 2024 | 10720 | JCCD - JC Conservation District | $2.69 | $2.69 | $0.00 | $0.00 | $5.38 | $0.00 |
| 2024 | 10720 | NWA - Noxious Weed Assessment | $2.75 | $2.75 | $0.00 | $0.00 | $5.50 | $0.00 |
| 2024 | 10720 | OSS - On Site Septic | $21.00 | $21.00 | $0.00 | $0.00 | $42.00 | $0.00 |
| 2024 | 10720 | WAT - Clean Water District | $12.50 | $12.50 | $0.00 | $0.00 | $25.00 | $0.00 |
| 2024 | 10720 | TOTAL: | $902.97 | $902.90 | $0.00 | $0.00 | $1805.87 | $0.00 |
|
| 2024 | 10720 | $902.97 | $902.90 | $0.00 | $0.00 | $1805.87 | $0.00 |
Statement Details |
| 2023 | 10740 | STATE - STATE LEVY (SCHOOL) | $236.25 | $236.23 | $0.00 | $0.00 | $472.48 | $0.00 |
| 2023 | 10740 | COUNTY - COUNTY LEVIES (CE, DD, VET, MH) | $103.11 | $103.07 | $0.00 | $0.00 | $206.18 | $0.00 |
| 2023 | 10740 | CONSERVE - CONSERVATION FUTURES | $3.09 | $3.09 | $0.00 | $0.00 | $6.18 | $0.00 |
| 2023 | 10740 | COROADS - COUNTY ROADS (ROADS, DIV TO CE) | $83.41 | $83.41 | $0.00 | $0.00 | $166.82 | $0.00 |
| 2023 | 10740 | PORTPT - PORT DISTRICT | $43.43 | $43.43 | $0.00 | $0.00 | $86.86 | $0.00 |
| 2023 | 10740 | PUD1 - PUD #1 | $6.84 | $6.83 | $0.00 | $0.00 | $13.67 | $0.00 |
| 2023 | 10740 | LIB1 - LIBRARY DIST #1 | $32.27 | $32.27 | $0.00 | $0.00 | $64.54 | $0.00 |
| 2023 | 10740 | HD2 - HOSP DIST #2 | $6.02 | $6.01 | $0.00 | $0.00 | $12.03 | $0.00 |
| 2023 | 10740 | SD49 - SCHOOL DIST #49 | $110.43 | $110.43 | $0.00 | $0.00 | $220.86 | $0.00 |
| 2023 | 10740 | FD1 - FIRE DISTRICT #1 | $84.93 | $84.92 | $0.00 | $0.00 | $169.85 | $0.00 |
| 2023 | 10740 | EMS1 - FIRE DIST #1 EMS | $36.13 | $36.12 | $0.00 | $0.00 | $72.25 | $0.00 |
| 2023 | 10740 | JCCD - JC Conservation District | $2.69 | $2.69 | $0.00 | $0.00 | $5.38 | $0.00 |
| 2023 | 10740 | NWA - Noxious Weed Assessment | $2.75 | $2.75 | $0.00 | $0.00 | $5.50 | $0.00 |
| 2023 | 10740 | OSS - On Site Septic | $20.50 | $20.50 | $0.00 | $0.00 | $41.00 | $0.00 |
| 2023 | 10740 | WAT - Clean Water District | $12.00 | $12.00 | $0.00 | $0.00 | $24.00 | $0.00 |
| 2023 | 10740 | TOTAL: | $783.85 | $783.75 | $0.00 | $0.00 | $1567.60 | $0.00 |
|
| 2023 | 10740 | $783.85 | $783.75 | $0.00 | $0.00 | $1567.60 | $0.00 |
Values
| (+) Improvement Homesite Value: | + | $0 | |
| (+) Improvement Non-Homesite Value: | + | $35,020 | |
| (+) Land Homesite Value: | + | $0 | |
| (+) Land Non-Homesite Value: | + | $191,177 | |
| (+) Curr Use (HS): | + | $0 | $0 |
| (+) Curr Use (NHS): | + | $0 | $0 |
| | | -------------------------- | |
| (=) Market Value: | = | $226,197 | |
| (–) Productivity Loss: | – | $0 | |
| | | -------------------------- | |
| (=) Subtotal: | = | $226,197 | |
| (+) Senior Appraised Value: | + | $0 | |
| (+) Non-Senior Appraised Value: | + | $226,197 | |
| | | -------------------------- | |
| (=) Total Appraised Value: | = | $226,197 | |
| (–) Senior Exemption Loss: | – | $0 | |
| (–) Exemption Loss: | – | $0 | |
| | | -------------------------- | |
| (=) Taxable Value: | = | $226,197 | |
Taxing Jurisdiction
| Owner: | RICHARD SHORT | | |
| % Ownership: | 100.0000000000% | | |
| Total Value: | $226,197 | | |
| Tax Area: | 0211 - 1-49F1E1H2L1 |
| CE | COUNTY CURRENT EXPENSE | 0.9034619479 | $226,197 | $226,197 | $204.36 | | |
| CNTYDD | DEVELOPMENTAL DISABILITIES | 0.0052121823 | $226,197 | $226,197 | $1.18 | | |
| CNTYVET | VETERANS RELIEF | 0.0052777810 | $226,197 | $226,197 | $1.19 | | |
| MENTAL | MENTAL HEALTH | 0.0052121823 | $226,197 | $226,197 | $1.18 | | |
| ROADS | COUNTY ROADS | 0.7415066410 | $226,197 | $226,197 | $167.73 | | |
| ROADSCU | COUNTY ROADS TO CUR EXP | 0.0000000000 | $226,197 | $226,197 | $0.00 | | |
| HOSP2CASH | HOSP DIST #2 GENERAL | 0.0536075306 | $226,197 | $226,197 | $12.13 | | |
| SCH49CP | SCHOOL DIST #49 CAP PROJ | 0.6279093905 | $226,197 | $226,197 | $142.03 | | |
| SCH49MO | SCHOOL DIST #49 EP & O | 0.6376483602 | $226,197 | $226,197 | $144.23 | | |
| CONSERVE | CONSERVATION FUTURES | 0.0275621078 | $226,197 | $226,197 | $6.23 | | |
| EMS1 | FIRE DIST #1 EMS | 0.4679948282 | $226,197 | $226,197 | $105.86 | | |
| FD1 | FIRE DIST #1 GENERAL | 1.2171942929 | $226,197 | $226,197 | $275.33 | | |
| LIB1 | LIBRARY DIST #1 GENERAL | 0.2868827388 | $226,197 | $226,197 | $64.89 | | |
| PORTPT | PORT OF PT GENERAL | 0.1134941229 | $226,197 | $226,197 | $25.67 | | |
| PORTPTIDD | PORT OF PT IDD 2019 | 0.2577346692 | $226,197 | $226,197 | $58.30 | | |
| PUD1 | PUD #1 GENERAL | 0.0597888892 | $226,197 | $226,197 | $13.52 | | |
| STATE | STATE SCHOOL PART 1 | 1.4940692947 | $226,197 | $226,197 | $337.95 | | |
| STATE2 | STATE SCHOOL PART 2 | 0.8050170049 | $226,197 | $226,197 | $182.09 | | |
| | Total Tax Rate: | 7.7095739644 | | | | | |
| | | | | Taxes w/Current Exemptions: | $1,743.87 | | |
| | | | | Taxes w/o Exemptions: | $1,743.87 | | |
Improvement / Building
| Improvement #1: | Commercial/Industrial/Government Bldg | State Code: | 64 | 1040.0 sqft | Value: | $35,020 |
| Exterior Wall: | PL/T1 | Floor Construction: | CONCR | | Foundation: | CONPR | Interior Finish: | FIN | | Roof Cover: | COMP |   |   |
|
Sketch
Property Image
Land
| 1 | 4210-6279Q | | 0.5624 | 24500.00 | 0.00 | 0.00 | 0.00 | $128,000 | $0 |
| 2 | 4210-6287Q | | 3.8676 | 168471.00 | 0.00 | 0.00 | 0.00 | $63,177 | $0 |
Roll Value History
| 2026 | N/A | N/A | N/A | N/A | N/A |
| 2025 | $35,020 | $191,177 | $0 | $226,197 | $226,197 |
| 2024 | $35,020 | $191,177 | $0 | $226,197 | $226,197 |
| 2023 | $35,020 | $186,177 | $0 | $221,197 | $221,197 |
| 2022 | $31,774 | $168,927 | $0 | $200,701 | $200,701 |
Deed and Sales History
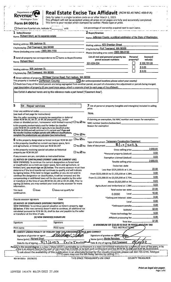
| 1 | 08/10/2023 | EASE | Assignment of Easement | RICHARD SHORT | JEFFERSON COUNTY | | | $2,000.00 | 141474 | TEMP CONST EASE |
| 2 | 08/10/2023 | EASE | Assignment of Easement | RICHARD SHORT | JEFFERSON COUNTY | | | $8,800.00 | 141473 | SEW/UTIL EASE |
| 3 | 07/19/1994 | QCD | Quit Claim Deed | SHORT, LOUANN | SHORT, RICHARD | 0 | 0 | $0.00 | 74761 | 0 |
Payout Agreement
| No payout information available.. |