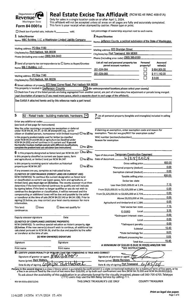
Property
Account |
| Property ID: | 21226 | Abbreviated Legal Description: | S2 T29 R1W TAX 89 SUBJ/UTILITY EASE #142857/56 |
| Parcel # / Geo ID: | 901024064 | Agent Code: | |
| Type: | Real | | |
| Tax Area: | 0211 - 1-49F1E1H2L1 | Land Use Code | 52 |
| Open Space: | N | DFL | N |
| Historic Property: | N | Remodel Property: | N |
| Multi-Family Redevelopment: | N | | |
| Township: | 29N | Section: | 2 |
| Range: | 1W |
Location |
| Address: | 972 NESS' CORNER RD PORT HADLOCK, WA 98339 | Mapsco: | 203/048 |
| Neighborhood: | HADLOCK COMMERCIAL CENTER | Map ID: | |
| Neighborhood CD: | 4210C |
Owner |
| Name: | M&C BUILDING LLC | Owner ID: | 98779 |
| Mailing Address: | PO BOX 1140 PORT HADLOCK, WA 98339-1140 | % Ownership: | 100.0000000000% |
| | | Exemptions: | |
Pay Tax Due
Select the appropriate checkbox next to the year to be paid. Multiple years may be selected.
*Convenience Fee not included
Taxes and Assessment Details
Property Tax Information as of
03/12/2026
Click on "Statement Details" to expand or collapse a tax statement.
* Please enter a valid date ** Please enter a valid date *
Statement Details |
| 2026 | 10712 | STATE - STATE LEVY (SCHOOL) | $758.59 | $758.58 | $0.00 | $0.00 | $0.00 | $1517.17 |
| 2026 | 10712 | COUNTY - COUNTY LEVIES (CE, DD, VET, MH) | $303.28 | $303.28 | $0.00 | $0.00 | $0.00 | $606.56 |
| 2026 | 10712 | CONSERVE - CONSERVATION FUTURES | $9.10 | $9.09 | $0.00 | $0.00 | $0.00 | $18.19 |
| 2026 | 10712 | COROADS - COUNTY ROADS (ROADS, DIV TO CE) | $244.66 | $244.66 | $0.00 | $0.00 | $0.00 | $489.32 |
| 2026 | 10712 | PORTPT - PORT DISTRICT | $122.49 | $122.49 | $0.00 | $0.00 | $0.00 | $244.98 |
| 2026 | 10712 | PUD1 - PUD #1 | $19.73 | $19.72 | $0.00 | $0.00 | $0.00 | $39.45 |
| 2026 | 10712 | LIB1 - LIBRARY DIST #1 | $94.66 | $94.66 | $0.00 | $0.00 | $0.00 | $189.32 |
| 2026 | 10712 | HD2 - HOSP DIST #2 | $17.69 | $17.69 | $0.00 | $0.00 | $0.00 | $35.38 |
| 2026 | 10712 | SD49 - SCHOOL DIST #49 | $417.58 | $417.57 | $0.00 | $0.00 | $0.00 | $835.15 |
| 2026 | 10712 | FD1 - FIRE DISTRICT #1 | $401.62 | $401.61 | $0.00 | $0.00 | $0.00 | $803.23 |
| 2026 | 10712 | EMS1 - FIRE DIST #1 EMS | $154.42 | $154.41 | $0.00 | $0.00 | $0.00 | $308.83 |
| 2026 | 10712 | JCCD - JC Conservation District | $2.53 | $2.53 | $0.00 | $0.00 | $0.00 | $5.06 |
| 2026 | 10712 | NWA - Noxious Weed Assessment | $2.98 | $2.97 | $0.00 | $0.00 | $0.00 | $5.95 |
| 2026 | 10712 | OSS - On Site Septic | $23.10 | $23.10 | $0.00 | $0.00 | $0.00 | $46.20 |
| 2026 | 10712 | WAT - Clean Water District | $13.00 | $13.00 | $0.00 | $0.00 | $0.00 | $26.00 |
| 2026 | 10712 | TOTAL: | $2585.43 | $2585.36 | $0.00 | $0.00 | $0.00 | $5170.79 |
|
| 2026 | 10712 | $2585.43 | $2585.36 | $0.00 | $0.00 | $0.00 | $5170.79 |
Statement Details |
| 2025 | 10735 | STATE - STATE LEVY (SCHOOL) | $791.24 | $791.23 | $0.00 | $0.00 | $1582.47 | $0.00 |
| 2025 | 10735 | COUNTY - COUNTY LEVIES (CE, DD, VET, MH) | $311.15 | $311.14 | $0.00 | $0.00 | $622.29 | $0.00 |
| 2025 | 10735 | CONSERVE - CONSERVATION FUTURES | $9.33 | $9.33 | $0.00 | $0.00 | $18.66 | $0.00 |
| 2025 | 10735 | COROADS - COUNTY ROADS (ROADS, DIV TO CE) | $249.28 | $249.28 | $0.00 | $0.00 | $498.56 | $0.00 |
| 2025 | 10735 | PORTPT - PORT DISTRICT | $126.97 | $126.96 | $0.00 | $0.00 | $253.93 | $0.00 |
| 2025 | 10735 | PUD1 - PUD #1 | $20.36 | $20.36 | $0.00 | $0.00 | $40.72 | $0.00 |
| 2025 | 10735 | LIB1 - LIBRARY DIST #1 | $96.45 | $96.44 | $0.00 | $0.00 | $192.89 | $0.00 |
| 2025 | 10735 | HD2 - HOSP DIST #2 | $18.16 | $18.15 | $0.00 | $0.00 | $36.31 | $0.00 |
| 2025 | 10735 | SD49 - SCHOOL DIST #49 | $424.06 | $424.05 | $0.00 | $0.00 | $848.11 | $0.00 |
| 2025 | 10735 | FD1 - FIRE DISTRICT #1 | $410.60 | $410.59 | $0.00 | $0.00 | $821.19 | $0.00 |
| 2025 | 10735 | EMS1 - FIRE DIST #1 EMS | $157.93 | $157.92 | $0.00 | $0.00 | $315.85 | $0.00 |
| 2025 | 10735 | JCCD - JC Conservation District | $2.53 | $2.53 | $0.00 | $0.00 | $5.06 | $0.00 |
| 2025 | 10735 | NWA - Noxious Weed Assessment | $2.15 | $2.15 | $0.00 | $0.00 | $4.30 | $0.00 |
| 2025 | 10735 | OSS - On Site Septic | $21.50 | $21.50 | $0.00 | $0.00 | $43.00 | $0.00 |
| 2025 | 10735 | WAT - Clean Water District | $13.00 | $13.00 | $0.00 | $0.00 | $26.00 | $0.00 |
| 2025 | 10735 | TOTAL: | $2654.71 | $2654.63 | $0.00 | $0.00 | $5309.34 | $0.00 |
|
| 2025 | 10735 | $2654.71 | $2654.63 | $0.00 | $0.00 | $5309.34 | $0.00 |
Statement Details |
| 2024 | 10760 | STATE - STATE LEVY (SCHOOL) | $757.60 | $757.58 | $0.00 | $0.00 | $1515.18 | $0.00 |
| 2024 | 10760 | COUNTY - COUNTY LEVIES (CE, DD, VET, MH) | $324.19 | $324.17 | $0.00 | $0.00 | $648.36 | $0.00 |
| 2024 | 10760 | CONSERVE - CONSERVATION FUTURES | $9.72 | $9.72 | $0.00 | $0.00 | $19.44 | $0.00 |
| 2024 | 10760 | COROADS - COUNTY ROADS (ROADS, DIV TO CE) | $260.86 | $260.86 | $0.00 | $0.00 | $521.72 | $0.00 |
| 2024 | 10760 | PORTPT - PORT DISTRICT | $133.90 | $133.90 | $0.00 | $0.00 | $267.80 | $0.00 |
| 2024 | 10760 | PUD1 - PUD #1 | $21.30 | $21.29 | $0.00 | $0.00 | $42.59 | $0.00 |
| 2024 | 10760 | LIB1 - LIBRARY DIST #1 | $100.93 | $100.92 | $0.00 | $0.00 | $201.85 | $0.00 |
| 2024 | 10760 | HD2 - HOSP DIST #2 | $18.92 | $18.91 | $0.00 | $0.00 | $37.83 | $0.00 |
| 2024 | 10760 | SD49 - SCHOOL DIST #49 | $338.30 | $338.30 | $0.00 | $0.00 | $676.60 | $0.00 |
| 2024 | 10760 | FD1 - FIRE DISTRICT #1 | $428.65 | $428.64 | $0.00 | $0.00 | $857.29 | $0.00 |
| 2024 | 10760 | EMS1 - FIRE DIST #1 EMS | $163.73 | $163.72 | $0.00 | $0.00 | $327.45 | $0.00 |
| 2024 | 10760 | JCCD - JC Conservation District | $2.53 | $2.53 | $0.00 | $0.00 | $5.06 | $0.00 |
| 2024 | 10760 | NWA - Noxious Weed Assessment | $2.15 | $2.15 | $0.00 | $0.00 | $4.30 | $0.00 |
| 2024 | 10760 | OSS - On Site Septic | $21.00 | $21.00 | $0.00 | $0.00 | $42.00 | $0.00 |
| 2024 | 10760 | WAT - Clean Water District | $12.50 | $12.50 | $0.00 | $0.00 | $25.00 | $0.00 |
| 2024 | 10760 | TOTAL: | $2596.28 | $2596.19 | $0.00 | $0.00 | $5192.47 | $0.00 |
|
| 2024 | 10760 | $2596.28 | $2596.19 | $0.00 | $0.00 | $5192.47 | $0.00 |
Statement Details |
| 2023 | 10780 | STATE - STATE LEVY (SCHOOL) | $719.44 | $719.43 | $0.00 | $0.00 | $1438.87 | $0.00 |
| 2023 | 10780 | COUNTY - COUNTY LEVIES (CE, DD, VET, MH) | $313.94 | $313.93 | $0.00 | $0.00 | $627.87 | $0.00 |
| 2023 | 10780 | CONSERVE - CONSERVATION FUTURES | $9.42 | $9.41 | $0.00 | $0.00 | $18.83 | $0.00 |
| 2023 | 10780 | COROADS - COUNTY ROADS (ROADS, DIV TO CE) | $254.00 | $253.99 | $0.00 | $0.00 | $507.99 | $0.00 |
| 2023 | 10780 | PORTPT - PORT DISTRICT | $132.26 | $132.24 | $0.00 | $0.00 | $264.50 | $0.00 |
| 2023 | 10780 | PUD1 - PUD #1 | $20.81 | $20.81 | $0.00 | $0.00 | $41.62 | $0.00 |
| 2023 | 10780 | LIB1 - LIBRARY DIST #1 | $98.27 | $98.27 | $0.00 | $0.00 | $196.54 | $0.00 |
| 2023 | 10780 | HD2 - HOSP DIST #2 | $18.33 | $18.31 | $0.00 | $0.00 | $36.64 | $0.00 |
| 2023 | 10780 | SD49 - SCHOOL DIST #49 | $336.30 | $336.29 | $0.00 | $0.00 | $672.59 | $0.00 |
| 2023 | 10780 | FD1 - FIRE DISTRICT #1 | $258.63 | $258.62 | $0.00 | $0.00 | $517.25 | $0.00 |
| 2023 | 10780 | EMS1 - FIRE DIST #1 EMS | $110.02 | $110.01 | $0.00 | $0.00 | $220.03 | $0.00 |
| 2023 | 10780 | JCCD - JC Conservation District | $2.53 | $2.53 | $0.00 | $0.00 | $5.06 | $0.00 |
| 2023 | 10780 | NWA - Noxious Weed Assessment | $2.15 | $2.15 | $0.00 | $0.00 | $4.30 | $0.00 |
| 2023 | 10780 | OSS - On Site Septic | $20.50 | $20.50 | $0.00 | $0.00 | $41.00 | $0.00 |
| 2023 | 10780 | WAT - Clean Water District | $12.00 | $12.00 | $0.00 | $0.00 | $24.00 | $0.00 |
| 2023 | 10780 | TOTAL: | $2308.60 | $2308.49 | $0.00 | $0.00 | $4617.09 | $0.00 |
|
| 2023 | 10780 | $2308.60 | $2308.49 | $0.00 | $0.00 | $4617.09 | $0.00 |
Values
| (+) Improvement Homesite Value: | + | $0 | |
| (+) Improvement Non-Homesite Value: | + | $476,755 | |
| (+) Land Homesite Value: | + | $0 | |
| (+) Land Non-Homesite Value: | + | $183,150 | |
| (+) Curr Use (HS): | + | $0 | $0 |
| (+) Curr Use (NHS): | + | $0 | $0 |
| | | -------------------------- | |
| (=) Market Value: | = | $659,905 | |
| (–) Productivity Loss: | – | $0 | |
| | | -------------------------- | |
| (=) Subtotal: | = | $659,905 | |
| (+) Senior Appraised Value: | + | $0 | |
| (+) Non-Senior Appraised Value: | + | $659,905 | |
| | | -------------------------- | |
| (=) Total Appraised Value: | = | $659,905 | |
| (–) Senior Exemption Loss: | – | $0 | |
| (–) Exemption Loss: | – | $0 | |
| | | -------------------------- | |
| (=) Taxable Value: | = | $659,905 | |
Taxing Jurisdiction
| Owner: | M&C BUILDING LLC | | |
| % Ownership: | 100.0000000000% | | |
| Total Value: | N/A | | |
| Tax Area: | 0211 - 1-49F1E1H2L1 |
| CE | COUNTY CURRENT EXPENSE | N/A | N/A | N/A | N/A | | |
| CNTYDD | DEVELOPMENTAL DISABILITIES | N/A | N/A | N/A | N/A | | |
| CNTYVET | VETERANS RELIEF | N/A | N/A | N/A | N/A | | |
| MENTAL | MENTAL HEALTH | N/A | N/A | N/A | N/A | | |
| ROADS | COUNTY ROADS | N/A | N/A | N/A | N/A | | |
| HOSP2CASH | HOSP DIST #2 GENERAL | N/A | N/A | N/A | N/A | | |
| SCH49CP | SCHOOL DIST #49 CAP PROJ | N/A | N/A | N/A | N/A | | |
| SCH49MO | SCHOOL DIST #49 EP & O | N/A | N/A | N/A | N/A | | |
| CONSERVE | CONSERVATION FUTURES | N/A | N/A | N/A | N/A | | |
| EMS1 | FIRE DIST #1 EMS | N/A | N/A | N/A | N/A | | |
| FD1 | FIRE DIST #1 GENERAL | N/A | N/A | N/A | N/A | | |
| LIB1 | LIBRARY DIST #1 GENERAL | N/A | N/A | N/A | N/A | | |
| PORTPT | PORT OF PT GENERAL | N/A | N/A | N/A | N/A | | |
| PORTPTIDD | PORT OF PT IDD 2019 | N/A | N/A | N/A | N/A | | |
| PUD1 | PUD #1 GENERAL | N/A | N/A | N/A | N/A | | |
| STATE | STATE SCHOOL PART 1 | N/A | N/A | N/A | N/A | | |
| STATE2 | STATE SCHOOL PART 2 | N/A | N/A | N/A | N/A | | |
| | Total Tax Rate: | N/A | | | | | |
| | | | | Taxes w/Current Exemptions: | N/A | | |
| | | | | Taxes w/o Exemptions: | N/A | | |
Improvement / Building
| Improvement #1: | Commercial/Industrial/Government Bldg | State Code: | 52 | 6400.0 sqft | Value: | $476,755 |
Sketch
| No sketches available for this property. |
Property Image
Land
| 1 | 4210-6279Q | | 0.8648 | 37671.00 | 0.00 | 0.00 | 0.00 | $183,150 | $0 |
Roll Value History
| 2026 | N/A | N/A | N/A | N/A | N/A |
| 2025 | $476,755 | $183,150 | $0 | $659,905 | $659,905 |
| 2024 | $476,755 | $183,150 | $0 | $659,905 | $659,905 |
| 2023 | $476,755 | $178,150 | $0 | $654,905 | $654,905 |
| 2022 | $455,947 | $155,257 | $0 | $611,204 | $611,204 |
Deed and Sales History
| 1 | 06/25/2024 | EASE | Assignment of Easement | M&C BUILDING LLC | JEFFERSON COUNTY | | | $650.00 | 142856 | TEMP CONST EASE |
|   | |
| 2 | 06/25/2024 | EASE | Assignment of Easement | M&C BUILDING LLC | JEFFERSON COUNTY | | | $2,200.00 | 142857 | SEWER EASE |
|   | |
| 3 | 03/02/2018 | SWD | Statutory Warranty Deed | L & J ENTERPRISES | M&C BUILDING LLC | | | $575,000.00 | 129678 | |
|   | |
| 4 | 11/06/2002 | QCD | Quit Claim Deed | JAMES, MORRIS & LLONA ET | L & J ENTERPRISES | 0 | 0 | $0.00 | 95925 | 0 |
| 5 | 10/22/2002 | SWD | Statutory Warranty Deed | SILVERA, SALLY J | L & J ENTERPRISE | 0 | 0 | $87,000.00 | 95825 | 0 |
| 6 | 10/02/1997 | SWD | Statutory Warranty Deed | BANCROFT, BILLY LEE/ET AL | SILVERA, SALLY J | 0 | 0 | $60,000.00 | 83047 | 0 |
Payout Agreement
| No payout information available.. |