Property
Account |
| Property ID: | 21234 | Abbreviated Legal Description: | S2 T29 R1W TAX 199 SUBJ/ESMTS #141154-5 |
| Parcel # / Geo ID: | 901024074 | Agent Code: | |
| Type: | Real | | |
| Tax Area: | 0211 - 1-49F1E1H2L1 | Land Use Code | 59 |
| Open Space: | N | DFL | N |
| Historic Property: | N | Remodel Property: | N |
| Multi-Family Redevelopment: | N | | |
| Township: | 29N | Section: | 2 |
| Range: | 1W |
Location |
| Address: | 690 NESS' CORNER RD PORT HADLOCK, WA 98339 | Mapsco: | 204/059 |
| Neighborhood: | HADLOCK COMMERCIAL CENTER | Map ID: | |
| Neighborhood CD: | 4210C |
Owner |
| Name: | THOMAS D YARBROUGH | Owner ID: | 30933 |
| Mailing Address: | GAIL L GABRIEL PO BOX 43 SHASTA, CA 96087-0043 | % Ownership: | 100.0000000000% |
| | | Exemptions: | |
Pay Tax Due
There is currently No Amount Due on this property.
Taxes and Assessment Details
Property Tax Information as of
03/11/2026
Click on "Statement Details" to expand or collapse a tax statement.
* Please enter a valid date ** Please enter a valid date *
Statement Details |
| 2026 | 10720 | STATE - STATE LEVY (SCHOOL) | $290.13 | $290.13 | $0.00 | $0.00 | $580.26 | $0.00 |
| 2026 | 10720 | COUNTY - COUNTY LEVIES (CE, DD, VET, MH) | $116.00 | $115.99 | $0.00 | $0.00 | $231.99 | $0.00 |
| 2026 | 10720 | CONSERVE - CONSERVATION FUTURES | $3.48 | $3.48 | $0.00 | $0.00 | $6.96 | $0.00 |
| 2026 | 10720 | COROADS - COUNTY ROADS (ROADS, DIV TO CE) | $93.58 | $93.57 | $0.00 | $0.00 | $187.15 | $0.00 |
| 2026 | 10720 | PORTPT - PORT DISTRICT | $46.85 | $46.84 | $0.00 | $0.00 | $93.69 | $0.00 |
| 2026 | 10720 | PUD1 - PUD #1 | $7.55 | $7.54 | $0.00 | $0.00 | $15.09 | $0.00 |
| 2026 | 10720 | LIB1 - LIBRARY DIST #1 | $36.21 | $36.20 | $0.00 | $0.00 | $72.41 | $0.00 |
| 2026 | 10720 | HD2 - HOSP DIST #2 | $6.77 | $6.76 | $0.00 | $0.00 | $13.53 | $0.00 |
| 2026 | 10720 | SD49 - SCHOOL DIST #49 | $159.71 | $159.70 | $0.00 | $0.00 | $319.41 | $0.00 |
| 2026 | 10720 | FD1 - FIRE DISTRICT #1 | $153.60 | $153.60 | $0.00 | $0.00 | $307.20 | $0.00 |
| 2026 | 10720 | EMS1 - FIRE DIST #1 EMS | $59.06 | $59.06 | $0.00 | $0.00 | $118.12 | $0.00 |
| 2026 | 10720 | FP - DNR Forest Fire Protection Assmt | $8.50 | $8.50 | $0.00 | $0.00 | $17.00 | $0.00 |
| 2026 | 10720 | FPLCA - DNR Landowner Contingency Assmt | $3.00 | $3.00 | $0.00 | $0.00 | $6.00 | $0.00 |
| 2026 | 10720 | JCCD - JC Conservation District | $2.53 | $2.53 | $0.00 | $0.00 | $5.06 | $0.00 |
| 2026 | 10720 | NWA - Noxious Weed Assessment | $2.98 | $2.97 | $0.00 | $0.00 | $5.95 | $0.00 |
| 2026 | 10720 | OSS - On Site Septic | $23.10 | $23.10 | $0.00 | $0.00 | $46.20 | $0.00 |
| 2026 | 10720 | WAT - Clean Water District | $13.00 | $13.00 | $0.00 | $0.00 | $26.00 | $0.00 |
| 2026 | 10720 | FP ADMIN - FP ADMIN | $0.50 | $0.00 | $0.00 | $0.00 | $0.50 | $0.00 |
| 2026 | 10720 | TOTAL: | $1026.55 | $1025.97 | $0.00 | $0.00 | $2052.52 | $0.00 |
|
| 2026 | 10720 | $1026.55 | $1025.97 | $0.00 | $0.00 | $2052.52 | $0.00 |
Statement Details |
| 2025 | 10743 | STATE - STATE LEVY (SCHOOL) | $302.62 | $302.60 | $0.00 | $0.00 | $605.22 | $0.00 |
| 2025 | 10743 | COUNTY - COUNTY LEVIES (CE, DD, VET, MH) | $119.02 | $118.99 | $0.00 | $0.00 | $238.01 | $0.00 |
| 2025 | 10743 | CONSERVE - CONSERVATION FUTURES | $3.57 | $3.57 | $0.00 | $0.00 | $7.14 | $0.00 |
| 2025 | 10743 | COROADS - COUNTY ROADS (ROADS, DIV TO CE) | $95.35 | $95.33 | $0.00 | $0.00 | $190.68 | $0.00 |
| 2025 | 10743 | PORTPT - PORT DISTRICT | $48.57 | $48.55 | $0.00 | $0.00 | $97.12 | $0.00 |
| 2025 | 10743 | PUD1 - PUD #1 | $7.79 | $7.78 | $0.00 | $0.00 | $15.57 | $0.00 |
| 2025 | 10743 | LIB1 - LIBRARY DIST #1 | $36.89 | $36.88 | $0.00 | $0.00 | $73.77 | $0.00 |
| 2025 | 10743 | HD2 - HOSP DIST #2 | $6.95 | $6.94 | $0.00 | $0.00 | $13.89 | $0.00 |
| 2025 | 10743 | SD49 - SCHOOL DIST #49 | $162.18 | $162.18 | $0.00 | $0.00 | $324.36 | $0.00 |
| 2025 | 10743 | FD1 - FIRE DISTRICT #1 | $157.04 | $157.03 | $0.00 | $0.00 | $314.07 | $0.00 |
| 2025 | 10743 | EMS1 - FIRE DIST #1 EMS | $60.40 | $60.40 | $0.00 | $0.00 | $120.80 | $0.00 |
| 2025 | 10743 | FP - DNR Forest Fire Protection Assmt | $8.50 | $8.50 | $0.00 | $0.00 | $17.00 | $0.00 |
| 2025 | 10743 | FPLCA - DNR Landowner Contingency Assmt | $3.00 | $3.00 | $0.00 | $0.00 | $6.00 | $0.00 |
| 2025 | 10743 | JCCD - JC Conservation District | $2.53 | $2.53 | $0.00 | $0.00 | $5.06 | $0.00 |
| 2025 | 10743 | NWA - Noxious Weed Assessment | $2.15 | $2.15 | $0.00 | $0.00 | $4.30 | $0.00 |
| 2025 | 10743 | OSS - On Site Septic | $21.50 | $21.50 | $0.00 | $0.00 | $43.00 | $0.00 |
| 2025 | 10743 | WAT - Clean Water District | $13.00 | $13.00 | $0.00 | $0.00 | $26.00 | $0.00 |
| 2025 | 10743 | FP ADMIN - FP ADMIN | $0.50 | $0.00 | $0.00 | $0.00 | $0.50 | $0.00 |
| 2025 | 10743 | TOTAL: | $1051.56 | $1050.93 | $0.00 | $0.00 | $2102.49 | $0.00 |
|
| 2025 | 10743 | $1051.56 | $1050.93 | $0.00 | $0.00 | $2102.49 | $0.00 |
Statement Details |
| 2024 | 10768 | STATE - STATE LEVY (SCHOOL) | $286.18 | $286.17 | $0.00 | $0.00 | $572.35 | $0.00 |
| 2024 | 10768 | COUNTY - COUNTY LEVIES (CE, DD, VET, MH) | $122.46 | $122.45 | $0.00 | $0.00 | $244.91 | $0.00 |
| 2024 | 10768 | CONSERVE - CONSERVATION FUTURES | $3.67 | $3.67 | $0.00 | $0.00 | $7.34 | $0.00 |
| 2024 | 10768 | COROADS - COUNTY ROADS (ROADS, DIV TO CE) | $98.54 | $98.53 | $0.00 | $0.00 | $197.07 | $0.00 |
| 2024 | 10768 | PORTPT - PORT DISTRICT | $50.58 | $50.58 | $0.00 | $0.00 | $101.16 | $0.00 |
| 2024 | 10768 | PUD1 - PUD #1 | $8.05 | $8.04 | $0.00 | $0.00 | $16.09 | $0.00 |
| 2024 | 10768 | LIB1 - LIBRARY DIST #1 | $38.13 | $38.12 | $0.00 | $0.00 | $76.25 | $0.00 |
| 2024 | 10768 | HD2 - HOSP DIST #2 | $7.15 | $7.14 | $0.00 | $0.00 | $14.29 | $0.00 |
| 2024 | 10768 | SD49 - SCHOOL DIST #49 | $127.80 | $127.79 | $0.00 | $0.00 | $255.59 | $0.00 |
| 2024 | 10768 | FD1 - FIRE DISTRICT #1 | $161.92 | $161.92 | $0.00 | $0.00 | $323.84 | $0.00 |
| 2024 | 10768 | EMS1 - FIRE DIST #1 EMS | $61.85 | $61.84 | $0.00 | $0.00 | $123.69 | $0.00 |
| 2024 | 10768 | JCCD - JC Conservation District | $2.53 | $2.53 | $0.00 | $0.00 | $5.06 | $0.00 |
| 2024 | 10768 | NWA - Noxious Weed Assessment | $2.15 | $2.15 | $0.00 | $0.00 | $4.30 | $0.00 |
| 2024 | 10768 | OSS - On Site Septic | $21.00 | $21.00 | $0.00 | $0.00 | $42.00 | $0.00 |
| 2024 | 10768 | WAT - Clean Water District | $12.50 | $12.50 | $0.00 | $0.00 | $25.00 | $0.00 |
| 2024 | 10768 | TOTAL: | $1004.51 | $1004.43 | $0.00 | $0.00 | $2008.94 | $0.00 |
|
| 2024 | 10768 | $1004.51 | $1004.43 | $0.00 | $0.00 | $2008.94 | $0.00 |
Statement Details |
| 2023 | 10788 | STATE - STATE LEVY (SCHOOL) | $208.94 | $208.93 | $0.00 | $0.00 | $417.87 | $0.00 |
| 2023 | 10788 | COUNTY - COUNTY LEVIES (CE, DD, VET, MH) | $91.19 | $91.17 | $0.00 | $0.00 | $182.36 | $0.00 |
| 2023 | 10788 | CONSERVE - CONSERVATION FUTURES | $2.74 | $2.73 | $0.00 | $0.00 | $5.47 | $0.00 |
| 2023 | 10788 | COROADS - COUNTY ROADS (ROADS, DIV TO CE) | $73.77 | $73.76 | $0.00 | $0.00 | $147.53 | $0.00 |
| 2023 | 10788 | PORTPT - PORT DISTRICT | $38.41 | $38.41 | $0.00 | $0.00 | $76.82 | $0.00 |
| 2023 | 10788 | PUD1 - PUD #1 | $6.05 | $6.04 | $0.00 | $0.00 | $12.09 | $0.00 |
| 2023 | 10788 | LIB1 - LIBRARY DIST #1 | $28.54 | $28.54 | $0.00 | $0.00 | $57.08 | $0.00 |
| 2023 | 10788 | HD2 - HOSP DIST #2 | $5.32 | $5.32 | $0.00 | $0.00 | $10.64 | $0.00 |
| 2023 | 10788 | SD49 - SCHOOL DIST #49 | $97.68 | $97.66 | $0.00 | $0.00 | $195.34 | $0.00 |
| 2023 | 10788 | FD1 - FIRE DISTRICT #1 | $75.11 | $75.11 | $0.00 | $0.00 | $150.22 | $0.00 |
| 2023 | 10788 | EMS1 - FIRE DIST #1 EMS | $31.95 | $31.95 | $0.00 | $0.00 | $63.90 | $0.00 |
| 2023 | 10788 | JCCD - JC Conservation District | $2.53 | $2.53 | $0.00 | $0.00 | $5.06 | $0.00 |
| 2023 | 10788 | NWA - Noxious Weed Assessment | $2.15 | $2.15 | $0.00 | $0.00 | $4.30 | $0.00 |
| 2023 | 10788 | OSS - On Site Septic | $20.50 | $20.50 | $0.00 | $0.00 | $41.00 | $0.00 |
| 2023 | 10788 | WAT - Clean Water District | $12.00 | $12.00 | $0.00 | $0.00 | $24.00 | $0.00 |
| 2023 | 10788 | TOTAL: | $696.88 | $696.80 | $0.00 | $0.00 | $1393.68 | $0.00 |
|
| 2023 | 10788 | $696.88 | $696.80 | $0.00 | $0.00 | $1393.68 | $0.00 |
Values
| (+) Improvement Homesite Value: | + | $0 | |
| (+) Improvement Non-Homesite Value: | + | $48,146 | |
| (+) Land Homesite Value: | + | $0 | |
| (+) Land Non-Homesite Value: | + | $204,240 | |
| (+) Curr Use (HS): | + | $0 | $0 |
| (+) Curr Use (NHS): | + | $0 | $0 |
| | | -------------------------- | |
| (=) Market Value: | = | $252,386 | |
| (–) Productivity Loss: | – | $0 | |
| | | -------------------------- | |
| (=) Subtotal: | = | $252,386 | |
| (+) Senior Appraised Value: | + | $0 | |
| (+) Non-Senior Appraised Value: | + | $252,386 | |
| | | -------------------------- | |
| (=) Total Appraised Value: | = | $252,386 | |
| (–) Senior Exemption Loss: | – | $0 | |
| (–) Exemption Loss: | – | $0 | |
| | | -------------------------- | |
| (=) Taxable Value: | = | $252,386 | |
Taxing Jurisdiction
| Owner: | THOMAS D YARBROUGH | | |
| % Ownership: | 100.0000000000% | | |
| Total Value: | $252,386 | | |
| Tax Area: | 0211 - 1-49F1E1H2L1 |
| CE | COUNTY CURRENT EXPENSE | 0.9034619479 | $252,386 | $252,386 | $228.02 | | |
| CNTYDD | DEVELOPMENTAL DISABILITIES | 0.0052121823 | $252,386 | $252,386 | $1.32 | | |
| CNTYVET | VETERANS RELIEF | 0.0052777810 | $252,386 | $252,386 | $1.33 | | |
| MENTAL | MENTAL HEALTH | 0.0052121823 | $252,386 | $252,386 | $1.32 | | |
| ROADS | COUNTY ROADS | 0.7415066410 | $252,386 | $252,386 | $187.15 | | |
| ROADSCU | COUNTY ROADS TO CUR EXP | 0.0000000000 | $252,386 | $252,386 | $0.00 | | |
| HOSP2CASH | HOSP DIST #2 GENERAL | 0.0536075306 | $252,386 | $252,386 | $13.53 | | |
| SCH49CP | SCHOOL DIST #49 CAP PROJ | 0.6279093905 | $252,386 | $252,386 | $158.48 | | |
| SCH49MO | SCHOOL DIST #49 EP & O | 0.6376483602 | $252,386 | $252,386 | $160.93 | | |
| CONSERVE | CONSERVATION FUTURES | 0.0275621078 | $252,386 | $252,386 | $6.96 | | |
| EMS1 | FIRE DIST #1 EMS | 0.4679948282 | $252,386 | $252,386 | $118.12 | | |
| FD1 | FIRE DIST #1 GENERAL | 1.2171942929 | $252,386 | $252,386 | $307.20 | | |
| LIB1 | LIBRARY DIST #1 GENERAL | 0.2868827388 | $252,386 | $252,386 | $72.41 | | |
| PORTPT | PORT OF PT GENERAL | 0.1134941229 | $252,386 | $252,386 | $28.64 | | |
| PORTPTIDD | PORT OF PT IDD 2019 | 0.2577346692 | $252,386 | $252,386 | $65.05 | | |
| PUD1 | PUD #1 GENERAL | 0.0597888892 | $252,386 | $252,386 | $15.09 | | |
| STATE | STATE SCHOOL PART 1 | 1.4940692947 | $252,386 | $252,386 | $377.08 | | |
| STATE2 | STATE SCHOOL PART 2 | 0.8050170049 | $252,386 | $252,386 | $203.18 | | |
| | Total Tax Rate: | 7.7095739644 | | | | | |
| | | | | Taxes w/Current Exemptions: | $1,945.81 | | |
| | | | | Taxes w/o Exemptions: | $1,945.81 | | |
Improvement / Building
| Improvement #1: | Commercial/Industrial/Government Bldg | State Code: | 59 | 1144.0 sqft | Value: | $48,146 |
| Exterior Wall: | PL/T1 | Foundation: | PO&BL | | Roof Cover: | METAL |   |   |
|
Sketch
| No sketches available for this property. |
Property Image
Land
| 1 | 4210-6279Q | | 1.0000 | 43560.00 | 0.00 | 0.00 | 0.00 | $204,240 | $0 |
Roll Value History
| 2026 | N/A | N/A | N/A | N/A | N/A |
| 2025 | $48,146 | $204,240 | $0 | $252,386 | $252,386 |
| 2024 | $48,146 | $204,240 | $0 | $252,386 | $252,386 |
| 2023 | $48,146 | $199,240 | $0 | $247,386 | $247,386 |
| 2022 | $75,701 | $101,805 | $0 | $177,506 | $177,506 |
Deed and Sales History
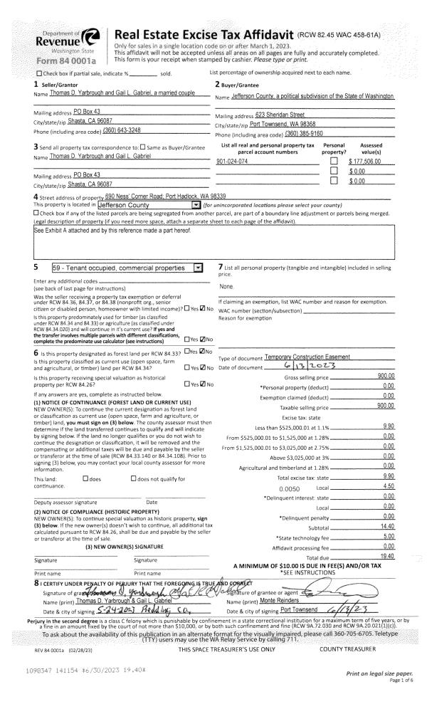
| 1 | 06/13/2023 | EASE | Assignment of Easement | THOMAS D YARBROUGH | JEFFERSON COUNTY | | | $900.00 | 141154 | TEMP CONST EASE |
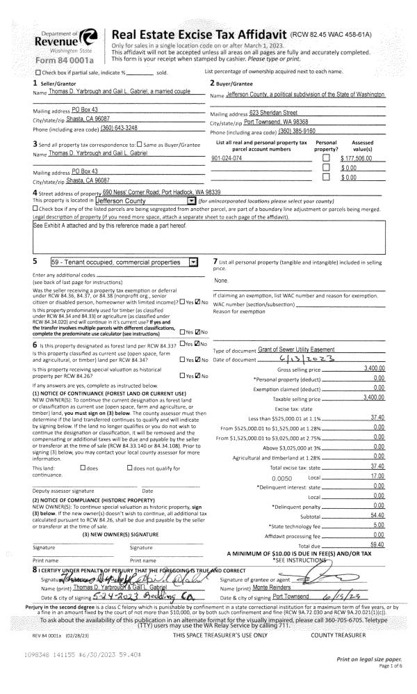
| 2 | 06/13/2023 | EASE | Assignment of Easement | THOMAS D YARBROUGH | JEFFERSON COUNTY | | | $3,400.00 | 141155 | SEW/UTIL EASE |
| 3 | 09/26/2001 | SWD | Statutory Warranty Deed | STOREY, JAMES A/KATHLEEN | YARBROUGH, THOMAS D, GABRIEL, | 0 | 0 | $60,000.00 | 93159 | 0 |
| 4 | 09/26/2001 | SWD | Statutory Warranty Deed | STOREY, JAMES A/KATHLEEN | YARBROUGH, THOMAS, GABRIEL, GA | 0 | 0 | $0.00 | 93244 | 0 |
Payout Agreement
| No payout information available.. |