Property
Account |
| Property ID: | 21248 | Abbreviated Legal Description: | S2 T29 R1W TAX 123 & VAC R/W LESS RD R/W |
| Parcel # / Geo ID: | 901024089 | Agent Code: | |
| Type: | Real | | |
| Tax Area: | 0211 - 1-49F1E1H2L1 | Land Use Code | 50 |
| Open Space: | N | DFL | N |
| Historic Property: | N | Remodel Property: | N |
| Multi-Family Redevelopment: | N | | |
| Township: | 29N | Section: | 2 |
| Range: | 1W |
Location |
| Address: | | Mapsco: | 204/009 |
| Neighborhood: | HADLOCK COMMERCIAL CENTER | Map ID: | |
| Neighborhood CD: | 4210C |
Owner |
| Name: | ISLAND 3 INVESTMENTS LLC | Owner ID: | 107531 |
| Mailing Address: | 123 PONDEROSA PL NORDLAND, WA 98358-9568 | % Ownership: | 100.0000000000% |
| | | Exemptions: | |
Pay Tax Due
Select the appropriate checkbox next to the year to be paid. Multiple years may be selected.
*Convenience Fee not included
Taxes and Assessment Details
Property Tax Information as of
03/11/2026
Click on "Statement Details" to expand or collapse a tax statement.
* Please enter a valid date ** Please enter a valid date *
Statement Details |
| 2026 | 10734 | STATE - STATE LEVY (SCHOOL) | $381.96 | $381.95 | $0.00 | $0.00 | $0.00 | $763.91 |
| 2026 | 10734 | COUNTY - COUNTY LEVIES (CE, DD, VET, MH) | $152.72 | $152.68 | $0.00 | $0.00 | $0.00 | $305.40 |
| 2026 | 10734 | CONSERVE - CONSERVATION FUTURES | $4.58 | $4.58 | $0.00 | $0.00 | $0.00 | $9.16 |
| 2026 | 10734 | COROADS - COUNTY ROADS (ROADS, DIV TO CE) | $123.19 | $123.19 | $0.00 | $0.00 | $0.00 | $246.38 |
| 2026 | 10734 | PORTPT - PORT DISTRICT | $61.68 | $61.67 | $0.00 | $0.00 | $0.00 | $123.35 |
| 2026 | 10734 | PUD1 - PUD #1 | $9.94 | $9.93 | $0.00 | $0.00 | $0.00 | $19.87 |
| 2026 | 10734 | LIB1 - LIBRARY DIST #1 | $47.66 | $47.66 | $0.00 | $0.00 | $0.00 | $95.32 |
| 2026 | 10734 | HD2 - HOSP DIST #2 | $8.91 | $8.90 | $0.00 | $0.00 | $0.00 | $17.81 |
| 2026 | 10734 | SD49 - SCHOOL DIST #49 | $210.26 | $210.24 | $0.00 | $0.00 | $0.00 | $420.50 |
| 2026 | 10734 | FD1 - FIRE DISTRICT #1 | $202.22 | $202.21 | $0.00 | $0.00 | $0.00 | $404.43 |
| 2026 | 10734 | EMS1 - FIRE DIST #1 EMS | $77.75 | $77.75 | $0.00 | $0.00 | $0.00 | $155.50 |
| 2026 | 10734 | FP - DNR Forest Fire Protection Assmt | $8.50 | $8.50 | $0.00 | $0.00 | $0.00 | $17.00 |
| 2026 | 10734 | FPLCA - DNR Landowner Contingency Assmt | $3.00 | $3.00 | $0.00 | $0.00 | $0.00 | $6.00 |
| 2026 | 10734 | JCCD - JC Conservation District | $2.85 | $2.85 | $0.00 | $0.00 | $0.00 | $5.70 |
| 2026 | 10734 | NWA - Noxious Weed Assessment | $4.78 | $4.77 | $0.00 | $0.00 | $0.00 | $9.55 |
| 2026 | 10734 | WAT - Clean Water District | $13.00 | $13.00 | $0.00 | $0.00 | $0.00 | $26.00 |
| 2026 | 10734 | FP ADMIN - FP ADMIN | $0.50 | $0.00 | $0.00 | $0.00 | $0.00 | $0.50 |
| 2026 | 10734 | TOTAL: | $1313.50 | $1312.88 | $0.00 | $0.00 | $0.00 | $2626.38 |
|
| 2026 | 10734 | $1313.50 | $1312.88 | $0.00 | $0.00 | $0.00 | $2626.38 |
Statement Details |
| 2025 | 10757 | STATE - STATE LEVY (SCHOOL) | $398.39 | $398.39 | $0.00 | $0.00 | $796.78 | $0.00 |
| 2025 | 10757 | COUNTY - COUNTY LEVIES (CE, DD, VET, MH) | $156.68 | $156.64 | $0.00 | $0.00 | $313.32 | $0.00 |
| 2025 | 10757 | CONSERVE - CONSERVATION FUTURES | $4.70 | $4.70 | $0.00 | $0.00 | $9.40 | $0.00 |
| 2025 | 10757 | COROADS - COUNTY ROADS (ROADS, DIV TO CE) | $125.52 | $125.50 | $0.00 | $0.00 | $251.02 | $0.00 |
| 2025 | 10757 | PORTPT - PORT DISTRICT | $63.94 | $63.92 | $0.00 | $0.00 | $127.86 | $0.00 |
| 2025 | 10757 | PUD1 - PUD #1 | $10.25 | $10.25 | $0.00 | $0.00 | $20.50 | $0.00 |
| 2025 | 10757 | LIB1 - LIBRARY DIST #1 | $48.56 | $48.56 | $0.00 | $0.00 | $97.12 | $0.00 |
| 2025 | 10757 | HD2 - HOSP DIST #2 | $9.14 | $9.14 | $0.00 | $0.00 | $18.28 | $0.00 |
| 2025 | 10757 | SD49 - SCHOOL DIST #49 | $213.52 | $213.51 | $0.00 | $0.00 | $427.03 | $0.00 |
| 2025 | 10757 | FD1 - FIRE DISTRICT #1 | $206.74 | $206.73 | $0.00 | $0.00 | $413.47 | $0.00 |
| 2025 | 10757 | EMS1 - FIRE DIST #1 EMS | $79.52 | $79.51 | $0.00 | $0.00 | $159.03 | $0.00 |
| 2025 | 10757 | FP - DNR Forest Fire Protection Assmt | $8.50 | $8.50 | $0.00 | $0.00 | $17.00 | $0.00 |
| 2025 | 10757 | FPLCA - DNR Landowner Contingency Assmt | $3.00 | $3.00 | $0.00 | $0.00 | $6.00 | $0.00 |
| 2025 | 10757 | JCCD - JC Conservation District | $2.85 | $2.85 | $0.00 | $0.00 | $5.70 | $0.00 |
| 2025 | 10757 | NWA - Noxious Weed Assessment | $3.35 | $3.35 | $0.00 | $0.00 | $6.70 | $0.00 |
| 2025 | 10757 | WAT - Clean Water District | $13.00 | $13.00 | $0.00 | $0.00 | $26.00 | $0.00 |
| 2025 | 10757 | FP ADMIN - FP ADMIN | $0.50 | $0.00 | $0.00 | $0.00 | $0.50 | $0.00 |
| 2025 | 10757 | TOTAL: | $1348.16 | $1347.55 | $0.00 | $0.00 | $2695.71 | $0.00 |
|
| 2025 | 10757 | $1348.16 | $1347.55 | $0.00 | $0.00 | $2695.71 | $0.00 |
Statement Details |
| 2024 | 10782 | STATE - STATE LEVY (SCHOOL) | $384.37 | $384.35 | $0.00 | $0.00 | $768.72 | $0.00 |
| 2024 | 10782 | COUNTY - COUNTY LEVIES (CE, DD, VET, MH) | $164.48 | $164.47 | $0.00 | $0.00 | $328.95 | $0.00 |
| 2024 | 10782 | CONSERVE - CONSERVATION FUTURES | $4.93 | $4.93 | $0.00 | $0.00 | $9.86 | $0.00 |
| 2024 | 10782 | COROADS - COUNTY ROADS (ROADS, DIV TO CE) | $132.35 | $132.34 | $0.00 | $0.00 | $264.69 | $0.00 |
| 2024 | 10782 | PORTPT - PORT DISTRICT | $67.94 | $67.93 | $0.00 | $0.00 | $135.87 | $0.00 |
| 2024 | 10782 | PUD1 - PUD #1 | $10.81 | $10.80 | $0.00 | $0.00 | $21.61 | $0.00 |
| 2024 | 10782 | LIB1 - LIBRARY DIST #1 | $51.21 | $51.20 | $0.00 | $0.00 | $102.41 | $0.00 |
| 2024 | 10782 | HD2 - HOSP DIST #2 | $9.60 | $9.59 | $0.00 | $0.00 | $19.19 | $0.00 |
| 2024 | 10782 | SD49 - SCHOOL DIST #49 | $171.64 | $171.63 | $0.00 | $0.00 | $343.27 | $0.00 |
| 2024 | 10782 | FD1 - FIRE DISTRICT #1 | $217.47 | $217.47 | $0.00 | $0.00 | $434.94 | $0.00 |
| 2024 | 10782 | EMS1 - FIRE DIST #1 EMS | $83.07 | $83.06 | $0.00 | $0.00 | $166.13 | $0.00 |
| 2024 | 10782 | JCCD - JC Conservation District | $2.85 | $2.85 | $0.00 | $0.00 | $5.70 | $0.00 |
| 2024 | 10782 | NWA - Noxious Weed Assessment | $3.35 | $3.35 | $0.00 | $0.00 | $6.70 | $0.00 |
| 2024 | 10782 | WAT - Clean Water District | $12.50 | $12.50 | $0.00 | $0.00 | $25.00 | $0.00 |
| 2024 | 10782 | TOTAL: | $1316.57 | $1316.47 | $0.00 | $0.00 | $2633.04 | $0.00 |
|
| 2024 | 10782 | $1316.57 | $1316.47 | $0.00 | $0.00 | $2633.04 | $0.00 |
Statement Details |
| 2023 | 10802 | STATE - STATE LEVY (SCHOOL) | $391.10 | $391.10 | $0.00 | $0.00 | $782.20 | $0.00 |
| 2023 | 10802 | COUNTY - COUNTY LEVIES (CE, DD, VET, MH) | $170.67 | $170.66 | $0.00 | $0.00 | $341.33 | $0.00 |
| 2023 | 10802 | CONSERVE - CONSERVATION FUTURES | $5.12 | $5.12 | $0.00 | $0.00 | $10.24 | $0.00 |
| 2023 | 10802 | COROADS - COUNTY ROADS (ROADS, DIV TO CE) | $138.09 | $138.07 | $0.00 | $0.00 | $276.16 | $0.00 |
| 2023 | 10802 | PORTPT - PORT DISTRICT | $71.90 | $71.89 | $0.00 | $0.00 | $143.79 | $0.00 |
| 2023 | 10802 | PUD1 - PUD #1 | $11.32 | $11.31 | $0.00 | $0.00 | $22.63 | $0.00 |
| 2023 | 10802 | LIB1 - LIBRARY DIST #1 | $53.42 | $53.42 | $0.00 | $0.00 | $106.84 | $0.00 |
| 2023 | 10802 | HD2 - HOSP DIST #2 | $9.97 | $9.95 | $0.00 | $0.00 | $19.92 | $0.00 |
| 2023 | 10802 | SD49 - SCHOOL DIST #49 | $182.82 | $182.81 | $0.00 | $0.00 | $365.63 | $0.00 |
| 2023 | 10802 | FD1 - FIRE DISTRICT #1 | $140.60 | $140.59 | $0.00 | $0.00 | $281.19 | $0.00 |
| 2023 | 10802 | EMS1 - FIRE DIST #1 EMS | $59.81 | $59.80 | $0.00 | $0.00 | $119.61 | $0.00 |
| 2023 | 10802 | JCCD - JC Conservation District | $2.85 | $2.85 | $0.00 | $0.00 | $5.70 | $0.00 |
| 2023 | 10802 | NWA - Noxious Weed Assessment | $3.35 | $3.35 | $0.00 | $0.00 | $6.70 | $0.00 |
| 2023 | 10802 | WAT - Clean Water District | $12.00 | $12.00 | $0.00 | $0.00 | $24.00 | $0.00 |
| 2023 | 10802 | TOTAL: | $1253.02 | $1252.92 | $0.00 | $0.00 | $2505.94 | $0.00 |
|
| 2023 | 10802 | $1253.02 | $1252.92 | $0.00 | $0.00 | $2505.94 | $0.00 |
Values
| (+) Improvement Homesite Value: | + | $0 | |
| (+) Improvement Non-Homesite Value: | + | $0 | |
| (+) Land Homesite Value: | + | $0 | |
| (+) Land Non-Homesite Value: | + | $332,264 | |
| (+) Curr Use (HS): | + | $0 | $0 |
| (+) Curr Use (NHS): | + | $0 | $0 |
| | | -------------------------- | |
| (=) Market Value: | = | $332,264 | |
| (–) Productivity Loss: | – | $0 | |
| | | -------------------------- | |
| (=) Subtotal: | = | $332,264 | |
| (+) Senior Appraised Value: | + | $0 | |
| (+) Non-Senior Appraised Value: | + | $332,264 | |
| | | -------------------------- | |
| (=) Total Appraised Value: | = | $332,264 | |
| (–) Senior Exemption Loss: | – | $0 | |
| (–) Exemption Loss: | – | $0 | |
| | | -------------------------- | |
| (=) Taxable Value: | = | $332,264 | |
Taxing Jurisdiction
| Owner: | ISLAND 3 INVESTMENTS LLC | | |
| % Ownership: | 100.0000000000% | | |
| Total Value: | $332,264 | | |
| Tax Area: | 0211 - 1-49F1E1H2L1 |
| CE | COUNTY CURRENT EXPENSE | 0.9034619479 | $332,264 | $332,264 | $300.19 | | |
| CNTYDD | DEVELOPMENTAL DISABILITIES | 0.0052121823 | $332,264 | $332,264 | $1.73 | | |
| CNTYVET | VETERANS RELIEF | 0.0052777810 | $332,264 | $332,264 | $1.75 | | |
| MENTAL | MENTAL HEALTH | 0.0052121823 | $332,264 | $332,264 | $1.73 | | |
| ROADS | COUNTY ROADS | 0.7415066410 | $332,264 | $332,264 | $246.38 | | |
| ROADSCU | COUNTY ROADS TO CUR EXP | 0.0000000000 | $332,264 | $332,264 | $0.00 | | |
| HOSP2CASH | HOSP DIST #2 GENERAL | 0.0536075306 | $332,264 | $332,264 | $17.81 | | |
| SCH49CP | SCHOOL DIST #49 CAP PROJ | 0.6279093905 | $332,264 | $332,264 | $208.63 | | |
| SCH49MO | SCHOOL DIST #49 EP & O | 0.6376483602 | $332,264 | $332,264 | $211.87 | | |
| CONSERVE | CONSERVATION FUTURES | 0.0275621078 | $332,264 | $332,264 | $9.16 | | |
| EMS1 | FIRE DIST #1 EMS | 0.4679948282 | $332,264 | $332,264 | $155.50 | | |
| FD1 | FIRE DIST #1 GENERAL | 1.2171942929 | $332,264 | $332,264 | $404.43 | | |
| LIB1 | LIBRARY DIST #1 GENERAL | 0.2868827388 | $332,264 | $332,264 | $95.32 | | |
| PORTPT | PORT OF PT GENERAL | 0.1134941229 | $332,264 | $332,264 | $37.71 | | |
| PORTPTIDD | PORT OF PT IDD 2019 | 0.2577346692 | $332,264 | $332,264 | $85.64 | | |
| PUD1 | PUD #1 GENERAL | 0.0597888892 | $332,264 | $332,264 | $19.87 | | |
| STATE | STATE SCHOOL PART 1 | 1.4940692947 | $332,264 | $332,264 | $496.43 | | |
| STATE2 | STATE SCHOOL PART 2 | 0.8050170049 | $332,264 | $332,264 | $267.48 | | |
| | Total Tax Rate: | 7.7095739644 | | | | | |
| | | | | Taxes w/Current Exemptions: | $2,561.63 | | |
| | | | | Taxes w/o Exemptions: | $2,561.63 | | |
Improvement / Building
| Improvement #1: | Residential Bldg | State Code: | 50 | 0.0 sqft | Value: | $0 |
Sketch
| No sketches available for this property. |
Property Image
Land
| 1 | 4210-6285Q | | 9.3880 | 408941.00 | 0.00 | 0.00 | 0.00 | $332,264 | $0 |
Roll Value History
| 2026 | N/A | N/A | N/A | N/A | N/A |
| 2025 | $0 | $332,264 | $0 | $332,264 | $332,264 |
| 2024 | $0 | $332,264 | $0 | $332,264 | $332,264 |
| 2023 | $0 | $332,264 | $0 | $332,264 | $332,264 |
| 2022 | $0 | $332,264 | $0 | $332,264 | $332,264 |
Deed and Sales History
| 1 | 07/21/2022 | QCD | Quit Claim Deed | THOMAS JOHNSON | ISLAND 3 INVESTMENTS LLC | | | | 139703 | |
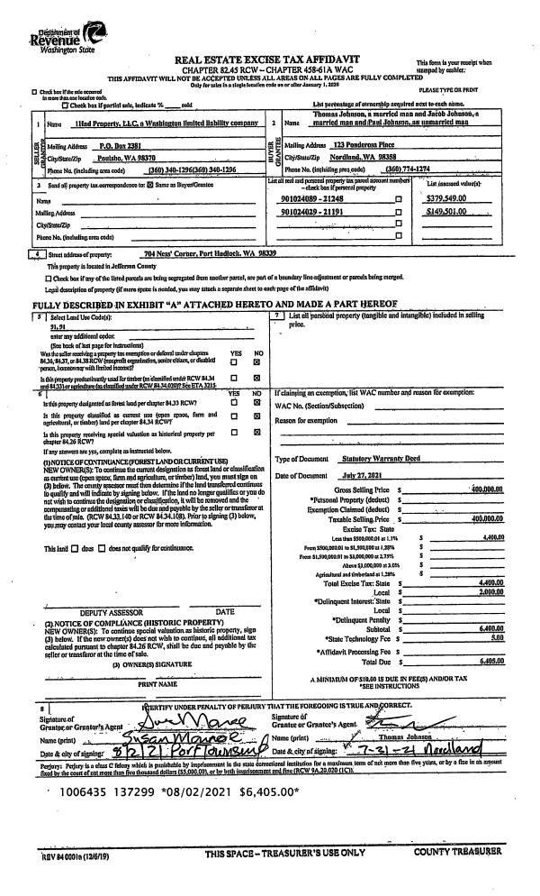
| 2 | 07/27/2021 | SWD | Statutory Warranty Deed | 1HAD PROPERTY LLC | THOMAS JOHNSON | | | $400,000.00 | 137299 | |
|   | |
| 3 | 08/21/2006 | QCD | Quit Claim Deed | HILL, SANDRAE, HILL, ANDR | 1HAD PROPERTY LLC | 0 | 0 | $0.00 | 107430 | 0 |
| 4 | 02/07/2006 | WD | Warranty Deed | HILL, FREDERICK D ESTATE | HILL, ANDREW J/BRADY J | 0 | 0 | $0.00 | 105969 | 0 |
| 5 | 08/08/1995 | SWD | Statutory Warranty Deed | HILL, PETER J/SHIRLEY G | HILL, FREDERICK D/SANDRA B | 0 | 0 | $0.00 | 77533 | 0 |
| 6 | 08/08/1995 | SWD | Statutory Warranty Deed | HILL, JAMES F | HILL, FREDERICK D/SANDRA B | 0 | 0 | $0.00 | 77534 | 0 |
| 7 | 08/08/1995 | QCD | Quit Claim Deed | FRED HILL MATERIALS INC | HILL, FREDERICK D/ET AL | 0 | 0 | $0.00 | 77535 | 0 |
Payout Agreement
| No payout information available.. |