Property
Account |
| Property ID: | 21254 | Abbreviated Legal Description: | S2 T29 R1W TAX 137(N1/2) |
| Parcel # / Geo ID: | 901024097 | Agent Code: | |
| Type: | Real | | |
| Tax Area: | 0211 - 1-49F1E1H2L1 | Land Use Code | 11 |
| Open Space: | N | DFL | N |
| Historic Property: | N | Remodel Property: | N |
| Multi-Family Redevelopment: | N | | |
| Township: | 29N | Section: | 2 |
| Range: | 1W |
Location |
| Address: | 42 LAWN ST PORT HADLOCK, WA 98339 | Mapsco: | 204/017 |
| Neighborhood: | HADLOCK COMMERCIAL CENTER | Map ID: | |
| Neighborhood CD: | 4210C |
Owner |
| Name: | BAYSIDE HOUSING & SERVICES | Owner ID: | 108075 |
| Mailing Address: | PO BOX 927 PORT HADLOCK, WA 98339-0927 | % Ownership: | 100.0000000000% |
| | | Exemptions: | DOR |
Pay Tax Due
There is currently No Amount Due on this property.
Taxes and Assessment Details
Property Tax Information as of
03/14/2026
Click on "Statement Details" to expand or collapse a tax statement.
* Please enter a valid date ** Please enter a valid date *
Statement Details |
| | TOTAL: | $0.00 | $0.00 | $0.00 | $0.00 | $0.00 | $0.00 |
|
| | $0.00 | $0.00 | $0.00 | $0.00 | $0.00 | $0.00 |
Values
| (+) Improvement Homesite Value: | + | $0 | |
| (+) Improvement Non-Homesite Value: | + | $79,051 | |
| (+) Land Homesite Value: | + | $0 | |
| (+) Land Non-Homesite Value: | + | $99,000 | |
| (+) Curr Use (HS): | + | $0 | $0 |
| (+) Curr Use (NHS): | + | $0 | $0 |
| | | -------------------------- | |
| (=) Market Value: | = | $178,051 | |
| (–) Productivity Loss: | – | $0 | |
| | | -------------------------- | |
| (=) Subtotal: | = | $178,051 | |
| (+) Senior Appraised Value: | + | $0 | |
| (+) Non-Senior Appraised Value: | + | $178,051 | |
| | | -------------------------- | |
| (=) Total Appraised Value: | = | $178,051 | |
| (–) Senior Exemption Loss: | – | $0 | |
| (–) Exemption Loss: | – | $178,051 | |
| | | -------------------------- | |
| (=) Taxable Value: | = | $0 | |
Taxing Jurisdiction
| Owner: | BAYSIDE HOUSING & SERVICES | | |
| % Ownership: | 100.0000000000% | | |
| Total Value: | $178,051 | | |
| Tax Area: | 0211 - 1-49F1E1H2L1 |
| CE | COUNTY CURRENT EXPENSE | 0.9034619479 | $178,051 | $0 | $0.00 | | |
| CNTYDD | DEVELOPMENTAL DISABILITIES | 0.0052121823 | $178,051 | $0 | $0.00 | | |
| CNTYVET | VETERANS RELIEF | 0.0052777810 | $178,051 | $0 | $0.00 | | |
| MENTAL | MENTAL HEALTH | 0.0052121823 | $178,051 | $0 | $0.00 | | |
| ROADS | COUNTY ROADS | 0.7415066410 | $178,051 | $0 | $0.00 | | |
| ROADSCU | COUNTY ROADS TO CUR EXP | 0.0000000000 | $178,051 | $0 | $0.00 | | |
| HOSP2CASH | HOSP DIST #2 GENERAL | 0.0536075306 | $178,051 | $0 | $0.00 | | |
| SCH49CP | SCHOOL DIST #49 CAP PROJ | 0.6279093905 | $178,051 | $0 | $0.00 | | |
| SCH49MO | SCHOOL DIST #49 EP & O | 0.6376483602 | $178,051 | $0 | $0.00 | | |
| CONSERVE | CONSERVATION FUTURES | 0.0275621078 | $178,051 | $0 | $0.00 | | |
| EMS1 | FIRE DIST #1 EMS | 0.4679948282 | $178,051 | $0 | $0.00 | | |
| FD1 | FIRE DIST #1 GENERAL | 1.2171942929 | $178,051 | $0 | $0.00 | | |
| LIB1 | LIBRARY DIST #1 GENERAL | 0.2868827388 | $178,051 | $0 | $0.00 | | |
| PORTPT | PORT OF PT GENERAL | 0.1134941229 | $178,051 | $0 | $0.00 | | |
| PORTPTIDD | PORT OF PT IDD 2019 | 0.2577346692 | $178,051 | $0 | $0.00 | | |
| PUD1 | PUD #1 GENERAL | 0.0597888892 | $178,051 | $0 | $0.00 | | |
| STATE | STATE SCHOOL PART 1 | 1.4940692947 | $178,051 | $0 | $0.00 | | |
| STATE2 | STATE SCHOOL PART 2 | 0.8050170049 | $178,051 | $0 | $0.00 | | |
| | Total Tax Rate: | 7.7095739644 | | | | | |
| | | | | Taxes w/Current Exemptions: | $0.00 | | |
| | | | | Taxes w/o Exemptions: | $1,372.70 | | |
Improvement / Building
| Improvement #1: | Manufactured Home | State Code: | 11M | 1344.0 sqft | Value: | $79,051 |
| Bathrooms (#): | 2 (FULL) | Bedrooms (#): | 2 | | Exterior Wall: | SI/ST | Fireplace: | WD ST-GOOD | | Floor Construction: | FRAME | Foundation: | PO&BL | | Heating/Cooling: | F/A | Inside Verify: | NO | | Roof Cover: | BLTUP |   |   |
|
| | Type | Description | Class CD | Sub Class CD | Year Built | Area |
| | MA | Main Area | 3+ | MFH | 1978 | 1344.0 |
| | MWPOR | MH Wood Porch | 3 | * | 1978 | 304.0 |
| | MDECK | MH Deck | 3 | * | 1978 | 424.0 |
| | MDET | MH Detached Garage | 3 | * | 1978 | 265.0 |
| | CARPTF | Carport W/Floor | 1 | * | 1978 | 360.0 |
| | MSKIRT_MTL | MH Skirting - Metal/Vinyl | 3 | * | 1978 | 160.0 |
Sketch
Property Image
Land
| 1 | 4210-1275S | Partial Terr View Sites < .5 Acre | 0.2300 | 10019.00 | 0.00 | 0.00 | 1.00 | $99,000 | $0 |
Roll Value History
| 2026 | N/A | N/A | N/A | N/A | N/A |
| 2025 | $79,051 | $99,000 | $0 | $178,051 | $0 |
| 2024 | $75,614 | $94,500 | $0 | $170,114 | $0 |
| 2023 | $72,177 | $85,000 | $0 | $157,177 | $0 |
| 2022 | $44,899 | $60,000 | $0 | $104,899 | $104,899 |
Deed and Sales History
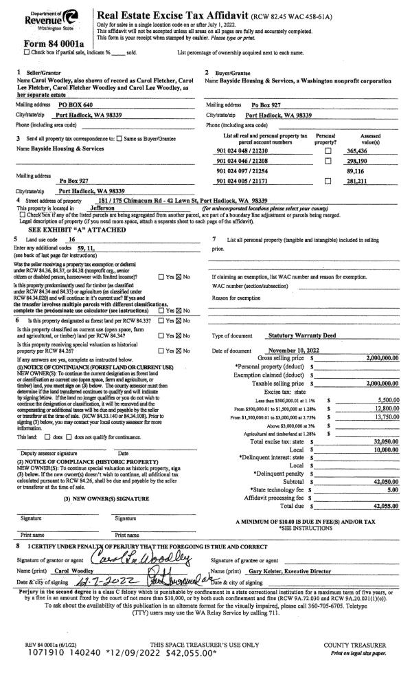
| 1 | 11/10/2022 | SWD | Statutory Warranty Deed | EARL WOODLEY | BAYSIDE HOUSING & SERVICES | | | $2,000,000.00 | 140240 | |
|   | |
| 2 | 09/04/2003 | SWD | Statutory Warranty Deed | NASON, JON | WOODLEY SR, EARL L | 0 | 0 | $90,000.00 | 98236 | 0 |
| 3 | 09/04/2003 | QCD | Quit Claim Deed | WOODLEY SR, EARL L | WOODLEY SR, EARL/FLETCHER, CAR | 0 | 0 | $36,000.00 | 98301 | 0 |
| 4 | 10/28/1998 | SWD | Statutory Warranty Deed | NASON, DONA O | NASON, JON | 0 | 0 | $65,000.00 | 85621 | 0 |
Payout Agreement
| No payout information available.. |