Property
Account |
| Property ID: | 21404 | Abbreviated Legal Description: | S8 T29 R1W TAX 38(LS TX 43) |
| Parcel # / Geo ID: | 901084015 | Agent Code: | |
| Type: | Real | | |
| Tax Area: | 0111 - 1-50F1E1H2L1 | Land Use Code | 91 |
| Open Space: | N | DFL | N |
| Historic Property: | N | Remodel Property: | N |
| Multi-Family Redevelopment: | N | | |
| Township: | 29N | Section: | 8 |
| Range: | 1W |
Location |
| Address: | 24 WOODMAN RD PORT TOWNSEND, WA 98368 | Mapsco: | 075/027 |
| Neighborhood: | S 8 & 9 T29 R1W | Map ID: | |
| Neighborhood CD: | 5220 |
Owner |
| Name: | LINDA D LOWE | Owner ID: | 99893 |
| Mailing Address: | PO BOX 65349 PORT LUDLOW, WA 98365-0349 | % Ownership: | 100.0000000000% |
| | | Exemptions: | |
Pay Tax Due
Select the appropriate checkbox next to the year to be paid. Multiple years may be selected.
*Convenience Fee not included
Taxes and Assessment Details
Property Tax Information as of
03/11/2026
Click on "Statement Details" to expand or collapse a tax statement.
* Please enter a valid date ** Please enter a valid date *
Statement Details |
| 2026 | 10883 | STATE - STATE LEVY (SCHOOL) | $156.48 | $156.48 | $0.00 | $0.00 | $0.00 | $312.96 |
| 2026 | 10883 | COUNTY - COUNTY LEVIES (CE, DD, VET, MH) | $62.57 | $62.55 | $0.00 | $0.00 | $0.00 | $125.12 |
| 2026 | 10883 | CONSERVE - CONSERVATION FUTURES | $1.88 | $1.87 | $0.00 | $0.00 | $0.00 | $3.75 |
| 2026 | 10883 | COROADS - COUNTY ROADS (ROADS, DIV TO CE) | $50.47 | $50.47 | $0.00 | $0.00 | $0.00 | $100.94 |
| 2026 | 10883 | PORTPT - PORT DISTRICT | $25.27 | $25.26 | $0.00 | $0.00 | $0.00 | $50.53 |
| 2026 | 10883 | PUD1 - PUD #1 | $4.07 | $4.07 | $0.00 | $0.00 | $0.00 | $8.14 |
| 2026 | 10883 | LIB1 - LIBRARY DIST #1 | $19.53 | $19.52 | $0.00 | $0.00 | $0.00 | $39.05 |
| 2026 | 10883 | HD2 - HOSP DIST #2 | $3.65 | $3.65 | $0.00 | $0.00 | $0.00 | $7.30 |
| 2026 | 10883 | SD50 - SCHOOL DIST #50 | $123.97 | $123.97 | $0.00 | $0.00 | $0.00 | $247.94 |
| 2026 | 10883 | FD1 - FIRE DISTRICT #1 | $82.85 | $82.84 | $0.00 | $0.00 | $0.00 | $165.69 |
| 2026 | 10883 | EMS1 - FIRE DIST #1 EMS | $31.86 | $31.85 | $0.00 | $0.00 | $0.00 | $63.71 |
| 2026 | 10883 | FPLCA - DNR Landowner Contingency Assmt | $3.00 | $3.00 | $0.00 | $0.00 | $0.00 | $6.00 |
| 2026 | 10883 | JCCD - JC Conservation District | $2.57 | $2.57 | $0.00 | $0.00 | $0.00 | $5.14 |
| 2026 | 10883 | NWA - Noxious Weed Assessment | $3.20 | $3.20 | $0.00 | $0.00 | $0.00 | $6.40 |
| 2026 | 10883 | OSS - On Site Septic | $23.10 | $23.10 | $0.00 | $0.00 | $0.00 | $46.20 |
| 2026 | 10883 | WAT - Clean Water District | $13.00 | $13.00 | $0.00 | $0.00 | $0.00 | $26.00 |
| 2026 | 10883 | TOTAL: | $607.47 | $607.40 | $0.00 | $0.00 | $0.00 | $1214.87 |
|
| 2026 | 10883 | $607.47 | $607.40 | $0.00 | $0.00 | $0.00 | $1214.87 |
Statement Details |
| 2025 | 10906 | STATE - STATE LEVY (SCHOOL) | $163.22 | $163.21 | $0.00 | $0.00 | $326.43 | $0.00 |
| 2025 | 10906 | COUNTY - COUNTY LEVIES (CE, DD, VET, MH) | $64.20 | $64.18 | $0.00 | $0.00 | $128.38 | $0.00 |
| 2025 | 10906 | CONSERVE - CONSERVATION FUTURES | $1.93 | $1.92 | $0.00 | $0.00 | $3.85 | $0.00 |
| 2025 | 10906 | COROADS - COUNTY ROADS (ROADS, DIV TO CE) | $51.43 | $51.41 | $0.00 | $0.00 | $102.84 | $0.00 |
| 2025 | 10906 | PORTPT - PORT DISTRICT | $26.20 | $26.18 | $0.00 | $0.00 | $52.38 | $0.00 |
| 2025 | 10906 | PUD1 - PUD #1 | $4.20 | $4.20 | $0.00 | $0.00 | $8.40 | $0.00 |
| 2025 | 10906 | LIB1 - LIBRARY DIST #1 | $19.90 | $19.89 | $0.00 | $0.00 | $39.79 | $0.00 |
| 2025 | 10906 | HD2 - HOSP DIST #2 | $3.75 | $3.74 | $0.00 | $0.00 | $7.49 | $0.00 |
| 2025 | 10906 | SD50 - SCHOOL DIST #50 | $119.29 | $119.27 | $0.00 | $0.00 | $238.56 | $0.00 |
| 2025 | 10906 | FD1 - FIRE DISTRICT #1 | $84.70 | $84.69 | $0.00 | $0.00 | $169.39 | $0.00 |
| 2025 | 10906 | EMS1 - FIRE DIST #1 EMS | $32.58 | $32.57 | $0.00 | $0.00 | $65.15 | $0.00 |
| 2025 | 10906 | FPLCA - DNR Landowner Contingency Assmt | $3.00 | $3.00 | $0.00 | $0.00 | $6.00 | $0.00 |
| 2025 | 10906 | JCCD - JC Conservation District | $2.57 | $2.57 | $0.00 | $0.00 | $5.14 | $0.00 |
| 2025 | 10906 | NWA - Noxious Weed Assessment | $2.30 | $2.30 | $0.00 | $0.00 | $4.60 | $0.00 |
| 2025 | 10906 | WAT - Clean Water District | $13.00 | $13.00 | $0.00 | $0.00 | $26.00 | $0.00 |
| 2025 | 10906 | TOTAL: | $592.27 | $592.13 | $0.00 | $0.00 | $1184.40 | $0.00 |
|
| 2025 | 10906 | $592.27 | $592.13 | $0.00 | $0.00 | $1184.40 | $0.00 |
Statement Details |
| 2024 | 10931 | STATE - STATE LEVY (SCHOOL) | $150.31 | $150.31 | $0.00 | $0.00 | $300.62 | $0.00 |
| 2024 | 10931 | COUNTY - COUNTY LEVIES (CE, DD, VET, MH) | $64.34 | $64.31 | $0.00 | $0.00 | $128.65 | $0.00 |
| 2024 | 10931 | CONSERVE - CONSERVATION FUTURES | $1.93 | $1.93 | $0.00 | $0.00 | $3.86 | $0.00 |
| 2024 | 10931 | COROADS - COUNTY ROADS (ROADS, DIV TO CE) | $51.76 | $51.75 | $0.00 | $0.00 | $103.51 | $0.00 |
| 2024 | 10931 | PORTPT - PORT DISTRICT | $26.57 | $26.56 | $0.00 | $0.00 | $53.13 | $0.00 |
| 2024 | 10931 | PUD1 - PUD #1 | $4.23 | $4.22 | $0.00 | $0.00 | $8.45 | $0.00 |
| 2024 | 10931 | LIB1 - LIBRARY DIST #1 | $20.03 | $20.02 | $0.00 | $0.00 | $40.05 | $0.00 |
| 2024 | 10931 | HD2 - HOSP DIST #2 | $3.76 | $3.75 | $0.00 | $0.00 | $7.51 | $0.00 |
| 2024 | 10931 | SD50 - SCHOOL DIST #50 | $121.61 | $121.61 | $0.00 | $0.00 | $243.22 | $0.00 |
| 2024 | 10931 | FD1 - FIRE DISTRICT #1 | $85.05 | $85.04 | $0.00 | $0.00 | $170.09 | $0.00 |
| 2024 | 10931 | EMS1 - FIRE DIST #1 EMS | $32.49 | $32.48 | $0.00 | $0.00 | $64.97 | $0.00 |
| 2024 | 10931 | FPLCA - DNR Landowner Contingency Assmt | $3.00 | $3.00 | $0.00 | $0.00 | $6.00 | $0.00 |
| 2024 | 10931 | JCCD - JC Conservation District | $2.57 | $2.57 | $0.00 | $0.00 | $5.14 | $0.00 |
| 2024 | 10931 | NWA - Noxious Weed Assessment | $2.30 | $2.30 | $0.00 | $0.00 | $4.60 | $0.00 |
| 2024 | 10931 | WAT - Clean Water District | $12.50 | $12.50 | $0.00 | $0.00 | $25.00 | $0.00 |
| 2024 | 10931 | TOTAL: | $582.45 | $582.35 | $0.00 | $0.00 | $1164.80 | $0.00 |
|
| 2024 | 10931 | $582.45 | $582.35 | $0.00 | $0.00 | $1164.80 | $0.00 |
Statement Details |
| 2023 | 10951 | STATE - STATE LEVY (SCHOOL) | $145.66 | $145.66 | $0.00 | $0.00 | $291.32 | $0.00 |
| 2023 | 10951 | COUNTY - COUNTY LEVIES (CE, DD, VET, MH) | $63.57 | $63.55 | $0.00 | $0.00 | $127.12 | $0.00 |
| 2023 | 10951 | CONSERVE - CONSERVATION FUTURES | $1.91 | $1.90 | $0.00 | $0.00 | $3.81 | $0.00 |
| 2023 | 10951 | COROADS - COUNTY ROADS (ROADS, DIV TO CE) | $51.43 | $51.42 | $0.00 | $0.00 | $102.85 | $0.00 |
| 2023 | 10951 | PORTPT - PORT DISTRICT | $26.78 | $26.78 | $0.00 | $0.00 | $53.56 | $0.00 |
| 2023 | 10951 | PUD1 - PUD #1 | $4.22 | $4.21 | $0.00 | $0.00 | $8.43 | $0.00 |
| 2023 | 10951 | LIB1 - LIBRARY DIST #1 | $19.90 | $19.89 | $0.00 | $0.00 | $39.79 | $0.00 |
| 2023 | 10951 | HD2 - HOSP DIST #2 | $3.72 | $3.70 | $0.00 | $0.00 | $7.42 | $0.00 |
| 2023 | 10951 | SD50 - SCHOOL DIST #50 | $115.60 | $115.58 | $0.00 | $0.00 | $231.18 | $0.00 |
| 2023 | 10951 | FD1 - FIRE DISTRICT #1 | $52.37 | $52.36 | $0.00 | $0.00 | $104.73 | $0.00 |
| 2023 | 10951 | EMS1 - FIRE DIST #1 EMS | $22.28 | $22.27 | $0.00 | $0.00 | $44.55 | $0.00 |
| 2023 | 10951 | FPLCA - DNR Landowner Contingency Assmt | $3.00 | $3.00 | $0.00 | $0.00 | $6.00 | $0.00 |
| 2023 | 10951 | JCCD - JC Conservation District | $2.57 | $2.57 | $0.00 | $0.00 | $5.14 | $0.00 |
| 2023 | 10951 | NWA - Noxious Weed Assessment | $2.30 | $2.30 | $0.00 | $0.00 | $4.60 | $0.00 |
| 2023 | 10951 | WAT - Clean Water District | $12.00 | $12.00 | $0.00 | $0.00 | $24.00 | $0.00 |
| 2023 | 10951 | TOTAL: | $527.31 | $527.19 | $0.00 | $0.00 | $1054.50 | $0.00 |
|
| 2023 | 10951 | $527.31 | $527.19 | $0.00 | $0.00 | $1054.50 | $0.00 |
Values
| (+) Improvement Homesite Value: | + | $0 | |
| (+) Improvement Non-Homesite Value: | + | $0 | |
| (+) Land Homesite Value: | + | $0 | |
| (+) Land Non-Homesite Value: | + | $136,125 | |
| (+) Curr Use (HS): | + | $0 | $0 |
| (+) Curr Use (NHS): | + | $0 | $0 |
| | | -------------------------- | |
| (=) Market Value: | = | $136,125 | |
| (–) Productivity Loss: | – | $0 | |
| | | -------------------------- | |
| (=) Subtotal: | = | $136,125 | |
| (+) Senior Appraised Value: | + | $0 | |
| (+) Non-Senior Appraised Value: | + | $136,125 | |
| | | -------------------------- | |
| (=) Total Appraised Value: | = | $136,125 | |
| (–) Senior Exemption Loss: | – | $0 | |
| (–) Exemption Loss: | – | $0 | |
| | | -------------------------- | |
| (=) Taxable Value: | = | $136,125 | |
Taxing Jurisdiction
| Owner: | LINDA D LOWE | | |
| % Ownership: | 100.0000000000% | | |
| Total Value: | N/A | | |
| Tax Area: | 0111 - 1-50F1E1H2L1 |
| CE | COUNTY CURRENT EXPENSE | N/A | N/A | N/A | N/A | | |
| CNTYDD | DEVELOPMENTAL DISABILITIES | N/A | N/A | N/A | N/A | | |
| CNTYVET | VETERANS RELIEF | N/A | N/A | N/A | N/A | | |
| MENTAL | MENTAL HEALTH | N/A | N/A | N/A | N/A | | |
| ROADS | COUNTY ROADS | N/A | N/A | N/A | N/A | | |
| HOSP2CASH | HOSP DIST #2 GENERAL | N/A | N/A | N/A | N/A | | |
| SCH50BOND | SCHOOL DIST #50 BOND 2016 | N/A | N/A | N/A | N/A | | |
| SCH50CP | SCHOOL DIST #50 CAP PROJ | N/A | N/A | N/A | N/A | | |
| SCH50MO | SCHOOL DIST #50 EP & O | N/A | N/A | N/A | N/A | | |
| CONSERVE | CONSERVATION FUTURES | N/A | N/A | N/A | N/A | | |
| EMS1 | FIRE DIST #1 EMS | N/A | N/A | N/A | N/A | | |
| FD1 | FIRE DIST #1 GENERAL | N/A | N/A | N/A | N/A | | |
| LIB1 | LIBRARY DIST #1 GENERAL | N/A | N/A | N/A | N/A | | |
| PORTPT | PORT OF PT GENERAL | N/A | N/A | N/A | N/A | | |
| PORTPTIDD | PORT OF PT IDD 2019 | N/A | N/A | N/A | N/A | | |
| PUD1 | PUD #1 GENERAL | N/A | N/A | N/A | N/A | | |
| STATE | STATE SCHOOL PART 1 | N/A | N/A | N/A | N/A | | |
| STATE2 | STATE SCHOOL PART 2 | N/A | N/A | N/A | N/A | | |
| | Total Tax Rate: | N/A | | | | | |
| | | | | Taxes w/Current Exemptions: | N/A | | |
| | | | | Taxes w/o Exemptions: | N/A | | |
Improvement / Building
Sketch
| No sketches available for this property. |
Property Image
Land
| 1 | 5220-1537F | | 0.0000 | 0.00 | 0.00 | 0.00 | 0.00 | $82,500 | $0 |
| 2 | 5220-1537F | | 0.0000 | 0.00 | 0.00 | 0.00 | 0.00 | $53,625 | $0 |
Roll Value History
| 2026 | N/A | N/A | N/A | N/A | N/A |
| 2025 | $0 | $136,125 | $0 | $136,125 | $136,125 |
| 2024 | $0 | $136,125 | $0 | $136,125 | $136,125 |
| 2023 | $0 | $129,938 | $0 | $129,938 | $129,938 |
| 2022 | $0 | $123,750 | $0 | $123,750 | $123,750 |
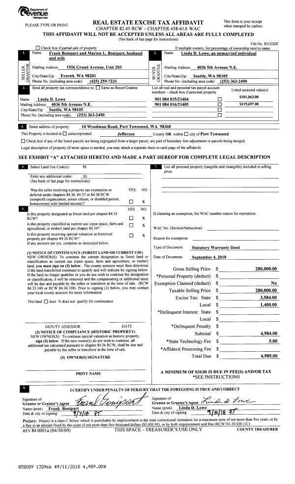
Deed and Sales History
| 1 | 09/04/2018 | SWD | Statutory Warranty Deed | FRANK BONIPART | LINDA D LOWE | | | $280,000.00 | 130966 | |
|   | |
Payout Agreement
| No payout information available.. |