Property
Account |
| Property ID: | 21484 | Abbreviated Legal Description: | S10 T29N R1W TAX 83 BND BY BLA#139192 |
| Parcel # / Geo ID: | 901104019 | Agent Code: | |
| Type: | Real | | |
| Tax Area: | 0211 - 1-49F1E1H2L1 | Land Use Code | 11 |
| Open Space: | N | DFL | N |
| Historic Property: | N | Remodel Property: | N |
| Multi-Family Redevelopment: | N | | |
| Township: | 29N | Section: | 10 |
| Range: | 1W |
Location |
| Address: | 305 GIFFORD HILL DR CHIMACUM, WA 98325 | Mapsco: | 207/033 |
| Neighborhood: | S9,10 T29N R1W; NICHOLSON'S, ROGER'S LP; FINNERTY, PUGET SP | Map ID: | |
| Neighborhood CD: | 4230 |
Owner |
| Name: | RICHARD LUKENS III | Owner ID: | 112025 |
| Mailing Address: | PO BOX 1000 CHIMACUM, WA 98325 | % Ownership: | 100.0000000000% |
| | | Exemptions: | |
Pay Tax Due
Select the appropriate checkbox next to the year to be paid. Multiple years may be selected.
*Convenience Fee not included
Taxes and Assessment Details
Property Tax Information as of
03/10/2026
Click on "Statement Details" to expand or collapse a tax statement.
* Please enter a valid date ** Please enter a valid date *
Statement Details |
| 2026 | 10962 | STATE - STATE LEVY (SCHOOL) | $1144.95 | $1144.95 | $0.00 | $0.00 | $0.00 | $2289.90 |
| 2026 | 10962 | COUNTY - COUNTY LEVIES (CE, DD, VET, MH) | $457.76 | $457.73 | $0.00 | $0.00 | $0.00 | $915.49 |
| 2026 | 10962 | CONSERVE - CONSERVATION FUTURES | $13.73 | $13.72 | $0.00 | $0.00 | $0.00 | $27.45 |
| 2026 | 10962 | COROADS - COUNTY ROADS (ROADS, DIV TO CE) | $369.27 | $369.27 | $0.00 | $0.00 | $0.00 | $738.54 |
| 2026 | 10962 | PORTPT - PORT DISTRICT | $184.88 | $184.87 | $0.00 | $0.00 | $0.00 | $369.75 |
| 2026 | 10962 | PUD1 - PUD #1 | $29.78 | $29.77 | $0.00 | $0.00 | $0.00 | $59.55 |
| 2026 | 10962 | LIB1 - LIBRARY DIST #1 | $142.87 | $142.87 | $0.00 | $0.00 | $0.00 | $285.74 |
| 2026 | 10962 | HD2 - HOSP DIST #2 | $26.70 | $26.69 | $0.00 | $0.00 | $0.00 | $53.39 |
| 2026 | 10962 | SD49 - SCHOOL DIST #49 | $630.25 | $630.25 | $0.00 | $0.00 | $0.00 | $1260.50 |
| 2026 | 10962 | FD1 - FIRE DISTRICT #1 | $606.17 | $606.16 | $0.00 | $0.00 | $0.00 | $1212.33 |
| 2026 | 10962 | EMS1 - FIRE DIST #1 EMS | $233.07 | $233.06 | $0.00 | $0.00 | $0.00 | $466.13 |
| 2026 | 10962 | FP - DNR Forest Fire Protection Assmt | $8.50 | $8.50 | $0.00 | $0.00 | $0.00 | $17.00 |
| 2026 | 10962 | FPLCA - DNR Landowner Contingency Assmt | $3.00 | $3.00 | $0.00 | $0.00 | $0.00 | $6.00 |
| 2026 | 10962 | JCCD - JC Conservation District | $2.70 | $2.70 | $0.00 | $0.00 | $0.00 | $5.40 |
| 2026 | 10962 | NWA - Noxious Weed Assessment | $3.65 | $3.65 | $0.00 | $0.00 | $0.00 | $7.30 |
| 2026 | 10962 | OSS - On Site Septic | $46.20 | $46.20 | $0.00 | $0.00 | $0.00 | $92.40 |
| 2026 | 10962 | WAT - Clean Water District | $13.00 | $13.00 | $0.00 | $0.00 | $0.00 | $26.00 |
| 2026 | 10962 | FP ADMIN - FP ADMIN | $0.50 | $0.00 | $0.00 | $0.00 | $0.00 | $0.50 |
| 2026 | 10962 | TOTAL: | $3916.98 | $3916.39 | $0.00 | $0.00 | $0.00 | $7833.37 |
|
| 2026 | 10962 | $3916.98 | $3916.39 | $0.00 | $0.00 | $0.00 | $7833.37 |
Statement Details |
| 2025 | 10985 | STATE - STATE LEVY (SCHOOL) | $1139.95 | $1139.93 | $0.00 | $0.00 | $2279.88 | $0.00 |
| 2025 | 10985 | COUNTY - COUNTY LEVIES (CE, DD, VET, MH) | $448.29 | $448.26 | $0.00 | $0.00 | $896.55 | $0.00 |
| 2025 | 10985 | CONSERVE - CONSERVATION FUTURES | $13.44 | $13.44 | $0.00 | $0.00 | $26.88 | $0.00 |
| 2025 | 10985 | COROADS - COUNTY ROADS (ROADS, DIV TO CE) | $359.14 | $359.13 | $0.00 | $0.00 | $718.27 | $0.00 |
| 2025 | 10985 | PORTPT - PORT DISTRICT | $182.92 | $182.92 | $0.00 | $0.00 | $365.84 | $0.00 |
| 2025 | 10985 | PUD1 - PUD #1 | $29.33 | $29.33 | $0.00 | $0.00 | $58.66 | $0.00 |
| 2025 | 10985 | LIB1 - LIBRARY DIST #1 | $138.95 | $138.95 | $0.00 | $0.00 | $277.90 | $0.00 |
| 2025 | 10985 | HD2 - HOSP DIST #2 | $26.16 | $26.15 | $0.00 | $0.00 | $52.31 | $0.00 |
| 2025 | 10985 | SD49 - SCHOOL DIST #49 | $610.95 | $610.93 | $0.00 | $0.00 | $1221.88 | $0.00 |
| 2025 | 10985 | FD1 - FIRE DISTRICT #1 | $591.55 | $591.54 | $0.00 | $0.00 | $1183.09 | $0.00 |
| 2025 | 10985 | EMS1 - FIRE DIST #1 EMS | $227.53 | $227.52 | $0.00 | $0.00 | $455.05 | $0.00 |
| 2025 | 10985 | FP - DNR Forest Fire Protection Assmt | $8.50 | $8.50 | $0.00 | $0.00 | $17.00 | $0.00 |
| 2025 | 10985 | FPLCA - DNR Landowner Contingency Assmt | $3.00 | $3.00 | $0.00 | $0.00 | $6.00 | $0.00 |
| 2025 | 10985 | JCCD - JC Conservation District | $2.70 | $2.70 | $0.00 | $0.00 | $5.40 | $0.00 |
| 2025 | 10985 | NWA - Noxious Weed Assessment | $2.60 | $2.60 | $0.00 | $0.00 | $5.20 | $0.00 |
| 2025 | 10985 | OSS - On Site Septic | $43.00 | $43.00 | $0.00 | $0.00 | $86.00 | $0.00 |
| 2025 | 10985 | WAT - Clean Water District | $13.00 | $13.00 | $0.00 | $0.00 | $26.00 | $0.00 |
| 2025 | 10985 | FP ADMIN - FP ADMIN | $0.50 | $0.00 | $0.00 | $0.00 | $0.50 | $0.00 |
| 2025 | 10985 | TOTAL: | $3841.51 | $3840.90 | $0.00 | $0.00 | $7682.41 | $0.00 |
|
| 2025 | 10985 | $3841.51 | $3840.90 | $0.00 | $0.00 | $7682.41 | $0.00 |
Statement Details |
| 2024 | 11010 | STATE - STATE LEVY (SCHOOL) | $959.33 | $959.32 | $0.00 | $0.00 | $1918.65 | $0.00 |
| 2024 | 11010 | COUNTY - COUNTY LEVIES (CE, DD, VET, MH) | $410.52 | $410.50 | $0.00 | $0.00 | $821.02 | $0.00 |
| 2024 | 11010 | CONSERVE - CONSERVATION FUTURES | $12.31 | $12.31 | $0.00 | $0.00 | $24.62 | $0.00 |
| 2024 | 11010 | COROADS - COUNTY ROADS (ROADS, DIV TO CE) | $330.32 | $330.32 | $0.00 | $0.00 | $660.64 | $0.00 |
| 2024 | 11010 | PORTPT - PORT DISTRICT | $169.56 | $169.55 | $0.00 | $0.00 | $339.11 | $0.00 |
| 2024 | 11010 | PUD1 - PUD #1 | $26.97 | $26.96 | $0.00 | $0.00 | $53.93 | $0.00 |
| 2024 | 11010 | LIB1 - LIBRARY DIST #1 | $127.80 | $127.80 | $0.00 | $0.00 | $255.60 | $0.00 |
| 2024 | 11010 | HD2 - HOSP DIST #2 | $23.95 | $23.95 | $0.00 | $0.00 | $47.90 | $0.00 |
| 2024 | 11010 | SD49 - SCHOOL DIST #49 | $428.39 | $428.38 | $0.00 | $0.00 | $856.77 | $0.00 |
| 2024 | 11010 | FD1 - FIRE DISTRICT #1 | $542.79 | $542.78 | $0.00 | $0.00 | $1085.57 | $0.00 |
| 2024 | 11010 | EMS1 - FIRE DIST #1 EMS | $207.33 | $207.32 | $0.00 | $0.00 | $414.65 | $0.00 |
| 2024 | 11010 | FP - DNR Forest Fire Protection Assmt | $8.50 | $8.50 | $0.00 | $0.00 | $17.00 | $0.00 |
| 2024 | 11010 | FPLCA - DNR Landowner Contingency Assmt | $3.00 | $3.00 | $0.00 | $0.00 | $6.00 | $0.00 |
| 2024 | 11010 | JCCD - JC Conservation District | $2.70 | $2.70 | $0.00 | $0.00 | $5.40 | $0.00 |
| 2024 | 11010 | NWA - Noxious Weed Assessment | $2.60 | $2.60 | $0.00 | $0.00 | $5.20 | $0.00 |
| 2024 | 11010 | OSS - On Site Septic | $42.00 | $42.00 | $0.00 | $0.00 | $84.00 | $0.00 |
| 2024 | 11010 | WAT - Clean Water District | $12.50 | $12.50 | $0.00 | $0.00 | $25.00 | $0.00 |
| 2024 | 11010 | FP ADMIN - FP ADMIN | $0.50 | $0.00 | $0.00 | $0.00 | $0.50 | $0.00 |
| 2024 | 11010 | TOTAL: | $3311.07 | $3310.49 | $0.00 | $0.00 | $6621.56 | $0.00 |
|
| 2024 | 11010 | $3311.07 | $3310.49 | $0.00 | $0.00 | $6621.56 | $0.00 |
Statement Details |
| 2023 | 11030 | STATE - STATE LEVY (SCHOOL) | $874.19 | $874.19 | $0.00 | $0.00 | $1748.38 | $0.00 |
| 2023 | 11030 | COUNTY - COUNTY LEVIES (CE, DD, VET, MH) | $381.49 | $381.45 | $0.00 | $0.00 | $762.94 | $0.00 |
| 2023 | 11030 | CONSERVE - CONSERVATION FUTURES | $11.44 | $11.44 | $0.00 | $0.00 | $22.88 | $0.00 |
| 2023 | 11030 | COROADS - COUNTY ROADS (ROADS, DIV TO CE) | $308.64 | $308.63 | $0.00 | $0.00 | $617.27 | $0.00 |
| 2023 | 11030 | PORTPT - PORT DISTRICT | $160.70 | $160.69 | $0.00 | $0.00 | $321.39 | $0.00 |
| 2023 | 11030 | PUD1 - PUD #1 | $25.29 | $25.28 | $0.00 | $0.00 | $50.57 | $0.00 |
| 2023 | 11030 | LIB1 - LIBRARY DIST #1 | $119.41 | $119.41 | $0.00 | $0.00 | $238.82 | $0.00 |
| 2023 | 11030 | HD2 - HOSP DIST #2 | $22.27 | $22.26 | $0.00 | $0.00 | $44.53 | $0.00 |
| 2023 | 11030 | SD49 - SCHOOL DIST #49 | $408.64 | $408.63 | $0.00 | $0.00 | $817.27 | $0.00 |
| 2023 | 11030 | FD1 - FIRE DISTRICT #1 | $314.26 | $314.25 | $0.00 | $0.00 | $628.51 | $0.00 |
| 2023 | 11030 | EMS1 - FIRE DIST #1 EMS | $133.68 | $133.68 | $0.00 | $0.00 | $267.36 | $0.00 |
| 2023 | 11030 | FP - DNR Forest Fire Protection Assmt | $8.50 | $8.50 | $0.00 | $0.00 | $17.00 | $0.00 |
| 2023 | 11030 | FPLCA - DNR Landowner Contingency Assmt | $3.00 | $3.00 | $0.00 | $0.00 | $6.00 | $0.00 |
| 2023 | 11030 | JCCD - JC Conservation District | $2.70 | $2.70 | $0.00 | $0.00 | $5.40 | $0.00 |
| 2023 | 11030 | NWA - Noxious Weed Assessment | $2.60 | $2.60 | $0.00 | $0.00 | $5.20 | $0.00 |
| 2023 | 11030 | OSS - On Site Septic | $41.00 | $41.00 | $0.00 | $0.00 | $82.00 | $0.00 |
| 2023 | 11030 | WAT - Clean Water District | $12.00 | $12.00 | $0.00 | $0.00 | $24.00 | $0.00 |
| 2023 | 11030 | FP ADMIN - FP ADMIN | $0.50 | $0.00 | $0.00 | $0.00 | $0.50 | $0.00 |
| 2023 | 11030 | TOTAL: | $2830.31 | $2829.71 | $0.00 | $0.00 | $5660.02 | $0.00 |
|
| 2023 | 11030 | $2830.31 | $2829.71 | $0.00 | $0.00 | $5660.02 | $0.00 |
Values
| (+) Improvement Homesite Value: | + | $0 | |
| (+) Improvement Non-Homesite Value: | + | $859,849 | |
| (+) Land Homesite Value: | + | $0 | |
| (+) Land Non-Homesite Value: | + | $136,156 | |
| (+) Curr Use (HS): | + | $0 | $0 |
| (+) Curr Use (NHS): | + | $0 | $0 |
| | | -------------------------- | |
| (=) Market Value: | = | $996,005 | |
| (–) Productivity Loss: | – | $0 | |
| | | -------------------------- | |
| (=) Subtotal: | = | $996,005 | |
| (+) Senior Appraised Value: | + | $0 | |
| (+) Non-Senior Appraised Value: | + | $996,005 | |
| | | -------------------------- | |
| (=) Total Appraised Value: | = | $996,005 | |
| (–) Senior Exemption Loss: | – | $0 | |
| (–) Exemption Loss: | – | $0 | |
| | | -------------------------- | |
| (=) Taxable Value: | = | $996,005 | |
Taxing Jurisdiction
| Owner: | RICHARD LUKENS III | | |
| % Ownership: | 100.0000000000% | | |
| Total Value: | $996,005 | | |
| Tax Area: | 0211 - 1-49F1E1H2L1 |
| CE | COUNTY CURRENT EXPENSE | 0.9034619479 | $996,005 | $996,005 | $899.85 | | |
| CNTYDD | DEVELOPMENTAL DISABILITIES | 0.0052121823 | $996,005 | $996,005 | $5.19 | | |
| CNTYVET | VETERANS RELIEF | 0.0052777810 | $996,005 | $996,005 | $5.26 | | |
| MENTAL | MENTAL HEALTH | 0.0052121823 | $996,005 | $996,005 | $5.19 | | |
| ROADS | COUNTY ROADS | 0.7415066410 | $996,005 | $996,005 | $738.54 | | |
| ROADSCU | COUNTY ROADS TO CUR EXP | 0.0000000000 | $996,005 | $996,005 | $0.00 | | |
| HOSP2CASH | HOSP DIST #2 GENERAL | 0.0536075306 | $996,005 | $996,005 | $53.39 | | |
| SCH49CP | SCHOOL DIST #49 CAP PROJ | 0.6279093905 | $996,005 | $996,005 | $625.40 | | |
| SCH49MO | SCHOOL DIST #49 EP & O | 0.6376483602 | $996,005 | $996,005 | $635.10 | | |
| CONSERVE | CONSERVATION FUTURES | 0.0275621078 | $996,005 | $996,005 | $27.45 | | |
| EMS1 | FIRE DIST #1 EMS | 0.4679948282 | $996,005 | $996,005 | $466.13 | | |
| FD1 | FIRE DIST #1 GENERAL | 1.2171942929 | $996,005 | $996,005 | $1,212.33 | | |
| LIB1 | LIBRARY DIST #1 GENERAL | 0.2868827388 | $996,005 | $996,005 | $285.74 | | |
| PORTPT | PORT OF PT GENERAL | 0.1134941229 | $996,005 | $996,005 | $113.04 | | |
| PORTPTIDD | PORT OF PT IDD 2019 | 0.2577346692 | $996,005 | $996,005 | $256.71 | | |
| PUD1 | PUD #1 GENERAL | 0.0597888892 | $996,005 | $996,005 | $59.55 | | |
| STATE | STATE SCHOOL PART 1 | 1.4940692947 | $996,005 | $996,005 | $1,488.10 | | |
| STATE2 | STATE SCHOOL PART 2 | 0.8050170049 | $996,005 | $996,005 | $801.80 | | |
| | Total Tax Rate: | 7.7095739644 | | | | | |
| | | | | Taxes w/Current Exemptions: | $7,678.77 | | |
| | | | | Taxes w/o Exemptions: | $7,678.77 | | |
Improvement / Building
| Improvement #1: | Residential Bldg | State Code: | 11 | 2624.0 sqft | Value: | $859,849 |
| Bathrooms (#): | 3 (FULL) | Bedrooms (#): | 3 | | Exterior Wall: | LOG | Fireplace: | SIN 2-GOOD | | Floor Construction: | FRAME | Foundation: | CONPR | | Heating/Cooling: | HTWTR | Inside Verify: | YES | | Roof Cover: | METAL |   |   |
|
| | Type | Description | Class CD | Sub Class CD | Year Built | Area |
| | MA | Main Area | 5- | 15SF | 2005 | 1581.0 |
| | MA2 | Second Floor Main Area | 5- | 15SF | 2005 | 1043.0 |
| | BSMTF | House basement finished | 4 | * | 2005 | 611.0 |
| | GBSMT | Basement Garage | 4 | * | 2005 | 882.0 |
| | HWPOR | House Wood Porch | 4 | 15SF | 2005 | 50.0 |
| | HWPOR | House Wood Porch | 4 | * | 2005 | 60.0 |
| | HWPOR | House Wood Porch | 4 | * | 2005 | 108.0 |
| | HDECK | House Deck | 4 | * | 2005 | 439.0 |
| | PATIO | House Patio | 4 | * | 2005 | 150.0 |
| | CONCD | Concrete Drive | 4 | * | 2005 | 1000.0 |
Sketch
Property Image
Land
| 1 | 4230-1374S | | 1.0000 | 43560.00 | 0.00 | 0.00 | 1.00 | $115,500 | $0 |
| 2 | 1578A | | 2.5900 | 112820.40 | 0.00 | 0.00 | 0.00 | $20,656 | $0 |
Roll Value History
| 2026 | N/A | N/A | N/A | N/A | N/A |
| 2025 | $859,849 | $136,156 | $0 | $996,005 | $996,005 |
| 2024 | $820,765 | $129,967 | $0 | $950,732 | $950,732 |
| 2023 | $711,165 | $118,130 | $0 | $829,295 | $829,295 |
| 2022 | $630,845 | $111,835 | $0 | $742,680 | $742,680 |
Deed and Sales History
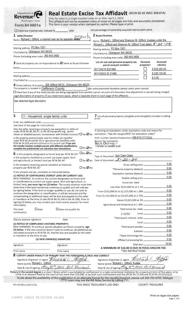
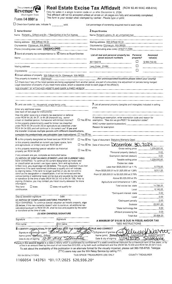
| 1 | 12/30/2024 | SWD | Statutory Warranty Deed | RICHARD L & SHANNON M GIFFORD TRUST | RICHARD LUKENS III | | | $1,229,000.00 | 143761 | |
| 2 | 05/20/2024 | QCD | Quit Claim Deed | RICHARD L GIFFORD | RICHARD L & SHANNON M GIFFORD TRUST | | | | 142632 | |
| 3 | 01/20/2021 | QCD | Quit Claim Deed | | | | | | 135996 | |
| 4 | 10/17/2019 | QCD | Quit Claim Deed | SHEILA J GIFFORD | RICHARD L GIFFORD | | | | 133351 | |
| 5 | 08/22/2019 | BLA | Boundary Line Adjustment | SHEILA J GIFFORD | RICHARD L GIFFORD | | | | 133018 | |
| 6 | 08/22/2019 | BLA | Boundary Line Adjustment | SHEILA J GIFFORD | SHEILA J GIFFORD | | | | 133018 | |
| 7 | 08/12/2004 | QCD | Quit Claim Deed | GIFFORD, SHEILA J | GIFFORD, RICHARD L | 0 | 0 | $0.00 | 101100 | 0 |
Payout Agreement
| No payout information available.. |