Property
Account |
| Property ID: | 21548 | Abbreviated Legal Description: | S11 T29 R1W SE NW(E OF CHIM.CR LESS S800')LESS PTN TAX 62, LESS TAX 64 |
| Parcel # / Geo ID: | 901112041 | Agent Code: | |
| Type: | Real | | |
| Tax Area: | 0211 - 1-49F1E1H2L1 | Land Use Code | 32 |
| Open Space: | N | DFL | N |
| Historic Property: | N | Remodel Property: | N |
| Multi-Family Redevelopment: | N | | |
| Township: | 29N | Section: | 11 |
| Range: | 1W |
Location |
| Address: | | Mapsco: | 208/020 |
| Neighborhood: | CHIMACUM RD COMMERCIAL AREA | Map ID: | |
| Neighborhood CD: | 4240C |
Owner |
| Name: | SHOLD EXCAVATING INC | Owner ID: | 27280 |
| Mailing Address: | PO BOX 179 PORT HADLOCK, WA 98339-0179 | % Ownership: | 100.0000000000% |
| | | Exemptions: | |
Pay Tax Due
Select the appropriate checkbox next to the year to be paid. Multiple years may be selected.
*Convenience Fee not included
Taxes and Assessment Details
Property Tax Information as of
03/10/2026
Click on "Statement Details" to expand or collapse a tax statement.
* Please enter a valid date ** Please enter a valid date *
Statement Details |
| 2026 | 11023 | STATE - STATE LEVY (SCHOOL) | $85.58 | $85.57 | $0.00 | $0.00 | $85.58 | $85.57 |
| 2026 | 11023 | COUNTY - COUNTY LEVIES (CE, DD, VET, MH) | $34.23 | $34.19 | $0.00 | $0.00 | $34.23 | $34.19 |
| 2026 | 11023 | CONSERVE - CONSERVATION FUTURES | $1.03 | $1.02 | $0.00 | $0.00 | $1.03 | $1.02 |
| 2026 | 11023 | COROADS - COUNTY ROADS (ROADS, DIV TO CE) | $27.60 | $27.60 | $0.00 | $0.00 | $27.60 | $27.60 |
| 2026 | 11023 | PORTPT - PORT DISTRICT | $13.83 | $13.81 | $0.00 | $0.00 | $13.83 | $13.81 |
| 2026 | 11023 | PUD1 - PUD #1 | $2.23 | $2.22 | $0.00 | $0.00 | $2.23 | $2.22 |
| 2026 | 11023 | LIB1 - LIBRARY DIST #1 | $10.68 | $10.68 | $0.00 | $0.00 | $10.68 | $10.68 |
| 2026 | 11023 | HD2 - HOSP DIST #2 | $2.00 | $1.99 | $0.00 | $0.00 | $2.00 | $1.99 |
| 2026 | 11023 | SD49 - SCHOOL DIST #49 | $47.11 | $47.10 | $0.00 | $0.00 | $47.11 | $47.10 |
| 2026 | 11023 | FD1 - FIRE DISTRICT #1 | $45.31 | $45.30 | $0.00 | $0.00 | $45.31 | $45.30 |
| 2026 | 11023 | EMS1 - FIRE DIST #1 EMS | $17.42 | $17.42 | $0.00 | $0.00 | $17.42 | $17.42 |
| 2026 | 11023 | FPLCA - DNR Landowner Contingency Assmt | $3.00 | $3.00 | $0.00 | $0.00 | $3.00 | $3.00 |
| 2026 | 11023 | JCCD - JC Conservation District | $2.81 | $2.81 | $0.00 | $0.00 | $2.81 | $2.81 |
| 2026 | 11023 | NWA - Noxious Weed Assessment | $4.55 | $4.55 | $0.00 | $0.00 | $4.55 | $4.55 |
| 2026 | 11023 | WAT - Clean Water District | $13.00 | $13.00 | $0.00 | $0.00 | $13.00 | $13.00 |
| 2026 | 11023 | TOTAL: | $310.38 | $310.26 | $0.00 | $0.00 | $310.38 | $310.26 |
|
| 2026 | 11023 | $310.38 | $310.26 | $0.00 | $0.00 | $310.38 | $310.26 |
Statement Details |
| 2025 | 11046 | STATE - STATE LEVY (SCHOOL) | $89.26 | $89.25 | $0.00 | $0.00 | $178.51 | $0.00 |
| 2025 | 11046 | COUNTY - COUNTY LEVIES (CE, DD, VET, MH) | $35.10 | $35.10 | $0.00 | $0.00 | $70.20 | $0.00 |
| 2025 | 11046 | CONSERVE - CONSERVATION FUTURES | $1.05 | $1.05 | $0.00 | $0.00 | $2.10 | $0.00 |
| 2025 | 11046 | COROADS - COUNTY ROADS (ROADS, DIV TO CE) | $28.13 | $28.11 | $0.00 | $0.00 | $56.24 | $0.00 |
| 2025 | 11046 | PORTPT - PORT DISTRICT | $14.33 | $14.32 | $0.00 | $0.00 | $28.65 | $0.00 |
| 2025 | 11046 | PUD1 - PUD #1 | $2.30 | $2.29 | $0.00 | $0.00 | $4.59 | $0.00 |
| 2025 | 11046 | LIB1 - LIBRARY DIST #1 | $10.88 | $10.88 | $0.00 | $0.00 | $21.76 | $0.00 |
| 2025 | 11046 | HD2 - HOSP DIST #2 | $2.05 | $2.05 | $0.00 | $0.00 | $4.10 | $0.00 |
| 2025 | 11046 | SD49 - SCHOOL DIST #49 | $47.84 | $47.83 | $0.00 | $0.00 | $95.67 | $0.00 |
| 2025 | 11046 | FD1 - FIRE DISTRICT #1 | $46.32 | $46.31 | $0.00 | $0.00 | $92.63 | $0.00 |
| 2025 | 11046 | EMS1 - FIRE DIST #1 EMS | $17.82 | $17.81 | $0.00 | $0.00 | $35.63 | $0.00 |
| 2025 | 11046 | FPLCA - DNR Landowner Contingency Assmt | $3.00 | $3.00 | $0.00 | $0.00 | $6.00 | $0.00 |
| 2025 | 11046 | JCCD - JC Conservation District | $2.81 | $2.81 | $0.00 | $0.00 | $5.62 | $0.00 |
| 2025 | 11046 | NWA - Noxious Weed Assessment | $3.20 | $3.20 | $0.00 | $0.00 | $6.40 | $0.00 |
| 2025 | 11046 | WAT - Clean Water District | $13.00 | $13.00 | $0.00 | $0.00 | $26.00 | $0.00 |
| 2025 | 11046 | TOTAL: | $317.09 | $317.01 | $0.00 | $0.00 | $634.10 | $0.00 |
|
| 2025 | 11046 | $317.09 | $317.01 | $0.00 | $0.00 | $634.10 | $0.00 |
Statement Details |
| 2024 | 11071 | STATE - STATE LEVY (SCHOOL) | $84.80 | $84.78 | $0.00 | $0.00 | $169.58 | $0.00 |
| 2024 | 11071 | COUNTY - COUNTY LEVIES (CE, DD, VET, MH) | $36.30 | $36.26 | $0.00 | $0.00 | $72.56 | $0.00 |
| 2024 | 11071 | CONSERVE - CONSERVATION FUTURES | $1.09 | $1.09 | $0.00 | $0.00 | $2.18 | $0.00 |
| 2024 | 11071 | COROADS - COUNTY ROADS (ROADS, DIV TO CE) | $29.20 | $29.19 | $0.00 | $0.00 | $58.39 | $0.00 |
| 2024 | 11071 | PORTPT - PORT DISTRICT | $14.99 | $14.98 | $0.00 | $0.00 | $29.97 | $0.00 |
| 2024 | 11071 | PUD1 - PUD #1 | $2.39 | $2.38 | $0.00 | $0.00 | $4.77 | $0.00 |
| 2024 | 11071 | LIB1 - LIBRARY DIST #1 | $11.30 | $11.29 | $0.00 | $0.00 | $22.59 | $0.00 |
| 2024 | 11071 | HD2 - HOSP DIST #2 | $2.12 | $2.11 | $0.00 | $0.00 | $4.23 | $0.00 |
| 2024 | 11071 | SD49 - SCHOOL DIST #49 | $37.87 | $37.86 | $0.00 | $0.00 | $75.73 | $0.00 |
| 2024 | 11071 | FD1 - FIRE DISTRICT #1 | $47.98 | $47.97 | $0.00 | $0.00 | $95.95 | $0.00 |
| 2024 | 11071 | EMS1 - FIRE DIST #1 EMS | $18.33 | $18.32 | $0.00 | $0.00 | $36.65 | $0.00 |
| 2024 | 11071 | FPLCA - DNR Landowner Contingency Assmt | $3.00 | $3.00 | $0.00 | $0.00 | $6.00 | $0.00 |
| 2024 | 11071 | JCCD - JC Conservation District | $2.81 | $2.81 | $0.00 | $0.00 | $5.62 | $0.00 |
| 2024 | 11071 | NWA - Noxious Weed Assessment | $3.20 | $3.20 | $0.00 | $0.00 | $6.40 | $0.00 |
| 2024 | 11071 | WAT - Clean Water District | $12.50 | $12.50 | $0.00 | $0.00 | $25.00 | $0.00 |
| 2024 | 11071 | TOTAL: | $307.88 | $307.74 | $0.00 | $0.00 | $615.62 | $0.00 |
|
| 2024 | 11071 | $307.88 | $307.74 | $0.00 | $0.00 | $615.62 | $0.00 |
Statement Details |
| 2023 | 11091 | STATE - STATE LEVY (SCHOOL) | $83.59 | $83.58 | $0.00 | $0.00 | $167.17 | $0.00 |
| 2023 | 11091 | COUNTY - COUNTY LEVIES (CE, DD, VET, MH) | $36.48 | $36.46 | $0.00 | $0.00 | $72.94 | $0.00 |
| 2023 | 11091 | CONSERVE - CONSERVATION FUTURES | $1.10 | $1.09 | $0.00 | $0.00 | $2.19 | $0.00 |
| 2023 | 11091 | COROADS - COUNTY ROADS (ROADS, DIV TO CE) | $29.52 | $29.50 | $0.00 | $0.00 | $59.02 | $0.00 |
| 2023 | 11091 | PORTPT - PORT DISTRICT | $15.37 | $15.36 | $0.00 | $0.00 | $30.73 | $0.00 |
| 2023 | 11091 | PUD1 - PUD #1 | $2.42 | $2.42 | $0.00 | $0.00 | $4.84 | $0.00 |
| 2023 | 11091 | LIB1 - LIBRARY DIST #1 | $11.42 | $11.41 | $0.00 | $0.00 | $22.83 | $0.00 |
| 2023 | 11091 | HD2 - HOSP DIST #2 | $2.13 | $2.13 | $0.00 | $0.00 | $4.26 | $0.00 |
| 2023 | 11091 | SD49 - SCHOOL DIST #49 | $39.07 | $39.07 | $0.00 | $0.00 | $78.14 | $0.00 |
| 2023 | 11091 | FD1 - FIRE DISTRICT #1 | $30.05 | $30.04 | $0.00 | $0.00 | $60.09 | $0.00 |
| 2023 | 11091 | EMS1 - FIRE DIST #1 EMS | $12.78 | $12.78 | $0.00 | $0.00 | $25.56 | $0.00 |
| 2023 | 11091 | FP - DNR Forest Fire Protection Assmt | $8.50 | $8.50 | $0.00 | $0.00 | $17.00 | $0.00 |
| 2023 | 11091 | FPLCA - DNR Landowner Contingency Assmt | $3.00 | $3.00 | $0.00 | $0.00 | $6.00 | $0.00 |
| 2023 | 11091 | JCCD - JC Conservation District | $2.81 | $2.81 | $0.00 | $0.00 | $5.62 | $0.00 |
| 2023 | 11091 | NWA - Noxious Weed Assessment | $3.20 | $3.20 | $0.00 | $0.00 | $6.40 | $0.00 |
| 2023 | 11091 | WAT - Clean Water District | $12.00 | $12.00 | $0.00 | $0.00 | $24.00 | $0.00 |
| 2023 | 11091 | FP ADMIN - FP ADMIN | $0.50 | $0.00 | $0.00 | $0.00 | $0.50 | $0.00 |
| 2023 | 11091 | TOTAL: | $293.94 | $293.35 | $0.00 | $0.00 | $587.29 | $0.00 |
|
| 2023 | 11091 | $293.94 | $293.35 | $0.00 | $0.00 | $587.29 | $0.00 |
Values
| (+) Improvement Homesite Value: | + | $0 | |
| (+) Improvement Non-Homesite Value: | + | $0 | |
| (+) Land Homesite Value: | + | $0 | |
| (+) Land Non-Homesite Value: | + | $74,441 | |
| (+) Curr Use (HS): | + | $0 | $0 |
| (+) Curr Use (NHS): | + | $0 | $0 |
| | | -------------------------- | |
| (=) Market Value: | = | $74,441 | |
| (–) Productivity Loss: | – | $0 | |
| | | -------------------------- | |
| (=) Subtotal: | = | $74,441 | |
| (+) Senior Appraised Value: | + | $0 | |
| (+) Non-Senior Appraised Value: | + | $74,441 | |
| | | -------------------------- | |
| (=) Total Appraised Value: | = | $74,441 | |
| (–) Senior Exemption Loss: | – | $0 | |
| (–) Exemption Loss: | – | $0 | |
| | | -------------------------- | |
| (=) Taxable Value: | = | $74,441 | |
Taxing Jurisdiction
| Owner: | SHOLD EXCAVATING INC | | |
| % Ownership: | 100.0000000000% | | |
| Total Value: | N/A | | |
| Tax Area: | 0211 - 1-49F1E1H2L1 |
| CE | COUNTY CURRENT EXPENSE | N/A | N/A | N/A | N/A | | |
| CNTYDD | DEVELOPMENTAL DISABILITIES | N/A | N/A | N/A | N/A | | |
| CNTYVET | VETERANS RELIEF | N/A | N/A | N/A | N/A | | |
| MENTAL | MENTAL HEALTH | N/A | N/A | N/A | N/A | | |
| ROADS | COUNTY ROADS | N/A | N/A | N/A | N/A | | |
| HOSP2CASH | HOSP DIST #2 GENERAL | N/A | N/A | N/A | N/A | | |
| SCH49CP | SCHOOL DIST #49 CAP PROJ | N/A | N/A | N/A | N/A | | |
| SCH49MO | SCHOOL DIST #49 EP & O | N/A | N/A | N/A | N/A | | |
| CONSERVE | CONSERVATION FUTURES | N/A | N/A | N/A | N/A | | |
| EMS1 | FIRE DIST #1 EMS | N/A | N/A | N/A | N/A | | |
| FD1 | FIRE DIST #1 GENERAL | N/A | N/A | N/A | N/A | | |
| LIB1 | LIBRARY DIST #1 GENERAL | N/A | N/A | N/A | N/A | | |
| PORTPT | PORT OF PT GENERAL | N/A | N/A | N/A | N/A | | |
| PORTPTIDD | PORT OF PT IDD 2019 | N/A | N/A | N/A | N/A | | |
| PUD1 | PUD #1 GENERAL | N/A | N/A | N/A | N/A | | |
| STATE | STATE SCHOOL PART 1 | N/A | N/A | N/A | N/A | | |
| STATE2 | STATE SCHOOL PART 2 | N/A | N/A | N/A | N/A | | |
| | Total Tax Rate: | N/A | | | | | |
| | | | | Taxes w/Current Exemptions: | N/A | | |
| | | | | Taxes w/o Exemptions: | N/A | | |
Improvement / Building
Sketch
| No sketches available for this property. |
Property Image
Land
| 1 | 4240-6285Q | | 1.0000 | 43560.00 | 0.00 | 0.00 | 1.00 | $43,560 | $0 |
| 2 | 1677A | | 6.1000 | 265716.00 | 0.00 | 0.00 | 0.00 | $30,881 | $0 |
Roll Value History
| 2026 | N/A | N/A | N/A | N/A | N/A |
| 2025 | $0 | $74,441 | $0 | $74,441 | $74,441 |
| 2024 | $0 | $74,441 | $0 | $74,441 | $74,441 |
| 2023 | $0 | $73,298 | $0 | $73,298 | $73,298 |
| 2022 | $0 | $71,010 | $0 | $71,010 | $71,010 |
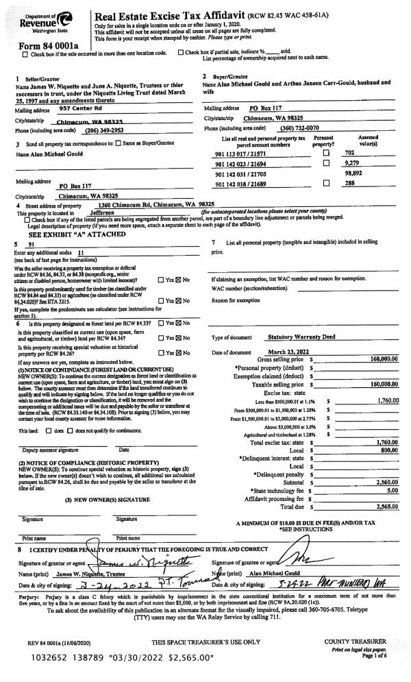
Deed and Sales History
| 1 | 04/01/2022 | QCD | Quit Claim Deed | JOHN T SHOLD TRUSTEE | SHOLD EXCAVATING INC | | | | 140713 | |
| 2 | 04/01/2022 | QCD | Quit Claim Deed | JOHN T SHOLD TRUSTEE | SHOLD EXCAVATING INC | | | | 138834 | |
| 3 | 04/01/2022 | QCD | Quit Claim Deed | JOHN T SHOLD TRUSTEE | SHOLD EXCAVATING INC | | | | 140292 | |
| 4 | 11/23/2011 | QCD | Quit Claim Deed | SWANSON, SAMUEL B | SHOLD, JOHN T TRUSTEE OF THE L | 0 | 0 | $150,000.00 | 116819 | 0 |
|   | |
| 5 | 03/04/2004 | QCD | Quit Claim Deed | SHOLD, JOHN T | SHOLD, JOHN T/TRUSTEE | 0 | 0 | $0.00 | 99626 | 0 |
Payout Agreement
| No payout information available.. |