Property
Account |
| Property ID: | 21556 | Abbreviated Legal Description: | BOTNEN SHORT PLAT LOT 2 SUBJ TO EASE/REST OF RECORD SURVEY V5/P79 |
| Parcel # / Geo ID: | 901112052 | Agent Code: | |
| Type: | Real | | |
| Tax Area: | 0211 - 1-49F1E1H2L1 | Land Use Code | 91 |
| Open Space: | N | DFL | N |
| Historic Property: | N | Remodel Property: | N |
| Multi-Family Redevelopment: | N | | |
| Township: | 29N | Section: | 11 |
| Range: | 1W |
Location |
| Address: | | Mapsco: | 226/071 |
| Neighborhood: | S11 T29N R1W; ELKINS; LOPEMAN, COLLINS, GOEHNER, SCHADE S.P. | Map ID: | |
| Neighborhood CD: | 4240 |
Owner |
| Name: | PENINSULA HOUSING LLC | Owner ID: | 106809 |
| Mailing Address: | 23 NIP LEE DR CHIMACUM, WA 98325-8763 | % Ownership: | 100.0000000000% |
| | | Exemptions: | |
Pay Tax Due
Select the appropriate checkbox next to the year to be paid. Multiple years may be selected.
*Convenience Fee not included
Taxes and Assessment Details
Property Tax Information as of
03/12/2026
Click on "Statement Details" to expand or collapse a tax statement.
* Please enter a valid date ** Please enter a valid date *
Statement Details |
| 2026 | 11030 | STATE - STATE LEVY (SCHOOL) | $108.44 | $108.44 | $0.00 | $0.00 | $108.44 | $108.44 |
| 2026 | 11030 | COUNTY - COUNTY LEVIES (CE, DD, VET, MH) | $43.37 | $43.34 | $0.00 | $0.00 | $43.37 | $43.34 |
| 2026 | 11030 | CONSERVE - CONSERVATION FUTURES | $1.30 | $1.30 | $0.00 | $0.00 | $1.30 | $1.30 |
| 2026 | 11030 | COROADS - COUNTY ROADS (ROADS, DIV TO CE) | $34.98 | $34.97 | $0.00 | $0.00 | $34.98 | $34.97 |
| 2026 | 11030 | PORTPT - PORT DISTRICT | $17.52 | $17.50 | $0.00 | $0.00 | $17.52 | $17.50 |
| 2026 | 11030 | PUD1 - PUD #1 | $2.82 | $2.82 | $0.00 | $0.00 | $2.82 | $2.82 |
| 2026 | 11030 | LIB1 - LIBRARY DIST #1 | $13.53 | $13.53 | $0.00 | $0.00 | $13.53 | $13.53 |
| 2026 | 11030 | HD2 - HOSP DIST #2 | $2.53 | $2.53 | $0.00 | $0.00 | $2.53 | $2.53 |
| 2026 | 11030 | SD49 - SCHOOL DIST #49 | $59.70 | $59.68 | $0.00 | $0.00 | $59.70 | $59.68 |
| 2026 | 11030 | FD1 - FIRE DISTRICT #1 | $57.41 | $57.41 | $0.00 | $0.00 | $57.41 | $57.41 |
| 2026 | 11030 | EMS1 - FIRE DIST #1 EMS | $22.08 | $22.07 | $0.00 | $0.00 | $22.08 | $22.07 |
| 2026 | 11030 | FP - DNR Forest Fire Protection Assmt | $8.50 | $8.50 | $0.00 | $0.00 | $8.50 | $8.50 |
| 2026 | 11030 | FPLCA - DNR Landowner Contingency Assmt | $3.00 | $3.00 | $0.00 | $0.00 | $3.00 | $3.00 |
| 2026 | 11030 | JCCD - JC Conservation District | $2.73 | $2.73 | $0.00 | $0.00 | $2.73 | $2.73 |
| 2026 | 11030 | NWA - Noxious Weed Assessment | $4.10 | $4.10 | $0.00 | $0.00 | $4.10 | $4.10 |
| 2026 | 11030 | WAT - Clean Water District | $13.00 | $13.00 | $0.00 | $0.00 | $13.00 | $13.00 |
| 2026 | 11030 | FP ADMIN - FP ADMIN | $0.50 | $0.00 | $0.00 | $0.00 | $0.50 | $0.00 |
| 2026 | 11030 | TOTAL: | $395.51 | $394.92 | $0.00 | $0.00 | $395.51 | $394.92 |
|
| 2026 | 11030 | $395.51 | $394.92 | $0.00 | $0.00 | $395.51 | $394.92 |
Statement Details |
| 2025 | 11053 | STATE - STATE LEVY (SCHOOL) | $103.28 | $103.26 | $0.00 | $0.00 | $206.54 | $0.00 |
| 2025 | 11053 | COUNTY - COUNTY LEVIES (CE, DD, VET, MH) | $40.62 | $40.61 | $0.00 | $0.00 | $81.23 | $0.00 |
| 2025 | 11053 | CONSERVE - CONSERVATION FUTURES | $1.22 | $1.22 | $0.00 | $0.00 | $2.44 | $0.00 |
| 2025 | 11053 | COROADS - COUNTY ROADS (ROADS, DIV TO CE) | $32.54 | $32.53 | $0.00 | $0.00 | $65.07 | $0.00 |
| 2025 | 11053 | PORTPT - PORT DISTRICT | $16.58 | $16.56 | $0.00 | $0.00 | $33.14 | $0.00 |
| 2025 | 11053 | PUD1 - PUD #1 | $2.66 | $2.65 | $0.00 | $0.00 | $5.31 | $0.00 |
| 2025 | 11053 | LIB1 - LIBRARY DIST #1 | $12.59 | $12.59 | $0.00 | $0.00 | $25.18 | $0.00 |
| 2025 | 11053 | HD2 - HOSP DIST #2 | $2.37 | $2.37 | $0.00 | $0.00 | $4.74 | $0.00 |
| 2025 | 11053 | SD49 - SCHOOL DIST #49 | $55.35 | $55.34 | $0.00 | $0.00 | $110.69 | $0.00 |
| 2025 | 11053 | FD1 - FIRE DISTRICT #1 | $53.59 | $53.59 | $0.00 | $0.00 | $107.18 | $0.00 |
| 2025 | 11053 | EMS1 - FIRE DIST #1 EMS | $20.61 | $20.61 | $0.00 | $0.00 | $41.22 | $0.00 |
| 2025 | 11053 | FP - DNR Forest Fire Protection Assmt | $8.50 | $8.50 | $0.00 | $0.00 | $17.00 | $0.00 |
| 2025 | 11053 | FPLCA - DNR Landowner Contingency Assmt | $3.00 | $3.00 | $0.00 | $0.00 | $6.00 | $0.00 |
| 2025 | 11053 | JCCD - JC Conservation District | $2.73 | $2.73 | $0.00 | $0.00 | $5.46 | $0.00 |
| 2025 | 11053 | NWA - Noxious Weed Assessment | $2.90 | $2.90 | $0.00 | $0.00 | $5.80 | $0.00 |
| 2025 | 11053 | WAT - Clean Water District | $13.00 | $13.00 | $0.00 | $0.00 | $26.00 | $0.00 |
| 2025 | 11053 | FP ADMIN - FP ADMIN | $0.50 | $0.00 | $0.00 | $0.00 | $0.50 | $0.00 |
| 2025 | 11053 | TOTAL: | $372.04 | $371.46 | $0.00 | $0.00 | $743.50 | $0.00 |
|
| 2025 | 11053 | $372.04 | $371.46 | $0.00 | $0.00 | $743.50 | $0.00 |
Statement Details |
| 2024 | 11078 | STATE - STATE LEVY (SCHOOL) | $93.89 | $93.88 | $0.00 | $0.00 | $187.77 | $0.00 |
| 2024 | 11078 | COUNTY - COUNTY LEVIES (CE, DD, VET, MH) | $40.18 | $40.16 | $0.00 | $0.00 | $80.34 | $0.00 |
| 2024 | 11078 | CONSERVE - CONSERVATION FUTURES | $1.21 | $1.20 | $0.00 | $0.00 | $2.41 | $0.00 |
| 2024 | 11078 | COROADS - COUNTY ROADS (ROADS, DIV TO CE) | $32.33 | $32.32 | $0.00 | $0.00 | $64.65 | $0.00 |
| 2024 | 11078 | PORTPT - PORT DISTRICT | $16.60 | $16.59 | $0.00 | $0.00 | $33.19 | $0.00 |
| 2024 | 11078 | PUD1 - PUD #1 | $2.64 | $2.64 | $0.00 | $0.00 | $5.28 | $0.00 |
| 2024 | 11078 | LIB1 - LIBRARY DIST #1 | $12.51 | $12.50 | $0.00 | $0.00 | $25.01 | $0.00 |
| 2024 | 11078 | HD2 - HOSP DIST #2 | $2.35 | $2.34 | $0.00 | $0.00 | $4.69 | $0.00 |
| 2024 | 11078 | SD49 - SCHOOL DIST #49 | $41.93 | $41.92 | $0.00 | $0.00 | $83.85 | $0.00 |
| 2024 | 11078 | FD1 - FIRE DISTRICT #1 | $53.12 | $53.12 | $0.00 | $0.00 | $106.24 | $0.00 |
| 2024 | 11078 | EMS1 - FIRE DIST #1 EMS | $20.29 | $20.29 | $0.00 | $0.00 | $40.58 | $0.00 |
| 2024 | 11078 | FP - DNR Forest Fire Protection Assmt | $8.50 | $8.50 | $0.00 | $0.00 | $17.00 | $0.00 |
| 2024 | 11078 | FPLCA - DNR Landowner Contingency Assmt | $3.00 | $3.00 | $0.00 | $0.00 | $6.00 | $0.00 |
| 2024 | 11078 | JCCD - JC Conservation District | $2.73 | $2.73 | $0.00 | $0.00 | $5.46 | $0.00 |
| 2024 | 11078 | NWA - Noxious Weed Assessment | $2.90 | $2.90 | $0.00 | $0.00 | $5.80 | $0.00 |
| 2024 | 11078 | WAT - Clean Water District | $12.50 | $12.50 | $0.00 | $0.00 | $25.00 | $0.00 |
| 2024 | 11078 | FP ADMIN - FP ADMIN | $0.50 | $0.00 | $0.00 | $0.00 | $0.50 | $0.00 |
| 2024 | 11078 | TOTAL: | $347.18 | $346.59 | $0.00 | $0.00 | $693.77 | $0.00 |
|
| 2024 | 11078 | $347.18 | $346.59 | $0.00 | $0.00 | $693.77 | $0.00 |
Statement Details |
| 2023 | 11098 | STATE - STATE LEVY (SCHOOL) | $93.48 | $93.47 | $0.00 | $0.00 | $186.95 | $0.00 |
| 2023 | 11098 | COUNTY - COUNTY LEVIES (CE, DD, VET, MH) | $40.79 | $40.78 | $0.00 | $0.00 | $81.57 | $0.00 |
| 2023 | 11098 | CONSERVE - CONSERVATION FUTURES | $1.23 | $1.22 | $0.00 | $0.00 | $2.45 | $0.00 |
| 2023 | 11098 | COROADS - COUNTY ROADS (ROADS, DIV TO CE) | $33.01 | $33.00 | $0.00 | $0.00 | $66.01 | $0.00 |
| 2023 | 11098 | PORTPT - PORT DISTRICT | $17.19 | $17.17 | $0.00 | $0.00 | $34.36 | $0.00 |
| 2023 | 11098 | PUD1 - PUD #1 | $2.71 | $2.70 | $0.00 | $0.00 | $5.41 | $0.00 |
| 2023 | 11098 | LIB1 - LIBRARY DIST #1 | $12.77 | $12.77 | $0.00 | $0.00 | $25.54 | $0.00 |
| 2023 | 11098 | HD2 - HOSP DIST #2 | $2.38 | $2.38 | $0.00 | $0.00 | $4.76 | $0.00 |
| 2023 | 11098 | SD49 - SCHOOL DIST #49 | $43.70 | $43.69 | $0.00 | $0.00 | $87.39 | $0.00 |
| 2023 | 11098 | FD1 - FIRE DISTRICT #1 | $33.61 | $33.60 | $0.00 | $0.00 | $67.21 | $0.00 |
| 2023 | 11098 | EMS1 - FIRE DIST #1 EMS | $14.30 | $14.29 | $0.00 | $0.00 | $28.59 | $0.00 |
| 2023 | 11098 | FP - DNR Forest Fire Protection Assmt | $8.50 | $8.50 | $0.00 | $0.00 | $17.00 | $0.00 |
| 2023 | 11098 | FPLCA - DNR Landowner Contingency Assmt | $3.00 | $3.00 | $0.00 | $0.00 | $6.00 | $0.00 |
| 2023 | 11098 | JCCD - JC Conservation District | $2.73 | $2.73 | $0.00 | $0.00 | $5.46 | $0.00 |
| 2023 | 11098 | NWA - Noxious Weed Assessment | $2.90 | $2.90 | $0.00 | $0.00 | $5.80 | $0.00 |
| 2023 | 11098 | WAT - Clean Water District | $12.00 | $12.00 | $0.00 | $0.00 | $24.00 | $0.00 |
| 2023 | 11098 | FP ADMIN - FP ADMIN | $0.50 | $0.00 | $0.00 | $0.00 | $0.50 | $0.00 |
| 2023 | 11098 | TOTAL: | $324.80 | $324.20 | $0.00 | $0.00 | $649.00 | $0.00 |
|
| 2023 | 11098 | $324.80 | $324.20 | $0.00 | $0.00 | $649.00 | $0.00 |
Values
| (+) Improvement Homesite Value: | + | $0 | |
| (+) Improvement Non-Homesite Value: | + | $0 | |
| (+) Land Homesite Value: | + | $0 | |
| (+) Land Non-Homesite Value: | + | $94,333 | |
| (+) Curr Use (HS): | + | $0 | $0 |
| (+) Curr Use (NHS): | + | $0 | $0 |
| | | -------------------------- | |
| (=) Market Value: | = | $94,333 | |
| (–) Productivity Loss: | – | $0 | |
| | | -------------------------- | |
| (=) Subtotal: | = | $94,333 | |
| (+) Senior Appraised Value: | + | $0 | |
| (+) Non-Senior Appraised Value: | + | $94,333 | |
| | | -------------------------- | |
| (=) Total Appraised Value: | = | $94,333 | |
| (–) Senior Exemption Loss: | – | $0 | |
| (–) Exemption Loss: | – | $0 | |
| | | -------------------------- | |
| (=) Taxable Value: | = | $94,333 | |
Taxing Jurisdiction
| Owner: | PENINSULA HOUSING LLC | | |
| % Ownership: | 100.0000000000% | | |
| Total Value: | $94,333 | | |
| Tax Area: | 0211 - 1-49F1E1H2L1 |
| CE | COUNTY CURRENT EXPENSE | 0.9034619479 | $94,333 | $94,333 | $85.23 | | |
| CNTYDD | DEVELOPMENTAL DISABILITIES | 0.0052121823 | $94,333 | $94,333 | $0.49 | | |
| CNTYVET | VETERANS RELIEF | 0.0052777810 | $94,333 | $94,333 | $0.50 | | |
| MENTAL | MENTAL HEALTH | 0.0052121823 | $94,333 | $94,333 | $0.49 | | |
| ROADS | COUNTY ROADS | 0.7415066410 | $94,333 | $94,333 | $69.95 | | |
| ROADSCU | COUNTY ROADS TO CUR EXP | 0.0000000000 | $94,333 | $94,333 | $0.00 | | |
| HOSP2CASH | HOSP DIST #2 GENERAL | 0.0536075306 | $94,333 | $94,333 | $5.06 | | |
| SCH49CP | SCHOOL DIST #49 CAP PROJ | 0.6279093905 | $94,333 | $94,333 | $59.23 | | |
| SCH49MO | SCHOOL DIST #49 EP & O | 0.6376483602 | $94,333 | $94,333 | $60.15 | | |
| CONSERVE | CONSERVATION FUTURES | 0.0275621078 | $94,333 | $94,333 | $2.60 | | |
| EMS1 | FIRE DIST #1 EMS | 0.4679948282 | $94,333 | $94,333 | $44.15 | | |
| FD1 | FIRE DIST #1 GENERAL | 1.2171942929 | $94,333 | $94,333 | $114.82 | | |
| LIB1 | LIBRARY DIST #1 GENERAL | 0.2868827388 | $94,333 | $94,333 | $27.06 | | |
| PORTPT | PORT OF PT GENERAL | 0.1134941229 | $94,333 | $94,333 | $10.71 | | |
| PORTPTIDD | PORT OF PT IDD 2019 | 0.2577346692 | $94,333 | $94,333 | $24.31 | | |
| PUD1 | PUD #1 GENERAL | 0.0597888892 | $94,333 | $94,333 | $5.64 | | |
| STATE | STATE SCHOOL PART 1 | 1.4940692947 | $94,333 | $94,333 | $140.94 | | |
| STATE2 | STATE SCHOOL PART 2 | 0.8050170049 | $94,333 | $94,333 | $75.94 | | |
| | Total Tax Rate: | 7.7095739644 | | | | | |
| | | | | Taxes w/Current Exemptions: | $727.27 | | |
| | | | | Taxes w/o Exemptions: | $727.27 | | |
Improvement / Building
Sketch
| No sketches available for this property. |
Property Image
Land
| 1 | 4240-1375S | | 1.0000 | 43560.00 | 0.00 | 0.00 | 1.00 | $63,250 | $0 |
| 2 | 1577A | | 4.6500 | 202554.00 | 0.00 | 0.00 | 0.00 | $31,083 | $0 |
Roll Value History
| 2026 | N/A | N/A | N/A | N/A | N/A |
| 2025 | $0 | $94,333 | $0 | $94,333 | $94,333 |
| 2024 | $0 | $86,130 | $0 | $86,130 | $86,130 |
| 2023 | $0 | $81,156 | $0 | $81,156 | $81,156 |
| 2022 | $0 | $79,413 | $0 | $79,413 | $79,413 |
Deed and Sales History
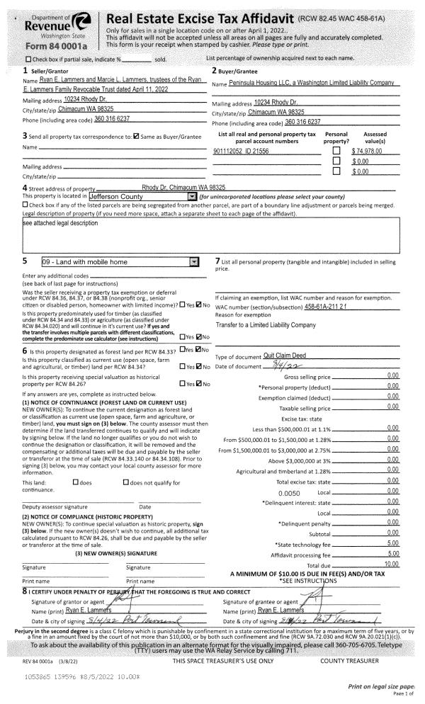
| 1 | 08/04/2022 | QCD | Quit Claim Deed | RYAN & MARCIE LAMMERS FAMILY REVOCABLE TRUST | PENINSULA HOUSING LLC | | | | 139596 | |
| 2 | 04/11/2022 | QCD | Quit Claim Deed | RYAN E & MARCIE L LAMMERS | RYAN & MARCIE LAMMERS FAMILY REVOCABLE TRUST | | | | 138895 | |
| 3 | 06/07/2021 | SWD | Statutory Warranty Deed | ROGER N BOTNEN | RYAN E & MARCIE L LAMMERS | | | $110,000.00 | 136955 | |
Payout Agreement
| No payout information available.. |