Property
Account |
| Property ID: | 21599 | Abbreviated Legal Description: | BRUCE B SETON SHORT PLAT LOT 3 SUBJ TO EASE/OPEN SPACE EASE AFN 467016 |
| Parcel # / Geo ID: | 901114030 | Agent Code: | |
| Type: | Real | | |
| Tax Area: | 0211 - 1-49F1E1H2L1 | Land Use Code | 18 |
| Open Space: | N | DFL | N |
| Historic Property: | N | Remodel Property: | N |
| Multi-Family Redevelopment: | N | | |
| Township: | 29N | Section: | 11 |
| Range: | 1W |
Location |
| Address: | | Mapsco: | 242/032 |
| Neighborhood: | S11 T29N R1W; ELKINS; LOPEMAN, COLLINS, GOEHNER, SCHADE S.P. | Map ID: | |
| Neighborhood CD: | 4240 |
Owner |
| Name: | MICHAEL P REGAN | Owner ID: | 25615 |
| Mailing Address: | 92 2ND AVE PORT HADLOCK, WA 98339-9673 | % Ownership: | 100.0000000000% |
| | | Exemptions: | |
Pay Tax Due
Select the appropriate checkbox next to the year to be paid. Multiple years may be selected.
*Convenience Fee not included
Taxes and Assessment Details
Property Tax Information as of
03/09/2026
Click on "Statement Details" to expand or collapse a tax statement.
* Please enter a valid date ** Please enter a valid date *
Statement Details |
| 2026 | 11072 | STATE - STATE LEVY (SCHOOL) | $275.51 | $275.51 | $0.00 | $0.00 | $0.00 | $551.02 |
| 2026 | 11072 | COUNTY - COUNTY LEVIES (CE, DD, VET, MH) | $110.16 | $110.13 | $0.00 | $0.00 | $0.00 | $220.29 |
| 2026 | 11072 | CONSERVE - CONSERVATION FUTURES | $3.31 | $3.30 | $0.00 | $0.00 | $0.00 | $6.61 |
| 2026 | 11072 | COROADS - COUNTY ROADS (ROADS, DIV TO CE) | $88.86 | $88.85 | $0.00 | $0.00 | $0.00 | $177.71 |
| 2026 | 11072 | PORTPT - PORT DISTRICT | $44.49 | $44.48 | $0.00 | $0.00 | $0.00 | $88.97 |
| 2026 | 11072 | PUD1 - PUD #1 | $7.17 | $7.16 | $0.00 | $0.00 | $0.00 | $14.33 |
| 2026 | 11072 | LIB1 - LIBRARY DIST #1 | $34.38 | $34.38 | $0.00 | $0.00 | $0.00 | $68.76 |
| 2026 | 11072 | HD2 - HOSP DIST #2 | $6.43 | $6.42 | $0.00 | $0.00 | $0.00 | $12.85 |
| 2026 | 11072 | SD49 - SCHOOL DIST #49 | $151.66 | $151.65 | $0.00 | $0.00 | $0.00 | $303.31 |
| 2026 | 11072 | FD1 - FIRE DISTRICT #1 | $145.86 | $145.86 | $0.00 | $0.00 | $0.00 | $291.72 |
| 2026 | 11072 | EMS1 - FIRE DIST #1 EMS | $56.08 | $56.08 | $0.00 | $0.00 | $0.00 | $112.16 |
| 2026 | 11072 | FP - DNR Forest Fire Protection Assmt | $8.50 | $8.50 | $0.00 | $0.00 | $0.00 | $17.00 |
| 2026 | 11072 | FPLCA - DNR Landowner Contingency Assmt | $3.00 | $3.00 | $0.00 | $0.00 | $0.00 | $6.00 |
| 2026 | 11072 | JCCD - JC Conservation District | $2.97 | $2.97 | $0.00 | $0.00 | $0.00 | $5.94 |
| 2026 | 11072 | NWA - Noxious Weed Assessment | $5.45 | $5.45 | $0.00 | $0.00 | $0.00 | $10.90 |
| 2026 | 11072 | OSS - On Site Septic | $23.10 | $23.10 | $0.00 | $0.00 | $0.00 | $46.20 |
| 2026 | 11072 | WAT - Clean Water District | $13.00 | $13.00 | $0.00 | $0.00 | $0.00 | $26.00 |
| 2026 | 11072 | FP ADMIN - FP ADMIN | $0.50 | $0.00 | $0.00 | $0.00 | $0.00 | $0.50 |
| 2026 | 11072 | TOTAL: | $980.43 | $979.84 | $0.00 | $0.00 | $0.00 | $1960.27 |
|
| 2026 | 11072 | $980.43 | $979.84 | $0.00 | $0.00 | $0.00 | $1960.27 |
Statement Details |
| 2025 | 11095 | STATE - STATE LEVY (SCHOOL) | $262.38 | $262.37 | $0.00 | $0.00 | $524.75 | $0.00 |
| 2025 | 11095 | COUNTY - COUNTY LEVIES (CE, DD, VET, MH) | $103.19 | $103.17 | $0.00 | $0.00 | $206.36 | $0.00 |
| 2025 | 11095 | CONSERVE - CONSERVATION FUTURES | $3.10 | $3.09 | $0.00 | $0.00 | $6.19 | $0.00 |
| 2025 | 11095 | COROADS - COUNTY ROADS (ROADS, DIV TO CE) | $82.67 | $82.65 | $0.00 | $0.00 | $165.32 | $0.00 |
| 2025 | 11095 | PORTPT - PORT DISTRICT | $42.10 | $42.10 | $0.00 | $0.00 | $84.20 | $0.00 |
| 2025 | 11095 | PUD1 - PUD #1 | $6.75 | $6.75 | $0.00 | $0.00 | $13.50 | $0.00 |
| 2025 | 11095 | LIB1 - LIBRARY DIST #1 | $31.98 | $31.98 | $0.00 | $0.00 | $63.96 | $0.00 |
| 2025 | 11095 | HD2 - HOSP DIST #2 | $6.02 | $6.02 | $0.00 | $0.00 | $12.04 | $0.00 |
| 2025 | 11095 | SD49 - SCHOOL DIST #49 | $140.62 | $140.61 | $0.00 | $0.00 | $281.23 | $0.00 |
| 2025 | 11095 | FD1 - FIRE DISTRICT #1 | $136.16 | $136.15 | $0.00 | $0.00 | $272.31 | $0.00 |
| 2025 | 11095 | EMS1 - FIRE DIST #1 EMS | $52.37 | $52.37 | $0.00 | $0.00 | $104.74 | $0.00 |
| 2025 | 11095 | FP - DNR Forest Fire Protection Assmt | $8.50 | $8.50 | $0.00 | $0.00 | $17.00 | $0.00 |
| 2025 | 11095 | FPLCA - DNR Landowner Contingency Assmt | $3.00 | $3.00 | $0.00 | $0.00 | $6.00 | $0.00 |
| 2025 | 11095 | JCCD - JC Conservation District | $3.10 | $3.10 | $0.00 | $0.00 | $6.20 | $0.00 |
| 2025 | 11095 | NWA - Noxious Weed Assessment | $3.80 | $3.80 | $0.00 | $0.00 | $7.60 | $0.00 |
| 2025 | 11095 | OSS - On Site Septic | $21.50 | $21.50 | $0.00 | $0.00 | $43.00 | $0.00 |
| 2025 | 11095 | WAT - Clean Water District | $13.00 | $13.00 | $0.00 | $0.00 | $26.00 | $0.00 |
| 2025 | 11095 | FP ADMIN - FP ADMIN | $0.50 | $0.00 | $0.00 | $0.00 | $0.50 | $0.00 |
| 2025 | 11095 | TOTAL: | $920.74 | $920.16 | $0.00 | $0.00 | $1840.90 | $0.00 |
|
| 2025 | 11095 | $920.74 | $920.16 | $0.00 | $0.00 | $1840.90 | $0.00 |
Statement Details |
| 2024 | 11120 | STATE - STATE LEVY (SCHOOL) | $234.69 | $234.67 | $0.00 | $0.00 | $469.36 | $0.00 |
| 2024 | 11120 | COUNTY - COUNTY LEVIES (CE, DD, VET, MH) | $100.44 | $100.40 | $0.00 | $0.00 | $200.84 | $0.00 |
| 2024 | 11120 | CONSERVE - CONSERVATION FUTURES | $3.01 | $3.01 | $0.00 | $0.00 | $6.02 | $0.00 |
| 2024 | 11120 | COROADS - COUNTY ROADS (ROADS, DIV TO CE) | $80.82 | $80.80 | $0.00 | $0.00 | $161.62 | $0.00 |
| 2024 | 11120 | PORTPT - PORT DISTRICT | $41.48 | $41.48 | $0.00 | $0.00 | $82.96 | $0.00 |
| 2024 | 11120 | PUD1 - PUD #1 | $6.60 | $6.59 | $0.00 | $0.00 | $13.19 | $0.00 |
| 2024 | 11120 | LIB1 - LIBRARY DIST #1 | $31.27 | $31.26 | $0.00 | $0.00 | $62.53 | $0.00 |
| 2024 | 11120 | HD2 - HOSP DIST #2 | $5.86 | $5.86 | $0.00 | $0.00 | $11.72 | $0.00 |
| 2024 | 11120 | SD49 - SCHOOL DIST #49 | $104.80 | $104.79 | $0.00 | $0.00 | $209.59 | $0.00 |
| 2024 | 11120 | FD1 - FIRE DISTRICT #1 | $132.78 | $132.78 | $0.00 | $0.00 | $265.56 | $0.00 |
| 2024 | 11120 | EMS1 - FIRE DIST #1 EMS | $50.72 | $50.72 | $0.00 | $0.00 | $101.44 | $0.00 |
| 2024 | 11120 | FP - DNR Forest Fire Protection Assmt | $8.50 | $8.50 | $0.00 | $0.00 | $17.00 | $0.00 |
| 2024 | 11120 | FPLCA - DNR Landowner Contingency Assmt | $3.00 | $3.00 | $0.00 | $0.00 | $6.00 | $0.00 |
| 2024 | 11120 | JCCD - JC Conservation District | $3.10 | $3.10 | $0.00 | $0.00 | $6.20 | $0.00 |
| 2024 | 11120 | NWA - Noxious Weed Assessment | $3.80 | $3.80 | $0.00 | $0.00 | $7.60 | $0.00 |
| 2024 | 11120 | OSS - On Site Septic | $21.00 | $21.00 | $0.00 | $0.00 | $42.00 | $0.00 |
| 2024 | 11120 | WAT - Clean Water District | $12.50 | $12.50 | $0.00 | $0.00 | $25.00 | $0.00 |
| 2024 | 11120 | FP ADMIN - FP ADMIN | $0.50 | $0.00 | $0.00 | $0.00 | $0.50 | $0.00 |
| 2024 | 11120 | TOTAL: | $844.87 | $844.26 | $0.00 | $0.00 | $1689.13 | $0.00 |
|
| 2024 | 11120 | $844.87 | $844.26 | $0.00 | $0.00 | $1689.13 | $0.00 |
Statement Details |
| 2023 | 11140 | STATE - STATE LEVY (SCHOOL) | $219.80 | $219.78 | $0.00 | $0.00 | $439.58 | $0.00 |
| 2023 | 11140 | COUNTY - COUNTY LEVIES (CE, DD, VET, MH) | $95.92 | $95.90 | $0.00 | $0.00 | $191.82 | $0.00 |
| 2023 | 11140 | CONSERVE - CONSERVATION FUTURES | $2.88 | $2.87 | $0.00 | $0.00 | $5.75 | $0.00 |
| 2023 | 11140 | COROADS - COUNTY ROADS (ROADS, DIV TO CE) | $77.60 | $77.60 | $0.00 | $0.00 | $155.20 | $0.00 |
| 2023 | 11140 | PORTPT - PORT DISTRICT | $40.40 | $40.40 | $0.00 | $0.00 | $80.80 | $0.00 |
| 2023 | 11140 | PUD1 - PUD #1 | $6.36 | $6.36 | $0.00 | $0.00 | $12.72 | $0.00 |
| 2023 | 11140 | LIB1 - LIBRARY DIST #1 | $30.02 | $30.02 | $0.00 | $0.00 | $60.04 | $0.00 |
| 2023 | 11140 | HD2 - HOSP DIST #2 | $5.60 | $5.60 | $0.00 | $0.00 | $11.20 | $0.00 |
| 2023 | 11140 | SD49 - SCHOOL DIST #49 | $102.75 | $102.73 | $0.00 | $0.00 | $205.48 | $0.00 |
| 2023 | 11140 | FD1 - FIRE DISTRICT #1 | $79.01 | $79.01 | $0.00 | $0.00 | $158.02 | $0.00 |
| 2023 | 11140 | EMS1 - FIRE DIST #1 EMS | $33.61 | $33.61 | $0.00 | $0.00 | $67.22 | $0.00 |
| 2023 | 11140 | FP - DNR Forest Fire Protection Assmt | $8.50 | $8.50 | $0.00 | $0.00 | $17.00 | $0.00 |
| 2023 | 11140 | FPLCA - DNR Landowner Contingency Assmt | $3.00 | $3.00 | $0.00 | $0.00 | $6.00 | $0.00 |
| 2023 | 11140 | JCCD - JC Conservation District | $3.10 | $3.10 | $0.00 | $0.00 | $6.20 | $0.00 |
| 2023 | 11140 | NWA - Noxious Weed Assessment | $3.80 | $3.80 | $0.00 | $0.00 | $7.60 | $0.00 |
| 2023 | 11140 | OSS - On Site Septic | $20.50 | $20.50 | $0.00 | $0.00 | $41.00 | $0.00 |
| 2023 | 11140 | WAT - Clean Water District | $12.00 | $12.00 | $0.00 | $0.00 | $24.00 | $0.00 |
| 2023 | 11140 | FP ADMIN - FP ADMIN | $0.50 | $0.00 | $0.00 | $0.00 | $0.50 | $0.00 |
| 2023 | 11140 | TOTAL: | $745.35 | $744.78 | $0.00 | $0.00 | $1490.13 | $0.00 |
|
| 2023 | 11140 | $745.35 | $744.78 | $0.00 | $0.00 | $1490.13 | $0.00 |
Values
| (+) Improvement Homesite Value: | + | $0 | |
| (+) Improvement Non-Homesite Value: | + | $0 | |
| (+) Land Homesite Value: | + | $0 | |
| (+) Land Non-Homesite Value: | + | $239,667 | |
| (+) Curr Use (HS): | + | $0 | $0 |
| (+) Curr Use (NHS): | + | $0 | $0 |
| | | -------------------------- | |
| (=) Market Value: | = | $239,667 | |
| (–) Productivity Loss: | – | $0 | |
| | | -------------------------- | |
| (=) Subtotal: | = | $239,667 | |
| (+) Senior Appraised Value: | + | $0 | |
| (+) Non-Senior Appraised Value: | + | $239,667 | |
| | | -------------------------- | |
| (=) Total Appraised Value: | = | $239,667 | |
| (–) Senior Exemption Loss: | – | $0 | |
| (–) Exemption Loss: | – | $0 | |
| | | -------------------------- | |
| (=) Taxable Value: | = | $239,667 | |
Taxing Jurisdiction
| Owner: | MICHAEL P REGAN | | |
| % Ownership: | 100.0000000000% | | |
| Total Value: | $239,667 | | |
| Tax Area: | 0211 - 1-49F1E1H2L1 |
| CE | COUNTY CURRENT EXPENSE | 0.9034619479 | $239,667 | $239,667 | $216.53 | | |
| CNTYDD | DEVELOPMENTAL DISABILITIES | 0.0052121823 | $239,667 | $239,667 | $1.25 | | |
| CNTYVET | VETERANS RELIEF | 0.0052777810 | $239,667 | $239,667 | $1.26 | | |
| MENTAL | MENTAL HEALTH | 0.0052121823 | $239,667 | $239,667 | $1.25 | | |
| ROADS | COUNTY ROADS | 0.7415066410 | $239,667 | $239,667 | $177.71 | | |
| ROADSCU | COUNTY ROADS TO CUR EXP | 0.0000000000 | $239,667 | $239,667 | $0.00 | | |
| HOSP2CASH | HOSP DIST #2 GENERAL | 0.0536075306 | $239,667 | $239,667 | $12.85 | | |
| SCH49CP | SCHOOL DIST #49 CAP PROJ | 0.6279093905 | $239,667 | $239,667 | $150.49 | | |
| SCH49MO | SCHOOL DIST #49 EP & O | 0.6376483602 | $239,667 | $239,667 | $152.82 | | |
| CONSERVE | CONSERVATION FUTURES | 0.0275621078 | $239,667 | $239,667 | $6.61 | | |
| EMS1 | FIRE DIST #1 EMS | 0.4679948282 | $239,667 | $239,667 | $112.16 | | |
| FD1 | FIRE DIST #1 GENERAL | 1.2171942929 | $239,667 | $239,667 | $291.72 | | |
| LIB1 | LIBRARY DIST #1 GENERAL | 0.2868827388 | $239,667 | $239,667 | $68.76 | | |
| PORTPT | PORT OF PT GENERAL | 0.1134941229 | $239,667 | $239,667 | $27.20 | | |
| PORTPTIDD | PORT OF PT IDD 2019 | 0.2577346692 | $239,667 | $239,667 | $61.77 | | |
| PUD1 | PUD #1 GENERAL | 0.0597888892 | $239,667 | $239,667 | $14.33 | | |
| STATE | STATE SCHOOL PART 1 | 1.4940692947 | $239,667 | $239,667 | $358.08 | | |
| STATE2 | STATE SCHOOL PART 2 | 0.8050170049 | $239,667 | $239,667 | $192.94 | | |
| | Total Tax Rate: | 7.7095739644 | | | | | |
| | | | | Taxes w/Current Exemptions: | $1,847.73 | | |
| | | | | Taxes w/o Exemptions: | $1,847.73 | | |
Improvement / Building
Sketch
| No sketches available for this property. |
Property Image
Land
| 1 | 4240-1375S | | 2.0000 | 87120.00 | 0.00 | 0.00 | 2.00 | $138,000 | $0 |
| 2 | 1673A | | 9.4300 | 410770.80 | 0.00 | 0.00 | 0.00 | $101,667 | $0 |
Roll Value History
| 2026 | N/A | N/A | N/A | N/A | N/A |
| 2025 | $0 | $239,667 | $0 | $239,667 | $239,667 |
| 2024 | $0 | $218,826 | $0 | $218,826 | $218,826 |
| 2023 | $0 | $202,870 | $0 | $202,870 | $202,870 |
| 2022 | $0 | $186,725 | $0 | $186,725 | $186,725 |
Deed and Sales History
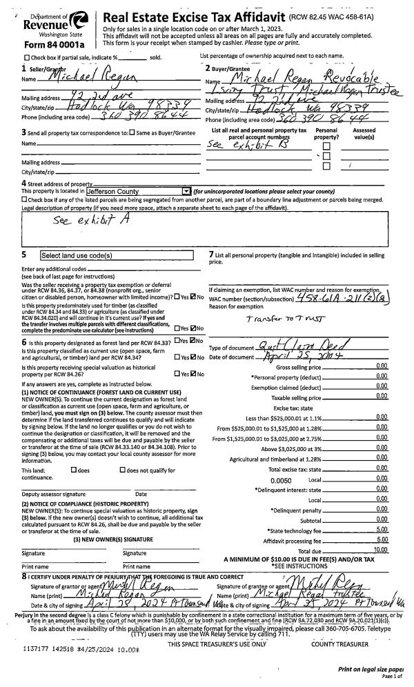
| 1 | 11/07/2006 | QCD | Quit Claim Deed | LI, LI YING | REGAN, MICHAEL | 0 | 0 | $0.00 | 108023 | 0 |
| 2 | 03/17/2003 | QCD | Quit Claim Deed | REGAN, MICHAEL | SETON, SANDRA/TRUST | 0 | 0 | $0.00 | 96848 | 0 |
| 3 | 02/28/2003 | SWD | Statutory Warranty Deed | SANDRA I SETON TRUSTEE | REGAN, MICHAEL | 0 | 0 | $54,500.00 | 96847 | 0 |
| 4 | 03/01/2000 | QCD | Quit Claim Deed | SETON, SANDRA | SETON, SANDRA/TRUST | 0 | 0 | $0.00 | 89209 | 0 |
| 5 | 04/15/1999 | QCD | Quit Claim Deed | SETON, BRUCE B | SETON, SANDRA I | 0 | 0 | $0.00 | 87044 | 0 |
Payout Agreement
| No payout information available.. |