Property
Account |
| Property ID: | 21601 | Abbreviated Legal Description: | S12 T29 R1W NENE(LS TX 25 & R/W) |
| Parcel # / Geo ID: | 901121001 | Agent Code: | |
| Type: | Real | | |
| Tax Area: | 0202 - 1-49E1H2L1 | Land Use Code | 88 |
| Open Space: | N | DFL | Y |
| Historic Property: | N | Remodel Property: | N |
| Multi-Family Redevelopment: | N | | |
| Township: | 29N | Section: | 12 |
| Range: | 1W |
Location |
| Address: | | Mapsco: | 210/008 |
| Neighborhood: | S12 T29N R1W (EXCEPT TAX LOTS BY ALCOHOL PLANT) | Map ID: | |
| Neighborhood CD: | 4250 |
Owner |
| Name: | TIM & KELLI JOHNSON FAMILY TRUST | Owner ID: | 109903 |
| Mailing Address: | TIMOTHY A & KELLI F JOHNSON TRUSTEES 200 HILDA ST CHIMACUM, WA 98325-9727 | % Ownership: | 100.0000000000% |
| | | Exemptions: | |
Pay Tax Due
Select the appropriate checkbox next to the year to be paid. Multiple years may be selected.
*Convenience Fee not included
Taxes and Assessment Details
Property Tax Information as of
03/12/2026
Click on "Statement Details" to expand or collapse a tax statement.
* Please enter a valid date ** Please enter a valid date *
Statement Details |
| 2026 | 11074 | STATE - STATE LEVY (SCHOOL) | $4.88 | $4.86 | $0.00 | $0.00 | $0.00 | $9.74 |
| 2026 | 11074 | COUNTY - COUNTY LEVIES (CE, DD, VET, MH) | $1.95 | $1.94 | $0.00 | $0.00 | $0.00 | $3.89 |
| 2026 | 11074 | CONSERVE - CONSERVATION FUTURES | $0.06 | $0.06 | $0.00 | $0.00 | $0.00 | $0.12 |
| 2026 | 11074 | COROADS - COUNTY ROADS (ROADS, DIV TO CE) | $1.57 | $1.57 | $0.00 | $0.00 | $0.00 | $3.14 |
| 2026 | 11074 | PORTPT - PORT DISTRICT | $0.79 | $0.78 | $0.00 | $0.00 | $0.00 | $1.57 |
| 2026 | 11074 | PUD1 - PUD #1 | $0.13 | $0.12 | $0.00 | $0.00 | $0.00 | $0.25 |
| 2026 | 11074 | LIB1 - LIBRARY DIST #1 | $0.61 | $0.61 | $0.00 | $0.00 | $0.00 | $1.22 |
| 2026 | 11074 | HD2 - HOSP DIST #2 | $0.12 | $0.11 | $0.00 | $0.00 | $0.00 | $0.23 |
| 2026 | 11074 | SD49 - SCHOOL DIST #49 | $2.68 | $2.68 | $0.00 | $0.00 | $0.00 | $5.36 |
| 2026 | 11074 | EMS1 - FIRE DIST #1 EMS | $0.99 | $0.99 | $0.00 | $0.00 | $0.00 | $1.98 |
| 2026 | 11074 | FP - DNR Forest Fire Protection Assmt | $8.50 | $8.50 | $0.00 | $0.00 | $0.00 | $17.00 |
| 2026 | 11074 | FPLCA - DNR Landowner Contingency Assmt | $3.00 | $3.00 | $0.00 | $0.00 | $0.00 | $6.00 |
| 2026 | 11074 | JCCD - JC Conservation District | $1.69 | $1.69 | $0.00 | $0.00 | $0.00 | $3.38 |
| 2026 | 11074 | NWA - Noxious Weed Assessment | $1.16 | $1.15 | $0.00 | $0.00 | $0.00 | $2.31 |
| 2026 | 11074 | FP ADMIN - FP ADMIN | $0.50 | $0.00 | $0.00 | $0.00 | $0.00 | $0.50 |
| 2026 | 11074 | TOTAL: | $28.63 | $28.06 | $0.00 | $0.00 | $0.00 | $56.69 |
|
| 2026 | 11074 | $28.63 | $28.06 | $0.00 | $0.00 | $0.00 | $56.69 |
Statement Details |
| 2025 | 11097 | STATE - STATE LEVY (SCHOOL) | $5.11 | $5.10 | $0.00 | $0.00 | $10.21 | $0.00 |
| 2025 | 11097 | COUNTY - COUNTY LEVIES (CE, DD, VET, MH) | $2.01 | $2.00 | $0.00 | $0.00 | $4.01 | $0.00 |
| 2025 | 11097 | CONSERVE - CONSERVATION FUTURES | $0.06 | $0.06 | $0.00 | $0.00 | $0.12 | $0.00 |
| 2025 | 11097 | COROADS - COUNTY ROADS (ROADS, DIV TO CE) | $1.61 | $1.60 | $0.00 | $0.00 | $3.21 | $0.00 |
| 2025 | 11097 | PORTPT - PORT DISTRICT | $0.82 | $0.82 | $0.00 | $0.00 | $1.64 | $0.00 |
| 2025 | 11097 | PUD1 - PUD #1 | $0.13 | $0.13 | $0.00 | $0.00 | $0.26 | $0.00 |
| 2025 | 11097 | LIB1 - LIBRARY DIST #1 | $0.62 | $0.62 | $0.00 | $0.00 | $1.24 | $0.00 |
| 2025 | 11097 | HD2 - HOSP DIST #2 | $0.12 | $0.11 | $0.00 | $0.00 | $0.23 | $0.00 |
| 2025 | 11097 | SD49 - SCHOOL DIST #49 | $2.74 | $2.74 | $0.00 | $0.00 | $5.48 | $0.00 |
| 2025 | 11097 | EMS1 - FIRE DIST #1 EMS | $1.02 | $1.02 | $0.00 | $0.00 | $2.04 | $0.00 |
| 2025 | 11097 | FP - DNR Forest Fire Protection Assmt | $8.50 | $8.50 | $0.00 | $0.00 | $17.00 | $0.00 |
| 2025 | 11097 | FPLCA - DNR Landowner Contingency Assmt | $3.00 | $3.00 | $0.00 | $0.00 | $6.00 | $0.00 |
| 2025 | 11097 | JCCD - JC Conservation District | $1.69 | $1.69 | $0.00 | $0.00 | $3.38 | $0.00 |
| 2025 | 11097 | NWA - Noxious Weed Assessment | $0.79 | $0.78 | $0.00 | $0.00 | $1.57 | $0.00 |
| 2025 | 11097 | FP ADMIN - FP ADMIN | $0.50 | $0.00 | $0.00 | $0.00 | $0.50 | $0.00 |
| 2025 | 11097 | TOTAL: | $28.72 | $28.17 | $0.00 | $0.00 | $56.89 | $0.00 |
|
| 2025 | 11097 | $28.72 | $28.17 | $0.00 | $0.00 | $56.89 | $0.00 |
Statement Details |
| 2024 | 11122 | STATE - STATE LEVY (SCHOOL) | $4.86 | $4.85 | $0.00 | $0.00 | $9.71 | $0.00 |
| 2024 | 11122 | COUNTY - COUNTY LEVIES (CE, DD, VET, MH) | $2.07 | $2.07 | $0.00 | $0.00 | $4.14 | $0.00 |
| 2024 | 11122 | CONSERVE - CONSERVATION FUTURES | $0.06 | $0.06 | $0.00 | $0.00 | $0.12 | $0.00 |
| 2024 | 11122 | COROADS - COUNTY ROADS (ROADS, DIV TO CE) | $1.68 | $1.67 | $0.00 | $0.00 | $3.35 | $0.00 |
| 2024 | 11122 | PORTPT - PORT DISTRICT | $0.86 | $0.85 | $0.00 | $0.00 | $1.71 | $0.00 |
| 2024 | 11122 | PUD1 - PUD #1 | $0.14 | $0.13 | $0.00 | $0.00 | $0.27 | $0.00 |
| 2024 | 11122 | LIB1 - LIBRARY DIST #1 | $0.65 | $0.64 | $0.00 | $0.00 | $1.29 | $0.00 |
| 2024 | 11122 | HD2 - HOSP DIST #2 | $0.12 | $0.12 | $0.00 | $0.00 | $0.24 | $0.00 |
| 2024 | 11122 | SD49 - SCHOOL DIST #49 | $2.17 | $2.17 | $0.00 | $0.00 | $4.34 | $0.00 |
| 2024 | 11122 | EMS1 - FIRE DIST #1 EMS | $1.05 | $1.05 | $0.00 | $0.00 | $2.10 | $0.00 |
| 2024 | 11122 | FP - DNR Forest Fire Protection Assmt | $8.50 | $8.50 | $0.00 | $0.00 | $17.00 | $0.00 |
| 2024 | 11122 | FPLCA - DNR Landowner Contingency Assmt | $3.00 | $3.00 | $0.00 | $0.00 | $6.00 | $0.00 |
| 2024 | 11122 | JCCD - JC Conservation District | $1.69 | $1.69 | $0.00 | $0.00 | $3.38 | $0.00 |
| 2024 | 11122 | NWA - Noxious Weed Assessment | $0.79 | $0.78 | $0.00 | $0.00 | $1.57 | $0.00 |
| 2024 | 11122 | FP ADMIN - FP ADMIN | $0.50 | $0.00 | $0.00 | $0.00 | $0.50 | $0.00 |
| 2024 | 11122 | TOTAL: | $28.14 | $27.58 | $0.00 | $0.00 | $55.72 | $0.00 |
|
| 2024 | 11122 | $28.14 | $27.58 | $0.00 | $0.00 | $55.72 | $0.00 |
Statement Details |
| 2023 | 11142 | STATE - STATE LEVY (SCHOOL) | $9.62 | $0.00 | $0.00 | $0.00 | $9.62 | $0.00 |
| 2023 | 11142 | COUNTY - COUNTY LEVIES (CE, DD, VET, MH) | $4.19 | $0.00 | $0.00 | $0.00 | $4.19 | $0.00 |
| 2023 | 11142 | CONSERVE - CONSERVATION FUTURES | $0.13 | $0.00 | $0.00 | $0.00 | $0.13 | $0.00 |
| 2023 | 11142 | COROADS - COUNTY ROADS (ROADS, DIV TO CE) | $3.40 | $0.00 | $0.00 | $0.00 | $3.40 | $0.00 |
| 2023 | 11142 | PORTPT - PORT DISTRICT | $1.77 | $0.00 | $0.00 | $0.00 | $1.77 | $0.00 |
| 2023 | 11142 | PUD1 - PUD #1 | $0.28 | $0.00 | $0.00 | $0.00 | $0.28 | $0.00 |
| 2023 | 11142 | LIB1 - LIBRARY DIST #1 | $1.31 | $0.00 | $0.00 | $0.00 | $1.31 | $0.00 |
| 2023 | 11142 | HD2 - HOSP DIST #2 | $0.25 | $0.00 | $0.00 | $0.00 | $0.25 | $0.00 |
| 2023 | 11142 | SD49 - SCHOOL DIST #49 | $4.50 | $0.00 | $0.00 | $0.00 | $4.50 | $0.00 |
| 2023 | 11142 | EMS1 - FIRE DIST #1 EMS | $1.47 | $0.00 | $0.00 | $0.00 | $1.47 | $0.00 |
| 2023 | 11142 | FPLCA - DNR Landowner Contingency Assmt | $6.00 | $0.00 | $0.00 | $0.00 | $6.00 | $0.00 |
| 2023 | 11142 | NWA - Noxious Weed Assessment | $1.57 | $0.00 | $0.00 | $0.00 | $1.57 | $0.00 |
| 2023 | 11142 | TOTAL: | $34.49 | $0.00 | $0.00 | $0.00 | $34.49 | $0.00 |
|
| 2023 | 11142 | $34.49 | $0.00 | $0.00 | $0.00 | $34.49 | $0.00 |
Values
| (+) Improvement Homesite Value: | + | $0 | |
| (+) Improvement Non-Homesite Value: | + | $0 | |
| (+) Land Homesite Value: | + | $0 | |
| (+) Land Non-Homesite Value: | + | $0 | |
| (+) Curr Use (HS): | + | $0 | $0 |
| (+) Curr Use (NHS): | + | $320,197 | $4,238 |
| | | -------------------------- | |
| (=) Market Value: | = | $320,197 | |
| (–) Productivity Loss: | – | $315,959 | |
| | | -------------------------- | |
| (=) Subtotal: | = | $4,238 | |
| (+) Senior Appraised Value: | + | $0 | |
| (+) Non-Senior Appraised Value: | + | $4,238 | |
| | | -------------------------- | |
| (=) Total Appraised Value: | = | $4,238 | |
| (–) Senior Exemption Loss: | – | $0 | |
| (–) Exemption Loss: | – | $0 | |
| | | -------------------------- | |
| (=) Taxable Value: | = | $4,238 | |
Taxing Jurisdiction
| Owner: | TIM & KELLI JOHNSON FAMILY TRUST | | |
| % Ownership: | 100.0000000000% | | |
| Total Value: | $320,197 | | |
| Tax Area: | 0202 - 1-49E1H2L1 |
| CE | COUNTY CURRENT EXPENSE | 0.9034619479 | $4,238 | $4,238 | $3.83 | | |
| CNTYDD | DEVELOPMENTAL DISABILITIES | 0.0052121823 | $4,238 | $4,238 | $0.02 | | |
| CNTYVET | VETERANS RELIEF | 0.0052777810 | $4,238 | $4,238 | $0.02 | | |
| MENTAL | MENTAL HEALTH | 0.0052121823 | $4,238 | $4,238 | $0.02 | | |
| ROADS | COUNTY ROADS | 0.7415066410 | $4,238 | $4,238 | $3.14 | | |
| ROADSCU | COUNTY ROADS TO CUR EXP | 0.0000000000 | $4,238 | $4,238 | $0.00 | | |
| HOSP2CASH | HOSP DIST #2 GENERAL | 0.0536075306 | $4,238 | $4,238 | $0.23 | | |
| SCH49CP | SCHOOL DIST #49 CAP PROJ | 0.6279093905 | $4,238 | $4,238 | $2.66 | | |
| SCH49MO | SCHOOL DIST #49 EP & O | 0.6376483602 | $4,238 | $4,238 | $2.70 | | |
| CONSERVE | CONSERVATION FUTURES | 0.0275621078 | $4,238 | $4,238 | $0.12 | | |
| EMS1 | FIRE DIST #1 EMS | 0.4679948282 | $4,238 | $4,238 | $1.98 | | |
| LIB1 | LIBRARY DIST #1 GENERAL | 0.2868827388 | $4,238 | $4,238 | $1.22 | | |
| PORTPT | PORT OF PT GENERAL | 0.1134941229 | $4,238 | $4,238 | $0.48 | | |
| PORTPTIDD | PORT OF PT IDD 2019 | 0.2577346692 | $4,238 | $4,238 | $1.09 | | |
| PUD1 | PUD #1 GENERAL | 0.0597888892 | $4,238 | $4,238 | $0.25 | | |
| STATE | STATE SCHOOL PART 1 | 1.4940692947 | $4,238 | $4,238 | $6.33 | | |
| STATE2 | STATE SCHOOL PART 2 | 0.8050170049 | $4,238 | $4,238 | $3.41 | | |
| | Total Tax Rate: | 6.4923796715 | | | | | |
| | | | | Taxes w/Current Exemptions: | $27.50 | | |
| | | | | Taxes w/o Exemptions: | $27.50 | | |
Improvement / Building
Sketch
| No sketches available for this property. |
Property Image
Land
| 1 | 1877A | | 8.0600 | 351093.60 | 0.00 | 0.00 | 0.00 | $46,547 | $137 |
| 2 | 1877A | | 10.4100 | 453459.60 | 0.00 | 0.00 | 0.00 | $60,118 | $1,218 |
| 3 | 1877A | | 18.8800 | 822412.80 | 0.00 | 0.00 | 0.00 | $109,032 | $2,738 |
| 4 | 4250-1373S | | 1.0000 | 43560.00 | 0.00 | 0.00 | 1.00 | $104,500 | $145 |
Roll Value History
| 2026 | N/A | N/A | N/A | N/A | N/A |
| 2025 | $0 | $320,197 | $4,238 | $4,238 | $4,238 |
| 2024 | $0 | $305,643 | $4,257 | $4,257 | $4,257 |
| 2023 | $0 | $281,750 | $4,197 | $4,197 | $4,197 |
| 2022 | $0 | $319,100 | $4,086 | $4,086 | $4,086 |
Deed and Sales History
| 1 | 10/19/2023 | QCD | Quit Claim Deed | TIMOTHY A & KELLI JOHNSON | TIM & KELLI JOHNSON FAMILY TRUST | | | | 141787 | |
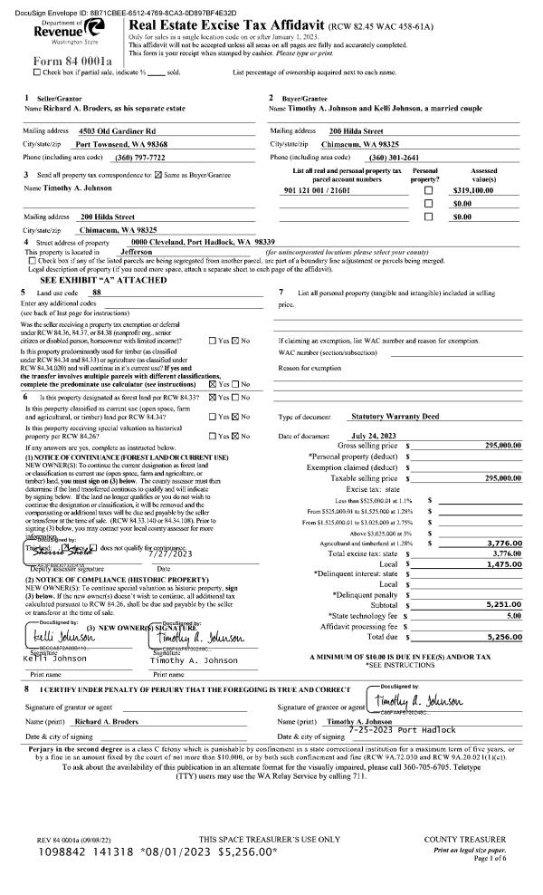
| 2 | 07/24/2023 | SWD | Statutory Warranty Deed | RICHARD A BRODERS | TIMOTHY A & KELLI JOHNSON | | | $295,000.00 | 141318 | |
| 3 | 06/23/2009 | QCD | Quit Claim Deed | BRODERS, RAMON/BONNIE | BRODERS, RICHARD A | | | $0.00 | 113151 | 0 |
| 4 | 06/20/2009 | QCD | Quit Claim Deed | BRODERS FAMILY ASSOCIATES | BRODERS, RAMON/RICHARD/BONNIE | | | $0.00 | 113150 | 0 |
| 5 | 10/02/2002 | QCD | Quit Claim Deed | BRODERS FAMILY ASSOCIATIE | CMR PARTNERSHIP | 0 | 0 | $0.00 | 95708 | 0 |
Payout Agreement
| No payout information available.. |