Property
Account |
| Property ID: | 21629 | Abbreviated Legal Description: | S13 T29 R1W NW SW(E1/2)(S1/2 S1/2) |
| Parcel # / Geo ID: | 901133002 | Agent Code: | |
| Type: | Real | | |
| Tax Area: | 0211 - 1-49F1E1H2L1 | Land Use Code | 91 |
| Open Space: | N | DFL | N |
| Historic Property: | N | Remodel Property: | N |
| Multi-Family Redevelopment: | N | | |
| Township: | 29N | Section: | 13 |
| Range: | 1W |
Location |
| Address: | | Mapsco: | 210/063 |
| Neighborhood: | S13, S24, & S25 T29N R1W; VIEW RIDGE LARGE LOT SUBDIVISION | Map ID: | |
| Neighborhood CD: | 4260 |
Owner |
| Name: | RIGGLE RIDGE RANCH LLC | Owner ID: | 101153 |
| Mailing Address: | 8105 BEAVER VALLEY RD CHIMACUM, WA 98325-8732 | % Ownership: | 100.0000000000% |
| | | Exemptions: | |
Pay Tax Due
Select the appropriate checkbox next to the year to be paid. Multiple years may be selected.
*Convenience Fee not included
Taxes and Assessment Details
Property Tax Information as of
03/11/2026
Click on "Statement Details" to expand or collapse a tax statement.
* Please enter a valid date ** Please enter a valid date *
Statement Details |
| 2026 | 11102 | STATE - STATE LEVY (SCHOOL) | $32.14 | $32.13 | $0.00 | $0.00 | $0.00 | $64.27 |
| 2026 | 11102 | COUNTY - COUNTY LEVIES (CE, DD, VET, MH) | $12.87 | $12.84 | $0.00 | $0.00 | $0.00 | $25.71 |
| 2026 | 11102 | CONSERVE - CONSERVATION FUTURES | $0.39 | $0.38 | $0.00 | $0.00 | $0.00 | $0.77 |
| 2026 | 11102 | COROADS - COUNTY ROADS (ROADS, DIV TO CE) | $10.37 | $10.36 | $0.00 | $0.00 | $0.00 | $20.73 |
| 2026 | 11102 | PORTPT - PORT DISTRICT | $5.19 | $5.18 | $0.00 | $0.00 | $0.00 | $10.37 |
| 2026 | 11102 | PUD1 - PUD #1 | $0.84 | $0.83 | $0.00 | $0.00 | $0.00 | $1.67 |
| 2026 | 11102 | LIB1 - LIBRARY DIST #1 | $4.01 | $4.01 | $0.00 | $0.00 | $0.00 | $8.02 |
| 2026 | 11102 | HD2 - HOSP DIST #2 | $0.75 | $0.75 | $0.00 | $0.00 | $0.00 | $1.50 |
| 2026 | 11102 | SD49 - SCHOOL DIST #49 | $17.70 | $17.68 | $0.00 | $0.00 | $0.00 | $35.38 |
| 2026 | 11102 | FD1 - FIRE DISTRICT #1 | $17.02 | $17.01 | $0.00 | $0.00 | $0.00 | $34.03 |
| 2026 | 11102 | EMS1 - FIRE DIST #1 EMS | $6.54 | $6.54 | $0.00 | $0.00 | $0.00 | $13.08 |
| 2026 | 11102 | FPLCA - DNR Landowner Contingency Assmt | $3.00 | $3.00 | $0.00 | $0.00 | $0.00 | $6.00 |
| 2026 | 11102 | JCCD - JC Conservation District | $2.73 | $2.73 | $0.00 | $0.00 | $0.00 | $5.46 |
| 2026 | 11102 | NWA - Noxious Weed Assessment | $4.10 | $4.10 | $0.00 | $0.00 | $0.00 | $8.20 |
| 2026 | 11102 | WAT - Clean Water District | $13.00 | $13.00 | $0.00 | $0.00 | $0.00 | $26.00 |
| 2026 | 11102 | TOTAL: | $130.65 | $130.54 | $0.00 | $0.00 | $0.00 | $261.19 |
|
| 2026 | 11102 | $130.65 | $130.54 | $0.00 | $0.00 | $0.00 | $261.19 |
Statement Details |
| 2025 | 11125 | STATE - STATE LEVY (SCHOOL) | $32.00 | $31.99 | $0.00 | $0.00 | $63.99 | $0.00 |
| 2025 | 11125 | COUNTY - COUNTY LEVIES (CE, DD, VET, MH) | $12.58 | $12.58 | $0.00 | $0.00 | $25.16 | $0.00 |
| 2025 | 11125 | CONSERVE - CONSERVATION FUTURES | $0.38 | $0.37 | $0.00 | $0.00 | $0.75 | $0.00 |
| 2025 | 11125 | COROADS - COUNTY ROADS (ROADS, DIV TO CE) | $10.09 | $10.07 | $0.00 | $0.00 | $20.16 | $0.00 |
| 2025 | 11125 | PORTPT - PORT DISTRICT | $5.14 | $5.13 | $0.00 | $0.00 | $10.27 | $0.00 |
| 2025 | 11125 | PUD1 - PUD #1 | $0.83 | $0.82 | $0.00 | $0.00 | $1.65 | $0.00 |
| 2025 | 11125 | LIB1 - LIBRARY DIST #1 | $3.90 | $3.90 | $0.00 | $0.00 | $7.80 | $0.00 |
| 2025 | 11125 | HD2 - HOSP DIST #2 | $0.74 | $0.73 | $0.00 | $0.00 | $1.47 | $0.00 |
| 2025 | 11125 | SD49 - SCHOOL DIST #49 | $17.15 | $17.15 | $0.00 | $0.00 | $34.30 | $0.00 |
| 2025 | 11125 | FD1 - FIRE DISTRICT #1 | $16.61 | $16.60 | $0.00 | $0.00 | $33.21 | $0.00 |
| 2025 | 11125 | EMS1 - FIRE DIST #1 EMS | $6.39 | $6.38 | $0.00 | $0.00 | $12.77 | $0.00 |
| 2025 | 11125 | FPLCA - DNR Landowner Contingency Assmt | $3.00 | $3.00 | $0.00 | $0.00 | $6.00 | $0.00 |
| 2025 | 11125 | JCCD - JC Conservation District | $2.73 | $2.73 | $0.00 | $0.00 | $5.46 | $0.00 |
| 2025 | 11125 | NWA - Noxious Weed Assessment | $2.90 | $2.90 | $0.00 | $0.00 | $5.80 | $0.00 |
| 2025 | 11125 | WAT - Clean Water District | $13.00 | $13.00 | $0.00 | $0.00 | $26.00 | $0.00 |
| 2025 | 11125 | TOTAL: | $127.44 | $127.35 | $0.00 | $0.00 | $254.79 | $0.00 |
|
| 2025 | 11125 | $127.44 | $127.35 | $0.00 | $0.00 | $254.79 | $0.00 |
Statement Details |
| 2024 | 11150 | STATE - STATE LEVY (SCHOOL) | $28.32 | $28.30 | $0.00 | $0.00 | $56.62 | $0.00 |
| 2024 | 11150 | COUNTY - COUNTY LEVIES (CE, DD, VET, MH) | $12.12 | $12.12 | $0.00 | $0.00 | $24.24 | $0.00 |
| 2024 | 11150 | CONSERVE - CONSERVATION FUTURES | $0.37 | $0.36 | $0.00 | $0.00 | $0.73 | $0.00 |
| 2024 | 11150 | COROADS - COUNTY ROADS (ROADS, DIV TO CE) | $9.75 | $9.75 | $0.00 | $0.00 | $19.50 | $0.00 |
| 2024 | 11150 | PORTPT - PORT DISTRICT | $5.01 | $5.00 | $0.00 | $0.00 | $10.01 | $0.00 |
| 2024 | 11150 | PUD1 - PUD #1 | $0.80 | $0.79 | $0.00 | $0.00 | $1.59 | $0.00 |
| 2024 | 11150 | LIB1 - LIBRARY DIST #1 | $3.77 | $3.77 | $0.00 | $0.00 | $7.54 | $0.00 |
| 2024 | 11150 | HD2 - HOSP DIST #2 | $0.71 | $0.70 | $0.00 | $0.00 | $1.41 | $0.00 |
| 2024 | 11150 | SD49 - SCHOOL DIST #49 | $12.65 | $12.64 | $0.00 | $0.00 | $25.29 | $0.00 |
| 2024 | 11150 | FD1 - FIRE DISTRICT #1 | $16.02 | $16.02 | $0.00 | $0.00 | $32.04 | $0.00 |
| 2024 | 11150 | EMS1 - FIRE DIST #1 EMS | $6.12 | $6.12 | $0.00 | $0.00 | $12.24 | $0.00 |
| 2024 | 11150 | FPLCA - DNR Landowner Contingency Assmt | $3.00 | $3.00 | $0.00 | $0.00 | $6.00 | $0.00 |
| 2024 | 11150 | JCCD - JC Conservation District | $2.73 | $2.73 | $0.00 | $0.00 | $5.46 | $0.00 |
| 2024 | 11150 | NWA - Noxious Weed Assessment | $2.90 | $2.90 | $0.00 | $0.00 | $5.80 | $0.00 |
| 2024 | 11150 | WAT - Clean Water District | $12.50 | $12.50 | $0.00 | $0.00 | $25.00 | $0.00 |
| 2024 | 11150 | TOTAL: | $116.77 | $116.70 | $0.00 | $0.00 | $233.47 | $0.00 |
|
| 2024 | 11150 | $116.77 | $116.70 | $0.00 | $0.00 | $233.47 | $0.00 |
Statement Details |
| 2023 | 11170 | STATE - STATE LEVY (SCHOOL) | $26.60 | $26.58 | $0.00 | $0.00 | $53.18 | $0.00 |
| 2023 | 11170 | COUNTY - COUNTY LEVIES (CE, DD, VET, MH) | $11.62 | $11.58 | $0.00 | $0.00 | $23.20 | $0.00 |
| 2023 | 11170 | CONSERVE - CONSERVATION FUTURES | $0.35 | $0.35 | $0.00 | $0.00 | $0.70 | $0.00 |
| 2023 | 11170 | COROADS - COUNTY ROADS (ROADS, DIV TO CE) | $9.39 | $9.38 | $0.00 | $0.00 | $18.77 | $0.00 |
| 2023 | 11170 | PORTPT - PORT DISTRICT | $4.90 | $4.88 | $0.00 | $0.00 | $9.78 | $0.00 |
| 2023 | 11170 | PUD1 - PUD #1 | $0.77 | $0.77 | $0.00 | $0.00 | $1.54 | $0.00 |
| 2023 | 11170 | LIB1 - LIBRARY DIST #1 | $3.63 | $3.63 | $0.00 | $0.00 | $7.26 | $0.00 |
| 2023 | 11170 | HD2 - HOSP DIST #2 | $0.69 | $0.67 | $0.00 | $0.00 | $1.36 | $0.00 |
| 2023 | 11170 | SD49 - SCHOOL DIST #49 | $12.43 | $12.43 | $0.00 | $0.00 | $24.86 | $0.00 |
| 2023 | 11170 | FD1 - FIRE DISTRICT #1 | $9.56 | $9.56 | $0.00 | $0.00 | $19.12 | $0.00 |
| 2023 | 11170 | EMS1 - FIRE DIST #1 EMS | $4.07 | $4.06 | $0.00 | $0.00 | $8.13 | $0.00 |
| 2023 | 11170 | FPLCA - DNR Landowner Contingency Assmt | $3.00 | $3.00 | $0.00 | $0.00 | $6.00 | $0.00 |
| 2023 | 11170 | JCCD - JC Conservation District | $2.73 | $2.73 | $0.00 | $0.00 | $5.46 | $0.00 |
| 2023 | 11170 | NWA - Noxious Weed Assessment | $2.90 | $2.90 | $0.00 | $0.00 | $5.80 | $0.00 |
| 2023 | 11170 | WAT - Clean Water District | $12.00 | $12.00 | $0.00 | $0.00 | $24.00 | $0.00 |
| 2023 | 11170 | TOTAL: | $104.64 | $104.52 | $0.00 | $0.00 | $209.16 | $0.00 |
|
| 2023 | 11170 | $104.64 | $104.52 | $0.00 | $0.00 | $209.16 | $0.00 |
Values
| (+) Improvement Homesite Value: | + | $0 | |
| (+) Improvement Non-Homesite Value: | + | $0 | |
| (+) Land Homesite Value: | + | $0 | |
| (+) Land Non-Homesite Value: | + | $27,955 | |
| (+) Curr Use (HS): | + | $0 | $0 |
| (+) Curr Use (NHS): | + | $0 | $0 |
| | | -------------------------- | |
| (=) Market Value: | = | $27,955 | |
| (–) Productivity Loss: | – | $0 | |
| | | -------------------------- | |
| (=) Subtotal: | = | $27,955 | |
| (+) Senior Appraised Value: | + | $0 | |
| (+) Non-Senior Appraised Value: | + | $27,955 | |
| | | -------------------------- | |
| (=) Total Appraised Value: | = | $27,955 | |
| (–) Senior Exemption Loss: | – | $0 | |
| (–) Exemption Loss: | – | $0 | |
| | | -------------------------- | |
| (=) Taxable Value: | = | $27,955 | |
Taxing Jurisdiction
| Owner: | RIGGLE RIDGE RANCH LLC | | |
| % Ownership: | 100.0000000000% | | |
| Total Value: | $27,955 | | |
| Tax Area: | 0211 - 1-49F1E1H2L1 |
| CE | COUNTY CURRENT EXPENSE | 0.9034619479 | $27,955 | $27,955 | $25.26 | | |
| CNTYDD | DEVELOPMENTAL DISABILITIES | 0.0052121823 | $27,955 | $27,955 | $0.15 | | |
| CNTYVET | VETERANS RELIEF | 0.0052777810 | $27,955 | $27,955 | $0.15 | | |
| MENTAL | MENTAL HEALTH | 0.0052121823 | $27,955 | $27,955 | $0.15 | | |
| ROADS | COUNTY ROADS | 0.7415066410 | $27,955 | $27,955 | $20.73 | | |
| ROADSCU | COUNTY ROADS TO CUR EXP | 0.0000000000 | $27,955 | $27,955 | $0.00 | | |
| HOSP2CASH | HOSP DIST #2 GENERAL | 0.0536075306 | $27,955 | $27,955 | $1.50 | | |
| SCH49CP | SCHOOL DIST #49 CAP PROJ | 0.6279093905 | $27,955 | $27,955 | $17.55 | | |
| SCH49MO | SCHOOL DIST #49 EP & O | 0.6376483602 | $27,955 | $27,955 | $17.83 | | |
| CONSERVE | CONSERVATION FUTURES | 0.0275621078 | $27,955 | $27,955 | $0.77 | | |
| EMS1 | FIRE DIST #1 EMS | 0.4679948282 | $27,955 | $27,955 | $13.08 | | |
| FD1 | FIRE DIST #1 GENERAL | 1.2171942929 | $27,955 | $27,955 | $34.03 | | |
| LIB1 | LIBRARY DIST #1 GENERAL | 0.2868827388 | $27,955 | $27,955 | $8.02 | | |
| PORTPT | PORT OF PT GENERAL | 0.1134941229 | $27,955 | $27,955 | $3.17 | | |
| PORTPTIDD | PORT OF PT IDD 2019 | 0.2577346692 | $27,955 | $27,955 | $7.20 | | |
| PUD1 | PUD #1 GENERAL | 0.0597888892 | $27,955 | $27,955 | $1.67 | | |
| STATE | STATE SCHOOL PART 1 | 1.4940692947 | $27,955 | $27,955 | $41.77 | | |
| STATE2 | STATE SCHOOL PART 2 | 0.8050170049 | $27,955 | $27,955 | $22.50 | | |
| | Total Tax Rate: | 7.7095739644 | | | | | |
| | | | | Taxes w/Current Exemptions: | $215.53 | | |
| | | | | Taxes w/o Exemptions: | $215.53 | | |
Improvement / Building
Sketch
| No sketches available for this property. |
Property Image
Land
| 1 | 1579A | | 5.0200 | 218671.20 | 0.00 | 0.00 | 0.00 | $27,955 | $0 |
Roll Value History
| 2026 | N/A | N/A | N/A | N/A | N/A |
| 2025 | $0 | $27,955 | $0 | $27,955 | $27,955 |
| 2024 | $0 | $26,685 | $0 | $26,685 | $26,685 |
| 2023 | $0 | $24,473 | $0 | $24,473 | $24,473 |
| 2022 | $0 | $22,590 | $0 | $22,590 | $22,590 |
Deed and Sales History
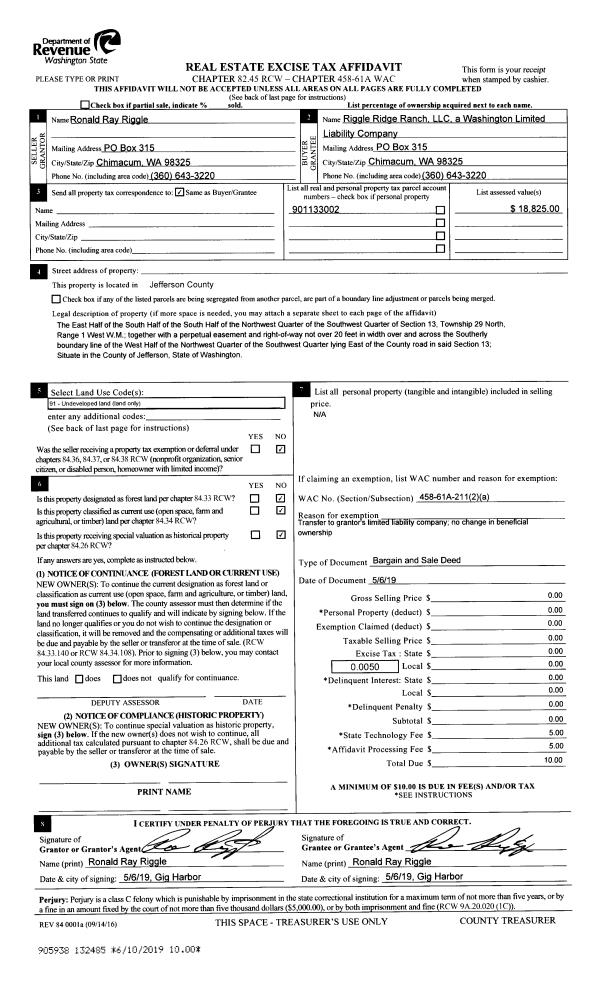
| 1 | 05/06/2019 | BSD | Bargain and Sale Deed | RONALD R RIGGLE | RIGGLE RIDGE RANCH LLC | | | | 132485 | |
Payout Agreement
| No payout information available.. |