Property
Account |
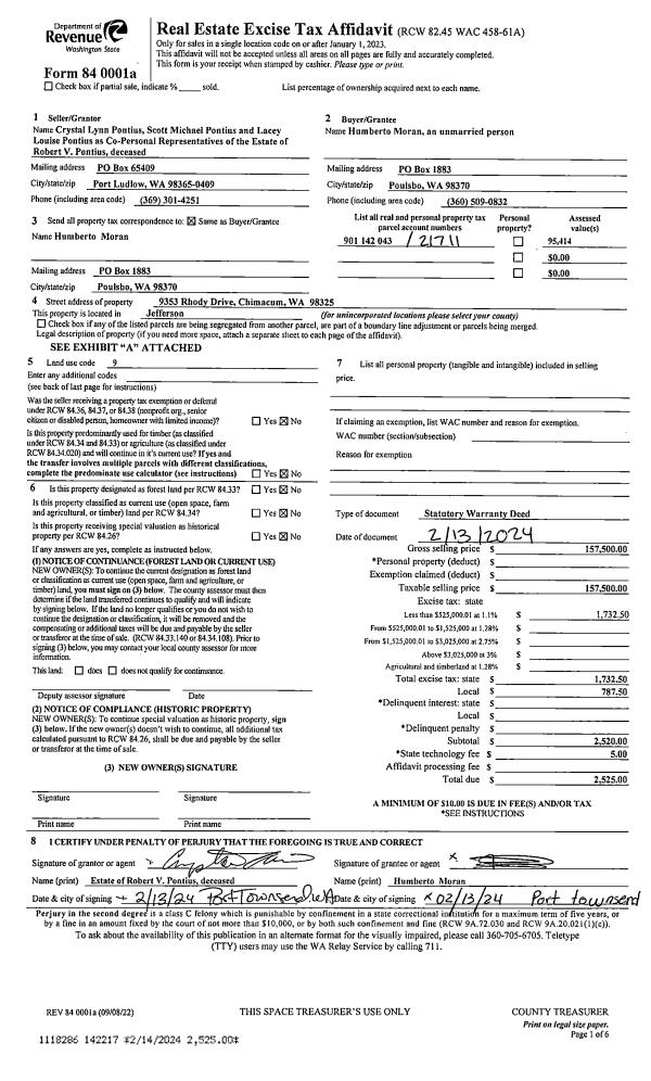
| Property ID: | 21711 | Abbreviated Legal Description: | S14 T29 R1W TAX 67 |
| Parcel # / Geo ID: | 901142043 | Agent Code: | |
| Type: | Real | | |
| Tax Area: | 0211 - 1-49F1E1H2L1 | Land Use Code | 11 |
| Open Space: | N | DFL | N |
| Historic Property: | N | Remodel Property: | N |
| Multi-Family Redevelopment: | N | | |
| Township: | 29N | Section: | 14 |
| Range: | 1W |
Location |
| Address: | 9353 RHODY DR CHIMACUM, WA 98325 | Mapsco: | 212/026 |
| Neighborhood: | CHIMACUM COMMERCIAL AREA | Map ID: | |
| Neighborhood CD: | 4265C |
Owner |
| Name: | HUMBERTO MORAN | Owner ID: | 110397 |
| Mailing Address: | PO BOX 1883 POULSBO, WA 98370-0269 | % Ownership: | 100.0000000000% |
| | | Exemptions: | |
Pay Tax Due
Select the appropriate checkbox next to the year to be paid. Multiple years may be selected.
*Convenience Fee not included
Taxes and Assessment Details
Property Tax Information as of
03/10/2026
Click on "Statement Details" to expand or collapse a tax statement.
* Please enter a valid date ** Please enter a valid date *
Statement Details |
| 2026 | 11182 | STATE - STATE LEVY (SCHOOL) | $178.57 | $178.56 | $0.00 | $0.00 | $0.00 | $357.13 |
| 2026 | 11182 | COUNTY - COUNTY LEVIES (CE, DD, VET, MH) | $71.40 | $71.38 | $0.00 | $0.00 | $0.00 | $142.78 |
| 2026 | 11182 | CONSERVE - CONSERVATION FUTURES | $2.14 | $2.14 | $0.00 | $0.00 | $0.00 | $4.28 |
| 2026 | 11182 | COROADS - COUNTY ROADS (ROADS, DIV TO CE) | $57.59 | $57.59 | $0.00 | $0.00 | $0.00 | $115.18 |
| 2026 | 11182 | PORTPT - PORT DISTRICT | $28.84 | $28.83 | $0.00 | $0.00 | $0.00 | $57.67 |
| 2026 | 11182 | PUD1 - PUD #1 | $4.65 | $4.64 | $0.00 | $0.00 | $0.00 | $9.29 |
| 2026 | 11182 | LIB1 - LIBRARY DIST #1 | $22.28 | $22.28 | $0.00 | $0.00 | $0.00 | $44.56 |
| 2026 | 11182 | HD2 - HOSP DIST #2 | $4.17 | $4.16 | $0.00 | $0.00 | $0.00 | $8.33 |
| 2026 | 11182 | SD49 - SCHOOL DIST #49 | $98.30 | $98.29 | $0.00 | $0.00 | $0.00 | $196.59 |
| 2026 | 11182 | FD1 - FIRE DISTRICT #1 | $94.54 | $94.54 | $0.00 | $0.00 | $0.00 | $189.08 |
| 2026 | 11182 | EMS1 - FIRE DIST #1 EMS | $36.35 | $36.35 | $0.00 | $0.00 | $0.00 | $72.70 |
| 2026 | 11182 | JCCD - JC Conservation District | $2.55 | $2.55 | $0.00 | $0.00 | $0.00 | $5.10 |
| 2026 | 11182 | NWA - Noxious Weed Assessment | $2.98 | $2.97 | $0.00 | $0.00 | $0.00 | $5.95 |
| 2026 | 11182 | OSS - On Site Septic | $23.10 | $23.10 | $0.00 | $0.00 | $0.00 | $46.20 |
| 2026 | 11182 | WAT - Clean Water District | $13.00 | $13.00 | $0.00 | $0.00 | $0.00 | $26.00 |
| 2026 | 11182 | TOTAL: | $640.46 | $640.38 | $0.00 | $0.00 | $0.00 | $1280.84 |
|
| 2026 | 11182 | $640.46 | $640.38 | $0.00 | $0.00 | $0.00 | $1280.84 |
Statement Details |
| 2025 | 11205 | STATE - STATE LEVY (SCHOOL) | $177.98 | $177.96 | $0.00 | $0.00 | $355.94 | $0.00 |
| 2025 | 11205 | COUNTY - COUNTY LEVIES (CE, DD, VET, MH) | $70.00 | $69.97 | $0.00 | $0.00 | $139.97 | $0.00 |
| 2025 | 11205 | CONSERVE - CONSERVATION FUTURES | $2.10 | $2.10 | $0.00 | $0.00 | $4.20 | $0.00 |
| 2025 | 11205 | COROADS - COUNTY ROADS (ROADS, DIV TO CE) | $56.08 | $56.06 | $0.00 | $0.00 | $112.14 | $0.00 |
| 2025 | 11205 | PORTPT - PORT DISTRICT | $28.56 | $28.55 | $0.00 | $0.00 | $57.11 | $0.00 |
| 2025 | 11205 | PUD1 - PUD #1 | $4.58 | $4.58 | $0.00 | $0.00 | $9.16 | $0.00 |
| 2025 | 11205 | LIB1 - LIBRARY DIST #1 | $21.70 | $21.69 | $0.00 | $0.00 | $43.39 | $0.00 |
| 2025 | 11205 | HD2 - HOSP DIST #2 | $4.09 | $4.08 | $0.00 | $0.00 | $8.17 | $0.00 |
| 2025 | 11205 | SD49 - SCHOOL DIST #49 | $95.38 | $95.38 | $0.00 | $0.00 | $190.76 | $0.00 |
| 2025 | 11205 | FD1 - FIRE DISTRICT #1 | $92.36 | $92.35 | $0.00 | $0.00 | $184.71 | $0.00 |
| 2025 | 11205 | EMS1 - FIRE DIST #1 EMS | $35.52 | $35.52 | $0.00 | $0.00 | $71.04 | $0.00 |
| 2025 | 11205 | JCCD - JC Conservation District | $2.55 | $2.55 | $0.00 | $0.00 | $5.10 | $0.00 |
| 2025 | 11205 | NWA - Noxious Weed Assessment | $2.15 | $2.15 | $0.00 | $0.00 | $4.30 | $0.00 |
| 2025 | 11205 | OSS - On Site Septic | $21.50 | $21.50 | $0.00 | $0.00 | $43.00 | $0.00 |
| 2025 | 11205 | WAT - Clean Water District | $13.00 | $13.00 | $0.00 | $0.00 | $26.00 | $0.00 |
| 2025 | 11205 | TOTAL: | $627.55 | $627.44 | $0.00 | $0.00 | $1254.99 | $0.00 |
|
| 2025 | 11205 | $627.55 | $627.44 | $0.00 | $0.00 | $1254.99 | $0.00 |
Statement Details |
| 2024 | 11230 | STATE - STATE LEVY (SCHOOL) | $110.38 | $110.37 | $0.00 | $0.00 | $220.75 | $0.00 |
| 2024 | 11230 | COUNTY - COUNTY LEVIES (CE, DD, VET, MH) | $47.24 | $47.21 | $0.00 | $0.00 | $94.45 | $0.00 |
| 2024 | 11230 | CONSERVE - CONSERVATION FUTURES | $1.42 | $1.41 | $0.00 | $0.00 | $2.83 | $0.00 |
| 2024 | 11230 | COROADS - COUNTY ROADS (ROADS, DIV TO CE) | $38.01 | $38.00 | $0.00 | $0.00 | $76.01 | $0.00 |
| 2024 | 11230 | PORTPT - PORT DISTRICT | $19.51 | $19.50 | $0.00 | $0.00 | $39.01 | $0.00 |
| 2024 | 11230 | PUD1 - PUD #1 | $3.10 | $3.10 | $0.00 | $0.00 | $6.20 | $0.00 |
| 2024 | 11230 | LIB1 - LIBRARY DIST #1 | $14.71 | $14.70 | $0.00 | $0.00 | $29.41 | $0.00 |
| 2024 | 11230 | HD2 - HOSP DIST #2 | $2.76 | $2.75 | $0.00 | $0.00 | $5.51 | $0.00 |
| 2024 | 11230 | SD49 - SCHOOL DIST #49 | $49.29 | $49.28 | $0.00 | $0.00 | $98.57 | $0.00 |
| 2024 | 11230 | FD1 - FIRE DISTRICT #1 | $62.45 | $62.45 | $0.00 | $0.00 | $124.90 | $0.00 |
| 2024 | 11230 | EMS1 - FIRE DIST #1 EMS | $23.86 | $23.85 | $0.00 | $0.00 | $47.71 | $0.00 |
| 2024 | 11230 | JCCD - JC Conservation District | $2.55 | $2.55 | $0.00 | $0.00 | $5.10 | $0.00 |
| 2024 | 11230 | NWA - Noxious Weed Assessment | $2.15 | $2.15 | $0.00 | $0.00 | $4.30 | $0.00 |
| 2024 | 11230 | OSS - On Site Septic | $21.00 | $21.00 | $0.00 | $0.00 | $42.00 | $0.00 |
| 2024 | 11230 | WAT - Clean Water District | $12.50 | $12.50 | $0.00 | $0.00 | $25.00 | $0.00 |
| 2024 | 11230 | TOTAL: | $410.93 | $410.82 | $0.00 | $0.00 | $821.75 | $0.00 |
|
| 2024 | 11230 | $410.93 | $410.82 | $0.00 | $0.00 | $821.75 | $0.00 |
Statement Details |
| 2023 | 11250 | STATE - STATE LEVY (SCHOOL) | $104.57 | $104.56 | $0.00 | $0.00 | $209.13 | $0.00 |
| 2023 | 11250 | COUNTY - COUNTY LEVIES (CE, DD, VET, MH) | $45.63 | $45.63 | $0.00 | $0.00 | $91.26 | $0.00 |
| 2023 | 11250 | CONSERVE - CONSERVATION FUTURES | $1.37 | $1.37 | $0.00 | $0.00 | $2.74 | $0.00 |
| 2023 | 11250 | COROADS - COUNTY ROADS (ROADS, DIV TO CE) | $36.93 | $36.91 | $0.00 | $0.00 | $73.84 | $0.00 |
| 2023 | 11250 | PORTPT - PORT DISTRICT | $19.23 | $19.21 | $0.00 | $0.00 | $38.44 | $0.00 |
| 2023 | 11250 | PUD1 - PUD #1 | $3.03 | $3.02 | $0.00 | $0.00 | $6.05 | $0.00 |
| 2023 | 11250 | LIB1 - LIBRARY DIST #1 | $14.29 | $14.28 | $0.00 | $0.00 | $28.57 | $0.00 |
| 2023 | 11250 | HD2 - HOSP DIST #2 | $2.66 | $2.66 | $0.00 | $0.00 | $5.32 | $0.00 |
| 2023 | 11250 | SD49 - SCHOOL DIST #49 | $48.89 | $48.87 | $0.00 | $0.00 | $97.76 | $0.00 |
| 2023 | 11250 | FD1 - FIRE DISTRICT #1 | $37.59 | $37.59 | $0.00 | $0.00 | $75.18 | $0.00 |
| 2023 | 11250 | EMS1 - FIRE DIST #1 EMS | $15.99 | $15.99 | $0.00 | $0.00 | $31.98 | $0.00 |
| 2023 | 11250 | JCCD - JC Conservation District | $2.55 | $2.55 | $0.00 | $0.00 | $5.10 | $0.00 |
| 2023 | 11250 | NWA - Noxious Weed Assessment | $2.15 | $2.15 | $0.00 | $0.00 | $4.30 | $0.00 |
| 2023 | 11250 | OSS - On Site Septic | $20.50 | $20.50 | $0.00 | $0.00 | $41.00 | $0.00 |
| 2023 | 11250 | WAT - Clean Water District | $12.00 | $12.00 | $0.00 | $0.00 | $24.00 | $0.00 |
| 2023 | 11250 | TOTAL: | $367.38 | $367.29 | $0.00 | $0.00 | $734.67 | $0.00 |
|
| 2023 | 11250 | $367.38 | $367.29 | $0.00 | $0.00 | $734.67 | $0.00 |
Values
| (+) Improvement Homesite Value: | + | $0 | |
| (+) Improvement Non-Homesite Value: | + | $78,337 | |
| (+) Land Homesite Value: | + | $0 | |
| (+) Land Non-Homesite Value: | + | $77,000 | |
| (+) Curr Use (HS): | + | $0 | $0 |
| (+) Curr Use (NHS): | + | $0 | $0 |
| | | -------------------------- | |
| (=) Market Value: | = | $155,337 | |
| (–) Productivity Loss: | – | $0 | |
| | | -------------------------- | |
| (=) Subtotal: | = | $155,337 | |
| (+) Senior Appraised Value: | + | $0 | |
| (+) Non-Senior Appraised Value: | + | $155,337 | |
| | | -------------------------- | |
| (=) Total Appraised Value: | = | $155,337 | |
| (–) Senior Exemption Loss: | – | $0 | |
| (–) Exemption Loss: | – | $0 | |
| | | -------------------------- | |
| (=) Taxable Value: | = | $155,337 | |
Taxing Jurisdiction
| Owner: | HUMBERTO MORAN | | |
| % Ownership: | 100.0000000000% | | |
| Total Value: | $155,337 | | |
| Tax Area: | 0211 - 1-49F1E1H2L1 |
| CE | COUNTY CURRENT EXPENSE | 0.9034619479 | $155,337 | $155,337 | $140.34 | | |
| CNTYDD | DEVELOPMENTAL DISABILITIES | 0.0052121823 | $155,337 | $155,337 | $0.81 | | |
| CNTYVET | VETERANS RELIEF | 0.0052777810 | $155,337 | $155,337 | $0.82 | | |
| MENTAL | MENTAL HEALTH | 0.0052121823 | $155,337 | $155,337 | $0.81 | | |
| ROADS | COUNTY ROADS | 0.7415066410 | $155,337 | $155,337 | $115.18 | | |
| ROADSCU | COUNTY ROADS TO CUR EXP | 0.0000000000 | $155,337 | $155,337 | $0.00 | | |
| HOSP2CASH | HOSP DIST #2 GENERAL | 0.0536075306 | $155,337 | $155,337 | $8.33 | | |
| SCH49CP | SCHOOL DIST #49 CAP PROJ | 0.6279093905 | $155,337 | $155,337 | $97.54 | | |
| SCH49MO | SCHOOL DIST #49 EP & O | 0.6376483602 | $155,337 | $155,337 | $99.05 | | |
| CONSERVE | CONSERVATION FUTURES | 0.0275621078 | $155,337 | $155,337 | $4.28 | | |
| EMS1 | FIRE DIST #1 EMS | 0.4679948282 | $155,337 | $155,337 | $72.70 | | |
| FD1 | FIRE DIST #1 GENERAL | 1.2171942929 | $155,337 | $155,337 | $189.08 | | |
| LIB1 | LIBRARY DIST #1 GENERAL | 0.2868827388 | $155,337 | $155,337 | $44.56 | | |
| PORTPT | PORT OF PT GENERAL | 0.1134941229 | $155,337 | $155,337 | $17.63 | | |
| PORTPTIDD | PORT OF PT IDD 2019 | 0.2577346692 | $155,337 | $155,337 | $40.04 | | |
| PUD1 | PUD #1 GENERAL | 0.0597888892 | $155,337 | $155,337 | $9.29 | | |
| STATE | STATE SCHOOL PART 1 | 1.4940692947 | $155,337 | $155,337 | $232.08 | | |
| STATE2 | STATE SCHOOL PART 2 | 0.8050170049 | $155,337 | $155,337 | $125.05 | | |
| | Total Tax Rate: | 7.7095739644 | | | | | |
| | | | | Taxes w/Current Exemptions: | $1,197.59 | | |
| | | | | Taxes w/o Exemptions: | $1,197.59 | | |
Improvement / Building
| Improvement #1: | Manufactured Home | State Code: | 11M | 1152.0 sqft | Value: | $78,337 |
| Bathrooms (#): | 2 (FULL) | Bedrooms (#): | 3 | | Exterior Wall: | METAL | Fireplace: | WD ST-GOOD | | Floor Construction: | FRAME | Foundation: | PO&BL | | Heating/Cooling: | F/A | Inside Verify: | NO | | Roof Cover: | METAL |   |   |
|
| | Type | Description | Class CD | Sub Class CD | Year Built | Area |
| | MA | Main Area | 4 | MFH | 1974 | 1152.0 |
| | MDECK | MH Deck | 4 | * | 1974 | 192.0 |
| | OTHER | Other | 4 | * | 1974 | 1092.0 |
| | MSKIRT_WD | MH Skirting - Wood | 4 | * | 1974 | 144.0 |
Sketch
Property Image
Land
| 1 | 4265-1375S | | 0.0000 | 0.00 | 0.00 | 0.00 | 1.00 | $77,000 | $0 |
Roll Value History
| 2026 | N/A | N/A | N/A | N/A | N/A |
| 2025 | $78,337 | $77,000 | $0 | $155,337 | $155,337 |
| 2024 | $74,931 | $73,500 | $0 | $148,431 | $148,431 |
| 2023 | $30,414 | $65,000 | $0 | $95,414 | $95,414 |
| 2022 | $28,834 | $60,000 | $0 | $88,834 | $88,834 |
Deed and Sales History
| 1 | 02/13/2024 | SWD | Statutory Warranty Deed | ROBERT V PONTIUS | HUMBERTO MORAN | | | $157,500.00 | 142217 | |
| 2 | 12/14/2016 | SWD | Statutory Warranty Deed | ROBERT P SCHLADETZKY | ROBERT V PONTIUS | | | $75,000.00 | 126816 | |
Payout Agreement
| No payout information available.. |