Property
Account |
| Property ID: | 21713 | Abbreviated Legal Description: | MORRELL SHORT PLAT LOT 2 |
| Parcel # / Geo ID: | 901142045 | Agent Code: | |
| Type: | Real | | |
| Tax Area: | 0211 - 1-49F1E1H2L1 | Land Use Code | 11 |
| Open Space: | N | DFL | N |
| Historic Property: | N | Remodel Property: | N |
| Multi-Family Redevelopment: | N | | |
| Township: | 29N | Section: | 14 |
| Range: | 1W |
Location |
| Address: | 221 CENTER RD CHIMACUM, WA 98325 | Mapsco: | 237/078 |
| Neighborhood: | S14 T29N R1W & QUEEN ANNE ADDITION | Map ID: | |
| Neighborhood CD: | 4265 |
Owner |
| Name: | PRIOR2HC LLC | Owner ID: | 103738 |
| Mailing Address: | 1344 TAYLOR ST PORT TOWNSEND, WA 98368-5323 | % Ownership: | 100.0000000000% |
| | | Exemptions: | |
Pay Tax Due
Select the appropriate checkbox next to the year to be paid. Multiple years may be selected.
*Convenience Fee not included
Taxes and Assessment Details
Property Tax Information as of
03/11/2026
Click on "Statement Details" to expand or collapse a tax statement.
* Please enter a valid date ** Please enter a valid date *
Statement Details |
| 2026 | 11184 | STATE - STATE LEVY (SCHOOL) | $335.40 | $335.40 | $0.00 | $0.00 | $0.00 | $670.80 |
| 2026 | 11184 | COUNTY - COUNTY LEVIES (CE, DD, VET, MH) | $134.09 | $134.09 | $0.00 | $0.00 | $0.00 | $268.18 |
| 2026 | 11184 | CONSERVE - CONSERVATION FUTURES | $4.02 | $4.02 | $0.00 | $0.00 | $0.00 | $8.04 |
| 2026 | 11184 | COROADS - COUNTY ROADS (ROADS, DIV TO CE) | $108.18 | $108.17 | $0.00 | $0.00 | $0.00 | $216.35 |
| 2026 | 11184 | PORTPT - PORT DISTRICT | $54.16 | $54.15 | $0.00 | $0.00 | $0.00 | $108.31 |
| 2026 | 11184 | PUD1 - PUD #1 | $8.72 | $8.72 | $0.00 | $0.00 | $0.00 | $17.44 |
| 2026 | 11184 | LIB1 - LIBRARY DIST #1 | $41.85 | $41.85 | $0.00 | $0.00 | $0.00 | $83.70 |
| 2026 | 11184 | HD2 - HOSP DIST #2 | $7.82 | $7.82 | $0.00 | $0.00 | $0.00 | $15.64 |
| 2026 | 11184 | SD49 - SCHOOL DIST #49 | $184.62 | $184.62 | $0.00 | $0.00 | $0.00 | $369.24 |
| 2026 | 11184 | FD1 - FIRE DISTRICT #1 | $177.57 | $177.56 | $0.00 | $0.00 | $0.00 | $355.13 |
| 2026 | 11184 | EMS1 - FIRE DIST #1 EMS | $68.27 | $68.27 | $0.00 | $0.00 | $0.00 | $136.54 |
| 2026 | 11184 | JCCD - JC Conservation District | $2.55 | $2.55 | $0.00 | $0.00 | $0.00 | $5.10 |
| 2026 | 11184 | NWA - Noxious Weed Assessment | $2.98 | $2.97 | $0.00 | $0.00 | $0.00 | $5.95 |
| 2026 | 11184 | OSS - On Site Septic | $23.10 | $23.10 | $0.00 | $0.00 | $0.00 | $46.20 |
| 2026 | 11184 | WAT - Clean Water District | $13.00 | $13.00 | $0.00 | $0.00 | $0.00 | $26.00 |
| 2026 | 11184 | TOTAL: | $1166.33 | $1166.29 | $0.00 | $0.00 | $0.00 | $2332.62 |
|
| 2026 | 11184 | $1166.33 | $1166.29 | $0.00 | $0.00 | $0.00 | $2332.62 |
Statement Details |
| 2025 | 11207 | STATE - STATE LEVY (SCHOOL) | $334.32 | $334.32 | $0.00 | $0.00 | $668.64 | $0.00 |
| 2025 | 11207 | COUNTY - COUNTY LEVIES (CE, DD, VET, MH) | $131.49 | $131.46 | $0.00 | $0.00 | $262.95 | $0.00 |
| 2025 | 11207 | CONSERVE - CONSERVATION FUTURES | $3.94 | $3.94 | $0.00 | $0.00 | $7.88 | $0.00 |
| 2025 | 11207 | COROADS - COUNTY ROADS (ROADS, DIV TO CE) | $105.33 | $105.32 | $0.00 | $0.00 | $210.65 | $0.00 |
| 2025 | 11207 | PORTPT - PORT DISTRICT | $53.66 | $53.64 | $0.00 | $0.00 | $107.30 | $0.00 |
| 2025 | 11207 | PUD1 - PUD #1 | $8.61 | $8.60 | $0.00 | $0.00 | $17.21 | $0.00 |
| 2025 | 11207 | LIB1 - LIBRARY DIST #1 | $40.75 | $40.75 | $0.00 | $0.00 | $81.50 | $0.00 |
| 2025 | 11207 | HD2 - HOSP DIST #2 | $7.67 | $7.67 | $0.00 | $0.00 | $15.34 | $0.00 |
| 2025 | 11207 | SD49 - SCHOOL DIST #49 | $179.18 | $179.17 | $0.00 | $0.00 | $358.35 | $0.00 |
| 2025 | 11207 | FD1 - FIRE DISTRICT #1 | $173.49 | $173.49 | $0.00 | $0.00 | $346.98 | $0.00 |
| 2025 | 11207 | EMS1 - FIRE DIST #1 EMS | $66.73 | $66.73 | $0.00 | $0.00 | $133.46 | $0.00 |
| 2025 | 11207 | JCCD - JC Conservation District | $2.55 | $2.55 | $0.00 | $0.00 | $5.10 | $0.00 |
| 2025 | 11207 | NWA - Noxious Weed Assessment | $2.15 | $2.15 | $0.00 | $0.00 | $4.30 | $0.00 |
| 2025 | 11207 | OSS - On Site Septic | $21.50 | $21.50 | $0.00 | $0.00 | $43.00 | $0.00 |
| 2025 | 11207 | WAT - Clean Water District | $13.00 | $13.00 | $0.00 | $0.00 | $26.00 | $0.00 |
| 2025 | 11207 | TOTAL: | $1144.37 | $1144.29 | $0.00 | $0.00 | $2288.66 | $0.00 |
|
| 2025 | 11207 | $1144.37 | $1144.29 | $0.00 | $0.00 | $2288.66 | $0.00 |
Statement Details |
| 2024 | 11232 | STATE - STATE LEVY (SCHOOL) | $301.80 | $301.80 | $0.00 | $0.00 | $603.60 | $0.00 |
| 2024 | 11232 | COUNTY - COUNTY LEVIES (CE, DD, VET, MH) | $129.15 | $129.14 | $0.00 | $0.00 | $258.29 | $0.00 |
| 2024 | 11232 | CONSERVE - CONSERVATION FUTURES | $3.88 | $3.87 | $0.00 | $0.00 | $7.75 | $0.00 |
| 2024 | 11232 | COROADS - COUNTY ROADS (ROADS, DIV TO CE) | $103.92 | $103.91 | $0.00 | $0.00 | $207.83 | $0.00 |
| 2024 | 11232 | PORTPT - PORT DISTRICT | $53.35 | $53.33 | $0.00 | $0.00 | $106.68 | $0.00 |
| 2024 | 11232 | PUD1 - PUD #1 | $8.49 | $8.48 | $0.00 | $0.00 | $16.97 | $0.00 |
| 2024 | 11232 | LIB1 - LIBRARY DIST #1 | $40.21 | $40.20 | $0.00 | $0.00 | $80.41 | $0.00 |
| 2024 | 11232 | HD2 - HOSP DIST #2 | $7.54 | $7.53 | $0.00 | $0.00 | $15.07 | $0.00 |
| 2024 | 11232 | SD49 - SCHOOL DIST #49 | $134.77 | $134.77 | $0.00 | $0.00 | $269.54 | $0.00 |
| 2024 | 11232 | FD1 - FIRE DISTRICT #1 | $170.76 | $170.76 | $0.00 | $0.00 | $341.52 | $0.00 |
| 2024 | 11232 | EMS1 - FIRE DIST #1 EMS | $65.23 | $65.22 | $0.00 | $0.00 | $130.45 | $0.00 |
| 2024 | 11232 | JCCD - JC Conservation District | $2.55 | $2.55 | $0.00 | $0.00 | $5.10 | $0.00 |
| 2024 | 11232 | NWA - Noxious Weed Assessment | $2.15 | $2.15 | $0.00 | $0.00 | $4.30 | $0.00 |
| 2024 | 11232 | OSS - On Site Septic | $21.00 | $21.00 | $0.00 | $0.00 | $42.00 | $0.00 |
| 2024 | 11232 | WAT - Clean Water District | $12.50 | $12.50 | $0.00 | $0.00 | $25.00 | $0.00 |
| 2024 | 11232 | TOTAL: | $1057.30 | $1057.21 | $0.00 | $0.00 | $2114.51 | $0.00 |
|
| 2024 | 11232 | $1057.30 | $1057.21 | $0.00 | $0.00 | $2114.51 | $0.00 |
Statement Details |
| 2023 | 11252 | STATE - STATE LEVY (SCHOOL) | $227.38 | $227.36 | $0.00 | $0.00 | $454.74 | $0.00 |
| 2023 | 11252 | COUNTY - COUNTY LEVIES (CE, DD, VET, MH) | $99.23 | $99.21 | $0.00 | $0.00 | $198.44 | $0.00 |
| 2023 | 11252 | CONSERVE - CONSERVATION FUTURES | $2.98 | $2.97 | $0.00 | $0.00 | $5.95 | $0.00 |
| 2023 | 11252 | COROADS - COUNTY ROADS (ROADS, DIV TO CE) | $80.28 | $80.27 | $0.00 | $0.00 | $160.55 | $0.00 |
| 2023 | 11252 | PORTPT - PORT DISTRICT | $41.80 | $41.79 | $0.00 | $0.00 | $83.59 | $0.00 |
| 2023 | 11252 | PUD1 - PUD #1 | $6.58 | $6.57 | $0.00 | $0.00 | $13.15 | $0.00 |
| 2023 | 11252 | LIB1 - LIBRARY DIST #1 | $31.06 | $31.05 | $0.00 | $0.00 | $62.11 | $0.00 |
| 2023 | 11252 | HD2 - HOSP DIST #2 | $5.79 | $5.79 | $0.00 | $0.00 | $11.58 | $0.00 |
| 2023 | 11252 | SD49 - SCHOOL DIST #49 | $106.28 | $106.28 | $0.00 | $0.00 | $212.56 | $0.00 |
| 2023 | 11252 | FD1 - FIRE DISTRICT #1 | $81.74 | $81.73 | $0.00 | $0.00 | $163.47 | $0.00 |
| 2023 | 11252 | EMS1 - FIRE DIST #1 EMS | $34.77 | $34.77 | $0.00 | $0.00 | $69.54 | $0.00 |
| 2023 | 11252 | JCCD - JC Conservation District | $2.55 | $2.55 | $0.00 | $0.00 | $5.10 | $0.00 |
| 2023 | 11252 | NWA - Noxious Weed Assessment | $2.15 | $2.15 | $0.00 | $0.00 | $4.30 | $0.00 |
| 2023 | 11252 | OSS - On Site Septic | $20.50 | $20.50 | $0.00 | $0.00 | $41.00 | $0.00 |
| 2023 | 11252 | WAT - Clean Water District | $12.00 | $12.00 | $0.00 | $0.00 | $24.00 | $0.00 |
| 2023 | 11252 | TOTAL: | $755.09 | $754.99 | $0.00 | $0.00 | $1510.08 | $0.00 |
|
| 2023 | 11252 | $755.09 | $754.99 | $0.00 | $0.00 | $1510.08 | $0.00 |
Values
| (+) Improvement Homesite Value: | + | $0 | |
| (+) Improvement Non-Homesite Value: | + | $165,265 | |
| (+) Land Homesite Value: | + | $0 | |
| (+) Land Non-Homesite Value: | + | $126,500 | |
| (+) Curr Use (HS): | + | $0 | $0 |
| (+) Curr Use (NHS): | + | $0 | $0 |
| | | -------------------------- | |
| (=) Market Value: | = | $291,765 | |
| (–) Productivity Loss: | – | $0 | |
| | | -------------------------- | |
| (=) Subtotal: | = | $291,765 | |
| (+) Senior Appraised Value: | + | $0 | |
| (+) Non-Senior Appraised Value: | + | $291,765 | |
| | | -------------------------- | |
| (=) Total Appraised Value: | = | $291,765 | |
| (–) Senior Exemption Loss: | – | $0 | |
| (–) Exemption Loss: | – | $0 | |
| | | -------------------------- | |
| (=) Taxable Value: | = | $291,765 | |
Taxing Jurisdiction
| Owner: | PRIOR2HC LLC | | |
| % Ownership: | 100.0000000000% | | |
| Total Value: | $291,765 | | |
| Tax Area: | 0211 - 1-49F1E1H2L1 |
| CE | COUNTY CURRENT EXPENSE | 0.9034619479 | $291,765 | $291,765 | $263.60 | | |
| CNTYDD | DEVELOPMENTAL DISABILITIES | 0.0052121823 | $291,765 | $291,765 | $1.52 | | |
| CNTYVET | VETERANS RELIEF | 0.0052777810 | $291,765 | $291,765 | $1.54 | | |
| MENTAL | MENTAL HEALTH | 0.0052121823 | $291,765 | $291,765 | $1.52 | | |
| ROADS | COUNTY ROADS | 0.7415066410 | $291,765 | $291,765 | $216.35 | | |
| ROADSCU | COUNTY ROADS TO CUR EXP | 0.0000000000 | $291,765 | $291,765 | $0.00 | | |
| HOSP2CASH | HOSP DIST #2 GENERAL | 0.0536075306 | $291,765 | $291,765 | $15.64 | | |
| SCH49CP | SCHOOL DIST #49 CAP PROJ | 0.6279093905 | $291,765 | $291,765 | $183.20 | | |
| SCH49MO | SCHOOL DIST #49 EP & O | 0.6376483602 | $291,765 | $291,765 | $186.04 | | |
| CONSERVE | CONSERVATION FUTURES | 0.0275621078 | $291,765 | $291,765 | $8.04 | | |
| EMS1 | FIRE DIST #1 EMS | 0.4679948282 | $291,765 | $291,765 | $136.54 | | |
| FD1 | FIRE DIST #1 GENERAL | 1.2171942929 | $291,765 | $291,765 | $355.13 | | |
| LIB1 | LIBRARY DIST #1 GENERAL | 0.2868827388 | $291,765 | $291,765 | $83.70 | | |
| PORTPT | PORT OF PT GENERAL | 0.1134941229 | $291,765 | $291,765 | $33.11 | | |
| PORTPTIDD | PORT OF PT IDD 2019 | 0.2577346692 | $291,765 | $291,765 | $75.20 | | |
| PUD1 | PUD #1 GENERAL | 0.0597888892 | $291,765 | $291,765 | $17.44 | | |
| STATE | STATE SCHOOL PART 1 | 1.4940692947 | $291,765 | $291,765 | $435.92 | | |
| STATE2 | STATE SCHOOL PART 2 | 0.8050170049 | $291,765 | $291,765 | $234.88 | | |
| | Total Tax Rate: | 7.7095739644 | | | | | |
| | | | | Taxes w/Current Exemptions: | $2,249.37 | | |
| | | | | Taxes w/o Exemptions: | $2,249.37 | | |
Improvement / Building
| Improvement #1: | Residential Bldg | State Code: | 11 | 1080.0 sqft | Value: | $165,265 |
| Bathrooms (#): | 1 (FULL) | Bedrooms (#): | 2 | | Exterior Wall: | SI/ST | Fireplace: | PROPS-GOOD | | Floor Construction: | FRAME | Foundation: | PO&BL | | Heating/Cooling: | ELBB | Roof Cover: | COMP |
|
| | Type | Description | Class CD | Sub Class CD | Year Built | Area |
| | MA | Main Area | 3 | 1S | 1926 | 1080.0 |
| | HDECK | House Deck | 3 | * | 1926 | 80.0 |
| | BSMTU | House basement unfinished | 2 | 1S | 1926 | 121.0 |
| | SHED | Shed (Table Not Dep) | 4 | * | 1926 | 192.0 |
Sketch
Property Image
Land
| 1 | 4265-1373S | | 0.0000 | 0.00 | 0.00 | 0.00 | 1.00 | $126,500 | $0 |
Roll Value History
| 2026 | N/A | N/A | N/A | N/A | N/A |
| 2025 | $165,265 | $126,500 | $0 | $291,765 | $291,765 |
| 2024 | $158,080 | $120,750 | $0 | $278,830 | $278,830 |
| 2023 | $150,894 | $110,000 | $0 | $260,894 | $260,894 |
| 2022 | $88,163 | $105,000 | $0 | $193,163 | $193,163 |
Deed and Sales History
| 1 | 11/19/2020 | QCD | Quit Claim Deed | SUSAN C SKILLING REVOCABLE LIVING TRUST | PRIOR2HC LLC | | | | 135601 | |
| 2 | 07/29/2019 | QCD | Quit Claim Deed | SUSAN C SKILLING | SUSAN C SKILLING REVOCABLE LIVING TRUST | | | | 132851 | |
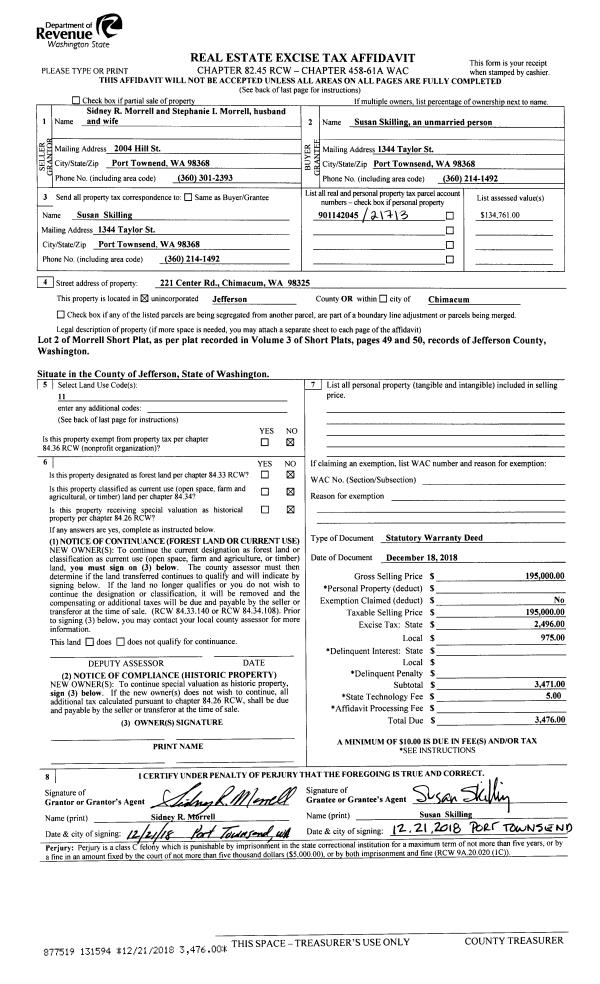
| 3 | 12/18/2018 | SWD | Statutory Warranty Deed | SIDNEY R MORRELL | SUSAN C SKILLING | | | $195,000.00 | 131594 | |
Payout Agreement
| No payout information available.. |