Property
Account |
| Property ID: | 21739 | Abbreviated Legal Description: | S15 T29 R1W TAX 5(ENLG BY TAX 38) LESS R/W |
| Parcel # / Geo ID: | 901151010 | Agent Code: | |
| Type: | Real | | |
| Tax Area: | 0211 - 1-49F1E1H2L1 | Land Use Code | 11 |
| Open Space: | N | DFL | N |
| Historic Property: | N | Remodel Property: | N |
| Multi-Family Redevelopment: | N | | |
| Township: | 29N | Section: | 15 |
| Range: | 1W |
Location |
| Address: | 452 WEST VALLEY RD CHIMACUM, WA 98325 | Mapsco: | 213/036 |
| Neighborhood: | S15 & S16 T29N R1W | Map ID: | |
| Neighborhood CD: | 4235 |
Owner |
| Name: | APPLETON FAMILY TRUST | Owner ID: | 99980 |
| Mailing Address: | JON M APPLETON TRUSTEE TRACEY W APPLETON TRUSTEE 493 SNAGSTEAD WAY PORT TOWNSEND, WA 98368-9258 | % Ownership: | 100.0000000000% |
| | | Exemptions: | |
Pay Tax Due
There is currently No Amount Due on this property.
Taxes and Assessment Details
Property Tax Information as of
03/11/2026
Click on "Statement Details" to expand or collapse a tax statement.
* Please enter a valid date ** Please enter a valid date *
Statement Details |
| | TOTAL: | $0.00 | $0.00 | $0.00 | $0.00 | $0.00 | $0.00 |
|
| | $0.00 | $0.00 | $0.00 | $0.00 | $0.00 | $0.00 |
Values
| (+) Improvement Homesite Value: | + | $0 | |
| (+) Improvement Non-Homesite Value: | + | $350,412 | |
| (+) Land Homesite Value: | + | $0 | |
| (+) Land Non-Homesite Value: | + | $149,653 | |
| (+) Curr Use (HS): | + | $0 | $0 |
| (+) Curr Use (NHS): | + | $0 | $0 |
| | | -------------------------- | |
| (=) Market Value: | = | $500,065 | |
| (–) Productivity Loss: | – | $0 | |
| | | -------------------------- | |
| (=) Subtotal: | = | $500,065 | |
| (+) Senior Appraised Value: | + | $0 | |
| (+) Non-Senior Appraised Value: | + | $500,065 | |
| | | -------------------------- | |
| (=) Total Appraised Value: | = | $500,065 | |
| (–) Senior Exemption Loss: | – | $0 | |
| (–) Exemption Loss: | – | $0 | |
| | | -------------------------- | |
| (=) Taxable Value: | = | $500,065 | |
Taxing Jurisdiction
| Owner: | APPLETON FAMILY TRUST | | |
| % Ownership: | 100.0000000000% | | |
| Total Value: | $500,065 | | |
| Tax Area: | 0211 - 1-49F1E1H2L1 |
| CE | COUNTY CURRENT EXPENSE | 0.9034619479 | $500,065 | $500,065 | $451.79 | | |
| CNTYDD | DEVELOPMENTAL DISABILITIES | 0.0052121823 | $500,065 | $500,065 | $2.61 | | |
| CNTYVET | VETERANS RELIEF | 0.0052777810 | $500,065 | $500,065 | $2.64 | | |
| MENTAL | MENTAL HEALTH | 0.0052121823 | $500,065 | $500,065 | $2.61 | | |
| ROADS | COUNTY ROADS | 0.7415066410 | $500,065 | $500,065 | $370.80 | | |
| ROADSCU | COUNTY ROADS TO CUR EXP | 0.0000000000 | $500,065 | $500,065 | $0.00 | | |
| HOSP2CASH | HOSP DIST #2 GENERAL | 0.0536075306 | $500,065 | $500,065 | $26.81 | | |
| SCH49CP | SCHOOL DIST #49 CAP PROJ | 0.6279093905 | $500,065 | $500,065 | $314.00 | | |
| SCH49MO | SCHOOL DIST #49 EP & O | 0.6376483602 | $500,065 | $500,065 | $318.87 | | |
| CONSERVE | CONSERVATION FUTURES | 0.0275621078 | $500,065 | $500,065 | $13.78 | | |
| EMS1 | FIRE DIST #1 EMS | 0.4679948282 | $500,065 | $500,065 | $234.03 | | |
| FD1 | FIRE DIST #1 GENERAL | 1.2171942929 | $500,065 | $500,065 | $608.68 | | |
| LIB1 | LIBRARY DIST #1 GENERAL | 0.2868827388 | $500,065 | $500,065 | $143.46 | | |
| PORTPT | PORT OF PT GENERAL | 0.1134941229 | $500,065 | $500,065 | $56.75 | | |
| PORTPTIDD | PORT OF PT IDD 2019 | 0.2577346692 | $500,065 | $500,065 | $128.88 | | |
| PUD1 | PUD #1 GENERAL | 0.0597888892 | $500,065 | $500,065 | $29.90 | | |
| STATE | STATE SCHOOL PART 1 | 1.4940692947 | $500,065 | $500,065 | $747.13 | | |
| STATE2 | STATE SCHOOL PART 2 | 0.8050170049 | $500,065 | $500,065 | $402.56 | | |
| | Total Tax Rate: | 7.7095739644 | | | | | |
| | | | | Taxes w/Current Exemptions: | $3,855.30 | | |
| | | | | Taxes w/o Exemptions: | $3,855.30 | | |
Improvement / Building
| Improvement #1: | Residential Bldg | State Code: | 11 | 1404.0 sqft | Value: | $350,412 |
| Bathrooms (#): | 3 (FULL) | Bedrooms (#): | 2 | | Exterior Wall: | SI/ST | Fireplace: | WD ST-GOOD | | Floor Construction: | FRAME | Foundation: | CONBL | | Heating/Cooling: | F/A | Roof Cover: | COMP |
|
| | Type | Description | Class CD | Sub Class CD | Year Built | Area |
| | MA | Main Area | 3+ | 1S | 1960 | 1404.0 |
| | HCPOR | House Concrete Porch | 3 | * | 1960 | 175.0 |
| | HDECK | House Deck | 3 | * | 1960 | 96.0 |
| | GARAG | Garage (Table Not Dep) | 2 | * | 1960 | 1508.0 |
| | BSMTF | House basement finished | 3 | * | 1960 | 702.0 |
| | BSMTU | House basement unfinished | 3 | * | 1960 | 702.0 |
| | PATIO | House Patio | 2 | * | 1960 | 296.0 |
| | HCPOR | House Concrete Porch | 2 | * | 1960 | 72.0 |
| | HCPOR | House Concrete Porch | 2 | * | 1960 | 96.0 |
Sketch
Property Image
Land
| 1 | 4235-1373S | Residential Sites 1+/- Ac Excel Territorial Views | 1.0000 | 43560.00 | 0.00 | 0.00 | 1.00 | $143,000 | $0 |
| 2 | 1573A | Terr/Mtn/No View <6 Acres | 0.4100 | 17859.60 | 0.00 | 0.00 | 0.00 | $6,653 | $0 |
Roll Value History
| 2026 | N/A | N/A | N/A | N/A | N/A |
| 2025 | $350,412 | $149,653 | $0 | $500,065 | $500,065 |
| 2024 | $334,484 | $142,850 | $0 | $477,334 | $477,334 |
| 2023 | $334,484 | $130,740 | $0 | $465,224 | $465,224 |
| 2022 | $314,957 | $124,920 | $0 | $439,877 | $439,877 |
Deed and Sales History
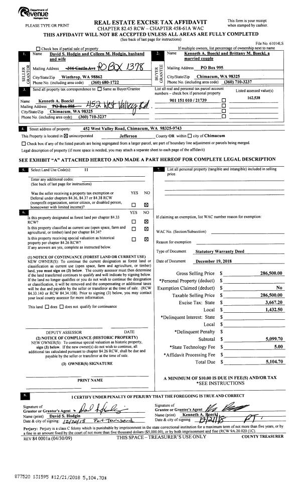
| 1 | 10/13/2020 | SWD | Statutory Warranty Deed | KENNETH & BRITTANY BOECKL | APPLETON FAMILY TRUST | | | $412,100.00 | 135406 | |
| 2 | 12/19/2018 | SWD | Statutory Warranty Deed | DAVID S HODGIN | KENNETH & BRITTANY BOECKL | | | $286,500.00 | 131595 | |
| 3 | 09/25/2003 | SWD | Statutory Warranty Deed | BAUMUNK ESTATE, ARLENE | HODGIN, DAVID S/COLLEEN M | 0 | 0 | $142,000.00 | 98395 | 0 |
Payout Agreement
| No payout information available.. |