Property
Account |
| Property ID: | 21851 | Abbreviated Legal Description: | S19 T29 R1W LT 5(S HWY 9)SUBJ/BRDY LINE ADJ |
| Parcel # / Geo ID: | 901193001 | Agent Code: | |
| Type: | Real | | |
| Tax Area: | 0103 - 1-50E5H2L1 | Land Use Code | 88 |
| Open Space: | N | DFL | Y |
| Historic Property: | N | Remodel Property: | N |
| Multi-Family Redevelopment: | N | | |
| Township: | 29N | Section: | 19 |
| Range: | 1W |
Location |
| Address: | | Mapsco: | 077/011 |
| Neighborhood: | S16, 17, 18, 19 & 20 T29 R1W | Map ID: | |
| Neighborhood CD: | 5230 |
Owner |
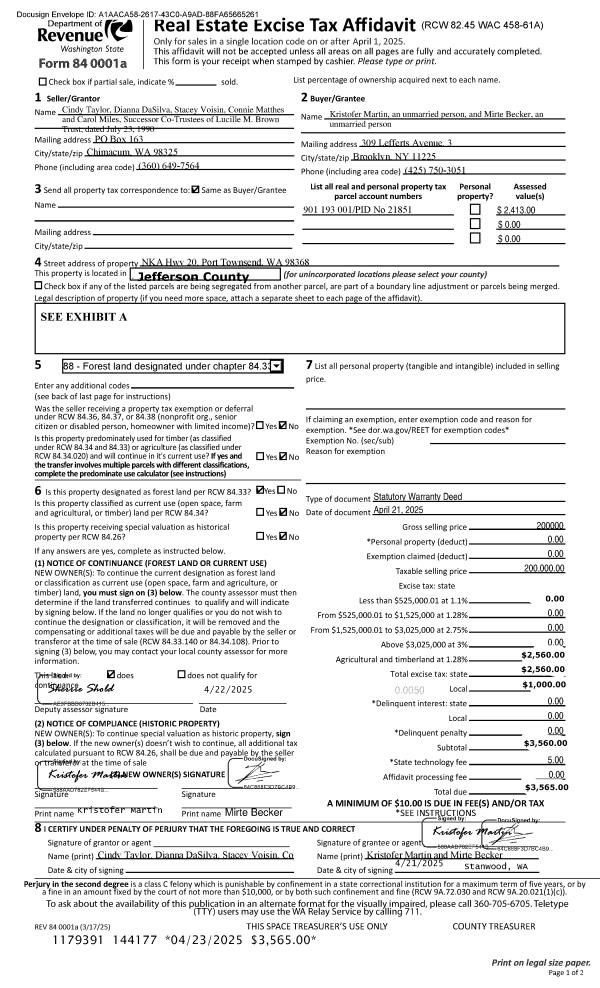
| Name: | KRISTOFER MARTIN | Owner ID: | 112466 |
| Mailing Address: | MIRTE BECKER 309 LEFFERTS AVE APT 3 BROOKLYN, NY 11225-4114 | % Ownership: | 100.0000000000% |
| | | Exemptions: | |
Pay Tax Due
There is currently No Amount Due on this property.
Taxes and Assessment Details
Property Tax Information as of
03/12/2026
Click on "Statement Details" to expand or collapse a tax statement.
* Please enter a valid date ** Please enter a valid date *
Statement Details |
| | TOTAL: | $0.00 | $0.00 | $0.00 | $0.00 | $0.00 | $0.00 |
|
| | $0.00 | $0.00 | $0.00 | $0.00 | $0.00 | $0.00 |
Values
| (+) Improvement Homesite Value: | + | $0 | |
| (+) Improvement Non-Homesite Value: | + | $0 | |
| (+) Land Homesite Value: | + | $0 | |
| (+) Land Non-Homesite Value: | + | $0 | |
| (+) Curr Use (HS): | + | $0 | $0 |
| (+) Curr Use (NHS): | + | $235,374 | $2,413 |
| | | -------------------------- | |
| (=) Market Value: | = | $235,374 | |
| (–) Productivity Loss: | – | $232,961 | |
| | | -------------------------- | |
| (=) Subtotal: | = | $2,413 | |
| (+) Senior Appraised Value: | + | $0 | |
| (+) Non-Senior Appraised Value: | + | $2,413 | |
| | | -------------------------- | |
| (=) Total Appraised Value: | = | $2,413 | |
| (–) Senior Exemption Loss: | – | $0 | |
| (–) Exemption Loss: | – | $0 | |
| | | -------------------------- | |
| (=) Taxable Value: | = | $2,413 | |
Taxing Jurisdiction
| Owner: | KRISTOFER MARTIN | | |
| % Ownership: | 100.0000000000% | | |
| Total Value: | $235,374 | | |
| Tax Area: | 0103 - 1-50E5H2L1 |
| CE | COUNTY CURRENT EXPENSE | 0.9034619479 | $2,413 | $2,413 | $2.18 | | |
| CNTYDD | DEVELOPMENTAL DISABILITIES | 0.0052121823 | $2,413 | $2,413 | $0.01 | | |
| CNTYVET | VETERANS RELIEF | 0.0052777810 | $2,413 | $2,413 | $0.01 | | |
| MENTAL | MENTAL HEALTH | 0.0052121823 | $2,413 | $2,413 | $0.01 | | |
| ROADS | COUNTY ROADS | 0.7415066410 | $2,413 | $2,413 | $1.79 | | |
| ROADSCU | COUNTY ROADS TO CUR EXP | 0.0000000000 | $2,413 | $2,413 | $0.00 | | |
| HOSP2CASH | HOSP DIST #2 GENERAL | 0.0536075306 | $2,413 | $2,413 | $0.13 | | |
| SCH50BOND | SCHOOL DIST #50 BOND 2016 | 0.5377451389 | $2,413 | $2,413 | $1.30 | | |
| SCH50CP | SCHOOL DIST #50 CAP PROJ | 0.4573475088 | $2,413 | $2,413 | $1.10 | | |
| SCH50MO | SCHOOL DIST #50 EP & O | 0.8262822886 | $2,413 | $2,413 | $1.99 | | |
| CONSERVE | CONSERVATION FUTURES | 0.0275621078 | $2,413 | $2,413 | $0.07 | | |
| EMS5 | FIRE DIST #5 EMS | 0.3811607070 | $2,413 | $2,413 | $0.92 | | |
| FD5BOND | FIRE DIST #5 BOND 2016 | 0.2222840608 | $2,413 | $2,413 | $0.54 | | |
| LIB1 | LIBRARY DIST #1 GENERAL | 0.2868827388 | $2,413 | $2,413 | $0.69 | | |
| PORTPT | PORT OF PT GENERAL | 0.1134941229 | $2,413 | $2,413 | $0.27 | | |
| PORTPTIDD | PORT OF PT IDD 2019 | 0.2577346692 | $2,413 | $2,413 | $0.62 | | |
| PUD1 | PUD #1 GENERAL | 0.0597888892 | $2,413 | $2,413 | $0.14 | | |
| STATE | STATE SCHOOL PART 1 | 1.4940692947 | $2,413 | $2,413 | $3.61 | | |
| STATE2 | STATE SCHOOL PART 2 | 0.8050170049 | $2,413 | $2,413 | $1.94 | | |
| | Total Tax Rate: | 7.1836467967 | | | | | |
| | | | | Taxes w/Current Exemptions: | $17.32 | | |
| | | | | Taxes w/o Exemptions: | $17.32 | | |
Improvement / Building
Sketch
| No sketches available for this property. |
Property Image
Land
| 1 | 1778A | Terr/Mtn View >15-25 Acres | 4.9800 | 216928.80 | 0.00 | 0.00 | 0.00 | $31,499 | $259 |
| 2 | 1778A | Terr/Mtn View >15-25 Acres | 10.0900 | 439520.40 | 0.00 | 0.00 | 0.00 | $63,820 | $1,120 |
| 3 | 5230-1355S | Avg Wtr View Sites 1+/- Acre | 1.0000 | 43560.00 | 0.00 | 0.00 | 1.00 | $88,000 | $112 |
| 4 | 1778A | Terr/Mtn View >15-25 Acres | 8.2300 | 358498.80 | 0.00 | 0.00 | 0.00 | $52,055 | $922 |
Roll Value History
| 2026 | N/A | N/A | N/A | N/A | N/A |
| 2025 | $0 | $235,374 | $2,413 | $2,413 | $2,413 |
| 2024 | $0 | $235,374 | $2,413 | $2,413 | $2,413 |
| 2023 | $0 | $218,558 | $2,369 | $2,369 | $2,369 |
| 2022 | $0 | $196,500 | $2,307 | $2,307 | $2,307 |
Deed and Sales History
| 1 | 04/21/2025 | SWD | Statutory Warranty Deed | LUCILLE M BROWN TRUST | KRISTOFER MARTIN | | | $200,000.00 | 144177 | |
| 2 | 05/07/2008 | SWD | Statutory Warranty Deed | POPE RESOURCES, A DELAWAR | BROWN, LUCILLE/TRUST | | | $250,000.00 | 111271 | 0 |
Payout Agreement
| No payout information available.. |