Property
Account |
| Property ID: | 21869 | Abbreviated Legal Description: | S20 T29 R1W NW NE(N1/2)(ALL LAND W/RADIUS OF 75' OF MOONLK)INC LK N PTN |
| Parcel # / Geo ID: | 901201004 | Agent Code: | |
| Type: | Real | | |
| Tax Area: | 0151 - 1-50F5E5H2L1 | Land Use Code | 76 |
| Open Space: | N | DFL | N |
| Historic Property: | N | Remodel Property: | N |
| Multi-Family Redevelopment: | N | | |
| Township: | 29N | Section: | 20 |
| Range: | 1W |
Location |
| Address: | | Mapsco: | 078/002 |
| Neighborhood: | S16, 17, 18, 19 & 20 T29 R1W | Map ID: | |
| Neighborhood CD: | 5230 |
Owner |
| Name: | JONATHAN A WHARTON | Owner ID: | 113926 |
| Mailing Address: | PO BOX 395 CHIMACUM, WA 98325-0395 | % Ownership: | 100.0000000000% |
| | | Exemptions: | |
Pay Tax Due
Select the appropriate checkbox next to the year to be paid. Multiple years may be selected.
*Convenience Fee not included
Taxes and Assessment Details
Property Tax Information as of
03/12/2026
Click on "Statement Details" to expand or collapse a tax statement.
* Please enter a valid date ** Please enter a valid date *
Statement Details |
| 2026 | 11335 | STATE - STATE LEVY (SCHOOL) | $118.64 | $118.63 | $0.00 | $0.00 | $0.00 | $237.27 |
| 2026 | 11335 | COUNTY - COUNTY LEVIES (CE, DD, VET, MH) | $47.43 | $47.43 | $0.00 | $0.00 | $0.00 | $94.86 |
| 2026 | 11335 | CONSERVE - CONSERVATION FUTURES | $1.42 | $1.42 | $0.00 | $0.00 | $0.00 | $2.84 |
| 2026 | 11335 | COROADS - COUNTY ROADS (ROADS, DIV TO CE) | $38.26 | $38.26 | $0.00 | $0.00 | $0.00 | $76.52 |
| 2026 | 11335 | PORTPT - PORT DISTRICT | $19.16 | $19.15 | $0.00 | $0.00 | $0.00 | $38.31 |
| 2026 | 11335 | PUD1 - PUD #1 | $3.09 | $3.08 | $0.00 | $0.00 | $0.00 | $6.17 |
| 2026 | 11335 | LIB1 - LIBRARY DIST #1 | $14.81 | $14.80 | $0.00 | $0.00 | $0.00 | $29.61 |
| 2026 | 11335 | HD2 - HOSP DIST #2 | $2.77 | $2.76 | $0.00 | $0.00 | $0.00 | $5.53 |
| 2026 | 11335 | SD50 - SCHOOL DIST #50 | $93.99 | $93.98 | $0.00 | $0.00 | $0.00 | $187.97 |
| 2026 | 11335 | FD5 - FIRE DISTRICT #5 | $55.13 | $55.13 | $0.00 | $0.00 | $0.00 | $110.26 |
| 2026 | 11335 | EMS5 - FIRE DIST #5 EMS | $19.67 | $19.67 | $0.00 | $0.00 | $0.00 | $39.34 |
| 2026 | 11335 | FP - DNR Forest Fire Protection Assmt | $8.50 | $8.50 | $0.00 | $0.00 | $0.00 | $17.00 |
| 2026 | 11335 | FPLCA - DNR Landowner Contingency Assmt | $3.00 | $3.00 | $0.00 | $0.00 | $0.00 | $6.00 |
| 2026 | 11335 | JCCD - JC Conservation District | $2.65 | $2.65 | $0.00 | $0.00 | $0.00 | $5.30 |
| 2026 | 11335 | NWA - Noxious Weed Assessment | $3.65 | $3.65 | $0.00 | $0.00 | $0.00 | $7.30 |
| 2026 | 11335 | WAT - Clean Water District | $13.00 | $13.00 | $0.00 | $0.00 | $0.00 | $26.00 |
| 2026 | 11335 | FP ADMIN - FP ADMIN | $0.50 | $0.00 | $0.00 | $0.00 | $0.00 | $0.50 |
| 2026 | 11335 | TOTAL: | $445.67 | $445.11 | $0.00 | $0.00 | $0.00 | $890.78 |
|
| 2026 | 11335 | $445.67 | $445.11 | $0.00 | $0.00 | $0.00 | $890.78 |
Statement Details |
| 2025 | 11361 | STATE - STATE LEVY (SCHOOL) | $123.74 | $123.73 | $0.00 | $0.00 | $247.47 | $0.00 |
| 2025 | 11361 | COUNTY - COUNTY LEVIES (CE, DD, VET, MH) | $48.67 | $48.65 | $0.00 | $0.00 | $97.32 | $0.00 |
| 2025 | 11361 | CONSERVE - CONSERVATION FUTURES | $1.46 | $1.46 | $0.00 | $0.00 | $2.92 | $0.00 |
| 2025 | 11361 | COROADS - COUNTY ROADS (ROADS, DIV TO CE) | $38.99 | $38.98 | $0.00 | $0.00 | $77.97 | $0.00 |
| 2025 | 11361 | PORTPT - PORT DISTRICT | $19.86 | $19.86 | $0.00 | $0.00 | $39.72 | $0.00 |
| 2025 | 11361 | PUD1 - PUD #1 | $3.19 | $3.18 | $0.00 | $0.00 | $6.37 | $0.00 |
| 2025 | 11361 | LIB1 - LIBRARY DIST #1 | $15.08 | $15.08 | $0.00 | $0.00 | $30.16 | $0.00 |
| 2025 | 11361 | HD2 - HOSP DIST #2 | $2.84 | $2.84 | $0.00 | $0.00 | $5.68 | $0.00 |
| 2025 | 11361 | SD50 - SCHOOL DIST #50 | $90.44 | $90.43 | $0.00 | $0.00 | $180.87 | $0.00 |
| 2025 | 11361 | FD5 - FIRE DISTRICT #5 | $56.82 | $56.81 | $0.00 | $0.00 | $113.63 | $0.00 |
| 2025 | 11361 | EMS5 - FIRE DIST #5 EMS | $20.21 | $20.20 | $0.00 | $0.00 | $40.41 | $0.00 |
| 2025 | 11361 | FP - DNR Forest Fire Protection Assmt | $8.50 | $8.50 | $0.00 | $0.00 | $17.00 | $0.00 |
| 2025 | 11361 | FPLCA - DNR Landowner Contingency Assmt | $3.00 | $3.00 | $0.00 | $0.00 | $6.00 | $0.00 |
| 2025 | 11361 | JCCD - JC Conservation District | $2.65 | $2.65 | $0.00 | $0.00 | $5.30 | $0.00 |
| 2025 | 11361 | NWA - Noxious Weed Assessment | $2.60 | $2.60 | $0.00 | $0.00 | $5.20 | $0.00 |
| 2025 | 11361 | WAT - Clean Water District | $13.00 | $13.00 | $0.00 | $0.00 | $26.00 | $0.00 |
| 2025 | 11361 | FP ADMIN - FP ADMIN | $0.50 | $0.00 | $0.00 | $0.00 | $0.50 | $0.00 |
| 2025 | 11361 | TOTAL: | $451.55 | $450.97 | $0.00 | $0.00 | $902.52 | $0.00 |
|
| 2025 | 11361 | $451.55 | $450.97 | $0.00 | $0.00 | $902.52 | $0.00 |
Statement Details |
| 2024 | 11387 | STATE - STATE LEVY (SCHOOL) | $113.56 | $113.54 | $0.00 | $0.00 | $227.10 | $0.00 |
| 2024 | 11387 | COUNTY - COUNTY LEVIES (CE, DD, VET, MH) | $48.61 | $48.58 | $0.00 | $0.00 | $97.19 | $0.00 |
| 2024 | 11387 | CONSERVE - CONSERVATION FUTURES | $1.46 | $1.45 | $0.00 | $0.00 | $2.91 | $0.00 |
| 2024 | 11387 | COROADS - COUNTY ROADS (ROADS, DIV TO CE) | $39.10 | $39.10 | $0.00 | $0.00 | $78.20 | $0.00 |
| 2024 | 11387 | PORTPT - PORT DISTRICT | $20.07 | $20.07 | $0.00 | $0.00 | $40.14 | $0.00 |
| 2024 | 11387 | PUD1 - PUD #1 | $3.19 | $3.19 | $0.00 | $0.00 | $6.38 | $0.00 |
| 2024 | 11387 | LIB1 - LIBRARY DIST #1 | $15.13 | $15.12 | $0.00 | $0.00 | $30.25 | $0.00 |
| 2024 | 11387 | HD2 - HOSP DIST #2 | $2.84 | $2.83 | $0.00 | $0.00 | $5.67 | $0.00 |
| 2024 | 11387 | SD50 - SCHOOL DIST #50 | $91.87 | $91.86 | $0.00 | $0.00 | $183.73 | $0.00 |
| 2024 | 11387 | FD5 - FIRE DISTRICT #5 | $56.77 | $56.77 | $0.00 | $0.00 | $113.54 | $0.00 |
| 2024 | 11387 | EMS5 - FIRE DIST #5 EMS | $19.49 | $19.48 | $0.00 | $0.00 | $38.97 | $0.00 |
| 2024 | 11387 | FP - DNR Forest Fire Protection Assmt | $8.50 | $8.50 | $0.00 | $0.00 | $17.00 | $0.00 |
| 2024 | 11387 | FPLCA - DNR Landowner Contingency Assmt | $3.00 | $3.00 | $0.00 | $0.00 | $6.00 | $0.00 |
| 2024 | 11387 | JCCD - JC Conservation District | $2.65 | $2.65 | $0.00 | $0.00 | $5.30 | $0.00 |
| 2024 | 11387 | NWA - Noxious Weed Assessment | $2.60 | $2.60 | $0.00 | $0.00 | $5.20 | $0.00 |
| 2024 | 11387 | WAT - Clean Water District | $12.50 | $12.50 | $0.00 | $0.00 | $25.00 | $0.00 |
| 2024 | 11387 | FP ADMIN - FP ADMIN | $0.50 | $0.00 | $0.00 | $0.00 | $0.50 | $0.00 |
| 2024 | 11387 | TOTAL: | $441.84 | $441.24 | $0.00 | $0.00 | $883.08 | $0.00 |
|
| 2024 | 11387 | $441.84 | $441.24 | $0.00 | $0.00 | $883.08 | $0.00 |
Statement Details |
| 2023 | 11407 | STATE - STATE LEVY (SCHOOL) | $107.83 | $107.81 | $0.00 | $0.00 | $215.64 | $0.00 |
| 2023 | 11407 | COUNTY - COUNTY LEVIES (CE, DD, VET, MH) | $47.06 | $47.03 | $0.00 | $0.00 | $94.09 | $0.00 |
| 2023 | 11407 | CONSERVE - CONSERVATION FUTURES | $1.41 | $1.41 | $0.00 | $0.00 | $2.82 | $0.00 |
| 2023 | 11407 | COROADS - COUNTY ROADS (ROADS, DIV TO CE) | $38.07 | $38.07 | $0.00 | $0.00 | $76.14 | $0.00 |
| 2023 | 11407 | PORTPT - PORT DISTRICT | $19.82 | $19.82 | $0.00 | $0.00 | $39.64 | $0.00 |
| 2023 | 11407 | PUD1 - PUD #1 | $3.12 | $3.12 | $0.00 | $0.00 | $6.24 | $0.00 |
| 2023 | 11407 | LIB1 - LIBRARY DIST #1 | $14.73 | $14.73 | $0.00 | $0.00 | $29.46 | $0.00 |
| 2023 | 11407 | HD2 - HOSP DIST #2 | $2.75 | $2.74 | $0.00 | $0.00 | $5.49 | $0.00 |
| 2023 | 11407 | SD50 - SCHOOL DIST #50 | $85.57 | $85.55 | $0.00 | $0.00 | $171.12 | $0.00 |
| 2023 | 11407 | FD5 - FIRE DISTRICT #5 | $56.00 | $55.99 | $0.00 | $0.00 | $111.99 | $0.00 |
| 2023 | 11407 | EMS5 - FIRE DIST #5 EMS | $18.41 | $18.40 | $0.00 | $0.00 | $36.81 | $0.00 |
| 2023 | 11407 | FP - DNR Forest Fire Protection Assmt | $8.50 | $8.50 | $0.00 | $0.00 | $17.00 | $0.00 |
| 2023 | 11407 | FPLCA - DNR Landowner Contingency Assmt | $3.00 | $3.00 | $0.00 | $0.00 | $6.00 | $0.00 |
| 2023 | 11407 | JCCD - JC Conservation District | $2.65 | $2.65 | $0.00 | $0.00 | $5.30 | $0.00 |
| 2023 | 11407 | NWA - Noxious Weed Assessment | $2.60 | $2.60 | $0.00 | $0.00 | $5.20 | $0.00 |
| 2023 | 11407 | WAT - Clean Water District | $12.00 | $12.00 | $0.00 | $0.00 | $24.00 | $0.00 |
| 2023 | 11407 | FP ADMIN - FP ADMIN | $0.50 | $0.00 | $0.00 | $0.00 | $0.50 | $0.00 |
| 2023 | 11407 | TOTAL: | $424.02 | $423.42 | $0.00 | $0.00 | $847.44 | $0.00 |
|
| 2023 | 11407 | $424.02 | $423.42 | $0.00 | $0.00 | $847.44 | $0.00 |
Values
| (+) Improvement Homesite Value: | + | $0 | |
| (+) Improvement Non-Homesite Value: | + | $46,000 | |
| (+) Land Homesite Value: | + | $0 | |
| (+) Land Non-Homesite Value: | + | $57,200 | |
| (+) Curr Use (HS): | + | $0 | $0 |
| (+) Curr Use (NHS): | + | $0 | $0 |
| | | -------------------------- | |
| (=) Market Value: | = | $103,200 | |
| (–) Productivity Loss: | – | $0 | |
| | | -------------------------- | |
| (=) Subtotal: | = | $103,200 | |
| (+) Senior Appraised Value: | + | $0 | |
| (+) Non-Senior Appraised Value: | + | $103,200 | |
| | | -------------------------- | |
| (=) Total Appraised Value: | = | $103,200 | |
| (–) Senior Exemption Loss: | – | $0 | |
| (–) Exemption Loss: | – | $0 | |
| | | -------------------------- | |
| (=) Taxable Value: | = | $103,200 | |
Taxing Jurisdiction
| Owner: | JONATHAN A WHARTON | | |
| % Ownership: | 100.0000000000% | | |
| Total Value: | $103,200 | | |
| Tax Area: | 0151 - 1-50F5E5H2L1 |
| CE | COUNTY CURRENT EXPENSE | 0.9034619479 | $103,200 | $103,200 | $93.24 | | |
| CNTYDD | DEVELOPMENTAL DISABILITIES | 0.0052121823 | $103,200 | $103,200 | $0.54 | | |
| CNTYVET | VETERANS RELIEF | 0.0052777810 | $103,200 | $103,200 | $0.54 | | |
| MENTAL | MENTAL HEALTH | 0.0052121823 | $103,200 | $103,200 | $0.54 | | |
| ROADS | COUNTY ROADS | 0.7415066410 | $103,200 | $103,200 | $76.52 | | |
| ROADSCU | COUNTY ROADS TO CUR EXP | 0.0000000000 | $103,200 | $103,200 | $0.00 | | |
| HOSP2CASH | HOSP DIST #2 GENERAL | 0.0536075306 | $103,200 | $103,200 | $5.53 | | |
| SCH50BOND | SCHOOL DIST #50 BOND 2016 | 0.5377451389 | $103,200 | $103,200 | $55.50 | | |
| SCH50CP | SCHOOL DIST #50 CAP PROJ | 0.4573475088 | $103,200 | $103,200 | $47.20 | | |
| SCH50MO | SCHOOL DIST #50 EP & O | 0.8262822886 | $103,200 | $103,200 | $85.27 | | |
| CONSERVE | CONSERVATION FUTURES | 0.0275621078 | $103,200 | $103,200 | $2.84 | | |
| EMS5 | FIRE DIST #5 EMS | 0.3811607070 | $103,200 | $103,200 | $39.34 | | |
| FD5 | FIRE DIST #5 GENERAL | 0.8460827285 | $103,200 | $103,200 | $87.32 | | |
| FD5BOND | FIRE DIST #5 BOND 2016 | 0.2222840608 | $103,200 | $103,200 | $22.94 | | |
| LIB1 | LIBRARY DIST #1 GENERAL | 0.2868827388 | $103,200 | $103,200 | $29.61 | | |
| PORTPT | PORT OF PT GENERAL | 0.1134941229 | $103,200 | $103,200 | $11.71 | | |
| PORTPTIDD | PORT OF PT IDD 2019 | 0.2577346692 | $103,200 | $103,200 | $26.60 | | |
| PUD1 | PUD #1 GENERAL | 0.0597888892 | $103,200 | $103,200 | $6.17 | | |
| STATE | STATE SCHOOL PART 1 | 1.4940692947 | $103,200 | $103,200 | $154.19 | | |
| STATE2 | STATE SCHOOL PART 2 | 0.8050170049 | $103,200 | $103,200 | $83.08 | | |
| | Total Tax Rate: | 8.0297295252 | | | | | |
| | | | | Taxes w/Current Exemptions: | $828.68 | | |
| | | | | Taxes w/o Exemptions: | $828.68 | | |
Improvement / Building
| Improvement #1: | Residential Bldg | State Code: | 77 | 0.0 sqft | Value: | $46,000 |
| | Type | Description | Class CD | Sub Class CD | Year Built | Area |
| | OTHER | Other | * | * | 0 | 0.0 |
| | ADDN | Addition (Table Not Dep) | 3 | * | 0 | 0.0 |
Sketch
| No sketches available for this property. |
Property Image
Land
| 1 | 5230-7215F | | 0.0000 | 0.00 | 0.00 | 0.00 | 0.00 | $57,200 | $0 |
Roll Value History
| 2026 | N/A | N/A | N/A | N/A | N/A |
| 2025 | $46,000 | $57,200 | $0 | $103,200 | $103,200 |
| 2024 | $46,000 | $57,200 | $0 | $103,200 | $103,200 |
| 2023 | $43,560 | $54,600 | $0 | $98,160 | $98,160 |
| 2022 | $39,600 | $52,000 | $0 | $91,600 | $91,600 |
Deed and Sales History
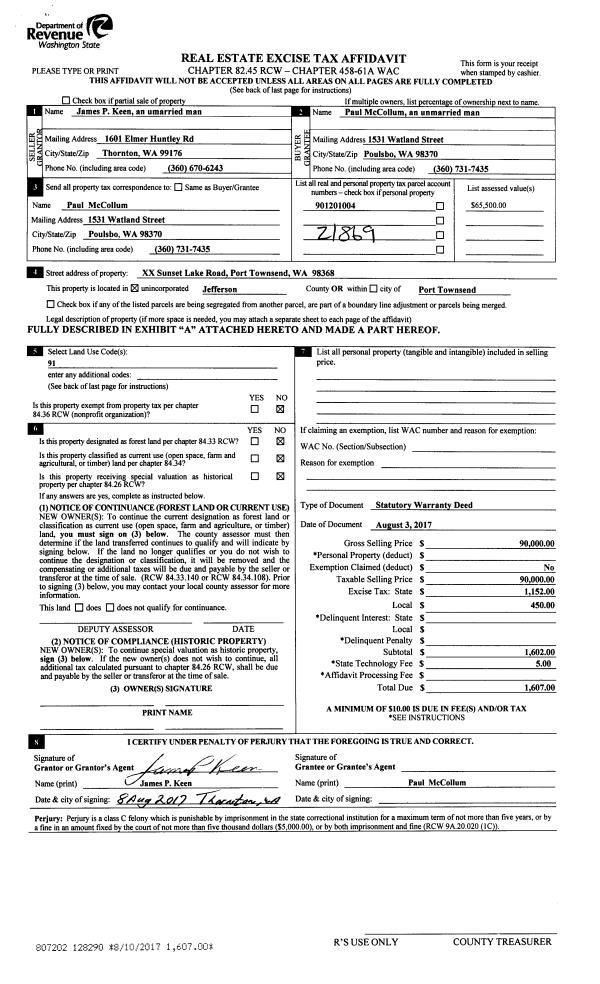
| 1 | 01/14/2026 | QCD | Quit Claim Deed | PAUL MC COLLUM | JONATHAN A WHARTON | | | $90,000.00 | 145507 | |
| 2 | 08/03/2017 | SWD | Statutory Warranty Deed | JAMES P KEEN | PAUL MC COLLUM | | | $90,000.00 | 128290 | |
| 3 | 08/22/2011 | QCD | Quit Claim Deed | KEEN, PATRICIA L | KEEN, JAMES P | 0 | 0 | $0.00 | 116559 | 0 |
| 4 | 07/26/1996 | SWD | Statutory Warranty Deed | CAMPBELL, JACK G/D JOANN | KEEN, JAMES PAUL/PATRICIA LYNN | 0 | 0 | $45,000.00 | 80069 | 0 |
Payout Agreement
| No payout information available.. |