Property
Account |
| Property ID: | 21934 | Abbreviated Legal Description: | S22 T29 R1W TAX 11 LESS TAX 21 SUBJ/BLA |
| Parcel # / Geo ID: | 901224007 | Agent Code: | |
| Type: | Real | | |
| Tax Area: | 0211 - 1-49F1E1H2L1 | Land Use Code | 11 |
| Open Space: | N | DFL | N |
| Historic Property: | N | Remodel Property: | N |
| Multi-Family Redevelopment: | N | | |
| Township: | 29N | Section: | 22 |
| Range: | 1W |
Location |
| Address: | 2310 WEST VALLEY RD CHIMACUM, WA 98325 | Mapsco: | 215/032 |
| Neighborhood: | S21, 22,& 23 T29N R1W; MCNEIL PARK; STEWARTS GRDN; FAWN MDOW | Map ID: | |
| Neighborhood CD: | 4270 |
Owner |
| Name: | JOEL HARTSHORNE | Owner ID: | 107074 |
| Mailing Address: | 2310 W VALLEY RD CHIMACUM, WA 98325-9747 | % Ownership: | 100.0000000000% |
| | | Exemptions: | |
Pay Tax Due
Select the appropriate checkbox next to the year to be paid. Multiple years may be selected.
*Convenience Fee not included
Taxes and Assessment Details
Property Tax Information as of
03/11/2026
Click on "Statement Details" to expand or collapse a tax statement.
* Please enter a valid date ** Please enter a valid date *
Statement Details |
| 2026 | 11400 | STATE - STATE LEVY (SCHOOL) | $764.78 | $764.77 | $0.00 | $0.00 | $0.00 | $1529.55 |
| 2026 | 11400 | COUNTY - COUNTY LEVIES (CE, DD, VET, MH) | $305.77 | $305.74 | $0.00 | $0.00 | $0.00 | $611.51 |
| 2026 | 11400 | CONSERVE - CONSERVATION FUTURES | $9.17 | $9.17 | $0.00 | $0.00 | $0.00 | $18.34 |
| 2026 | 11400 | COROADS - COUNTY ROADS (ROADS, DIV TO CE) | $246.66 | $246.65 | $0.00 | $0.00 | $0.00 | $493.31 |
| 2026 | 11400 | PORTPT - PORT DISTRICT | $123.50 | $123.48 | $0.00 | $0.00 | $0.00 | $246.98 |
| 2026 | 11400 | PUD1 - PUD #1 | $19.89 | $19.89 | $0.00 | $0.00 | $0.00 | $39.78 |
| 2026 | 11400 | LIB1 - LIBRARY DIST #1 | $95.43 | $95.43 | $0.00 | $0.00 | $0.00 | $190.86 |
| 2026 | 11400 | HD2 - HOSP DIST #2 | $17.83 | $17.83 | $0.00 | $0.00 | $0.00 | $35.66 |
| 2026 | 11400 | SD49 - SCHOOL DIST #49 | $420.98 | $420.98 | $0.00 | $0.00 | $0.00 | $841.96 |
| 2026 | 11400 | FD1 - FIRE DISTRICT #1 | $404.89 | $404.89 | $0.00 | $0.00 | $0.00 | $809.78 |
| 2026 | 11400 | EMS1 - FIRE DIST #1 EMS | $155.68 | $155.67 | $0.00 | $0.00 | $0.00 | $311.35 |
| 2026 | 11400 | FP - DNR Forest Fire Protection Assmt | $8.50 | $8.50 | $0.00 | $0.00 | $0.00 | $17.00 |
| 2026 | 11400 | FPLCA - DNR Landowner Contingency Assmt | $3.00 | $3.00 | $0.00 | $0.00 | $0.00 | $6.00 |
| 2026 | 11400 | JCCD - JC Conservation District | $2.70 | $2.70 | $0.00 | $0.00 | $0.00 | $5.40 |
| 2026 | 11400 | NWA - Noxious Weed Assessment | $3.65 | $3.65 | $0.00 | $0.00 | $0.00 | $7.30 |
| 2026 | 11400 | OSS - On Site Septic | $23.10 | $23.10 | $0.00 | $0.00 | $0.00 | $46.20 |
| 2026 | 11400 | WAT - Clean Water District | $13.00 | $13.00 | $0.00 | $0.00 | $0.00 | $26.00 |
| 2026 | 11400 | FP ADMIN - FP ADMIN | $0.50 | $0.00 | $0.00 | $0.00 | $0.00 | $0.50 |
| 2026 | 11400 | TOTAL: | $2619.03 | $2618.45 | $0.00 | $0.00 | $0.00 | $5237.48 |
|
| 2026 | 11400 | $2619.03 | $2618.45 | $0.00 | $0.00 | $0.00 | $5237.48 |
Statement Details |
| 2025 | 11426 | STATE - STATE LEVY (SCHOOL) | $762.46 | $762.44 | $0.00 | $0.00 | $1524.90 | $0.00 |
| 2025 | 11426 | COUNTY - COUNTY LEVIES (CE, DD, VET, MH) | $299.84 | $299.82 | $0.00 | $0.00 | $599.66 | $0.00 |
| 2025 | 11426 | CONSERVE - CONSERVATION FUTURES | $8.99 | $8.99 | $0.00 | $0.00 | $17.98 | $0.00 |
| 2025 | 11426 | COROADS - COUNTY ROADS (ROADS, DIV TO CE) | $240.22 | $240.20 | $0.00 | $0.00 | $480.42 | $0.00 |
| 2025 | 11426 | PORTPT - PORT DISTRICT | $122.35 | $122.34 | $0.00 | $0.00 | $244.69 | $0.00 |
| 2025 | 11426 | PUD1 - PUD #1 | $19.62 | $19.62 | $0.00 | $0.00 | $39.24 | $0.00 |
| 2025 | 11426 | LIB1 - LIBRARY DIST #1 | $92.94 | $92.93 | $0.00 | $0.00 | $185.87 | $0.00 |
| 2025 | 11426 | HD2 - HOSP DIST #2 | $17.50 | $17.49 | $0.00 | $0.00 | $34.99 | $0.00 |
| 2025 | 11426 | SD49 - SCHOOL DIST #49 | $408.64 | $408.62 | $0.00 | $0.00 | $817.26 | $0.00 |
| 2025 | 11426 | FD1 - FIRE DISTRICT #1 | $395.66 | $395.65 | $0.00 | $0.00 | $791.31 | $0.00 |
| 2025 | 11426 | EMS1 - FIRE DIST #1 EMS | $152.18 | $152.18 | $0.00 | $0.00 | $304.36 | $0.00 |
| 2025 | 11426 | FP - DNR Forest Fire Protection Assmt | $8.50 | $8.50 | $0.00 | $0.00 | $17.00 | $0.00 |
| 2025 | 11426 | FPLCA - DNR Landowner Contingency Assmt | $3.00 | $3.00 | $0.00 | $0.00 | $6.00 | $0.00 |
| 2025 | 11426 | JCCD - JC Conservation District | $2.70 | $2.70 | $0.00 | $0.00 | $5.40 | $0.00 |
| 2025 | 11426 | NWA - Noxious Weed Assessment | $2.60 | $2.60 | $0.00 | $0.00 | $5.20 | $0.00 |
| 2025 | 11426 | OSS - On Site Septic | $21.50 | $21.50 | $0.00 | $0.00 | $43.00 | $0.00 |
| 2025 | 11426 | WAT - Clean Water District | $13.00 | $13.00 | $0.00 | $0.00 | $26.00 | $0.00 |
| 2025 | 11426 | FP ADMIN - FP ADMIN | $0.50 | $0.00 | $0.00 | $0.00 | $0.50 | $0.00 |
| 2025 | 11426 | TOTAL: | $2572.20 | $2571.58 | $0.00 | $0.00 | $5143.78 | $0.00 |
|
| 2025 | 11426 | $2572.20 | $2571.58 | $0.00 | $0.00 | $5143.78 | $0.00 |
Statement Details |
| 2024 | 11452 | STATE - STATE LEVY (SCHOOL) | $692.65 | $692.64 | $0.00 | $0.00 | $1385.29 | $0.00 |
| 2024 | 11452 | COUNTY - COUNTY LEVIES (CE, DD, VET, MH) | $296.41 | $296.38 | $0.00 | $0.00 | $592.79 | $0.00 |
| 2024 | 11452 | CONSERVE - CONSERVATION FUTURES | $8.89 | $8.89 | $0.00 | $0.00 | $17.78 | $0.00 |
| 2024 | 11452 | COROADS - COUNTY ROADS (ROADS, DIV TO CE) | $238.49 | $238.49 | $0.00 | $0.00 | $476.98 | $0.00 |
| 2024 | 11452 | PORTPT - PORT DISTRICT | $122.43 | $122.41 | $0.00 | $0.00 | $244.84 | $0.00 |
| 2024 | 11452 | PUD1 - PUD #1 | $19.47 | $19.47 | $0.00 | $0.00 | $38.94 | $0.00 |
| 2024 | 11452 | LIB1 - LIBRARY DIST #1 | $92.27 | $92.27 | $0.00 | $0.00 | $184.54 | $0.00 |
| 2024 | 11452 | HD2 - HOSP DIST #2 | $17.30 | $17.29 | $0.00 | $0.00 | $34.59 | $0.00 |
| 2024 | 11452 | SD49 - SCHOOL DIST #49 | $309.31 | $309.29 | $0.00 | $0.00 | $618.60 | $0.00 |
| 2024 | 11452 | FD1 - FIRE DISTRICT #1 | $391.90 | $391.89 | $0.00 | $0.00 | $783.79 | $0.00 |
| 2024 | 11452 | EMS1 - FIRE DIST #1 EMS | $149.69 | $149.69 | $0.00 | $0.00 | $299.38 | $0.00 |
| 2024 | 11452 | FP - DNR Forest Fire Protection Assmt | $8.50 | $8.50 | $0.00 | $0.00 | $17.00 | $0.00 |
| 2024 | 11452 | FPLCA - DNR Landowner Contingency Assmt | $3.00 | $3.00 | $0.00 | $0.00 | $6.00 | $0.00 |
| 2024 | 11452 | JCCD - JC Conservation District | $2.70 | $2.70 | $0.00 | $0.00 | $5.40 | $0.00 |
| 2024 | 11452 | NWA - Noxious Weed Assessment | $2.60 | $2.60 | $0.00 | $0.00 | $5.20 | $0.00 |
| 2024 | 11452 | OSS - On Site Septic | $21.00 | $21.00 | $0.00 | $0.00 | $42.00 | $0.00 |
| 2024 | 11452 | WAT - Clean Water District | $12.50 | $12.50 | $0.00 | $0.00 | $25.00 | $0.00 |
| 2024 | 11452 | FP ADMIN - FP ADMIN | $0.50 | $0.00 | $0.00 | $0.00 | $0.50 | $0.00 |
| 2024 | 11452 | TOTAL: | $2389.61 | $2389.01 | $0.00 | $0.00 | $4778.62 | $0.00 |
|
| 2024 | 11452 | $2389.61 | $2389.01 | $0.00 | $0.00 | $4778.62 | $0.00 |
Statement Details |
| 2023 | 11472 | STATE - STATE LEVY (SCHOOL) | $679.49 | $679.48 | $0.00 | $0.00 | $1358.97 | $0.00 |
| 2023 | 11472 | COUNTY - COUNTY LEVIES (CE, DD, VET, MH) | $296.53 | $296.49 | $0.00 | $0.00 | $593.02 | $0.00 |
| 2023 | 11472 | CONSERVE - CONSERVATION FUTURES | $8.89 | $8.89 | $0.00 | $0.00 | $17.78 | $0.00 |
| 2023 | 11472 | COROADS - COUNTY ROADS (ROADS, DIV TO CE) | $239.90 | $239.89 | $0.00 | $0.00 | $479.79 | $0.00 |
| 2023 | 11472 | PORTPT - PORT DISTRICT | $124.91 | $124.90 | $0.00 | $0.00 | $249.81 | $0.00 |
| 2023 | 11472 | PUD1 - PUD #1 | $19.66 | $19.65 | $0.00 | $0.00 | $39.31 | $0.00 |
| 2023 | 11472 | LIB1 - LIBRARY DIST #1 | $92.82 | $92.81 | $0.00 | $0.00 | $185.63 | $0.00 |
| 2023 | 11472 | HD2 - HOSP DIST #2 | $17.31 | $17.29 | $0.00 | $0.00 | $34.60 | $0.00 |
| 2023 | 11472 | SD49 - SCHOOL DIST #49 | $317.62 | $317.62 | $0.00 | $0.00 | $635.24 | $0.00 |
| 2023 | 11472 | FD1 - FIRE DISTRICT #1 | $244.26 | $244.26 | $0.00 | $0.00 | $488.52 | $0.00 |
| 2023 | 11472 | EMS1 - FIRE DIST #1 EMS | $103.91 | $103.90 | $0.00 | $0.00 | $207.81 | $0.00 |
| 2023 | 11472 | FP - DNR Forest Fire Protection Assmt | $8.50 | $8.50 | $0.00 | $0.00 | $17.00 | $0.00 |
| 2023 | 11472 | FPLCA - DNR Landowner Contingency Assmt | $3.00 | $3.00 | $0.00 | $0.00 | $6.00 | $0.00 |
| 2023 | 11472 | JCCD - JC Conservation District | $2.70 | $2.70 | $0.00 | $0.00 | $5.40 | $0.00 |
| 2023 | 11472 | NWA - Noxious Weed Assessment | $2.60 | $2.60 | $0.00 | $0.00 | $5.20 | $0.00 |
| 2023 | 11472 | OSS - On Site Septic | $20.50 | $20.50 | $0.00 | $0.00 | $41.00 | $0.00 |
| 2023 | 11472 | WAT - Clean Water District | $12.00 | $12.00 | $0.00 | $0.00 | $24.00 | $0.00 |
| 2023 | 11472 | FP ADMIN - FP ADMIN | $0.50 | $0.00 | $0.00 | $0.00 | $0.50 | $0.00 |
| 2023 | 11472 | TOTAL: | $2195.10 | $2194.48 | $0.00 | $0.00 | $4389.58 | $0.00 |
|
| 2023 | 11472 | $2195.10 | $2194.48 | $0.00 | $0.00 | $4389.58 | $0.00 |
Values
| (+) Improvement Homesite Value: | + | $0 | |
| (+) Improvement Non-Homesite Value: | + | $431,260 | |
| (+) Land Homesite Value: | + | $0 | |
| (+) Land Non-Homesite Value: | + | $234,025 | |
| (+) Curr Use (HS): | + | $0 | $0 |
| (+) Curr Use (NHS): | + | $0 | $0 |
| | | -------------------------- | |
| (=) Market Value: | = | $665,285 | |
| (–) Productivity Loss: | – | $0 | |
| | | -------------------------- | |
| (=) Subtotal: | = | $665,285 | |
| (+) Senior Appraised Value: | + | $0 | |
| (+) Non-Senior Appraised Value: | + | $665,285 | |
| | | -------------------------- | |
| (=) Total Appraised Value: | = | $665,285 | |
| (–) Senior Exemption Loss: | – | $0 | |
| (–) Exemption Loss: | – | $0 | |
| | | -------------------------- | |
| (=) Taxable Value: | = | $665,285 | |
Taxing Jurisdiction
| Owner: | JOEL HARTSHORNE | | |
| % Ownership: | 100.0000000000% | | |
| Total Value: | $665,285 | | |
| Tax Area: | 0211 - 1-49F1E1H2L1 |
| CE | COUNTY CURRENT EXPENSE | 0.9034619479 | $665,285 | $665,285 | $601.06 | | |
| CNTYDD | DEVELOPMENTAL DISABILITIES | 0.0052121823 | $665,285 | $665,285 | $3.47 | | |
| CNTYVET | VETERANS RELIEF | 0.0052777810 | $665,285 | $665,285 | $3.51 | | |
| MENTAL | MENTAL HEALTH | 0.0052121823 | $665,285 | $665,285 | $3.47 | | |
| ROADS | COUNTY ROADS | 0.7415066410 | $665,285 | $665,285 | $493.31 | | |
| ROADSCU | COUNTY ROADS TO CUR EXP | 0.0000000000 | $665,285 | $665,285 | $0.00 | | |
| HOSP2CASH | HOSP DIST #2 GENERAL | 0.0536075306 | $665,285 | $665,285 | $35.66 | | |
| SCH49CP | SCHOOL DIST #49 CAP PROJ | 0.6279093905 | $665,285 | $665,285 | $417.74 | | |
| SCH49MO | SCHOOL DIST #49 EP & O | 0.6376483602 | $665,285 | $665,285 | $424.22 | | |
| CONSERVE | CONSERVATION FUTURES | 0.0275621078 | $665,285 | $665,285 | $18.34 | | |
| EMS1 | FIRE DIST #1 EMS | 0.4679948282 | $665,285 | $665,285 | $311.35 | | |
| FD1 | FIRE DIST #1 GENERAL | 1.2171942929 | $665,285 | $665,285 | $809.78 | | |
| LIB1 | LIBRARY DIST #1 GENERAL | 0.2868827388 | $665,285 | $665,285 | $190.86 | | |
| PORTPT | PORT OF PT GENERAL | 0.1134941229 | $665,285 | $665,285 | $75.51 | | |
| PORTPTIDD | PORT OF PT IDD 2019 | 0.2577346692 | $665,285 | $665,285 | $171.47 | | |
| PUD1 | PUD #1 GENERAL | 0.0597888892 | $665,285 | $665,285 | $39.78 | | |
| STATE | STATE SCHOOL PART 1 | 1.4940692947 | $665,285 | $665,285 | $993.98 | | |
| STATE2 | STATE SCHOOL PART 2 | 0.8050170049 | $665,285 | $665,285 | $535.57 | | |
| | Total Tax Rate: | 7.7095739644 | | | | | |
| | | | | Taxes w/Current Exemptions: | $5,129.08 | | |
| | | | | Taxes w/o Exemptions: | $5,129.08 | | |
Improvement / Building
| Improvement #1: | Residential Bldg | State Code: | 11 | 1818.0 sqft | Value: | $431,260 |
| Bathrooms (#): | 2 (FULL) | Bedrooms (#): | 3 | | Exterior Wall: | PL/T1 | Floor Construction: | FRAME | | Foundation: | CONPR | Heating/Cooling: | HPUMP | | Roof Cover: | COMP |   |   |
|
| | Type | Description | Class CD | Sub Class CD | Year Built | Area |
| | MA | Main Area | 4+ | 1S | 1995 | 1818.0 |
| | HWPOR | House Wood Porch | 4 | * | 1995 | 30.0 |
| | GDET | Detached Garage | 4 | 1S | 1995 | 672.0 |
| | OTHER | Other | 4 | * | 1995 | 0.0 |
| | CONCD | Concrete Drive | 4 | * | 1995 | 400.0 |
| | SHED | Shed (Table Not Dep) | 1 | * | 1995 | 128.0 |
Sketch
Property Image
Land
| 1 | 1571A | | 2.7500 | 119790.00 | 0.00 | 0.00 | 0.00 | $63,525 | $0 |
| 2 | 4270-1373S | | 1.0000 | 43560.00 | 0.00 | 0.00 | 1.00 | $170,500 | $0 |
Roll Value History
| 2026 | N/A | N/A | N/A | N/A | N/A |
| 2025 | $431,260 | $234,025 | $0 | $665,285 | $665,285 |
| 2024 | $412,510 | $223,388 | $0 | $635,898 | $635,898 |
| 2023 | $393,759 | $205,000 | $0 | $598,759 | $598,759 |
| 2022 | $382,760 | $194,500 | $0 | $577,260 | $577,260 |
Deed and Sales History
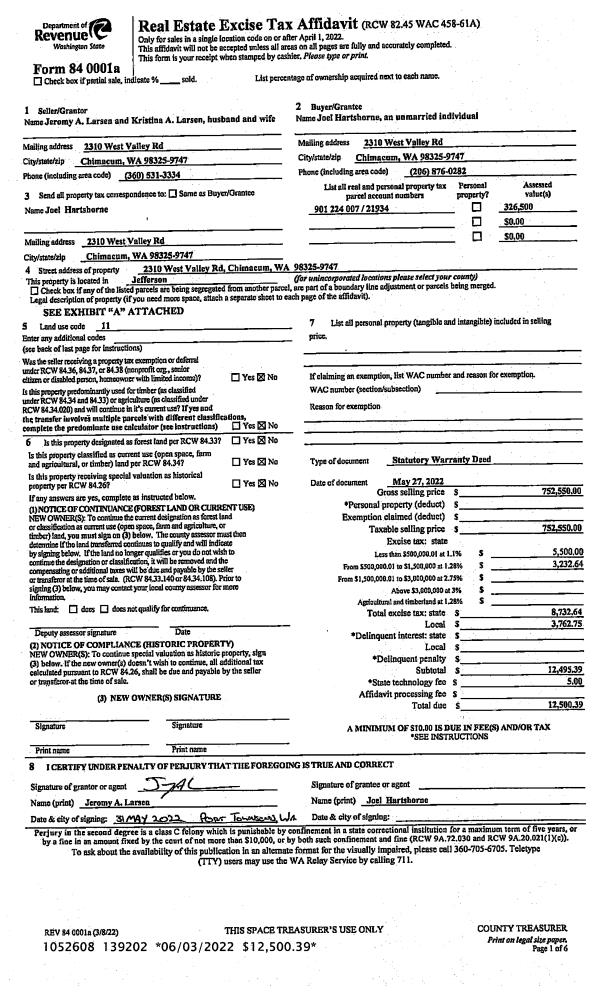
| 1 | 05/27/2022 | SWD | Statutory Warranty Deed | JEROMY A & KRISTINA A LARSEN | JOEL HARTSHORNE | | | $752,550.00 | 139202 | |
| 2 | 01/04/2016 | SWD | Statutory Warranty Deed | MARC D MANDEL TRUSTEE | JEROMY A & KRISTINA A LARSEN | | | $255,000.00 | 124689 | |
| 3 | 09/02/2010 | WD | Warranty Deed | FANNIE MAE AKA FEDERAL NA | MANDEL, MARC/GRIFALCONI, MIA | 0 | 0 | $226,000.00 | 114853 | 0 |
| 4 | 03/29/2010 | TRED | Trustee Deed | RECONTRUST CO NA | FEDERAL NATIONAL MORTGAGE | | | $0.00 | 114226 | 0 |
| 5 | 03/22/2007 | SWD | Statutory Warranty Deed | RUDOLPH, DARRYL/PATRICIA | MORRIS, MARGARET | 0 | 0 | $330,000.00 | 108882 | 0 |
| 6 | 11/17/1994 | QCD | Quit Claim Deed | KIMBALL, KATE M | RUDOLPH, DARRYL/PATRICIA | 0 | 0 | $0.00 | 75634 | 0 |
| 7 | 11/03/1994 | SWD | Statutory Warranty Deed | KIMBALL, KATE M | RUDOLPH, DARRYL/PATRICIA | 0 | 0 | $56,000.00 | 75633 | 0 |
Payout Agreement
| No payout information available.. |